Perdea de aer arhitecturala TEDDINGTON SILENT
DESIGN
T E C H N I C A L D ATA
AIR
f o r
C U R T A IN
E X L U S I V E
U NI T S
R E Q U I R E M EN T S
Teddington
TEDDINGTON
Overview of Designer Air Curtain Systems
It depends on the situation.
SWING DOORS
AutomatiC SLIDING DOORS
Swing doors or door systems have
door elements which swing open
either inwards or outwards and can
be opened either manually or
automatically.
S
wing door system with horizontal air curtains
fitted in a row.
Automatic sliding door with vertical air curtain
device.
This includes all doors and door
systems where the door elements
automatically slide to the side by
means of light barriers or movement
sensors.
The swing movement of the door
elements often makes a vertical
arrangement of the air curtain units
next to the doors either difficult or
impossible, as the open door would
block the air curtain. So only
horizontally fitted units are offered
as standard for swing doors. The
devices are mounted above the door
so the air curtain is blown
down
wards.
The air curtain devices can be
mounted horizontally above the
doors. The air curtain is then blown
downwards.
However, exceptions are possible to
suit specific customer requirements.
For example, if the swing doors only
swing outwards. In such cases, the
designer vertical units for automatic
sliding doors can also be used.
If fitting the units above the doors is
either impossible or impractical – for
example if the door systems are
more than 4 meters high – automatic
sliding doors can also easily be
shielded using vertically mounted air
curtains. To do this, attractively
designed slimline column units are
positioned next to the door to create
an air curtain out to the side.
Curved sliding doors
C
urved sliding door with vertical air curtain
device.
Revolving doors with vertical air curtain
systems.
2
REVOLVING DOORS
As with revolving doors, curved
sliding doors are based on providing
a circular air-lock function. However,
instead of revolving panels, curved
slidin
g doors have arc-shaped sliding
door elements adjusted to the radius
of the circle which open automatically to the side. This system is simple to
shield using vertically mounted units
either inside or outside the air-lock.
The panels of a revolving door act like
a paddle wheel pushing untreated
outside air into the building. This
produces an unpleasant “sea of cold”
in the entrance area.
Air curtains can be fitted vertically
next to the door to provide effective
shielding for revolving doors. Horizontal fitting is also an option. To do
this, the air curtain system is adapted
to the radius of the revolving door
and fitted into its ‘roof’. For technical
reasons, EVOLVENT® nozzles cannot
be used when units are fitted in this
way.
Overview of units.
D o o r s i tuat i o n
Unit series
Page
DELTA
4-5
ELLIPSE
6-9
SILENT
10-13
DELTA
4-5
ELLIPSE
6-9
SILENT
10-13
CHARISMA
14-19
TOPAS
20-21
SINTRA
22-23
SINTRA
22-23
SAPHIR
24-25
Vertical
SAPHIR
24-25
Hor
izontal
SWING DOORS
A ss e m b l y
RONDO
26-29
Horizontal / Vertical
ALL
30-35
HORIZONTAL
Horizontal
Automatic sliding doors
VertiCal
Curved sliding doors
VertiCal
REVOLVING DOORS
ACCESSORIES / CONTROLLERS
3
SILENT
S w i n g
Designer Units for Horizontal Fitting
d o o r s
Autom ati c
sli d i n g
d o o r s
Technical data
Type
Silent 1
Silent 2
2.6
Silent 3
Max. installation height
[m]
Width
[cm]
100
150
200
250
300
100
150
200
3
250
300
100
150
200
3.5
250
300
Max. air discharge speed
[m/s]
7.8
7.3
7.6
7.6
7.2
10.0
10.1
10.2
10.0
9.9
12.1
11.7
12.1
11.8
11.8
Nominal volume flow
[m³/h]
2200
3000
4300
5400
6500
2200
4500
5300
6500
7600
5600 6000 8000 10000 12000
Active volume flow
[m³/h]
1600
2300
3200
4000 4600
2050
3150
4300
5300
6300
3300
Highest step
[dB(A)]
51
52
53
52
53
55
56
57
52
Operating step
[dB(A)]
44
45
Lowest step
[dB(A)]
43
43
Air volume
4900 6800 8300 10000
Nois
e level in a distance of 3m
54
56
46
47
49
45
46
48
49
50
44
45
45
44
44
45
46
46
52
53
54
56
45
45
43
43
46
47
49
44
45
45
Electrical data
Voltage
[V]
230
230
230
230
230
230
230
230
230
230
230
230
230
230
230
Power output
[kW]
0.39
0.59
0.79
0.99
1.18
0.39
0.79
0.99
1.18
1.38
0.94
0.99
1.41
1.88
2.36
Current
[A]
1.71
2.57
3.43
4.29
5.14
1.71
3.43
4.29
5.14
6.00
4.07
4.29
6.11
8.15
10.19
Approximate weight
Type S/U
[kg]
70
95
110
130
160
75
100
115
140
170
130
145
200
220
255
Type Z
[kg]
80
105
120
150
175
85
115
130
165
185
170
175
230
260
310
PWW 70/50 air intake temperature of 20°C and air discharge temperature of 37°C (IDW)
Heater power
[kW]
9.7
13.1
18.3
22.9
26.3
11.7
18.0
24.6
30.3
36.0
18.9
28.0
38.8
47.4
57.2
Through flow rate
[m³/h]
0.40
0.58
0.80
1.00
1.15
0.51
0.79
1.08
1.33
1.58
0.83
1.23
1.70
2.08
2.50
Water resistance
[kPa]
2.24
1.96
1.64
1.74
1.69
3.49
3.40
2.74
2.85
2.96
2.65
2.80
2.84
2.51
2.75
30.1
41.1
50.7
60.4
31.5
46.9
65.0
79.4
95.6
PWW 70/50 air intake temperature of 5°C and air discharge temperature of 32°C (ADW)
Heater power
[kW]
15.0
22.0
30.6
Through flow rate
[m³/h]
0.66
0.97
1.34
Water resistance
[kPa]
5.45
4.89
4.03
38.3
44.0
19.6
1.68
1.93
0.96
1.32
1.80
2.22
2.64
1.38
2.06
2.85
3.48
4.19
4.35
4.20
8.68
8.38
6.85
7.12
7.30
6.57
6.94
7.00
6.20
6.65
39.9
47.4
24.9
36.9
51.1
62.4
75.2
PWW 70/50 air intake temperature of 15°C and air discharge temperature of 37°C (ADW - windcatcher)
Heater power
[kW]
12.0
17.3
24.1
Through flow rate
[m³/h]
0.53
0.76
1.06
Water resistance
[kPa]
3.66
3.20
2.70
30.1
34.6
15.4
23.7
32.3
1.32
1.52
0.68
1.04
1.40
1.75
2.08
1.09
1.60
2.24
2.74
3.30
2.85
2.76
5.68
5.51
4.45
4.66
4.75
4.30
4.55
4.65
4.05
4.50
PWW 60/40 air intake tempera
ture of 20°C and maximum air discharge temperature
Heater power
[kW]
10.5
15.7
22.7
28.9
34.1
12.5
19.6
27.9
35.3
42.7
17.6
27.3
40.1
49.9
61.1
Air discharge temperature
[°C]
39.6
40.3
41.1
41.5
42.0
38.1
38.5
39.3
39.8
40.2
35.9
36.6
37.5
37.9
38.2
Through flow rate
[m³/h]
0.46
0.69
0.99
1.26
1.49
0.55
0.85
1.22
1.54
1.87
0.77
1.19
1.75
2.18
2.67
Water resistance
[kPa]
2.99
2.77
2.47
2.73
2.76
4.03
4.07
3.57
3.89
4.11
2.43
2.77
3.09
2.85
3.19
Upstream
[inch]
3/4
3/4
3/4
3/4
3/4
3/4
3/4
3/4
3/4
3/4
3/4
3/4
3/4
3/4
3/4
Downstream
[inch]
3/4
3/4
3/4
3/4
3/4
3/4
3/4
3/4
3/4
3/4
3/4
3/4
3/4
3/4
3/4
Width BL
[mm]
1000
1500
2000
2500
3000
1000
1500
2000
2500
3000
1000
1500
2000
2500
3000
Height H
[mm]
300
300
300
300
300
300
300
300
300
300
430
430
430
430
430
Depth T
[mm]
1000
1000
1000
1000
1000
1000
1000
1000
1000
1000
1350
1350
1350
135
0
1350
Width BL
[mm]
1000
1500
2000
2500
3000
1000
1500
2000
2500
3000
1000
1500
2000
2500
3000
Hight H (with ducts)
[mm]
300
300
300
300
300
300
300
300
300
300
430
430
430
430
430
Hight G (without ducts)
[mm]
475
475
475
475
475
475
475
475
475
475
630
630
630
630
630
Depth T
[mm]
1000
1000
1000
1000
1000
1000
1000
1000
1000
1000
1350
1350
1350
1350
1350
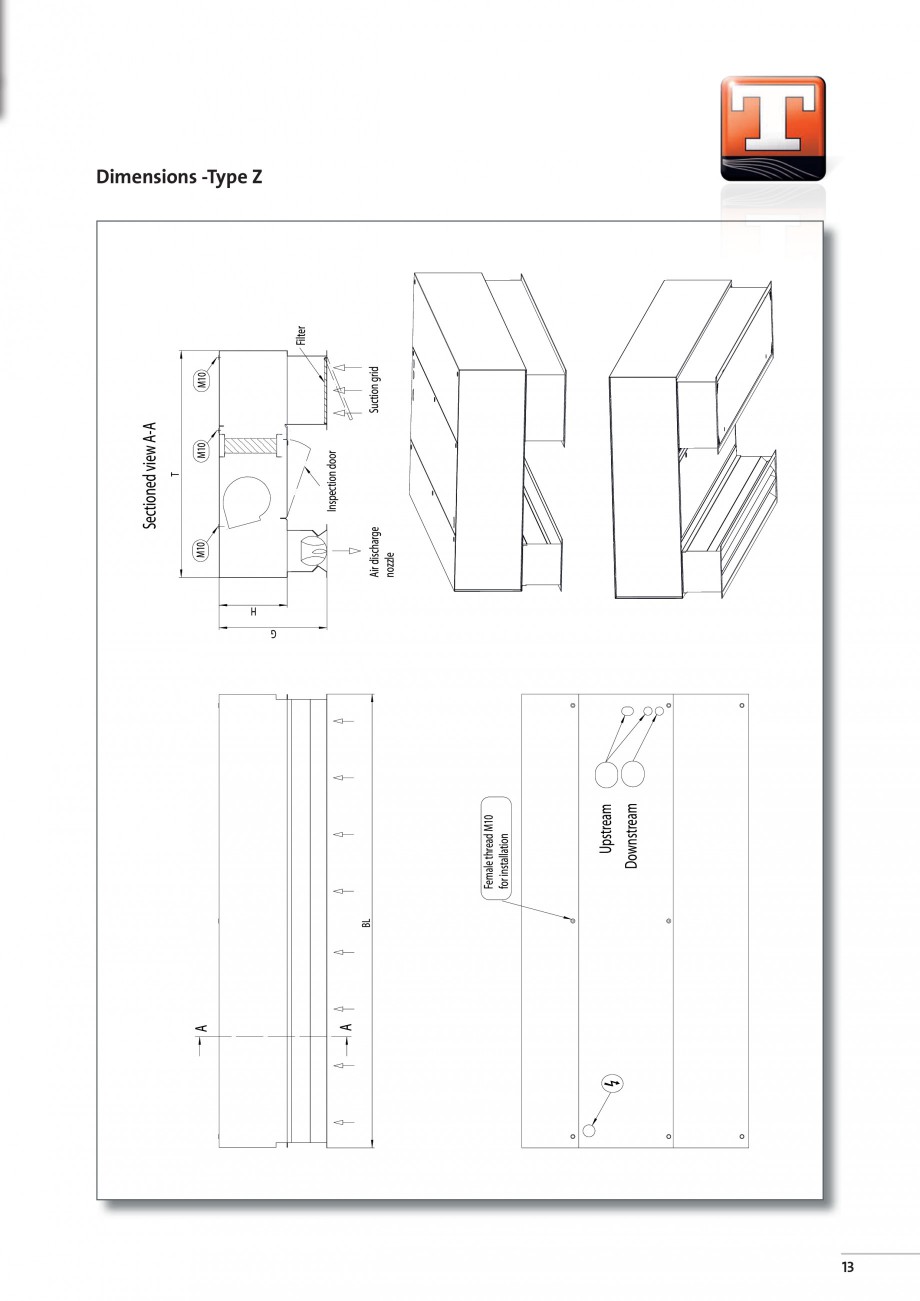
Pipe connections
Dimensions
Type S / U
Type Z
10
A
A
BL
Suction grid
Downstream
Upstream
Female thread M10
for installation
Air discharge
nozzle
H
M10
M10
Inspection door
T
M10
Filter flap
Filter
Sectioned view A-A
Suction
grid
Dimensions -Type S
11
12
BL
Downstream
M10
Inspection door
Filter flap
Filter
T
Suction grid
M10
d o o r s
Upstream
Female thread M10
for installation
H
Air discharge
nozzle
M10
S w i n g
A
A
Sectioned view A-A
SILENT
Designer Units for Horizontal Fitting
Autom ati c
Dimensions -Type U
sli d i n g
d
o o r s
A
A
BL
Downstream
Upstream
Female thread M10
for installation
G
H
Air discharge
nozzle
M10
M10
Inspection door
T
Sectioned view A-A
Suction grid
M10
Filter
Dimensions -Type Z
13
TEDDINGTON
Designer Units for Horizontal / Vertical Fitting
Acce sso r i e s
/
Co ntro lle r s
Thermostats
Frost protection thermostat FTE
For protection of the hot water heater system, with capillary pipe sensor,
capillary pipe length 3 m, self-protecting as single-pole, potential-free toggle
switch, protection grade IP 30, built into the unit.
Electronic frost protection thermostat FTM
Only in conjunction with controller units TCU, TC5 and TC3.
With capillary pipe sensor, capillary pipe length 0.9 m, protection grade IP 30,
built into the unit, only suitable for low-voltage applications (open contacts).
Electro-mechanic room air thermostat ERT
5 - 30 °C with bimetal, pure white (similar to colour RAL 9010), switching
capacity 230 V AC, 50...60 HZ, 10 A (4 A inductive) swit
ching difference 0.5 K,
protection grade IP 30. Humidity 0...95 %, non condensing, operating temperature 0...40 °C, thermal feedbacks. Dimensions: 75 x 75 x 25 mm.
Repair switches
Repair switch REP-S
For switching off the equipment by software. Only in combination with controller units TCU, TC5 and TC3. Switch located behind the revision flap.
Repair switch REP-L
3 pole repair switch in wall mounting version, delivered as loose part for
installation at site in the connection cable.
Door contacts
Door contact type TK
Protection grade IP 65, jumper switch with H switches and full contact up to
time of switching, shock-proof terminals according to VDE 0106, part 100
(VGB 4), cable gland 2 x PG 13.5 on underside and at side, switching voltage
230 V AC, 24 V DC, switching current 6 A AC, 4 A DC.
Door contact type TKB
Contact-less door contact with protection grade IP 00, consisting of reed
contact and permanent magnet for open circuit (contact open at applied
magnet), switching voltage
100 V DC, switching current 250 mA DC.
30
Controller/shut-off and magnetic valves
Regulating valve Type MR 2-E DN 20, built into the unit
Regulating valve MR-2 with electrical adjustment motor for regulation a
constant discharge temperature, including air discharge sensor, completely
installed and connected inside the air curtain device. The regulation valves
type MR-2 are special valves for regulation especially high quantities of water
(kvs-value at minimum 7.5). Connection DN 20.
Thermostatic control valve type KR 2-E DN 20, built into the unit
Special valve for controlling especially large water quantities;
kvs value 7.5. Capillary pipe length sensor 2 m, connection DN 20.
Thermostatic control valve type KR 3-L DN 20/25/32
Thermostatic control valve (three way valve) KR 3-L with thermostat head for
controlling of constant blow-out temperature, delivered as a loose part.
Special valve for controlling especially large water quantities. Capillary pipe
length sensor 2 m, DN
20 kvs 4.5; DN 25 kvs 6.5; DN 32 kvs 9.5.
Thermo electric shut-off valve Type TAV
230 V, closed at no current, delivered as a loose part for water shut-off via
summer/winter switch or for controlling the water through flow quantities
with controlling at site. Special valve for controlling especially large water
quantities; kvs value 5.5. Connection DN 20.
Magnetic valve MV
230 V, closed at no current, immediately closing, for water shut-off purposes
via summer/winter switch, delivered as a loose part.
DN 20 kvs 11; DN 25 kvs 13; DN 32 kvs 30.
Installation brackets
Ceiling installation bracket DH
Suspension bracket, vibration damper, threaded rods 1 m, securing and counter nut, anchor bolt, minimum space required 0.1 m, suspension length
1 m (number of items dependent on device length and type).
Comfort ceiling installation bracket DHD
Suspension bracket, vibration damper 17 dB, turnbuckle, right-left threaded
bolt, threaded rods 1 m, securing and counter nut, drive in dowel, minimu
m
space required 0.2 m, suspension length 1.1 m (number of items dependent
on device length and type).
31
TEDDINGTON
Designer Units for Horizontal / Vertical Fitting
Acce sso r i e s
/
Co ntro lle r s
Teddington Control Unit TCU
The TCU Controller Unit (for hot water devices) is a 5-step
or stepless speed controller with additional functions, to
enable adjustments in the air volume depending on the
various climatic weather conditions.
Functions / Properties:
• Release from the DDC/BMS
(direct digital control/building
management system)
• On/Off switch
• Integrated clock with
programmed switching time
periods
• Integrated room thermostat
• Potential free change-over contacts,
operational- and collective
disfunction message (16A)
• Integrated filter monitoring via
operating time or an external
signal
•
Manual and automatic function;
automatic e.g. door contact,
room thermostat, infrared
sensor, exterior thermostat
• Full motor pr
otection; electronic
processing and signalling in cases
of motor failure
• Option: speed regulation through
external signal e.g. infrared
sensor or exterior thermostat
• Summer/winter switch to control
a magnetic valve or pump (with or
without heating medium)
• After run control via door
contact with adjustable after
run time ( 0-600 sec)
• Dimensions: L103 x W103 x D29 mm
• Error memory for tele-diagnoses
• Option: repair-switch, safety
shut-down switch
• Option: electronic air discharge
temperature control with digital
temperature gauge
optional connection possibilities
to controller board
TCU (slave 1)
optional external
magnetic valve
door
contact
activ
fault
13
14
15
to the
controller unit
10
11
12
necessary connections
net connection
230V/50Hz
• Option: anti-frost protection;
electronic processing and signalling
in cases of frost hazard
activ
fault
external
release
ext. room
thermostat
trafo
ST1
TK
ST1
M
1
otection; electronic
processing and signalling in cases
of motor failure
• Option: speed regulation through
external signal e.g. infrared
sensor or exterior thermostat
• Summer/winter switch to control
a magnetic valve or pump (with or
without heating medium)
• After run control via door
contact with adjustable after
run time ( 0-600 sec)
• Dimensions: L103 x W103 x D29 mm
• Error memory for tele-diagnoses
• Option: repair-switch, safety
shut-down switch
• Option: electronic air discharge
temperature control with digital
temperature gauge
optional connection possibilities
to controller board
TCU (slave 1)
optional external
magnetic valve
door
contact
activ
fault
13
14
15
to the
controller unit
10
11
12
necessary connections
net connection
230V/50Hz
• Option: anti-frost protection;
electronic processing and signalling
in cases of frost hazard
activ
fault
external
release
ext. room
thermostat
trafo
ST1
TK
ST1
M
1
... ascunde
Alte documentatii ale aceleasi game Vezi toate
Fisa tehnica
16 p | EN
CHARISMA
Fisa tehnica
12 p | EN
DELTA