Zona Dobrogea Centrala si Muntii Macin - Ghid de arhitectura pentru incadrarea in specificul local din mediul rural
Tip documentatie: Ghid de arhitectură
Salvează pdf
Full screen
Ghidul de arhitectură se adresează:
•
•
•
•
•
Colectiv de elaborare:
locuitorilor satelor
administrației locale și regionale
investitorilor publici și privați
consultanților de accesare a fondurilor europene
proiectanților
Coordonator:
arh. Ignis DUVAGI
Consultant științific,
Maria MAGIRU, istoric, director general al
Muzeului de Artă Populară Constanța
în vederea întocmirii proiectelor pentru
•
•
•
investiții din Programul Național de Dezvoltare Rurală
investiții private
investiții publice
și a fundamentării documentațiilor de urbanism.
Echipă:
arh. Ignis DUVAGI
arh. Narcis GELAL
dr. arh. Sebastian IONESCU
arh. Sorin Mihai VATAMANIUC
Grupul Rural al O.A.R.
Tehnoredactare:
arh. Ignis DUVAGI
arh. Narcis GELAL
dr. arh. Sebastian IONESCU
Ghidul a apărut cu sprijinul Ordinului Arhitecților din România și a fost finanțat din Fondul „Timbrul Arhitecturii”.
- decembrie 2016 -
PREAMBUL
Scopul acestui material este de a
furniza un ins
trument de lucru
locuitorilor din mediul rural, autorităților locale, investitorilor, proiectanților și consultanților implicați în
procesul de construire sau elaborare a
unor regulamente de construire în
mediul rural, pentru a se încadra în
exigenţele și obiectivele strategiei
naționale de conservare și promovare
a identităților locale, precum și de a da
un semnal agenților economici locali
în direcția dezvoltării durabile în mod
responsabil.
Lucrarea își propune să fie un set de
reguli ușor de aplicat, cu exemple
clare (inclusiv de tipul „AŞA DA” sau
„AŞA NU”), care să faciliteze alegerea
modelelor adecvate de către cei ce
vor să construiască în mediul rural. În
același timp, ghidul intenționează să
ușureze
activitatea echipelor de
proiectare/consultanță în alegerea
configurațiilor, a materialelor și a
tehnologiilor necesare construirii aici,
fie că vorbim despre proiecte finanțate
prin PNDR, despre
elaborarea
documentațiilor de
urbanism sau
despre simple intervenții cu finanțare
exclusiv privată.
Obiectivul
esenţial
al
acestui
îndreptar este păstrarea nealterată a
spiritului așezărilor în care sunt
propuse proiectele și conservarea
tradițiilor și a peisajului cultural
existent – acestea fiind, de fapt, chiar
resurse pentru dezvoltarea durabilă în
mediul rural. În acest sens, există
deschidere pentru abordări specifice
secolului al XXI-lea care țin cont de
resursele
locale,
de
energiile
regenerabile,
precum
și
de
cunoașterea
acumulată
local
(meșteșugurile și tehnica populară).
Proiectele de succes din mediul rural
evidențiază faptul că există o legătură
foarte strânsă între calitatea peisajului
natural, a celui construit și calitatea
vieții. Viitorul oricărei comunități
depinde de modul în care își
administrează resursele.
Mediul construit (construcțiile de
orice fel) poate fi o resursă extrem de
valoroasă sau, din contră, doar un
consumator de resurse. În a
cest sens,
prezentul material propune soluții care
pun în valoare înțelepciunea tradiției
constructive
locale,
a
utilizării
responsabile a resurselor locale, în
același timp oferind soluții noi, ce țin
de materiale și tehnici moderne de
construcție și de surse de energie
regenerabilă.
Această lucrare este rodul unei
experiențe acumulate pe teren de
către autori, dar și al activității
energice desfășurate de către Grupul
Rural al Ordinului Arhitecților din
România. Ghidul își propune să
soluționeze cât mai multe din cazurile
de intervenții posibile, fără a avea
pretenția de a le acoperi pe toate,
motiv pentru care conținutul său
trebuie în permanență îmbunătățit și
actualizat de către cei preocupați de o
proiectare responsabilă în mediul
rural.
Respectarea
rigidă
a
recomandărilor ar putea să nu fie
benefică în toate cazurile, pentru o
arhitectură de bună calitate importantă
fiind înțelegerea spiritului în care a
fost conceput p
rezentul ghid.
1
2
PRINCIPII DE PROIECTARE ȘI CONSTRUIRE
Gospodărire responsabilă
a
mediului
construit
Grija cu care întreținem, reparăm
sau construim - fie că este vorba de
casele tradiționale, părintești, sau de
clădiri noi, reprezintă un proces ce
presupune
asumarea
unei
responsabilități față de întreaga
comunitate. Orice clădire trebuie
percepută în primul rând ca o
componentă a ansamblului așezării
sătești. Astfel, o cladire trainică,
frumoasă, care își îndeplinește bine
rostul pentru care a fost construită, ar
trebui să fie un motiv de mândrie
pentru întreaga comunitate. Acest
lucru devine și mai evident, mai
relevant, în cazul clădirilor cu funcțiuni
publice, comunitare: primăria, școala,
„Căminul
Cultural”,
dispensarul,
clădirile de cult, etc..
Principiile care vor sta la baza
oricărei intervenții asupra mediului
construit din zonele rurale (fie că
este
vorba
de
conservare,
întreținere,
modernizare
sau
construire) sunt ur
mătoarele:
•
respectul
pentru
moștenirea
culturală; se va urmări cu precădere
integrarea în context prin păstrarea
nealterată a identității așezării, a
peisajelor construit și natural;
•
responsabilitatea față de urmași;
îmbunătățirea condițiilor de viață în
prezent prin valorificarea resurselor
locale în mod judicios, pe termen lung,
pentru a fi disponibile și generațiilor
viitoare;
• utilizarea surselor
regenerabile;
de
energie
• valorificarea amplasamentului
astfel încât forma/volumetria și
înfățișarea clădirii să reflecte climatul
local: orientare și însorire, umiditate și
vânturi
dominante,
oscilații
de
temperatură, etc.;
• utilizarea materialelor și tehnicilor
tradiționale care de fapt reflectă soluțiile cele mai bune cristalizate de-a
lungul timpului pentru condițiile de
mediu locale, ele sunt naturale și
ecologice;
• utilizarea materialelor reciclabile și
refolosirea apelor uzate și pluviale;
• reabilitarea
clădirilor existente;
• evitarea folosirii la reparații sau
renovări a materialelor moderne,
incompatibilie
cu
sistemele
de
construcție tradițonale;
• utilizarea mortarelor de var pentru
reparații;
• menținerea,
recondiționarea
tâmplăriei originale;
• o casă sănătoasă, pentru un corp
sănătos! O ventilație corespunzătoare
este esențială!
Pentru noile programe/ funcțiuni
propuse
în
mediul
rural,
întotdeauna
se
vor
analiza
următoarele aspecte:
• Relevanța: „Cât de necesară este
această nouă clădire sau ansamblu
pentru comunitate? Cum se va
asigura întreținerea și funcționarea
noilor clădiri?”
•
Incluziunea
socială:
„Cât
de
echitabilă este repartizarea serviciilor,
a utilităților, a facilităților de producție
în teritoriu?”. Se va urmări favorizarea
accesului
tuturor
membrilor
comunității în aceeași măsură la noile
funcțiuni.
Dezvoltare comunitară
prin calificare profesională
și
încurajarea
economiei locale
În anumite comunităţi, deşi există
resurse de materie primă valoroase,
acestea sunt neglijate de localnici, iar
meşteşugul prelucrării lor s-a pierdut.
În această situaţie este necesară
instruirea localnicilor astfel încât să
poată avea acces la resurse, în
vederea susținerii unor activităţi de
economie socială capabile să aducă
un venit constant în comunitate.
Acest principiu este extrem de
important atât datorită rezultatului
direct de ieftinire a investiţiei prin
folosirea forţei de muncă locale, cât şi
datorită efectului pe termen lung pe
care îl asigură: în teritoriu rămân nu
numai
funcţiunile
capabile
să
deservească locuirea, ci şi personalul
calificat capabil să le utilizeze.
Acest deziderat se poate atinge doar
printr-o politică investiţională coerentă,
care trebuie să urmeze niste paşi
necesari, cum sunt:
• cooptarea localnicilor adulţi şi lipsiţi
de ocupaţie ca mână de lucru, pentru
început, necalificată;
• aducer
ea în teritoriu a inginerilor,
maiştrilor, tehnicienilor şi muncitorilor
capabili să instruiască şi să asigure
instruirea lucrătorilor necalificaţi;
•
organizarea de cursuri practice de
fomare şi calificare pentru localnici;
• dezvoltarea
unor
centre
de
valorificare
a
materialelor
de
construcție ecologice rurale cu
aplicații în domeniul construcțiilor;
• creşterea gradului de calificare a
personalului pe măsura derulării
programului și, consecutiv, creşterea
remuneraţiei şi capacității de a
întreţine construcțiile noi și existente;
• atingerea scopului final, la
terminarea
programului:
aceste
funcţiuni productive vor rămâne în
teritoriu, urmând să deservească
întreaga aşezare în ansamblul ei; în
plus, zona va fi locuită de un segment
de populaţie productiv, capabil să
presteze munci calificate în cadrul
aşezării şi în vecinătate, capabil să își
întrețină fondul construit.
Rolul arhitectului
Arhitectul are rolul de a cata
liza
oportunitățile cu resursele și nevoile
beneficiarilor, indiferent dacă aceștia
sunt o familie, o firmă, un ONG sau
autorități locale. Reușita demersului
său este direct proporțională cu
adaptarea proiectului la cele enumerate mai sus. Aceste lucruri nu
trebuiesc rupte din contextul mediului
rural românesc de început de secol al
XXI-lea, în care confuzia dintre
valoare și non-valoare este destul de
frecventă. În acest sens, arhitectul are
și rolul de a-și informa beneficiarul,
pentru a asigura premise realiste
inițierii unor proiecte/demersuri ce au
ca finalitate sporirea calității vieții,
inclusiv prin atributele mediului natural
sau fondului construit, la care participă
în mod direct. Rolul lui este să aducă
echilibru.
CUPRINS
PREAMBUL ................................................................................. 1
PRINCIPII DE PROIECTARE ȘI CONSTRUIRE ......................... 2
CUPRINS............................................................
.......................... 3
1. ZONA ....................................................................................... 4
1.1. Delimitarea geografică a zonelor după unități administrativteritoriale .................................................................................... 4
1.2. Precizarea caracteristicilor specifice ale zonei ...................... 5
2. SPECIFICUL LOCAL ......................................................... 6
2.1. Elemente de tipologie și morfologie a așezării .................. 6
2.2. Amplasarea pe lot, planimetria casei și sistemul
constructiv .................................................................................. 7
2.3. Tipologiile de acoperișuri, pante, materiale de învelitori, culori,
goluri de iluminare și ventilare (forme permise) în funcție de
caracteristicile de climă, relief și tehnici locale ..................... 10
2.4. Gabaritele/proporțiile conforme specificului local .......,,,.... 10
2.5. Travei de fațadă
conform specificului local, fără a ieși din
scara clădirilor învecinate, ca percepție umană ....................... 10
2.6. Raportul plin/gol, forma, dimensiunea și proporția golurilor
conform specificului local ........................................................... 11
3. AMPLASAREA CONSTRUCȚIILOR ..................................... 12
3.1. Prevederi generale ............................................................ 12
3.2.. Amplasarea în cadrul aşezării .......................................... 12
3.3. Amplasarea pe teren .................................................. ..... 13
3.4. Recomandări .................................................................... 13
3.5. POT, CUT, regim de înălțime ............................................ 14
3.6. Amplasarea construcțiilor și amenajărilor noi în afara vetrei
satului – probleme de încadrare în peisaj ................................ 15
3.7. Amplasarea construcțiilor și amenajărilor noi în va
tra satului –
probleme de încadrare pe lot ..................................................... 17
4. INTERVENȚIILE PE CLĂDIRILE EXISTENTE .................... 20
5. ELEMENTELE DE CONSTRUCȚIE ...................................... 26
5.1. ACOPERIŞUL ..................................................................... 26
5.1.1. Specificul local ............................................................... 26
5.1.2. Recomandări .................................................................. 28
A. Construcții noi cu gabarit mic (<120 mp), construcții noi cu
gabarit mediu (120 – 250 mp) și construcții noi cu gabarit mare
(peste 250 mp) dispuse în sistem pavilionar ............................ 28
Forma şi volumetria ............................................................... 28
Şarpanta ................................................................................ 29
Învelitoarea (materiale folosite şi compatibilităţi) ................... 30
Elementele de i
luminare, ventilare, instalaţiile ......................... 31
B. Construcții noi cu gabarit mare (peste 250 mp) de tip
monovolum ................................................................................ 32
Forma şi volumetria ................................................................ 32
Şarpanta ................................................................................. 32
Învelitoarea (materiale folosite şi compatibilităţi) .................... 33
Elementele de iluminare, ventilare, instalaţiile ........................ 33
C. Intervenţii pe construcţiile existente (gabarit mic, mediu sau
mare, dispuse pavilionar sau monovolum) ................................. 34
Forma şi volumetria ................................................................ 34
Şarpanta ................................................................................. 35
Învelitoarea (materiale folosite şi compatibilităţi) ........................ 35
5.2.PEREŢII ..............
................................................................. 36
5.2.1. Specificul local ............................................................... 36
5.2.2. Recomandări .................................................................. 37
A. Construcții noi cu gabarit mic (<120 mp), construcții noi cu
gabarit mediu (120 – 250 mp) și construcții noi cu gabarit mare
(peste 250 mp) dispuse în sistem pavilionar .......................... 38
B. Construcții noi cu gabarit mare (peste 250 mp) de tip
monovolum ................................................................................ 38
C. Intervenții pe construcții existente (gabarit mic, mediu sau
mare, dispuse pavilionar sau monovolum) ................................. 39
5.3.FUNDAŢIILE ........................................................................ 42
5.3.1. Specificul local ............................................................... 42
5.3.2. Recomandări ..........................................
........................ 43
A. Construcții noi cu gabarit mic (max. 120mp), construcții noi cu
gabarit mediu (120 – 250 mp) și construcții noi cu gabarit mare
(peste 250 mp) dispuse în sistem pavilionar sau monovolum
.................................................................................................. 43
B. Intervenții pe construcții existente (gabarit mic, mediu sau
mare, dispuse pavilionar sau monovolum) ................................. 43
5.4. TÂMPLĂRIA ȘI GOLURILE ................................................. 44
5.4.1. Specificul local ............................................................... 44
5.4.2. Recomandări .................................................................. 46
A. Construcții noi cu gabarit mic (<120 mp), construcții noi cu
gabarit mediu (120 – 250 mp) și construcții noi cu gabarit mare
(peste 250 mp) dispuse în sistem pavilionar ......................... 46
Materialele ...............................................
........................... 46
Conformația ferestrelor ....................................................... 46
Solițiile de umbrire .............................................................. 47
Culorile .................................................................................... 47
B. Construcții noi cu gabarit mare (peste 250 mp) de tip
monovolum ................................................................................ 47
Materialele ................................................................................. 47
Conformația ferestrelor .............................................................. 47
Soluțiile de umbrire ..................................................................... 47
Culorile ....................................................................................... 47
C. Intervenţii pe construcţiile existente (de gabarit mic, mediu sau
mare, dispuse pavilionar sau monovolum) ................................. 48
Materialele .....
............................................................................. 48
Conformația ferestrelor ............................................................... 48
Soluțiile de umbrire ..................................................................... 48
Culorile ....................................................................................... 48
5.5. ELEMENTELE DE FAŢADĂ ........................................ 49
5.5.1. Specificul local: registre orizontale (coamă, cornișă, brâu,
soclu) şi verticale (prispă, coş de fum etc.) ................................ 49
5.5.2. Recomandări .................................................................... 51
A. Construcții noi cu gabarit mic (max. 120 mp), construcții noi cu
gabarit mediu (120-0250 mp) și construcții noi cu gabarit mare
(peste 250 mp) dispuse în sistem pavilionar ..........................51
A.1 Marcarea registrelor orizontale ........................................ 51
A.2 Marcarea registrel
or verticale ............................................. 51
A.3 Timpanele și decoraţiile de faţadă ...................................... 51
A.4 Streşinile și burlanele ..................................................... 51
A.5 Materialele pentru finisaje ................................................... 51
A.6 Culorile ................................................................................. 52
A.7 Tehnologiile .......................................................................... 52
A.8 Ierarhizarea fațadelor .......................................................... 52
B. Construcții noi cu gabarit mare (peste 250 mp) de tip
monovolum ............................................................................... 52
B.1 Marcarea registrelor orizontale ............................................ 52
B.2 Marcarea registrelor verticale .............................................. 52
B.3 Timpanele și decoraţiile de faţadă .................................
...... 52
B.4 Streşinile și burlanele .......................................................... 52
B.5 Materialele pentru finisaje ................................................. 52
B.6 Culorile ............................................................................... 53
B.7 Tehnologiile ....................................................................... 53
B.8 Instalațiile și instalațiile tehnologice ................................... 53
C. Intervenţiile pe construcţiile existente (de gabarit mic, mediu
sau mare, dispuse pavilionar sau monovolum) .......................... 53
C.1 Marcarea registrelor orizontale .......................................... 53
C.2 Marcarea registrelor verticale ............................................ 53
C.3 Timpanele și decoraţiile de faţadă ....................................... 53
C.4 Streşinile și burlanele ........................................................ 53
C.5 Materialele pentru finisaje .....................
.............................. 53
C.6 Culorile ............................................................................... 53
C.7 Tehnologiile ......................................................................... 53
C.8 Instalaţiile şi instalaţiile tehnologice (după caz) ................... 53
6. CONSTRUCȚIILE ANEXE ................................................. 54
6.1. Specificul local ................................................................. 54
6.2. Recomandări ....................................................................... 54
7. AMENAJĂRILE EXTERIOARE .......................................... 55
7.1. Specificul local .................................................................... 55
Scările exterioare ....................................................................... 55
Pavimentele şi amenajările exterioare ........................................ 55
Vegetaţia ...........................................................................
.........55
Împrejmuirile ............................................................................... 55
Elemente de mobilier rural exterior: bancă, fântână, cruce,
adăpătoare, etc. ......................................................................... 55
7.2. Recomandări .................................................................... 55
Scările exterioare ....................................................................... 55
Pavimentele exterioare ............................................................... 55
Vegetaţia .................................................................................... 56
Împrejmuirile ............................................................................... 56
Porțile ......................................................................................... 57
Elementele de mobilier rural exterior: bancă, fântână, cruce,
adăpătoare, etc. .......................................................................
.. 57
Iluminarea exterioară ................................................................. 57
Reclamele, firmele, inscripţiile, însemnele ................................. 57
Echiparea edilitară ...................................................................... 57
8. PERFORMANŢA ENERGETICĂ ........................................... 58
Recomandări .............................................................................. 58
8.1. Sistemele de încălzire (cerinţele de securitate la incendiu). 58
8.2. Eficienţa termică (sisteme şi materiale de izolare) .............. 59
9. SPAȚIUL PUBLIC .................................................................. 60
9.1. Specificul local .................................................................... 60
Elementele de mobilier rural exterior: bancă, fântână, cruce,
adăpătoare, etc. ......................................................................... 60
9.2. Recomandări ........................................
............................... 60
Drumuri și alte căi de acces public ..............................................60
Vegetația .................................................................................... 62
Elementele de mobilier rural exterior: bancă, fântână, cruce,
adăpătoare, etc. ......................................................................... 62
Iluminarea exterioară .................................................................. 62
Reclamele, firmele, inscripţiile, însemnele ................................. 62
Echiparea edilitară ...................................................................... 62
Anexa 1: Studiu de amplasare și încadrare în imaginea așezării
(imagine generală din punct de belvedere, silueta așezării,
desfășurate stradale) .................................................................. 63
Anexa 2: Glosar de termeni ....................................................... 63
Anexa 3: Legislație ..............
...................................................... 66
CREDITE IMAGINI ..................................................................... 67
BIBLIOGRAFIE ......................................................................... 67
3
1. ZONA
4
1.1. Delimitarea geografică a zonelor după unități administrativ-teritoriale
Zona Dobrogei Centrale și a Munților
Măcin acoperă jumătate din ținutului
românesc dintre Dunăre și Marea
Neagră și este exprimarea clară, a
conviețuirii exemplare a mai multor
grupări etnice care și-au adus fiecare
aportul la definirea spațialității satelor.
Acest lucru a dus la prezența în
fiecare sat a formelor de limbaj
arhitectural specific și altor subzone
aflate în Dobrogea. Zona acoperă
parțial județele Constanța și Tulcea și
reprezintă 2% din teritoriul geografic al
României.
Ghidul se aplică în toate
satele de pe teritoriul
administrativ
al
următoarelor localități:
Județul
Constanța:
Adamclisi,
Aliman, Bănea
sa, Castelu, Ciobanu,
Cogealac, Corbu, Crucea, Cuza Vodă,
Dobromir,
Fântânele,
Gârliciu,
Ghindărești, Grădina, Hârșova, Horia,
Ion Corvin, Istria, Lipnița, Lumina,
Medgidia, Mihail Kogălniceanu, Mircea
Vodă, Murfatlar, Năvodari, Nicolae
Bălcescu, Oltina, Ostrov, Ovidiu,
Pantelimon, Peștera, Poarta Albă,
Rasova, Saligny, Saraiu, Săcele,
Seimeni, Siliștea, Târgușor, Topalu,
Tortoman, Valu lui Traian, Vulturu.
Județul Tulcea: Baia, Beidaud, I.C.
Brătianu,
Carcaliu,
Casimcea,
Ceamurlia de Jos, Cerna, Ciucurova,
Dăeni, Dorobanțu, Frecăței, Greci,
Hamcearca, Horia, Izvoarele, Jijila,
Luncăvița,
Mihai
Bravu,
Mihail
Kogălniceanu,
Nalbant,
Niculițel,
Ostrov, Peceneaga, Slava Cercheză,
Smârdan, Stejaru, Topolog, Turcoaia,
Valea Teilor, Văcăreni.
Ghidul se va studia în contextul
general al regiunii Dobrogei. Pentru
investițiile din vecinătatea Deltei
Dunării sau a Podișului Dobrogei de
Sud, se vor avea în vedere și ghidurile
destinate acestora, deoarece s
unt
zone de interferență.
1.2. Precizarea caracteristicilor specifice ale zonei
Peisajul Dobrogei oferă o arhitectură
orizontală, în spații vaste și deschise,
care se inserează în vegetație. Este o
arhitectură
sărăcăcioasă,
puțin
pretențioasă, în care, după al doilea
război mondial s-au impus arcadele și
colonadele importate din oraș. Casele
dobrogene își compun volumele
jucând cu un repertoriu îmbogățit de
materiale, atât minerale (piatră,
pământ divers prelucrat), cât si
vegetale (lemn, nuiele, stuf). Etnicul
își pune și el amprenta, dar mai ales
în materie de finisaje și ornamente,
structurile de bază supunându-se în
mod relativ uniform unor reguli
ecologice comune, impuse de mediu.
Dobrogea este astfel unul din cele mai
vaste și coerente peisaje păstrate în
România.
Caracteristici geografice și
climatice
Zona Dobrogea Centrală și Munții
Măcin se întinde pe teritoriul județelor
Constanța și Tulcea, din sud-estul
țării, del
imitată la est de Marea
Neagră, la nord de Dunăre și de
Delta Dunării, la vest de Dunăre, iar la
sud de granița cu Bulgaria și cu
Podișul Dobrogei de Sud. Zona
cuprinde și o parte din Podișul
Dobrogei de Sud, delimitarea fiind
etnografică. Relieful este omogen, cu
aspect de câmpie înaltă, străbătută de
câteva văi, printre care cea a
Canalului Dunăre - Marea Neagră,
coborând în două terase spre Dunăre
și cu înălțime mai mare în nord, în
Munții Măcinului. Altitudinea este
relativ redusă, de 200-300 m în partea
de sud și de 350-400 m în partea de
nord, cu un minim de sub 50 m în
preajma canalului și un maxim de
467m al Vârfului Țuțuiatu.
Rețeaua hidrografică internă este
formată (exceptând fluviul și marea)
din câteva cursuri
de apă,
permanente sau temporare, ape
subterane accesibile prin fântâni, și
lacuri cu apă dulce (Siutghiol, Tașaul,
Babadag, Bugeac, Oltina, etc.), și cu
apă sărată (Razim-Sinoe).
Climatul este arid, cu inf
luențe
maritime în partea estică și umed
continental în partea vestică.
Caracteristici demografice
şi etnografice
În Dobrogea, tipurile de gospodării
provin din diferite zone geografice,
pentru că aici au găsit adăpost de-a
lungul veacurilor multe grupuri etnice
(greci, turci, tătari, bulgari, români,
găgăuzi, germani, lipoveni, ruși,
italieni, aromâni, țigani) care și-au
adus fiecare aportul la constituirea
spațialității satelor. Cum diverse etnii
au conviețuit în aceeași așezare, ori
au ocupat un sat părăsit, acest lucru a
dus la prezența în același loc a
formelor de limbaj arhitectural specific
și altor subzone dobrogene.
Majoritatea populaţiei este de
naţionalitate
română
şi
religie
ortodoxă.
La nivel teritorial, caracteristica
dominantă este de scădere a
populaţiei, în mod continuu, începând
cu anul 1990. Structura pe vârste a
populaţiei rurale este dezechilibrată,
fiind evident procesul accentuat de
îmbătrânire.
Ramuri
economic
e
meșteșugărești
și
Economia rurală locală se bazează
pe resursele naturale, reprezentate în
principal de agricultură, zootehnie,
piscicultură și industrie.
Diversificarea
industriilor
și
revitalizarea meșteșugurilor tradiționale de prelucrare a lutului,
lemnului, metalelor, păioaselor, lânii,
fibrelor vegetale și a celor artistice pot
spori potențialul economic al zonei, și
în sprijinul dezvoltării agroturismului.
Ocupaţii principale:
- agricultura este ocupația de bază,
3/4 din suprafață constând în terenuri
arabile, orizontale sau slab înclinate,
cu sol foarte fertil și cu sisteme de
irigație;
- creşterea animalelor se bazează
pe
plante
furajere,
nutrețuri
concentrate și pășuni naturale, cu
ierburi de stepă, Dobrogea fiind
principala regiune de creștere a
ovinelor din țară; la scară mai mică
sau mai mare, se cresc, de
asemenea, bovine, porcine, cabaline,
păsări;
- viticultura este specifică acestei
zone, fiind cunoscute podgoriile de
la
Murfatlar, Ostrov și Niculițel, dar se
practică și pe terenuri mai mici;
- apicultura se practică în întreaga
zonă, în strânsă relație cu culturile de
floarea soarelui, rapiță, sau, mai nou,
de coriandru și lavandă, ori cu
pădurile de tei și salcâm;
- pomicultura are tradiţie în centrul
zonei, pomii fructiferi nelipsind nici din
gospodăriile populației, ori de pe
marginile drumurilor.
Ocupaţii secundare:
silvicultura
se
practică
în
continuare în zona de nord și în sudvest;
- vânătoarea este, în prezent,
practicată în special de orășeni și de
turiști, în mod controlat, fiind favorizată
de câmpurile și pădurile întinse și de
prezența unei varietăți mari de vânat,
mic și mijlociu (prepeliță, fazan,
iepure, rață, etc.) sau mare (mistreț,
căprioară);
- pescuitul se practică în continuare
la mare, la Dunăre și pe lacuri, în
perioadele neprohibitive.
construcții;
– pădurile
sunt
surse
pentru
industria de prelucrare a lemn
ului și
fabricarea mobilei.
Resurse și industrie:
– exploatațiile agricole, pomicole și
piscicole sunt surse pentru industriile:
morăritului
și
panificației,
producătoare de ulei, de conserve, de
biogaz, textilă;
– sectorul zootehnic este sursă
pentru industria laptelui, cea textilă și
a confecțiilor;
– rezervele minerale de granit,
calcare,
diatomită,
produse
de
balastieră și luturi constituie bază
pentru
industria
extractivă
și
Materiale de construcție
Principalul material de construcţie
este pămâtul galben (lutul). amestecat
cu paie. Se foloseşte piatra pentru
realizarea soclului sau a soclului înalt.
Împreună cu piatra, după 1900,
începe să se folosească şi cărămida,
atât pentru fundaţie, cât şi pentru
ziduri și stâlpi. Lemnul este folosit la
șarpante și tâmplării. Învelitoarea este
din paie, stuf, olană, țiglă ceramică, în
ultima vreme, utilizându-se frecvent și
tabla plană și azocimentul ondulat.
Meşteşuguri ţără
neşti:
- care se mai practică: prelucrarea
lemnului, împletitul răchitei și papurei,
prelucrarea pietrei, torsul, ţesutul,
confecționarea
portului
popular,
cojocăritul, pictura de icoane pe lemn
și pe sticlă, olăritul, construirea de
sobe;
– care s-au pierdut: fierăritul, dogăritul, hamurăritul, vărăritul, rotăritul.
5
2. SPECIFICUL
LOCAL
6
2.1
Elemente
de
tipologie și morfologie
a așezării
Satele zonei sunt de tip adunat,
situate în fundul văilor sau în
depresiuni, orientate spre sud, cu
trama stradală parțial rectangulară,
parțial spontană, urmărind uneori
traseele sinuoase ale făgașelor apelor
meteorice care erodează terenul.
Vegetația constă în cea mai mare
parte din plantațiile de pomi fructiferi și
culturile din spatele parcelelor. În rest,
peisajul este dominat parțial de pajiști
stepice și tufărișuri, parțial de pădurile
de foioase (tei) din zonele BabadagCiucurova și Luncavița-HamcearcaValea Teilor. Parcelele sunt alungite,
cu latura scurtă spre stradă. Casele
sunt situate mai aproape de stradă,
lăsând loc însă în față grădinii de flori.
Anexele principale se află în curtea
din fața a parcelei, iar în cea din spate
se desfășoara activitatea agricolă a
gospodăriei.
Inițial satele erau haotice, fără
drumuri fixe, fără garduri între
gospodării. Casele erau turtite, fără
nicio ordine în așezarea lor, uneori
îngramădite unele în altele, din motive
de apărare.
Același era aspectul
așezărilor chiar și în părțile mai
apărate din lunca Dunării sau din
nordul
județului
Tulcea.
Satele
coloniștilor români în schimb au străzi
largi și drepte, adeseori în plan
geometric, casele mai mari și mai
înalte.
În așezările rurale cu formă
neregulată a ulițelor se evita
construirea caselor cu fața spre nord,
în timp ce, în satele de colonizare,
unde se percepe intenția de
organizare stradală, casele aveau
fațada principală îndreptată spre
curte, iar latura îng
ustă spre stradă.
Pentru
satele
multietnice
s-a
menținut până târziu locuirea în
cartiere separate.
Germanii, întemeietori (Schitu) sau
colonizatori ai unor sate existente
(Mihail
Kogălniceanu,
Atmagea,
Costinești, Murfatlar, Tariverde, Făclia,
Cobadin, Albești, Palazu Mare,
Cogealac, Malcoci), au construit case
mari și impunătoare, văruite cu alb, cu
linii precise și culori sobre, străzi bine
consolidate și foarte late, care formau
Dezvoltare liniară – Comuna Corbu, jud. Constanța
Tramă stradală rectangulară – sat Pantelimonul de Jos, comuna Pantelimon,
jud. Constanța
cartiere pretențioase pentru acele
vremuri. Rolul lor a fost de agent
civilizator.
Satele lipovenești sunt ușor de
recunoscut după forma terenurilor,
înguste la stradă și lungi, casele fiind
dispuse cu fațada laterală spre
aliniament, lipite de latura (de regulă,
nordică
sau
vestică)
lungă
perpendiculară pe drum, cu timpan
ornat de lemn și prispă orientată spre
curte (de
regulă, spre sud sau est).
Se păstrează aceste caracteristici în
Carcaliu, Slava Cercheză, Slava
Rusă, Ghindărești,
Spațiile verzi dețin o pondere
semnificativă in cadrul parcelelor și au
un rol important în conturarea
peisajului cultural. Se remarcă grădina
de la stradă, cu rol decorativ și care
se prelungește până în zona prispei,
și cea din spate, destinată agriculturii.
Tramă stradală neregulată, izvorâtă dintr-o dezvoltare inițială haotică – sat
Rachelu, comuna Luncăvița, jud. Tulcea
Tramă stradală mixtă liniară și radial concentrică – Comuna Izvoarele, jud.
Tulcea
2.2 Amplasarea pe lot,
planimetria casei și
sistemul constructiv
Organizarea gospodăriei este în
general împrăștiată, iar modalitatea de
așezare a construcțiilor componente
este atât de diversificată, încât nu se
poate stabili o regulă valabilă cu
caracter general. Totuși se poate
afirma că structura gospodăriei
oglindește în mod veridic specificul
ocupa
țional al locuitorilor.
Pe teren, casa este situată în partea
dinspre stradă a parcelei, cu fața spre
est sau sud, cu latura scurtă spre
stradă, mai aproape și de aceasta și
de una din laturile lungi ale curții, în
cazul terenurilor cu lățime mai mică
din centrul localităților, sau cu latura
lungă paralelă cu strada, la distanță
nu foarte mare și cu fața la drum, în
zonele de periferie ale satelor sau în
funcție de relief, unde terenurile au
deschideri mai largi. Întotdeauna se
ține cont de direcția vântului dominant
și de punctele cardinale.
Curțile sunt împărțite în două. Casa,
dispunând de polată pe latura din
spate și grădină de flori în față, se află
în primul compartiment al curții,
separat cu un gărduț și o poartă
interioară. În cel de-al doilea
compartiment al curții, cu poarta cea
mare de acces, apar grupate mai
multe anexe: grajdul, porumbarul și
cuptorul de pâine.
În relație directă cu resursele
naturale și relieful
, locuințele au, în
general, un singur nivel, cu acoperiș
scund, cu pante mici, convenabile
învelitorilor din olană, sau cu pante
mai înclinate, la cele din stuf, fără a da
impresia de masivitate. În zonele
deluroase apare parterul mai înălțat
peste un demisol cu funcțiune
auxiliară, sau chiar un etaj identic cu
parterul.
Principalele tipuri planimetrice de
case care se întâlnesc aici sunt:
- casa bicelulară cu cameră (odaie)
și sală (uneori retrasă), cu prispă;
- casa tricelulară, cu sală pe centru
și două camere dispuse simetric, cu
prispă.
- casa tricelulară, cu cerdac cu stâlpi
și parapeți zidiți și goluri rotunjite la
partea superioară, la care pot aparea
prelungiri laterale, generând un tip de
casa cu camere înșiruite și acoperiș în
patru ape, sau in formă de „L”;
- casa tricelulară sau multicelulară,
lipovenească, cu prispă cu stâlpi din
lemn și acoperiș în două ape;
- casa cu plan pătrat de tip
italienesc, cu patru camere
și hol
Tipologii planimetrice ale gospodăriei
central în care accesul se face printrun cerdac închis sau deschis cu goluri
rotunjite în partea superioară.
Locuințe cu patru sau mai multe
încăperi s-au construit în număr mic și
aparțin doar categoriei înstărite a
populației. Mai rar se întâlnește și tipul
de dispunere în formă de „L” a
încăperilor, în special la casele cu mai
mult de trei celule.
Unde
sunt prezente
beciurile
spațioase (4x4m), acestea sunt dotate
cu paviment și tavan din scânduri și
ferestre bipartite înalte. Volumetria
este marcată de foișorului în ax, la
care accede o scară înaltă.
Tehnica de construcție a pereților
utilizată preponderent este cea lutului,
indiferent că este sub formă de
ceamur ori de chirpici, cu temelii din
piatră de carieră, de mal sau de râu.
Zidăria de cărămida apare după
primul război mondial. În zonele cu
dealuri și păduri din județul Tulcea în
care s-au așezat turcii, s-au construit
locuințe și în sistemul paiantei.
Șarpanta de lemn a acoperișului se
sprijină pe pereți și, dacă există, pe
stâlpii de lemn ai prispei.
Tipologii planimetrice ale locuinței
Exemplu
de
organizare
a
gospodăriei, în care locuința este
așezată cu latura scurtă spre drum și
cu fața spre grădină, cu terenul pentr
legume și cereale în spate
Exemplu
de
organizare
a
gospodăriei, în care locuința este
așezată cu fața la drum
Casă tricelulară cu prispă și foișor
(balcon), cu anexe atașate lateral sau
în dorsal
Casă bicelulară cu prispă, cu anexe
laterale în formă de „L”
7
8
Releveu al unei case dobrogene din 1920 de la Dunăre, tricelulară, cu prispă și balcon în ax, cu fundații și beci de piatră, pereți din ceamur. stâlpi ai prispei,
planșee, parapet și șarpantă de lemn, învelitoare din țiglă ceramică. Casa este situată pe teren denivelat, motiv pentru care dispune de beci.
9
2
1
Tipologii planimetrice – casă tricelu
lară din Floriile, com. Aliman, jud.
Constanța, cu prispă îngustă pe centru și sală (tindă) retrasă. Camerele sunt
egale. Intrarea pe prispă e marcată de doi stâlpi zidiți. Tipologia este mai
întâlnită în Podișul Dobrogei de Sud.
3
Tipologii planimetrice – casă bicelulară din Floriile, com. Aliman, jud.
Constanța, cu prispă îngustă pe toată lungimea și anexă laterală pe toată
lățimea casei. Prispa are stâlpii și parapetul din lemn.
Tipologii planimetrice – casă tricelulară din Istria, jud. Constanța, cu prispă
îngustă pe două treimi din fațadă și sală (tindă) retrasă. Camerele sunt egale.
Intrarea în casă se face în mod atipic pe dreapta, în una din camerele laterale.
Stâlpii sunt din lemn. Nu există parapet, înălțimea permițând acest lucru.
4
Tipologii planimetrice – casă tricelulară din Floriile, com. Aliman, jud.
Constanța, fără prispă, în formă de „L”, cu anexă pe latura opusă intrării.
10
2.3 Tipol
ogiile de acoperișuri, pante, materiale de învelitori, culori,
goluri de iluminare și
ventilare (forme permise) în funcție de caracteristicile
de
climă,
relief și tehnici locale
Acoperirea se face cu șarpantă de
lemn de esențe locale, fiind la fel de
răspândite pe tot teritoriul dobrogean
atât acoperișurile în patru ape, cât și
cele în două ape. Ultimele prezintă
frontoane zidite din chirpici sau
realizate din scânduri.
Pantele învelitorilor diferă în funcție
de materialul folosit, fiind mai puțin
înclinate pentru olană și țiglă și mai
înclinate pentru stuf, papură sau tablă.
Streșinile sunt mici. Uneori, sub
învelitoare se așează un strat de stuf
sau paie, termoizolator.
Învelitorile folosite sunt de mai multe
tipuri: din olană 16/25cm sau 20-38cm
fixată pe astereală din scândură
acoperită cu pământ, din stuf sau
papură, din straturi de stuf și paie
mărunțite având ca liant pământ cu
apă; din țiglă trasă sau, rareori, solzi
î
n formă de romb, cu pante puțin
înclinate; din pământ aplicat pe strat
de stuf și impermeabilizat prin lutuiri
succesive.
Tavanul se făcea în mod tradițional
din împletituri de stuf lutuite și văruite,
fie cu grinzi vizibile (cordițe), fie
placate cu scânduri (podea, podină)
vopsite brun. Tavanul din scânduri era
propriu locuințelor tricelulare.
Culorile acoperişurilor vechi sunt
naturale: nuanţe natur de galben-
1
2
3
cărămiziu, creând o anumită unitate și
încadrare în peisajul agrar din jur.
Pentru învelitorile din materiale noi,
culorile nu sunt definite, adesea sunt
saturate şi discrepante în ansamblul
aşezării.
În general, acoperişul tradiţional
nefiind folosit ca spaţiu locuibil, nu
beneficiază de lucarne de dimensiuni
mari sau alte goluri funcţionale, cu
excepţia celor pentru trecerea coşului
de
fum
ori
pentru
ventilație.
Construcţiile noi au în planul
acoperişului timpane, lucarne cu
forme
diverse,
nespecifice,
neproporţionate,
ad
esea
prost
orientate cardinal, cu numeroase vicii
constructive în zonele de tangenţă cu
panta acoperişului.
6
4
7
5
Învelitori din paie, țiglă trasă, olană,
țiglă solzi, stuf cu olane.
8
Lucarne, mici, cu rol mai mult de
ventilație decât de iluminat.
9
Un acoperiș cu culoare prea intensă face notă discordantă cu restul caselor,
modificând armonia peisajului.
2.4 Gabaritele/ propor- 2.5 Travei de fațadă
țiile conforme specifi- conform
specificului
cului local
local, fără a ieși din
scara clădirilor înveciDin punct de vedere volumetric,
ca
percepție
casa tradiţională se încadrează în tipul nate,
cu un singur nucleu compoziţional, în
umană
care armonia şi echilibrul sunt date de
proporţiile dintre înălţimile peretelui şi
acoperişului şi de întrepătrunderea
dintre spaţiile închise ale locuirii şi
spaţiile
semideschise
care
fac
legătura cu lumea înconjurătoare.
Casa dobrogeană are înălțimea
pereților mai mare decât înălțime
a
acoperișului. Această proporție este
valabilă
și
pentru
anexele
gospodăresti. Soclul are înăltime
mica, de una până la trei trepte, pe
terenurile plane, dar poate să aibă și
înălțime mai mare acolo unde terenul
este înclinat.
Elementele regulatoare care creează
liniile principale ale faţadelor sunt
determinate de linia de coamă, linia de
streaşină, prispa, soclul (demisolul).
Se remarcă, în foarte multe cazuri,
marcarea accesului cu un balcon
(cerdac, foișor) care poate fi un volum
adăugat celui principal, cu acoperiș în
două sau trei ape, sau înglobat în
aceasta. Acesta este de influență
urbană și poate consta într-o arcadă
principală de acces, flancată de două
mai mici, cu parapet și scară laterală.
Stâlpii prispei sunt de regulă
echidistanți și realizați din lemn.
Unele locuințe, de asemenea mai
noi, au parapetul, ori chiar și stâlpii
prispei, inițial de lemn, înlocuite cu
zidărie. Culoarea lemnului este
naturală sau de vop
sea verde, brun și,
mai rar, albastru.
Zidăria de piatră era lutuită, sau
acoperită cu tencuieli pe bază de var,
iar fațada văruită. Pereții exteriori
apar văruiți in alb sau albastru deschis
și au în partea inferioară un brâu
albastru.
Soclul, denumit și „brâu” sau
„brâne”, este simplu, de piatră, iar la
construcțiile mai vechi sau la anexe
poate lipsi. Piatra rămâne aparentă,
poate fi văruită, sau poate fi tencuită
cu „pământ gri”.
Detalii decorative sunt rar întâlnite:
ancadramente la ferestre, capiteluri,
pazii
de
lemn.
Timpanele
acoperișurilor realizate din scânduri
de lemn sunt sculptate decorativ mai
abundent la casele lipovenești.
2.6 Raportul plin/gol,
forma, dimensiunea și
proporția golurilor și a
ferestrelor
conform
specificului local
Compoziția fațadei mizează pe
dispunerea simetrică în ax a
ferestrelor, bipartite sau tripartite, câte
una sau două pentru fiecare încăpere.
Asociate ușii de acces, apar uneori
ferestr
e mai înguste și înalte. Când
prezintă galerie cu scânduri traforate
sau geluite pe unul din pereții laterali,
apare și o fereastră bipartită
suplimentară, la încăperea din dreptul
acesteia.
Tămplăria este cu alcătuire dublă,
bipartită sau tripartită (mai recent),
vopsită în aceeași culoare ca stâlpii.
Golurile pot prezenta ancadramente,
realizate din tencuială sau din lemn.
Se poate constata o dispunere
simetrică a ferestrelor față de acces
precum și o amplasare centrată pe
axul fațadelor cu timpan sau pe pereți.
În mod tradițional s-a folosit exclusiv
lemnul (esențele locale, respectiv
salcâm,
plop,
salcie)
pentru
construcțiile cu destinație de locuință
dar și pentru cele utilitare. În cazul
construcțiior din piatră, se prevedeau
pervazuri din același material, de
grosimi considerabile (> de 10 cm).
11
1
Casă cu înălțime mică, tricelulară, cu prispă pe treimea mediană, cu stâlpi și
parapet înlocuite cu zidărie, cu arcade ș
i ancadramente – Pantelimon, jud.
Constanța
3
Casă cu demisol, prispă, foișor cu fronton de lemn, stâlpi și parapet înlocuite
cu zidărie – Vlahi, Comuna Aliman, jud. Constanța
2
Casă cu etaj, prispe, stâlpi de lemn și anexă laterală – Floriile, com. Aliman,
jud. Constanța
4
Ușă asociată cu două ferestre înguste și fereastră tripartită, în axul încăperii –
Floriile, Comuna Aliman, jud. Constanța
3. AMPLASAREA
CONSTRUCȚIILOR
3.1 Prevederi generale
12
Amplasarea construcțiilor trebuie să
respecte coerenţa de ansamblu în
care se integrează şi se va face
conform specificului localităţii, în
funcţie
de
accesibilitate,
panta
terenului, orientare, însorire, curenţi
de aer, prezenţa unei ape, alinieri,
fronturi, retrageri de la stradă/uliţă,
număr de clădiri amplasate pe lot şi
distanţele dintre acestea (ierarhizare).
Nu se recomandă derogări de la
regulamentele locale de urbanism
prin documentații de urbanism
PUD/PUZ. În situa
ia în care se vor
întocmi astfel de documentaţii,
acestea vor cuprinde OBLIGATORIU
studiile de amplasament şi de
încadrare
în
volumetria
de
ansamblu, conform cu Anexa 1. Se
va justifica amplasarea pe teren cu un
plan de încadrare în zonă (Anexa 1),
care
să
evidențieze
așezarea
tradițională a construcțiilor pe loturi în
zonă.
Se vor identifica ZONE DE RISC (de
exemplu, harta de inundabilitate,
alunecările de teren etc.)
comunitare cu rol social, sau funcțiuni
complexe care se pot implanta în
țesutul rural și care se pot diviza în
sistem pavilionar, precum: servicii,
birouri, administrație, IT, etc.;
• construcții noi cu gabarit
mediu – suprafața acestora este
cuprinsă 120 si 250 mp – adecvate
pentru funcțiuni de tipul: locuințe
individuale,
educațional
(creșe,
grădinițe,
after-school),
ateliere
mecanice, hale de producție, ateliere
meșteșugărești și de producție de
dimensiuni medii, agropensiuni;
• construcții noi cu gabarit mare,
mono
bloc – suprafața acestora
depășește 250 mp – adecvate pentru
funcțiuni de tipul: educațional (școli,
săli de sport), producție nonagricolă,
activități meșteșugărești, depozitare,
ferme zootehnice,
alimentară, etc..
industrie
agro-
• intervenții asupra construcțiilor
existente
–
pentru
acestea
(reconversie
şi/sau
extindere),
conversia funcţională şi volumetrică se
va realiza cu păstrarea specificului
local şi integrarea construcţiei şi a
extinderilor în ansamblul organizării
gospodăriei.
Pentru toate funcţiunilele aflate în
studiu, se recomandă refolosirea și
reconversia
fondului
construit
existent
valoros,
a
caselor,
grajdurilor,
celorlalte
anexe
gospodărești sau altor construcții
sătești (mori, abatoare, ateliere,
silozuri, etc.), abandonate sau nu,
care păstrează de cele mai multe ori
caracteristici sintetice ale arhitecturii
tradiţionale.
Deasemenea,
se
recomandă
folosirea tehnicilor, a materialelor
tradiţionale originale şi
a meşterilor
care încă mai există în zonă.
DA
3.2 Amplasarea
cadrul aşezării
în
Există două soluții de amplasare a
construcțiilor noi:
a) în afara vetrei satului – pentru
funcțiuni precum: centre de producție
și de procesare de dimensiuni mari,
mori de apă, grajduri, săli de sport
mari, etc..
b) în vatra satului: toate celelalte
funcțiuni, conform regulamentului de
urbanism.
NU
2
AȘA NU: În Podișul Dobrogei de Nord, pâlc de case noi, amplasate în afara
satului.
NU
Se iau în considerare următoarele
tipuri de construcții:
• construcții noi cu gabarit mic –
suprafața acestora este mai mică de
120 mp – adecvate pentru funcțiuni
precum: locuințe individuale, cabinete
medicale,
puncte
farmaceutice,
ateliere
meșteșugărești
ori
de
producție de mici dimensiuni, centre
1
AȘA DA: Fermă mai veche, de dimensiuni mari, amplasată în trup izolat,
refăcută în aceeași volumetrie, cu aceleași materiale și culori conform
specificului loca
l.
3
AȘA NU: Este interzisă amplasarea în vatra satului, lângă fondul construit
tradițional, a construcțiilor cu gabarit mare monobloc, având volumetrie,
materiale și culori ce nu amintesc de specificul local.
A. Construcțiile noi cu gabarit mic
și construcțiile noi cu gabarit
mediu care se încadrează în țesutul
local vor fi amplasate în vatra satului
sau la marginea acestuia, ținând cont
de poziția clădirilor din vecinătate,
pentru a asigura însorirea, igiena și
coerența arealului din care vor face
parte.
B. Construcții noi cu gabarit mare
monobloc, care depășesc scara
locului, vor fi obligatoriu amplasate în
afara satului, la marginea localității,
într-o zonă rezervată prin PUG sau
neocupată de țesutul specific local,
fără
să
agreseze
peisajul
și
perspectivele importante către sat. În
general, se recomandă ca acestea să
fie amplasate într-o zonă în afara
conurilor de vizibilitate importante,
chiar la o depărtare mai mare de sat.
3.3
Amplasarea
teren
pe
Modul de amplasare a construcţilor
pe lot va avea la bază reglementările
PUG, codul civil, normativele şi
legislaţia în vigoare la data întocmirii
proiectului privitoare la distanţa
minimă dintre construcţii, însorire,
siguranţă şi stabilitate, siguranţă la
incendiu și celelalte cerințe de calitate.
În cazul zonelor construite unitar,
propunerile se vor alinia cu existentul.
A. Construcții noi cu gabarit mic
și construcții noi cu gabarit mediu
Amplasarea construcţiilor pe lot se
va face cu păstrarea organizării şi
ierarhizării specifice pe parcelă a
construcţiilor, asigurându-se coerenţa
ansamblului și integrarea volumelor în
imaginea generală percepută la
nivelul străzii. Pentru menținerea sau
refacerea identității spațiului tipic rural,
este
importantă
preluarea
și
evidențierea relației şi a dialogului
DA
1
AȘA DA: În Podișul Dobrogei Centrale, în localitatea Mihail Kogălniceanu, jud.
Constanța, case ce menț
in alinierea față de stradă, specifică cartierului.
dintre
zonele
unei
gospodării,
accesurile,
traseele,
articulațiile,
gabaritele, orientarea construcțiilor
unele față de celelalte și față de drum,
ca și limbajul arhitectural echilibrat,
volumetria
discretă.
Pentru
intervenţiile pe construcţii existente
(reconversie
şi/sau
extindere),
modificarea funcţională şi volumetrică
se va realiza cu păstrarea specificului
local şi integrarea construcţiei şi a
extinderilor în ansamblul organizării
gospodăriei.
Intervenţiile pe construcţiile existente
NU
2
AȘA NU: În Podișul Dobrogei Centrale, pe un teren pe care este menținută și
locuința veche, tradițională, apare o construcție nouă, care o domină volumetric
și transformă spațiul exterior gospodăresc specific.
NU
3
AȘA NU: În Lunca Dunării, front stradal nerespectat, volumetrie, planimetrie
neconformă, materiale nepotrivite, culori neinspirate, instalații poziționate la
vedere din spați
ul public...
şi construcţiile noi nu trebuie să se
evidenţieze ca elemente dominante
vizibile din drum sau din diverse
puncte de perspectivă şi belvedere
cunoscute la nivel local. Se va justifica
amplasarea pe teren cu un plan de
încadrare în zonă (Anexa 1), care să
evidențieze așezarea tradițională a
construcțiilor pe loturi în zonă.
B. Construcții noi cu gabarit mare
de tip monovolum
Construcţiile noi nu trebuie să se
evidenţieze ca elemente dominante
vizibile din drum sau din diverse
puncte de perspectivă şi belvedere
cunoscute la nivel local, cu excepția
clădirilor cu caracter reprezentativ
pentru localitate. Se va justifica amplasarea pe teren cu un plan de încadrare în zonă (Anexa 1), care să evidențieze încadrarea în ţesutul rural a
construcţiilor propuse şi armonizarea
cu scara şi modul de distribuţie pe lot.
3.4 Recomandări
Regulile
de
amplasare
a
funcțiunilor vor avea la bază
reglementările PATJ/PUG. Nu sunt
recomandate derogări de
la RLU
prin documentații de urbanism
PUD/PUZ.
Amplasarea trebuie să aibă la bază
prevederile
şi
reglementările
prevăzute
în
regulamentul
de
urbanism specific fiecărei zone în care
se
realizează
construcţia
şi
Regulamentul General de Urbanism,
cu
modificările
şi
completările
ulterioare.
La autorizarea lucrărilor se va ține
seama de politicile consiliilor locale
privind ocuparea rațională a terenurilor
în vederea realizării unor obiective
precum:
13
14
• completarea zonelor centrale,
potrivit condiţiilor urbanistice specific
impuse de caracterul zonei, având
prioritate instituţiile publice, precum şi
serviciile de interes general;
• valorificarea terenurilor din zonele
echipate cu reţele tehnico-edilitare;
Construcţiile
se
vor
amplasa
corespunzător funcţiunilor pe care le
adăpostesc: funcţiunile cu scară mare,
funcţiunile posibil generatoare de
poluare (ferme animale, procesare de
biomasă, depozite etc), necompatibile
în mod direct cu funcţia
de locuire – la
periferia satului, în zonele de
dezvoltare a acestuia, în zone cu grad
mare de răsfirare, după caz.
Amplasarea construcţiilor care, prin
natura şi destinaţia lor, pot genera
riscuri tehnologice (determinate de
procesele industriale sau agricole care
prezintă pericol de incendii, explozii,
radiaţii, surpări de teren sau de
poluare a aerului, a apei sau solului)
se face numai pe baza unui studiu de
impact elaborat şi aprobat conform
prevederilor legale.
Se va evita comasarea sau divizarea
parcelelor,
ţinându-se
cont
de
caracteristicile
parcelarului
istoric
păstrat. Modificarea (comasarea sau
divizarea) acestuia este permisă dacă
nu se schimbă/alterează imaginea
spaţiului
public.
Amplasarea
intervenţiilor în vatra satului şi/sau în
zonele periferice se va justifica prin
studiul de amplasament (Anexa 1).
Autorizarea executării construcţiilor
şi a amenajărilor pe terenurile agricole
din extravilan este permisă pentru
funcţiunile şi în condiţ
iile stabilite de
lege. Se va urmări gruparea
suprafeţelor
de
teren
afectate
construcţiilor,
spre
a
evita
prejudicierea activităţilor agricole şi de
creştere a animalelor.
3.5. POT, CUT, regim
de înălțime
• Înălțime maximă la streașină de
3m de la cota pardoselii parterului la
construcțiile Parter și D+P, respectiv
6m de la cota parterului la S+P+E;
Pentru terenurile rezultate în urma
dezmembrării, POT și CUT se vor
calcula raportat la suprafața terenului
inițial, din planul parcelar istoric.
A. Construcții cu gabarit mic,
construcții noi cu gabarit mediu și
construcții noi cu gabarit mare
dispuse în sistem pavilionar
În funcție de densitatea clădirilor în
cadrul satului:
• P.O.T. maxim = 30%, pentru
parcelele sub 500mp și scade cu căte
3% pentru fiecare 100 mp în plus;
15% la terenurile peste 1000 mp;
• Înălțime maximă la coamă de 6 m
de la cota pardoselii parterului la
construcțiile Parter și D+P, respectiv
9m de la cota parterului
la S+P+E.
• CUT maxim = 0,6 (nu intră în
calcul pivnița și spațiul tehnic, amplasate la subsol sau la demisol, demisolul având maxim 1,8 m suprateran);
• regimul maxim de înălțime va fi
diferit, în funcție de specificul local și
tipul de înclinare a terenului: Parter în
localitățile sau zonele din localități
situate pe teren orizontal, D+P sau
S+P+E în zonele cu teren în pantă;
Exemplu
de
poziționare
gospodăriilor față de șosea.
•
Regimul
maxim
de
înălțime
Parter,
cu
excepția
părții
administrative, unde se acceptă P+1.
Etajul nu va avea suprafața mai mare
de 120 mp;
• Înălțime maximă la streașină = 5
m, față de cota terenului;
• Înălțime maximă la coamă = 9 m,
față de cota terenului.
1
a
2
Relieful Munților Dobrogei, satele
sunt situate în văi!
Sat dominat vizual (și spiritual) doar de verticala bisericii.
B. Construcții cu gabarit mare
monobloc
• POT maxim = 35 %;
• CUT maxim = 0,7 (nu intră în
calcul pi
vnița și spațiul tehnic, amplasate la subsol sau la demisol, demisolul având maxim 1,8 m suprateran);
3
4
Paisaj ldobrogean iniștit, orizontal, dominat în utimul timp de instalațiile
eoliene.
Imaginea armonioasă a unui sat, definitorie pentru peisajul rural dobrogean
5
3.6 Amplasarea construcțiilor și amenajărilor noi în afara vetrei satului –
probleme de încadrare în peisaj
NU
NU
15
1
AȘA NU: Se interzice amplasarea unor clădiri noi cu gabarit mare în vizorul
primei imagini asupra satului, indiferent dacă se merge pe un drum de țară,
printre dealuri, pe Dunăre, sau pe o șosea de mare trafic.
DA
2
AȘA DA: Amplasarea unei săli de sport moderne la marginea satului este
recomandată, dar peisajul rural modificat astfel trebuie corectat prin mascarea
volumului cu vegetație ori prin amplasarea pe teren la nivel inferior, sau se poate
alege din start un loc nevizibil din drumurile principale.
3
AȘA NU: Construcții noi în trup izolat cu ferme, folosin
d culori neadecvate
pentru acoperiș și nemascate de vegetație alterează în mod brutal monotonia
cromatică specifică peisajului dobrogean.
DA
4
AȘA DA: Construcții noi în trup izolat cu fermă și bază pentru utilaje agricole
sunt mascate de perdea de vegetație și nu agresează vizual peisajul agrar.
DA
NU
16
1
AȘA DA: Construcții în trup izolat cu ferme, chiar dacă nu sunt mascate de
perdea de vegetație, totuși nu agresează vizual peisajul agrar, datorită
materialelor și culorilor.
NU
2
AȘA NU: Alăturarea nefericită a două construcții de acest fel nu este
convenabilă nici funcțional, nici vizual, aducând mari deservicii de confort vizual
și economic.
3
AȘA NU: Se va evita amplasarea construcțiilor de dimensiuni mari la intrarea
în sat, mai ales în conul de vizibilitate al unui monument sau ansamblu
important de clădiri. În general, gabaritul clădirilor scade spre marginea satului,
iar clădirile noi trebuie să țină cont de acest lucru.
NU
4
AȘA NU: Amplasarea unei clădiri de dimensiuni mari și construită din
materiale și cu tehnologii moderne la intrarea în sat pe drum principal, obturând
imaginea acestuia, are efect negativ asupra peisajului rural.
3.7 Amplasarea construcțiilor și amenajărilor noi
în vatra satului – probleme de încadrare pe lot
DA
NU
17
1
AȘA DA: Volumul și alinierea în care se vor încadra clădirile noi trebuie să
respecte specificul local; în cazul acesta, cel dat de vecinătăți.
NU
NU
NU
NU
2
AȘA NU: Este interzisă amplasarea casei la aliniament diferit de cel al
clădirilor vecine.Este interzisă inversarea poziției și orientării casei pe teren, față
de limitele laterale ale acestuia.
3
AȘA NU: Chiar dacă volumul și alinierea respectă tipicul vecinătăților,
schimbarea orientării prin răsucirea volumului cu 90 0 este interzisă.
NU
4
AȘA NU: Este interzisă realizarea unor construcții care nu țin cont de
aliniamentul general la streașină
și la coamă al vecinătăților, de gabaritele,
proporțiile și de aspectul specifice locului.
DA
DA
18
3
1
AȘA DA: Dacă terenul și funcțiunea propusă o permit, necesarul de spațiu
mai mult se poate asigura prin mai multe volume, dispuse pe teren după
modelul gospodăriei tradiționale, respectând ierarhizarea acestora.
NU
2
AȘA NU: Este total nerecomandată situarea pe același teren a două sau mai
multor construcții (chiar dacă una este veche, renovată) la care se folosesc
materiale de închidere, finisaje și culori nearmonizate. Deasemenea, dispoziția
lor una față de cealaltă este în contradicție cu gospodăria tradițională și cu un
mod de viață confortabil.
AȘA DA: Întreruperea unei prelungiri liniare a modelului volumetric tradițional
cu diverse elemente de limbaj arhitectural are un impact vizual superior, în cazul
necesității de spațiu mai amplu.
NU
4
AȘA NU: Supradimensionarea clădirilor este interzisă, chiar dacă respectă
regi
mul de înalțime și retragerile de la limitele de proprietate. În cazul necesității
realizării unei construcții de suprafață mare, se recomandă segmentarea
gabaritului în volume ierarhizate adecvat.
Recomandări care ţin de
calitatea utilizării spaţiilor
NU
1
AȘA NU: Este interzisă realizarea unor construcții care nu țin cont de
volumetria vecinătăților.
NU
2
AȘA NU: Este interzisă realizarea unor construcții în axul lotului sau apropiat
de acesta, chiar dacă construcția nouă respectă alinierea față de stradă a
construcțiilor vecine.
Cultură şi educaţie: În cazul
construcţiilor de învăţământ, se
recomandă
împărţirea
amplasamentului
în
mai
multe
zone
funcţionale:
zona
ocupată
de
construcţie, zona curţii de recreaţie,
zona terenurilor şi a instalaţiilor
sportive şi zona verde. Pentru
învăţământul preşcolar (grădiniţe), se
va asigura o suprafaţă minimă de
teren de 22 mp/copil, iar pentru şcoli
primare, gimnaziale,
licee, şcoli
postliceale şi şcoli profesionale, o
suprafaţă minimă de 20 mp/elev.
Modul de ocupare a terenului:
– 25 % teren ocupat de construcţii;
– 75% teren amenajat (curte pentru
recreaţii şi amenajări sportive, zonă
verde, grădină de flori) din terenul
total.
Sănătate: Pentru construcţiile de
creşe şi creşe speciale, amplasamentul trebuie să asigure o
suprafaţă de minimum 25 mp/copil
pentru creşe şi de 40mp/copil pentru
creşe speciale, grupate în mai multe
zone: zona ocupată de construcţii,
zona ocupată de spaţii de joacă (nisip,
bazin, plajă, gazon); zona administrativă şi zona verde de parc şi alei.
Modul de ocupare a terenului:
- 20 % teren ocupat de construcţii
- 80 % teren amenajat (curte pentru
recreere, loc de joacă, zonă verde,
grădină de flori) din terenul total.
Pentru a asigura un grad de însorire
optim şi o eficienţă energetică sporită,
saloanele,
rezervele,
cabinetele
medicale se vor orienta spre sud, sudest
şi
sud-ve
st.
Laboratoarele,
serviciile tehnice medicale, spaţiile
care necesită o lumină constantă pe
tot parcursul zilei se vor orienta spre
nord. Dormitoarele şi spaţiile de joacă
din creşe, creşe speciale şi centre
pentru copii vor fi orientate spre sud,
sud-est, sud-vest.
Construcţiile comerciale şi de
servicii: se recomandă orientarea
spaţiilor funcţionale pe lot astfel încât
să se asigure însorirea spaţiilor pentru
public şi a birourilor, conform normelor
specifice. Depozitele, atelierele de
lucru, spaţiile care necesită o lumină
constantă pe tot parcursul zilei se vor
orienta spre nord.
Construcţiile
de
învăţământ:
pentru a asigura un grad de însorire
optim şi o eficienţă energetică sporită,
orientarea sălilor de clasă va fi către
sud, sud-est, sud-vest (mai puţin
recomandat). Bibliotecile, sălile de
ateliere şi laboratoarele, spaţiile care
necesită o lumină constantă pe tot
parcursul zilei, se vor orienta spre
nord. Terenurile de sport se
vor
orienta cu latura lungă pe direcția
nord-sud, cu o abatere de maximum
15 grade spre est sau spre vest.
Recomandări generale
Volumele acceptate vor fi simple,
planurile predominant rectangulare.
Se pot accepta abateri de la formă în
plan, dar care să nu altereze aspectul
general specific local. Acoperișul va
avea în general forma dreptunghiulară
în plan, cu excepția cazurilor în care
există foișor sau „balcon”, ori în cazul
în care forma construcției va fi în „L”.
Dacă accesele principale se vor face
prin spațiul de trecere tradițional
(prispă, verandă, marchiză, portic),
acesta va respecta caracteristicile
locului.
Gabaritele/proporțiile
vor
fi
argumentate prin studiul specificului
localității (studiu pe teren, la fața
locului);
aspectul
general
al
construcțiilor va fi cel de orizontalitate.
Traveile de fațadă vor fi conform
specificului local, fără a ieși din scara
clădirilor învecinate, ca percepție
umană. Dacă specificul local nu
p
ermite altfel, monotonia fațadelor mai
lungi decât cele tradiționale (de
exemplu, ale construcțiilor mari) se va
rupe prin retrageri, rezalituri, schimbări
de material de finisaj, etc..
19
4. INTERVENȚIILE PE CLĂDIRILE
EXISTENTE
20
La
construcțiile
existente
se
recomandă conversia funcțională și
eventual volumetrică, cu păstrarea
specificului local (dacă este cazul),
sau integrarea volumetrică și vizuală a
acestora în specificul local. Se
recomandă
păstrarea
volumelor
existente ca scară (în plan și elevație)
acolo unde funcțiunea propusă și
dezvoltarea acesteia o permit.
Intervenţiile pe construcţiile existente
şi construcţiile noi nu trebuie să se
evidenţieze ca elemente dominante
vizibile din drum sau din diverse
puncte de perspectivă şi belvedere
cunoscute la nivel local. Se va justifica
amplasarea pe teren cu un plan de
încadrare în zonă (anexa 1), care să
contureze așezarea tradițională a
construcțiilor pe parcele în zonă.
Reamena
jările (reconversiile) se
pot realiza, transformând construcțiile
anexe lipite de locuință sau beciurile
în spații de locuit și/sau introducând
compartimentări
suplimentare.
Clădirea cu totul poate primi și altă
destinație,
după
necesități
și
respectând regulamentul de urbanism.
Deasemenea, reconversia anexelor
separate de locuință poate aduce o
funcțiune nouă complementară celor
existente deja pe teren.
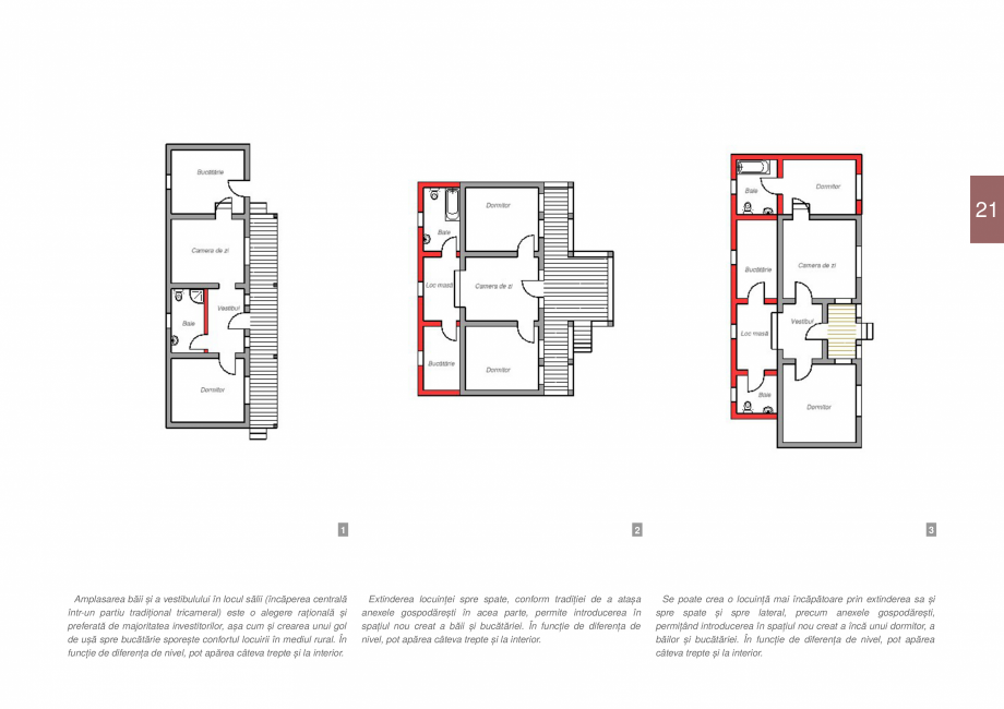
Construcțiile care deja sunt pe două
niveluri, preponderent situate în Lunca
Dunării, pot asigura spațiul necesar
unei locuințe mai încăpătoare sau
chiar și altor funcțiuni, doar prin câteva
intervenții de recompartimentare.
Pantele și înălțimile mici ale
acoperișurilor,
fac
imposibilă
mansardarea locuințelor existente.
Chiar dacă podurile nu pot fi
mansardate, clădirile scunde și cu
ferestre mici pot căpăta mai multă
lumină și mai mult spațiu interior prin
desființarea plafonului și crearea de
ferestre în planul acoperișului.
M
odalităţile de extindere se pot
realiza:
• în continuarea volumului, la
înălţime asemănătoare cu acoperișul
şi cu aceeaşi formă de acoperiş,
respectând ierarhia volumelor;
• ca volum nou, similar ca formă şi
proporţie, legat de volumul existent
prin diverse spaţii de articulare;
• prin reconversia şi extinderea
anexelor: magazii, grajduri.
În cazul construcțiilor existente,
extinderile lipite de acestea nu le vor
domina și vor păstra caracteristicile
specifice locului. Se va urmări
corelarea acestora cu existentul,
păstrarea proporțiilor, neexcluzând o
abordare de secolul al XXI-lea,
folosind materiale ecodurabile.
Recomandări
În cazul intervenției pe clădire
existentă, se va înlocui învelitoarea din
tablă, azbociment, membrană bituminoasă sau alte materiale sintetice
cu cele recomandate pe tipul respectiv
de clădire. Se va evita combinarea la
același acoperiș a mai multor tipuri,
culori sau forme de învelitori. Nu se
recomandă soluţiil
odalităţile de extindere se pot
realiza:
• în continuarea volumului, la
înălţime asemănătoare cu acoperișul
şi cu aceeaşi formă de acoperiş,
respectând ierarhia volumelor;
• ca volum nou, similar ca formă şi
proporţie, legat de volumul existent
prin diverse spaţii de articulare;
• prin reconversia şi extinderea
anexelor: magazii, grajduri.
În cazul construcțiilor existente,
extinderile lipite de acestea nu le vor
domina și vor păstra caracteristicile
specifice locului. Se va urmări
corelarea acestora cu existentul,
păstrarea proporțiilor, neexcluzând o
abordare de secolul al XXI-lea,
folosind materiale ecodurabile.
Recomandări
În cazul intervenției pe clădire
existentă, se va înlocui învelitoarea din
tablă, azbociment, membrană bituminoasă sau alte materiale sintetice
cu cele recomandate pe tipul respectiv
de clădire. Se va evita combinarea la
același acoperiș a mai multor tipuri,
culori sau forme de învelitori. Nu se
recomandă soluţiil
... ascunde
Alte documentatii ale aceleasi game Vezi toate
Ghid de arhitectură 71 p | RO
Ghid de arhitectură 66 p | RO