Zona Bucovina de Sud - Ghid de arhitectura pentru incadrarea in specificul local din mediul rural
Tip documentatie: Ghid de arhitectură
Salvează pdf
Full screen
•
•
•
•
•
•
•
•
ROSTUL GHIDULUI
Rostul acestui material este de
a furniza un instrument de lucru
locuitorilor mediului rural, autorităților
locale, investitorilor, proiectanților și
consultanților implicați în procesul
de construire sau elaborare a unor
regulamente de construire în mediul
rural.
Ghidul își propune să fie un set de
reguli ușor de aplicat, cu exemple
clare (inclusiv de tipul AŞA DA sau
AŞA NU), care să faciliteze alegerea
modelelor adecvate de către cei ce
vor să construiască în mediul rural.
În același timp, Ghidul intenționează
să ușureze activitatea echipelor de
proiectare/ consultanță în alegerea
configurațiilor, a materialelor și a
tehnologiilor necesare construirii în
mediul rural, fie că vorbim despre
proiecte finanțate prin PNDR, despre
elaborarea
documentațiilor
de
urbanism sau despre simple intervenții
cu finanțare exclusiv privată.
Obiectivul esenţial al acestui ghid
este păstrarea nealterată a spirit
ului
așezărilor în care sunt propuse
proiectele și creșterea calității vieții,
dar cu conservarea tradițiilor și a
peisajului cultural existent – acestea
fiind, de fapt, chiar resurse pentru
dezvoltarea durabilă în mediul rural.
În acest sens, există deschidere
pentru abordări specifice secolului
al XXI-lea care țin cont de resursele
locale, de energiile regenerabile,
precum și de cunoașterea acumulată
local (meșteșugurile și tehnica
populară). Proiectele de succes din
mediul rural evidențiază faptul că
există o legătură foarte strânsă între
calitatea peisajului natural, a celui
construit și calitatea vieții. Viitorul
oricărei comunități depinde de modul
în care își administrează resursele.
Mediul construit (construcțiile de
orice fel) poate fi o resursă extrem
de valoroasă sau din contră, doar un
consumator de resurse. În acest sens,
prezentul material propune soluții
care pun în valoare înțelepciunea
tradiției constructive locale,
a utilizării
responsabile a resurselor locale dar
în același timp oferind soluții noi, ce
țin de materiale și tehnici moderne
de construcţie şi de surse de energie
regenerabilă.
1
1
IMPLICAREA
COMUNITĂȚII ÎN
GOSPODĂRIREA
RESPONSABILĂ
A MEDIULUI
CONSTRUIT
2
Grija cu care întreținem, reparăm
sau construim - fie că este vorba
de casele tradiționale, părintești
sau de clădiri noi, reprezintă un
proces ce presupune asumarea
unei responsabilități față de întreaga
comunitate. Orice clădire trebuie
percepută în primul rând ca o
componentă a ansamblului așezării
sătești. Astfel, o clădire trainică,
frumoasă, care își îndeplinește bine
rostul pentru care a fost construită,
ar trebui să fie un motiv de mândrie
pentru întreaga comunitate. Acest
lucru devine și mai evident, mai
relevant, în cazul clădirilor cu funcțiuni
publice, comunitare: primăria, școala,
„Căminul
Cultural”,
dispensarul,
clădiri de cult etc.
Principiile care vor s
ta la baza
oricărei intervenții asupra mediului
construit din zonele rurale (fie
că este vorba de conservare,
întreținere,
modernizare
sau
construire) sunt urmatoarele:
- respectul pentru moștenirea
culturală; se va urmări cu precădere
integrarea în context prin păstrarea
nealterată a identității așezării, a
peisajului construit și a celui natural;
responsabilitate față de urmași;
îmbunătățirea condițiilor de viață în
prezent prin valorificarea resurselor
locale în mod judicios, pe termen
lung, pentru a ramâne disponibile și
generațiilor viitoare;
- utilizarea surselor de energie
regenerabile;
- valorificarea amplasamentului
astfel încât forma/ volumetria și
înfățișarea clădirii să reflecte climatul
local: orientare și însorire, umiditate
și vânturi dominante, oscilații de
temperatură etc.;
- utilizarea materialelor și tehnicilor
tradiționale care de fapt reflectă
soluțiile cele mai bune cristalizate
de-a lungul timpului pentru condiț
iile
de mediu locale;
- utilizarea materialelor reciclabile și
refolosirea apelor uzate și pluviale.
Pentru noile programe/ funcțiuni
propuse
în
mediul
rural,
întotdeauna
se
vor
analiza
următoarele aspecte:
Relevanța: „Cât de necesară este
această nouă clădire sau ansamblu
pentru comunitate? Cum se va
asigura întreținerea și funcționarea
noilor clădiri?”
Incluziunea socială: „Cât de
echitabilă este repartizarea serviciilor,
a utilităților, a facilităților de producție
în teritoriu?” Se va urmări favorizarea
accesului
tuturor
membrilor
comunității în aceeași măsură la noile
funcțiuni.
gradul de calificare a personalului
creşte; consecutiv, creşte remuneraţia
şi capacitatea de a întreţine locuinţele
nou create;
- atingerea obiectivelor avute în
vedere la terminarea programului:
aceste funcţiuni productive vor
rămâne în teritoriu, urmând să
deservească întreaga aşezare în
ansamblul ei; în plus, la terminarea
programului, zona
va fi locuită de
un segment de populaţie productiv;
acesta va fi capabil să presteze munci
calificate în cadrul aşezării dar şi în
vecinătate, fiind astfel capabil pentru
a-şi înteţine casele şi gospodăriile.
Rostul arhitectului
Arhitectul are rostul de a îmbina
oportunitățile cu resursele și nevoile
beneficiarilor, indiferent dacă aceștia
sunt o familie, o firmă, un ONG sau
autorități locale și de a oferi soluții
realiste în timp util. Reușita demersului
său este direct proporțională cu
adecvarea
proiectului
la
cele
enumerate mai sus. Aceste lucruri nu
trebuie rupte din contextul mediului
rural românesc de început de secol
XXI, în care confuzia dintre valoare
și non-valoare este mult prea des
întâlnită. În acest sens, arhitectul are
și rolul de a-și consilia beneficiarul
(fără a-l manipula) pentru a asigura
premise realiste unor proiecte/
demersuri ce au ca finalitate sporirea
calității vieții, inclusiv prin atributele
mediului natural sa
u fondului construit
la care participă în mod direct. Rostul
lui este să aducă echilibru acolo unde
este chemat.
Dezvoltare comunitară
prin calificare
profesională și
încurajarea economiei
locale
În anumite comunităţi, deşi există
resurse de materie primă valoroase,
acestea sunt neglijate de localnici, iar
meşteşugul prelucrării lor s-a pierdut.
În această situaţie este necesară
calificarea localnicilor astfel încât
să poată avea acces la resurse, în
vederea susținerii unor activităţi de
economie socială capabile să aducă
un venit constant în comunitate.
Acest principiu este extrem de
important atât datorită rezultatului
direct de ieftinire a investiţiei prin
folosirea forţei de muncă locale, cât
şi datorită efectului pe termen lung
pe care îl asigură: în teritoriu rămân
nu numai funcţiunile capabile să
deservească locuirea, ci şi personalul
calificat capabil să le utilizeze.
Acest deziderat se poate atinge
doar printr-o politică inv
estiţională
coerentă, care trebuie să urmeze
niște paşi necesari, cum sunt:
- cooptarea localnicilor adulţi şi lipsiţi
de ocupaţie ca mână de lucru, pentru
început, necalificată;
- aducerea în teritoriu a inginerilor,
maiştrilor, tehnicienilor şi muncitorilor
capabili să instruiască şi să asigure
calificarea lucrătorilor necalificaţi;
- organizarea de cursuri practice şi
cursuri de formare şi calificare pentru
localnici;
- dezvoltarea unor centre de
valorificare
a
materialelor
de
construcție ecologice rurale cu
aplicații în domeniul construcțiilor;
- pe măsura derulării programului,
1
CUPRINS
1. ZONA .......................................................................................4
1.1. Delimitarea geografică a zonelor după unităţi administrativteritoriale .............................................................................4
1.2. Precizarea caracteristicilor specifice zonei ...........................4
2. SPECIFICUL LOCAL ...........
....................................................6
2.1. Peisajul rural-cultural ...........................................................6
2.2. Tipologii de sate ..................................................................7
2.3. Amplasarea pe lot şi sistemul constructiv .............................8
2.4. Tipologiile de acoperişuri, pante, materiale de învelitori,
culori, goluri de iluminare şi ventilare (forme permise) în funcţie de
caracteristicile de climă, relief şi tehnici locale ............................12
2.5. Gabaritele/ proporţiile conforme specificului local sau soluţii
ecologice durabile de secol XXI ..................................................12
2.6. Travei de faţadă conform specificului local, fără a ieşi din
scara clădirilor învecinate, ca percepţie umană ............................12
2.7. Raportul plin/ gol, forma, dimensiunea şi proporţia golurilor
şi a ferestrelor conform specificului local ....................................
.12
3. AMPLASAREA CONSTRUCŢIILOR .....................................13
3.1. Prevederi generale privind intervenţiile noi ...........................13
3.2. Amplasarea în cadrul aşezării ...........................................13
3.2.1. Recomandări ..................................................................13
3.3. POT, CUT, regim de înălţime .............................................14
3.4. Amplasarea construcţiilor şi a amenajărilor noi în afara vetrei
satului – probleme de încadrare în peisaj ...................................15
3.5. Amplasarea construcţiilor şi a amenajărilor noi în vatra
satului – probleme de încadrare pe lot ........................................16
4. AMENAJAREA CLĂDIRILOR EXISTENTE ............................19
5. ELEMENTELE DE CONSTRUCŢIE .......................................22
5.1. ACOPERIŞUL .....................................................................23
5.1.1. Specificul local ............................
...................................23
5.1.2. Recomandări ..................................................................24
A. Construcţii noi cu gabarit mic (< 120 mp), construcţii
noi cu gabarit mediu (120 – 250 mp) şi construcţii noi cu
gabarit mare (peste 250 mp) dispuse în sistem pavilionar
...............................................................................................24
Forma şi volumetria ...............................................................24
Şarpanta.................................................................................26
Învelitoarea (materiale folosite şi compatibilităţi) ....................27
Elementele de iluminare, ventilare, instalaţiile ........................27
B. Construcţii noi cu gabarit mare (250 – 395 mp) de tip
monovolum ..........................................................................28
Forma şi volumetria ...............................................................28
Şarpanta ..............
................................................................. 29
Învelitoarea (materiale folosite şi compatibilităţi) .....................30
Elementele de iluminare, ventilare, instalaţiile ........................30
C. Intervenţii pe construcţiile existente (gabarit mic,
mediu sau mare, dispuse pavilionar sau monovolum) ....30
Forma şi volumetria ...............................................................30
Şarpanta ............................................................................... 31
Învelitoarea (materiale folosite şi compatibilităţi) ....................31
Elementele de iluminare, ventilare, instalaţiile .......................31
5.2. PEREŢII ..............................................................................34
5.2.1. Specificul local ...............................................................34
5.2.2. Recomandări ..................................................................35
A. Construcţii noi cu gabarit mic (< 120 mp) ş
i construcţii
noi cu gabarit mediu (120 – 250 mp) ..................................35
B. Construcţii noi cu gabarit mare (peste 250 mp) de tip
monovolum ..........................................................................36
C. Intervenţii pe construcţiile existente (gabarit mic,
mediu sau mare, dispuse pavilionar sau monovolum) ....37
5.3. FUNDAŢIILE .......................................................................38
5.3.1. Specificul local ...............................................................38
5.3.2. Recomandări ..................................................................38
A. Construcţii noi cu gabarit mic (< 120 mp), construcţii
noi cu gabarit mediu (120 – 250 mp) şi construcţii noi cu
gabarit mare (250 - 395 mp) dispuse în sistem pavilionar
şi
B. Construcţii noi cu gabarit mare (250 – 395 mp) de tip
monovolum...........................................................................38
C. Intervenţii pe construcţiile existente (g
abarit mic,
mediu sau mare, dispuse pavilionar sau monovolum..........38
5.4. TÂMPLĂRIA ŞI GOLURILE ................................................39
5.4.1. Specificul local ...............................................................39
5.4.2. Recomandări ..................................................................41
A. Construcţii noi cu gabarit mic (< 120 mp), construcţii
noi cu gabarit mediu (120 – 250 mp) şi construcţii noi cu
gabarit mare (250 - 395 mp) dispuse în sistem pavilionar...41
B. Construcţii noi cu gabarit mare (250 – 395 mp) de tip
monovolum ..........................................................................42
C. Intervenţii pe construcţiile existente (gabarit mic,
mediu sau mare, dispuse pavilionar sau monovolum)......42
5.5. PORŢILE .............................................................................44
5.6. ELEMENTELE DE FAŢADĂ ................................................46
5.6.1. Specificul local: registre orizontale (
coamă, streaşină,
soclu) şi verticale (prispă, cerdac, foişor, coş de fum etc.) .........46
5.6.2. Recomandări ..................................................................46
A. Construcţii noi cu gabarit mic (< 120 mp), construcţii noi
cu gabarit mediu (120 – 250 mp) şi construcţii noi cu
gabarit mare (250 - 395 mp) dispuse în sistem pavilionar....47
A.1. Marcarea registrelor orizontale .......................................47
A.2. Marcarea registrelor verticale .........................................47
A.3. Frontoanele cerdacurilor şi foişoarelor, timpanele
acoperişurilor în două ape şi decoraţiile de faţadă .................47
A.4. Streşinile, jgheaburile şi burlanele ..................................47
A.5. Materialele pentru finisaje ..............................................47
A.6. Culorile ...........................................................................47
A.7. Tehnologiile .........................................................
...........47
A.8. Ierarhizarea faţadelor .....................................................47
B. Construcţii noi cu gabarit mare (250 – 395 mp) de tip
monovolum ..........................................................................48
B.1. Marcarea registrelor orizontale .......................................48
B.2. Marcarea registrelor verticale .........................................48
B.3. Timpanele şi decoraţiile de faţadă ..................................48
B.4. Streşinile, jgheaburile şi burlanele ..................................48
B.5. Materialele pentru finisaje ..............................................48
B.6. Culorile ...........................................................................48
B.7. Tehnologiile ....................................................................48
B.8. Ierarhizarea faţadelor .....................................................48
B.8. Instalaţiile şi instalaţiile tehnologice ................................48
C
. Intervenţii pe construcţiile existente (gabarit mic, mediu
sau mare, dispuse pavilionar sau monovolum) ...............49
C.1. Marcarea registrelor orizontale .......................................49
C.2. Marcarea registrelor verticale .........................................49
C.3. Frontoanele cerdacurilor şi foişoarelor, timpanele
acoperişurilor în două ape şi decoraţiile de faţadă ..................49
C.4. Streşinile, jgheaburile şi burlanele ..................................49
C.5. Materialele pentru finisaje ..............................................49
C.6. Culorile ...........................................................................49
C.7. Tehnologiile ....................................................................49
C.8. Instalaţiile şi instalaţiile tehnologice (după caz) .............49
5.7. ANEXE GOSPODĂREŞTI/ ACARETURI .............................50
5.7.1. Specificul local ...............................................................
50
5.7.2. Recomandări ..................................................................51
A. Construcţii noi cu gabarit mic (< 120 mp), construcţii
noi cugabarit mediu (120 – 250 mp) şi construcţii noi cu
gabarit mare (250 - 395 mp) dispuse în sistem pavilionar...51
Construcţiile anexe ................................................................51
Spaţiile de trecere/ spaţiile exterioare ....................................51
Scările exterioare ...................................................................51
B. Construcţii noi cu gabarit mare (250 – 395 mp) de tip
monovolum ..........................................................................52
Construcţiile anexe ................................................................52
Spaţiile de trecere/ spaţiile exterioare ....................................52
Scările exterioare ...................................................................52
5.8. AMENAJĂRILE EXTERIOARE ............................
..............52
5.8.1. Specificul local ...............................................................52
5.8.2. Recomandări ..................................................................53
A. Construcţii noi cu gabarit mic (< 120 mp), construcţii noi
cu gabarit mediu (120 – 250 mp) şi construcţii noi cu
gabarit mare (250 - 395 mp) dispuse în sistem pavilionar
...............................................................................................53
Pavimentele exterioare ..........................................................53
Vegetaţia ...............................................................................53
Împrejmuirile ..........................................................................54
Fântânile ...............................................................................54
Echiparea edilitară .................................................................54
B. Construcţii noi cu gabarit mare (250 – 395 mp) de tip
monovolum ....
......................................................................54
Pavimentele exterioare ..........................................................54
Vegetaţia ...............................................................................54
Împrejmuirile ..........................................................................54
Elementele de mobilier rural exterior: bancă, fântână etc. ...55
Iluminarea exterioară .............................................................55
Echiparea edilitară .................................................................55
6. SPAŢIUL PUBLIC ..................................................................55
6.1. Specificul local ..................................................................55
6.2. Recomandări .....................................................................55
Drumuri şi alte căi de acces public .........................................55
Elemente de mobilier rural exterior: bancă, fântână, troi
ă etc.56
Iluminarea exterioară .............................................................57
Reclamele, firmele, inscripţiile, însemnele .............................57
7. PERFORMANŢA ENERGETICĂ ............................................58
7.1. Recomandări .....................................................................58
7.1.1. Sistemele de încălzire (cerinţele de securitate la
incendiu)...................................................................................58
7.1.2. Eficienţa termică (sisteme şi materiale de izolare) ...........59
ANEXE .......................................................................................62
ANEXA 1: Studiu de amplasare şi încadrare în imaginea aşezării
(imagine generală din punct de belvedere, silueta) ...................62
ANEXA 2: Glosar de termeni ....................................................62
ANEXA 3: Legislație..................................................................64
BIBLIOGRAFIE
.........................................................................65
CREDITE IMAGINI .....................................................................66
3
1. ZONA
4
1.1. Delimitarea
geografică a
zonelor după unități
administrativteritoriale
Zona Bucovina de Sud reprezintă
2,98% din teritoriul geografic al
României şi cuprinde cea mai mare
parte din unităţile administrativteritoriale ale judeţului Suceava
(alături de Zona Fălticeni) grupate în
6 zone etnografice cu caracteristici
comune.
Ghidul se aplică în
toate satele de pe
teritorul administrativ al
următoarelor localități:
Zona etnografică Câmpulung
Moldovenesc: oraşul Câmpulung
Moldovenesc (satele aparţinătoare);
comunele:
Breaza,
Cârlibaba,
Ciocăneşti,
Frumoasa,
Fundu
Moldovei,
Iacobeni,
Izvoarele
Sucevei, Moldova Suliţa, Moldoviţa,
Pojorâta, Sadova, Vama şi Vatra
Moldoviţei.
Zona
etnografică
Dorna:
oraşele Broşteni şi Vatra Dornei
(satele aparţinătoare); comunele
Coşna, Cr
ucea, Dorna Arini, Dorna
Candrenilor, Panaci, Poiana Stampei
şi Şaru Dornei.
Zona Etnografică Humor: oraşele
Cajvana, Frasin şi Gura Humorului
(satele aparţinătoare); comunele:
Bălăceana, Berchişeşti, Botoşana,
Cacica, Capu Câmpului, Ciprian
Porumbescu, Comăneşti, Drăgoieşti,
Ilişeşti, Mănăstirea Humorului, Ostra,
Păltinoasa, Pârteştii de Jos, Poieni
Solca, Stulpicani, Todireşti şi Valea
Moldovei.
Zona etnografică Rădăuţi: oraşele
Milişăuţi, Rădăuţi, Solca şi Vicovu de
Sus (satele aparţinătoare); comunele:
Arbore, Bilca, Brodina, Burla, Frătăuţii
Noi, Frătăuţii Vechi, Gălăneşti,
Horodnic de Jos, Horodnic de Sus,
Iaslovăţ, Marginea, Putna, Satu Mare,
Straja, Suceviţa, Ulma, Vicovu de Jos,
Voitinel şi Volovăţ.
Zona etnografică Siret: oraşul Siret
(satele aparţinătoare); comunele:
Bălcăuţi,
Calafindeşti,
Dorneşti,
Dărmăneşti, Grămeşti, Grăniceşti,
Muşeniţa, Şerbăuţi, Zamostea şi
Zvoriştea.
Zona
etnografică
Su
ceava:
oraşele Salcea şi Suceava (satele
aparţinătoare); comunele: Adâncata,
Bosanci, Dumbrăveni, Fântânele,
Hânţeşti, Ipoteşti, Mitocu Dragomirnei,
Moara, Siminicea, Stroieşti, Şcheia,
Pătrăuţi, Udeşti şi Vereşti.
1.2. Precizarea
caracteristicilor
specifice ale zonei
Condiţiile de viaţă prielnice oferite de
natură aşezărilor omeneşti – adăpost,
izvoare de ape, terenuri pentru
agricultură, materiale de construcţie,
accese lesnicioase la principalele căi
de circulaţie – au făcut ca zona să
fie locuită din cele mai vechi timpuri.
Descoperirile arheologice atestă
existenţa locuirii fără întrerupere din
paleoliticul târziu şi din neolitic până
în ziua de azi.
Caracteristici
geografice și climatice
1
Zona Bucovina de Sud ocupă cea
mai mare parte a judeţului Suceava,
având o suprafaţă de 7133,94 km².
Teritoriul zonei este suprapus parţial
Carpaţilor Orientali şi Podişului
Sucevei. Unitatea montană, din
vest, este reprezentată
prin: Munţii
Suhard; parţial Munţii Călimani cu
vârful Pietrosul care are altitudinea
maximă în zonă – 2102 m; Obcinele
Bucovinei; Munţii Bistriţei; Muntele
Sutra din Munţii Stânişoarei. Sistemul
depresionar cuprinde: Depresiunea
Dornelor, cu altitudini cuprinse între
800 m şi 900 m; culoarul depresionar
Câmpulung Moldovenesc – Gura
Humorului; culoarul depresionar al
Moldoviţei. Zonele de podiş şi dealuri,
din est, cu altitudini cuprinse între
300 m şi 500 m, sunt rteprezentate
prin Podişul Sucevei şi Subcarpaţii
Neamţului. Din punct de vedere
geologic, caracteristică zonei este
succesiunea de la vest la est a patru
zone structurale: zona vulcanică,
zona cristalino-mezozoică, zona
flişului şi zona de platformă. Regiunea
montană se caraterizează prin păduri
întinse, pajişti naturale şi bogate
resurse balneo-climaterice. Reţeaua
hidrografică este reprezentată de
afluenţii râului Siret, cele mai întinse
bazine hidrografice fiind cele ale
r
urilor Moldova şi Bistriţa.
Clima zonei este determinată de
aşezarea geografică şi altitudinea
relativ mare a reliefului, fiind mai
aspră comparativ cu zonele aflate
la sud sau cu cele cu altitudini medii
mai mici. Spaţiul geografic aparţine
aproape în egală măsură sectorului
cu climă continentală (partea de est)
şi cea cu climă continental-moderată
(partea de vest). În ansamblu,
clima păstrează multe nuanţe de
continentalism şi excesivitate, care
se manifestă atât în sezonul rece cât
şi în cel cald. Temperaturile medii
anuale sunt de sub 0°C – 6°C în zona
montană şi de 7°C – 8°C în zona
extramontană. Durata iernii este cu
1 – 2 luni mai mare la munte decât în
zona deluroasă. Vânturile dominante,
din direcţia nord-vest, au viteza medie
de 2,6 m/s şi pot atinge maxime mai
mari de 40 m/s.
Caracteristici
demografice şi
etnografice
Zona a avut posibilităţi de
comunicare cu Transilvania şi
Moldova prin intermediul drumurilor
şi râuri
lor. Legăturile s-au manifestat
prin treceri de populaţii în ambele
sensuri, fenomen cu urme evidente
în toponimie. Diversitatea etnică şi
implicit culturală a zonei este rezultatul
migraţiilor dinspre Transilvania (sec.
XV - XVIII) şi dinspre Moldova (sec.
XIX) precum şi a colonizărilor din
timpul ocupaţiei Imperiului AustroUngar.
Populaţia rurală este preponderentă
faţă de cea urbană. Majoritatea
populaţiei este de naţionalitate
română şi de religie ortodoxă.
Sporul natural al populaţiei se
menţine actualmente peste valorile
medii ale ţării.
Ramuri economice
și meșteșugărești
Potenţialul economic este reprezentat
de agricultură, zootehnie, silvicultură,
industrie şi turism. Economia locală
se bazează pe următoarele elemente:
resurse naturale, folosinţe agricole
şi silvice, factorii balneoclimaterici şi
factorii de producţie care valorifică
resursele culturale, naturale şi umane.
În prezent turismul tinde să
devanseze
celelalte
ramuri,
manifestându-se în special sub
formele turismului cultural, rural,
cinegetic şi piscicol.
Ocupaţii principale
- agricultura şi cultura plantelor
textile, practicate în Podişul Sucevei şi
în depresiunile intramontane, la nivel
de subzistenţă şi mai puţin la scară
mare;
Culturile predominante în zonă sunt
cele de cereale (ovăz, orz, secară,
mei, mai puţin grâu şi porumb), de
plante textile (in şi cânepă) şi de
legume (fasole, mazăre, bob, linte,
sfeclă, varză şi cartof), dintre care
cartoful se cultivă intens având
condiţii prielnice.
Diversitatea producţiei agricole
reprezintă caracteristica definitorie a
agriculturii zonei. Exploataţiile agricole
mici sunt definite de practicarea unei
economii de subzistenţă şi a unei
multitudini de culturi agricole.
Produsele sunt puţine iar resursele
de forţă de muncă sunt reduse datorită
migraţiei rural – urban. Surplusurile
sunt convertite în produse necesare
traiului zilnic prin intermediul pieţelo
r
agroalimentare, dar fiind reduse,
acestea nu permit dezvoltarea şi
rentabilizarea exploataţiei agricole
prin achiziţia de mijloace de producţie.
Fărâmiţarea excesivă a terenurilor
agricole are un impact negativ
asupra activităţilor antreprenoriale în
domeniul agricol.
- creşterea animalelor – bovine,
ovine şi cabaline (herghelia de la
Lucina), practicată mai ales în munţi
şi pe dealuri;
Rentabilizarea
activităţilor
zootehnice este în mare măsură
dependentă de gradul de prelucrare
pe plan local a produselor animaliere
în unităţi industriale de capacitate
mică şi mijlocie.
- lucrul la pădure (pădurăritul silvicultura), practicat în zonele
forestiere din munţi şi dealuri;
În cadrul Direcţiei silvice Suceava
a Regiei Naţionale a Pădurilor
există Programul de regenerare a
suprafeţelor de pădure, respectiv
lucrări de împăduriri şi completări,
realizate în campaniile de primăvară.
Fiecare ocol silvic are în administrare
una sau mai multe
pepiniere silvice
care produce toată gama de specii
forestiere necesare lucrărilor de
regenerare.
- butinăritul şi cărăuşia, legate de
silvicultură şi practicate în zonele
etnografice Dorna şi Câmpulung
Moldovenesc.
prelucrarea
pieilor:
zonele
etnografice Suceava şi Câmpulung
Moldovenesc;
- cojocăritul: zonele etnografice
Humor şi Rădăuţi;
- sumănăritul: zonele etnografice
Humor şi Rădăuţi;
- torsul şi ţesutul: în întreaga zonă;
- încondeierea ouălor: zonele
etnografice
Humor,
Rădăuţi,
Câmpulung Moldovenesc şi Dorna;
- alte meşteşuguri practicate de:
cărbunari, miedari (specialişti în must,
bragă, cvas, borş, la Straja), boştinari
(sau goştinari, care prepară ceară).
Ocupaţii secundare:
- plutăritul, practicat în zona
etnografică Dorna;
- culesul din natură, al plantelor din
flora spontană, practicat în întraga
zonă;
- albinăritul (apicultura), favorizat
de flora meliferă, practicat în special
în zonele etnografice Rădău
i, Siret
şi Câmpulung Moldovenesc; mierea
a fost folosită în alimentaţie până
la fabricarea zahărului din sfeclă,
ceara a servit secole de-a rândul la
iluminat iar produsele apicole au fost
întrebuinţate în medicina populară;
- pescuitul, practicat în râurile,
pâraiele şi iazurile din întreaga zonă;
în prezent pescuitul este reglementat;
- vânătoarea, favorizată de pădurile
întinse, de varietatea şi de calitatea
vânatului; în prezent vânătoarea este
reglementată;
- vărăritul, practicat în zona
etnografică Câmpulung Moldovenesc,
favorizat de prezenţa rocilor necesare
ca materie primă;
- mineritul, practicat în zona
etnografică Câmpulung Moldovenesc,
fiind
favorizat
de
prezenţa
zăcămintelor de mangan, argint şi
pirită cupriferă, exploatate în minele
de la Cârlibaba, Pojorâta, Prisaca
Dornei şi Fundu Moldovei;
- pomicultura, practicată pe dealurile
zonei
etnografice
Câmpulung
Moldovenesc, cu condiţii bune pentru
meri, pruni, cireşi,
vişini, nuci; fructele
au constituit o sursă suplimentară
de venituri, prin vânzarea băuturilor
(ţuica, vişinata) şi au avut un rol
important în alimentaţia tradiţională.
1
(Crucea) şi sare (Cacica). Industria,
mai puţin dezvoltată comparativ cu
alte regiuni ale ţării, este dominată de:
prelucrarea lemnului; industria textilă
care valorifică lâna, inul şi cânepa
produse în zonă; industria alimentară
– morărit şi panificaţie, prelucarea
cărnii şi a laptelui.
Meşteşuguri ţărăneşti:
- prelucrarea lemnului (lemnăritul)
practicată de dulgheri, tâmplari,
doniţari, bodnari, sănieri, căruţari,
rotari, în întreaga zonă;
- fierăritul: mai cu seamă în zonele
etnografice Humor, Suceava şi
Câmpulung Moldovenesc;
- extracţia şi prelucrarea (cioplitul)
pietrei: zonele etnografice Siret şi
Câmpulung Moldovenesc, Putna;
- olăritul: mai ales în zonele
etnografice
Humor
şi
Rădăuţi
(Marginea);
Materiale de
construcție
Materialele şi sol
uţiile structurale
utilizate au fost determinate de
condiţiile naturale, dar şi de relaţiile
sociale şi de bunăsterea materială
a locuitorilor. Predominante sunt:
lemnul de răşinoase, în special de
brad, utilizat la pereţi şi acoperişuri;
piatra, folosită pentru realizarea
soclurilor şi a beciurilor; lutul folosit
la pereţii din paiantă şi la tencuieli.
Pentru învelitori
este
folosită
şindrila scurtă şi lungă (draniţa), mai
rar paiele şi stuful. Odată cu evoluţia
economică a comunităţilor se trece la
utilizarea cărămizii pentru pereţi şi a
ţiglei ceramice pentru învelitori.
Utilizarea unor materiale ce rezultă
dintr-un
proces
industrial
sau
caracteristic unor manufacturi, cum
sunt varul stins pastă, cărămida, ţigla
ceramică sau sticla, sunt determinate
direct de bunăstarea materială şi de
nivelul de dezvoltare economică al
comunităţilor.
Industrie
Bucovina de Sud este o zonă
bogată în resurse naturale, atât din
punctul de vedere
al cantităţilor, cât
şi al diversităţii. Resursele minerale
importante
sunt
zăcămintele
de neferoase (zona etnografică
Câmpulung
Moldovenesc,
Leşul
Ursului, Tarniţa), substanţe radioactive
2
5
2. SPECIFICUL
LOCAL
2.1. Peisajul
rural-cultural
6
Peisajul Bucovinei de Sud este
caracterizat de cele două mari unităţi
de relief – Munţii Carpaţi Orientali şi
Podişul Sucevei – fiind dominat de
alternanţa culmilor muntoase sau a
dealurilor domoale şi a văilor sinuoase,
în lungul cărora s-au dezvoltat
aşezările umane. Particularităţile, prin
care peisajul bucovinean se distinge
de peisajele altor zone, sunt Obcinele
Bucovinei (culmi muntoase paralele)
şi depresiunile intramontane cu
aspectul unor şesuri înguste şi lungi,
cunoscute în zonă sub denumirea de
„câmpulunguri”.
Peisajul zonei este conturat de relaţia
dintre mediul natural şi intervenţiile
umane, imaginea fiind dominată de
natură iar prezenţa omului fiind mai
puţin simţită. De r
egulă gospodăriile
se află în vale, lângă albiile râurilor
şi lângă drumurile care le urmează
iar terenurile agricole sau fâneţele
se întind pe dealurile înconjurătoare
sau la poalele munţilor. Peisajul rural
este constituit din aşezări dense
sau dispersate pe văile cursurilor de
apă, uneori extinzându-se risipit pe
pantele munţilor. Pe lângă gospodării,
parcelar şi drumuri, mai există o serie
de elemente ale peisajului cultural
care dau specificitate: fâneţe, livezi,
ogoare, terenuri agricole, căpiţe
de fân, precum şi construcţii anexe
dinafara vetrelor de sat – fânare
(sau „şoproane”), bordeie (locuinţe
sezoniere) și altele. Gardurile din
lemn transparente, care delimitează
proprietăţile, reprezintă de asemenea
specificul locului, mai ales în peisajul
montan.
Având în vedere că Bucovina a
făcut parte din Imperiul Habsburgic
(între anii 1775 şi 1918), zona a fost
locuită, pe lângă români, care au
reprezentaţ majoritatea şi
de alte
etnii – germani, polonezi, slovaci,
ruteni, huţuli, lipoveni, ucraineni,
ceangăi, ţigani, armeni, evrei, ş. a. –
care, în localităţile unde s-au stabilit,
au asimilat cultura locală dar au şi
influenţat-o. Satele s-au dezvoltat
spontan şi organic „răsărite” din
peisaj, cu gospodăriile subordonate
terenului, mai dense în apropierea
cursurilor de apă şi mai rare către
culmi.
Satele amplasate pe culmi sau
greu accesibile sunt caracterizate de
o densitate redusă a gospodăriilor,
acestea înglobând o mare parte
a terenului agricol, astfel că
proprietatea devine un element
definitoriu
în
configurarea
şi
amplasarea construcţiilor (casă şi
anexe – acareturi) pe lot, iar uliţa
(drumul) îşi pierde din importanţă.
În această situaţie gospodăriile sunt
plasate la mare distanţă unele faţă
de celelalte sau adunate în mici
grupuri cu aspectul unor cătune (în
satele huţule), iar trama stradală este
sinuoasă urmând particularităţile
t
erenului.
Vegetaţia
În ceea ce priveşte vegetaţia,
aceasta este foarte variată, de la
suprafeţele cultivate până la păduri
de foioase şi răşinoase care ocupă
o mare parte a teritoriului. În urma
defrişărilor au apărut un număr mare
de păşuni şi fâneţe, exploatate pentru
creşterea animalelor.
Agricultura, creşterea animalelor
şi silvicultura
Agricultua este practicată pe
suprafeţe întinse în depresiunile
intramontane şi în Podişul Sucevei.
Creşterea animalelor este practicată
pe întreg teritoriul zonei, mai intens la
munte. Prezenţa omului în peisaj se
face simţită prin mozaicul culturilor de
tot felul, al căpiţelor şi brazdelor de
fân.
Pe măsură ce ne îndepărtăm de
aşezările rurale, peisajul modelat de
om este înlocuit de peisajul natural –
păşuni şi păduri în care se practică
silvicultura.
Clasificări
Caracterul peisajului este dat de
elementele sale componente, de
relaţia dontre acestea şi elementul
dominant. Elementele
peisajului pot
fi naturale sau realizate de mâna
omului. Peisajul zonei se împarte
în primul rând în peisaje extravilane
(înafara vetrei satului) şi intravilane
(în vatra satului).
4
Sat montan, locuit de o populaţie
majoritar poloneză, în peisaj de iarnă.
Caracterul acestei aşezări este dat de
ordine şi de multiplicarea aceluiaşi
tip de gospodărie, cu mici variaţiuni
(Pleşa, zona etnografică Humor).
2
Ocupaţia de bază a locuitorilor acestui sat montan – creşterea animalelor – este
reprezentată în peisaj prin fâneţele situate în continuarea gospodăriilor, până
sub poala pădurii, împestriţate cu construcţiile anexe sezoniere – fânarele.
5
Silueta unui sat de podiş, caraterizată
de profilurile construcţiilor dominante
ale gospodăriilor – casa şi şura
(Berchişeşti,
zona
etnografică
Humor).
6
1
Perisaj rural caracteristic zonei montane: sate răsfirate de-a lungul văilor
sinuoase; alternanţa păşunilor şi a terenurilor cultivat
e cu pădurile de răşinoase;
garduri transparente pentru delimitarea proprietăţilor; căpiţe de fân.
3
Peisaj de primăvară, din Podişul Sucevei, caracterizat de mozaicul culturilor.
Peisaj extravilan montan. Intervenţia
omului se face simţită prin căpiţele
de fân şi gardurile care delimitează
proprietăţile.
2.2. Tipologii
de sate
În Bucovina de Sud, în funcție de
specificul de relief, se întâlnește
aproape toată gama de tipuri de
așezări: de la satul adunat sau
îngrămădit până la așezări cu
gospodării izolate. Dar, la deal și
la munte, două sunt tipurile de
așezări care predomină: satul
răsfirat, de-a lungul văilor și/ sau
de-a lungul drumurilor (mai ales
în zonele etnografice Câmpulung
Moldovenesc, Humor, Dorna, pe valea
Bistriței și așezările huțule). La satele
risipite de-a lungul văilor râurilor,
din trunchiul principal al așezării se
desprind numeroase ramificații care
merg pe firul afluenților.
Pe valea Moldovei și la
așezările
huțule există o variantă originală a
satelor risipite, a căror particularitate
constă în grupurile de gospodării
distanțate între ele, asfel încât fiecare
grup ar putea constitui o așezare
de sine stătătoare – cătun. Uneori
tipurile de sate se combină în așezări
precum Broșteni (astăzi oraș) - risipit
și compact (zona etnografică Dorna)
sau Arbore – risipit și adunat (zona
etnografică Rădăuți).
7
5
Sat risipit – Dorna Arini (zona etnografică Dorna).
1
Sat răsfirat de-a lungul unei văi şi a
drumului care o urmează – Brodina de
Jos (zona etnografică Rădăuţi).
3
Sat risipit şi adunat – Arbore (zona etnografică Rădăuţi).
2
Sat răsfirat cu aspect tentacular – Pojorâta (zona etnografică Câmpulung
Moldovenesc).
4
Sat adunat – Vama (zona etnografică
Câmpulung Moldovenesc).
6
Aşezare risipită şi compactă, fost sat, actualmente oraş – Broşteni (zona
etnografică Dorna).
2.3. Amplasarea
pe lot și siste
mul
constructiv
8
Conformarea satelor este determinată
de străzile (uliţele) sinuoase, care
urmăresc văile şi panta terenului,
generând
o
imagine
organică,
dezvoltată spontan. În cazul satelor
adunate, compacte şi răsfirate, ritmul
clădirilor şi al loturilor este relativ
uniform, dar fără a fi riguros.
Gospodăria permanentă din vatra
satului cuprinde casa de locuit și
acareturile. La acestea se adaugă
împrejmuirea, poarta și fântâna.
În afara casei, construcțiile gospodăriilor
sunt: șurile-grajd de dimensiuni mari, cu
două-trei încăperi, cu acoperiș în patru
ape în vechime și în două ape începând
din secolul al XIX-lea (zonele etnografice
Câmpulung
Moldovenesc,
Dorna,
valea Bistriței, părțile muntoase ale
zonelor etnografice Rădăuți și Humor);
șura pentru adăpostirea recoltelor de
cereale, fără pod, cu dimensiuni în
plan de 10 - 14 m x 7 - 10 m, cu mici
abateri (zona etnografică Rădăuți, la
șes); șura și grajdul cu dimensiun
i până
la 15 x 10 m și înălțimea până la 5 m
(zona etnografică Suceava); bucătăria
de vară sau „căsuța” (zona etnografică
Câmpulung Moldovenesc), „hâjul” (zona
etnografică Rădăuți), „bordeiul” (valea
Bistriței) cu una sau două încăperi
(zona etnografică Siret) și dimensiuni
în plan în medie de 4 x 5m; „coleșnea”
(adăpostul pentru oi), ”oborocul”
(adăpostul pentru fân) și „clitul”, la
huțulii din nordul zonei; ”șoprul” sau
„corla”, pentru unelte și mijloace
de transport și care face legătura
între șură și casă (zona etnografică
Rădăuți); „standoala” pentru fân (zona
etnografică Câmpulung Moldovenesc);
pivnița, sub una din încăperile casei
(zona etnografică Suceava) și care mai
poartă denumirea de „zâmnic” (zona
etnografică Câmpulung Moldovenesc).
Materialul cel mai folosit la construirea
acareturilor (anexelor) este lemnul
de brad sau de molid în sistemele
constructive cu cununi de bârn
e
orizontale încheiate sau în amnari.
Mai rar se folosește paianta (zona
etnografică Suceava). Pivnițele sunt
construite din piatră și boltite. Pentru
învelitori se folosește mai ales șindrila
și dranița, mai rar paiele de secară și
trestia.
Dispunerea pe lot a construcțiilor
depinde de tipul gospodăriei. La
gospodăriile
cu
suprafețe
mari,
deschise,
construcțiile
sunt
depărtate între ele și depărtate de
laturile lotului, cu casa și șura-grajd
dispuse perpendicular una față de
cealaltă (zona etnografică Dorna).
La gospodăriile în semiocol, cel mai
răspândit tip de altfel, construcțiile
sunt dispuse la limita lotului, pe
două-trei laturi, sau chiar patru,
depărtate
între ele, grupate sau
unite, cu variante: casa în mijlocul
curții cu fațada lungă spre uliță și cu
șura perpendiculară pe casă (zonele
etnografice Rădăuți și Câmpulung
Moldovenesc); casa în față, cu fațada
lungă spre poartă, cu două intrări la
tindă și anexele în
spatele casei (valea
Bistriței, zona etnografică Câmpulung
Moldovenesc); cu toate construcțiile
unite și ansamblul deschis către stradă
(gospodăriile poloneze din zona
etnografică Humor). La gopodăriile
cu ocol întărit, similare celor din
Transilvania, construcțiile sunt unite și
organizate în jurul unei curți interioare
la care se accede prin porți masive
(valea Moldovei, satele de munte
din zona etnografică Rădăuți, valea
Bistriței, zona etnografică Dorna). Se
mai întâlnesc gospodăriile cu curte
dublă (valea Bistriței, mai rar în zonele
etnografice Câmpulung Moldovenesc
și Dorna). În general, în cazul în
care construcțiile componente ale
gospodăriei sunt unite, acestea se
disting prin volumetriile lor – formele
acoperișurilor și jocurile de înălțimi;
excepție fac gospodăriie ceangăilor la
care toate construcțiile sunt adăpostite
de un singur acoperiș în două ape
(zona etnografică Siret). În cadrul
gospodăriilor casele sunt înto
tdeauna
depărtate față de limita lotului la
stradă. Porțile pot fi de înălțimea
împrejmuirii sau monumentale, cu
sau fără ornamente, drănițite, dar mai
simple decât cele maramureșene.
Fântâna, de cele mai multe ori cu
roată, este de obicei închisă și
amplasată la stradă.
Casele, cu dimensiuni variind între
8 x 5 m și 11 x 6 m, întotdeauna pe
parter, sunt construite mai ales din
lemn de brad sau molid, în două
sisteme predominante: cu pereți în
cununi de bârne rotunde încheiate
la colțuri „stânește” sau cioplite pe
Tipologia planimetrică a gospodăriei
1
Planimetria unei gospodării mari, deschise, cu casă de locuit (cu tindă, două
camere, șandrama, magazie și cerdac) și șură-grajd cu o încăpere (prima
jumatate a secolului al XX-lea, zona etnografică Dorna).
două sau patru părți (începând cu
secolul al XIX-lea) încheiate „în coadă
de pește”, „în coadă de rândunică”,
„în zimți” și „în căței”; „în
amnari”, cu
bârne cu secțiuni mai mici montate în
cadre de lemn. La huțuli casele sunt
construite din jumătăți de bârne de
brad, cu partea rotundă spre exterior.
Se mai întâlnește, rar, și paianta
ca sistem constructiv, în podiș și la
șes (zona etnografică Suceava).
Acoperișurile caselor românești au
fost numai în patru ape (”table”) până
în secolul al XIX-lea când a apărut și
acoperișul în două ape ca o influență
a coloniștilor germani, de unde și
denumirea de „casă nemțească”.
Învelitoarea este de cele mai multe ori
din șindrilă scurtă sau lungă (draniță).
Se întâlnesc și învelitori din paie de
secară sau trestie (zonele etnografice
Rădăuți, Siret și Suceava) iar mai
nou din țiglă nesmălțuită și tablă.
Pereții sunt lăsați cu bârnele aparente
la exterior (întotdeauna la casele
huțulilor) sau lipiți cu pământ și văruiți
sau „muruiți” (zugrăviți cu humă).
Uneori pereţii sunt lăsaţi cu bârnele
aparente şi doar ancadramentele
ferestrelor sunt lutuite şi văruite
(zonele etnografice Rădăuți, Dorna și
Câmpulung Moldovenesc). Ferestrele
caselor, în vechime foarte mici și de
obicei pătrate, se măresc cu trecerea
timpului și devin asemenea celor
de la oraș, la început cu tâmplărie
simplă și apoi dublă. Uneori ferestrele
sunt protejate cu grilaje din lemn
(în formă de cruce) sau din fier,
ornamentate
(zona
etnografică
Rădăuți). O trăsătură caracteristică a
zonei Bucovina de Sud este, uneori,
gruparea ferestrelor în perechi, câte
două pe peretele unei încăperi.
Tipurile de locuințe sunt: cu o
cameră (monocelulară); cu tindă și
„casă” (cameră); cu tindă, casă și
cămară; cu tindă, două camere și
polată („șandrama” în sudul zonei);
se întâlnesc toate tipurile posibile de
spații deschise și acoperite (spații
semideschise) tradiționale: prispa,
cu sau fără stâlpi și balustrade;
cerdacul și foișorul (sau pridvorul)
a
mplasat central sau pe colț. Acestea
poartă frecvent denumirea de
”gang” pentru prispa cu stâlpi (zona
etnografică Rădăuți) și cerdac (zona
etnografică Siret). Stâlpii sunt simpli
sau ornamentați prin crestare iar
balustradele de asemenea simple
sau ornamentate prin traforare, la fel
ca frontoanele foișoarelor.
Arhitectura rurală contemporană
este caracterizată de casele/ „vilele”
urbane amplasate inadecvat în cadrul
gospodăriei, fără a ţine cont de modul
de construire autohton. Un aspect
contradictoriu, des întâlnit, este faptul
că acareturile, şi dintre acestea mai
ales şura, sunt construite în manieră
tradiţională, fără nicio legătură cu
noua casă.
2
Gospodărie tradiţională, cu curte dublă, într-un sat montan de tip risipit. De la
stânga la dreapta: şura, casa de locuit, bucătăria de vară (zona etnografică
Câmpulung Moldovenesc).
9
2
Planimetria unei gospodării în semiocol, pe lot dreptunghiular, cu construcțiie depărtate
între ele,
conținând: casa de locuit cu tindă (1), bucătărie (2), casa cea mare (3), cămară (4) și cerdac (5);
acareturi: bucătăria de vară și șura-grajd dezvoltată, cu aria șurii (1), grajdul (2), spațiul pentru
depozitarea furajelor (3) și șandramaua (4). În apropierea limitelor de la stradă se află fântâna cu
cumpănă (zona etnografică Siret).
1
Planimetria unei gospodării complete în semiocol, pe lot dreptunghiular, care conține și grădina de
pomi (17), compusă din: casă de locuit cu prispă (1), tindă (2), casa cea mare (3), bucătărie (4),
bucătărie de vară (5) și cămară (6); acareturi: poiată pentru găini (7), poiată de vară (8), coteț pentru
porci (9), șură pentru oi (10), grajd pentru vite (11), șopron pentru fân (12), magazie (13) și ocol pentru
vite (14). Casa și anexele sunt organizate în jurul ogrăzii (16). La stradă, în dreptul casei se află o
grădină de flori (15) (zona etnografică Suceava).
10
1
Planimetri
a unei gospodării pe lot dreptunghiular care cuprinde și livada (16), cu
construcții mai adunate, alăturate, compusă din: casa de locuit cu gang (1), tindă
(2), camera de locuit (3), „casa cea mare” (4) și cămară (5); acareturile: târla oilor
(6), bordei (7), șură (8), șopru (9), grajd (10), aria standolei (11), șura pentru
lemne (12), șura pentru căsuță și atelaje (13). În curte (15) mai sunt amplasate
fântâna cu roată (14) și grădinița pentru flori (17) (zona etnografică Humor).
2
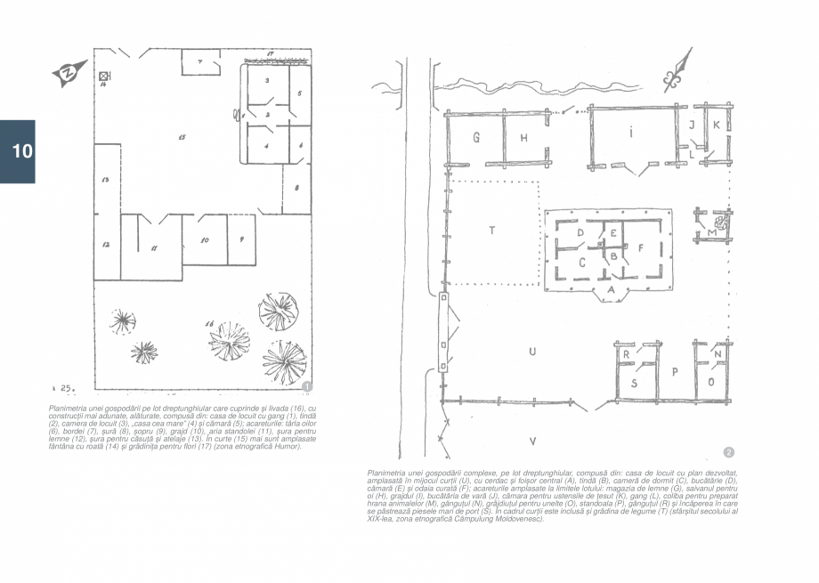
Planimetria unei gospodării complexe, pe lot dreptunghiular, compusă din: casa de locuit cu plan dezvoltat,
amplasată în mijocul curții (U), cu cerdac și foișor central (A), tindă (B), cameră de dormit (C), bucătărie (D),
cămară (E) și odaia curată (F); acareturile amplasate la limitele lotului: magazia de lemne (G), saivanul pentru
oi (H), grajdul (I), bucătăria de vară (J), cămara pentru ustensile de țesut (K), gang (L), coliba pentru preparat
hrana anim
alelor (M), gănguțul (N), grăjdiuțul pentru unelte (O), standoala (P), gănguțul (R) și încăperea în care
se păstrează piesele mari de port (S). În cadrul curții este inclusă și grădina de legume (T) (sfârșitul secolului al
XIX-lea, zona etnografică Câmpulung Moldovenesc).
11
1
Variante de planimetrii ale gospodăriilor polonezilor din zona etnografică Humor,
în semiocol, cu toate construcțiile alăturate la două sau trei limite ale lotului.
Casa de locuit se află în prim-planul ansamblului, față de stradă.
2
Planimetria unei gspodării în semiocol, cu contur neregulat cu casa de locuit
compusă din tindă, cameră, polată pe două laturi și foișor pe colț (zona
etnografică Câmpulung Moldovenesc).
3
Planimetria unei gospodării cu ocol întărit, care conține toate construcțiile organizate în jurul curții interioare (13), astfel:
casa de locuit cu foișor pe colț (1), tindă (2), cameră (3) și șandrama (4); acareturile: adăpost pentru oi
(5), adăpost pentru
lemne (6), bucătărie de vară cu două încăperi (7 și 8), șură (9), standoală (10), celar (11) și spațiu pentru unelte (12) (prima
jumătate a secolului al XIX-lea, zona etnografică Câmpulung Moldovenesc).
12
2.4. Tipologiile
de acoperișuri,
pante, materiale de
învelitori, culori,
goluri de iluminare
și ventilare (forme
permise) în funcție
de caracteristicile
de climă, relief și
tehnici locale
În Bucovina de Sud, acoperișul
tradițional este în patru ape și în
două ape (începând din secolul al
XIX-lea), cu pantă corespunzătoare
reliefului în care se află, cu învelitoare
de șindrilă scurtă sau lungă (draniță).
Alte
materiale
folosite
pentru
alcătuirea învelitorii, în funcție de
particularitățile gografice sunt: paie
de secară sau trestie și, mai nou,
țiglă nesmălțuită sau tablă plană.
Șarpanta este realizată din lemn, cu
crestături și îmbinări cu cuie din lemn,
la construcțiile mai vechi și cu cuie din
metal, la cele mai recente.
După anul 1950, acoperișul a
suferit modificări, la construcțiile noi
nemaiținându-se cont de specificul
local, de însorire, de orientarea
vânturilor etc., decât în foarte mică
măsură, fapt care, în unele situații a
influențat durabilitatea acestora în
timp. La construcțiile noi, în volumetrie
se observă o preponderență a folosirii
acoperișului in două ape, dar sunt și
numeroase exemple de volumetrii
foarte complicate, neizbutite din punct
de vedere compozițional și străine
de tradiție. De asemenea, învelitorile
au început să fie înlocuite cu tablă,
țiglă de beton sau cu alte materiale
inferioare calitativ, ieftine, care nu
și-au dovedit durabilitatea în timp și
care nu sunt neapărat compatibile cu
factorii de mediu în care sunt puse
în operă. Dintre acestea, cea mai
mare amploare, la casele noi, o au
învelitorile din tablă care imită țigla.
Culorile acoperișurilor vechi sunt
naturale: nuanțe de la galben la
gri
și brun, creând o anumită unitate și
încadrare în peisaj. Pentru învelitorile
din materiale noi, culorile sunt adesea
saturate și discrepante în ansamblul
așezării. În general, acoperișul
tradițional, nefiind folosit ca spațiu
locuibil, nu beneficiază de lucarne
sau alte goluri funcționale, cu excepția
„fumarelor” sau „cahlelor” – orificii
pentru evacuarea fumului din pod – iar
mai nou, pentru trecerea coșului de
fum. Construcțiile noi au acoperișurile
închise cu timpane, au lucarne
cu forme diverse, nespecifice sau
rezultate din supradimmensionarea
fumarelor tradiționale, adesea greșit
orientate cardinal și cu numeroase
vicii constructive.
2.5. Gabaritele/
proporțiile
conforme
specificului
local sau soluții
ecologice durabile
de secol XXI
Din punct de vedere volumetric, casa
tradiţională se încadrează în tipul
cu un singur nucleu compoziţional,
în care armonia și echilibrul sunt
date de proporțiile dintre înălțimea
pereților ș
i cea a acoperișului și
de întrepătrunderea dintre spațiile
închise ale locuirii și spațiile
semideschise care fac legătura cu
lumea înconjurătoare. În funcție de
condițiile climatice și de relieful unde
sunt amplasate, la casele de locuit
se întâlnesc următoarele proporții:
înălțimea pereților este mai mică
decât cea a acoperișului (până la
jumătate din înălțimea acestuia);
înălțimea pereților este egală cu cea
a acoperișului; înălțimea pereților este
mai mare decât cea a acoperișului,
dar nu mai mult de o dată și jumătate.
Anexele importante ale gospodăriei,
precum grajdul, șura, bucătăria de
vară ș. a., păstrează, în general,
aceleași proporții.
1
Înălțimea pereților mai mică decât a
acoperișului;
2
Înălțimea pereților egală cu cea a
acoperișului;
3
Înălțimea pereților mai mare decât
cea a acoperișului.
2.6. Travei de
fațadă conform
specificului local,
fără a ieși din
scara clădirilor
învecinate,
ca
percepție umană
Elementele regulatoare care crează
liniile principale ale fațadelor sunt
determinate de linia de coamă, linia
de streașină, spațiile semideschise,
fundație. Atunci când fațadele sunt
ornamentate, ancadramentele ușilor
și ferestrelor sunt de influență urbană
iar motivele decorative executate
în câmpul pereților sunt inspirate
din țesăturile tradiționale. Uneori,
ornamentele, in combinație de douătrei culori, sunt aplicate pe stucaturi.
Un motiv decorativ, des întâlnit și
specific zonei, este cel al eclipsei de
soare, în multiple variante. Fațadele
astfel ornamentate se întîlnesc mai
ales la construcțiile tradiționale
din zonele etnografice Câmpulung
Moldovenesc, Siret, Suceava și
pe Valea Bistriței. Ornamente mai
apar la elementele constructive
din lemn, aparente, realizate prin
cioplire,
crestare
și
traforare,
atât la casele prevăzute cu spații
semideschise caracteristice, cât și
la anexele gospodăriilor. În ultimele
dece
nii, aceste caractere regulatoare
comune s-au diluat din cauza
apariţiei acoperişurilor complicate şi
a dispariţiei spaţiilor semideschise
(prispă, cerdac, pridvor, foișor).
2.7. Raportul
plin/ gol, forma,
dimensiunea
și proporția
golurilor și a
ferestrelor conform
specificului local
Ferestrele întâlnite sunt, de cele
mai multe ori, de formă pătrată sau
de dreptunghi așezat vertical, uneori
dispuse pe fațadă în perechi, cu
două, trei, patru sau șase canaturi.
Deși de influență urbană, acestea au
un rol important în conturarea imaginii
casei tradiționale, oferind specificitate
și individualitate construcțiilor vechi.
Ferestrele (simple sau duble) și
în general tâmplăria (uși, porți)
tradiționale sunt realizate din lemn
aparent sau sunt finisate cu vopsele
pe bază de ulei de in sau pe baza
de rășini; cele ale construcțiilor noi
nu au o coerență de ansamblu și au
deseori culori standard – alb, de cele
mai multe ori (din pricina resurselor
fina
nciare reduse), fiind realizate din
PVC sau acoperite cu o folie cu imitație
de lemn. În unele situații dimensiunile
tradiționale ale ferestrelor nu mai
corespund
necesităților
utilizării
actuale ale spațiilor, fapt ce se
răsfrânge în tendința de augumentare
a dimensiunilor. Ca rezultat al
importurilor nefericite, în ultimele
decenii au apărut goluri de dimensiuni
și forme care nu se încadrează în
specificul arhitecturii locale, care nu
se pot caracteriza printr-un raport
tipic și o coerență locală, de multe ori
dictate de ferestre cumpărate la mâna
a doua. Pentru construcțiile noi se
recomandă a se păstra raportul plin/
gol al construcțiilor tradiționale, ceea
ce nu înseamnă că vor trebui folosite
dimensiunile tradiționale ale golurilor,
ci că pot pot fi creați pereți vitrați de
dimensiuni mari, care să corespundă
unei necesități de iluminat, în acord
cu funcția propusă. Se recomandă
alternarea golurilor mici, pe care le
întâlnim în arh
itectura vernaculară, cu
goluri de dimensiuni mari sau cu pereți
vitrați în întregime. Se recomandă de
asemenea lucarne cu forme simple,
mai ales triunghiulare (asemănătoare,
formal și ca dimensiuni, frontoanelor
tradiționale de deasupra cerdacurilor
și
foișoarelor),
dreptunghiulare
și în formă de „ochi de bou”. Se
recomandă
evitarea
lucarnelor
supradimensionate,
asemănătoare
fumarelor sau cahlelor tradiționale.
NU!
4
AȘA NU: Intervenții „la modă” la o
locuință existentă prin extinderea
supradimensionată
pe
verticală,
folosirea tâmplăriei de PVC albă
la ferestre, a golurilor triunghiulare
pentru ventilarea podului și a tablei
care imită țigla la învelitoare - toate
străine de tradiția locală. Se remarcă
păstrarea balustradei cerdacului și
desființarea stâlpilor acestuia.
DA
5
AȘA
DA:
Utilizarea
limbajului
arhitecturii moderne, fără a afecta
coerența ansamblului și caracterul
tradițional
prin
intervenții
(de
modificare sau ext
indere) la o
locuință existentă transformată în
pavilionul principal al unei pensiuni.
De remarcat ferestrele de dimensiuni
mari, orizontale, pentru iluminarea
adecvată a spațiului comun interior
și foișorul mansardei care păstrează
geometria tradițională a acoperișului.
3. AMPLASAREA
CONSTRUCȚIILOR
Amplasarea pe lot trebuie să
respecte coerenţa de ansamblu în
care se integrează şi se va face
în funcţie de specificul localităţii,
în funcţie de accesibilitate, panta
terenului, orientare, însorire, curenţi
de aer, prezenţa unui curs de apă,
alinieri, fronturi, retrageri de la stradă/
uliţă, număr de clădiri amplasate
pe lot şi distanţele dintre acestea
(ierarhizare).
Modul de amplasare pe parcelă,
reglementat prin PUG, va avea la
bază cutumele locale, prezentul ghid,
Codul Civil, normativele şi legislaţia în
vigoare privitoare la distanţa minimă
dintre construcţii, însorire, siguranţă
şi stabilitate, siguranţă la foc, la data
întocmir
ii proiectului.
În cazul zonelor construite compact,
clădirile se vor alinia la clădirile
existente. Se recomandă retragerea
construcţiilor faţă de aliniament, dacă
se respectă coerenţa şi caracterul
fronturilor stradale.
Nu se recomandă derogări de la
regulamentele locale de urbanism prin
documentații de urbanism PUD/ PUZ.
În situaţia în care se vor întocmi astfel
de documentaţii, acestea vor cuprinde
OBLIGATORIU documentaţia pentru
studiul de amplasament şi încadrare
în volumetria de ansamblu, conform
ANEXEI 1. Se va justifica amplasarea
pe teren cu un plan de încadrare în
zonă (ANEXA 1), care să evidențieze
așezarea tradițională a construcțiilor
pe loturi în zonă.
Se vor identifica ZONE DE RISC
(de exemplu, harta de inundabilitate,
alunecările de teren etc.).
A. Construcţii noi cu gabarit
mic (< 120 mp), construcţii noi cu
gabarit mediu (120 – 250 mp) şi
construcţii noi cu gabarit mare
(250 – 395 mp) dispuse în sistem
pavilionar
Amplasarea
construcţiilor pe lot
se va face cu păstrarea organizării
şi ierarhizării specifice pe parcelă a
construcţiilor, asigurându-se coerenţa
ansamblului și integrarea volumelor
în imaginea generală percepută la
nivelul străzii. Pentru menținerea
sau refacerea identității spațiului
tipic rural, este importantă preluarea
și evidențierea relației şi a dialogului
dintre zonele unei gospodării,
accesele,
traseele,
articulațiile,
gabaritele, orientarea construcțiilor
unele față de celelalte și față de
drum, ca și limbajul arhitectural
echilibrat, volumetria discretă. Pentru
intervenţiile pe construcţii existente
(reconversie şi/ sau extindere),
conversia funcţională şi volumetrică
se va realiza cu păstrarea specificului
local şi integrarea construcţiei şi a
extinderilor în ansamblul organizării
gospodăriei.
Intervenţiile pe construcţiile existente
şi construcţiile noi nu trebuie să se
evidenţieze ca elemente dominante
vizibile din drum sau di
n diverse
puncte de perspectivă şi belvedere
cunoscute la nivel local. Se va justifica
amplasarea pe teren cu un plan de
încadrare în zonă (ANEXA 1), care
să evidențieze așezarea tradițională a
construcțiilor pe loturi în zonă.
B. Construcţii noi cu gabarit mare
(peste 250 mp) de tip monovolum
Construcţiile noi nu trebuie să se
evidenţieze ca elemente dominante
vizibile din drum sau din diverse
puncte de perspectivă şi belvedere
cunoscute la nivel local. Se va
justifica amplasarea pe teren cu un
plan de încadrare în zonă (ANEXA
1), care să evidențieze încadrarea în
ţesutul rural a construcţiilor propuse
şi armonizarea cu scara şi modul de
distribuţie pe lot.
3.1. Prevederi
generale privind
intervențiile noi
Există două soluții de amplasare:
a) în afara vetrei satului – pentru
funcțiuni precum: centre de producție
și de procesare de dimensiuni mari,
mori de apă, grajduri ale fermelor
zootehnice, săli de sport mari etc.;
b) în vatra satului: t
oate celelalte
funcțiuni.
Noile construcții se vor împărți în trei
categorii:
A. Construcţii noi cu gabarit mic
(max. 120 mp) – adecvate pentru
funcţiuni precum: locuinţe individuale
şi
anexele
gospodăreşti
ale
acestora, cabinete medicale, puncte
farmaceutice, instituţii publice, ateliere
meşteşugăreşti sau de producţie de
mici dimensiuni, centre comunitare cu
rol social, agropensiuni.
prin diverse spaţii de articulare;
- pe verticală, prin mansardarea
podului existent, fără a ridica toată
structura acestuia pe un parapet.
B. Construcţii noi cu gabarit mediu
(120 – 250 mp) – adecvate pentru
funcţiuni de tipul: locuinţe individuale
şi anexele gospodăreşti ale acestora,
funcţiuni
educaţionale
(creşe,
grădiniţe, after-school etc.), instituţii
publice, ateliere mecanice, hale de
producţie, ateliere meşteşugăreşti şi
de producţie de dimensiuni medii.
Contrucțiile cu gabarit mic, cele
cu gabarit mijlociu și cele cu gabarit
mare care pot f
i realizate sub
formă de ansamblu pavilionar și
se încadrează în țesutul local, vor
fi amplasate în vatra satului sau la
marginea acestuia, ținând cont de
amplasarea clădirilor din vecinătate,
pentru a asigura însorirea, igiena și
coerența arealului din care vor face
parte. Construcțiile cu gabarit mare,
monovolum, care depășesc scara
locului, vor fi obligatoriu amplasate în
afara satului, la marginea localității,
într-o zonă rezervată prin PUG
sau neocupată de țesutul specific
local, fără să agreseze peisajul și
perspectivele importante către sat.
În general, se recomandă ca acestea
să fie amplasate într-o zonă în afara
conurilor de vizibilitate importante,
chiar la o depărtare mai mare de sat.
C. Construcţii cu gabarit mare
(peste 250 mp):
- realizate sub formă de ansamblu
pavilionar, adecvat implantării în
ţesutul rural a funcţiunilor de tip:
educaţional (şcoli), servicii, birouri,
administraţie, IT etc.;
- realizate sub formă de ansam
bluri
de dimensiuni mari, adecvate pentru
funcţiuni de tipul: educaţional (şcoli,
săli de sport), producţie, activităţi
meşteşugăreşti, depozitare, clădiri
zootehnice, vinării etc.
Ghidul se adresează atât construcţiilor
existente, cât şi construcţiilor propuse.
Atât pentru conversia construcţiilor
existente, cât şi pentru construcţiile
propuse, se recomandă folosirea
tehnicilor, a materialelor tradiţionale
originale şi a meşterilor care încă mai
există în zonă.
Pentru toate funcţiunile aflate în
studiu, se recomandă refolosirea
fondului construit existent: a caselor,
grajdurilor, şoproanelor, şurilor şi a
altor construcţii, care să valorifice
un fond construit remarcabil (există,
de exemplu, problema caselor
tradiţionale abandonate, nu neapărat
listate ca monumente istorice), care
păstrează de cele mai multe ori
caracteristici esenţiale ale arhitecturii
tradiţionale.
Modalităţile de extindere se pot
realiza:
- prin reconversia şi exti
nderea
anexelor: şoproane, grajduri, şuri;
- în continuarea volumului, la aceeaşi
înălţime sau la înălţime mai mică
decât acoperişul existent, păstrând
însă forma acestuia şi respectând
ierarhia volumelor;
- ca volum nou, similar ca formă şi
proporţie, legat de volumul existent
3.2. Amplasarea
în cadrul aşezării
3.2.2. Recomandări:
Amplasarea trebuie să aibă la bază
cutumele
locale,
reglementările
prevăzute
în
regulamentul
de
urbanism specific fiecărei zone în
care se amplasează construcţia şi
Regulamentul General de Urbanism,
cu modificările şi completările
ulterioare.
Nu sunt recomandabile derogări de
la RLU prin documentaţii de urbanism
PUD/ PUZ.
Autorizarea lucrărilor se face cu
respectarea normelor stabilite de
consiliile locale pentru ocuparea
raţională a terenurilor şi pentru
realizarea următoarelor obiective:
- completarea zonelor centrale,
potrivit condiţiilor urbanistice specifice
impuse de caracterul zonei, având
prioritate
instituţiile publice, precum şi
serviciile de interes general;
- valorificarea terenurilor din zonele
echipate cu reţele tehnico-edilitare.
Construcţiile se vor amplasa
corespunzător funcţiunilor pe care
le adăpostesc: funcţiunile cu scară
mare, funcţiunile posibil generatoare
de poluare (ferme de animale,
procesare de biomasă, depozite etc.),
necompatibile în mod direct cu funcţia
de locuire – la periferia satului, în
zonele de dezvoltare a acestuia, în
zone cu grad mare de răsfirare, după
caz. Amplasarea construcţiilor care,
prin natura şi destinaţia lor, pot genera
riscuri tehnologice (determinate de
procesele industriale sau agricole
care prezintă pericol de incendii,
explozii, radiaţii, surpări de teren
sau de poluare a aerului, a apei sau
solului) se face numai pe baza unui
studiu de impact elaborat şi aprobat
conform prevederilor legale.
Se va evita comasarea sau divizarea
parcelelor, ţinându-se cont de
caracteristicile parcelarului istoric
păstrat.
Modificarea (comasarea sau
divizarea) acestuia este permisă dacă
nu se schimbă/ alterează imaginea
spaţiului public.
Amplasarea intervenţiilor în vatra
satului şi/ sau în zonele periferice
se va justifica prin studiul de
amplasament (ANEXA 1).
Autorizarea executării construcţiilor
şi a amenajărilor pe terenurile
agricole din extravilan este permisă
pentru funcţiunile şi în condiţiile
stabilite de lege. Se va urmări
gruparea suprafeţelor de teren
afectate construcţiilor, spre a evita
prejudicierea activităţilor agricole şi
de creştere a animalelor.
NU!
1
AȘA NU: Pierderea caracterului tradițional al unui sat prin creșterea numărului
de clădiri noi supradimensionate.
13
14
A. Construcţii noi cu
gabarit mic (< 120
mp), construcţii noi cu
gabarit mediu (120 –
250 mp) şi construcţii
noi cu gabarit mare
(250 – 395 mp) dispuse
în sistem pavilionar
Se vor amplasa, preferabil în vatra
satului, ţinând cont de ţesultul rural
existent şi de specif
icul local, iar
dacă este cazul modificării planului
parcelar existent (divizare sau
comasare), acest lucru se va realiza
fără modificarea aspectului spaţiului
public. Amplasarea în vatra satului se
va justifica într-un studiu de amplasare
doar pentru clădirile cu gabarit mare.
B. Construcții noi
cu gabarit mare
(peste 250 mp) de
tip monovolum
NU!
Se vor amplasa în exteriorul vetrei
satului, într-o zonă acceptată prin
PUG/ PUZ sau neocupată de ţesutul
specific local, pentru a nu agresa
caracterul rural al zonei. Se vor găsi
soluţii compensatorii de ameliorare
a impactului vizual major asupra
teritoriului: împrejmuirea cu vegetaţie,
acoperirea cu iarbă, îngroparea
parţială în pământ etc. Amplasarea
se va justifica printr-un studiu de
amplasare.
2
AȘA NU: Este interzisă amplasarea în vatra satului a unor construcții
supradimensionate, având o volumetrie ce nu amintește de specificul local.
3.3. POT, CUT, regim
de înălţime
Regulile de amplasare a fu
icul local, iar
dacă este cazul modificării planului
parcelar existent (divizare sau
comasare), acest lucru se va realiza
fără modificarea aspectului spaţiului
public. Amplasarea în vatra satului se
va justifica într-un studiu de amplasare
doar pentru clădirile cu gabarit mare.
B. Construcții noi
cu gabarit mare
(peste 250 mp) de
tip monovolum
NU!
Se vor amplasa în exteriorul vetrei
satului, într-o zonă acceptată prin
PUG/ PUZ sau neocupată de ţesutul
specific local, pentru a nu agresa
caracterul rural al zonei. Se vor găsi
soluţii compensatorii de ameliorare
a impactului vizual major asupra
teritoriului: împrejmuirea cu vegetaţie,
acoperirea cu iarbă, îngroparea
parţială în pământ etc. Amplasarea
se va justifica printr-un studiu de
amplasare.
2
AȘA NU: Este interzisă amplasarea în vatra satului a unor construcții
supradimensionate, având o volumetrie ce nu amintește de specificul local.
3.3. POT, CUT, regim
de înălţime
Regulile de amplasare a fu
... ascunde
Alte documentatii ale aceleasi game Vezi toate
Ghid de arhitectură 71 p | RO
Ghid de arhitectură 66 p | RO