Schalldämmende bewegliche Wände
5 Zertifikate 4 Oberflächen 3 Schienensysteme
Mobile Trennwand TYP 100 / TYP 100 K
Verfahrbare Glastrennwände
7 Referenzen
Bewegliche Trennwand - Systeme
Glastrennwand 2 TYP G 3000
Mobile Trennwand 1 TYP 100 Typ 100 K
6 Ausschreibungstexte
Elementtypen Types of panels
3 2 1
4
5
5
6
7
8
Um das vorhandene Raumangebot optimal ausnutzen zu können,erfordert dies eine Vielfalt an auswählbaren Elementtypen. Normalelemente (2) und Teleskopelemente (1) zum Herstellen des seitlichen Schlusses entsprechen den Anforderungen der modernen Architektur als grundlegende Lösung. Eckelemente (3) ermöglichen die Verfahrbarkeit der Trennwand über Eck. Standardwinkel von 45° und 90° verstehen sich als Gestaltungsvorschläge. Darüber hinaus gehenden Vorstellungen kann individuell entsprochen werden. Türelemente (4,5) sorgen für Durchgängigkeit abgetrennter Räume. Eine lichte Durchgangsbreite von bis zu 1000 mm erfüllt technische Forderungen
am Bau. Komplizierte Grundrisse werden mit Hilfe von T-Elementen realisiert. Transparenz erhalten unsere Trennwände durch Fensterelemente (6,7). Fest angeschlagene Türen (8) vervollständigen das Angebot. Zur separaten Parkung der Elemente sind 1,2 oder 3 flüglige Nischentüren (Register Schienensysteme Blatt 3.7 und 3.8) die optimale Lösung. Flächenbündig in die Wand eingepasst, ermöglicht sie einen dezenten Abschluss.
Optimally to use the available space, requires variety of selectable panel types. Standard panels (2) and LCP panels (1) to realize wall connections, request modern architecture fundamentally only. Corner panels (3) enable crosswise the displacabeness to the partition. Standard angels of 45° and 90° understand themselves as suggestions other conceptions are able. Door panels (4,5) provide for constantness of separeted spaces. Opening width up to 1000 mm to meet technical demands at the building. Complicated sketches by T-panels are implemented. Our partitions
received transparency by glass windows (6,7). Pivot doors (8) complete the supply. For the separate storage of panels a pocket door is an optimal solution. Surface-to be flush with the wall, it enables a smooth termination.
HUFCOR Deutschland GmbH Triftweg 34 | 06847 Dessau-Roßlau www.hufcor.de
Tel.: 0340 540796-0 Fax: 0340 540796-28 info@hufcor.de
Blatt 1.1
11-2009
Bewegliche Trennwand Typ 100 / 100 K
Acoustic operable wall
1 2 4 1 Aluminiumschiene
aluminium anodized track
3
2 kugelgelagerte Rollenwagen mit
Höhenverstellung wheel has percision-ground bearings
5
with adjustabling in height
3 Aluminiumdruckbalken
seal carrier
4 horizontales Aluminiumprofil
horizontal rail
7 8
5 vertikales Aluminiumprofil
vertical rail
6 hochfest verschraubte Eckverbindung
compact screwed edges
7 Exzentergetriebe fährt die Druckbalken
federgelagert aus und ein excenter mechanism with spring supporting
6 8 Bedienhebel 9
handle
9 sehr umfangreiche Oberflächenkollektion
a lot of diff
erent possibilities for panel faces
3 HUFCOR Deutschland GmbH Triftweg 34 | 06847 Dessau-Roßlau www.hufcor.de Tel.: 0340 540796-0 Fax: 0340 540796-28 info@hufcor.de
Blatt 1.2
11-2009
Elementdetails Panel details
- Rollenwagen in Aluminiumschiene mit angepressten Druckbalken
- Exzentergetriebe mit Druckfedern
- statischer Aluprofilrahmen mit hochfest verschraubter Eckverbindung
HUFCOR Deutschland GmbH Triftweg 34 | 06847 Dessau-Roßlau www.hufcor.de
Tel.: 0340 540796-0 Fax: 0340 540796-28 info@hufcor.de
Blatt 1.3
11-2009
Elementbedienung Operated panels
geöffnetes Normalelement
Druckbalken sind eingefahren.
geschlossenes Normalelement
Mit nur einer halben Drehung werden die Druckbalken ausgefahren und von der Exzentermechanik mit hohem Druck an Schiene und Boden gepresst. Vorteile: hohe Standfestigkeit, schnelle und sichere Bedienung, garantiert geschlossenes Element und exzellente Schalldämmung
HUFCOR Deutschland GmbH Triftweg 34 | 06847 Dessau-Roßlau www
.hufcor.de
Tel.: 0340 540796-0 Fax: 0340 540796-28 info@hufcor.de
Blatt 1.4
11-2009
optional Sondertürbreiten
Technische Details acoustic operable wall – technical details Bewegliche Trennwand Typ 100 / 100K Technische Details acoustic operable wall - technical details
Technische Details
Abhängung min. Abhanghöhe von UK Decke Alu – Einhängeprofile in E6/EV1 und RAL 9010 Schienenfarbe Standard Parksysteme Elementstärke in mm (39-54 dB) (57 dB) Empfohlene max. Elementbreite min. Elementbreite Sondermaße auf Anfrage Umrandungsprofile Rahmenfarbe Standard Oberflächenmaterial dB nach Prüfzeugnis (Februar 2006) Laborwert RwP, DIN EN 20140-3:1995 max. Elementhöhe ausfahrbare Dichtungen Verriegelung Elemente Verriegelung Teleskop Teleskoptyp Durchgangsbreite Tür / Doppeltür Durchgangshöhe Tür / Doppeltür d.h. min Elementhöhe Profilzylindergröße Fluchttürbeschläge 1 Punkt Typ 40 180 mm ohne
Typ 100
Typ 100K
2 Punkt Typ 36 150 mm C/L-Profil
Typ 2-12
1 Punkt 2 Pu
nkt 1 Punkt 1 Punkt Typ 38 Typ 36 Typ 40 Typ 38 120 mm 150 mm 180 mm 120 mm I/T/U-Profil C/L-Profil
Typ 2-12
ohne
I/T/U-Profil
Alu – eloxiert E6 / EV1, RAL 9010 Typ 1 Typ 1 siehe Architektenkatalog Schienensysteme 113 mm 100 mm 119 mm 1320 mm 650 mm verdeckt 1320 mm 650 mm sichtbar
Alu eloxiert - E6 / EV 1 Melamin, Schichtstoff, Furnier, Spiegel, Teppich, Tapete, Magnet, Stahlblech (beschreibbar), Akustikoberfläche,… 39,42,43,46,48,49,51,53,54,(57 nur Typ 100) in Abhängigkeit von Gewicht und Oberfläche Horizontal 3 S – Schnell - Verschluss nach oben und unten oben und unten Verschluss vertikal durch Zahnstangengetriebe generell außen liegend Standard: 900 mm/1800 mm Standard: 2100 mm/2100 mm 2430 mm/2500 mm Typ 100: 39-54 dB: 35/40 ; 57 dB: 40/40 Typ 100K: 30/30 möglich, siehe Architektenkatalog
HUFCOR Deutschland GmbH Triftweg 34 06847 Dessau-Roßlau HUFCOR Deutschland GmbH Triftweg 34 | 06847 Dessau-Roßlau www.hufcor.de
Tel.: +49 3 40 5 40 79 60 Fax: +49 3 40 5 40 7
9 6-28
Blatt 1.5
Tel.: 0340 540796-0 Fax: 0340 540796-28 info@hufcor.de
Blatt 1.5
11-2009
optional Sondertürbreiten
Bewegliche Trennwand Typ 100 / 100K Technische Details acoustic operable wall – technical details Bewegliche Trennwand Typ 100 / 100K Technische Details acoustic operable wall - technical details
technical details
suspension min. height between underside of track and underside of ceiling aluminum trim types in aluminum anodized, white powder coating track color standard parking systems panel thickness in mm (39-54 dB) (57 dB) recommended max. element width min. element width Special estate on request frame panel frame standard finishing material on 16 mm particle board certificate in dB (Februar 2006) laboratory value RwP, DIN EN 20140-3:1995 Max. panel height extandably seals mechanical seals locking telescope telescope type generally width passdoor / double door height door/double door min. panel height ordinary lock in size antipanic 2 functions of antipani
c are possible 1 point type 40 180 mm without
Typ 100
1 point type 38 120 mm 2 point type 36 150 mm 1 point type 40
Typ 100K
1 point type 38 2 point type 36 150 mm
180 mm 120 mm without
I/T/U-profile
C/L-profile
I/T/U-profile
C/L-profile
aluminum anodized, white powder coating type 1 type 2-12 type 1 type 2-12 see index register track systems 113 mm 100 mm 119 mm 650 mm not visible
1320 mm
1320 mm 650 mm visible
aluminum anodized - E6 / EV 1 melamine, laminate, veneer, steel (rewritable), mirror, vinyl, magnet, carpet, perforated 39,42,43,46,48,49,51,53,54,(57 only type 100) depends on weight and finishing material horizontal excentric to top and bottom lock vertical with rack and pinion gear general lying outside Standard: 900 mm/1800 mm Standard: 2100 mm/2100 mm 2430 mm/2500 mm Typ 100: 39-54 dB: 35/40 ; 57 dB: 40/40 Typ 100K: 30/30 Possible, see architectural catalogue function B function C
HUFCOR Deutschland GmbH Triftweg 34 06847 Dessau-Roßlau HUFCOR Deutschland GmbH Tr
iftweg 34 | 06847 Dessau-Roßlau www.hufcor.de
Tel.: +49 3 40 5 40 79 60 Fax: +49 3 40 5 40 79 6-28
Blatt 1.6
Tel.: 0340 540796-0 Fax: 0340 540796-28 info@hufcor.de
Blatt 1.6
11-2009
Prinzipdarstellung Prinzipdarstellung Horizontalschnitt Elementverbindung Horizontalschnitt Elementverbindung H o r i z o n tHorizontali o n , p a n e l j o i n t a l s e c t section, panel joint
Oberfläche
panel face
Kunststoffadapterprofil
plastic adapter profile
Wahlweise Magnetstreifen
optional magnetic strip
Mineralwolle
mineral wool
Kunststoffprofil mit Schallschutzgummilippen
( bullnose)
Typ 100
Schaumstoff
r ubber foam
Vertikales Aluminiumprofil
aluminum frame profile
Typ 100K
HUFCOR Deutschland GmbH HUFCOR Deutschland GmbH Triftweg 34 | 06847 Dessau-Roßlau Triftweg 34 06847 Dessau-Roßlau www.hufcor.de
Tel.: 0340 540796-0 Fax: 0340 540796-28 Tel.: +49 3 40 54 07 96-0 Fax:info@hufcor.de +49 3 40 54 07 96-28
Blatt 1.7 Blatt 1.7
11-2009
Prinzipdarstellung Prinzipdarstellung V
ertikalschnitt, Zweipunktaufhängung Vertikalschnitt, Zweipunktaufhängung Vertical section, two point suspension Vertical section, two point suspension
Standard Element standard panel
Typ 100 Typ 100K
25
Aluminiumchiene aluminium track
oberer Druckbalken top seal
SH
25 100K (39-54 dB)
EH
Schallabsorptionswolle (Schallisolierung nach Prüfzeugnis) isolation whool (sound protection to certification)
unterer Druckbalken bottom seal
20 20
113 (39-54 dB) 119 (57 dB)
SH = Lichte Höhe / Schienenhöhe track height EH = Elementhöhe panel height auch als Einpunktanlage möglich also available for one point track
HUFCOR Deutschland GmbH HUFCOR Deutschland GmbH Triftweg 34 | 06847 Dessau-Roßlau Triftweg 34 06847 Dessau-Roßlau www.hufcor.de
Tel.: 0340 540796-0 Fax: 3 40 540796-28 Tel.: +49034054 07 96-0 info@hufcor.de Fax: +49 3 40 54 07 96-28
Blatt 1.8 Blatt 1.8
11-2009
EH
SH
Prinzipdarstellung Prinzipdarstellung Wandanschlag mit Normalelement Wandanschlag mit Normalelement
W al l jWallbjamb h st an da rd p anel a m w i t with standard panel
Typ 100
Oberfläche mit ABS-Kante 2 mm panel face with ABS-edges 2 mm
113 (39-54 dB) Standard 80 EB
Typ 100 K
geschützte Oberflächenkanten, sichtbare Kantenpofile umlaufend panels with visible panel frame
Standard 80
EB
EB = Elementbreite p a n e l width
Detail A: Magnetprofil ab 49 dB detail A : magnetic strips from 49 dB
HUFCOR DeutschlandGmbH Deutschland GmbH Triftweg 34 | 06847 Dessau-Roßlau 06847 Dessau-Roßlau www.hufcor.de
Tel.: 0340 540796-0 Fax: 0340 540796-28 Tel.: +49 3 40 54 07 96-0 info@hufcor.de Fax: +49 3 40 54 07 96-28
Blatt 1.9 Blatt 1.9
11-2009
100
A
119 (57 dB)
Prinzipdarstellung Prinzipdarstellung Horizontalelement Teleskopelement, Teleskopelement, Horizontalschnitt lever closure panel, horizontal section
Typ 100
Standard 80 EB
LB 120 16
ab 48 dB Magnet-Adapterprofil
from 48 dB magnetic strips
Teleskopelement geöffnet
opened lcp
Teleskopelement geschlossen
closed lcp
b
is 48 dB einfacher Teleskopanschlag (TA)
till 48 dB simpel lcp
Typ 100 K
LB Standard 80 EB
ab 49 dB geteilter Teleskopanschlag
from 49 dB divided lcp
120
16
LB = Lichte Breite der Öffnung (Wandbreite)
opening width
EB = Elementbreite
p anel width
Dichtungshub Standard 120 mm
HUFCOR Deutschland GmbH HUFCOR Deutschland GmbH Triftweg 34 Triftweg 34 | 06847 Dessau-Roßlau 06847 Dessau-Roßlau www.hufcor.de
Tel.: 0340 540796-0 Fax: 3 40 54 540796-28 Tel.: +49 0340 07 96-0 Fax: +49 3 40 54 07 96-28 info@hufcor.de
Blatt 1.10 Blatt 1.10
11-2009
125
143
143
Prinzipdarstellung Prinzipdarsellung Vertikalschnitt Türelement Vertikalschnitt Türelement vertical section, door panel vertical section, door panel
Standard Element standard panel
Typ 100
Typ 100 K
oberer Druckbalken to p seal
300
25
Schallabsorptionswolle (Schallisolierung nach Prüfzeugnis) iso la tion w ho ol ( s o u n d p r o tection to c e r tification)
unterer Druckbalken bottom seal EH = Elementhöhe p a n
e l height auch als Einpunktanlage möglich also available as one point track
HUFCOR Deutschland GmbH HUFCOR Deutschland GmbH Triftweg 34 | 06847 Dessau-Roßlau Triftweg 34 www.hufcor.de 06847 Dessau-Roßlau
Tel.: 0340 540796-0 Fax: 0340 540796-28 Tel.: +49 3 40 54 07 96-0 info@hufcor.de Fax: +49 3 40 54 07 96-28
Durchgangshöhe Standard: 2100 mm
EH min. 2430 mm bei 1 flg. Tür
EH min. 2500 mm bei 2 flg. Tür
Blatt 1.11 Blatt 1.11
11-2009
Prinzipdarstellung P r i n Tür,dHorizontalschnitt z i p arstellung pass,door, horizontal section T ü r H o r i z o n t alsch n itt pass door, horizontal section
Typ 100
158
EB Standard =1216 mm 1 flg. Tür
panel width standard=1216 mm single door
Durchgangsbreite Standard =900 mm
opening door width standard = 900 mm 158
113
Typ 100 K
EB Standard =1216 mm 1 flg. Tür
panel width standard =1216 mm single door
Durchgangsbreite Standard =900 mm
158 o p e n i n g d o o r w i d t h s t a n dard = 900 mm 158
HUFCOR Deutschland GmbH HUFCOR
Deutschland GmbH Triftweg 34 Triftweg 34 | 06847 Dessau-Roßlau 06847 Dessau-Roßlau www.hufcor.de
100
Tel.: 0340 540796-0
Tel.: +49 3 40 54 07 96-0 Fax: 0340 540796-28 Fax: +49 3 40 54 07 96-28
info@hufcor.de
Blatt 1.12 Blatt 1.12
11-2009
Prinzipdarstellung Prinzipdarstellung Festangeschlagene Tür, Horizontalschnitt Festangeschlagenedoor, horizontal section pivol Tür, Horizontalschnitt pivot door, horizontal section
max. Elementbreite 1000 mm; max Elementhöhe 3000 mm
panel width max. 1000 mm; panel height max. 3000 mm
Durchgangsbreite = Elementbreite
opening width = panel width 105
Typ 100
113
Wandanschlag
w all jamb
max. Elementbreite 1000mm; max Elementhöhe 3000 mm
panel width max. 1000 mm; panel height max. 3000 mm
Durchgangsbreite Standard = 900 mm
o pening width stand ard = 900 mm 105
Typ 100 K
100
Wandanschlag
wall jamb
HUFCOR Deutschland GmbH HUFCOR Deutschland GmbH Triftweg 34 | 06847 Dessau-Roßlau Triftweg 34 06847 Dessau-Roßlau www.hufcor.de
Tel.: 03
40 540796-0
Tel.: +49 0340 07 96-0 Fax: 3 40 54 540796-28 Fax: +49 3 40 54 07 96-28
info@hufcor.de
Blatt 1.13 Blatt 1.13
11-2009
Türbeschläge Türbeschläge door fittings door fittings
Excentrische Bodenbuchse excentric floor pin
hochwertiger Turnhallen-Beschlag - in Edelstahl und Aluminium handle - available in aluminium anodized in stainless steel
Edelstahlband - überzeugend durch geringe Baugröße hinges in stainless steel - convincing trough small size
HUFCOR Deutschland GmbH Triftweg 34 | 06847 Dessau-Roßlau www.hufcor.de
Tel.: 0340 540796-0 Fax: 0340 540796-28 info@hufcor.de
Blatt 1.14
11-2009
Prinzipdarstellung Eckelement 90°, Horizontalschnitt Prinzipdarstellung corner 90°,Horizontalschnitt Eckelement panel, horizontal section corner panel, horizontal section
Aufbaurichtung
bearing direction
Normalelement Typ 100
normal panel type 100
90 °
Aufbaurichtung
bearing direction Aufbaurichtung
bearing direction
Normalelement Typ 100 K
normal panel type 100K
HUFCOR Deutschland GmbH HUFCOR Deutschland GmbH Triftweg 34 Triftweg 34 | 06847 Dessau-Roßlau 06847 Dessau-Roßlau www.hufcor.de
90 °
Aufbaurichtung
bearing direction
Tel.: 0340 540796-0
Tel.: +49 0340 07 96-0 Fax: 3 40 54 540796-28 Fax: +49 3 40 54 07 96-28
info@hufcor.de
Blatt 1.15 Blatt 1.15
11-2009
Prinzipdarstellung Eckelement 91°-169°, Horizontalschnitt Prinzipdarstellung edge panel 91-169°, horizontal section Eckelement 91°-169°,Horizontalschnitt edge panel 91-169°, horizontal section
Ecklelement Typ 100
edge panel t y pe 100
Aufbaurichtung
bearing direction
91-169°
be ufb ar a u in ri g ch di tu re n ct g io n
A
Eckelement Typ 100 K
edge panel t y pe 100K
Aufbaurichtung
bearing direction
91-169°
HUFCOR Deutschland GmbH HUFCOR DeutschlandGmbH Triftweg 34 Triftweg 34 | 06847 Dessau-Roßlau 06847 Dessau-Roßlau www.hufcor.de
b e ufb ar au in g ric di ht re un ct g io n
A
Tel.: 0340 540796-0
Tel.: +49 0340 07 96-0 Fax: 3 40 54 540796-28 Fax: +49 3 4
0 54 07 96-28
info@hufcor.de
Blatt 1.16 Blatt 1.16
11-2009
Prinzipdarstellung T-Element, Horizontalschnitt Prinzipdarstellung T-connection, horizontal section T-Element, Horizontalschnitt T-connection, horizontal section
Normalelement Typ 100
nor m al panel t ype 100
min. 100 mm
Aufbaurichtung
bearing direction
Normalelement Typ 100 K
nor m al panel t ype 100K
min. 100 mm
Aufbaurichtung
bearing direction
HUFCOR Deutschland GmbH HUFCOR Deutschland GmbH Triftweg 34 Triftweg 34 | 06847 Dessau-Roßlau 06847 Dessau-Roßlau www.hufcor.de
Tel.: 0340 540796-0 Fax: 3 40 54 07 96-0 Tel.: +49 0340 540796-28 Fax: +49 3 40 54 07 96-28 info@hufcor.de
Blatt 1.17 Blatt 1.17
11-2009
Prinzipdarstellung Prinzipdarstellung polygonale Wand, Horizontalschnitt polygonale Wand, Horizontalschnitt polygone partition, horizontal section polygone partition, horizontal section
Typ 100
α
α
Typ 100 K
α
90
°-
α
d if fe re nt a ng le α :
verschiedene Winkel α : 0...10°
0...10°
HUFCO
R Deutschland GmbH HUFCOR Deutschland GmbH Triftweg 34 Triftweg 34 | 06847 Dessau-Roßlau 06847 Dessau-Roßlau www.hufcor.de
Tel.: 0340 540796-0
Tel.: +49 3 40 54 07 96-0 Fax: 0340 540796-28 Fax: +49 3 40 54 07 96-28
90
°-
α
90 °α 90 °α
α
info@hufcor.de
Blatt 1.18 Blatt 1.18
11-2009
Prinzipdarstellung Prinzipdarstellung Elemente mit Glasausschnitt Elemente mit Glasausschnitt Panels with glass windows Panels with glass window s
Standard Türelement 900 x 2100 mm / SIPD - sta nda rd insert pa ss doo r 9 00 x 2 100 mm
NE - Normalelement; Bedienung aus der Fläche / N P - norm al p anel , op erat ion in face 4
NE - Normalelement; Bedienung stirnseitig / N P - norm al p anel , fronta ge o peration
4
900
5
TE - Teleskopelement / L CP - lever closu re p anel
158
2
3
HUFCOR Deutschland GmbH HUFCOR Deutschland GmbH Triftweg 34 | 06847 Dessau-Roßlau Triftweg 34 06847 Dessau-Roßlau www.hufcor.de
1
Tel.: 0340 540796-0 Fax: +49 3 40 54 07 96-0 Tel.: 0340 540796-28
Fax: +49 3 40 54 07 96-28 info@hufcor.de
1
Blatt 1.19 Blatt 1.19
11-2009
5
festangeschlagene Tür / PD - pi vot door
3
2
900
158
Prinzipdarstellung Prinzipdarstellung Estrichtrennung E spavementebreakup trichtr nnung floor floor pavement breakup
Estrichtrennung nach DIN 4109
floor pavement breakup according DIN 4109
Bodenbelag
Verbundestrich
Beton
empfohlen: min.30 mm bis zur Dehnungsfuge
r e c o m m e n d : m i n .3 0 m m till expansion joint
Estrichtrennung nach DIN 4190 bei erhöhter Schalldämmung bauseits empfohlen
floor pavement breakup according DIN 4109 for increased sound protection o n site recom mnened
Bodenbelag
Verbundestrich
Beton
empfohlen: min.70 mm bis zur Dehnungsfuge
recommend: m i n . 7 0 m m t i l l e x p a n s i o n j o i n t
HUFCOR Deutschland GmbH HUFCOR DeutschlandGmbH Triftweg 34 Triftweg 34 | 06847 Dessau-Roßlau 06847 Dessau-Roßlau www.hufcor.de
Tel.: 0340 540796-0 Fax: 3 40 54 540796-28 Tel.: +49 0340 07 96-0 Fax: +49 3 40 54 07 96
-28 info@hufcor.de
Blatt 1.20 Blatt 1.20
11-2009
Prinzipdarstellung Prinzipdarstellung Bodenschott B o d e n s c h partition bottom o t t bottom partition
6
Rohfußboden-FFB
6 mm foam rubber ,bonded holohedral with plywood panel bonded plywood panel bonded plywood panel 3,5 mm acoustic mat insulation stripe floor pavement flooring
3 1 5 4
6
Beton
6
7
112
Bodenschott:
Pos.1 Pos.2 Pos 5 Pos.7 6mm Moosgummi, vollflächig mit Multiplexplatte verklebt verleimte Multiplex Sperrholzplatte verleimte Multiplex Sperrholzplatte 3,5 mm Schwermatte
bottom partition:
pos. 1 pos. 2 pos. 5 pos. 7 -
bauseits:
Pos.3 Pos.4 Pos.6 Dämmstreifen Estrich Bodenbelag
on site:
pos. 3 pos. 4 pos. 6 -
HUFCOR DeutschlandGmbH Deutschland GmbH Triftweg 34 | 06847 Dessau-Roßlau 06847 Dessau-Roßlau www.hufcor.de
Tel.: 0340 540796-0 Fax: 3 40 54 540796-28 Tel.: +49 0340 07 96-0 Fax: +49 3 40 54 07 96-28 info@hufcor.de
Blatt 1.21 Blatt 1.21
11-2009
Prinzipdarstellung Prinzipdarstellung Magnetschalt
kontakt Magnetschaltkontakt magnetic switch m agneti c switch
16
20
Magnetmontage im Teleskopanschluss zur Steuerung von z.B. Licht- oder Klimatechnik ( in Abhängigkeit vom Aufbauzustand der Trennwand)
magnetic swith for LCP, as control system for e.g. lighting systems or air conditioning
Typ 100
OK Teleskop / top LCP
25 20
Typ 100 K
OK Teleskop / top LCP
UK Schiene / track
OK Teleskop / top LCP
Ok Element
TA
305 256.5
354
120
354
305 256.5
325
100 25 37 25 120 M4x20 25 127
M 4x20
46
60
143
Magnetkontakt, ohne Überbrückungsschutz, 4 - Draht-Anschluss (gelb/grün Sabotage Schutz), Kontakte können in jede Ruhestromgruppe eingeschleift werden. Farbe: Aluminium Schaltabstand: ca. 20 mm, Betriebstemp. : -25°C bis +70°C Schaltleistung: 10W max. 12 V; DC ( nur für Deutschland) Schutzart nach DIN 40 050: IP67 U mw e ltk la s s e n a ch VdS: III
25
magnetic switch withoute fuse four wire system connection with standby current color : aluminum sensing distance : ca.
20 mm working temperature: -25°C to +70°C breaking capacity : 10W
HUFCOR Deutschland GmbH HUFCOR Deutschland GmbH Triftweg 34 Triftweg 34 | 06847 Dessau-Roßlau 06847 Dessau-Roßlau www.hufcor.de
Tel.: 0340 540796-0
Tel.: +49 0340 540796-28 Fax: 3 40 54 07 96-0 Fax: +49 3 40 54 07 96-28
info@hufcor.de
Blatt 1.22 Blatt 1.22
11-2009
120
Prinzipdarstellung Prinzipdarstellung Plattenverbindungen Plattenverbindungen panel joints panel joints
- als Standard mit Plattenstoß ausgebildet - Wandanschlüsse, Türblätter und Türzarge werden nicht mit einer Fuge versehen - ganzflächig oder auf Teilfächen anwendbar - andere Fugenbilder (Schattenfuge) möglich
- as standard with visible joints - the wall jambs and door wings without joints - total surface or to partly applicably - other punching and slitting (shaddow joints) possible
Plattenstoß H-Profil
visible joint
Schattenfuge H-Profil
s h a d o w joint
innenliegendes Profil
profile, inside
HUFCOR Deutschland GmbH HUFCOR De
utschland GmbH Triftweg 34 Triftweg 34 | 06847 Dessau-Roßlau www.hufcor.de 06847 Dessau-Roßlau
Fax: +49 3 40 54 07 96-28
Tel.: 0340 540796-0 Fax: 0340 540796-28 Tel.: +49 3 40 54 07 96-0 info@hufcor.de
Blatt 1.23 Blatt 1.23
11-2009
Δx
Fluchttürfunktionen Fluchttürfunktionen Panic doors Panic doors
Panikschlösser werden in Fluchttüren verwendet. Verriegelte Fluchttüren müssen von innen ohne Schlüssel leicht geöffnet werden können. In Panikschlössern dürfen keine Schließzylinder mit Knauf, Drehknopf oder einer anderer Handhabe verwendet werden. Drücker und Schlüssel dürfen nicht gleichzeitig betätigt werden. Es muss stets zuerst der Schlüssel betätigt werden. Bei Panikschlössern darf kein Schlüssel im Schloss bzw. Schließzylinder stecken bleiben. Die einflüglige Fluchttür mit beidseitiger Drückerbetätigung ist im Normalfall unverschlossen zu nutzen wie eine normale Zimmertür.
Außendrücker
Panik B
Kommt in 90% aller Fälle zum Einsatz und bedeutet
: 1. Sachwerte schützen (autorisierte Personen entriegeln mit Schlüssel nach Panikfall) 2. Leben retten Nach der Panikbetätigung von innen beibt der Außendrücker im Leerlauf. Die Offenstellung kann über den Schlüssel dauerhaft eingestellt werden.
Falle Leerlauf
Riegel
Außendrücker
Panik C
Seltenster Einsatz und bedeutet: 1. Sachwerte schützen (autorisierte Personen verriegeln von außen nach Panikfall mit Schlüssel) 2. Leben retten
Riegel wird eingezogen
Leerlauf
Nach der Panikbetätigung von innen beibt der Außendrücker im Leerlauf. Die Offenstellung ist grundsätzlich nur mit dem steckenden Schüssel zu erreichen.
Außendrücker
Falle wir eingezogen
Panik D
Kommt selten zum Einsatz, kann nur Leben retten. Nach dem Panikfall bleiben alle Sachwerte ungeschützt, die Tür ist auch im Panikfall sofort wieder nutzbar. Nach der Panikbetätigung von innen kann die Tür stets von außen ohne Schlüssel geöffnet werden.
HUFCOR Deutschland GmbH Triftweg 34 | 06847 Dessa
u-Roßlau www.hufcor.de
Tel.: 0340 540796-0 Fax: 0340 540796-28 info@hufcor.de
Blatt 1.24
11-2009
moViSTA_091022.FH11 Thu Oct 22 21:19:52 2009
Seite 1
HUFCOR Deutschland GmbH Triftweg 34 06847 Dessau-Roßlau Telefon: 0340 540796-0 Telefax: 0340 540796-28 www.hufcor.de
Bewegliche Trennwand - Systeme
ViSTA : mo NEU
maximale Elementhöhe 3500 mm
HUFCOR moViSTA Die neue Generation mobiler Trennwandtechnik, kombiniert großzügige Transparenz mit hohem Schallschutz.
moViSTA - mit automatischer Verriegelung der Elemente (ESS) moViSTA - mit Jalousie ausführbar (alle Funktionen über Fernbedienung steuerbar) moViSTA - mit Vollwandelementen und Durchgangstüren kombinierbar moViSTA - zertifizierter Schallschutz nach DIN EN ISO 717-1 bis RwP 47 dB
Optional mit Jalousie
HUFCOR mobile Trennwandsysteme
SCHNELL STANDFEST SICHER
11-2009
Prinzipdarstellung Prinzipdarstellung moViSTA Elemente moViSTA Elemente moViSTA panels moViSTA panels
moVISTA Normalelement standard
panel (SP)
moVISTA Teleskopelement lever closure panel (LCP)
Elementhöhe moViSTA-Elemente max. 3500 mm panel height moViSTA panels max. 3500 mm
Normalelement standard panel (SP)
moVISTA Normalelement standard panel (SP)
Türelement pass door (ISPD)
moVISTA Normalelement standard panel (SP)
Teleskopelement lever closure panel (LCP)
moViSTA-Elemente in Kombination mit Vollwandelementen Typ 100 oder 100K moViSTA panels in combination with standard panels Typ 100 or 100K
HUFCOR Deutschland GmbH HUFCOR Deutschland GmbH Triftweg 34 | 06847 Dessau-Roßlau Triftweg 34 06847 Dessau-Roßlau www.hufcor.de
Tel.: 0340 540796-0 Fax: 0340 540796-28 Tel.: +49 3 40 54 07 96-0 info@hufcor.de Fax: +49 3 40 54 07 96-28
Blatt 1.25 Blatt 1.25
11-2009
Prinzipdarstellung Prinzipdarstellung moViSTA Elemente, Horizontalschnitte moViSTA Elemente Horizontalschnitte moViSTA panels, horizontal section moViSTA panels, horizontal section
131
vertikaler Druckbalken
moViSTA Normalelement
Normalelem
ent Typ 100
moViSTA Normalelement
Normalelement Typ 100K
HUFCOR Deutschland GmbH HUFCOR Deutschland GmbH Triftweg 34 | 06847 Dessau-Roßlau Triftweg 34 06847 Dessau-Roßlau www.hufcor.de
Tel.: 0340 540796-0 Fax: 0340 540796-28 Tel.: +49 3 40 54 07 96-0 info@hufcor.de Fax: +49 3 40 54 07 96-28
Blatt 1.26 Blatt 1.26
11-2009
113
97
Teleskopanschlag
moViSTA Normalelement
moViSTA Teleskopelement
Wandanschlag
97
Prinzipdarstellung Prinzipdarstellung moViSTA Vertikalschnitt moViSTA Vertikalschnitt moViSTA vertical section m oVi ST A verti cal section
Schalldämmwert RwP
sound value
ESG /ESG = 45 dB ESG/VSG = 47 dB
HUFCOR Deutschland GmbH HUFCOR Deutschland GmbH Triftweg 34 Triftweg 34 | 06847 Dessau-Roßlau 06847 Dessau-Roßlau www.hufcor.de
Tel.: 0340 540796-0 Tel.: +49 3 40 54 07 96-0 Fax: 0340 540796-28 Fax: +49 3 40 54 07 96-28 info@hufcor.de
Blatt Blatt 1.27
11-2009
HUFCOR Deutschland GmbH Triftweg 34 06847 Dessau-Roßlau Telefon: 0340 540796-0 Telefax: 0340 5407
96-28 www.hufcor.de
für T
system lungs rri0Kge e 10 e 3-Sp V 0 / y 10
Bewegliche Trennwand - Systeme
Fraunhofer Institut für Bauphysik: - Zertifizierter Schallschutz von RwP 39 57 dB - Zertifizierter Feuerwiderstand bis 30 Minuten TÜV geprüft: - ISO 9001:2008 - TÜV-Produktzertifikat - DIN 31000: Sicherheitsgerechtes Gestalten technischer Erzeugnisse - DIN 18032: Ballwurfsicherheitstest - regelmäßige Fertigungsstättenüberwachung
-
Hochwertige, eloxierte Aluminiumschiene Wartungsfreie, kugelgelagerte, laufruhige Rollenwagen
3-S-Verriegelungssystem Diese Exzenter-Technik erlaubt das
Diese Exzenter-Technik erlaubt das Öffnen oder Schließen der Elemente Öffnen2oder Schließen derSekunden. mit 1/ Drehung in nur 3 Elemente mit 1/2 Drehung in nur 3 Sekunden.
3-S-Verriegelungssystem
HUFCOR mobile Trennwandsysteme
SCHNELL STANDFEST SICHER
11-2009
ESS_091022.FH11 Thu Oct 22 21:16:19 2009
Seite 1
HUFCOR Deutschland GmbH Triftweg 34 06847 Dessau-Roßlau
Telefon: 0340 540796-0 Telefax: 0340 540796-28 www.hufcor.de
Bewegliche Trennwand - Systeme
g riegelun er R ESS automatischer Vp moViSTA UFCOhnik mit Ty H c 0K und te 10 nnwand für Typ 100 / Tre mobile
EU: N
230 V
Fraunhofer Institut für Bauphysik: - Zertifizierter Schallschutz von RwP 39 57 dB - Zertifizierter Feuerwiderstand bis 30 Minuten TÜV geprüft: - ISO 9001:2008 - TÜV-Produktzertifikat - DIN 31000: Sicherheitsgerechtes Gestalten technischer Erzeugnisse - DIN 18032: Ballwurfsicherheitstest - regelmäßige Fertigungsstättenüberwachung
Schlüsselschalter
0
-
Hochwertige, eloxierte Aluminiumschiene Wartungsfreie, kugelgelagerte, laufruhige Rollenwagen
HUFCOR mobile Trennwandsysteme
SCHNELL STANDFEST SICHER
11-2009
ESS_tech_091022.FH11 Thu Oct 22 21:21:22 2009
Seite 1
Trennwand mit automatischer Verriegelung
HUFCOR Deutschland GmbH Triftweg 34 06847 Dessau-Roßlau Telefon: 0340 540796-0 Telefax: 0340 540796-28 www.hufcor.de
Typ 100 / 100K - ES
S
Technische Beschreibung
Die Ausführungsvariante ESS ist eine hochentwickelte, mikroprozessorgesteuerte Bedienung der Druckbalken. Sie erhalten unsere Trennwände mit der Ausführungsvariante ESS als schlüsselfertige Leistung. Die zertifizierte elektronische Steuerung überwacht die Funktion der Trennwandelemente. Unsere ESS hat den elektromagnetischen Verträglichkeitstest (EMV) für Industrie und Wohnraum bestanden und ist mit dem CE Zeichen gekennzeichnet. Unser Unternehmen ist durch den TÜV nach der neuen DIN EN ISO 9001:2008 zertifiziert. Unsere Produkte sind vom TÜV nach DIN 31000 geprüft und die Fertigung wird in regelmäßigen Abständen vom TÜV überwacht.
Steckdose
0
Steuerkasten
Schlüsselschalter
0
0
Lieferumfang und Montageleistung: a) ESS Modul je Trennwandelement jedes Modul wird durch einen Mikroprozessor gesteuert die Motoren Made in Germany sind funkentstört b) Notbedienung mittels Akku (bei Stromausfall) sowie manuelle Notbedienung c) Magnet
zur Bedienung der Sicherheitsschaltung für das Teleskopelement d) Steuerkasten inkl. Netzteil (Maße: 200 x 300 x 155) e) Schlüsselschalter als Unter- oder Aufputzvariante f) Verlegung der Kabel und Anschluss an die bauseits erbrachten Leistungen Bauseitige Leistungen: a) Sie bestimmen mit Unterstützung unseres Fachberaters den Standort des Netzteils, der Schukosteckdose und des Schlüsselschalters b) Schukosteckdose 230V (Empfehlung: im Nahbereich des Netzteiles) c) Unterputzdose für Schlüsselschalter mit Kabel 2polig ( 2,5 mm² ) zum Netzteil d) Kabel 2polig ( 2,5 mm² ) vom Wandanschlag zum Schlüsselschalter
HUFCOR mobile Trennwandsysteme
SCHNELL STANDFEST SICHER
Magnet für Sicherheitsschaltung
11-2009
ESS_tech_091022.FH11 Thu Oct 22 21:21:22 2009
Seite 2
Trennwand mit automatischer Verriegelung
HUFCOR Deutschland GmbH Triftweg 34 06847 Dessau-Roßlau Telefon: 0340 540796-0 Telefax: 0340 540796-28 www.hufcor.de
Typ 100 / 100K - ESS
Technische Beschrei
bung
Sind die bauseitigen Leistungen zum Zeitpunkt der Schienenmontage noch nicht erbracht, wird unser geschultes Montagepersonal, in Abstimmung mit der Bauleitung den Standort des Netzteiles und des Schlüsselschalters bestimmen und die Leistungen auf Putz montieren. Ist eine Abstimmung auch am Tag der Montage nicht möglich, werden die Leistungen im Umkreis von 2 Metern des Wandanschlages montiert. Eine Abnahme und Einweisung erfolgt am Tag der Elementmontage. ESS die neue Bedienerfreundlichkeit: Das Schließen der Elemente durch das ESS Modul erfolgt nach dem Andocken des ersten Elementes an den Wandanschlag. Die stirnseitigen Kontakte versorgen das Element mit der Kleinspannung und dem Steuerimpuls. Die horizontalen Druckbalken fahren automatisch aus. Während des Schließvorganges kann der Nutzer bereits das nächste Element aus der Parkung holen und dann an das bereits geschlossene Element andocken. So wird ein Element nach dem anderen aufgestellt. Das letzte Element, das Telesk
opelement, wird durch eine speziell entwickelte Sicherheitsschaltung bedient. Die vertikalen Druckbalken werden mittels eines im Lieferumfang enthaltenen Magnetes an einem gekennzeichneten Schaltpunkt ausgefahren. Das Schließen der Druckbalken kann jederzeit durch Entfernen des Magnetes am Schaltpunkt unterbrochen werden. Diese Sicherheitsschaltung ist besonders für mobile Trennwände in Schulen und Kindergärten enorm wichtig. Verlangen Sie deshalb nur automatisch schließende Wände mit dieser Sicherheitsfunktion. Das Öffnen der Anlage erfolgt in umgekehrter Reihenfolge. Viel Spaß mit der neuen Generation mobiler Trennwandtechnik von HUFCOR!
Beachten Sie auch unser neues Produkt HUFCOR moViSTA. Die moViSTA vereinigt großzügige Transparenz mit hohem Schallschutz und ist selbstverständlich mit der automatischen Verriegelung ausgestattet.
HUFCOR mobile Trennwandsysteme
SCHNELL STANDFEST SICHER
11-2009
Typ 100 / 100K 3-S und ESS
mobile Trennwandtechnik
HUFC
OR Deutschland GmbH Triftweg 34 06847 Dessau-Roßlau Telefon: 0340 540796-0 Telefax: 0340 540796-28 www.hufcor.de
Verriegelungssysteme
tem ngssys gelu Verrie 3-S-
NEU: H UFCO R
Fraunhofer Institut für Bauphysik Zertifizierter Schallschutz von RwP 39 57 dB MFPA Leipzig
ESS
Zertifizierter Feuerwiderstand bis 30 Minuten TÜV geprüft ISO 9001:2008 TÜV-Produktzertifikat DIN 31000 Sicherheitsgerechtes Gestalten technischer Erzeugnisse DIN 18032 Ballwurfsicherheitstest regelmäßige Fertigungsstättenüberwachung
3-S-Verriegelungssystem Diese Exzenter-Technik erlaubt das Öffnen oder Schließen der Elemente mit 1/2 Drehung in nur 3 Sekunden.
ESS-Verriegelungssystem Mikroprozessor gesteuerte Hubmotoren öffnen und schließen die Elemente automatisch.
HUFCOR mobile Trennwandsysteme
SCHNELL STANDFEST SICHER
11-2009
100K_1p_091026.FH11 Mon Oct 26 17:06:48 2009
Seite 1
Mobile Trennwand Typ 100 / 100K
Bewegliche Trennwand - Systeme
1-Punkt-Aufhängung
Bedienungs
anleitung
Ihr Kundenservice: +49 340 540796-13
1
Öffnen 2
Beim Verfahren der Elemente achten Sie bitte auf die 90° Position.
Nach dem Entriegeln des Elements sofort in die 90°- Position drehen, um Beschädigungen zu vermeiden.
!
3
7
90°
!
6
Tür:
4 5
Schließen
der mobilen Trennwand in umgekehrter Reihenfolge. Verankern der Elemente durch Rechtsdrehung des Bedienhebels. 90°
Element mit separate Beschreibung bitte auf der Rückseite
beachten
!
!
11-2009
100K_1p_091026.FH11 Mon Oct 26 17:06:48 2009
Seite 2
Mobile Trennwand Typ 100 / 100K
Bewegliche Trennwand - Systeme
HUFCOR Deutschland GmbH Triftweg 34 06847 Dessau-Roßlau Tel.: 0340 540796-0 Fax: 0340 540796-28 E-Mail: info@hufcor.de Internet: www.hufcor.de Bei geöffnetem Türflügel Bedienhebel in Zarge nach links drehen.
1-Punkt-Aufhängung
Ihr Kundendienst: +49 340 540796-13
Bedienungsanleitung Element mit Türflügel
2 3
1
Türflügel öffnen. Schieber in Zarge nach unten bewegen, Schallschutzsicherung w
ird gelöst. Türflügel schließen!
Öffnen
7
Türelement in Parkposition schieben - 90° beachten. Nach dem Verfahren des Türelementes Verriegelung im Nachbarelement lösen.
Bedienhebel stirnseitig nach links drehen.
4
6
5
Verriegelung des Elementes lösen.
Schließen
der mobilen Tür in umgekehrter Reihenfolge. 11-2009
100K_1p_091026.FH11 Mon Oct 26 13:37:12 2009
Seite 1
HUFCOR Deutschland GmbH Triftweg 34 06847 Dessau-Roßlau Telefon: 0340 540796-0 Telefax: 0340 540796-28 www.hufcor.de
Trennwand mit automatischer Verriegelung
Typ 100 / 100K-ESS
Bedienungsanleitung 1-Punkt-Aufhängung
Ihr Kundenservice: +49 340 540796-13 Nach dem Entriegeln des Elements sofort in die 90°- Position drehen, um Beschädigungen zu vermeiden.
1
2
0
!
Beim Verfahren der Elemente achten Sie bitte auf die 90° Position.
Öffnen
Schlüsselschalter
90°
3
5
Schließen
der mobilen Trennwand in umgekehrter Reihenfolge.
0
4
Schlüsselschalter auf Schließen stellen. Automatische Verriege
lung beim Anschlag der Elemente. Teleskopelement mit Sicherheitsschaltung Magnet bitte halten bis horizontale Druckblaken schließen.
Element mit separate Beschreibung bitte auf der Rückseite
Tür:
beachten
!
!
11-2009
100K_ESS_1p_TUER_091026.FH11 Mon Oct 26 17:25:48 2009
Seite 1
HUFCOR Deutschland GmbH Triftweg 34 06847 Dessau-Roßlau Telefon: 0340 540796-0 Telefax: 0340 540796-28 www.hufcor.de
Trennwand mit automatischer Verriegelung
Typ 100 / 100K - ESS
Bedienungsanleitung 1-Punkt-Aufhängung Element mit Türflügel
Ihr Kundenservice: +49 340 540796-13
Türflügel öffnen. Schieber in Zarge nach unten bewegen, Schallschutzsicherung wird gelöst.
1
Türflügel schließen!
2
Öffnen
5
Türelement in Parkposition schieben - 90° beachten. Nach dem Verfahren des Türelementes Verriegelung im Nachbarelement lösen.
4
3
Verriegelung des Elementes lösen.
der mobilen Tür in umgekehrter Reihenfolge.
Schließen
11-2009
100K_2p_091026.FH11 Mon Oct 26 17:12:59 200
9
Seite 1
Mobile Trennwand Typ 100 / 100K
Bewegliche Trennwand - Systeme
2-Punkt-Aufhängung
Bedienungsanleitung
Ihr Kundendienst: +49 340 540796-13
1
Öffnen 2
3
8
4
7
Tür:
5 6
Schließen
der mobilen Trennwand in umgekehrter Reihenfolge. Verankern der Elemente durch Rechtsdrehung des Bedienhebels.
Element mit separate Beschreibung bitte auf der Rückseite
beachten
!
!
11-2009
100K_2p_091026.FH11 Mon Oct 26 17:12:59 2009
Seite 2
Mobile Trennwand Typ 100 / 100K
Bewegliche Trennwand - Systeme
HUFCOR Deutschland GmbH Triftweg 34 06847 Dessau-Roßlau Tel.: 0340 540796-0 Fax: 0340 540796-28 E-Mail: info@hufcor.de Internet: www.hufcor.de Bei geöffnetem Türflügel Bedienhebel in Zarge nach links drehen.
2-Punkt-Aufhängung
Ihr Kundendienst: +49 340 540796-13
Bedienungsanleitung Element mit Türflügel
2 3
Türflügel schließen!
1
Türflügel öffnen. Schieber in Zarge nach unten bewegen, Schallschutzsicherung wird gelöst.
Öffnen
7
Türelement in Parkposition sch
ieben. Nach dem Verfahren des Türelementes Verriegelung im Nachbarelement lösen.
Bedienhebel stirnseitig nach links drehen.
4
6
5
Verriegelung des Elementes lösen.
Schließen
der mobilen Tür in umgekehrter Reihenfolge. 11-2009
100K_2p_091026.FH11 Mon Oct 26 13:44:02 2009
Seite 1
Trennwand mit automatischer Verriegelung
HUFCOR Deutschland GmbH Triftweg 34 06847 Dessau-Roßlau Telefon: 0340 540796-0 Telefax: 0340 540796-28 www.hufcor.de
Typ 100 / 100K - ESS
Bedienungsanleitung 2-Punkt-Aufhängung
Ihr Kundenservice: +49 340 540796-13
2 1
0
3
Öffnen
Schlüsselschalter
4 5
6
Schließen
der mobilen Trennwand in umgekehrter Reihenfolge.
0
Schlüsselschalter auf Schließen stellen. Automatische Verriegelung beim Anschlag der Elemente. Teleskopelement mit Sicherheitsschaltung Magnet bitte halten bis horizontale Druckblaken schließen.
Element mit separate Beschreibung bitte auf der Rückseite
Tür:
beachten
!
!
11-2009
100K_ESS_2p_TUER_091026.FH11 Mon Oct 26 17
:27:20 2009
Seite 1
HUFCOR Deutschland GmbH Triftweg 34 06847 Dessau-Roßlau Telefon: 0340 540796-0 Telefax: 0340 540796-28 www.hufcor.de
Trennwand mit automatischer Verriegelung
Typ 100 / 100K - ESS
Bedienungsanleitung 2-Punkt-Aufhängung Element mit Türflügel
Ihr Kundenservice: +49 340 540796-13
Türflügel öffnen. Schieber in Zarge nach unten bewegen, Schallschutzsicherung wird gelöst.
1
Türflügel schließen!
2
Öffnen
5
Türelement in Parkposition schieben - 90° beachten. Nach dem Verfahren des Türelementes Verriegelung im Nachbarelement lösen.
4
3
Verriegelung des Elementes lösen.
der mobilen Tür in umgekehrter Reihenfolge.
Schließen
11-2009
100K_dp-tuer_091026.FH11 Mon Oct 26 17:20:37 2009
Seite 1
Mobile Trennwand Typ 100 / 100K
Bewegliche Trennwand - Systeme
HUFCOR Deutschland GmbH Triftweg 34 06847 Dessau-Roßlau Tel.: 0340 540796-0 Fax: 0340 540796-28 E-Mail: info@hufcor.de Internet: www.hufcor.de
2-Punkt-Aufhängung
Bedienungsanleitung doppel
flüglige Tür
Ihr Kundenservice: +49 340 540796-13
2
Falztreibriegel im Standflügel (in ca. 1,60 m Höhe) entriegeln.
Tür im Gangflügel aufschließen und öffnen. Schieber in Zarge nach unten bewegen, Schallschutzsicherung wird beim Schließen nicht ausgefahren.
3
Öffnen
Standflügel öffnen. Schieber in Zarge nach unten bewegen.
1 4
Beide Flügel schließen.
Gangflügel
Standflügel
8
Nach dem Verfahren der Türelemente Verriegelung im Nachbarelement lösen. Türelemente in Parkposition verfahren.
7
6
Verriegelung lösen.
Bedienhebel nach Rechts drehen. Schallschutzsicherungen werden gelöst.
5
der doppelflügligen Tür in umgekehrter Reihenfolge.
Schließen
11-2009
Schalldämmende bewegliche Wände
5 Zertifikate 4 Oberflächen 3 Schienensysteme
Glastrennwand TYP 3000
Verfahrbare Glastrennwände
7 Referenzen
Bewegliche Trennwand - Systeme
Glastrennwand 2 TYP G 3000
Mobile Trennwand 1 TYP 100 Typ 100 K
6 Ausschreibungstexte
1
bewegliche Glastrennwand T
yp G 3000 Technische Details Movable glass wall G 3000 – technical details 3000 Bewegliche Glastrennwand Typ G Technische Details Movable glass wall G 3000 – technical details
Technische Details
Abhängung Min. Abhanghöhe von UK Decke Alu-Einhängeprofile Parksysteme Glastyp Glasdicke in mm UK Schiene in mm max: Elementbreite in mm fest angeschlagene Tür Durchgangsbreite in mm verschiebbare Durchgangstür Türelementbreite in mm Ankerelementbreite in mm ESG Breiten-Höhenverhältnis oberer Zwischenraum unterer Zwischenraum Bürstendichtung Verriegelung Elemente Profilfarbe Standard HUFCOR Standardgriff Profilzylindergröße 10 3190
Typ G 3000
2 Punkt (Typ 36) 150 mm I/L/T/U-Profil siehe Architektenkatalog Schienensysteme ESG 12 3650
610…1250 Einbau neben jedem Festfeld und am Beginn und Ende der Trennwand möglich …1250 bestehend aus Türelement und Ankerelement max. 900 Türelementbreite + 320 1:10 (vom Glashersteller empfohlen) 20 mm 15 mm horizontal und vertikal nachrü
stbar durch Verbolzung im Fußboden und untereinander E6/EV1 FSB Alu-Griff l=200mm PZ 30/30
HUFCOR Deutschland GmbH Triftweg 34 Tel.: +49 3 40 54 07 96-0 Fax: +49 3 40 54 07 96-28 06847 Dessau-Roßlau Tel.: 0340 540796-0 HUFCOR Deutschland GmbH Fax: 0340 540796-28 Triftweg 34 | 06847 Dessau-Roßlau info@hufcor.de www.hufcor.de
Blatt 2.1
Blatt 2.1
11-2009
1
Bewegliche Glastrennwand Typ G 3000 Technische Details movable glass wall G 3000 - technical details Bewegliche Glastrennwand Typ G 3000 Technische Details Movable glass wall G 3000 – technical details
technical details
suspension min. suspension height types of trims parking types glass type glass thickness in mm track height max: panel width in mm pivot panel pivot panel width in mm pass door pass door width in mm anchor panel in mm tempered glass width-height proportion top clearance bottom clearance brush seals bolting panels Colour of profile standard HUFCOR standard handle profil cylinder for lock 10 3190 mm
Type G
3000
2 point 150 mm I/L/T/U-profile See register no. 3 ( “Schienensysteme”) safety glass tempered 12 3650 mm
610...1250 the pivot panel is not operable and swings into the stacked position …1250 the pass door is connected with an operable panel max. 900 door + 320 1:10 (introduction of the glass producer) 20 mm 15 mm horizontal and vertical upgradeable to gip in the floor E6 / EV1 FSB aluminum handle l=200 mm 30/30 mm
HUFCOR Deutschland GmbH Triftweg 34 06847 Dessau-Roßlau HUFCOR Deutschland GmbH Triftweg 34 | 06847 Dessau-Roßlau www.hufcor.de
Tel.: +49 3 40 54 07 96-0 Fax: +49 3 40 54 07 96-28
Tel.: 0340 540796-0 Fax: 0340 540796-28 info@hufcor.de
Blatt 2.2 Blatt 2.2
11-2009
Prinzipdarstellung Prinzipdarstellung Vertikalschnitt Vertika ls chnitt vertical section
UK Abhangdecke
u ndersid e false c eiling
100
20
min. 150 LH = Lichte Höhe
to ta l h e ight
40
SH = Schienenhöhe EH = Elementhöhe
p a n e l h eight
10 oder /or 12 mm
unteres Profil
lo w e r p r ofil
e
Bürstendichtung (optional)
brush seal (optional)
Bodenbuchse
floor pin
HUFCOR Deutschland GmbH HUFCOR Triftweg 34Deutschland GmbH Triftweg 34 | 06847 Dessau-Roßlau 06847 Dessau-Roßlau www.hufcor.de
Tel.: +49 3 40 54 07 96-0 Fax: 0340 540796-28 Fax: +49 3 40 54 07 96-28
Tel.: 0340 540796-0 info@hufcor.de
15
OK FFB / FFL
EH
Blatt 2.3 Blatt 2.3
11-2009
SH
t r ack heigh t
LH
Prinzipdarstellung Prinzipdarstellung Grundmaße der Glaswand, Standardelemente Grundmaße der Glaswand, Standardelemente dimensions of glass wall, standard panels dimensions of glass wall, standard panels
Standardelement SH EH
Öffnungselement
standard panel
opening panel
EB LB
2
>=10
LB EB SH EH
= lichte Breite = Elementbreite = Schienenhöhe = Elementhöhe = SH - 35 mm
LB = opening width EB = panel width SH = opening height EH = panel height = SH - 35mm - free number of panels - 10 or 12 mm safety glass - free choice of colour of profiles (standard: alu anodized) - HUFCOR standard han
dle
- Freie Anzahl der Elemente - 10 oder 12 mm ESG - freie Farbwahl der Profile (Standard: E6/EV1-Alu natur) - HUFCOR Standardgriff
HUFCOR Deutschland GmbH HUFCOR Deutschland GmbH Triftweg 34 Triftweg 34 | 06847 Dessau-Roßlau 06847 Dessau-Roßlau www.hufcor.de
Tel.: +49 3 40 54 07 96-0 Fax: 0340 540796-28 Fax: +49 3 40 54 07 96-28
Tel.: 0340 540796-0 info@hufcor.de
Blatt 2.4 Blatt 2.4
11-2009
15
20
Prinzipdarstellung Prinzipdarstellung Öffnungsflügel Öffnungsflügel opening panel opening panel
Öffnungselement
Standardelement
opening panel
standard panel
Profilzylinder / Riegel 1 x betätigen zum Verschließen und Öffnen
lock must be operated 1 x for closing and operating
außen / outside
innen /
HUFCOR Deutschland GmbH HUFCOR Deutschland GmbH Triftweg 34 Triftweg 34 | 06847 Dessau-Roßlau 06847 Dessau-Roßlau www.hufcor.de
Tel.: +49 3 40 54 07 96-0 Fax: 0340 540796-28 Fax: +49 3 40 54 07 96-28
Tel.: 0340 540796-0 info@hufcor.de
Blatt 2.5 Blatt 2.5
11-2009
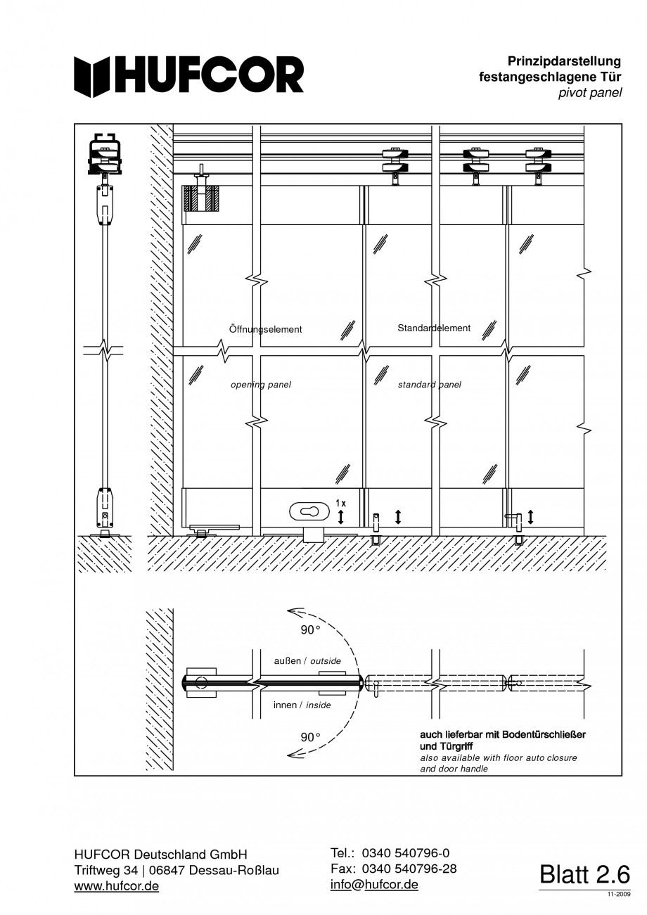
Prinzipdarstellung Prinzipdarstellung festangeschlagene Tür festangeschlagene Tür pivot panel pivot panel
Öffnungselement
Standardelement
opening panel
standard panel
90°
außen / outside
innen / inside
90°
also available with floor auto closure and door handle
HUFCOR Deutschland GmbH HUFCOR Deutschland GmbH Triftweg 34 Triftweg 34 | 06847 Dessau-Roßlau 06847 Dessau-Roßlau www.hufcor.de
Tel.: +49 3034007 96-0 Fax: 40 54 540796-28 Fax: +49 3 40 54 07 96-28
Tel.: 0340 540796-0 info@hufcor.de
Blatt 2.6 Blatt 2.6
11-2009
Prinzipdarstellung Prinzipdarstellung Schiebe-Pendel Flügel movable glass wall, pass door
in Endkappe Magnet verklebt
magnet, bonded in end cap
Türflügel
Ankerelement Türbreite +320 mm
Standardelement
passdoor panel
anchor panel door width +320 mm
standard panel
180°
außen / outside
innen / inside
HUFCOR Standardtürgriff und Türschließer inklusive
door handle and auto closure including
180°
HUFCOR Deutschland GmbH HUFCOR Deuts
chland GmbH Triftweg 34 Triftweg 34 | 06847 Dessau-Roßlau www.hufcor.de 06847 Dessau-Roßlau
Tel.: 0340 540796-0 Fax: 0340 540796-28 Tel.: +49 3 40 54 07 96-0 info@hufcor.de Fax: +49 3 40 54 07 96-28
Blatt 2.7 Blatt 2.7
11-2009
Prinzipdarstellung Prinzipdarstellung Riegelschloss Riegelschloß lock key key lock
40
10
15
3 mm Edelstahlschließblech
100
3 mm stainless steel locking plate
Pfofilzylinder
profile cylinder
Riegelschloß, 20 mm Ausschluß
key lock for closing and opening
10 mm PZ-Rosette E6/EV 1, ein- oder beidseitig
rosette in aluminum anodized, one - or two sided
HUFCOR Deutschland GmbH HUFCOR Deutschland Triftweg 34 Triftweg 34 | 06847 Dessau-Roßlau www.hufcor.de 06847 Dessau-Roßlau
Tel.: 0340 540796-0 Fax: 0340 540796-28 Tel.: +49 3 40 54 07 96-0 info@hufcor.de Fax: +49 3 40 54 07 96-28
Blatt 2.8 Blatt 2.8
11-2009
Beschlagteile G 3000 Fittings
Bodenbuchse Glas floor pin
Standad Hufcor Aluminium Griff aluminium handle
Detail Türstopper und Fixi
erung Türflügel beim Verfahren in die Parkung door stopper and fixing door wing by manually moving from the opening position, positioned in the storage area
HUFCOR Deutschland GmbH Triftweg 34 | 06847 Dessau-Roßlau www.hufcor.de
Tel.: 0340 540796-0 Fax: 0340 540796-28 info@hufcor.de
Blatt 2.9
11-2009
Prinzipdarstellung Elementschloss panel connection
~7 ~7
2
2
135° 7
120°
2 8
8
Standard Halbrundendkappe
standard end cap
2
2
~30
2 135° ~40
40
Edelstahlendkappe
stainless steel end cap
2 120°
HUFCOR Deutschland GmbH HUFCOR Deutschland GmbH Triftweg 34 Triftweg 34 | 06847 Dessau-Roßlau 06847 Dessau-Roßlau www.hufcor.de
Tel.: +49 3 0340 540796-28 Fax: 40 54 07 96-0 Fax: +49 3 40 54 07 96-28
Tel.: 0340 540796-0 info@hufcor.de
2
Blatt 2.10 Blatt 2.10
11-2009
G3000_090404_sw.FH11 Mon Oct 26 21:52:28 2009
Seite 1
Mobile Trennwand Typ G 3000
2-Punkt-Aufhängung
HUFCOR Deutschland GmbH Triftweg 34 06847 Dessau-Roßlau Tel.: 0340 540796-0 Fax: 0340 540796-
28 E-Mail: info@hufcor.de Internet: www.hufcor.de
Öffnen
Vor dem Verfahren der Elemente immer erst Aufschließen bzw. Verriegelungen lösen
Bedienungsanleitung
Ihr Kundendienst: +49 340 540796-13
Profilzylinder 2x verschließen
!
! 1
2
3 7 4 6 5
360°-Tür
Bitte beachten Sie die separate Be schreibung unserer verfahrbaren 360°Tür auf der Rückseite. der mobilen Trennwand in umgekehrter Reihenfolge. Verankern der Elemente durch Verriegeln aus der Fläche das letzte Element durch Verschließen.
Schließen
11-2009
G3000_090404_sw.FH11 Mon Oct 26 21:52:28 2009
Seite 2
Mobile Trennwand Typ G 3000
2-Punkt-Aufhängung
HUFCOR Deutschland GmbH Triftweg 34 06847 Dessau-Roßlau Tel.: 0340 540796-0 Fax: 0340 540796-28 E-Mail: info@hufcor.de Internet: www.hufcor.de
Bedienungsanleitung | Verfahrbare 360°-Tür
Ihr Kundendienst: +49 340 540796-13
Öffnen und Verfahren
4
Türelement als Paket in Parkposition schieben. Standposition auf der gegenüberliegenden Seite der Bodenrie
gel.
Automatische Arretierung der Tür in Stellpositi on durch Rollen schnapper.
Anschlagstopper mit integriertem Magnet. integrietem Magnet. Hält Tür in vollständig geöffnetem Zustand si cher in dieser Position.
4 3
Auf gegenüberliegender Seite zwei Bodenriegel aus der Fläche entriegeln.
1
Tür am Schloss 1x aufschließen!
2
Tür um 180° in Richtung Schloss und Anschlagstopper öffnen (zur gegenüberliegenden Seite der Verriegelungen). Tür hält in voll geöffneter Position selbstständig durch Magnete!
2 1
3
Verfahrbare 360°- Tür in umgekehrter Reihenfolge
!
Verfahren und Schließen
11-2009
Schalldämmende bewegliche Wände
Schienensysteme
Verfahrbare Glastrennwände
5 Zertifikate 4 Oberflächen 3 Schienensysteme
7 Referenzen
Bewegliche Trennwand - Systeme
Glastrennwand 2 TYP G 3000
Mobile Trennwand 1 TYP 100 Typ 100 K
6 Ausschreibungstexte
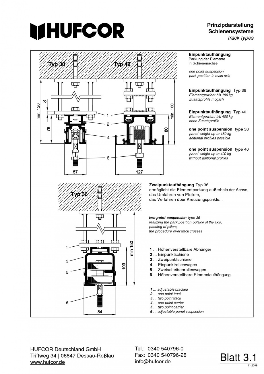
Prinzipdarstellung Prinzipdarstellung S c h i e n e n typ en Schienensysteme track types track types
Ein
punktaufhängung
Typ 38
Typ 40
Parkung der Elemente in Schienenachse
one point suspension park position in main axis
Einpunktaufhängung Typ 38
Elementgewicht bis 180 kg Zusatzprofile möglich
min. 120
min. 180
1 2 4
Einpunktaufhängung Typ 40
Elementgewicht bis 400 kg ohne Zusatzprofile
panel weight up to 180 kg aditional profiles possible
one point suspension type 38
6
panel weight up to 400 kg without aditional profiles
one point suspension type 40
Typ 36
Zweipunktaufhängung Typ 36 ermöglicht die Elementparkung außerhalb der Achse, das Umfahren von Pfeilern, das Verfahren über Kreuzungspunkte....
two point suspension type 36 realizing the park position outside of the axis, passing of pillars, the procedure over track crosses
1 3 5
1 ... Höhenverstellbare Abhänger 2 ... Einpunktschiene 3 ... Zweipunktschiene 4 ... Einpunktrollenwagen 5 ... Zweischeibenrollenwagen 6 ... Höhenverstellbare Elementaufhängung
1 ... adjustable bracked 2 ... one point track 3 ...
two point track 4 ... one point carrier 5 ... two point carrier 6 ... adjustable panel suspension
6
HUFCOR Deutschland GmbH HUFCOR Deutschland GmbH Triftweg 34 Triftweg 34 | 06847 Dessau-Roßlau 06847 Dessau-Roßlau www.hufcor.de
Tel.: +49 3 40 54 07 96-0 Fax: 0340 540796-28 Fax: +49 3 40 54 07 96-28
Tel.: 0340 540796-0 info@hufcor.de
Blatt 3.1 Blatt 3.1
11-2009
Prinzipdarstellung Prinzipdarstellung Einhängeprofile und akutische Abschottung Einhängeprofile und akustische Abschottung track additional profile and acoustical barrier track additional profile and acoustical barrier
Abhanghöhe min. 150 mm
Decke bauseits f als e cei ling o n site
suspension height min. 150 mm
L-Profil L-profile
C - Profil C - profile
20
84
20
20
84
20
Schiene Typ 36
track type 36
suspension height min. 150 mm
Abhanghöhe min. 150 mm
U - Profil Decke U - profile top
Profil bauseits profile on site
I - Profil I - profile U - Profil Schiene U - profile track
70
84
70
up to 48 dB
acoustic barrier with 12,5mm gypsum per side, from 49 db 2 x 12,5mm gypsum board per side
seitliche Beplankung mit 12,5 mm Gipskarton bis 48 dB einlagig, ab 49 dB zweilagig
HUFCOR Deutschland GmbH HUFCOR Deutschland GmbH Triftweg 34 Triftweg 34 | 06847 Dessau-Roßlau 06847 Dessau-Roßlau www.hufcor.de
Tel.: 0340 540796-0 Tel.: +49Fax: 0340 540796-28 3 40 54 07 96-0 Fax: +49 3 40 54 07 96-28 info@hufcor.de
Blatt 3.2 Blatt 3.2
11-2009
103
suspension height min. 150 mm
Abhanghöhe min. 150 mm
Prinzipdarstellung Prinzipdarstellung Einhängeprofile und akutische Abschottung Einhängeprofile und akustische Abschottung track additional profile and acoustical barrier track additional profile and acoustical barrier
suspension height min. 120 mm
Abhanghöhe min. 120 mm
Decke bauseits false ceiling on site
C - Profil c - profile
U - Profil u - profile
20
57
20
70
57
70
track type 38
suspension height min. 120 mm
Schiene Typ 38
Decke bauseits false ceiling on site
T - Pro
fil t - profile
20
57
20
up to 48 dB acoustic barrier with 12,5mm gypsum per side, from 49 db 2 x 12,5mm gypsum board per side
seitliche Beplankung mit 12,5 mm Gipskarton bis 48 dB einlagig, ab 49 dB zweilagig
HUFCOR Deutschland GmbH HUFCOR Deutschland GmbH Triftweg 34 | 06847 Dessau-Roßlau Triftweg 34 06847 Dessau-Roßlau www.hufcor.de
Tel.: 0340 540796-0 Tel.: +49Fax: 0340 540796-28 3 40 54 07 96-0 Fax: +49info@hufcor.de 3 40 54 07 96-28
Abhanghöhe min. 120 mm
Blatt 3.3 Blatt 3.3
11-2009
suspension height min. 120 mm
Abhanghöhe min. 120 mm
Prinzipdarstellung Prinzipdarstellung akustische Abschottung und Schienenverkleidung akustische Abschottung und Schienenverkleidung acoustical barrier and track covering acoustical barrier and track covering
suspension height min. 180 mm
Abhanghöhe min. 180 mm
Decke bauseits false ceiling on site
up to 48 dB acoustic barrier with 12,5mm gypsum per side, from 49 db 2 x 12,5mm gypsum board per side
seitliche Beplankung mit 12,
5 mm Gipskarton bis 48 dB einlagig, ab 49 dB zweilagig
127
track type 40
Schiene Typ 40
12,5 mm GK Platte 12,5 mm gypsum board
127
HUFCOR Deutschland GmbH HUFCOR Deutschland GmbH Triftweg 34 Triftweg 34 | 06847 Dessau-Roßlau 06847 Dessau-Roßlau www.hufcor.de
Tel.: 0340 540796-0 Tel.: +49Fax: 0340 540796-28 3 40 54 07 96-0 Fax: +49 3 40 54 07 96-28 info@hufcor.de
suspension height min. 180 mm
16 mm Spanplatte 16 mm chipboard
Abhanghöhe min. 180 mm
Blatt 3.4 Blatt 3.4
11-2009
Prinzipdarstellung Prinzipdarstellung Befestigungsmöglichkeiten Befestigungsmöglichkeiten p o ssib ilities of fixation possibilities of fixation
Montage an bauseitigem Stahlträger durch Klammern, Verschrauben,Verschweißen f i x a t i o n a t s te e l p r o fil b y s c r e w i n g , w e ld in g o r c l a m p in g
Montage an bauseitigem Holzbinder Installation on wooden beam
HUFCOR Deutschland GmbH HUFCOR Triftweg 34Deutschland GmbH Triftweg 34 | 06847 Dessau-Roßlau 06847 Dessau-Roßlau www.h
ufcor.de
Tel.: +49 Fax: 0340 540796-28 3 40 54 07 96-0 Fax: +49 3 40 54 07 96-28
Tel.: 0340 540796-0 info@hufcor.de
Blatt 3.5 Blatt 3.5
11-2009
Prinzipdarstellung Prinzipdarstellung Befestigungsmöglichkeiten Befestigungsmöglichkeiten p o ssib ilities of fixation possibilities of fixation
Montage neben Betonsturz mittels Stahlkonsolen Installation on concrete beam with steel consoles
Montage mittig unter Betonsturz Installation in the middle of concrete beam
HUFCOR Deutschland GmbH HUFCOR Deutschland GmbH Triftweg 34 Triftweg 34 | 06847 Dessau-Roßlau 06847 Dessau-Roßlau www.hufcor.de
Tel.: +49 Fax: 0340 540796-28 3 40 54 07 96-0 Fax: +49 3 40 54 07 96-28
Tel.: 0340 540796-0 info@hufcor.de
Blatt 3.6 Blatt 3.6
11-2009
Prinzipdarstellung Prinzipdarstellung Parkpositionen Teil 1 Parkpositionen Teil 1 parking types, part 1 parking types, part 1
Ty p 5 a us S c ha l l s c hutzgründen n ur b ei G la sa nl ag en e mp fo hl en type 5 only only for glass partitions because
of sound value
Typ 1
Typ 2L
Typ 2R
Typ 3L
Typ 3R
Typ 4L
Typ 4R
Typ 5L
Typ 5R
Typ 6L
Typ 6R
HUFCOR Deutschland GmbH HUFCOR Triftweg 34Deutschland GmbH Triftweg 34 | 06847 Dessau-Roßlau 06847 Dessau-Roßlau www.hufcor.de
Tel.: +49Fax: 0340 540796-28 3 40 54 07 96-0 Fax: +49 3 40 54 07 96-28
Tel.: 0340 540796-0 info@hufcor.de
Blatt 3.7 Blatt 3.7
11-2009
P r i n z ip d a r s te llu n g Prinzipdarstellung Parkpositionen Teil 2 Parkpositionen Teil 2 parking types, part 2 parking types, part 2
Typ 7L Typ 7R
Ty p 7 aus S c ha l l s c hut z gründen n u r b e i Gl asanlagen e mp fo hl en type 7 only only for glass partitions because of sound value
Typ 8L
Typ 8R
Typ 9L
Typ 9R
Typ10L
Typ 10R
Typ 11L
Typ 11R
Typ 12L
Typ 12R
Typ 13 nur G3000 only G3000
HUFCOR Deutschland GmbH HUFCOR Deutschland GmbH Triftweg 34 Triftweg 34 | 06847 Dessau-Roßlau 06847 Dessau-Roßlau www.hufcor.de
Tel.: +49 3 40 54 07 96-0 Fax: 0340 540796-28 Fax: +49 3 40 54 07 96-28
Tel.: 0340
540796-0 info@hufcor.de
Blatt 3.8 Blatt 3.8
11-2009
Prinzipdarstellung Prinzipdarstellung Nischentüren- Schnitte & Ansichten-Teil 1 Nischentüren - Schnitte & Ansichten - Teil 1 pocket door - sections and view -- part 1 pocket door - sections and view part 1
1 Türflügel 1 wing - pocket door
Schienenhöhe - track height
2 Türflügel 2 wings - pocket door
HUFCOR DeutschlandGmbH HUFCOR Deutschland GmbH Triftweg 34 | 06847 Dessau-Roßlau 06847 Dessau-Roßlau www.hufcor.de
1090
Tel.: 0340 540796-0 Fax: 0340 540796-28 Tel.: +49 3 40 54 07 96-0 Fax: +49 3 40 54 07 96-28 info@hufcor.de
Blatt 3.9 Blatt 3.9
11-2009
Prinzipdarstellung Prinzipdarstellung Nischentüren- Schnitte & Ansichten-Teil 2 Nischentüren - Schnitte & Ansichten - Teil 2 pocket door - sections and view - part 2 pocket door - sections and view - part 2
3 Flügel 3 wings - pocket door
155 min 70 min 70
Schienenhöhe - track height
HUFCOR Deutschland GmbH HUFCOR Deutschland GmbH Triftweg 34 Triftweg 34 | 0684
7 Dessau-Roßlau 06847 Dessau-Roßlau www.hufcor.de
1090
Tel.: +49 3 40 54 07 96-0 Fax: 0340 540796-28 Fax: +49 3 40 54 07 96-28
Tel.: 0340 540796-0 info@hufcor.de
Blatt 3.10 Blatt 3.10
11-2009
Schalldämmende bewegliche Wände
Oberflächen
Verfahrbare Glastrennwände
5 Zertifikate 4 Oberflächen 3 Schienensysteme
7 Referenzen
Bewegliche Trennwand - Systeme
Glastrennwand 2 TYP G 3000
Mobile Trennwand 1 TYP 100 Typ 100 K
6 Ausschreibungstexte
Furnier_091022.FH11 Thu Oct 22 22:39:58 2009
Seite 1
HUFCOR Deutschland GmbH Triftweg 34 06847 Dessau-Roßlau Telefon: 0340 540796-0 Telefax: 0340 540796-28 www.hufcor.de
ualittät r diTräQrplat en* i e ge w erefnrnierten defidnilholz u SO rer e e
unse
Bewegliche Trennwand - Systeme
Bildabwicklung. Furniere sind in der Regel mit Bild aufbau sortiert. Je nach Holzart ergeben sich bis zu 20 Platten mit Furnieren aus einem Stamm in fortlaufender Abwicklung. Die Fur niere sind in ihrem Erscheinungsbild hochwertig, die Furn
ierbreiten sind innerhalb einer Platte sowie in der Regel bei bis zu 10 Platten gleich.
Brettcharakter. Furniere von mindestens 4 verschiedenen Furnierpake ten werden wahllos zusammengefügt (schlicht, blumig, gestürzt und gescho ben). Es entsteht ein soge nannter "Brettcharater"Aufbau, optisch ähnlich zu verleimtem Massivholz. *hochwertig mit UV-Acryl-Lack bearbeitet
HUFCOR mobile Trennwandsysteme
SCHNELL STANDFEST SICHER
11-2009
optional Sondertürbreiten
Oberflächen Oberflächen Surfaces Surfaces
Oberflächen
Melamin Schichtstoff
lt. beiliegender Musterkollektion 5 Farben – Lagerware – sofort verfügbar lt. beiliegender Musterkollektion 2 Farben – Lagerware – sofort verfügbar
Selbstverständlich arbeiten wir mit den führenden Herstellern von Melaminharzund Schichtstoff-beschichteten Spanplatten zusammen: z.B. Westag & Getalit und Resopal,. Fragen Sie uns, wir senden Ihnen umgehend ein Muster der gewünschten Oberfläche. Sie wünschen hochw
ertige Furnier- und Akustikoberflächen? Kein Problem – unsere, auf Sonderwünsche spezialisierte Vertragstischlerei, liefert in hochwertiger Qualität. In unserer langjährigen Praxis haben wir einige nicht alltägliche Kundenwünsche realisiert. Spiegel, Glas, Stahlblech (magnethaftend und beschreibbar), Teppich, Tapete, Stoff – den Oberflächen sind keine Grenzen gesetzt.
HUFCOR Deutschland GmbH HUFCOR Deutschland GmbH Triftweg 34 Triftweg 34 | 06847 Dessau-Roßlau www.hufcor.de 06847 Dessau-Roßlau
Tel.: 0340 540796-0 Fax: 0340 540796-28 Tel.: +49 3 40 5 40 79 60 info@hufcor.de
Fax: +49 3 40 5 40 79 6-28
Blatt 4.1 Blatt 4.1
11-2009
Prinzipdarstellung Prinzipdarstellung Vertikalschnitt Akustikoberfläche Vertikalschnitt Akustikoberfläche vertical section acoustic panel face acoustic panel face vertical
HUFCOR DeutschlandGmbH HUFCOR Deutschland GmbH Triftweg 34 | 06847 Dessau-Roßlau Triftweg 34 06847 Dessau-Roßlau www.hufcor.de
Tel.: 0340 540796-0 Fax: 0340 540796-2
8 Tel.: +49 3 40 54 07 96-0 Fax: +49 3 40 54 07 96-28 info@hufcor.de
Blatt 4.2 Blatt 4.2
11-2009
Prinzipdarstellung Akustikoberfläche Typ 16/16/8 - 8 Prinzipdarstellung acoustic panel face type 16/16/8 - 8 Akustikoberfläche Typ
acoustic panel face type 16/16/8 - 8
Schnitt B-B
Schnitt A-A
Ansicht Vorderseite A
B
B
A
TYP 16/16/8 - 8 type 16/16/8 - 8
10mm MDF mit Lochung innenliegendes Akustikvlies Rahmen 16 mm MDF Dämmstoff 16 mm Spanplatte
HUFCOR Deutschland GmbH Tel.: 0340 540796-0 HUFCOR Deutschland GmbH Triftweg 34 | 06847 Dessau-Roßlau Tel.: +49 3 40Fax: 0340 540796-28 Triftweg 34 54 07 96-0 Fax: +49 3 40info@hufcor.de 54 07 96-28 06847 Dessau-Roßlau www.hufcor.de
Blatt 4.3 Blatt 4.3
11-2009
Prinzipdarstellung Prinzipdarstellung Akustikoberfläche 16/16/5 - 5 Akustikoberfläche 16/16/5 5 acoustic panel face 16/16/5 --5
acoustic panel face 16/16/5 - 5
Schnitt B-B
Schnitt A-A
Ansicht Vorderseite A
B
B
A
TYP 16/16/5 - 5 type 16/16/5 - 5
10mm MDF mit Lochu
ng innenliegendes Akustikvlies Rahmen 16 mm MDF Dämmstoff 16 mm Spanplatte
HUFCOR Deutschland GmbH Tel.: 0340 540796-0 HUFCOR Deutschland GmbH Triftweg 34 | 06847 Dessau-Roßlau Tel.: +49 3 40Fax: 96-0 54 07 0340 540796-28 Triftweg 34 Fax: +49 3 40 54 07 96-28 06847 Dessau-Roßlau info@hufcor.de
www.hufcor.de
Blatt 4.4 Blatt 4.4
11-2009
Akustikoberfläche 8/8/5 - 1.2 Prinzipdarstellung Akustikoberfläche Typ8/8/5 - -1.2 acoustic panel face 8/8/5 1.2 acoustic panel face type 8/8/5 -1.2
Schnitt B-B
Prinzipdarstellung
Schnitt A-A
Ansicht Vorderseite A
B
B
A
TYP 8/8/5 - 1.2 type 8/8/5 - 1.2
10mm MDF mit Lochung innenliegendes Akustikvlies Rahmen 16 mm MDF Dämmstoff 16 mm Spanplatte
HUFCOR Deutschland GmbH Tel.: 0340 540796-0 HUFCOR Deutschland GmbH Triftweg 34 54 07 0340 540796-28 Triftweg 34 | 06847 Dessau-Roßlau Tel.: +49 3 40Fax: 96-0 Fax: +49 3 40 54 07 96-28 06847 Dessau-Roßlau info@hufcor.de
www.hufcor.de
Blatt 4.5 Blatt 4.5
11-2009
Verunreinigung (Beispiele)
Wachsreste (Kerzen, Trennmittel für Pressen) Wachskreide Lippenstift Schuhcreme Bohnerwachs Wachspolitur Allstift Wasserlösliche Farben, Beizen, Dispersionsfarben wasserlösl. Klebstoffe Dispersionen (PVAc) 9 Organische Lösemittel 10 11 12 trocken abreiben; Silikonentferner Wasser (oder organische Lösemittel) Lösemittelhaltige Lacke, Farben und Klebstoffe (Lackreste, -spritzer, Sprayfarbe, Stempelfarbe) Zweikomponentenlacke und -Klebstoffe Kunstharze, z. B. Polyurethan
Verschmutzungsart 5 6 7 8
Staub Schmutz Staub/ Fettgemisch Bleistift Kreide Silikone Dichtmassen Möbelpflegemittel Fett, Öl Fingerabdrücke Filzstift, Markierungsstift Kugelschreiberfarbe Nikotinablagerungen (Teerreste) Striche (Flecke) von Gummi 4
Kalkreste Kalkränder (Wasserränder) Rost
Kaffee Tee Fruchtsäfte Zuckerlösungen
Bakteriologische Verunreinigungen (Seifenreste, Hautepithel, Krankheitskeime, Blut, Urin, Kot)
Schattierungen, die nach dem Behandeln mit Lösemitteln auftreten (Schlieren)
1
2
3
leichte, frische Verschmutzung
Papierwischtücher; weiche, saubere Tücher (trocken oder feucht); Schwamm o. ä. - Bei Feuchtreinigung mit saugfähigen Papierwischtüchern nachreiben.
diese sofort entfernen -
Wichtiger Hinweis: Schlieren entstehen in der Regel durch Reinigen mit organischen Lösemitteln, bei Gebrauch von kaltem Wasser und mehrfach gebrauchten Tüchern oder Fensterledern. - Um alle Reinigungen schattierungsund schlierenfrei durchzuführen, empfiehlt es sich, nach dem Nachspülen mit heißem Wasser mit Hilfe haushaltsüblicher Papierwischtücher nachzutrocknen.
Organische Lösemittel, z. B. Aceton, Spiritus, Reinigungsbenzin, Nagellackentferner Reinigung nur vor der Aushärtung möglich; daher unmittelbar nach dem Kontakt mit Wasser oder organ. Lösungsmitteln entfernen Wasser oder organische Lösemittel Silikonentferner
HUFCOR Deutschland GmbH Triftweg 34 | 06847 Dessau-Roßlau www.hufcor.de
Organische Lösemittel, z B. Aceton, Spiritus, Reinigungsbenzin, Nagellac
kentferner Zusätzliche Behandlung mit Desinfektionsmittel Dampfreinigung ist möglich. Desinfektion nach den einschlägigen Bestimmungen. Paraffin- und Wachsreste mechan. abtragen. Vorsicht: Kratzer vermeiden, Kunststoffkante oder Holzspachtel nehmen. Reste mit tels Löschpapier abbügeln. Für die serienmäßige Verarbeitung von Klebstoffen und Lacken empfiehlt sich vorherige Rücksprache mit dem Hersteller, welche Renigungsmittel am besten für die Entfernung der möglichen fertigungsbedingten Verschmutzung geeignet sind. Durch Wasser oder organische Lösemittel aufweichen, dann abschälen bzw. abziehen. Bei modifizierten Klebstoffen mit höherer Wasserbeständigkeit muss auf Spezialreiniger zurückgegriffen werden. Keine Reinigung mehr möglich! Reste von ausgehärteten Kondensationsund ReaktionsharzKlebstoffen lassen Farbstoffreste können nach dem sich nach der AusAustrocknen gele- härtung i.a. nicht gentlich mechanisch mehr entfernen. entfernt werden. Graffiti erfordern eine
Spezialreini gung.
Reines heißes Wasser, reine Putzlappen oder Tücher, weicher Schwamm oder weiche Bürste (z. B. Nylonbürste). -Übliches Reinigungsmittel ohne scheuernde Bestandteile, auch Waschpulver (insbesondere Vollwaschmittel), Schmierseife oder Kernseife. - Mit Reinigungsmittellösung abschäumen, je nach Verschmutzungsgrad einwirken lassen, anschließend mit reinem Wasser oder Glasreiniger nachwaschen, evtl. mehrmals nachwaschen. Reinigungsmittel restlos entfernen, um Schlierenbildung zu vermeiden. - Mit saugfähigem, sauberen Lappen (besser Papierwischtücher) Oberflächen trocken wischen Lappen häufig wechseln.
normale Verschmutzung, längere Einwirkdauer
Pflegetipps Oberflächen
Tel.: 0340 540796-0 Fax: 0340 540796-28 info@hufcor.de
Waschmittel oder aus Waschmittel und Wasser hergestellten Brei über Nacht einwirken lassen. Flüssigreiniger mit feinster Polierkreide. - Milde Bleichmittel (mit Vorbehalt). Anmerkung: Flüssigreiniger mit Polierkreide sowie Bleich
mittel nur gelegentlich benutzen! Achtung bei Hochglanz! Vergleiche Punkt 3 der Erläuterungen!
starke, hartnäckige Verschmutzung; alte Flecke
Bei besonders fest haftenden Kalkverunreinigungen evtl. auch säurehaltige Reinigungsmittel (z. B. 10-prozentige Essig- oder Zitronensäure) verwenden.
Während der Gebrauchsdauer Kunststoff-Oberflächen regelmäßig reinigen! Pflegemittel ist nicht nötig!
Zur Reinigung keine schleifenden und scheuernden Mittel (Scheuerpulver, Stahlwolle) verwenden, keine Poliermittel, Wachse, Möbelputzmittel, Bleichmittel. Keine Reinigungsmittel verwenden, die starke Säuren oder stark saure Salze enthalten, z. B. Entkalker auf Basis Ameisensäure und Aminosulfosäure, Abflussreiniger, Salzsäure, Silberputzmittel, Backrohrreiniger.
11-2009
Bei Reinigung mit Lösemitteln: Unfallverhütungsvorschriften beachten! Fenster öffnen! Keine offene Flamme!
Bewegliche Trennwand - Systeme
Glas- Lichtausschnitte und Ganzglaselemente Furnier-Oberflächen
Stoffe
Vermeiden Sie Kratzer, indem Sie die Scheibe mit ausreichend Wasser von Fremdkörpern wie Staub, Sand o. ä. befreien.
HUFCOR Deutschland GmbH Triftweg 34 | 06847 Dessau-Roßlau www.hufcor.de
Achten Sie darauf, dass das verwendete Reinigungstuch ebenfalls frei von Sand oder sonstigen Fremdkörpern ist. Nehmen Sie die entstehende Nässe sofort mit einem weichen Tuch auf, damit sich keine Wasserlachen entlang der Profilrahmen bilden können.
Zur Reinigung verwenden Sie bitte nur Seifenwasser. Vermeiden Sie scheuernde, aggressive Reinigungsmittel. Oberflächen mit einem feuchten Tuch trocken reiben. Stehende Nässe verhindern. Wir empfehlen auf Möbelpolituren zu verzichten.
Für eine gründliche Reinigung genügt der Zusatz von Essig in klares Wasser. Sollten Sie auf handelsübliche Reinigungsmittel nicht verzichten wollen, vermeiden Sie unbedingt scheuernde oder scharfe Putzmittel,
Sprühflaschen, Säuren, Waschlaugen und fluoridhaltige Mittel.
Für d
ie normale Pflege genügt eine einfache Bürste, die nicht zu hart sein sollte. Flecken im Stoff sind am leichtesten unmittelbar nach dem Entstehen zu entfernen. Vorsicht bei Wolle, Leinen, Baumwolle und Viskose. Durchnässen vermeiden. Saugfähige Tücher und Papiere sind gut zum Auftupfen feuchter Flecken. Zur Fleckentfernung empfiehlt sich Trockenschaum. Handelsübliche Reinigungsmittel sollten Sie nur nach Gebrauchsanweisung benützen und vorab an einer nicht sichtbaren Stelle des Stoffes ausprobieren.
Pflegetipps Oberflächen
Tel.: 0340 540796-0 Fax: 0340 540796-28 info@hufcor.de
Tel.: Fax: E-Mail: Internet: 0340 540796-0 0340 540796-28 info@hufcor.de www.hufcor.de
Durch falsche Reinigung kann sich die Griffschutzimprägnierung bei satiniertem und mattiertem Glas mit der Zeit ablösen. Die satinierte Seite darf auf keinen Fall mit Druck gereinigt werden (Wolkenbildung).
Satinierte und mattierte Oberflächen sollten außerdem nie mit der rauen Seite ständigem Wass
erdampf ausgesetzt sein. Wählen Sie
gegebenenfalls eine andere DIN-Richtung, damit die Motivseite nach außen zeigt.
HUFCOR Deutschland GmbH Triftweg 34 06847 Dessau-Roßlau
11-2009
Bewegliche Trennwand - Systeme
Schalldämmende bewegliche Wände
Zertifikate
Verfahrbare Glastrennwände
5 Zertifikate 4 Oberflächen 3 Schienensysteme
7 Referenzen
Bewegliche Trennwand - Systeme
Glastrennwand 2 TYP G 3000
Mobile Trennwand 1 TYP 100 Typ 100 K
6 Ausschreibungstexte
Erläuterungen zum Produktzertifikat Nr. B 04 04 35846 002
– mobile Trennwand Typ 100 und Typ 100K –
ausgestellt von der TÜV Produkt Service GmbH im Jahre 2004
Wir haben der TÜV Produkt Service GmbH unsere beweglichen, schalldämmenden Elemente zum Test nach dem Gerätesicherheitsgesetz – heute „GPSG – Geräte und Produktsicherheitsgesetz“ – überlassen. Unsere Elemente wurden auf die Einhaltung grundlegender Anforderungen die das o.g. Gesetz vorschreibt geprüft. Es wurde ein Funktionstest
hinsichtlich Belastbarkeit, Stabilität, Standfestigkeit, Bedienung und Sicherheit durchgeführt. Der TÜV hat uns mit der Zertifizierung die Erlaubnis erteilt, das TÜV-Zeichen für unsere Elemente zu verwenden. Durch eine jährliche Fertigungsstättenbesichtigung garantiert der TÜV eine gleich bleibende Qualität unserer Produkte. Auf die Einhaltung der folgenden Normen
DIN 31000:1979
Allgemeine Leitsätze für das sicherheitsgerechte Gestalten technischer Erzeugnisse und
DIN 18032:1997
Sporthallen - Hallen für Turnen und Spielen und Mehrzwecknutzung - Teil 3: Prüfung der Ballwurfsicherheit, wurde unser Produkt geprüft.
Vielen Dank für Ihr Interesse
Thomas Bitter Geschäftsführer HUFCOR Deutschland GmbH
HUFCOR Deutschland GmbH Triftweg 34 06847 Dessau Tel. 0340 2215360 Fax 0340 2215363 Geschäftsführer: James M. Borden, Richard G. Gesteland,Thomas Bitter, Kenneth Michalski Sitz der Gesellschaft: Dessau HRB 4149 Amtsgericht Dessau Bankverbindung: Stadtsparkasse Dessau BLZ 8
00 535 72 Kto. 36 000 707 Commerzbank Dessau BLZ 810 400 00 Kto. 5 098 033 E-Mail: info@hufcor.de www.hufcor.de
Bewegliche Trennwand - Systeme
Schalldämmende bewegliche Wände
Ausschreibungstexte
Verfahrbare Glastrennwände
5 Zertifikate 4 Oberflächen 3 Schienensysteme
7 Referenzen
Bewegliche Trennwand - Systeme
Glastrennwand 2 TYP G 3000
Mobile Trennwand 1 TYP 100 Typ 100 K
6 Ausschreibungstexte
Pos.
Anzahl
Gegenstand
Bauvorhaben: ...................................................................
Preis je Einheit EURO
Betrag EURO
Leistungsbeschreibung Mobile Trennwand Typ 100
Einzelelemente, die zu einer festen Wand zusammengefahren werden. Elemente 113 mm stark, mit umlaufender AluminiumRahmenkonstruktion, in den Ecken hochfest verschraubt. Beplankung mit 16 mm Qualitätsspanplatten, nach den Formaldehyd-Richtlinien Emissionsklasse E1. Kante wie Oberfläche, Wand wirkt im geschlossenen Zustand wie eine Massivwand, mit Schattenfugen zwischen den E
lementen, ohne Aluminiumprofile an den Kanten. Alu-Druckbalken, oben und unten, schwarz eloxiert, mit Spezialdichtungen. Betätigung mittels stirnseitig abnehmbaren Hebels über Excenter mit selbstständig nachregulierenden Druckausgleichsfedern. Federgelagerte Dichtleisten zum automatischen Ausgleich von Fußbodenunebenheiten. Anpressdruck 1500 N für gute Abdichtung mit Schalldämmung und Standsicherheit. Schalldichte Verzahnungen zwischen den ausfahrbaren Dichtleisten. Je Element nur eine ½ Hebeldrehung für schnelle Bedienung der Trennwand. Elementverbindung: Vertikalprofil in Aluminium naturfarbig eloxiert in Kombination mit Kunststoffprofilen und integrierten Weichgummilippen zur Schallentkoppelung in Nut-FederPrinzip, wahlweise mit integriertem Magnetband. Form- und kraftschlüssige Elementfindung. Große Elementtauchtiefe für sicheren und schalldichten Formschluss. Magnetbänder mit 40 N/m in den Plastprofilen zur Zentrierung der Elemente zueinander und für sicheren Kraftsch
luss zwischen den Elementen. Seitliche Anschlüsse passend zur Trennwandkonstruktion, Stärke max. 100 mm. Obere Laufschiene Alu natur eloxiert oder weiß. Diverse Deckenauflagewinkelsysteme sind lieferbar. Oberflächen wie Schienen. Leichte und extrem leise Verfahrbarkeit der Elemente in Hauptachsen und Parkbereichen. Montagekammern mit Kulissensteinen in den Schienen gewährleisten akkuraten bündigen Schluss der Schienenteilstücke sowie nicht sichtbare Verschraubung der Schienen mit der Abhängung.
11-2009
Pos.
Anzahl
Gegenstand
Elementaufhängung: 1-Punkt-Mittelaufhängung: Jedes Element mit einem Zwillingsrollenwagen. Wartungsfreies Schienensystem. Kardanisch gelagerte Aufhängung. Rollenkörper aus Aluminium, kugelgelagert, hochabriebfest kunststoffummantelt und daher mit besonderer Laufruhe. Elementaufhängung: 2-Punkt-Doppelaufhängung: Kugelgelagerte Zweischeibenrollenwagen aus Stahl und hochabriebfestem Kunststoff, verschleißfrei, in Abzweigungen leicht in alle Richtun
gen verfahrbar. Ohne Bodenlaufschiene. Höhenverstellmechanik in jedem Element, die eine Nachjustierung der Elemente ohne Öffnen der Decke ermöglicht. Stahlabhängekonstruktion für die Laufschiene an bauseitigen statisch tragenden Bauteilen, mit ausreichender Verstellbarkeit für spätere Deckensenkungen, keine starren Abhängungen. Alle Konstruktionen mit Korrosionsschutz versehen. Die Abhängung ist längs und quer zur Trennwandachse verstellbar und kann längs und quer horizontal aus-gerichtet werden. Akustische Abschottung über den Laufschienen entsprechend dem Schalldämmwert der Trennwand. Sie wird mittels spezieller Profile fugendicht an die Laufschiene und die angrenzenden Bauteile angeschlossen. Teleskopelement 1 Element der Wand als Teleskopelement ausgeführt, Bedienung von der Fläche, Hub bis 120 mm. Keine aufdoppelnden Spanplattenteile. Nur eine ½ Drehung zum Öffnen oder Schließen ist erlaubt. Schlupftürelement, mit dem Element verfahrbar, mit umlaufendem Portalra
hmen aus Stahlprofilen. Ausführung mit zwei seitlichen Holmen mit Druckbalken. Flächenbündig mit der Wand. Mit automatischer Sicherung des Türblattes beim Verfahren der Elemente. Türblatt mit automatischer Andruckmechanik mit unterem Druckbalken. Doppelfalz-Türen mit 2 Türanschlagdichtungen, ergonomisch gestaltete Alu-Griffmulde mit Alu-Drücker sowie 3 Stück 2-Rollen-Kantenbänder aus Edelstahl mit nur 20 mm Überstand zur Trennwand. Schalldämmung nach der gültigen DIN EN 20140-3:1995. TÜV-Prüfung nach DIN 31000 (Gerätesicherheitsgesetz) + DIN 18032 (Ballwurfsicherheit) für eine betriebsfertige, eingebaute Trennwand einschl. Teleskopelement und Schlupftürelement.
Preis je Einheit EURO
Betrag EURO
11-2009
Pos.
Anzahl
Gegenstand
Eine jährl. Fertigungsstättenbesichtigung durch den TÜV garantiert eine gleichbleibende, auf hohem Niveau befindliche Qualität. Ein Nachweis ist zu führen. DIN ISO-9001 Die Betriebsabläufe müssen dem Qualitätsmanagement-System 9000
ff. entsprechen. Lieferung Frei Baustelle liefern, einschl. Transport innerhalb des Gebäudes, fertig eingebaut nach DIN-Vorschriften. Hersteller: HUFCOR Deutschland GmbH Triftweg 34 06847 Dessau +49 3 40 54 07 96-0 +49 3 40 54 07 96-28 Angebotenes Fabrikat: __________________________ Hersteller: __________________ Typ: ____________ (vom Bieter auszufüllen) Mobiles Elementwandsystem gemäß Vorbemerkungen Breite der Anlage Höhe der Anlage Anzahl der Elemente Durchgangstür Oberfläche Schalldämmung Elementaufhängung höhenverstellbare Abhängung Höhe akustische Abschottung Höhe Laufschienenverkleidung Breite Unterseite Höhe Aufkantung Anzahl der Trennwandanlagen ____________ ____________ ____________ ____________ ____________ ____________ ____________ ____________ ____________ ____________ ____________ ____________ ____________
Preis je Einheit EURO
Betrag EURO
11-2009
Pos.
Anzahl
Gegenstand
Bauvorhaben: ............................................................
.......
Preis je Einheit EURO
Betrag EURO
Leistungsbeschreibung Mobile Trennwand Typ 100 K
Einzelelemente, die zu einer festen Wand zusammen gefahren werden. Elemente 100 mm stark, mit umlaufender AluminiumRahmenkonstruktion, in den Ecken hochfest verschraubt. Beplankung mit 16 mm Qualitätsspanplatten, Emissionsklasse E1. Sichtbare Aluminiumkante, allseitig. Alu-Druckbalken, oben und unten, schwarz eloxiert, mit Spezialdichtungen. Betätigung mittels stirnseitig abnehmbaren Hebels über Excenter mit selbstständig nachregulierenden Druckausgleichsfedern. Federgelagerte Dichtleisten zum automatischen Ausgleich von Fußbodenunebenheiten. Anpressdruck 1500 N für gute Abdichtung mit Schalldämmung und Standsicherheit. Schalldichte Verzahnungen zwischen den ausfahrbaren Dichtleisten. Je Element nur eine ½ Hebeldrehung für schnelle Bedienung der Trennwand. Elementverbindung: Vertikalprofil in Aluminium naturfarbig eloxiert in Kombination mit Kunststoffprofilen und integrierten Weichgu
mmilippen zur Schallentkoppelung in Nut-FederPrinzip, wahlweise mit integriertem Magnetband. Form- und kraftschlüssige Elementfindung. Große Elementtauchtiefe für sicheren und schalldichten Formschluss. Magnetbänder mit 40 N/m in den Plastprofilen zur Zentrierung der Elemente zueinander und für sicheren Kraftschluss zwischen den Elementen. Seitliche Anschlüsse passend zur Trennwandkonstruktion, Stärke max. 100 mm. Obere Laufschiene Alu natur eloxiert oder weiß. Diverse Deckenauflagewinkelsysteme sind lieferbar. Oberflächen wie Schienen. Leichte und extrem leise Verfahrbarkeit der Elemente in Hauptachsen und Parkbereichen. Montagekammern mit Kulissensteinen in den Schienen gewährleisten akkuraten bündigen Schluss der Schienenteilstücke sowie nicht sichtbare Verschraubung der Schienen mit der Abhängung.
11-2009
Pos.
Anzahl
Gegenstand
Elementaufhängung: 1-Punkt-Mittelaufhängung: Jedes Element mit einem Zwillingsrollenwagen. Wartungsfreies Schienensystem. Kardanisch gel
agerte Aufhängung. Rollenkörper aus Aluminium, kugelgelagert, hochabriebfest kunststoffummantelt und daher mit besonderer Laufruhe. Elementaufhängung: 2-Punkt-Doppelaufhängung: Kugelgelagerte Zweischeibenrollenwagen aus Stahl und hochabriebfestem Kunststoff, verschleißfrei, in Abzweigungen leicht in alle Richtungen verfahrbar, wartungsfrei. Ohne Bodenlaufschiene. Höhenverstellmechanik in jedem Element, die eine Nachjustierung der Elemente ohne Öffnen der Decke ermöglicht. Stahlabhängekonstruktion für die Laufschiene an bauseitigen statisch tragenden Bauteilen, mit ausreichender Verstellbarkeit für spätere Deckensenkungen, keine starren Abhängungen. Alle Konstruktionen mit Korrosionsschutz versehen. Die Abhängung ist längs und quer zur Trennwandachse verstellbar und kann längs und quer horizontal ausgerichtet werden. Akustische Abschottung über den Laufschienen entsprechend dem Schalldämmwert der Trennwand. Sie wird mittels spezieller Profile fugendicht an die Laufschi
ene und die angrenzenden Bauteile angeschlossen. Teleskopelement 1 Element der Wand als Teleskopelement ausgeführt, Bedienung von der Fläche, Hub bis 120 mm. Keine aufdoppelnden Spanplattenteile. Nur eine ½ Drehung zum öffnen oder schließen ist erlaubt. Schlupftürelement, mit dem Element verfahrbar, mit umlaufendem Portalrahmen aus Stahlprofilen. Ausführung mit zwei seitlichen Holmen mit Druckbalken. Flächenbündig mit der Wand. Wahlweise mit automatischer Sicherung des Türblattes beim Verfahren der Elemente. Türblatt mit automatischer Andruckmechanik mit unterem Druckbalken. Doppelfalz-Türen mit 2 Türanschlagdichtungen, ergonomisch gestaltete Alu-Griffmulde mit Alu-Drücker sowie 3 Stück 2-Rollen-Kantenbänder aus Edelstahl mit nur 20 mm Überstand zur Trennwand. Schalldämmung nach der gültigen DIN EN 20140-3:1995.
Preis je Einheit EURO
Betrag EURO
11-2009
Pos.
Anzahl
Gegenstand
TÜV-Prüfung nach DIN 31000 (Gerätesicherheitsgesetz) + DIN 18032 (Ballwurfsicherhe
it) für eine betriebsfertige, eingebaute Trennwand einschl. Teleskopelement und Schlupftürelement. Eine jährl. Fertigungsstättenbesichtigung durch den TÜV garantiert eine gleichbleibende auf hohem Niveau befindliche Qualität. Ein Nachweis ist zu führen. DIN ISO-9001 Die Betriebsabläufe müssen dem Qualitätsmanagement-System 9000 ff. entsprechen. Lieferung Frei Baustelle liefern, einschl. Transport innerhalb des Gebäudes, fertig eingebaut nach DIN-Vorschriften. Hersteller: HUFCOR Deutschland GmbH Triftweg 34 06847 Dessau +49 3 40 54 07 96-0 +49 3 40 54 07 96-28 Angebotenes Fabrikat: __________________________ Hersteller: __________________ Typ: ____________ (vom Bieter auszufüllen) Mobiles Elementwandsystem gemäß Vorbemerkungen Breite der Anlage Höhe der Anlage Anzahl der Elemente Durchgangstür Oberfläche Schalldämmung Elementaufhängung höhenverstellbare Abhängung Höhe akustische Abschottung Höhe Laufschienenverkleidung Breite Unterseite Höhe Aufkantung An
zahl der Trennwandanlagen ____________ ____________ ____________ ____________ ____________ ____________ ____________ ____________ ____________ ____________ ____________ ____________ ____________
Preis je Einheit EURO
Betrag EURO
11-2009
Pos.
Anzahl
Gegenstand
Bauvorhaben:...................................................................
Preis je Einheit EURO
Betrag EURO
Leistungsbeschreibung Glasschiebewand
Lieferumfang: Glasschiebewand für den Innenbereich, bestehend aus einzelnen Wandelementen und/oder Türelementen, die zu einer festen Glastrennwand zusammengefahren werden. Türelemente lieferbar als festangeschlagen oder als Universal-Durchgangstür. Universal-Durchgangstür, bestehend aus Ankerelement und Türelement im Breitenverhältnis 4:3, Öffnen der Tür um ca.180° in jede Richtung, mit Türbeschlägen flacher Bauform (Vermeidung von Glaskratzern). Bauart: Elementwand, Montagewand, einschalig, bündiger Schluss der Glasplatten, millimetergenaue dauerhafte Höhen
justierung, Alu-Profile und Beschläge in allen Farbtönen lieferbar, Einscheibensicherheitsglas. Horizontalprofile: Aluminiumprofile, mit Glasscheiben formschlüssig verbunden, je Element 4 Bohrungen mit Glas, mit 10 mm Bolzen und 1 mm Kunststoffummantelung. Keine Klemmprofile und somit keine Ermüdungserscheinungen in der Fixierung Glas zu Aluprofil. Stirnseitig am Elementstoß Endkappen aus Alu-Gussteilen, anthrazit. Aufhängebolzen für Rollenwagen im Horizontalprofil verstellbar verschraubt, Bolzenabstand und Höhentoleranz sind verstellbar. Optional lieferbar obere und untere Bürstendichtungen. Anschlüsse: an der Decke: mit Alu-Schienen, natur eloxiert oder weiß. Diverse Deckenauflagewinkelsysteme sind lieferbar. Oberflächen wie Schienen. Leichte und extrem leise Verfahrbarkeit der Elemente in Hauptachsen und Parkbereichen. Montagekammern mit Kulissensteinen in den Schienen gewährleisten akkuraten bündigen Schluss der Schienenteilstücke sowie nicht sichtbare Verschraubung
der Schienen mit der Abhängung. am Boden: ohne Bodenführung, nur Verriegelung der Einzelelemente durch Bolzen oder Riegelfallenschloss.
11-2009
Pos.
Anzahl
Gegenstand
Elementaufhängung: 2-Punkt-Doppelaufhängung. Kugelgelagerte Zweischeibenrollenwagen aus Stahl und hochabriebfestem Kunststoff, verschleißfrei, in Abzweigungen leicht in alle Richtungen verfahrbar. Höhenverstellmechanik in jedem Element, die eine Nachjustierung der Elemente ohne Öffnen der Decke ermöglicht. Stahlabhängekonstruktion für die Laufschiene an bauseitigen statisch tragenden Bauteilen, mit ausreichender Verstellbarkeit für spätere Deckensenkungen, keine starren Abhängungen. Alle Konstruktionen mit Korrosionsschutz versehen. Die Abhängung ist längs und quer zur Trennwandachse verstellbar und kann längs und quer horizontal ausgerichtet werden. Parkung: Parken auf engstem Raum. Maßangaben: Maßkoordination: Achsraster, Rastermaß variabel Elementbreite: Normalelement + Tür festangeschlagen: 61
0 - 1.220 mm Universal-Durchgangstür Türelement: 840 - 900 mm Ankerelement: Tür + 320 mm max. 1.220 mm Elementhöhe: bis 3.500 mm Glasdicke: 10 mm (bis h = 3.000 mm) 12 mm (bis h = 3500 mm) Paketdicke: Elemente x 64 mm Öffnungsmaß Breite: bis Raumbreite Höhe: bis Raumhöhe abzüglich Systemmaße Optik: Oberflächenstrukturen: glatt, matt, poliert, künstlerische Gestaltung Siebdruck, auch nach individuellen Vorlagen sandgestrahlt. TÜV-Prüfung nach DIN 31000 für eine betriebsfertige, eingebaute Trennwand. DIN ISO-9001 Die Betriebsabläufe müssen dem QualitätsmanagementSystem 9000 ff. entsprechen.
Preis je Einheit EURO
Betrag EURO
11-2009
Pos.
Anzahl
Gegenstand
Lieferung Frei Baustelle liefern, einschl. Transport innerhalb des Gebäudes, fertig eingebaut nach DIN-Vorschriften. Hersteller: HUFCOR Deutschland GmbH Triftweg 34 06847 Dessau +49 3 40 54 07 96-0 +49 3 40 54 07 96-28 Angebotenes Fabrikat: __________________________ Hersteller: __________________ Typ: _
___________ (vom Bieter auszufüllen) Mobiles Elementwandsystem gemäß Vorbemerkungen Breite der Anlage Höhe der Anlage Anzahl der Elemente Glasgestaltung, Farbe höhenverstellbare Abhängung Höhe Laufschienenverkleidung Anzahl der Trennwandanlagen ____________ ____________ ____________ ____________ ____________ ____________ ____________
Preis je Einheit EURO
Betrag EURO
11-2009
Schalldämmende bewegliche Wände
Referenzen
Verfahrbare Glastrennwände
5 Zertifikate 4 Oberflächen 3 Schienensysteme
7 Referenzen
Bewegliche Trennwand - Systeme
Glastrennwand 2 TYP G 3000
Mobile Trennwand 1 TYP 100 Typ 100 K
6 Ausschreibungstexte
Alte documentatii ale aceleasi game Vezi toate
Lucrari, proiecte 40 p | EN