Installation
GIS System
cm
2
15
8
16
17
1.
2.
3.
10
18
19
12
20
14
21
22
D15309-002 © 10-2010
23
24
964.124.00.0 (03)
1
Installation
cm
B
H
T
0
0–20
∞
≤ 45
≤ 360
∞
≤ 45
≤ 450
≤ 350
≤ 45
≤ 360
≤ 250
≤ 45
≤ 150
≤ 250
≤ 44
≤ 200
≤ 100
≤ 45
D15309-002 © 10-2010
≤ 500
2
Installation
cm
5
≤ 65
5
5
≤ 65
130
≤ 65
≤ 250
5
≤ 65
130
≤ 65
0
5
5
0–20
≤ 100
≤ 100
≤ 100
≤ 100
130
D15309-002 © 10-2010
130
0
0–20
3
Installation
cm
≤
10
100
0
≤ 10
10
≤1
≤ 100
00
10
10
0
≤ 10
0
≤ 10
10
≤ 40
≤ 40
0
10
≤ 10
0
≤ 10
10
4
D15309-002 © 10-2010
≤ 40
≤ 40
10
≤ 40
≤ 40
Installation
cm
T
T
T
T
T
T
≤ 250
≤ 100
T
≤ 100
T
T
T= 13–24
≤ 100
T= 85–31
T
T= 31–45
≤ 100
D15309-002 © 10-2010
0
T= 31–45
≤ 100
T
≤ 100
0–20
5
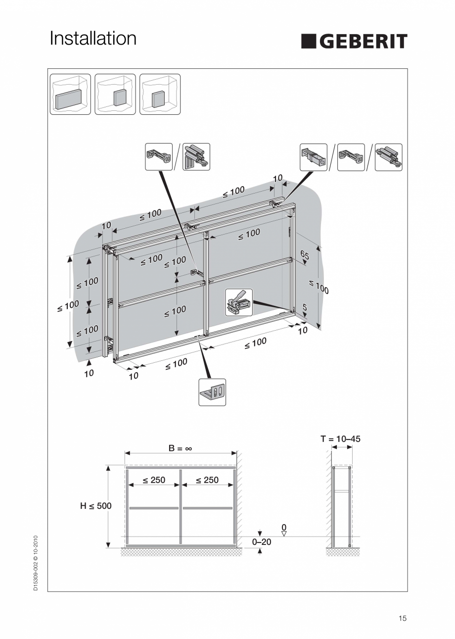
Installation
cm
T
T
T
T
T
T
T
T
≤ 250
T
T= 36–45
6
T
T
T
≤ 100
≤ 100
T
T= 105–36
T
≤ 100
0
0–20
≤ 100
T
≤ 100
T
D15309-002 © 10-2010
T= 13–24
T
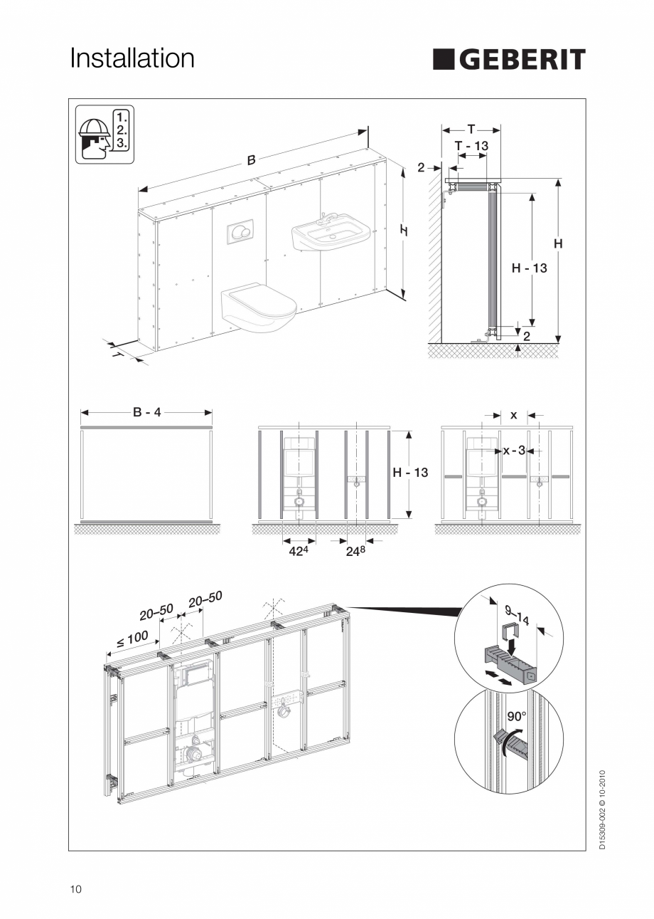
Installation
32
65
15
32
5
5
5
65
18
B
T
T - 13
H
2
T
H
H - 13
B-4
X
2
X-3
D15309-002 © 10-2010
H - 13
7
Installation
T
RH
DN 50 DN 80 DN 100
(d 63) (d 90) (d 110)
TH
56/63
8
1
H
T
T
0
0
0–20
0–20
75/90
110
[cm]
UP200
18
DN (d)
H
DN (d)
165
185
≥ 114
RH
205
TH
225
RH
205
TH
225
87–100
87–114
13
16
18
≥ 87
13
16
18
≥ 114
≥ 142
-
T
DN 50 DN 80 DN 100
(d 63) (d 90) (d 110)
T
56/63
75/90
110
[cm]
18
215
235
255
255
18
21
23
18
21
23
UP200
0
0–20
DN (d)
T
DN 50 DN 80 DN 100
(d 63) (d 90) (d 110)
T
56/63
75/90
110
[cm]
18
29
31
0
39
39
0–20
24
24
30
30
18
20
22
18
20
22
UP200
8
UP200
D15309-002 © 10-2010
DN (d)
Installation
T
A
T = 165–24
T = 165–31
T = 165–45
K
0
A ≤ 62
+2
K = 41 -1
A ≤ 62
K = 44–52
T
0
A ≤ 70
K = 44–52
T
T
0
T
T
T
T
T 130
0
65
0–17
T
T
0
0
0
17–20
D15309-002 © 10-2010
0
T
T
T
T 130
0
65
-
20–40
9
Installation
1.
2.
3.
T
T - 13
B
2
H
H
H - 13
2
T
B-4
x
x-3
H - 13
424
0
20–5
0
20–5
248
9–
14
0
≤ 10
D15309-002 © 10-2010
90°
10
Installation
2
2
Ø 10 mm
D15309-002 © 10-2010
6
11
Installation
1
1
2
2
45°
0–3 mm
3
A
1
A
A
A
D15309-002 © 10-2010
A
12
Installation
4
6
65
130
130
65
5
65
130
130
65
7
1
5
6
12–1
6
12–1
6
2–6
12–16
12–16
D15309-002 © 10-2010
12–16
12–1
13
Installation
3
1
2
Ø 120 mm
Ø 60 mm
Ø 30 mm
Ø 60 mm
Ø 40 mm
D15309-002 © 10-2010
Ø 40 mm
14
Installation
10
0
≤ 10
0
≤ 10
10
0
≤ 10
65
0
≤ 10 ≤ 100
≤1
0
≤ 10
00
0
≤ 10
5
0
≤ 10
0
≤ 10
≤
10
100
0
10
10
≤ 10
T = 10–45
B=∞
≤ 250
≤ 250
H ≤ 500
D15309-002 © 10-2010
0
0–20
15
Installation
10
0
0
≤ 10
≤ 10
10
13
0+
65
13
5
0
≤ 10
≤1
00
0
≤ 10
0
≤ 10
13
0
65
0
≤ 10
≤1
00
5
10
0
≤ 10
0
≤ 10
10
T = 10–45
B=∞
≤ 250
≤ 250
0
0–20
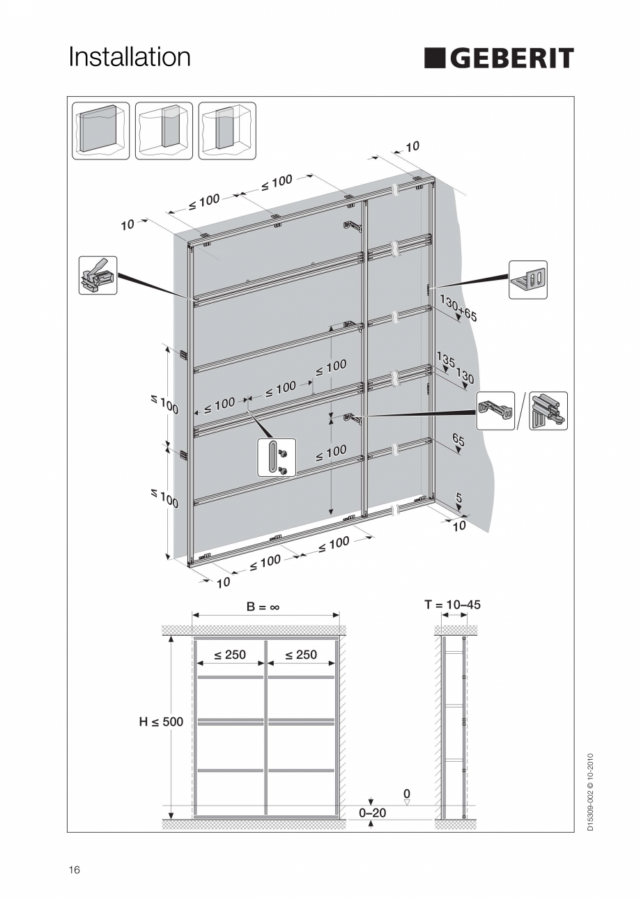
16
D15309-002 © 10-2010
H ≤ 500
Installation
10
0
10
≤1
00
≤1
00
≤ 10
0
≤ 10
≤
100
≤
100
0
≤ 10
13
0+
13
5
0
≤ 10
65
0
≤
10
13
0
0
≤ 10
100
65
5
≤ 10
10
0
≤ 10
0
≤ 10
T = 13–45
B*
≤ 250
≤ 250
H*
D15309-002 © 10-2010
0
0–20
H*
1. ≤ 360
2. ≤ 450
B*
∞
≤ 350
17
Installation
10
≤
0
≤ 10
100
10
0
≤1
00
0
≤ 10
≤ 10
13
0+
65
0
≤ 10
≤1
00
13
0
0
≤ 10
5
0
≤ 10
≤1
00
65
0
0
13
≤ 10
≤ 10
≤1
00
5
+
10
0
+
0
≤ 10
10
≤ 10
10
T = 20–44
B ≤ 250
0
0–20
18
D15309-002 © 10-2010
H ≤ 360
Installation
10
10
≤ 60
≤ 60
≤6
0
≤ 60
≤ 60
≤ 60
≤6
0
≤ 60
13
0+
65
≤ 60
≤ 60
≤6
13
5
0
13
0
≤6
≤ 60
0
≤ 60
65
5
+
+
+
10
10
≤ 60
≤ 60
T = 20–44
B ≤ 250
D1530
9-002 © 10-2010
H ≤ 360
0
0–20
19
Installation
0
≤ 10
0
≤ 10
0
13
0
13
0+
≤ 10
≤
≤1
00
≤ 10
5
00
65
0
≤ 10
0
13
≤1
0
0
≤ 10
≤1
00
65
100
≤ 10
≤1
00
5
10
0
10
≤
100
≤ 10
0
≤ 25
10
T = 13–45
B ≤ 250
0
0–20
20
D15309-002 © 10-2010
H ≤ 360
Installation
≤ 60
≤ 60
13
5
0
≤ 60
≤ 60
≤ 60
13
65
5
≤ 60
+
≤6
0
10
10
≤ 60
≤ 60
10
+
T = 20–44
B ≤ 250
H ≤ 150
D15309-002 © 10-2010
0
0–20
21
Installation
2x
≤ 60
≤ 60
≤ 60
13
≤ 60
5
13
0
2x
≤ 60
65
≤ 60
+
5
10
≤ 60
10
≤ 60
≤6
0
≤ 60
+
+
T = 20–44
B ≤ 250
H ≤ 150
0
D15309-002 © 10-2010
0–20
22
Installation
≤ 60
≤ 60
10
13
5
13
0
≤ 60
≤ 60
65
≤ 60
5 ≤ 60
≤ 60
10
10
≤ 60
≤ 60
+
T = 20–45
B ≤ 100
H ≤ 200
D15309-002 © 10-2010
0
0–20
23
Installation
A
0 10
10
≤ 10
10
0
≤ 10
B
10
3
-1
T
1
â‰
¤ 100
T
≤ 30
12
45°
65
B
B - 13
65
0
0–20
24
Geberit International AG, Schachenstrasse 77, CH-8645 Jona
www.geberit.com, dokumentation@geberit.com
D15309-002 © 10-2010
H ≤ 360