Fisa tehnica sistem siguranta Greenline GES-4 GRUN
Manual de instalare și utilizare
Citiți cu atenție descrierea produsului
GREEN
INTERNATIONAL
GREENLINE GES-4 mare
ENGLEZĂ
GREENLINE GES-4
DE
ACHTUNG
Die Montage und die Verwendung der Sicherungseinrichtung ist erst zulässig, nachdem der Monteur und der
Anwender die Original Aufbau– und Verwendungsanleitung in der jeweiligen Landessprache gelesen hat.
EN
ATENȚIE
Asamblarea și utilizarea produsului de siguranță este permisă numai după ce montatorul și utilizatorul au
citit instrucțiunile originale de instalare și aplicare în limba țării lor de origine.
FR
ATTENTION
Le montage et l’utilisation du dispositif de sécurité ne sont autorisés qu’après lecture par le monteur et par
l’utili- sateur de la notice d‘origine de montage et d‘utilisation dans la langue du pays concerné.
IT
ATTENZIONE
Il montaggio e l’uso del dispositivo di sicurezza è ammesso soltanto dopo che il montatore e l’utente hanno
letto le istruzioni per l‘installazione e l
uso nella rispettiva lingua nazionale.
ES
ATENCIÓN
No está permitido montar ni usar el dispositivo de protección antes de que el montador y el usuario hayan
leído las instrucciones de montaje y uso originales en la lengua del respectivo país.
PT
ATENÇÃO
A montagem e o emprego do mecanismo de proteção somente serão permitidos, após o montador e o usuário terem lido as instruções de uso originais, no respectivo idioma do país, sobre a montagem e o emprego do mesmo.
NL
ATTENTIE
De montage en het gebruik van de veiligheidsinrichting is pas toegestaan, nadat de monteur en de
gebruiker de originele montage en gebruikershandleiding in de desbetreffende taal gelezen hebben.
HU
FIGYELEM
A biztonsági berendezés felszerelése és használata csak az után megengedett, miután a szerelést végző és a
használó személyek a nemzeti nyelvükre lefordított, eredeti használati utasítást elolvasták és megértették.
SL
POZOR
Montaža in uporaba varnostnih naprav je
dovoljena šele takrat, ko sta monter in uporabnik prebrala
originalna navodila za montažo in uporabo v konkretnem jeziku.
CZ
POZOR
Montáž a používání zabezpeovacího zařízení jsou povoleny až poté, co si pracovníci provádějící montáž a
uživa- telé přečetli v příslušném jazyce originální návod k montáži a používání.
TR
DİKKAT
Güvenlik tertibatının montajına ve kullanımına, ancak montaj teknisyeni ve kullanıcı, orijinal kurulum ve
kullanma talimatını kendi ülke dilinde okuduktan sonra, izin verilir.
NO
OBS
Monteringen og anvendelsen av sikkerhetsinnretningene er gyldige først etter at montøren og brukeren har
lest den originale oppbygnings- og bruksanvisningen i det tilsvarende landets språk.
SV
OBS
Säkerhetsanordningen får inte monteras och användas förrän montören och användaren har läst igenom
konst- ruktionsbeskrivningen och bruksanvisningen i original på resp lands språk.
FI
HUOMIO
Turvalaitteiden asennus ja k
yttö on sallittu vasta, kun asentaja ja käyttäjä ovat lukeneet alkuperäisen
asennus- ja käyttöohjeen omalla kielellään.
DA
GIV AGT
Montagen og brugen af sikkerhedsudstyret er først tilladt, efter at montøren og brugeren har læst den
originale vejledning i samling og brug på det pågældende lands sprog.
2
GREENLINE GES-4
DATE REFERITOARE LA PROIECT
DESCRIEREA SISTEMULUI
COMPANIA DE MONTAJ
3
GREENLINE GES-4
Cuprins
1. Observații importante
1.1. Inspecție înainte de fiecare utilizare
1.2. Echipamente compatibile
2. Instrucțiuni de siguranță
3. Descrierea produsului GREENLINE
3.1. Aprobări
3.2. Utilizatori
3.3. Dispozitive de conectare
3.4. Accesul la dispozitivul de ancorare
3.5. Garanție
3.6. Standarde
4. Specificații tehnice
5. Utilizare
5.1. Testare înainte de utilizarea dispozitivului de ancorare GREENLINE
5.2. Cum se utilizează dispozitivul orizontal de ancorare
6. Teste
6.1. Inspecția dispozitivului de ancorare de tip C (sistem de siguranță cu
cablu)
6.2. Examinarea harnașamentelor și a dispozitivelor de fixare
6.3. Verificarea punctului mobil de ancorare (dispozitivul de filat al cablului)
7. Componentele sistemului
7.1. Ghidaj intermediar de susținere cablu „SZH” cu un punct de ancorare
7.2. Suport curb 90°„GEH-90°” cu un punct de fixare
7.3. Suport curb 45°„GEH-45°” cu un punct de fixare
7.4. Suport curb 90°„FKS-90°” cu două puncte de fixare
7.5. Set de blocare de capăt GREENLINE „GES-4”
7.6. Vedere explodată a Setului de blocare de capăt „GES-4”
7.7. Plăcuță de identificare (Standard) Tip C
7.8. Plăcuță de identificare Tip C/E
7.9. Plăcuță de identificare Varianta F
8. Încărcarea sistemului și deformarea cablului
9. Exemplu de calcul: Golul minim sub marginea acoperișului
10. Întreținere
11. Punctul de livrare al dispozitivului de ancorare
12. Tabel: Încărcarea sistemului GREENLINE și deformarea cablului
13. Protocol de testare al sistemului GREENLINE de ancorare cu
cablu
14. Înregistrarea aprobării sistemului de siguranță GREENLINE cu cablu
15. Sistemul orizontal de siguranță cu cablu
16. Cardul de control
17. Observații
4
5
5
5
6
8
8
8
8
8
8
9
9
9
9
10
12
12
12
12
12
12
13
13
14
14
15
16
16
17
18
19
20
20
21
22
24
25
26
27
GREENLINE GES-4
1. Observații importante
• Aceste instrucțiuni de siguranță trebuie studiate cu precizie înainte de utilizarea sau de instalarea dispozitivului
de ancorare și trebuie respectate!
• Utilizatorul dispozitivului de ancorare trebuie să fi citit și înțeles aceste instrucțiuni de siguranță înainte de utilizare
și trebuie să respecte instrucțiunile producătorului.
• În cazul în care dispozitivul de ancorare este vândut în țări cu alte limbi, dealerul trebuie să se asigure că
manualul de utilizare este în furnizat în limba locală.
• Nu trebuie să se facă modificări structurale ale dispozitivului de ancorare fără permisiunea expresă în scris a
producătorului: GREE
N International Absturzsicherungs GmbH.
• Modificările limitează eficiența dispozitivului de ancorare și, în consecință, siguranța utilizatorilor.
1.1. Inspecție înainte de fiecare utilizare
• Înainte de utilizare, întregul sistem al dispozitivului de ancorare trebuie verificat pentru defecte evidente, prin
inspecție vizuală (de exemplu conexiuni cu șurub slăbite, deformări, abraziune, coroziune, etanșare defectă a
acoperișului, etc.).
• Dacă există îndoieli cu privire la siguranța dispozitivului de ancorare, acesta trebuie inspectat de către un expert
(documentare în scris).
• Trebuie să existe un plan de salvare în caz de urgență, în care toate urgențele posibile la locul de muncă sunt luate în
considerare.
• Înainte de începerea lucrului, trebuie luate măsuri pentru a se asigura că niciun obiect nu poate să cadă din
punctul de lucru. Zona de sub punctul de lucru trebuie menținută liberă.
• Substructura (de ex. acoperișul din t
ablă) trebuie verificată înainte de utilizarea dispozitivului de ancorare pentru
defecte vizibile (de exemplu fisuri).
• În cazul în care viteza vântului depășește valoarea obișnuită, opriți utilizarea dispozitivului de ancorare.
1.2. Echipamente compatibile
• Atașarea la dispozitivul de ancorare GREENLINE Horizontal este realizată prin agățarea corespunzătoare a
dispozitivului de filare GREEN Rope runner (aprobat pentru o singură persoană, întregul dispozitiv traversabil), sau
cu o carabinieră (EN 362) (dispozitiv netraversabil).
• Pentru conectarea unui echipament de protecție personală împotriva căderii (PSAgA) trebuie utilizate conform
EN 361 (hamuri de siguranță) și EN 363 (sistem de oprire în caz de cădere, absorbitor forță de absorbție EN 355
cu buclă de prindere EN 354).
• Trebuie evitat(ă) riscul/defectarea produs(ă) de o combinație invalidă de elemente individuale ale echipamentului
individual de protecție. Trebuie respectate in
strucțiunile de utilizare ale echipamentelor individuale de protecție!
• Atenție: Pentru aplicația orizontală, se pot utiliza numai elemente de fixare adecvate pentru acest scop și pentru
modelele corespunzătoare ale marginii (muchii ascuțite, tablă trapezoidală, grinzi de oțel, beton, etc.).
5
GREENLINE GES-4
2. Instrucțiuni de siguranță
• Dispozitivele orizontale de ancorare testate la EN 795 Tip C pot fi instalate numai de către persoane cu cunoștințe
corespunzătoare privind sistemul de siguranță al acoperișului.
• Dispozitivul orizontal de ancorare „GREENLINE” poate fi instalat numai de către persoane care au fost instruite de
compania GREEN International Absturzsicherungs GmbH.
• Dispozitivul de ancorare poate fi utilizat numai de persoane familiarizate cu aceste instrucțiuni de utilizare, precum și
cu reglementările locale privind siguranța, sănătoase fizic sau mental și instruite cu privire la EIP (echipament
individual de protecție).
• Problemele de sănătate pot afecta siguranța utilizatorului atunci când se lucrează la înălțime.
• În timpul instalării/utilizării sistemului orizontal de siguranță GREENLINE, regulamentele aplicabile de prevenire a
accidentelor trebuie respectate și adoptate.
• Înainte de începerea lucrului, trebuie definite procedurile de salvare care vor fi aplicate pentru toate tipurile posibile de
situații urgență.
• Instalatorii trebuie să se asigure că platforma este adecvată pentru atașarea dispozitivului de ancorare. În caz de
îndoială, trebuie consultat un inginer de rezistență a structurii.
• Dispozitivul de ancorare este proiectat pentru încărcare în toate direcțiile paralele cu suprafața de montare sau
perpendiculare pe suporturi.
• Dacă sunt incertitudini, vă rugăm contactați producătorul.
• Etanșarea acoperișului trebuie realizată în conformitate cu instrucțiunile relevante.
• Fixarea adecvată a sistemului de siguranță pe st
ructură trebuie documentată în jurnalele de situație ale instalării
respective - se recomandă fotografii.
• Oțelul inoxidabil nu trebuie să vină în contact cu praful de la șlefuirea metalului sau cu sculele din oțel. Aceasta poate
produce coroziune.
• Toate șuruburile din oțel inoxidabil trebuie să fie lubrifiate cu un lubrifiant adecvat înainte de asamblare.
• Dispozitivul de ancorare trebuie proiectat, instalat și utilizat astfel încât să nu fie posibilă căderea peste margine, cu
utilizarea adecvată a echipamentului individual de protecție.
• La accesarea sistemului de fixare pe acoperiș, pozițiile dispozitivelor de ancorare (de exemplu: schița acoperișului,
vedere de sus) trebuie documentate în planurile de proiectare.
• Golul minim de la marginea de cădere la pământ se calculează conform:
• Specificației producătorului echipamentului individual de protecție (amortizor de cădere, etc.)
+ deformarea laterală a ghidajului orizontal (ca
blu)
+ Mărimea corpului utilizatorului
+ 1 m rezervă de siguranță.
• Întregul produs de siguranță trebuie să fie supus cel puțin o dată pe an unei inspecții realizate de către un expert.
Inspecția de către expert trebuie documentată pe fișa de control furnizată.
• Dispozitivul de ancorare „GREENLINE” trebuie conectat la sistemul de paratrăsnet și nu trebuie utilizat pe post
de conductor de descărcări electrice, în conformitate cu prevederile privind protecția contra descărcărilor
electrice.
• După un eveniment de cădere, trebuie evitată utilizarea întregului sistem și acesta trebuie verificat de către un
expert (piesele componente, fixarea pe sol, etc).
• Dispozitivul de ancorare a fost realizat pentru siguranța personală și nu poate fi utilizat în alte scopuri. Nu atârnați
sarcini nedefinite pe dispozitivul de ancorare!
• Nu faceți nicio modificare a dispozitivului de ancorare aprobat.
• Pentru acoperișurile în pantă, trebuie pr
evenite avalanșele pe acoperiș (gheață, zăpadă) cu dispozitive adecvate
de interceptare a zăpezii.
• Atenție: Curățarea zăpezii pe instalație este necesară datorită încărcării produse de presiunea zăpezii.
6
GREENLINE GES-4
Prezentarea unor standarde importante:
DIN EN 795
DIN EN 353
DIN EN 354
DIN EN 355
DIN EN 360
DIN EN 361
DIN EN 362
Protecție împotriva căderii - Dispozitive de ancorare - Cerințe și metode de testare
Echipament individual de protecție împotriva căderii - opritoare de cădere
Echipament individual de protecție împotriva căderii - bucle de prindere
Echipament individual de protecție împotriva căderii - absorbitoare de energie
Echipament individual de protecție împotriva căderii - opritoare de cădere retractabile
Echipament individual de protecție împotriva căderii - hamuri complete
Echipament individual de protecție împotriva căderii - piese de legătură
Regulamente de prevenire a accidentelor și reguli de siguranț
(extras) pentru Germania:
Regulamente de securitatea muncii BG (BGV) (BGR) informații (BGI)
BGV A1 BG Bau „Principii de prevenire”
BGV C22BG Bau „Regulamente de prevenire a accidentelor în construcții”
BGI 530 BG Bau „Lucrări de construcție la înălțime”
BGR 198 BG Bau „Utilizarea echipamentului individual de protecție împotriva căderii”
BGR 199 BG Bau „Salvarea de la înălțime sau adâncime cu echipamentul individual de protecție împotriva căderii”
Explicarea simbolurilor
PERICOL!
Manipularea necorespunzătoare poate cauza prăbușirea sau chiar un accident.
AVERTISMENT!
Nerespectarea acestora poate cauza rănire gravă.
IMPORTANT!
Sunt afișate informații utile și sfaturi pentru utilizator.
7
GREENLINE GES-4
3. Descrierea produsului GREENLINE
Dispozitivul de ancorare GREENLINE în conformitate cu EN 795 Tip C (Dispozitiv de ancorare cu un ghidaj flexibil) este
utilizat pentru fixarea echipamentului individual de protecție împotriva căde
rilor. Acest echipament individual de protecție
trebuie purtat de orice muncitor care stă mai aproape de 2 m de o margine abruptă (margini de acoperiș sau ale unor gropi).
Dispozitivul de ancorare GREENLINE a fost realizat pentru aplicații orizontale și constă dintr-un cablu de oțel inoxidabil
cu diametrul ø8 mm care este susținut de cel puțin două atașamente de capăt și de multiple suporturi intermediare.
Întregul dispozitiv de ancorare GREENLINE este realizat din oțel inoxidabil cu componente din aluminiu anodizat.
Utilizatorul sistemului este conectat la sistemul de siguranță cu o centură complexă pentru întregul corp, absorbitor de
cădere și cu glisorul GREEN - GREENRUNNER al cablului.
Beneficiile dispozitivului de ancorare GREENLINE sunt diverse - simplitatea, ergonomia și siguranța sunt punctele
esențiale la proiectarea dispozitivului de ancorare cu ghidaj flexibil.
Componentele dispozitivului de ancorare GREENLINE au fost realizate pe baza unor ani de
experiență și oferă cea mai
mare securitate, opțiuni de asamblare extrem de eficiente și ușurința optimă la utilizare, care permit realizarea efectivă și
eficientă a activităților și în cea mai mare securitate posibilă.
Proiectat ca un sistem continuu, dispozitivul de ancorare GREENLINE oferă suporturi mobile intermediare deplasabile
pentru cablu. Cu aceste suporturi mobile intermediare pentru cablu, dispozitivul de ancorare poate fi deplasat în afara
acoperișului plan și a părții de streașină. Elementele curbe fixe de 90° și elementele curbe care pot fi îndoite
independent, oferă libertate maximă de mișcare pentru maxim patru utilizatori simultan.
Dispozitivul de ancorare GREENLINE poate fi montat, de exemplu, de-a lungul fațadelor, acoperișurilor plane și
acoperișurilor în pantă și în industrie. Pentru a păstra sarcina de impact cât mai scăzută posibil pentru utilizator, dispozitivul
de ancorare este echipat la capete cu componente moderne d
e pre-tensionare și de amortizare.
3.1. Aprobare
Dispozitivul de ancorare - GREENLINE este certificat de către TÜV în conformitate cu EN 795 Tip C/CEN/TS 16415:2013.
Toate armăturile substructurii furnizate sunt testate în mod suplimentar în conformitate cu standardele, pe suprafața
respectivă.
În ceea ce privește numărul de utilizatori ai dispozitivului de ancorare GREENLINE, vă rugăm să consultați evaluarea
dispozitivului relevant de ancorare.
3.2.Utilizatori
Numai persoanele familiarizate cu aceste instrucțiuni și sănătoase fizic și mental pot utiliza dispozitivul orizontal de ancorare
GREENLINE. În cazul unui dubiu opriți utilizarea dispozitivului de ancorare. În ceea ce privește numărul de utilizatori ai
dispozitivului de ancorare, vă rugăm să consultați valoarea nominală a dispozitivului relevant de ancorare.
În conformitate cu Legea protecției angajaților, trebuie asigurată monitorizarea persoanelor pe acoperiș (pentru a asigura a
doua perso
ană și aplicarea tehnicii de ajutor în timpul operațiunilor de salvare)!
3.3. Dispozitive de conectare
Lungimile centurilor (EN 361) și ale dispozitivelor de legătură (EN 363) trebuie să fie potrivite cu obiectul în cauză și să fie
în conformitate cu standardele curente în vigoare.
3.4.Accesul la dispozitivul de ancorare
Accesul la dispozitivul de ancorare trebuie asigurat separat (intrare, ieșire).
În timpul intrării în sau ieșirii din dispozitivul orizontal de ancorare trebuie respectate toate normele aplicabile de securitate a
muncii și sănătate.
3.5.Garanție
Componentele dispozitivului de ancorare GREENLINE sunt realizate din oțel inoxidabil și aluminiu special. În condiții normale
de funcționare și de mediu, se oferă o garanție de 2 ani pentru toate componentele pentru erori de fabricație. Cu toate acestea,
perioada de garanție poate fi scurtată în situația în care dispozitivul este utilizat în atmosfere particular de corozive. Dacă o
tens
iune a sarcinii (căderea utilizatorului) invalidează garanția componentelor proiectate să absoarbă energie, este posibil ca
acestea să se fi deformat și trebuie înlocuite.
Atenție: Pentru sistemele și componentele instalației care au fost furnizate și instalate de companii de montaj pe propria lor
răspundere, GREEN International Absturzsicherungs GmbH nu își asumă nicio responsabilitate sau garanție.
8
GREENLINE GES-4
3.6.STANDARDE
EN 795:2012 Tip C pentru 1 persoană
CEN/TS 16415:2013 Tip C pentru 4 persoane
(Recomandare de utilizare a dispozitivelor de ancorare de mai mult de o persoană)
4. Specificații tehnice
Numărul de utilizatori:
Distanțe de fixare între suporturile cablului:
Cablu de ghidare:
Sarcina maximă pe cablu:
max 4 persoane simultan
3 la 15 m
Tip: 7x7 - ø 8 mm
37 kN (sarcina de rupere)
Partea de deformare a cablului, consultați Tabelul 1:
Material de construcție:
S.21 / Sect. 8
Oțel inoxidabil calitatea 1.4301
Dispozitivul de ancorare
nu este potrivit pentru lucrul suspendat pe cablu.
5. Aplicare
5.1. Testați dispozitivul de ancorare GREENLINE înainte de utilizare
Înainte de utilizarea dispozitivului de ancorare, se va verifica clema indicatorului de cădere și arcul de pre-încărcare de la
legăturile de capăt (consultați secțiunea 0). Pretensiunea în cablul dispozitivului orizontal de ancorare trebuie să fie 75100 kg. Dacă nu se poate citi pe scală pretensiunea pe cablu la legăturile de capăt, sistemul de cabluri trebuie verificat
de un expert înainte de următoarea utilizare. Dacă se identifică semne de deteriorare ale componentelor sistemului sau
ale cablului suport, de coroziune sau de deformare etc., sistemul de cabluri nu mai poate fi utilizat.
AVERTISMENT
Înainte de fiecare utilizare, asigurați-vă că sub utilizator este disponibil un spațiu liber
necesar, astfel încât în cazul unei căderi să nu fie posibil impactul cu solul sau cu alt
obstacol.
OBSERVAȚIE
După o cădere sau o
forță excesivă se vede o distanță vizibilă de la clema indicatorului
de cădere la clema cablului, vezi secțiunea 7.6 Sistemul nu mai trebuie utilizat.
vezi Tabelul 9: „Exemplu de calcul: golul minim sub marginea acoperișului”.
9
GREENLINE GES-4
5.2. Cum se utilizează dispozitivul orizontal de ancorare
Este permisă protejarea unui număr maxim de 4 persoane împotriva căderii, cu cablul cu diametrul de 8 mm al dispozitivului
de ancorare GREENLINE. Fiecare utilizator trebuie să aibă un punct separat mobil de ancorare (de exemplu dispozitive de
filat, exemplu foto GREENRUNNER 01) în direcția de ancorare!
Se pot utiliza numai dispozitivele de filat aprobate de producător, deoarece numai în acest caz există mobilitatea suporturilor
intermediare și se garantează în totalitate o utilizare optimă, sigură a dispozitivului de ancorare.
Utilizatorii nu trebuie niciodată să fie agățați doar cu un simplu cârlig de carabinieră de linia de salvare!
Utilizați nu
mai dispozitivele de prindere conforme cu EN 354 + EN 355, de exemplu, centură pentru 2 picioare cu absorbitor
de șoc integrat.
Observație: Dispozitivul de ancorare nu este traversabil peste suporturile intermediare cu dispozitiv de prindere conform cu
EN 354 +355.
Dispozitivul de ancorare poate fi utilizat numai împreună cu următoarele accesorii de siguranță: Absorbitor de cădere,
conform cu EN355, dispozitive de prindere conforme cu EN 354, harnașamente și centuri conforme cu EN 358, EN
361, EN 362 EN 363.
• Exemplul din imagine: punct de ancorare portabil, de exemplu dispozitiv de filat al cablului „GREENRUNNER 01”
ATENȚIE
Înainte de asamblare și înainte de utilizare, acest manual
de instalare și utilizare trebuie să fie citit cu atenție.
Instrucțiunile de siguranță trebuie respectate.
Manevrarea GREENRUNNER 01
• Deschideți Greenrunner 01 și introduceți cablul de oțel.
10
GREENLINE GES-4
• Apoi închideți Greenrunner 01 și atașați carabinie
ra.
• Fixați carabinieră pe diagonală, blocați (+ blocați șurubul) și pregătiți de utilizare
Blocați capul
șurubului
11
GREENLINE GES-4
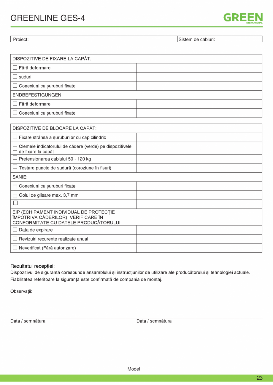
6. Testare
6.1. Inspecția dispozitivului de ancorare de tip C (sistemul de siguranță cu cablu)
Înainte de fiecare utilizare, dispozitivul de ancorare GREENLINE trebuie verificat de către utilizator dacă este în stare
adecvată (inspecție vizuală) și o dată pe an de un expert care este familiarizat cu dispozitivul GREENLINE. În cazuri
excepționale, care depind de domeniul de aplicație, pot fi necesare inspecții suplimentare sau la un interval mai scurt de
timp (lovire de trăsnet, mediu coroziv, etc.).
6.2. Examinarea harnașamentelor și a dispozitivelor de fixare
Înainte de fiecare utilizare a harnașamentului, verificați elementele de fixare și punctele de ancorare în conformitate cu
manualele de instrucțiuni ale acestora. Orice persoană care lucrează în zone cu pericol de cădere de la înălțime trebuie s
verifice pe proprie răspundere, înălțimea posibilă de cădere (vezi Secțiunea 9 Exemplu de calcul: golul minim sub marginea
acoperișului).
Dispozitivele de fixare și lungimile corzilor acestora la dispozitivul de ancorare trebuie adaptate întotdeauna la condițiile locale.
Dispozitivele de fixare (cablul cu dispozitivele de blocare a cablului) trebuie configurate (cât se poate de scurte, cablul
să fie tensionat permanent) astfel încât să se evite o cădere peste margine (sistem de reținere) sau lungimile
dispozitivelor de fixare se vor menține cât se poate de scurte (sistem de oprire a căderii). Numai pe această cale se
poate limita la minim distanța potențială de cădere liberă.
6.3. Verificarea punctului mobil de ancorare (dispozitivul de filat al cablului)
Înainte de utilizarea dispozitivului de filat al cablului trebuie verificate uzura, deteriorarea sau corodarea acestuia.
Dimensiunea fantei (fanta la filare) dispozitivului de filat GREENRUNNER 01 poate
fi de maxim 3,7 mm când este închis. La
verificarea anuală de către un expert, fanta măsurată și starea dispozitivului de filat vor fi documentate în raportul de testare.
7. Componentele sistemului
7.1. Ghidaj intermediar de susținere cablu „SZH” cu un punct de ancorare
Art. 4891 04 00
Ghidajul intermediar de susținere cablu îndeplinește simultan
două funcții:
Punct de prindere a cablului
Conectarea dispozitivului de ancorare cu substructura.
Acesta asigură o glisare ușoară a dispozitivului de filat cablu
prin punctele de prindere ale dispozitivului de ancorare fără
suspendarea utilizatorului. Este ușor de instalat și necesită
numai un singur punct de ancorare pe substructură.
Datorită grilelor consolei este posibilă reglarea consolei
intermediare a cablului în cinci poziții diferite pentru optimizarea
glisării dispozitivului de filat al cablului în funcție de tipul montajului.
De preferință, dispozitivul intermediar de prindere cablu se
montează
n locul unde utilizatorii dispozitivului de ancorare își
desfășoară activitățile (depinde de lungimea dispozitivelor de fixare).
Este potrivit pentru toate tipurile de montaj (podea, perete, plafon).
Observație:
Este important să se verifice capacitatea de încărcare a substructurii pentru susținerea dispozitivului de ancorare și suportarea
tensiunilor care pot să apară în timpul unei căderi (vezi Secțiunea 8 - Tabelul: Încărcarea sistemului și deformarea cablului)
Schiță a ghidajului intermediar de susținere cablu „SZH”
Ghidaj flexibil sau blocabil
40° / 90° pentru cablu
12
GREENLINE GES-4
7.2. Suport curb 90°„GEH-90°” cu un punct de fixare
Art. 4891 12 00
La instalarea unui dispozitiv de ancorare, pe acesta trebuie să se
noteze modul în care utilizatorul individual își va desfășura activitatea.
De obicei, un dispozitiv de ancorare urmează câteva curbe.
Din acest motiv, au fost realizate diverse suporturi curbe GREEN, cu
care se pot reali
za toate tipurile de schimbări de direcție ale
dispozitivului de ancorare.
Suportul curb GEH-90° cu un punct de fixare permite o îndoire la
90° în îmbinarea cu un singur dispozitiv de ancorare de tip A.
Acest set de suporturi curbe este proiectat special pentru a fi utilizat
pe un stâlp. Acest suport curb pre-îndoit, ușor de aplicat garantează
funcționarea corectă a dispozitivului de ancorare. Deformarea
secțiunii curbe în timpul căderii are efectul reducerii tensiunilor pe
structură și pe utilizator.
Observație:
Este important să se verifice capacitatea de încărcare a substructurii pentru susținerea dispozitivului de ancorare și
suportarea tensiunilor care pot să apară în timpul unei căderi
(vezi Secțiunea 8 - Tabelul: Încărcarea sistemului și deformarea cablului)
7.3. Suport curb de susținere 45°„GEH-45°” cu un punct de fixare
Art. 4891 13 00
La instalarea unui dispozitiv de ancorare, pe acesta trebuie să se noteze
modul în care utilizatorul
individual își va desfășura activitatea. De
obicei, un dispozitiv de ancorare urmează câteva curbe.
Din acest motiv, au fost realizate diverse suporturi curbe GREEN, cu
care se pot realiza toate tipurile de schimbări de direcție ale
dispozitivului de ancorare. Suportul curb GEH-45° cu un punct de
fixare permite o îndoire la 45° în îmbinarea cu un singur dispozitiv de
ancorare de tip A.
Acest set de suporturi curbe este proiectat special pentru a fi utilizat
pe un stâlp. Acest suport curb pre-îndoit, ușor de aplicat garantează
funcționarea corectă a dispozitivului de ancorare.
Deformarea secțiunii curbe în timpul căderii are efectul reducerii
tensiunilor pe structură și pe utilizator.
Observație:
Este important să se verifice capacitatea de încărcare a substructurii pentru susținerea dispozitivului de ancorare și
suportarea tensiunilor care pot să apară în timpul unei căderi
(vezi Secțiunea 8 - Tabelul: Încărcarea sistemului și deformarea cablului
individual își va desfășura activitatea. De
obicei, un dispozitiv de ancorare urmează câteva curbe.
Din acest motiv, au fost realizate diverse suporturi curbe GREEN, cu
care se pot realiza toate tipurile de schimbări de direcție ale
dispozitivului de ancorare. Suportul curb GEH-45° cu un punct de
fixare permite o îndoire la 45° în îmbinarea cu un singur dispozitiv de
ancorare de tip A.
Acest set de suporturi curbe este proiectat special pentru a fi utilizat
pe un stâlp. Acest suport curb pre-îndoit, ușor de aplicat garantează
funcționarea corectă a dispozitivului de ancorare.
Deformarea secțiunii curbe în timpul căderii are efectul reducerii
tensiunilor pe structură și pe utilizator.
Observație:
Este important să se verifice capacitatea de încărcare a substructurii pentru susținerea dispozitivului de ancorare și
suportarea tensiunilor care pot să apară în timpul unei căderi
(vezi Secțiunea 8 - Tabelul: Încărcarea sistemului și deformarea cablului
... ascunde