Vila contemporana in Stuttgart

Pe un teren aflat intr-un cartier de vile, la marginea unei paduri din zona de sud a orasului Stuttgart, arhitectul Alexander Brenner a realizat o casa contemporana pentru un client pasionat de arta si familia acestuia.
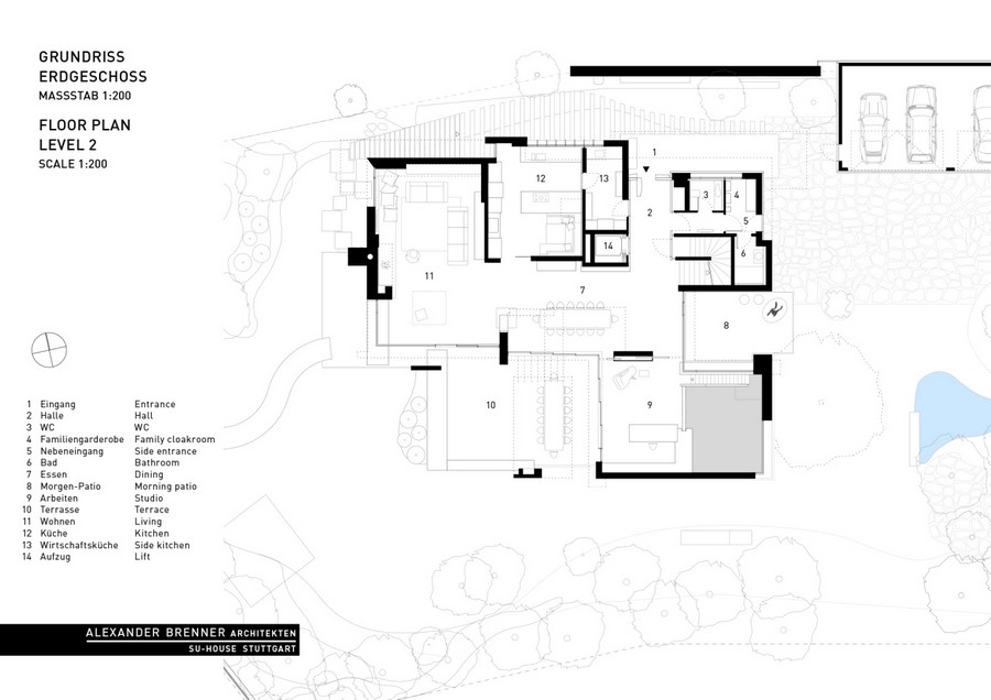
De la zona de acces pe teren, o structura liniara care mascheaza garajul conduce prin gradina amenajata cu lac si terasa folosita dimineata pentru servirea micului dejun, pana la intrarea in locuinta amplasata pe partea de nord. Urmand holul de acces musafirii ajung direct in locul de luat masa, un spatiu generos avand inaltime dubla de nivel si deschidere vitrata ampla catre terasa. Bucataria a fost conceputa si dimensionata astfel incat sa contina toate dotarile necesare unui spatiu modern dar functional, oferind suficient spatiu pentru a avea si o zona de luat masa.
Un semineu cu forme generoase conduce privirea catre locul de relaxare al zonei de zi, gandit putin retras si separat de restul spatiului astfel incat sa ofere o mai mare intimitate. Un luminator pozitionat in tavan, pe toata lungimea peretelui din spate permite luminii sa patrunda in interior si sa puna in valoare tablourile si sculpturile expuse. Din spatiul biroului amplasat pe partea de sud, cu deschidere spre terasa se poate cobora pe o scara ingusta, intr-o rampa care conduce in atelier. Acest spatiu cu inaltime dubla este folosit de beneficiar pentru a-si expune operele de arta aflate in colectia personala.
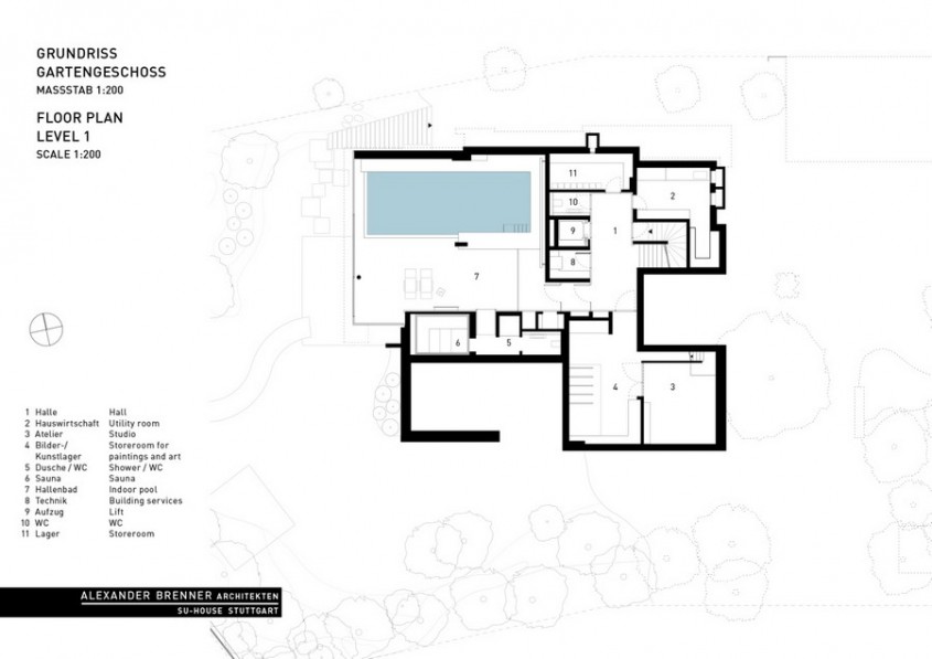
Mare parte din curtea inferioara a fost amenajata cu o piscina si o zona spa. Zona saunei si a baii de abur este retrasa, intr-o laterala a piscinei si a fost amenajata in tonuri calde de rosu si auriu. Pe de alta parte spatiul piscinei se deschide catre gradina pe partea de sud-vest prin intermediul unor vitraje mari.
La etaj spatiile de noapte au fost amenajate in jurul golului vertical ce face legatura cu parterul. Exista doua dormitoare pentru copii, unul pentru oaspeti si dormitorul matrimonial toate dotate cu bai proprii si spatii de depozitare. Dormitorul matrimonial ocupa un spatiu generos care cuprinde o zona de dressing si accesul in baie. Semineul de la parter este preluat si in aceasta camera beneficiind de un sopatiu de relaxare imediat langa el. Terasa acoperita pozitionata chiar in fata dormitorului ofera proprietarilor vederi ample catre imprejurimi.
Mai multe informatii gasiti pe: http://www.e-architect.co.uk
Traducere si adaptare: Arh. Raluca Popa




































