Mortar pe baza de ciment pentru repararea si nivelarea betonului MAPEI PLANITOP RASA & RIPARA

Limba: Romana
80 afisari
Tip documentatie: Fisa tehnica
Salvează pdf
Pagina 1-Mortar pe baza de ciment pentru repararea si nivelarea betonului MAPEI PLANITOP RASA & RIPARA...
Pagina 2-Mortar pe baza de ciment pentru repararea si nivelarea betonului MAPEI PLANITOP RASA & RIPARA...
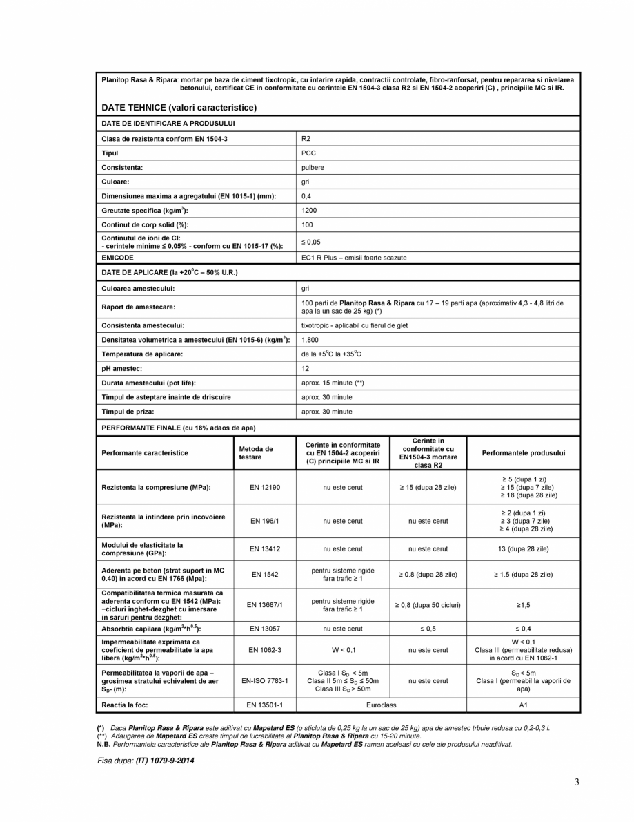
Pagina 3-Mortar pe baza de ciment pentru repararea si nivelarea betonului MAPEI PLANITOP RASA & RIPARA...
aderenta optima la betonul vechi(≥1,5 MPa) daca acesta a fost umezit cu apa in prealabil, si la armaturile din fier in special daca acestea au fost tratate cu Mapefer sau Mapefer 1K, mortare pe baza de ciment, anticorozive si cu proprietatea de refacere a alcalinitatii, certificate EN 1504-7 „Protectia Anticoroziva a Armaturilor”’;  stabilitate dimensionala ridicata si ca atare, risc redus de fisurare in faza plastica de intarire precum si dupa intarire;  rezistenta mare la ciclurile de inghet/dezghet, conform EN 1542, exprimata ca aderenta;  permeabilitate foarte scazuta la apa. Planitop Rasa & Ripara respecta principalele cerinte ale normativului EN 1504-9 („Produse si sisteme pentru repararea si protejarea suprafetelor din beton: definitii, cerinte, controlul calitatii si evaluarea conformitatii. Principii generale pentru utilizarea produselor si sistemelor’’) si cerintele minime ale EN 1504-3 ("Reparatii structurale si nestructurale") pentru mortare ne-struc ... ascunde

Alte documentatii ale aceleasi game
Vezi toate

Pentru noi, confidențialitatea dvs. este importantă
Portalul spatiulconstruit.ro folosește cookies pentru a asigura funcționalitatea și securitatea site-ului, pentru a personaliza conținutul și modul de interacțiune, pentru a oferi facilități de social media și pentru a analiza modul în care este utilizat site-ul. Aceste cookies sunt stocate și prelucrate, de către noi sau partenerii noștri în conformitate cu toate reglementările în vigoare și toate standardele de confidențialitate și securitate actuale.

Vă rugăm să rețineți că este posibil ca anumite prelucrări ale datelor dumneavoastră cu caracter personal să nu necesite consimțământul dumneavoastră, dar vă puteți exprima acordul cu privire la prelucrarea realizată de către noi și partenerii noștri conform descrierii de mai sus utilizând butonul SUNT DE ACORD de mai jos.

Navigând în continuare, vă exprimați acordul implicit asupra folosirii cookie-urilor.

Mai multe detalii despre politica noastră de confidențialitate aflați aici: https://www.spatiulconstruit.ro/politica-de-confidentialitate.