Izolatie ignifuga flexibila din spuma elastomerica ARMACELL Armaflex Protect
BARIERĂ ANTIFOC UNIVERSALĂ,
FLEXIBILĂ, PENTRU CONTROLUL
CONDENSULUI, CORESPUNZĂTOARE CU
ARMAFLEX ÎN PUNCTUL DE
TRAVERSARE A ŢEVILOR
Powered by TCPDF (www.tcpdf.org)
•
•
•
•
•
•
•
•
O singură soluţie pentru aplicaţii la cald şi la rece
Pentru ţevi de oţel, cupru şi plastic
Pentru pereţi rigizi, planşee şi pereţi despărţitori
Instalare simplă şi rapidă
Rezistenţă la foc până la 120 de minute, în
conformitate cu EN13501
Aplicabilitate la toate izolaţiile Armaflex
Reduce zgomotele structurale
Instruire profesională furnizată de Armacell
Powered by TCPDF (www.tcpdf.org)
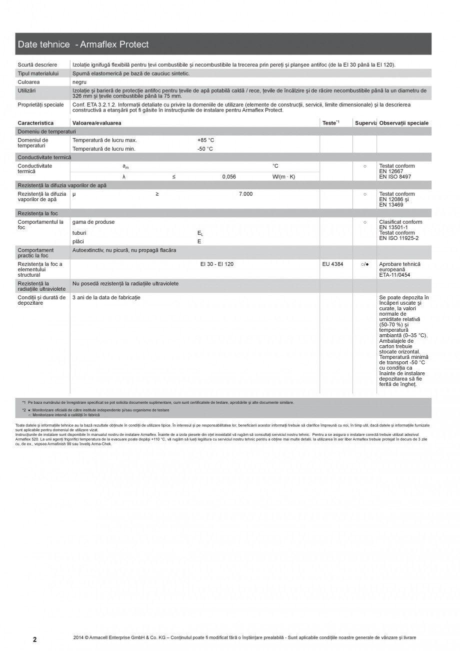
Date tehnice - Armaflex Protect
Scurtă descriere
Izolaţie ignifugă flexibilă pentru ţevi combustibile şi necombustibile la trecerea prin pereţi şi planşee antifoc (de la EI 30 până la EI 120).
Tipul materialului
Spumă elastomerică pe bază de cauciuc sintetic.
Culoarea
negru
Utilizări
Izolaţie şi barieră de protecţie antifoc pentru ţevile de apă p
otabilă caldă / rece, ţevile de încălzire şi de răcire necombustibile până la un diametru de
326 mm şi ţevile combustibile până la 75 mm.
Proprietăţi speciale
Conf. ETA 3.2.1.2. Informaţii detaliate cu privire la domeniile de utilizare (elemente de construcţii, servicii, limite dimensionale) şi la descrierea
constructivă a etanşării pot fi găsite în instrucţiunile de instalare pentru Armaflex Protect.
Caracteristica
Valoarea/evaluarea
Teste*1
Supervizare*2
Observaţii speciale
Domeniu de temperaturi
Domeniul de
temperaturi
Temperatură de lucru max.
+85 °C
Temperatură de lucru min.
-50 °C
Conductivitate termică
Conductivitate
termică
○
λ
0,056
Testat conform
EN 12086 şi
EN 13469
○
≤
Testat conform
EN 12667
EN ISO 8497
○
°C
ϑm
Clasificat conform
EN 13501-1
Testat conform
EN ISO 11925-2
○/●
Aprobare tehnică
europeană
ETA-11/0454
W/(m · K)
Rezistenţă la difuzia vaporilor de apă
Rezistenţă la difuzia
vaporilor
de apă
μ
≥
7.000.
Rezistenţa la foc
Comportamentul la
foc
gama de produse
tuburi
plăci
Comportament
practic la foc
EL
E
Autoextinctiv, nu picură, nu propagă flacăra
Rezistenţa la foc a
elementului
structural
EI 30 - EI 120
Rezistenţă la
radiaţiile ultraviolete
Nu posedă rezistenţă la radiaţiile ultraviolete
Condiţii şi durată de
depozitare
3 ani de la data de fabricaţie
EU 4384
Se poate depozita în
încăperi uscate şi
curate, la valori
normale de
umiditate relativă
(50-70 %) şi
temperatură
ambiantă (0–35 °C).
Ambalajele de
carton trebuie
stocate orizontal.
Temperatură minimă
de transport -50 °C
cu condiţia ca
înainte de instalare
depozitarea să fie
ferită de îngheţ.
*1 Pe baza numărului de înregistrare specificat se pot solicita documente suplimentare, cum sunt certificatele de testare, aprobările şi alte documente similare.
*2 ●: Monitorizare oficială de către institute independente şi/sau organisme de testare
○: Moni
torizare internă a calităţii în fabrică
Toate datele şi informaţiile tehnice au la bază rezultate obţinute în condiţii de utilizare tipice. În interesul şi pe responsabilitatea lor, beneficiarii acestor informaţii trebuie să clarifice împreună cu noi, în timp util, dacă datele şi informaţiile furnizate
sunt aplicabile pentru domeniul de utilizare vizat.
Instrucţiunile de instalare sunt disponibile în manualul nostru de instalare Armaflex. Înainte de a izola piesele din oţel inoxidabil vă rugăm să consultaţi serviciul nostru tehnic. Pentru a se asigura o instalare corectă trebuie utilizat adezivul
Armaflex 520. La unii agenţi frigorifici temperatura de la evacuare poate depăşi +110 °C, vă rugăm să luaţi legătura cu serviciul nostru tehnic pentru a obţine mai multe detalii. la utilizarea în aer liber Armaflex trebuie protejat în decurs de 3 zile
cu, de ex., vopsea Armafinish 99 sau înveliş Arma-Chek.
2
2014 © Armacell Enterprise GmbH & Co. K
torizare internă a calităţii în fabrică
Toate datele şi informaţiile tehnice au la bază rezultate obţinute în condiţii de utilizare tipice. În interesul şi pe responsabilitatea lor, beneficiarii acestor informaţii trebuie să clarifice împreună cu noi, în timp util, dacă datele şi informaţiile furnizate
sunt aplicabile pentru domeniul de utilizare vizat.
Instrucţiunile de instalare sunt disponibile în manualul nostru de instalare Armaflex. Înainte de a izola piesele din oţel inoxidabil vă rugăm să consultaţi serviciul nostru tehnic. Pentru a se asigura o instalare corectă trebuie utilizat adezivul
Armaflex 520. La unii agenţi frigorifici temperatura de la evacuare poate depăşi +110 °C, vă rugăm să luaţi legătura cu serviciul nostru tehnic pentru a obţine mai multe detalii. la utilizarea în aer liber Armaflex trebuie protejat în decurs de 3 zile
cu, de ex., vopsea Armafinish 99 sau înveliş Arma-Chek.
2
2014 © Armacell Enterprise GmbH & Co. K
... ascunde
Alte documentatii ale aceleasi game Vezi toate
Fisa tehnica
4 p | RO
Armaflex NH
Fisa tehnica
4 p | RO
Armaflex HT