Declaratie de performanta URSA GLASSWOOL FDP 1, GLASSWOOL FDP 2 
                                    Limba: Romana, Italiana, Engleza, Franceza, Germana
 
                                
             
            	
            
    
        
            Tip documentatie: Certificare produs
            
                                    Salvează pdf 
                
                    
        
        
                    Full screen
             
            
        
        
     
 	
         
     
 
        
         DOP Nr.: 38UGW35P3HNNN20021
EN
DECLARATION OF PERFORMANCE ................................................. 2
SL
IZJAVA O LASTNOSTIH .................................................................. 4
BG
ДЕКЛАРАЦИЯ ЗА ЕКСПЛОАТАЦИОННИ ПОКАЗАТЕЛИ ................ 6
BS
POTVRDA VALJANOSTI.................................................................. 8
DE
LEISTUNGSERKLÄRUNG............................................................... 10
HR
IZJAVA O SVOJSTVIMA ................................................................ 12
HU
TELJESITMÉNY NYILATKOZAT ...................................................... 14
IT
DICHIARAZIONE DI PRESTAZIONE................................................ 16
MK
ИЗЈАВА ЗА ИЗВЕДБА .................................................................. 18
PL
DEKLARACJA WŁASCIWOŚCI ....................................................... 20
RO
DECLARATIE DE PERFORMANTA ..............
                      .................................... 22
SR
IZJAVA O SVOJSTVIMA ................................................................ 24
ES
DECLARACION DE PRESTACIONES ............................................... 26
FR
DÉCLARATION DES PERFORMANCES ........................................... 28
EN
DECLARATION OF PERFORMANCE
EN
DECLARATION OF PERFORMANCE
No.
38UGW35P3HNNN20021
1.
Unique identification code of the product - type:
URSA GLASSWOOL
FDP2 ; FDP2/(*) ; FDP2/D(*) ; FDP2/(*)-(*) ; KDP2 ; KDP2/(*) ; KDP2/D(*) ;
KDP2/(*)-(*)
MW EN 13162 T3 WL(P)MU1 AFr5
Designation for facing:
(*)-product faced one seide
different facing material
D(*)-product faced on both sides with identical facing material (*)-(*)-product faced on both sides with
Product faced with (*)a
Product faced with glass veil : (Vk) ; (Vr) ; (Vv) ; (Vf) ; D(Vk) ; D(Vr) ; D(Vv) ; D(Vf) ; (Vk - Vr) ; (Vk-Vv) ; (Vk-Vf) ; (Vr-Vv) ; (Vr-Vf) ;
(Vv-Vf) ; glass tissue: (Ge) ; aluminium foil: (Ah)
Product faced with 
                      (*)f
Product faced with glass veil : (Vvp) ; D( Vvp)
glass tissue: (Gep) ; D(Gep) aluminium foil: (Ac) ; (Ab) ; (Af) ; (AM2) : D(Ac) ;
D(Ab) ; D(Af) paper:(Na) ; (Nb) ; D(Na) ; D(Nb) & PRODUCT FACED ON BOTH SIDES WITH DIFFERENT FACING MATERIAL
2.
Intended use/es:
Thermal Insulation for Buildings (ThIB)
3
Manufacturer:
URSA Slovenija d.o.o., Povhova 2,
http://dop.ursa-insulation.com
4.
8000 Novo mesto,
SLOVENIJA
Authorised representative:
Not relevant
5.
System/s of AVCP:
System 1 for reaction to fire (Euroklass A1 and A2); System 4 for reaction to fire (Euroklass F )
and system 3 other characteristics
6.a
Harmonized standard:
EN 13 162 : 2012 + A1 : 2015
Notified body/ies:
MPA Stuttgart (identificiation number of the notified body 0672) performed,carried out the determination of the product typ, the initial
inspection of the manufacturing plant and of factory production control and the continuous surveillance, assesment and evaluation of
factory production control and issue
                      d the CE certificate with the number 0672-CPR–0319.
Notified testing laboratory N° D-ZE-11027-05-00 performed the test reports for the other declared characteristics.
6.b
European Assessment Document:
Not relevant
European Technical Assessment:
Not relevant
Technical Assessment Body:
Not relevant
Notified body/ies:
Not relevant
2
38UGW35P3HNNN20021
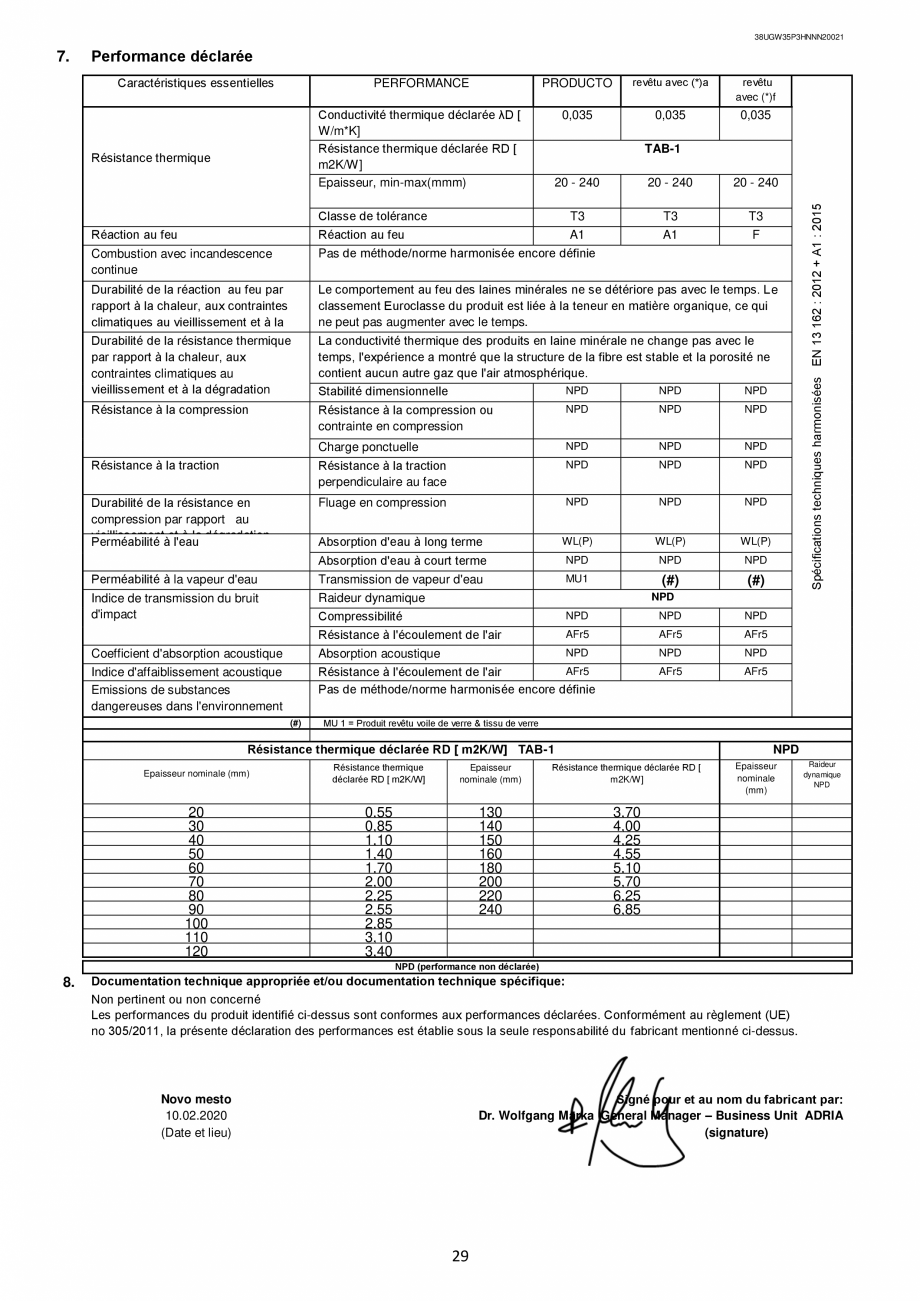
Declared Performance:
Essential characteristics
PERFORMANCE
PRODUCT
Declared thermal conductivity λD [
W/m*K]
Declared thermal resistance RD [
m2K/W]
Thickness min-max (mm)
Thermal resistence
Tollerance class
Reaction to fire
Reaction to fire
faced with (*)a
0,035
0,035
faced with
(*)f
0,035
TAB-1
20 - 240
20 - 240
20 - 240
T3
T3
T3
A1
A1
F
Continuous glowing combustion
No harmonized methods defined yet
Durability of reaction to fire against
heat, weathering, ageing /degradation
The fire performance of mineral wool does not deteriorate with time. The Euroclass
classification of the product is related to the
                       organic content, which cannot increase
with time.
Durability of thermal resistance
agaings heat, weathering, ageing/
degradation
Thermal conductivity of mineral wool products does not change with time,
experience has shown the fibre structure to be stable and the porosity contains no
other gas than atmospheric air.
NPD
NPD
NPD
Dimensional stability
Compressive strength
Compressive stress or compressive
strength
Point load
NPD
NPD
NPD
NPD
NPD
NPD
NPD
NPD
Tensile/Flexural strength
Tensile strength perpendicular to
faces
NPD
Durability of compressive strength
against ageing/ degradation
Compressive creep
NPD
NPD
NPD
Water permeability
Long term water absorption
WL(P)
WL(P)
WL(P)
Short term water absorption
NPD
NPD
NPD
Water vapour permeability
Water vapour transmission
MU1
(#)
(#)
Impact noise transmission index (for
floors)
Dynamic stiffness
NPD
Compressibility
Air flow resistivity
Acoustic absorption index
Sound absorption
Direct airborne sound 
                      insulation index
Release of dangerous substances to
the indoor environment
(#)
Harmonised technical specifications EN 13 162 : 2012 + A1 : 2015
7.
Air flow resistivity
No harmonized methods defined yet
NPD
NPD
NPD
AFr5
AFr5
AFr5
NPD
NPD
NPD
AFr5
AFr5
AFr5
MU 1 = Product faced with glass veil & glass tissue
Declared thermal resistance RD [ m2K/W] TAB-1
NPD
Nominal thickness (mm)
Declared thermal resistance
RD [ m2K/W]
Nominal
thickness (mm)
Declared thermal resistance RD [
m2K/W]
20
30
40
50
60
70
80
90
100
110
120
0,55
0,85
1,10
1,40
1,70
2,00
2,25
2,55
2,85
3,10
3,40
130
140
150
160
180
200
220
240
3,70
4,00
4,25
4,55
5,10
5,70
6,25
6,85
Nominal
thickness
(mm)
Dynamic
stiffness
NPD
NPD (No Performance Determined)
8.
Appropriate Technical Documentation and/or Specific Technical Documentation:
Not relevant
The performance of the product identified above is in conformity with the set of declared performance/s. This declaration of
performance is issued, in a
                      ccordance with Regulation (EU) No. 305/2011, under the sole responsibility of the manufacturer.
Novo mesto
10.02.2020
(place and date)
Signed for and on behalf of the manufacturer by:
Dr. Wolfgang Marka General Manager – Business Unit ADRIA
(signature)
3
SL
IZJAVA O LASTNOSTIH
SL
IZJAVA O LASTNOSTIH
ŠT.
38UGW35P3HNNN20021
1.
Enotna identifikacijska oznaka tipa proizvoda:
URSA GLASSWOOL
FDP2 ; FDP2/(*) ; FDP2/D(*) ; FDP2/(*)-(*) ; KDP2 ; KDP2/(*) ; KDP2/D(*) ;
KDP2/(*)-(*)
MW EN 13162 T3 WL(P)MU1 AFr5
Oznaka za kaširanje :
(*)-izdelek kaširan enostransko D(*)-izdelek kaširan obojestransko z enakim materialom
različnima kaširnima materialoma
(*)-(*)-izdelek kaširan obojestransko z
Izdelek kaširan z (*)a
Izdelek kaširan s steklenim voalom : (Vk) ; (Vr) ; (Vv) ; (Vf) ; D(Vk) ; D(Vr) ; D(Vv) ; D(Vf) ; (Vk - Vr) ; (Vk-Vv) ; (Vk-Vf) ; (Vr-Vv) ;
(Vr-Vf) ; (Vv-Vf) ; stekleno tkanino: (Ge) ; aluminijasto folijo: (Ah)
Izdelek kaširan z (*)f
Izdelek kaširan s steklenim v
                      oalom: (Vvp) ; D( Vvp)
stekleno tkanino: (Gep) ; D(Gep)
aluminijasto folijo: (Ac) ; (Ab) ; (Af) ;
(AM2) : D(Ac) ; D(Ab) ; D(Af) papirjem :(Na) ; (Nb) ; D(Na) ; D(Nb) & IZDELEK KAŠIRAN OBOJESTRANSKO Z RAZLIČNIMA
KAŠIRNIMA MATERIALOMA
2.
Predvidena uporaba:
Toplotnoizolacijski proizvodi za stavbe (ThIB)
3
Proizvajalec
URSA Slovenija d.o.o., Povhova 2,
http://dop.ursa-insulation.com
4.
8000 Novo mesto,
SLOVENIJA
Pooblaščeni zastopnik:
Ni pomembno
5.
Sistemi ocenjevanja in preverjanja nespremenljivosti lastnosti:
Sistem 1 za požarne lastnosti( razred A1 in A2)
sistem 4 za požarne lastnosti ( razred F )
sistem 3 za ostale lastnosti
6.a
Harmonizirani standard:
EN 13 162 : 2012 + A1 : 2015
Priglašeni organ/i:
MPA Stuttgart (identifikacijaska številka priglašenega organa 0672) je izvedel določitev tipa proizvoda, prvi pregled tovarne in
skladnost lastne tovarniške kontrole, izvaja stalni nadzor ocenjevanja in vrednotenja lastne tovarniške kontrole in je izdal CE certif
                      ikat
s številko 0672-CPR–0319.
MPA Stuttgart (št. D-ZE-11027-05-00 pooblaščenega preskuševalnega laboratorija) je izdelal poročila o preskusih za druge navedene
značilnosti.
6.b
Evropski ocenjevalni dokument:
Ni pomembno
Evropska tehnična ocena:
Ni pomembno
Organ za tehnično ocenjevanje:
Ni pomembno
Priglašeni organ/i:
Ni pomembno
4
38UGW35P3HNNN20021
Navedene lastnosti:
Bistvene značilnosti
LASTNOSTI
IZDELEK
Nazivna toplotna prevodnost λD [
W/m*K]
Nazivna toplotna upornost RD [
m2K/W]
Debelina min-max(mmm)
Toplotna upornost
kaširan z (*)a
0,035
0,035
kaširan z
(*)f
0,035
TAB-1
20 - 240
20 - 240
20 - 240
Tolerančni razred
T3
T3
T3
Požarne lastnosti
Požarne lastnosti
A1
A1
F
Nadaljevanje zgorevanja s tlenjem
Trenutno še ni sprejeta harmonizirana metoda
Vpliv vročine, vremena, staranja
/razgradnje na trajnost
/nespremenljivost odziva na ogenj.
Odziv na ogenj ni odvisen in se ne spreminja s časom. Klasifikacija je povezana z
vsebnostjo
                       organskih snovi, ki ne narašča s časom.
Vpliv vročine, vremena,
staranja/razgradnje na
trajnost/nespremenljivost toplotne
upornosti
Toplotna prevodnost se ne spreminja s časom , izkušnje kažejo, da je struktura
vlaken stabilna in prostor med vlakni (poroznost),ne vsebuje drugih plinov, razen
atmosferkega zraka.
NPD
NPD
NPD
Dimenzijska obstojnost
Tlačna trdnost
Tlačna trdnost ali tlačna napetost
NPD
NPD
NPD
Točkovna obremenitev
NPD
NPD
NPD
Natezna/Upogibna trdnost
Natezna trdnost pravokotno na
površino
NPD
NPD
NPD
Vpliv staranja/ razgradnje na trajnost/
nespremenljivost tlačne trdnosti
Lezenje pod obremenitvijo
NPD
NPD
NPD
Vodoprepustnost
Dolgoročna absorpcija vode
WL(P)
WL(P)
WL(P)
Kratkoročna absorpcija vode
NPD
NPD
NPD
Prepustnost za vodno paro
Prepustnost za vodno paro
MU1
(#)
(#)
Prenašanje pohodnega zvoka (za
pode)
Dinamična togost
NPD
Stisljivost
NPD
NPD
NPD
Upor strujanju zraka
AFr5
AFr5
AFr5
Akustični absorpcijsk
                      i indeks
Absorpcija zvoka
NPD
NPD
NPD
Indeks izolacije zvoka v zraku
Sproščanje nevarnih snovi v
notranjost objekta
AFr5
Upor strujanju zraka
Trenutno še ni sprejeta harmonizirana metoda
AFr5
AFr5
(#)
MU 1 =
Harmonizirana tehnična specifikacija EN 13 162 : 2012 + A1 : 2015
7.
Izdelek kaširan s steklenim voalom & Izdelek kaširan s stekleno tkanino
Nazivna toplotna upornost RD [ m2K/W] TAB-1
NPD
Nominalna debelina (mm)
Nazivna toplotna upornost
RD [ m2K/W]
Nominalna
debelina (mm)
Nazivna toplotna upornost RD [
m2K/W]
20
30
40
50
60
70
80
90
100
110
120
0,55
0,85
1,10
1,40
1,70
2,00
2,25
2,55
2,85
3,10
3,40
130
140
150
160
180
200
220
240
3,70
4,00
4,25
4,55
5,10
5,70
6,25
6,85
Nominalna
debelina
(mm)
Dinamična
togost NPD
NPD (No Performance Determined) - lastnost ni določena
8.
Ustrezna tehnična dokumentacija in/ali specifična tehnična dokumentacija:
Ni pomembno
Lastnosti proizvoda, navedenega zgoraj, so v skladu z navedenimi lastnostmi. Za izdajo t
                      e izjave o lastnostih je v skladu z Uredbo
(EU) št. 305/2011odgovoren izključno proizvajalec.
Novo mesto
10.02.2020
(kraj in datum)
Podpisal za in v imenu proizvajalca:
Dr. Wolfgang Marka General Manager – Business Unit ADRIA
(podpis)
5
BG
ДЕКЛАРАЦИЯ ЗА ЕКСПЛОАТАЦИОННИ ПОКАЗАТЕЛИ
BG
ДЕКЛАРАЦИЯ ЗА ЕКСПЛОАТАЦИОННИ ПОКАЗАТЕЛИ
No.
38UGW35P3HNNN20021
1.
Уникален идентификационен код на типа продукт:
URSA GLASSWOOL
FDP2 ; FDP2/(*) ; FDP2/D(*) ; FDP2/(*)-(*) ; KDP2 ; KDP2/(*) ; KDP2/D(*) ;
KDP2/(*)-(*)
MW EN 13162 T3 WL(P)MU1 AFr5
Oпределение на кашировката:
(*)-продукт, каширан едностранно
D(*)-продукти, каширани двустранно с идентични материали за каширане (*)-(*)продукти, каширани двустранно с различни материали за 
                      аширане
Продукт, каширан с (*)a
Продукт, каширан със стъклен воал : (Vk) ; (Vr) ; (Vv) ; (Vf) ; D(Vk) ; D(Vr) ; D(Vv) ; D(Vf) ; (Vk - Vr) ; (Vk-Vv) ; (Vk-Vf) ; (Vr-Vv) ;
(Vr-Vf) ; (Vv-Vf) ; стъклена тъкан: (Ge) ; алуминиево фолио: (Ah)
Продукт, каширан с (*)f
Продукт, каширан със стъклен воал : (Vvp) ; D( Vvp)
стъклена тъкан: (Gep) ; D(Gep)
алуминиево фолио: (Ac) ; (Ab) ;
(Af) ; (AM2) : D(Ac) ; D(Ab) ; D(Af) хартия :(Na) ; (Nb) ; D(Na) ; D(Nb) & ПРОДУКТИ, КАШИРАНИ ДВУСТРАННО С
РАЗЛИЧНИ МАТЕРИАЛИ ЗА КАШИРАНЕ
2.
Предвидена употреба/употреби:
Топлоизолационни продукти за сгради (ThIB)
3
Производител:
URSA Slovenija d.o.o., Povhova 2,
http://dop.ursa-insulation.com
4.
8000 Novo mesto,
SLOVENIJA
Упълн
                      омощен представител:
Не е приложимо
5.
Система или системи за оценяване и проверка на постоянството на експлоатационните
Система
1 за реакция
на огън (Евроклас
A1 и A2)
показатели
на строителния
продукт,
както са изложени в Приложение V - CPR:
Система 4 за реакция на огън (Евроклас F)
Cистема 3 други характеристики
6.a
Хармонизиран стандарт
EN 13 162 : 2012 + A1 : 2015
Нотифициран орган/органи:
MPA Stuttgart (идентификационен номер на нотифицирания орган 0672) е извършил определянето на продуктовия тип,
първоначалната проверка на произвеждащия завод, на производствени
                       контрол в завода и на постоянния надзор, преценка
и оценка на производствения контрол и е издал CE сертификат с номер 0672-CPR–0319.
MPA Stuttgart (нотифицирана тестова лаборатория № D-ZE-11027-05-00 ) изготви тестовите доклади за другите декларирани
характеристики.
6.b
Европейски документ за оценяване:
Не е приложимо
Европейска техническа оценка:
Не е приложимо
Орган за техническа оценка:
Не е приложимо
Нотифициран орган/органи:
Не е приложимо
6
38UGW35P3HNNN20021
Декларирани експлоатационни показатели
Съществени характеристики
ЕКСПЛОАТАЦИОННИ
ПОКАЗАТЕЛИ
Декл
                      риран коефициент на
топлопроводност λD [ W/m*K]
Декларирано съпротивление на
топлопреминаване RD [ m2K/W]
Дебелина, мин-мax (мм)
Съпротивление на
топлопреминаване
ПРОДУКТ
каширан с (*)a
каширан с
(*)f
0,035
0,035
0,035
TAB-1
20 - 240
20 - 240
20 - 240
Клас на допуск
T3
T3
T3
Реакция на огън
Реакция на огън
A1
A1
F
Продължителност на горене и
тлеене
Без определени хармонизирани методи
Устойчивост на реакцията на огън
при топлина, атмосферни влияния,
стареене /деградация
Противопожарните характеристики на минералната вата не се влошават с
времето. Евро класификацията н
                       продукта се отнася за органичното
съдържание, което не се увеличава с времето.
Устойчивост на съпротивлението
на топлопреминаване при топлина,
атмосферни влияния,
стареене/деградация
Коефициентът на топлопроводимост на продуктите от минерална вата не се
променя с времето, опитът показва, че структурата на нишките остава
стабилна и в нея не се съдържа газ, различен от атмосферния въздух.
NPD
NPD
NPD
Характеристики за устойчивост
Якост на натиск
Напрежение при натиск или якост
на натиск
NPD
NPD
NPD
Точка на натоварване
NPD
NPD
NPD
Якост на опън
Як
                      ст на опън, перпендикулярно
на лицевата част
NPD
NPD
NPD
Устойчивост на якостта на опън при
стареене/ деградация
Приплъзване при натиск
NPD
NPD
NPD
Водопропускливост
Продължително абсорбиране
на
водаабсорбиране на вода
Кратко
WL(P)
WL(P)
WL(P)
NPD
NPD
NPD
MU1
(#)
(#)
Пропускливост на водни пари
Дифузия на водни пари
Индекс на пренос на ударен шум
(за подове)
Динамична якост
NPD
Възможност за компресиране
NPD
NPD
NPD
Въздушно съпротивление
AFr5
AFr5
AFr5
Индекс на звукопоглъщане
Звукопоглъщане
NPD
NPD
NPD
Индекс за пренос на въздушен шум
Освобождаване на опасни
в
                      ещества при закрита среда
AFr5
Въздушно съпротивление
Без определени хармонизирани методи
AFr5
AFr5
(#)
MU 1 =
Продукт, каширан със стъклен воал & Продукт, каширан със стъклена тъкан
Декларирано съпротивление на топлопреминаване RD [ m2K/W] TAB-1
Дебелина (mm)
20
30
40
50
60
70
80
90
100
110
120
Хармонизирани технически спецификации EN 13 162 : 2012 + A1 : 2015
7.
Декларирано
съпротивление на
топлопреминаване RD [
m2K/W]
Дебелина (mm)
Декларирано съпротивление на
топлопреминаване RD [ m2K/W]
130
140
150
160
180
200
220
240
3,70
4,00
4,25
4,55
5,10
5,70
6,25
6,85
0,55
0,85
1,10
1,40
1,70
2,00
2,25
2,55
2,85
3,10
3,40
NPD
Дебелина
(mm)
Динамична
я
                      ост NPD
NPD (Неустановени експлоатационни показатели)
8.
Подходяща техническа документация и/или специфична техническа документация:.
Не е приложимо
Експлоатационните показатели на продукта, посочени по-горе, са в съответствие с декларираните експлоатационни
показатели. Настоящата декларация за експлоатационни показатели се издава в съответствие с Регламент (ЕС) № 305/2011,
като отговорността за нея се носи изцяло от посочения по-горе производител.
Подписано за и от името на производителя от:
Dr. Wolfgang Marka General Manager – Business Unit ADRIA
(подпис)
Novo mesto
10.02.
                      2020
(място и дата)
7
BS
POTVRDA VALJANOSTI
BS
POTVRDA VALJANOSTI
Broj
38UGW35P3HNNN20021
1.
Jedinstveni identifikacijski broj vrste proizvoda:
URSA GLASSWOOL
FDP2 ; FDP2/(*) ; FDP2/D(*) ; FDP2/(*)-(*) ; KDP2 ; KDP2/(*) ; KDP2/D(*) ;
KDP2/(*)-(*)
MW EN 13162 T3 WL(P)MU1 AFr5
Oznaka oblaganja:
(*)-proizvod jednostrano obložen D(*)-proizvod obostrano obložen istim materijalom za oblaganje (*)-(*)-proizvod obostrano
obložen različitim materijalom za oblaganje
VRSTA OBLAGANJA: (*)a
Proizvod obložen staklenim voalom : (Vk) ; (Vr) ; (Vv) ; (Vf) ; D(Vk) ; D(Vr) ; D(Vv) ; D(Vf) ; (Vk - Vr) ; (Vk-Vv) ; (Vk-Vf) ; (Vr-Vv) ; (VrVf) ; (Vv-Vf) ; staklenom tkaninom: (Ge) ; aluminijskom folijom: (Ah)
Proizvod oblože (*)f
Proizvod obložen staklenim voalom : (Vvp) ; D( Vvp) staklenom tkaninom: (Gep) ; D(Gep)
aluminijskom folijom: (Ac) ; (A b) ; (Af) ;
(AM2) : D(Ac) ; D(Ab) ; D(Af) papirom :(Na) ; (Nb) ; D(Na) ; D(Nb) & PROIZVOD OBOSTRANO OBLOŽEN RAZLIČITIM
MATERIJALOM ZA OB
                      LAGANJE
2.
Namjena/namjene:
Proizvodi za toplotnu izolaciju u zgradarstvu (ThIB)
3
Proizvođač:
URSA Slovenija d.o.o., Povhova 2,
http://dop.ursa-insulation.com
4.
8000 Novo mesto,
SLOVENIJA
Ovlašteni predstavnik:
Nije bitno
5.
Sustavi ocjenjivanja i provjere stalnosti svojstava građevnih proizvoda.
Sistem 1 za vatrootpornost (euro klase A1 i A2 )
Sistem 4 za vatrootpornost (euro klase F)
Sistem 3 ostale karakteristike
6.a
Usklađena norma:
EN 13 162 : 2012 + A1 : 2015
Prijavljeno tijelo/prijavljena tijela:
MPA Stuttgart (identifikacijski broj navedene ustanove 0672) izvršila je, te sprovela određivanje vrste proizvoda, početno ispitivanje
proizvodne fabrike i kontrolu proizvodne linije, kao i neprkidnog sistema održavanja, te ocijenila i odredila kontrolu proizv odnje fabrike i
izdala CE certifikat pod brojem 0672-CPR–0319.
Ovlašteni laboratorij MPA Stuttgart br. D-ZE-11027-05-00 proveo je ispitivanja za ostale deklarirane karakteristike.
6.b
Europski dokument 
                      za ocjenjivanje:
Nije bitno
Europska tehnička ocjena:
Nije bitno
Tijelo za tehničko ocjenjivanje:
Nije bitno
Prijavljeno tijelo/prijavljena tijela:
Nije bitno
8
38UGW35P3HNNN20021
Deklarirana izvedba
Osnovne karakteristike
Termalna otpornost
IZVEDBA
PROIZVOD
Deklarirana termalna provodljivost λD
[ W/m*K]
Deklalirana termalna otpornost RD [
m2K/W]
Debljina min-max(mmm)
0,035
obložen (*)a
0,035
obložen
(*)f
0,035
TAB-1
20 - 240
20 - 240
20 - 240
Klasa tolerancije
T3
T3
T3
Reagovanje na vatru
Reagovanje na vatru
A1
A1
F
Kontinuirano žareno izgaranje
Nisu još definirane harmonizirajuće metode
Trajanje reakcije na vatru rotiv toplote,
atmosferalija, starenja /propadanja
Vatrootpornost mineralne vune ne opada vremenom. Euroclass klasificiranje
proizvoda odnosi se na sadržaj organske tvari, a što se vremenom ne povećava.
Trajanje termalne otpornosti protiv
toplote, atmosferalija,
starenja/propadanja
Termalna provodljivost proizvoda od mineralne vune 
                      ne mijenja se vremenom,
iskustvo je pokazalo da je struktura vlakana stabilna i da poroznost sadržava
isključivo atmosferski vazduh.
NPD
NPD
NPD
Osobine trajnosti
Snaga kompresije
Stres kompresije ili snaga kompresije
NPD
NPD
NPD
Vrh opterećenosti
NPD
NPD
NPD
Jačina istegljivosti/savitljivosti
Jačina istegljivosti okomita je na
strane
NPD
NPD
NPD
Trajanje snage kompresije protiv
starenja/ propadanja
Tlačno smicanje
NPD
NPD
NPD
Vodopropusnost
Dugotrajna Vodoupojnost
WL(P)
WL(P)
WL(P)
Kratkotrajna Vodoupojnost
NPD
NPD
NPD
Permeabilnost na isparavanje vode
Prenos ispravanja vode
MU1
(#)
(#)
Utjecaj indeksa prenosa zvuka (na
podove)
Dinamička krutost
NPD
Stišljivost
NPD
NPD
NPD
Otpornost strujanju vazduha
AFr5
AFr5
AFr5
Indeks upijanja zvuka
Upijanje zvuka
NPD
NPD
NPD
Indeks neposrednog upijanja zvuka
izolacije
Otpuštanje opasnih materija na
unutarnji okoliš
AFr5
Otpornost strujanju vazduha
Ne postoje još usklađene definirane m
                      etode
AFr5
AFr5
(#)
Harmonizirane tehničke specifikacije EN 13 162 : 2012 + A1 : 2015
7.
MU 1 = Proizvod obložen staklenim voalom & Proizvod obložen staklenom tkaninom
Deklalirana termalna otpornost RD [ m2K/W] TAB-1
NPD
Deklarirana debljina (mm)
Deklalirana termalna
otpornost RD [ m2K/W]
Deklarirana
debljina (mm)
Deklalirana termalna otpornost RD [
m2K/W]
20
30
40
50
60
70
80
90
100
110
120
0,55
0,85
1,10
1,40
1,70
2,00
2,25
2,55
2,85
3,10
3,40
130
140
150
160
180
200
220
240
3,70
4,00
4,25
4,55
5,10
5,70
6,25
6,85
Deklarirana
debljina
(mm)
Dinamička
krutost NPD
NPD (Nije određena izvedba)
8.
Odgovarajuća tehnička dokumentacija i/ili specifična tehnička dokumentacija:
Nije bitno
Prije utvrđeno svojstvo proizvoda u skladu je s objavljenim svojstvima. Ova izjava o svojstvima izdaje se, u skladu s Uredbom (EU) br.
305/2011, pod isključivom odgovornošću prethodno utvrđenog proizvođača.
Potpis ovlaštenog lica i u ime proizvođača:
Dr. Wolfgang Marka 
                      General Manager – Business Unit ADRIA
(potpis)
Novo mesto
10.02.2020
(mjesto i datum)
9
DE
LEISTUNGSERKLÄRUNG
DE
LEISTUNGSERKLÄRUNG
Nr.
38UGW35P3HNNN20021
1.
Eindeutiger Kenncode des Produkttyps:
URSA GLASSWOOL
FDP2 ; FDP2/(*) ; FDP2/D(*) ; FDP2/(*)-(*) ; KDP2 ; KDP2/(*) ; KDP2/D(*) ;
KDP2/(*)-(*)
MW EN 13162 T3 WL(P)MU1 AFr5
Bezeichnung der Kaschierung:
(*)-produkt einseitig kaschiert D(*)-produkt beidseitig mit gleichem Material kaschiert.
unterschiedlichen Materialien kaschiert
(*)-(*)-produkt an beiden seiten mit
Produkt mit (*)a kaschiert
Produkt mit Glasvlies kaschiert : (Vk) ; (Vr) ; (Vv) ; (Vf) ; D(Vk) ; D(Vr) ; D(Vv) ; D(Vf) ; (Vk - Vr) ; (Vk-Vv) ; (Vk-Vf) ; (Vr-Vv) ; (Vr-Vf) ;
(Vv-Vf) ; Glasgewebe: (Ge) ; Aluminiumfolie: (Ah)
Produkt mit (*)f kaschiert
Produkt mit Glasvlies kaschiert : (Vvp) ; D( Vvp) Glasgewebe: (Gep) ; D(Gep)
Aluminiumfolie: (Ac) ; (Ab) ; (Af) ; (AM2) : D(Ac)
; D(Ab) ; D(Af) Papier :(Na) ; (Nb) ; D(Na) ; D(Nb) & PRODUKT AN BEIDEN SEITEN MIT
                       UNTERSCHIEDLICHEN MATERIALIEN
KASCHIERT
2.
Verwendungszweck(e):
Wärmedämmstoffe für Gebäude (ThIB)
3
Hersteller:
URSA Slovenija d.o.o., Povhova 2,
http://dop.ursa-insulation.com
4.
8000 Novo mesto,
SLOVENIJA
Bevollmächtigter:
Nicht zutreffend
5.
System oder Systeme zur Bewertung und Überprüfung der Leistungsbeständigkeit des Bauprodukts
System 1 für das Brandverhalten (Euroclass A1 und A2 )
System 4 für das Brandverhalten (Euroclass F )
System 3 andere Eigenschaften
6.a
Harmonisierte Norm:
EN 13 162 : 2012 + A1 : 2015
Notifizierte Stelle(n):
MPA Stuttgart (Identifikationsnummer 0672) hat die Bescheinigung der Leistungsbeständigkeit des Produkttyps, die Erstinspektion und
laufende Inspektionen des Herstellerwerkes und der werkseigenen Produktionskontrolle vorgenommen und hat das CE Zertifikat m it
der Nummer 0672-CPR–0319 ausgestellt.
MPA Stuttgart (benachrichtigtes Prüflabor Nr. D-ZE-11027-05-00 ) erstellte die Prüfberichte über die anderen erklärten Eigen
                      schaften .
6.b
Europäisches Bewertungsdokument:
Nicht zutreffend
Europäische Technische Bewertung:
Nicht zutreffend
Technische Bewertungsstelle:
Nicht zutreffend
Notifizierte Stelle(n):
Nicht zutreffend
10
38UGW35P3HNNN20021
Erklärte Leistung
Wesentliche Merkmale
LEISTUNG
PRODUKT
Deklarierter Nennwert der
Wärmeleitfähigkeit λD [ W/m*K]
Deklarierter
Wärmedurchlasswiderstand RD
[m2K/W]
Dicke, min-max(mmm)
Wärmedurchlasswiderstand
mit (*)a
kaschiert
0,035
0,035
mit (*)f
kaschiert
0,035
TAB-1
20 - 240
20 - 240
20 - 240
Toleranzklasse
T3
T3
T3
Brandverhalten
Brandverhalten
A1
A1
F
Glimmverhalten
Derzeit keine harmonisierten Methoden definiert
Beständigkeit des Brandverhaltens
gegen Hitze, Witterungseinflüsse,
Alterung /Abbau
Das Verhalten von Mineralwolle bei Brandeinwirkung verschlechtert sich nicht mit
der Zeit. Die Euroklassen- Einteilung des Produkts bezieht sich auf den Gehalt an
organischen Bestandteilen, der sich mit der Zeit nicht erhöht.
                      Beständigkeit des
Wärmedurchlasswiderstandes gegen
Hitze, Witterungseinflüsse,
Alterung/Abbau
Die Wärmeleitfähigkeit von Produkten aus Mineralwolle verändert sich nicht mit der
Zeit. Erfahrungen haben gezeigt, dass die Faserstruktur stabil bleibt und das
relative Porenvolumen keine anderen Gase als Luft enthält.
NPD
NPD
NPD
Dimensionsstabilität
Druckfestigkeit
Druckspannung oder Druckfestigkeit
NPD
NPD
NPD
Punktlast
NPD
NPD
NPD
Zug-/Biegefestigkeit
Zugfästigkeit senkrecht zur
Plattenebene
NPD
NPD
NPD
Beständigkeit der Druckfestigkeit
gegen Alterung/ Abbau
Langzeit- Kriechverhalten bei
Druckbeanspruchung
NPD
NPD
NPD
Wasserdurchlässigkeit
Langezeitige Wasseraufnahme
WL(P)
WL(P)
WL(P)
Kurzzeitige Wasseraunahme
NPD
NPD
NPD
Wasserdampfdurchlässigkeit
Wasserdampfdiffusion
MU1
(#)
(#)
Trittschallübertragung (für Böden)
Dynamische Steifigkeit
NPD
Zusammendrückbarkeit
NPD
NPD
NPD
Strömungswiderstand
AFr5
AFr5
AFr5
Schallabsorptionsg
                      
     
    Beständigkeit des
Wärmedurchlasswiderstandes gegen
Hitze, Witterungseinflüsse,
Alterung/Abbau
Die Wärmeleitfähigkeit von Produkten aus Mineralwolle verändert sich nicht mit der
Zeit. Erfahrungen haben gezeigt, dass die Faserstruktur stabil bleibt und das
relative Porenvolumen keine anderen Gase als Luft enthält.
NPD
NPD
NPD
Dimensionsstabilität
Druckfestigkeit
Druckspannung oder Druckfestigkeit
NPD
NPD
NPD
Punktlast
NPD
NPD
NPD
Zug-/Biegefestigkeit
Zugfästigkeit senkrecht zur
Plattenebene
NPD
NPD
NPD
Beständigkeit der Druckfestigkeit
gegen Alterung/ Abbau
Langzeit- Kriechverhalten bei
Druckbeanspruchung
NPD
NPD
NPD
Wasserdurchlässigkeit
Langezeitige Wasseraufnahme
WL(P)
WL(P)
WL(P)
Kurzzeitige Wasseraunahme
NPD
NPD
NPD
Wasserdampfdurchlässigkeit
Wasserdampfdiffusion
MU1
(#)
(#)
Trittschallübertragung (für Böden)
Dynamische Steifigkeit
NPD
Zusammendrückbarkeit
NPD
NPD
NPD
Strömungswiderstand
AFr5
AFr5
AFr5
Schallabsorptionsg 
... ascunde      
    
     
    Alte documentatii ale aceleasi game         Vezi toate
 
      
        
        
                            Certificare produs
6  p | RO                                                                                        
TERRA 68Ph
                     
     
    
 
        
        
                            Fisa tehnica
1  p | RO                                                                                        
TERRA 68Ph