SUN LEADER - Catalog - specificatii tehnice pergole cu membrana PVC SUN LEADER
Tip documentatie: Specificații tehnice
Salvează pdf
Full screen
Outdoor Living Systems
www.pergole-retractabile.ro
Phone: +40770444888
mail: info@sunleader.ro Romania
www.pergole-retractabile.ro
2-7
Spline 150
8-13
Vault 150
14-19
Flat harmony 150
20-25
Spline harmony 150
26-31
Flat city 150
32-37
Spline city 150
38-43
Flat variance 150
44-49
Spline variance 150
50-55
Vault variance 150
56-61
www.pergole-retractabile.ro
index
Flat 150
Flat - ser es 150 / Techn cal Deta ls
Flat - ser es 150 / Techn cal Deta ls
L
N
1
A
4
5
Fabr c He ght
(N) mm
t:2,5 mm
115 mm
t:2,5 mm
t:3 mm
166,1 mm
t:1,8 mm
68 mm
160 mm
150 mm
64 mm
130 mm
100 mm
53,2 mm
Fab. Sub. Pro les
(L) mm
**(A) mm
pc
436
700
673
5
350
445
768
735
6
(%13,16) 7,5°
400
453
835
797
7
(%11,39) 6,5°
450
462
904
859
8
500
477
1040
921
10
550
486
1107
983
11
600
494
1175
1045
12
650
502
1244
1107
13
700
510
1312
1169
14
750
518
1380
1231
15
800
526
1450
1293
16
850
534
1518
1355
17
900
542
1586
1417
18
80 mm
* W th m n. Incl nat on of 7° .Values can varry by other Incl nat on values.
1- Rafter Prof le
2
2- Gutter Prof le
3- Post Prof le
4- Fabr c Support
Prof le
(%14,94) 8,5°
300
SLOPE
Project on (P) cm
3
t:3,5 mm
Fall
(%16,73) 9,5°
2
t:1,8 mm
Hood
(%9,62) 5,5°
(%8,04) 4,6°
200
250
300
350
400
450
MODULE WIDTH (cm)
M numum slopes for at, at var ance, at harmony, at c ty vers ons.
5- Puller Prof le
3
Flat - ser es 150 / Techn cal Deta ls
x.
ma
45
Flat - ser es 150 / Techn cal Deta ls
m
0c
One Module
135 cm > 450 cm
00
- One module w th 2 rafters
3
x. 1
ma
- Max. 450 cm w dth
ma
x. 9
00
cm
cm
m
c
00
m
9
ax.
ma
x.
90
0
Two Modules
ma
x. 9
00
4
cm
450 cm > 900 cm
cm
Three Modules
900 cm > 1300 cm
- Two modules w th 3 rafters
- Three modules w th 4 rafters
- Max. 900 cm w dth
- Max. 1300 cm w dth
5
Flat - ser es 150 / Techn cal Deta ls
Flat - ser es 150 / Techn cal Deta ls
D
75 mm
A
B
56 mm
90 mm
Type - A (standart)
Standart
C
178
145
28 mm
42
144
75 mm
114 mm
7°>30°
Type - B (opt onal)
125 mm
> 155 mm
72 mm
178 mm
Y
Deta l - A
Deta l - B
Deta l - C
135 mm
95 mm
H
158 mm
158 mm
8 mm
70 mm
158 mm
t:2 mm
43 mm
34 mm
Deta l - D
6
67,5 mm
Installat on Bracket
G=H-17mm
H
45 mm
67,5 mm
t:2 mm
95 mm
95 mm
100 mm
100 mm
S de Rafter
Support column of s de rafter s stalled
when lenght of s de rafter s over 800 cm.
Support Column of S de Rafter
7
Spl ne - ser es 150 / Techn cal Deta ls
Spl ne - ser es 150 / Techn cal Deta ls
L
N
A
R
1
4
5
Fabr c He ght
Hood
Fall
Fab. Sub. Pro les
Recomend. Rad us
(N) mm
(L) mm
**(A) mm
pc
(R) mm
300
409
778
952
6
8000
350
414
843
1093
7
9000
400
419
914
1237
8
10000
450
421
980
1300
9
12000
500
426
1047
1442
10
13000
550
431
1114
1586
11
14000
600
435
1183
1731
12
15000
650
434
1250
1590
13
20000
700
446
1386
1786
15
20000
750
444
1457
1695
1
6
25000
800
451
1524
1875
17
25000
850
446
1588
1632
18
35000
900
451
1655
1778
19
35000
950
458
1722
1932
20
35000
1000
462
1791
1908
21
40000
1050
466
1863
2058
22
40000
1100
470
1930
2215
23
40000
2
t:3,5 mm
t:2,5 mm
t:1,8 mm
t:2,5 mm
t:3 mm
166,1 mm
t:1,8 mm
68 mm
160 mm
150 mm
115 mm
Project on (P) cm
3
100 mm
53,2 mm
1- Rafter Prof le
8
2- Gutter Prof le
64 mm
130 mm
3- Post Prof le
4- Fabr c Support
Prof le
80 mm
5- Puller Prof le
* Values can varry by d erent rad us values.
9
Spl ne - ser es 150 / Techn cal Deta ls
50
x. 4
ma
Spl ne - ser es 150 / Techn cal Deta ls
cm
One Module
135 cm > 450 cm
00
13
ax.
- One module w th 2 rafters
cm
m
- Max. 450 cm w dth
m
ax
.1
10
0c
m
00
9
ax.
cm
m
m
ax
.1
10
0
m
ax
.1
Two Modules
10
0c
m
10
450 cm > 900 cm
cm
Three Modules
900 cm > 1300 cm
- Two modules w th 3 rafters
- Three modules w th 4 rafters
- Max. 900 cm w dth
- Max. 130
0 cm w dth
11
Spl ne - ser es 150 / Techn cal Deta ls
Spl ne - ser es 150 / Techn cal Deta ls
D
75 mm
R
A
B
56 mm
90 mm
Type - A (standart)
Standart
C
178
145
28 mm
42
144
75 mm
114 mm
7°>40°
Type - B (opt onal)
125 mm
> 155 mm
72 mm
178 mm
Y
Deta l - A
Deta l - B
Deta l - C
135 mm
95 mm
H
H
45 mm
158 mm
158 mm
8 mm
70 mm
158 mm
t:2 mm
43 mm
34 mm
67,5 mm
G=H-17mm
67,5 mm
t:2 mm
95 mm
95 mm
100 mm
100 mm
Support column of s de rafter s stalled
when lenght of s de rafter s over 800 cm.
Installat on Bracket
S de Rafter
Support Column of S de Rafter
Deta l - D
12
13
Vault - ser es 150 / Techn cal Deta ls
Vault - ser es 150 / Techn cal Deta ls
1
L
R
A
N
4
6
Fabr c He ght
Hood
Fall
Fab. Sub. Pro les
Recomend. Rad us
(N) mm
(L) mm
**(A) mm
pc
(R) mm
300
515
857
602
7
4000
350
531
842
664
7
4500
400
610
984
779
9
4500
450
659
1113
845
11
5000
500
642
1119
856
11
6000
550
663
1256
873
13
7000
600
653
1252
894
13
8000
650
679
1392
917
15
9000
700
679
1392
943
15
10000
750
718
1533
1002
17
10500
800
732
1529
1063
17
11000
850
758
1685
1088
19
12000
900
783
1799
1114
21
13000
950
796
1798
1173
21
13500
1000
841
1934
1233
23
14000
1050
887
2075
1294
25
14500
1100
900
2071
1355
25
15000
5
2
t:3,5 mm
t:2,5 mm
115 mm
166,1 mm
t:1,8 mm
68 mm
160 mm
150 mm
t:2 mm
t:1,8 mm
t:2,5 mm
t:3 mm
Project on (P) cm
3
100 mm
53,2 mm
1- Rafter Prof le
14
2- Gutter Prof le
64 mm
130 mm
3- Post Prof le
4- Fabr c Support
Prof le
80 mm
5- Puller Prof le
95 mm
100 mm
6- S de Rafter Prof le
*W th m n. Incl nat on of 7° .Values can varry by other Incl nat on values.
15
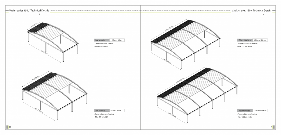
Vault - ser es 150 / Techn cal Deta ls
x.
ma
Vault - ser es 150 / Techn cal Deta ls
m
0c
40
00
12
ax.
cm
m
One Module
ma
x. 1
10
Three Modules
135 cm > 400 cm
- One module w th 2 rafters
- Three modules w th 4 rafters
-
Max. 400 cm w dth
- Max. 1200 cm w dth
0c
m
ma
x.
x.
ma
800 cm > 1200 cm
11
00
cm
m
0c
80
00
13
ax.
cm
m
ma
x. 1
10
0c
m
Two Modules
- Two modules w th 3 rafters
- Max. 800 cm w dth
16
Four Modules
400 cm > 800 cm
ma
x. 1
10
1200 cm > 1300 cm
- Four modules w th 5 rafters
0c
m
- Max. 1300 cm w dth
17
Vault - ser es 150 / Techn cal Deta ls
Vault - ser es 150 / Techn cal Deta ls
D
R
A
56 mm
90 mm
Standart
178
145
B
42
75 mm
144
C
Type - A (standart)
114 mm
75 mm
28 mm
7°>40°
125 mm
> 155 mm
72 mm
178 mm
Type - B (opt onal)
Deta l - A
18
Deta l - B
Deta l - C
Deta l - D
19
Flat harmony - ser es 150 / Techn cal Deta ls
Flat harmony - ser es 150 / Techn cal Deta ls
L
L
N
N
A
A
4
1
P
5
Fabr c He ght
Hood
Fall
Fab. Sub. Pro les
(N) mm
(L) mm
**(A) mm
pc
600
436
700
673
10
700
445
768
735
12
800
453
835
797
14
900
462
904
859
16
1000
477
1040
921
20
1100
486
1107
983
22
1200
494
117
5
1045
24
1300
502
1244
1107
26
1400
510
1312
1169
28
1500
518
1380
1231
30
1600
528
1450
1293
32
1700
534
1518
1355
34
1800
542
1586
1417
36
(%16,73) 9,5°
t:3,5 mm
2
6
t:2,5 mm
Project on (P) cm
150 mm
3
115 mm
1- Rafter Prof le
20
64 mm
130 mm
100 mm
53,2 mm
2- Gutter Prof le
t:4 mm
t:1,8 mm
68 mm
160 mm
166,1 mm
t:2 mm
t:1,8 mm
t:2,5 mm
t:3 mm
3- Post Prof le
4- Fabr c Support
Prof le
80 mm
5- Puller Prof le
95 mm
100 mm
6- S de Rafter Prof le
120 mm
120 mm
*W th m n. Incl nat on of 7° .Values can varry by other Incl nat on values.
(%14,94) 8,5°
(%13,16) 7,5°
(%11,39) 6,5°
SLOPE
7
(%9,62) 5,5°
(%8,04) 4,6°
200
250
300
350
400
450
MODULE WIDTH (cm)
M numum slopes for at, at var ance, at harmony, at c ty vers ons.
7- Hollow Sect on
Steel Pro le
21
Flat harmony - ser es 150 / Techn cal Deta ls
Flat harmony - ser es 150 / Techn cal Deta ls
P
P1
P2
x.
ma
m
0c
90
C
H1
H2
Two Modules
ma
x.
1
Over 700 cm w dth, a support
80
- Two modules w th 6 rafters
0c
m
- Max. 900 cm w dth
column needed for steel structure
50
4
ax.
450 cm > 900 cm
cm
m
m
0c
30
1
ax.
m
ma
x. 1
80
Three Modules
0c
m
One Module
135 cm > 450 cm
- One module w th 4 rafters
- Max. 450 cm w dth
22
900 cm > 1300 cm
- Three modules w th 8 rafters
ma
x. 1
80
- Max. 1300 cm w dth
0c
m
23
Flat harmony - ser es 150 / Techn cal Deta ls
Flat harmony - ser es 150 / Techn cal Deta ls
D
75 mm
A
B
56 mm
90 mm
Type - A (standart)
Standart
C
178
145
28 mm
42
75 mm
114 mm
144
7°>30°
125 mm
> 155 mm
Type - B (opt onal)
72 mm
Deta l - A
Deta l - B
178 mm
Deta l - C
Y1
Y2
135 mm
95 mm
158 mm
45 mm
158 mm
8 mm
70 mm
158 mm
H1
H
H2
G=H-17mm
43 mm
34 mm
Deta l - D
67,5 mm
Installat on Bracket
67,5 mm
t:2 mm
95 mm
95 mm
100 mm
100 mm
S de Rafter
24
t:2 mm
Support column of s de rafter s stalled
when lenght of s de rafter s over 800 cm.
Support Column o
f S de Rafter
25
Spl ne harmony - ser es 150 / Techn cal Deta ls
Spl ne harmony - ser es 150 / Techn cal Deta ls
L
L
N
N
A
R
4
1
P
5
Fabr c He ght
Hood
Fall
Fab. Sub. Pro les
Recomend. Rad us
(N) mm
(L) mm
**(A) mm
pc
(R) mm
600
409
778
952
12
8000
700
414
843
1093
14
9000
800
419
914
1237
16
10000
900
421
980
1300
18
12000
1000
426
1047
1442
20
13000
1100
431
1114
1586
22
14000
1200
435
1183
1731
24
15000
1300
434
1250
1590
26
20000
1400
446
1386
1786
30
20000
1500
444
1457
1695
32
25000
1600
451
1524
1875
34
25000
1700
446
1588
1632
36
35000
1800
451
1655
1778
38
35000
1900
458
1722
1932
40
35000
2000
462
1791
1908
42
40000
2100
466
1863
2058
44
40000
2200
470
1930
2215
46
40000
7
6
t:3,5 mm
2
t:2,5 mm
Project on (P) cm
150 mm
3
115 mm
1- Rafter Prof le
26
64 mm
130 mm
100 mm
53,2 mm
2- Gutter Prof le
t:4 mm
t:1,8 mm
68 mm
160 mm
166,1 mm
t:2 m
m
t:1,8 mm
t:2,5 mm
t:3 mm
3- Post Prof le
4- Fabr c Support
Prof le
80 mm
5- Puller Prof le
95 mm
100 mm
6- S de Rafter Prof le
120 mm
120 mm
7- Hollow Sect on
Steel Pro le
27
Spl ne harmony - ser es 150 / Techn cal Deta ls
Spl ne harmony - ser es 150 / Techn cal Deta ls
P
P1
P2
x.
ma
m
0c
90
R
C
H1
H2
ma
x. 2
Two Modules
20
Over 700 cm w dth, a support
0c
50
- Two modules w th 6 rafters
- Max. 900 cm w dth
column needed for steel structure
4
ax.
m
450 cm > 900 cm
cm
m
00
13
ax.
cm
m
ma
Three Modules
x. 2
20
0c
m
One Module
135 cm > 450 cm
- One module w th 4 rafters
- Max. 450 cm w dth
28
900 cm > 1300 cm
- Three modules w th 8 rafters
- Max. 1300 cm w dth
ma
x. 2
20
0c
m
29
Spl ne harmony - ser es 150 / Techn cal Deta ls
Spl ne harmony - ser es 150 / Techn cal Deta ls
D
75 mm
A
R
R
B
56 mm
90 mm
Type - A (standart)
Standart
C
178
145
28 mm
42
144
75 mm
114 mm
7°>30°
125 mm
> 155 mm
Type - B (opt onal)
72
mm
Deta l - A
Deta l - B
178 mm
Y1
Deta l - C
Y2
135 mm
95 mm
158 mm
45 mm
158 mm
8 mm
70 mm
H1
H2
H
G=H-17mm
158 mm
43 mm
34 mm
Deta l - D
67,5 mm
Installat on Bracket
67,5 mm
t:2 mm
95 mm
95 mm
100 mm
100 mm
S de Rafter
30
t:2 mm
Support column of s de rafter s stalled
when lenght of s de rafter s over 800 cm.
Support Column of S de Rafter
31
Flat c ty - ser es 150 / Techn cal Deta ls
Flat c ty - ser es 150 / Techn cal Deta ls
4
(%16,73) 9,5°
(%14,94) 8,5°
Z
(%13,16) 7,5°
L
2
(%11,39) 6,5°
SLOPE
N
A
(%9,62) 5,5°
(%8,04) 4,6°
3
5
1
200
6
250
300
350
400
450
MODULE WIDTH (cm)
M numum slopes for at, at var ance, at harmony, at c ty vers ons.
P
7
t:3,5 mm
t:2,5 mm
3,7 mm
Ø 48,3 mm
150 mm
2- Hang Tube Pro le
t:3 mm
t:1,8 mm
30 mm
t:1,8 mm
100 mm
Ø14
t:10 mm
t:1,8 mm
68 mm
Ø12
Project on (P) cm
1- Rafter Prof le
85 mm
64 mm
115 mm
160 mm
t:6 mm
200 mm
130 mm
Fall
Fab. Sub. Pro les
(N) mm
(L) mm
**(A) mm
pc
(Z) mm
300
436
7000
513
5
634
350
445
7680
575
6
775
400
453
8350
697
7
915
450
462
9040
699
8
1056
500
477
10400
761
10
1197
3- Hang Pro le
4- Hang Wall Bracket
Pro le
5- Fabr c Support
Prof le
Hang D stance
*W th m n. Incl nat on of 7° .Values can varry by other Incl nat on values.
** +160 mm d stance w th opt onal front gutter system
80 mm
53,2 mm
32
Hood
8
115 mm
66 mm
Fabr c He ght
80 mm
166,1 mm
6- Puller Prof le
7- Aerof l Louvre
Prof le
8- Gutter Prof le
* Opt onal
33
Flat c ty - ser es 150 / Techn cal Deta ls
Flat c ty - ser es 150 / Techn cal Deta ls
Z
cm
00
9
ax.
m
C
H
m
ax
.5
x.
ma
00
cm
cm
450
Two Modules
P
450 cm > 900 cm
- Two modules w th 3 rafters
- Max. 900 cm w dth
300
cm
1
ax.
m
m
ax
.5
00
cm
One Module
135 cm > 450 cm
- One module w th 2 rafters
- Max. 450 cm w dth
34
Three Modules
m
ax
.5
00
900 cm > 1300 cm
- Three modules w th 4 rafters
cm
- Max. 1300 cm w dth
35
Flat
c ty - ser es 150 / Techn cal Deta ls
Flat c ty - ser es 150 / Techn cal Deta ls
C
D
B
A
75 mm
Type - A (opt onal -1)
t:10 mm
Ø14
75 mm
114 mm
7°>30°
115 mm
85 mm
125 mm
> 155 mm
80 mm
Deta l - A
* Opt onal
Deta l - B
* Opt onal
28 mm
Deta l - C
135 mm
95 mm
Type - B (opt onal-2)
45 mm
158 mm
158 mm
8 mm
70 mm
158 mm
43 mm
34 mm
67,5 mm
67,5 mm
Installat on Bracket
Deta l - D
36
37
Spl ne c ty - ser es 150 / Techn cal Deta ls
Spl ne c ty - ser es 150 / Techn cal Deta ls
4
Z
L
N
2
A
R
3
1
5
P
6
7
t:3,5 mm
t:2,5 mm
3,7 mm
Ø 48,3 mm
150 mm
1- Rafter Prof le
2- Hang Tube Pro le
t:3 mm
t:1,8 mm
30 mm
t:1,8 mm
100 mm
66 mm
Ø14
t:10 mm
t:1,8 mm
68 mm
Ø12
85 mm
64 mm
115 mm
160 mm
t:6 mm
200 mm
130 mm
3- Hang Pro le
4- Hang Wall Bracket
Pro le
5- Fabr c Support
Prof le
Hood
Fall
Fab. Sub. Pro les
Recomend. Rad us
Hang D stance
(N) mm
(L) mm
**(A) mm
pc
(R) mm
(Z) mm
300
409
778
792
6
8000
634
350
414
843
933
7
9000
775
400
419
914
1077
8
10000
915
450
421
980
1140
9
12000
1056
500
426
1047
1282
10
13000
1197
*W th m n. Incl nat on of 7° .Values can varry by d erent rad us values.
** +160 mm d stance w th opt onal front gutter system.
80 mm
53,2 mm
38
Project on (P) cm
8
115 mm
Fabr c He ght
80 mm
166,1 mm
6- Puller Prof le
7- Aerof l Louvre
Prof le
8- Gutter Prof le
* Opt onal
39
Spl ne c ty - ser es 150 / Techn cal Deta ls
Spl ne c ty - ser es 150 / Techn cal Deta ls
Z
x.
ma
900
cm
R
C
H
m
ax
.5
50
x. 4
ma
00
cm
cm
Two Modules
P
450 cm > 900 cm
- Two modules w th 3 rafters
- Max. 900 cm w dth
300
cm
1
ax.
m
m
ax
.5
00
cm
One Module
135 cm > 450 cm
- One module w th 2 rafters
- Max. 450 cm w dth
40
Three Modules
m
ax
- Three modules w th 4 rafters
.5
00
900 cm > 1300 cm
cm
- Max. 1300 cm w dth
41
Spl ne c ty - ser es 150 / Techn cal Deta ls
Spl ne c ty - ser es 150 / Techn cal Deta ls
C
D
B
A
75 mm
Type - A (opt onal -1)
t:10 mm
Ø14
75 mm
114 mm
7°>30°
115 mm
85 mm
125 mm
> 155 mm
80 mm
Deta l - A
* Opt onal
Deta l - B
* Opt onal
28 mm
Deta l - C
135 mm
95 mm
Type - B (opt onal-2)
45 mm
158 mm
158 mm
8 mm
70 mm
158 mm
43 mm
34 mm
67,5 mm
67,5 mm
Installat on Bracket
Deta l - D
42
43
Flat var ance - ser es 150 / Techn cal Deta ls
Flat var ance - ser es 150 / Techn cal Deta ls
9
(%16,73) 9,5°
(%14,94) 8,5°
(%13,16) 7,5°
7
Z
Z
8
L
3
(%9,62) 5,5°
(%8,04) 4,6°
L
N
1
SLOPE
(%11,39) 6,5°
N
A
A
4
200
6
t:2,5 mm
450
68 mm
160 mm
Fabr c He ght
Hood
Fall
Fab. Sub. Pro les
(N) mm
(L) mm
**(A) mm
pc
(Z) mm
600
436
7000
513
10
634
700
445
7680
575
12
775
800
453
8350
697
14
915
900
462
9040
699
16
1056
1000
477
10400
761
20
1197
166,1 mm
2- Gutter Prof le
* Opt onal
30 mm
t:1,8 mm
Project on (P) cm
53,2 mm
1- Rafter Prof le
400
t:3 mm
150 mm
115 mm
350
2
t:1,8 mm
t:3,5 mm
300
MOD
ULE WIDTH (cm)
M numum slopes for at, at var ance, at harmony, at c ty vers ons.
P
5
250
3- Fabr c Support
Prof le
t:4 mm
3,7 mm
t:1,8 mm
64 mm
100 mm
Ø 48,3 mm
Ø12
120 mm
85 mm
130 mm
80 mm
t:10 mm
115 mm
t:6 mm
66 mm
200 mm
Ø14
80 mm
Hang D stance
*W th m n. Incl nat on of 7° .Values can varry by other Incl nat on values.
** +160 mm d stance w th opt onal front gutter system
120 mm
4- Puller Prof le
44
5- Aerof l Louvre
Prof le
6- Hollow Sect on
Steel Pro le
7- Hang Tube
Prof le
8- Hang
9- Hang Wall
Bracket
45
Flat var ance - ser es 150 / Techn cal Deta ls
Flat var ance - ser es 150 / Techn cal Deta ls
P
P1
x.
ma
P2
900
cm
C
H1
H2
ma
x. 1
00
0c
m
Two Modules
450 cm > 900 cm
- Two modules w th 6 rafters
- Max. 900 cm w dth
x.
ma
450
cm
00
13
ax.
cm
m
ma
x. 1
00
0c
m
One Module
- One module w th 2 rafters
- Max. 450 cm w dth
46
Three Modules
135 cm > 450 cm
ma
x. 1
900 cm > 1300 cm
- Three modules w th 8 rafters
00
0c
m
- Max. 1300 cm w dth
47
Flat var ance - ser es 150 / Techn cal Deta ls
Flat var ance - ser es 150 / Techn cal Deta ls
C
B
A
75 mm
t:10 mm
Ø14
75 mm
114 mm
Type - A (opt onal-1)
7°>30°
115 mm
85 mm
125 mm
> 155 mm
80 mm
28 mm
Deta l - A
* Opt onal
Deta l - B
* Opt onal
Deta l - C
135 mm
95 mm
158 mm
Type - B (opt onal-2)
45 mm
158 mm
8 mm
70 mm
158 mm
43 mm
34 mm
67,5 mm
67,5 mm
Installat on Bracket
Deta l - D
48
49
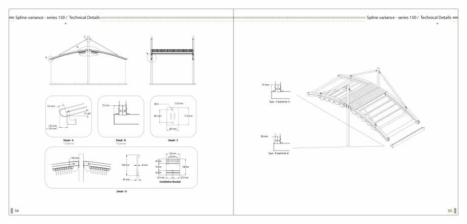
Spl ne var ance - ser es 150 / Techn cal Deta ls
Spl ne var ance - ser es 150 / Techn cal Deta ls
9
7
Z
Z
N
N
8
3
A
1
A
R
4
P
6
5
2
t:1,8 mm
t:3,5 mm
t:2,5 mm
t:3 mm
68 mm
160 mm
150 mm
Fabr c He ght
Hood
Fall
Fab. Sub. Pro les
Recomend. Rad us
Hang D stance
(N) mm
(L) mm
**(A) mm
pc
(R) mm
(Z) mm
600
409
778
792
6
8000
634
700
414
843
933
7
9000
775
800
419
914
1077
8
10000
915
900
421
980
1140
9
12000
1056
1000
426
1047
1282
10
13000
1197
166,1 mm
115 mm
1-
Rafter Prof le
2- Gutter Prof le
* Opt onal
30 mm
t:1,8 mm
Project on (P) cm
53,2 mm
3- Fabr c Support
Prof le
t:4 mm
3,7 mm
t:1,8 mm
64 mm
100 mm
Ø 48,3 mm
Ø12
120 mm
85 mm
130 mm
80 mm
t:10 mm
115 mm
t:6 mm
66 mm
200 mm
Ø14
80 mm
*W th m n. Incl nat on of 7° .Values can varry by d erent rad us values.
** +160 mm d stance w th opt onal front gutter system.
120 mm
4- Puller Prof le
50
5- Aerof l Louvre
Prof le
6- Hollow Sect on
Steel Pro le
7- Hang Tube
Prof le
8- Hang
9- Hang Wall
Bracket
51
Spl ne var ance - ser es 150 / Techn cal Deta ls
Spl ne var ance - ser es 150 / Techn cal Deta ls
P
P1
x.
ma
P2
R
cm
900
C
H1
ma
H2
x. 1
00
0c
m
Two Modules
450 cm > 900 cm
- Two modules w th 6 rafters
x.
ma
0
45
cm
- Max. 900 cm w dth
00
13
ax.
cm
m
ma
x. 1
00
0c
m
One Module
135 cm > 450 cm
- One module w th 4 rafters
- Max. 450 cm w dth
52
ma
Three Modules
x. 1
00
0c
m
900 cm > 1300 cm
- Three modules w th 8 rafter
s
- Max. 1300 cm w dth
53
Spl ne var ance - ser es 150 / Techn cal Deta ls
Spl ne var ance - ser es 150 / Techn cal Deta ls
C
D
B
A
75 mm
7°>30°
Type - A (opt onal-1)
t:10 mm
Ø14
75 mm
114 mm
115 mm
85 mm
125 mm
> 155 mm
80 mm
28 mm
Deta l - A
* Opt onal
Deta l - B
* Opt onal
Deta l - C
Type - B (opt onal-2)
135 mm
95 mm
158 mm
45 mm
158 mm
8 mm
70 mm
158 mm
43 mm
34 mm
67,5 mm
67,5 mm
Installat on Bracket
Deta l - D
54
55
Vault var ance - ser es 150 / Techn cal Deta ls
Vault var ance - ser es 150 / Techn cal Deta ls
9
3
7
4
8
Z
L
A
1
R
N
P
6
5
Fabr c He ght
Hood
Fall
Fab. Sub. Pro les
Recomend. Rad us
Hang D stance
(N) mm
(L) mm
**(A) mm
pc
(R) mm
(Z) mm
300
515
857
602
7
4000
314
350
531
842
664
7
4500
384
400
610
984
779
9
4500
454
450
659
1113
845
11
5000
524
500
642
1119
856
11
6000
594
550
663
1256
873
13
7000
664
600
653
1252
894
13
8000
734
650
679
1392
917
15
9000
805
700
679
1392
943
15
10000
875
750
718
1533
1002
17
10500
945
800
732
1529
1063
17
11000
1015
2
t:1,8 mm
t:2,5 mm
t:3 mm
68 mm
160 mm
150 mm
166,1 mm
115 mm
Project on (P) cm
t:3,5 mm
53,2 mm
1- Rafter Prof le
2- Gutter Prof le
* Opt onal
30 mm
t:1,8 mm
3- Fabr c Support
Prof le
t:4 mm
3,7 mm
t:1,8 mm
64 mm
100 mm
Ø 48,3 mm
Ø12
120 mm
115 mm
t:6 mm
130 mm
80 mm
t:10 mm
85 mm
66 mm
200 mm
Ø14
80 mm
120 mm
4- Puller Prof le
56
5- Aerof l Louvre
Prof le
6- Hollow Sect on
Steel Pro le
7- Hang Tube
Prof le
8- Hang
9- Hang Wall
Bracket
** +160 mm d stance w th opt onal front gutter system
57
Vault var ance - ser es 150 / Techn cal Deta ls
Vault var ance - ser es 150 / Techn cal Deta ls
00
8
ax.
P
P1
cm
m
P2
R
C
H1
H2
ma
x. 8
00
cm
Two Modules
400 cm > 800 cm
- Two modules w th 6 rafters
- Max. 800 cm w dth
m
0c
0
x. 4
ma
200
cm
1
ax.
m
ma
x. 8
00
cm
One Module
135 cm > 400 cm
- One module w
th 2 rafters
- Max. 400 cm w dth
58
Three Modules
ma
x. 8
00
cm
800 cm > 1200 cm
- Three modules w th 8 rafters
- Max. 1200 cm w dth
59
Vault var ance - ser es 150 / Techn cal Deta ls
Vault var ance - ser es 150 / Techn cal Deta ls
C
A
75 mm
B
Type - A (standart)
28 mm
Ø14
75 mm
t:10 mm
114 mm
Type - B (opt onal)
115 mm
85 mm
7°>30°
125 mm
> 155 mm
80 mm
Deta l - A
60
Deta l - B
Deta l - C
61
Ser es 150 / Techn cal Deta ls
62
Ser es 150 / Techn cal Deta ls
DD S x whell sl der
Un quely developed, two hor zontal &
four vert cal rollers work ng together for
perfectly flat operat on every t me. The
DD s x whell system s proven to remove
the jamm ng ssue that occurs w th the 4
wheel system and can take loads of up to
400KG
Rafter stormguard edge seal
The rafter Stormguard edge seal stops
water dr pp ng from the s de of the
system by prov d ng a soft cush on ng
barr er w th ts spec al mult -hardness
des gn, along the s de of the system.
Gutter stormguard
seal
The Stromguard gutter seal prov des a
perfect seal to prevent water leaks along
the front of the system from dr v ng ra n
of splash ng from the gutter by ts flex ble
des gn adapt ng to the ncl nat on of the
system.
.
.
Hood stormguard seal
The Stromguard hood seal prov des the
perfect seal to prevent dr v ng ra n&w nd
com ng n under the hood prof les.
Fabr c edge cord w th electr cal cable
Th s low prof le cord carr es the low
vo l t a g e e l e c t r c a l p owe r fo r t h e
arch tectural l ght ng w th ts surely safe
des gn.
Rafter prof le w th water guard s de
channels
The rafter prof les are des gned w th water
guard s de channels for easy nstallat on
and to prevent water from s des.
DD sl der easy cl p nstallat on
The DD system has been des gned for
ease of use, to save t me on nstallatlons
and reduce the number of staff requ red.
Easy Cl p allows the prof le to stay safely
w thout an extra hold. Each DD sl der can
take loads of up to 400 kg once n place.
Integrated gutt
er & nternal dra nage
system
The ntegrated gutter system prov des the
perfect solut on for water dra nage.
63
Ser es 150 / Techn cal Deta ls
64
Ser es 150 / Techn cal Deta ls
DD sl der and fabr c prof le assembly
The system has been des gned for ease of
assembly to save t me on nstallat ons
and reduce the number of staff requ red.
Motorbox support & hood support
prof le easy nstallat on
Each support prof le s easy to nstall and
s mple to adjust dur ng the nstallat on.
Double rafter wall bracket k t
An advanced solut on for nstall ng two
rafters at once.
Strom channel fot jo n ng system
The strom channel s a solut on for jo n ng
two system s de by s de w th a waterproof
jo nt.
Easy cl p ntermed ate jo nts (for2&3
module system)
.
The Easy cl p nterned ate jo nts have
been des gned for ease of s te assembly
to save t me and reduce the number of
staff requ red.
Base plate w th external spout
Th s base plate prov des a water d sporsal
solut on.
Gutter prof le jo n ng p ece
A sm
art solut on for jo n ng the gutter
prof le.
Hood prof le sheets
.
Pergostyle hood prof le sheets prov de an
attract ve cover ng solut on for the system
when not n use. The low prof le aesthet c
des gn offers added protect on to the
system w th a ch c touch.
65
Ser es 150 / Techn cal Deta ls
Compact 29 rpm d rect dr ve motor
box
The d rect dr ve motor system s a qu ck
and eff c ent system that dr ves all
conveyor rafters at the same t me. The
low prof le des gn also allows the fabr c
to be stored underneath the motor
wh ch saves add t onal space.
LED-TEC d mmer setup
L E D -T E C d m m e r l g h t n g s a
ntegrated l ght ng solut on that can be
added to any Pergostyle system.
66
Ser es 150 / Techn cal Deta ls
F gure-I
F gure-IV
F gure-II
F gure-V
F gure-III
F gure-VI
LED-TEC h gh powered l ght ng
LED -TEC l ght ng s a ntegrated
l ght ng solut on that can be added to
any Pergostyle system.
Aerofo l louvres
The add t on of Aerofo l louvers can
prov de added shade when the
system s
closed.
Each system s ava lable w th an opt omal overhang to allow the covered area to protrude past the rafter prof le. S te spec f c
overhang solut on such as stepped or wenge shapes are also an effect ve way to get max mum coverage for your area.
67
Ser es 150 / Techn cal Deta ls
Ser es 150 / Techn cal Deta ls
EXTENSION (cm)
1 MODULE
PRODUCT WIND RESISTANCE
CLASSIFICATION OF THE WIND RESISTANCE (EN 13561) ACCORDING TO BEAUFORT SCALE
Wind speed (km/h)
0-1
1-5
6-11
12-19
20-28
29-38
39-49
50-61
62-74
75-88
89-102
103-117
>118
Environmental conditions
calm
light air
light breeze
gentle breeze
moderate breeze
fresh breeze
strong breeze
strong wind
fresh gale
strong gale
whole gale
storm
hurricane
FLAT PRODUCT WIND RESISTANCE
WIDTH(cm)
2 MODULES
1 MODULE
EXTENSION (cm)
Effects of wind
Smoke rises vertically
Direction of wind shown by smoke drift, but not by weather vanes
Wind felt on face, ordinary vanes moved by wind
Leaves and small twigs in constant motion
Raise
s dust and loose paper; small branches are moved
Small trees begin to sway
Large branches in motion; umbrellas used with difficulty
Whole trees in motion; inconvenience felt when walking against wind
Branches break off trees; generally mpedes progress
Tiles come off roofs
Trees uprooted
Serious damage to buildings
Serious damage to buildings
400
450
500
600
700
800
900
1000
1100
1200
1300
300
11
11
11
11
11
11
11
11
11
11
11
11
400
11
11
11
11
11
11
11
10
11
11
11
11
500
11
11
11
11
11
11
10
10
11
11
10
10
600
11
11
11
11
10
10
9
9
10
10
9
9
700
11
11
11
11
10
9
9
9
10
9
9
9
800
11
11
10
10
9
9
9
8
9
9
9
8
900
11
11
9
9
9
9
8
8
8
8
8
8
1000
9
9
9
9
8
8
8
8
8
8
8
8
1100
8
8
8
8
8
8
7
7
8
7
7
7
VAULT PRODUCT WIND RESISTANCE (WIDTH cm)
1 MODULE
2 MODULES
3 MODULES
300
400
450
500
600
700
800
900
1000
1100
1200
1300
300
11
11
11
11
11
11
11
11
11
11
11
11
400
11
11
11
11
11
11
11
10
11
11
11
11
500
11
11
11
11
11
11
10
10
11
11
10
10
600
11
11
11
11
10
10
9
9
10
10
9
9
700
11
11
11
11
10
9
9
9
10
9
9
9
800
11
11
10
10
9
9
9
8
9
9
9
8
900
11
11
9
9
9
9
8
8
8
8
8
8
1000
9
9
9
9
8
8
8
8
8
8
8
8
1100
8
8
8
8
8
8
7
7
8
7
7
7
The table shows the degrees of resistance of Sun Leader Pergola Systems limits and Sun
Leader Pergola Systems warranty for model Vault for all dimensions goes up to grade 7 °
For higher values of wind speed values recommendation is to close the system.
3 MODULES
300
400
450
500
600
700
800
900
1000
1100
1200
1300
300
11
11
11
11
11
11
11
11
11
11
11
11
400
11
11
11
11
11
11
11
10
11
11
11
11
500
11
11
11
11
11
11
10
10
11
11
10
10
600
11
11
11
11
10
10
9
9
10
10
9
9
700
11
11
11
11
10
9
9
9
10
9
9
9
800
11
11
10
10
9
9
9
8
9
9
9
8
900
11
11
9
9
9
9
8
8
8
8
8
8
FLAT HARMONY PRODUCT WIND RESISTANCE
2 MODULES
1 MODULE
3 MODULES
300
400
450
500
600
700
800
900
1000
1100
1200
1300
600
11
11
11
11
11
11
11
11
11
11
11
11
800
11
11
11
11
11
11
11
10
11
11
11
11
1000
11
11
11
11
11
11
10
10
11
11
10
10
1200
11
11
11
11
10
10
9
9
10
10
9
9
1400
11
11
11
11
10
9
9
9
10
9
9
9
The table shows the degrees of resistance of Sun Leader Pergola Systems limits and Sun
1600
11
11
10
10
9
9
9
8
9
9
9
8
Leader Pergola Systems warranty for model Flat for all dimensions goes up to grade 8°
1800
11
11
9
9
9
9
8
8
8
8
8
8
For higher values of wind speed values recommendation is to close the system.
68
3 MODULES
300
The table shows the degrees of resistance of Sun Leader Pergola Systems limits and Sun
Leader Pergola Systems warranty for model Spline for all dimensions goes up to grade 7°
For higher values of wind speed values recommendation is to close the system.
EXTENSION (cm)
Load (N/m²)
<40
<40
<40
<40
40
70
110
>110
>110
>110
>110
>110
>110
EXTENSION (cm)
EN Class Degree
0
0
0
1
0
2
0
3
1
4
2
5
3
6
>3
7
>3
8
>3
9
>3
10
>3
11
>3
12
SPLINE PRODUCT WIND RESISTANCE (WIDTH cm)
2 MODULES
The table shows the degrees of resistance of Sun Leader Pergola Systems limits and Sun
Leader Pergola Systems warranty for model Spline for all dimensions goes up to grade 7°
For higher values of wind speed values recommendation is to close the system.
69
Ser es 150 / Techn cal Deta ls
Ser es 150 / Techn cal Deta ls
FLAT VARIANCE PRODUCT WIND RESISTANCE
WIDTH(cm)
SPLINE HARMONY PRODUCT WIND RESISTANCE
WIDTH(cm)
2 MODULES
3 MODULES
300
400
450
500
600
700
800
900
1000
1100
1200
1300
600
11
11
11
11
11
11
11
11
11
11
11
11
800
11
11
11
11
11
11
11
10
11
11
11
11
1000
11
11
11
11
11
11
10
10
11
11
10
10
1200
11
11
11
1
1
10
10
9
9
10
10
9
9
1400
11
11
11
11
10
9
9
9
10
9
9
9
1600
11
11
10
10
9
9
9
8
9
9
9
8
1800
11
11
9
9
9
9
8
8
8
8
8
8
EXTENSION (cm)
EXTENSION (cm)
1 MODULE
1 MODULE
2 MODULES
3 MODULES
300
400
450
500
600
700
800
900
1000
1100
1200
1300
600
9
9
9
9
9
9
9
9
9
9
9
9
800
9
9
8
9
9
9
8
8
9
9
8
8
1000
9
8
7
9
9
8
8
7
9
8
7
7
The table shows the degrees of resistance of Sun Leader Pergola Systems limits and
Sun Leader Pergola Systems warranty for model Flat Variance for all dimensions goes up to grade
8 ° For higher values of wind speed values recommendation is to close the system.
The table shows the degrees of resistance of Sun Leader Pergola Systems limits and
SPLINE VARIANCE PRODUCT WIND RESISTANCE
WIDTH(cm)
Sun Leader Pergola Systems warranty for model Spline Harmony for all dimensions goes up to grade
8 ° For higher values of wind speed values recommendation is to close the
system.
WIDTH(cm)
EXTENSION (cm)
1 MODULE
2 MODULES
3 MODULES
300
400
450
500
600
700
800
900
1000
1100
1200
1300
300
9
9
9
9
9
9
9
9
9
9
9
9
400
9
9
8
9
9
9
8
8
9
9
8
8
500
9
8
7
9
9
8
8
7
9
8
7
7
EXTENSION (cm)
1 MODULE
FLAT CITY PRODUCT WIND RESISTANCE
2 MODULES
300
400
450
600
9
9
800
9
9
1000
9
8
7
3 MODULES
500
600
700
800
900
1000
1100
1200
1300
9
9
9
9
9
9
9
9
9
9
8
9
9
9
8
8
9
9
8
8
9
9
8
8
7
9
8
7
7
The table shows the degrees of resistance of Sun Leader Pergola Systems limits and
Sun Leader Pergola Systems warranty for model Spline Variance for all dimensions goes up to grade
8 ° For higher values of wind speed values recommendation is to close the system.
The table shows the degrees of resistance of Sun Leader Pergola Systems limits and
Sun Leader Pergola Systems warranty for model Flat City for all dimensions goes up to grade
7 ° For higher values of wind spee
d values recommendation is to close the system.
VAULT VARIANCE PRODUCT WIND RESISTANCE
WIDTH(cm)
1 MODULE
SPLINE CITY PRODUCT WIND RESISTANCE
EXTENSION (cm)
1 MODULE
2 MODULES
3 MODULES
300
400
450
500
600
700
800
900
1000
1100
1200
1300
300
9
9
9
9
9
9
9
9
9
9
9
9
400
9
9
8
9
9
9
8
8
9
9
8
8
500
9
8
7
9
9
8
8
7
9
8
7
7
The table shows the degrees of resistance of Sun Leader Pergola Systems limits and
Sun Leader Pergola Systems warranty for model Spline City for all dimensions goes up to grade
7 ° For higher values of wind speed values recommendation is to close the system.
EXTENSION (cm)
WIDTH(cm)
2 MODULES
3 MODULES
300
400
500
600
700
800
900
300
9
9
9
9
9
9
9
400
9
9
9
9
9
9
9
500
9
9
9
9
9
9
9
600
9
9
9
9
9
9
9
700
9
9
9
9
9
8
8
800
9
8
9
9
8
8
7
The table shows the degrees of resistance of Sun Leader Pergola Systems limits and
Sun Leader Pergola Systems warranty
for model Vault Variance for all dimensions goes up to grade
7 ° For higher values of wind speed values recommendation is to close the system.
70
71
Alte documentatii ale aceleasi game Vezi toate
Catalog, brosura 48 p | RO
Certificare produs 7 p | RO