L²
Detailheft
05-2015
ALPHATON®-Ziegelfassade L²
Detail book / Cahier technique
Moeding Keramikfassaden GmbH
Ludwig-Girnghuber-Straße 1
84163 Marklkofen
Germany
Telefon +49 (0) 87 32 / 246 00
Telefax +49 (0) 87 32 / 246 69
E-Mail: info @moeding.de
www.moeding.de
Vorschläge zur Ausführung von MOEDING Alphaton Ziegelfassaden mit L² Unterkonstruktionssystem.
Proposal for the realization of MOEDING Alphaton clay tile facade with L² Sub construction.
Propositions pour la réalisation de façades en terre cuite MOEDING Alphaton avec sous-construction L².
Fassadenplatten
Façade Tiles
Plaques de façade
Allgemeiner Teil
General Part
Partie générale
3
Allgemeiner Teil
General Part
Partie générale
4
Fassadenplatten
Façade Tiles
Plaques de façade
Höhenanpassung durch Plattenschnitte
Height adjustment by tiles cuts
Ajustements des hauteurs par coupe de plaques
Allgemeiner Teil
General Part
Partie générale
5
Systemteile
System Parts
Eléments du sytÃ
¨me
6
Allgemeiner Teil
General Part
Partie générale
Isometrie
Isometric representation
Représentation 3D
ALPHATON® auf Alu-Unterkonstruktion L²
ALPHATON® on L² aluminium substructure
ALPHATON® sur ossature en aluminium (L²)
7
ALPHATON® auf Alu-Unterkonstruktion L²
ALPHATON® on L² aluminium substructure
ALPHATON® sur ossature en aluminium (L²)
8
Frontalansicht
Front view
Vue de face
Montageschritte
Installation
Montage
Beliebige Montage möglich!
ALPHATON® Rapid-System auf Alu-Unterkonstruktion L²
ALPHATON® Rapid-System on L² aluminium substructure
ALPHATON® Rapide-Système sur ossature en aluminium (L²)
9
ALPHATON® auf Alu-Unterkonstruktion L²
ALPHATON® on L² aluminium substructure
ALPHATON® sur ossature en aluminium (L²)
10
Gesamtschnitt
Overall section
Vue en coupe (générale)
Regelschnitt
Typical sections
Vue en coupe détaillée
ALPHATON® auf Alu-Unterkonstruktion L²
ALPHATON® on L² aluminium substructure
ALPHATON® sur ossature
en aluminium (L²)
11
ALPHATON® auf Alu-Unterkonstruktion L²
ALPHATON® on L² aluminium substructure
ALPHATON® sur ossature en aluminium (L²)
12
Außenecke
External corner
Angle extérieur
Außenecke
External corner
Angle extérieur
ALPHATON® auf Alu-Unterkonstruktion L²
ALPHATON® on L² aluminium substructure
ALPHATON® sur ossature en aluminium (L²)
13
ALPHATON® auf Alu-Unterkonstruktion L²
ALPHATON® on L² aluminium substructure
ALPHATON® sur ossature en aluminium (L²)
14
Außenecke
External corner
Angle extérieur
Giebelecke bündig
Gabel corner, flush
Coin - coupe à onglet
ALPHATON® auf Alu-Unterkonstruktion L²
ALPHATON® on L² aluminium substructure
ALPHATON® sur ossature en aluminium (L²)
15
ALPHATON® auf Alu-Unterkonstruktion L²
ALPHATON® on L² aluminium substructure
ALPHATON® sur ossature en aluminium (L²)
16
Giebelecke umgreifend
Gable corner, tiles extending around corner
Coin - coupe à onglet - Tuiles en prolongement du coin
Innenecke
Internal corner
Coin intérieur
ALPHATON® auf Alu-Unterkonstruktion L²
ALPHATON® on L² aluminium substructure
ALPHATON® sur ossature en aluminium (L²)
17
ALPHATON® auf Alu-Unterkonstruktion L²
ALPHATON® on L² aluminium substructure
ALPHATON® sur ossature en aluminium (L²)
18
Innenecke
Internal corner
Coin intérieur
Frontalansicht Ortgang
Front view verge connection
Vue en élévation - Appareillage des bordures
ALPHATON® auf Alu-Unterkonstruktion L²
ALPHATON® on L² aluminium substructure
ALPHATON® sur ossature en aluminium (L²)
19
ALPHATON® auf Alu-Unterkonstruktion L²
ALPHATON® on L² aluminium substructure
ALPHATON® sur ossature en aluminium (L²)
20
Ortgang
Verge, sloping roof
Bordure - Toit en pente
Dachrand
Flat roof
Toit plat
ALPHATON® auf Alu-Unterkonstruktion L²
ALPHATON® on L² aluminium substructure
ALPHATON® sur ossature en aluminium (L²)
21
ALPHATON® auf Alu-Unterkonstruktion L²
ALPHATON® on L² aluminium substr
ucture
ALPHATON® sur ossature en aluminium (L²)
22
Sockel-Anschluss
Plinth connections
Installation de la base
Sockel-Anschluss
Plinth connections
Installation de la base
ALPHATON® auf Alu-Unterkonstruktion L²
ALPHATON® on L² aluminium substructure
ALPHATON® sur ossature en aluminium (L²)
23
ALPHATON® auf Alu-Unterkonstruktion L²
ALPHATON® on L² aluminium substructure
ALPHATON® sur ossature en aluminium (L²)
24
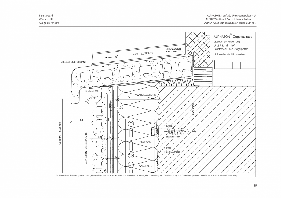
Fensterbank
Window sill
Allège de fenêtre
Fensterbank
Window sill
Allège de fenêtre
ALPHATON® auf Alu-Unterkonstruktion L²
ALPHATON® on L² aluminium substructure
ALPHATON® sur ossature en aluminium (L²)
25
ALPHATON® auf Alu-Unterkonstruktion L²
ALPHATON® on L² aluminium substructure
ALPHATON® sur ossature en aluminium (L²)
26
Fensterleibung
Window reveal
Détail de fenêtre
Fensterleibung
Window reveal
Détail de fenêtre
ALPHATON® auf Alu-Unterkonstruktion L²
ALPHATON® on L² aluminium substructure
ALPHATON® sur ossature en
aluminium (L²)
27
ALPHATON® auf Alu-Unterkonstruktion L²
ALPHATON® on L² aluminium substructure
ALPHATON® sur ossature en aluminium (L²)
28
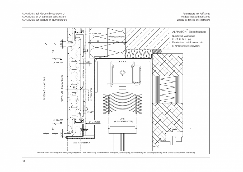
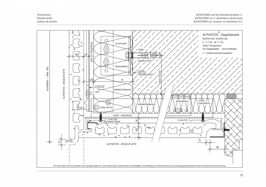
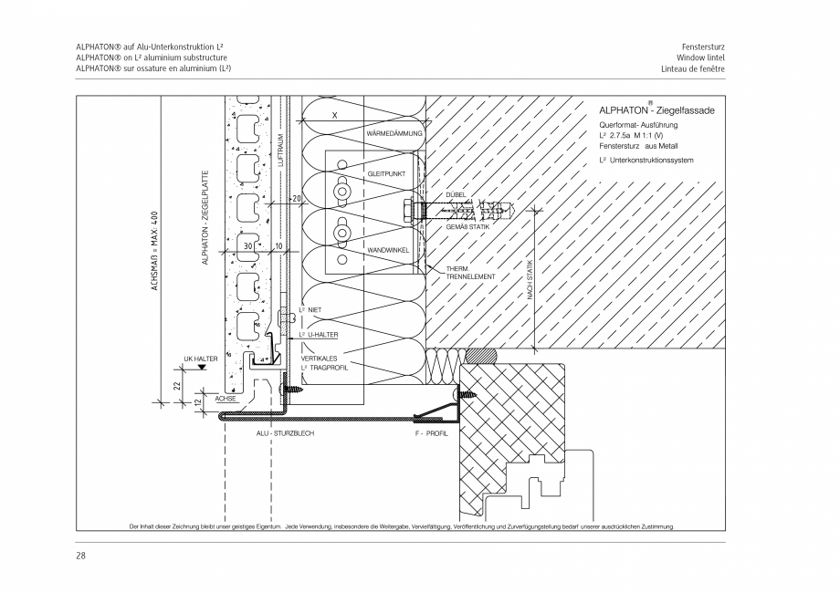
Fenstersturz
Window lintel
Linteau de fenêtre
Fenstersturz
Window lintel
Linteau de fenêtre
ALPHATON® auf Alu-Unterkonstruktion L²
ALPHATON® on L² aluminium substructure
ALPHATON® sur ossature en aluminium (L²)
29
ALPHATON® auf Alu-Unterkonstruktion L²
ALPHATON® on L² aluminium substructure
ALPHATON® sur ossature en aluminium (L²)
30
Fenstersturz mit Raffstores
Window lintel with raffstores
Linteau de fenêtre avec raffstore
Fallrohre in der Fläche
Downpipes integrated in the façade
Accents verticaux intégrés à la façade
ALPHATON® auf Alu-Unterkonstruktion L²
ALPHATON® on L² aluminium substructure
ALPHATON® sur ossature en aluminium (L²)
31
ALPHATON® auf Alu-Unterkonstruktion L²
ALPHATON® on L² aluminium substructure
ALPHATON® sur ossature en aluminium (L²)
32
Fassadenplatten-Fallrohre in
der Fläche
Downpipes integrated in the façade
Accents verticaux intégrés à la façade
33
34
35
Moeding Keramikfassaden GmbH
Ludwig-Girnghuber-Straße 1
84163 Marklkofen
Germany
Telefon +49 (0) 87 32 / 246 00
Telefax +49 (0) 87 32 / 246 69
E-Mail: info @moeding.de
www.moeding.de
05/2015