Rasina poliuretanica monocomponenta pentru hidroizolarea si consolidarea sapelor pe baza de ciment MAPEI ECO PRIM PU 1K

Limba: Romana
42 afisari
Tip documentatie: Fisa tehnica
Salvează pdf
Pagina 1-Rasina poliuretanica monocomponenta pentru hidroizolarea si consolidarea sapelor pe baza de ciment...
Pagina 2-Rasina poliuretanica monocomponenta pentru hidroizolarea si consolidarea sapelor pe baza de ciment...
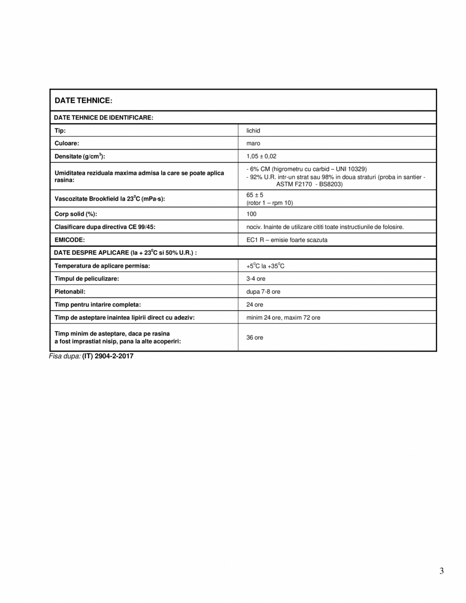
Pagina 3-Rasina poliuretanica monocomponenta pentru hidroizolarea si consolidarea sapelor pe baza de ciment...
pa sau cu solventi.  Nu folositi rasina pe suprafete suport pe care balteste apa sau care au suprafata umeda datorita infiltratiilor de umiditate prin capilaritate.  Daca pe suportul tratat cu rasina Eco Prim PU 1K se va aplica ulterior sapa autonivelanta sau se prevede montajul de parchet dupa 72 ore (trei zile), imediat dupa aplicarea rasinii, cat este proaspata, pe suprafata ei se va imprastia in exces Quarzo 1,2 (nisip de cuart curat si uscat).  Produsul este ideal ca material de consolidare pentru sape pe baza de ipsos cu sistem de incalzire incorporat si suporturi anhidrice, sape care insa nu pot fi hidroizolate. Inainte de aplicarea rasinii pe aceste tipuri de suport, asigurati-va ca sapa este perfect uscata.  Pe suprafata tratata cu Eco Prim PU 1K pentru lipirea de parchet se vor utiliza adezivi reactivi poliuretanici monocomponenti (tip Ultrabond P990 1K sau Ultrabond P992 1K) sau epoxi-poliuretanici bicomponenti (tip Lignobond sau Ultrabond P902 2K) sau pe baza d ... ascunde
Pentru noi, confidențialitatea dvs. este importantă
Portalul spatiulconstruit.ro folosește cookies pentru a asigura funcționalitatea și securitatea site-ului, pentru a personaliza conținutul și modul de interacțiune, pentru a oferi facilități de social media și pentru a analiza modul în care este utilizat site-ul. Aceste cookies sunt stocate și prelucrate, de către noi sau partenerii noștri în conformitate cu toate reglementările în vigoare și toate standardele de confidențialitate și securitate actuale.

Vă rugăm să rețineți că este posibil ca anumite prelucrări ale datelor dumneavoastră cu caracter personal să nu necesite consimțământul dumneavoastră, dar vă puteți exprima acordul cu privire la prelucrarea realizată de către noi și partenerii noștri conform descrierii de mai sus utilizând butonul SUNT DE ACORD de mai jos.

Navigând în continuare, vă exprimați acordul implicit asupra folosirii cookie-urilor.

Mai multe detalii despre politica noastră de confidențialitate aflați aici: https://www.spatiulconstruit.ro/politica-de-confidentialitate.