Manual de instalare si utilizare - Cazan in condensare cu functionare pe gaz ELCO TRIGON® XXL
Limba: Romana, Engleza, Rusa
Tip documentatie: Instructiuni montaj, utilizare
Salvează pdf
Full screen
TRIGON XXL
по монтажу и
RU Руководство
эксплуатации
только для авторизованных специалистов
SL Priročnik za delo in postavitev
Samo za pooblaščene
HU Használati és üzembe helyezési utasítás
Kizárólag szakképzett szervizpartnereink számára
PL Podręcznik działania I instalacji
SWyłącznie dla autoryzowanych techników
RO Manual de utilizare şi instalare
Destinat exclusiv tehnicienilor autorizaţi
09/2018
420010891500
2
Руководство по монтажу и эксплуатации
только для уполномоченного технического персонала
TRIGON XXL
Оригинальные Инструкции
09/2018
420010891500
RU
4
Содержание
Безопасность.................................................................. 6
Общие положения................................................ 6
Стандарты и нор
мативные документы............... 6
Дополнительные национальные стандарты...... 6
Сборка.............................................................................. 8
Паспортная табличка Принципы работы............ 8
Схема котла.......................................................... 9
Технические характеристики....................................... 1 0
TRIGON XXL SE 650 - SE 1200 . ......................... 1 0
TRIGON XXL SE 1300 - SE 1900 . ....................... 1 1
TRIGON XXL ECO 650 - ECO 1050...................... 1 2
TRIGON XXL ECO 1150 - ECO 1600.................... 1 3
TRIGON XXL EVO 700 - EVO 1100...................... 1 4
TRIGON XXL EVO 1200 - EVO 1700.................... 1 5
Габаритные размеры SE 650 - SE 1200.............. 1 6
ECO 650 - ECO 1050............................................ 1 6
EVO 700 - EVO 1100.................
............................ 1 6
Габаритные размеры SE 1300 - SE 1500............ 1 7
ECO 1150 - ECO 1300 . ........................................ 1 7
Габаритные размеры SE 1700 - SE 1900............ 1 8
ECO 1450 - ECO 1600 ......................................... 1 8
Габаритные размеры EVO 1200 - EVO 1700 ..... 1 9
Техническое обслуживание ........................................ 42
Контрольный лист................................................ 42
Давление и качество воды................................... 43
Проток воды.......................................................... 43
Анализ горения..................................................... 43
Давление газа....................................................... 43
Проверка герметичности газопроводов.............. 43
Защитные устройс
тва.......................................... 43
Техническое обслуживание ................................ 44
Акт технического обслуживания . ....................... 44
Неполадки....................................................................... 45
Характеристики датчиков ........................................... 47
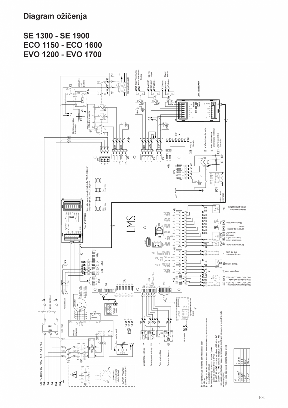
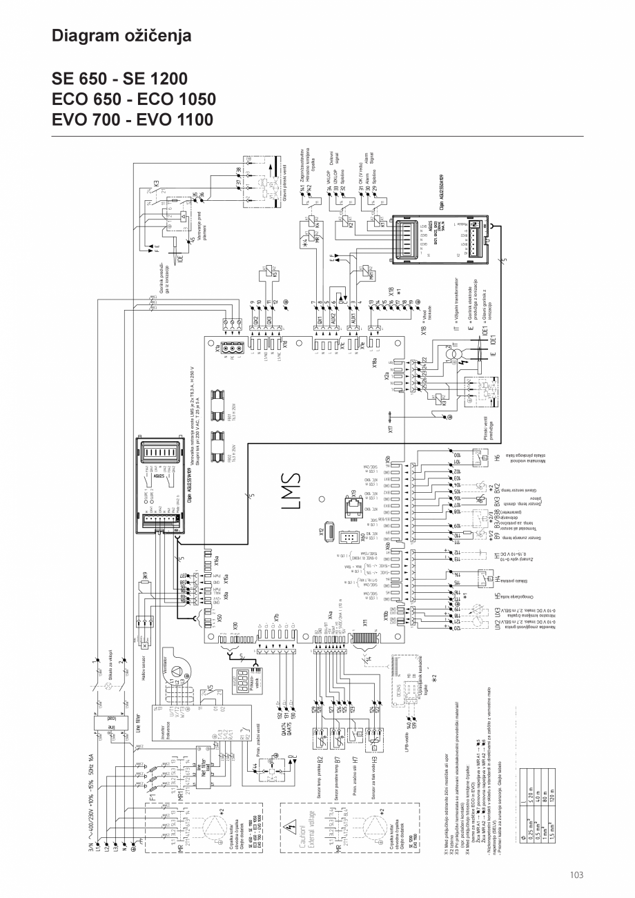
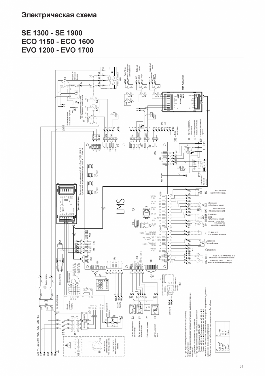
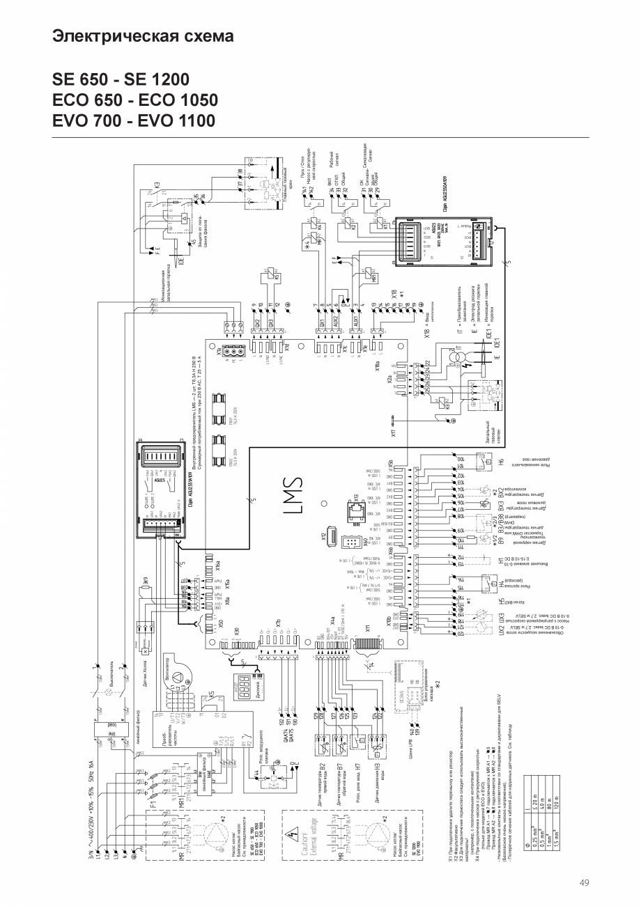
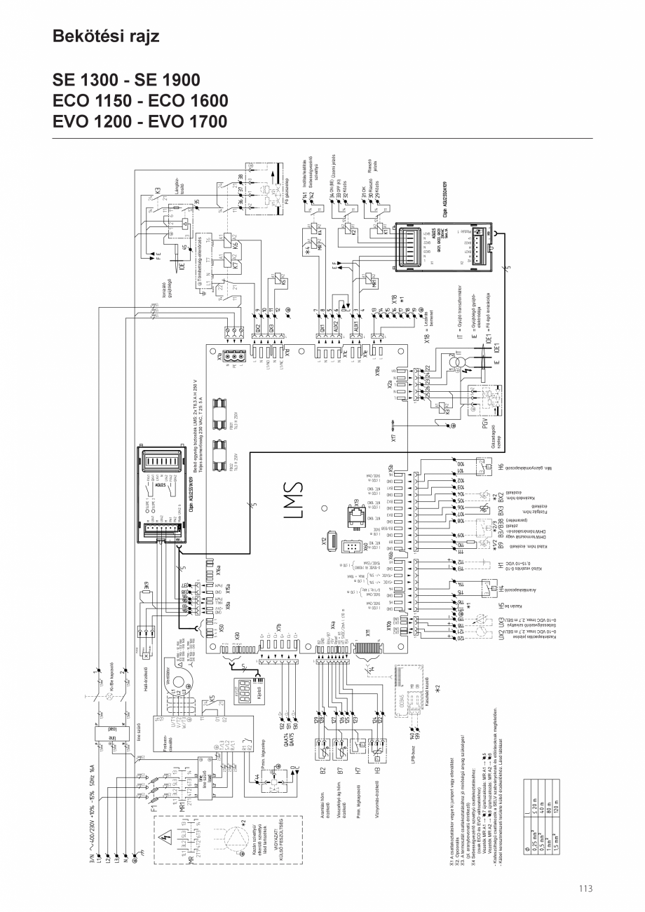
Электрическая схема.................................................... 48
Декларация соответствия............................................ 52
Примечания.................................................................... 53
Объем поставки............................................................. 2 0
Стандартный котел............................................... 2 0
Принадлежности................................................... 2 0
Монтаж.......................................
...................................... 2 1
Транспортировка.................................................. 2 1
Транспортировка котла........................................ 2 3
Удаление упаковки............................................... 2 4
Установка котла.................................................... 2 5
Подсоединение котла.......................................... 2 6
Гидравлические подсоединения......................... 2 6
Подсоединение входного воздухозаборника..... 2 6
Установка сифона и отстойника.......................... 2 7
Подсоединение газа............................................. 2 8
Требования к насосу............................................ 2 8
Подсоединения воздуха/дымовых газов............ 2 9
Расчет дым
хода.................................................. 3 1
Ввод в эксплуатацию.................................................... 3 2
Вода и гидравлическая система......................... 3 2
Давление воды..................................................... 3 2
Гидравлическая система..................................... 3 2
Подготовка котла к первому пуску...................... 3 3
Дисплей/программирование................................ 3 5
Органы управления.............................................. 3 6
Анализ горения..................................................... 3 7
Реле давления воздуха........................................ 3 8
Проверка исправности защитных устройств . ... 3 9
Датчик температуры воды...................................
3 9
Реле протока (расхода) воды ............................. 3 9
Реле минимального давления газа .................... 3 9
Акт ввода в эксплуатацию .................................. 4 1
5
Безопасность
Общие положения
Общие положения
Настоящий документ содержит важную информацию по правильному монтажу, вводу в эксплуатацию
и безопасной эксплуатации котлов
TRIGON XXL. Все операции, описанные в настоящем документе, должны
выполняться только уполномоченными специалистами лицензированных
компаний.
Изготовитель может изменять содержимое документа без предварительного уведомления. Изг
товитель не
принимает никаких обязательств по
внедрению изменений в поставленную ранее продукцию.
Для ремонта котла должны использоваться только оригинальные запасные
части. В противном случае гарантийные обязательства немедленно аннулируются.
Назначение
Котел TRIGON XXL предназначен исключительно для отопления и подогрева воды. Котел должен подключаться к
замкнутым системам отопления с предельной температурой 100°C (верхний
предел температуры) и максимальной
рабочей температурой 90°C.
Стандарты
и
нормативные
документы
При монтаже и эксп
уатации котла
должны соблюдаться требования всех применимых стандартов
(европейских и национальных):
• национальные строительные нормы по установке систем подачи
воздуха и отвода дымовых газов
• нормативные требования по подключению котлов к электрическим
сетям
• нормативные требования по подключению котлов к газопроводам
• нормативные требования по защитным устройствам для систем
отопления
• любые дополнительные национальные нормы и правила по
монтажу и эксплуатации отопительных систем.
6
Данный котел имеет маркировку CE
и от
вечает требованиям следующих
международных и европейских
стандартов:
•
2016/426/EEC Регламент по газовому оборудованию
•
1992/42/EEC
Директива, устанавливающая требования к КПД
котлов
•
2014/30/EU Директива «Электромагнитная совместимость»
•
2014/35/EU Директива «Низковольтное оборудование»
•
EN 15502-1 Котлы газовые центрального отопления. Часть 1.
Технические требования и методы испытаний
•
EN 15502-2-1 (Газовые котлы
центрального отопления. Часть
2-1. Специальный стандарт для
приборов типа C и приборов типа
B2, B3 и B5 с номинальной подачей тепла не выше 1000
кВт)
•
EN 55014-1 Электромагнитная
совместимость. Требования к бытовым приборам, электроинструменту и аналогичным приборам.
Часть 1. Излучение.
•
•
•
•
EN 60335-1 Бытовые и аналогичные электрические приборы. Безопасность. Часть 1. Общие требования
•
EN 60335-2-102 Бытовые и аналогичные электрические приборы.
Безопасность. Часть 2-102. Дополнительные требования к приборам, работающим на газовом,
жидком и твердом топливе и имеющим электрические соединения.
•
EN 50165 Электрическое оборудование неэлектрических приборов бытового и аналогичного
назна
ения. Требования безопасности.
•
EN 12828 / DIN 4751-2 Системы
отопления в зданиях. Проектирование систем водяного отопления. / Системы водяного отопления закрытые с термостатической
защитой и температурой воды в
подающей линии до 120°C. Оборудование для обеспечения безопасности/
Дополнительные
стандарты
национальные
Швейцария:
SVGW
EN 55014-2 Электромагнитная
совместимость. Требования к бытовым приборам, электроинструменту и аналогичным приборам.
Часть 2. Устойчивость к электромагнитным помехам. Стандарт на
группу однородной продукции.
ФРГ:
RAL - UZ 6
1 / DIN 4702-8,
Постановление по энергосбережению
(EnEV DIN 4701-10), BimSchV
EN 61000-3-2 Электромагнитная
совместимость (ЭМС). Часть 3-2.
Нормы. Нормы эмиссии гармонических составляющих тока (оборудование с входным током не
более 16 А в одной фазе).
Бельгия:
Сертификация NOx
EN 61000-3-3 Электромагнитная
совместимость (ЭМС). Часть 3-3.
Нормы. Ограничение изменений
напряжения, колебаний напряжения и фликера в общественных
низковольтных системах электроснабжения для оборудования с номинальным током не более 16 А (в
одной фазе), подключаемого к сети
электропитания без особых
условий
Австрия:
Краткая экспертиза 15a V-BG
Франция:
Постановление от 02.08.1977 давление газа 300 мбар с комплектом
принадлежностей
(только TRIGON XXL ECO + EVO)
Италия:
Сертификация по «закону 10» 1991 г.
Безопасность
Информация для монтажной и обслуживающей организации
Категорически
запрещается использование котла для
целей, не указанных в руководстве.
Изготовитель не несет никакой ответственности за любой ущерб, вызванный ненадлежащим, неправильным
и неразумным использованием котла
или несоблюдением указаний, приведенных в настоящем руководстве.
М
нтаж, техническое обслуживание и другие работы на
котле должны проводиться в
строгом соответствии с положениями действующих норм и указаниями
изготовителя.
Неверная установка котла может привести к причинению ущерба людям,
животным и имуществу. Изготовитель
котла не несет никакой ответственности за такой ущерб.
Котел поставляется в защитной упаковке.
После распаковки убедитесь в
отсутствии повреждений и комплектности котла. При обнаружении дефектов или некомплекта немедленно
свяжитесь с поставщиком.
Храните упаковочные материалы (з
жимы, пластиковые
пакеты, пенопласт и т.п.) в месте недоступном для детей. Для них
материалы могут представлять опасность.
Информация для пользователя
Проинформируйте пользователя о режимах работы котла.
Передайте пользователю руководство
по эксплуатации и предупредите, что
храниться оно должно рядом с котлом.
Также расскажите пользователю о
его обязанностях и покажите следующее:
Как проверять давление воды в системе, правильно производить доливку и
слив воды из системы.
Как устанавливать температуру и регуляторы для правильного и мак
симально экономичного использования
системы.
Как ухаживать за котлом в соответствии с требованиями действующих
норм.
Категорически запрещается изменять
настройки подачи воздуха и газа на
горение.
Обратите внимание пользователя на
предупреждения в настоящем руководстве.
Данное изделие отвечает
требованиям директивы
WEEE 2012/19/EU.
Символ «перечеркнутой мусорной
корзины» на изделии обозначает, что
после выработки ресурса изделие нельзя выбрасывать вместе с обычными
бытовыми отходами. Его необходимо
сдать в организацию, занимающуюся
утили
ацией электрического и электронного оборудования или возвратить продавцу при покупке нового изделия взамен.
Пользователь несет ответственность
за правильную утилизацию изделия
по окончании срока его службы.
Организации, занимающаяся сбором
и утилизацией вторсырья (и использующие надлежащие способы обращения, разборки и сортировки отходов),
обеспечивают защиту окружающей
среды от материалов, из которых сделан продукт.
Для получения дополнительной информации по утилизации отходов
просьба обращаться в организации по
сбору вторсырья и
ли к продавцу изделия.
Перед проведением технического обслуживания или других работ отключите котел от
электрической сети, установив
главный выключатель в положение
«OFF».
Любой ремонт котла должен
проводиться с использованием
только оригинальных запасных
частей.
= Опасность для здоровья и жизни
людей
= Опасность повреждения оборудования
К эксплуатации котла допускаются дети старше 8 лет
и люди с ограниченными физическими, сенсорными или умственными возможностями, а также без
опыта и знаний, если они находятся под присмотром
или получил
и указания по безопасному использованию котла и осознают возможные опасности. Детям
запрещается играть с котлом. Запрещается проведение очистки и технического обслуживания котла
детьми без присмотра.
7
Сборка
Паспортная табличка Принципы работы
Обозначения на паспортной табличке
2
1
S/N
00
26-05-2015
4
3
0000000KE000000000000
10
5
6
7
MAX
8
9
η
=
gas
mbar
gas
mbar
gas
mbar
11
Q(Hi)
12
13
100%
P60/80C
P30/50C
η
=
min.
16
Принципы работы
Котел TRIGON XXL автоматически регулируемый.
Блок управления котла автоматически
регулирует тепловую мощность котла
в зависимости от потребностей в тепле.
егулировка осуществляется изменением скорости вращения вентилятора. Система смешивания воздушногазовой смеси регулирует подачу газа
в зависимости от скорости вращения
вентилятора для поддержания оптимального горения. Таким образом,
обеспечивается максимальная эффективность котла.
Дымовые газы из камеры горения выводятся сзади снизу котла и через дымовую трубу выбрасываются за пределы здания.
8
14
15
MIN
17
18
Обратная вода из системы поступает
в нижнюю секцию котла, где температура дымовых газов минимальна.
В данной секции происходит к
нденсация влаги.
Конденсат направляется в верхнюю
часть котла для его отвода из верхней
секции.
Противоточный принцип работы (вода
вверх, дымовые газы вниз) обеспечивает максимальную эффективность
теплопередачи.
1
Марка
2
Страна происхождения
3
Модель котла - Серийный номер
4
Артикул
5
Номер сертификата
6
Страна назначения - Категория
газа
7
Настройка газа
8
Тип монтажа
9
Электрические характеристики
10
Заводские настройки
11
Максимальное давление воды
12
Тип котла
13
Класс NOx / Эффективность
14
Входная номинальная тепловая
мощность
15
Выходная тепловая мощность
16
Допустимые газы
17
Окружающая рабочая температура
18
Макс. температура системы
отопления
Блок управления LMS14 может управлять котлом:
• в автономном режиме;
• с компенсацией погодных условий (при наличии факультативного датчика наружной температуры);
• по внешнему сигналу 0-10 В
(температура или мощность) из
системы управления зданиями.
Сборка
Схема котла
25
24
3
6
23
22
21
4
20
5
7
8
9
19
10
26
18
11
17
29
30
Схема котла
Котел TRIGON XXL состоит из
следующих основных компонентов:
1
2
3
4
5
6
7
8
9
10
11
12
13
14
15
16
17
18
19
20
21
22
23
2
4
25
26
27
28
28
12
29 Датчик давления
30 Датчик температуры дымовых
газов (на приемнике конденсата)
A
B
C
D
B
C
A
1
Подсоединение обратной воды
Подсоединение для удаления
дымовых газов
Реле протока (расхода) воды
Подсоединение для воды
Кран заполнения/слива
Верхняя плита
Горелка
1-й теплообменник
2-й теплообменник
Устройство подачи газа (УПГ)
Факел
Компенсатор
Конденсатоприемник
Камера горения
Входное электрическое
подсоединение (разъем)
Сифон
Главный газовый кран
Вентилятор
Электрический щит
Панель управления
Корпус
Воздухозаборный короб
Ди
сковый поворотный клапан
Главный канал смешения
Запальный газовый клапан
Запальный смесительный канал
3-й теплообменник
(Только для моделей мощностью
600 - 1200 кВт)
Датчики температуры прямой и
обратной воды (на водяных трубопроводах)
Воздух
Газ
Дымовые газы
Конденсат
2
13
14
D
15
16
27
9
Технические характеристики
* TRIGON XXL SE могут работать при следующем давлении в настройках
специальных
параметров.
Параметры
может
менять
только
квалифицированный специалист.
Минимальное давление воды / Настройки ΔT см. страница 32
** H/E/L/LL: Виды природного газа
TRIG
ON XXL SE 650 - SE 1200
SE 650
SE 750
SE 850
SE 1000
SE 1100
SE 1200
1184/296
Номинальная выходная тепловая мощность при 80-60ºC макс./мин.
кВт
650/162
725/181
849/212
961/240
1073/268
Номинальная выходная тепловая мощность при 40-30ºC макс./мин.
кВт
656/182
733/203
857/237
970/270
1083/301
1195/332
Номинальная тепловая мощность на входе Hi макс./мин.*
кВт
702/176
784/196
917/229
1038/260
1159/290
1279/320
КПД при 80-60ºC
%
КПД при 40-30ºC
%
Годовая эффективность (NNG 40-30ºC)
%
Потери при простое (50ºC)
%
92.6
93.5
103.3
103.3
0.1
Макс. поток конденсата
л/ч
3.2
3.6
4.2
4.8
5.3
5.9
Потребление газа H-gas макс./мин. (10,9 кВт/м3)*
м³/ч
64,4/16,1
71,9/18
84,1/21
95,2/23,9
106,3/26,6
117,3/29,4
Потребление газа L-gas макс./мин. (8,34 кВт/м3)*
м³/ч
84,2/21,1
94/23,5
110/27,5
124,5/31,2
139/34,8
153,4/38,4
Потребление газа СУГ макс./мин. (12,8 кВт·ч/кг)
кг/ч
54,8/13,7
61,2/15,3
71,6/17,8
81/20,3
90,5/22,6
99,9/25
50
50
50
2126/422
2374/471
2619/519
75
80
85
Давление газа H-газ**
мбар
Давление газа L/LL-газ**
мбар
Давление СУГ
мбар
Максимальное давление газа
мбар
100
ºC
182/66
Температура дымовых газов при 80-60ºC макс./мин.
Температура дымовых газов при 40-30ºC макс./мин.
Количество дымовых газов макс./мин.*
20
35
25
30
35
30
50
ºC
м³/ч
167/65
1438/286
1606/318
1878/372
Уровень CO2, главная горелка на прир. газу, H/E/L/LL макс./мин.**
%
10.0/9.3
Ур
овень CO2, главная горелка на СУГ, P макс./мин.
%
11.0/11.0
Уровень CO2, запальная горелка на прир. газу, H/E/L/LL макс./мин.**
%
10.0/10.2
Уровень CO2, запальная горелка на СУГ, P макс./мин.
%
11.0/11.2
Макс./мин. уровень NOx
мг/кВт
45/16
Макс./мин. уровень CO
мг/кВт
7/3
Па
150
Макс. допустимое сопротивление дыма макс./мин.
Объем воды
Макс./мин. давление воды*
л
50
53
70
бар
8/1.5
Макс. ΔT
K
25
Макс. температура воды (верхний предел термостата)
ºC
100
Максимальное контрольное значение температуры
ºC
90
Номинальный расход воды при ΔT = 20 K
м³/ч
28
31
36
41
46
51
Гидравлическое сопротивлен
е при номинальном расходе воды
кПа
46
53
36
43
50
58
1270
1270
1270
1084
1221
1369
Электрические подключения
В
400
Частота
Гц
50
A
16
Предохранитель сети
Потребляемая мощность
Вт
Потребляемая мощность в дежурном режиме
Вт
Масса (в порожнем состоянии)
Уровень звуковой мощности (LWA)
кг
900
900
1270
14
770
844
958
дБ(А)
72.7
мкА
0.52
Значение РН конденсата
-
3.2
Код сертификации ЕС
-
Водопроводные соединения
-
Газовые соединения
-
Минимальный ток ионизации
0063CR3158
DN65 PN16
Соединения дымового газа
мм
300
Воздухозаборные соединения (для герметичной камеры)
мм
250
Соед
инения конденсата
мм
10
DN80 PN16
DN50
DN65 PN16
350
400
355
40
Технические характеристики
* TRIGON XXL SE могут работать при следующем давлении в настройках
специальных
параметров.
Параметры
может
менять
только
квалифицированный специалист.
Минимальное давление воды / Настройки ΔT см. страница 32
** H/E/L/LL: Виды природного газа
TRIGON XXL SE 1300 - SE 1900
SE 1300
SE 1500
SE 1700
SE 1900
Номинальная выходная тепловая мощность при 80-60ºC макс./мин.
кВт
1296/324
1481/370
1666/416
1852/463
Номинальная выходная тепловая мощность при 40-30ºC макс./мин.
кВт
1309/363
1496/415
1683/467
1870/519
Номинальная тепловая мощность
на входе Hi макс./мин.*
кВт
1400/350
1600/400
1800/450
2000/500
КПД при 80-60ºC
%
КПД при 40-30ºC
%
93.5
Годовая эффективность (NNG 40-30ºC)
%
103.3
92.6
Потери при простое (50ºC)
%
Макс. поток конденсата
л/ч
6.4
7.4
0.1
8.3
9.2
Потребление газа H-gas макс./мин. (10,9 кВт/м3)*
м³/ч
128,4/32,1
146,8/36,7
165,1/41,3
183,5/45,9
Потребление газа L-gas макс./мин. (8,34 кВт/м3)*
м³/ч
167,9/42
191,8/48
215,8/54
239,8/60
Потребление газа СУГ макс./мин. (12,8 кВт·ч/кг)
кг/ч
109,3/27,3
125/31,2
140,6/35,1
156,2/39
50
50
3686/730
4096/811
116
123
Давление газа H-газ**
мбар
Давление газа L/LL-газ**
мбар
Давление СУГ
мбар
Максимальное давление газа
мбар
100
ºC
182/66
Темпер
тура дымовых газов при 80-60ºC макс./мин.
Температура дымовых газов при 40-30ºC макс./мин.
Количество дымовых газов макс./мин.*
50
50
50
50
ºC
м³/ч
167/65
2867/568
3277/649
Уровень CO2, главная горелка на прир. газу, H/E/L/LL макс./мин.**
%
10.0/9.3
Уровень CO2, главная горелка на СУГ, P макс./мин.
%
11.0/11.0
Уровень CO2, запальная горелка на прир. газу, H/E/L/LL макс./мин.**
%
10.0/10.2
Уровень CO2, запальная горелка на СУГ, P макс./мин.
%
11.0/11.2
Макс./мин. уровень NOx
мг/кВт
45/16
Макс./мин. уровень CO
мг/кВт
7/3
Па
150
Макс. допустимое сопротивление дыма макс./мин.
Объем воды
Макс./мин. давление воды*
л
97
10
9
бар
8/1.5
Макс. ΔT
K
25
Макс. температура воды (верхний предел термостата)
ºC
100
Максимальное контрольное значение температуры
ºC
90
Номинальный расход воды при ΔT = 20 K
м³/ч
56
63
71
79
Гидравлическое сопротивление при номинальном расходе воды
кПа
91
60
130
165
2770
2770
1899
1991
Электрические подключения
В
400
Частота
Гц
50
A
16
Предохранитель сети
Потребляемая мощность
Вт
Потребляемая мощность в дежурном режиме
Вт
Масса (в порожнем состоянии)
Уровень звуковой мощности (LWA)
кг
2330
2330
14
1380
1740
дБ(А)
72.7
мкА
0.52
Значение РН конденсата
-
3.2
Код сертифи
кации ЕС
-
0063CR3158
Водопроводные соединения
-
Газовые соединения
-
DN65 PN16
Соединения дымового газа
мм
450
Воздухозаборные соединения (для герметичной камеры)
мм
450
Соединения конденсата
мм
40
Минимальный ток ионизации
DN80 PN16
DN80 PN16
500
11
Технические характеристики
* TRIGON XXL ECO могут работать при следующем давлении в
настройках специальных параметров. Параметры может менять только
квалифицированный специалист.
Минимальное давление воды / Настройки ΔT см. страница 32
** H/E/L/LL: Виды природного газа
TRIGON XXL ECO 650 - ECO 1050
ECO 650
ECO 750
ECO 850
ECO 950
ECO 1050
Номина
льная выходная тепловая мощность при 80-60ºC макс./мин.
кВт
614/175
717/204
811/231
906/258
1000/285
Номинальная выходная тепловая мощность при 40-30ºC макс./мин.
кВт
625/194
731/226
828/257
925/287
1021/317
Номинальная тепловая мощность на входе Hi макс./мин.*
кВт
653/187
764/218
865/247
966/276
1066/305
КПД при 80-60ºC
%
КПД при 40-30ºC
%
95.8
Годовая эффективность (NNG 40-30ºC)
%
103.7
94.1
Потери при простое (50ºC)
%
Макс. поток конденсата
л/ч
7.8
9.1
10.3
0.1
11.5
12.7
Потребление газа H-gas макс./мин. (10,9 кВт/м3)*
м³/ч
59,9/17,2
70,1/20
79,4/22,7
88,6/25,3
97,8/28
Потребление газа L-gas макс./мин. (8,34 кВт/м3)*
м³/ч
78,3/22,4
91,6/26,1
103,7/29,6
115,8/33,1
127,8/
36,6
Потребление газа СУГ макс./мин. (12,8 кВт·ч/кг)
кг/ч
51/14,6
59,6/17
67,5/19,2
75,4/21,5
83,2/23,8
30
30
1852/447
2044/493
80
85
Давление газа H-газ**
мбар
Давление газа L/LL-газ**
мбар
Давление СУГ
мбар
Максимальное давление газа
мбар
100
ºC
153/65
Температура дымовых газов при 80-60ºC макс./мин.
Температура дымовых газов при 40-30ºC макс./мин.
Количество дымовых газов макс./мин.*
20
25
30
30
ºC
м³/ч
30
134/64
1252/303
1465/353
1659/400
Уровень CO2, главная горелка на прир. газу, H/E/L/LL макс./мин.**
%
10.0/9.3
Уровень CO2, главная горелка на СУГ, P макс./мин.
%
11.0/11.0
Уровень CO2, запальная горелка на прир. газу, H/E/L/L
L макс./мин.**
%
10.0/10.2
Уровень CO2, запальная горелка на СУГ, P макс./мин.
%
11.0/11.2
Макс./мин. уровень NOx
мг/кВт
37/15
Макс./мин. уровень CO
мг/кВт
4/3
Па
150
Макс. допустимое сопротивление дыма макс./мин.
Объем воды
Макс./мин. давление воды*
л
53
70
бар
75
8/1.5
Макс. ΔT
K
30
Макс. температура воды (верхний предел термостата)
ºC
100
Максимальное контрольное значение температуры
ºC
90
Номинальный расход воды при ΔT = 20 K
м³/ч
26
31
35
39
43
Гидравлическое сопротивление при номинальном расходе воды
кПа
37
25
30
35
40
1221
1369
Электрические подключения
В
400
Частота
Гц
50
A
16
Предохранитель сети
Потребляемая мощность
Вт
Потребляемая мощность в дежурном режиме
Вт
Масса (в порожнем состоянии)
Уровень звуковой мощности (LWA)
кг
900
1270
14
844
958
1084
дБ(А)
68.7
мкА
0.52
Значение РН конденсата
-
3.2
Код сертификации ЕС
-
Водопроводные соединения
-
Газовые соединения
-
DN50
Соединения дымового газа
мм
350
Воздухозаборные соединения (для герметичной камеры)
мм
355
Соединения конденсата
мм
40
Минимальный ток ионизации
12
0063CR3158
DN65 PN16
DN80 PN16
DN65 PN16
400
Технические характеристики
* TRIGON XXL ECO могут работать при следующем давлен
ии в
настройках специальных параметров. Параметры может менять только
квалифицированный специалист.
Минимальное давление воды / Настройки ΔT см. страница 32
** H/E/L/LL: Виды природного газа
TRIGON XXL ECO 1150 - ECO 1600
ECO 1150
ECO 1300
ECO 1450
ECO 1600
Номинальная выходная тепловая мощность при 80-60ºC макс./мин.
кВт
1097/313
1254/358
1410/402
1567/447
Номинальная выходная тепловая мощность при 40-30ºC макс./мин.
кВт
1116/346
1276/396
1435/445
1596/495
Номинальная тепловая мощность на входе Hi макс./мин.*
кВт
1166/333
1333/381
1499/428
1666/476
КПД при 80-60ºC
%
КПД при 40-30ºC
%
95.8
Годовая эффективность (NNG 40-30ºC)
%
103.7
94.
1
Потери при простое (50ºC)
%
Макс. поток конденсата
л/ч
13
15
0.1
16.8
18.6
Потребление газа H-gas макс./мин. (10,9 кВт/м3)*
м³/ч
107/30,6
122,3/35
137,5/39,3
152,8/43,7
Потребление газа L-gas макс./мин. (8,34 кВт/м3)*
м³/ч
139,8/39,9
159,8/45,7
179,7/51,3
199,8/57,1
Потребление газа СУГ макс./мин. (12,8 кВт·ч/кг)
кг/ч
91/26
104,1/29,7
117,1/33,4
130,1/37,1
50
50
2874/692
3194/770
116
123
Давление газа H-газ**
мбар
Давление газа L/LL-газ**
мбар
Давление СУГ
мбар
Максимальное давление газа
мбар
100
ºC
153/65
Температура дымовых газов при 80-60ºC макс./мин.
Температура дымовых газов при 40-30ºC макс./мин.
Количество дымовых газов макс./мин
.*
35
35
50
50
ºC
м³/ч
134/64
2236/539
2556/616
Уровень CO2, главная горелка на прир. газу, H/E/L/LL макс./мин.**
%
10.0/9.3
Уровень CO2, главная горелка на СУГ, P макс./мин.
%
11.0/11.0
Уровень CO2, запальная горелка на прир. газу, H/E/L/LL макс./мин.**
%
10.0/10.2
Уровень CO2, запальная горелка на СУГ, P макс./мин.
%
11.0/11.2
Макс./мин. уровень NOx
мг/кВт
37/15
Макс./мин. уровень CO
мг/кВт
4/3
Па
150
Макс. допустимое сопротивление дыма макс./мин.
Объем воды
Макс./мин. давление воды*
л
97
109
бар
8/1.5
Макс. ΔT
K
30
Макс. температура воды (верхний предел термостата)
ºC
100
Максимальное контрольное значение тем
ературы
ºC
90
Номинальный расход воды при ΔT = 20 K
м³/ч
47
54
60
67
Гидравлическое сопротивление при номинальном расходе воды
кПа
60
72
93
114
Электрические подключения
В
400
Частота
Гц
50
A
16
Предохранитель сети
Потребляемая мощность
Вт
Потребляемая мощность в дежурном режиме
Вт
Масса (в порожнем состоянии)
Уровень звуковой мощности (LWA)
кг
2330
2334
2770
14
1380
1740
1899
дБ(А)
68.7
мкА
0.52
Значение РН конденсата
-
3.2
Код сертификации ЕС
-
0063CR3158
Водопроводные соединения
-
Газовые соединения
-
DN65 PN16
Соединения дымового газа
мм
400
Воздухозаборные со
единения (для герметичной камеры)
мм
450
Соединения конденсата
мм
40
Минимальный ток ионизации
1991
DN80 PN16
DN80 PN16
500
13
Технические характеристики
* TRIGON XXL EVO могут работать при следующем давлении в
настройках специальных параметров. Параметры может менять только
квалифицированный специалист.
Минимальное давление воды / Настройки ΔT см. страница 32
** H/E/L/LL: Виды природного газа
TRIGON XXL EVO 700 - EVO 1100
EVO 700
EVO 800
EVO 900
EVO 1000
EVO 1100
1042/298
Номинальная выходная тепловая мощность при 80-60ºC макс./мин.
кВт
638/182
747/213
845/241
944/269
Номинальная выходная тепловая мощност
при 40-30ºC макс./мин.
кВт
682/205
798/239
903/270
1009/302
1113/334
Номинальная тепловая мощность на входе Hi макс./мин.*
кВт
653/187
764/218
865/247
966/276
1066/305
КПД при 80-60ºC
%
97.8
КПД при 40-30ºC
%
104.5
Годовая эффективность (NNG 40-30ºC)
%
109.1
Потери при простое (50ºC)
%
Макс. поток конденсата
л/ч
42.3
49.6
56.1
62.6
69.1
Потребление газа H-gas макс./мин. (10,9 кВт/м3)*
м³/ч
59,9/17,2
70,1/20
79,4/22,7
88,6/25,3
97,8/28
Потребление газа L-gas макс./мин. (8,34 кВт/м3)*
м³/ч
78,3/22,4
91,6/26,1
103,7/29,6
115,8/33,1
127,8/36,6
Потребление газа СУГ макс./мин. (12,8 кВт·ч/кг)
кг/ч
51/14,6
59,6/17
67,5/19,2
75,4/21,5
83,2/23,8
30
30
1487/439
1641/485
110
117
0.1
Давление газа H-га
**
мбар
Давление газа L/LL-газ**
мбар
Давление СУГ
мбар
Максимальное давление газа
мбар
100
ºC
69/59
Температура дымовых газов при 80-60ºC макс./мин.
Температура дымовых газов при 40-30ºC макс./мин.
Количество дымовых газов макс./мин.*
20
25
30
30
30
ºC
м³/ч
51/32
1005/297
1176/346
1332/393
Уровень CO2, главная горелка на прир. газу, H/E/L/LL макс./мин.**
%
10.0/9.3
Уровень CO2, главная горелка на СУГ, P макс./мин.
%
11.0/11.0
Уровень CO2, запальная горелка на прир. газу, H/E/L/LL макс./мин.**
%
10.0/10.2
Уровень CO2, запальная горелка на СУГ, P макс./мин.
%
11.0/11.2
Макс./мин. уровень NOx
мг/кВт
37/15
Макс./мин. у
овень CO
мг/кВт
4/2
Па
150
Макс. допустимое сопротивление дыма макс./мин.
Объем воды
Макс./мин. давление воды*
л
73
97
104
бар
8/1.5
Макс. ΔT
K
30
Макс. температура воды (верхний предел термостата)
ºC
100
Максимальное контрольное значение температуры
ºC
90
Номинальный расход воды при ΔT = 20 K
м³/ч
27
32
36
40
45
Гидравлическое сопротивление при номинальном расходе воды
кПа
74
40
45
67
78
1634
1800
Электрические подключения
В
400
Частота
Гц
50
A
16
Предохранитель сети
Потребляемая мощность
Вт
Потребляемая мощность в дежурном режиме
Вт
Масса (в порожнем сост
оянии)
Уровень звуковой мощности (LWA)
кг
900
1270
14
1136
1328
1468
дБ(А)
68.7
мкА
0.52
Значение РН конденсата
-
3.2
Код сертификации ЕС
-
Водопроводные соединения
-
Газовые соединения
-
Минимальный ток ионизации
0063CR3158
DN65 PN16
Соединения дымового газа
мм
300
Воздухозаборные соединения (для герметичной камеры)
мм
250
Соединения конденсата
мм
14
DN80 PN16
DN50
DN65 PN16
350
400
355
40
Технические характеристики
* TRIGON XXL EVO могут работать при следующем давлении в
настройках специальных параметров. Параметры может менять только
квалифицированный специалист.
Минимальн
е давление воды / Настройки ΔT см. страница 32
** H/E/L/LL: Виды природного газа
TRIGON XXL EVO 1200 - EVO 1700
EVO 1200
EVO 1400
EVO 1550
EVO 1700
Номинальная выходная тепловая мощность при 80-60ºC макс./мин.
кВт
1140/313
1303/358
1466/402
1629/447
Номинальная выходная тепловая мощность при 40-30ºC макс./мин.
кВт
1218/365
1392/417
1436/469
1596/521
Номинальная тепловая мощность на входе Hi макс./мин.*
кВт
1166/333
1333/381
1499/428
1666/476
КПД при 80-60ºC
%
97.8
КПД при 40-30ºC
%
104.5
Годовая эффективность (NNG 40-30ºC)
%
109.1
Потери при простое (50ºC)
%
Макс. поток конденсата
л/ч
70.7
81.3
91.2
101.1
Потребление газа H-gas макс./мин. (10,9 кВт/м3)*
м³
/ч
107/30,6
122,3/35
137,5/39,3
152,8/43,7
Потребление газа L-gas макс./мин. (8,34 кВт/м3)*
м³/ч
139,8/39,9
159,8/45,7
179,7/51,3
199,8/57,1
Потребление газа СУГ макс./мин. (12,8 кВт·ч/кг)
кг/ч
91/26
104,1/29,7
117,1/33,4
130,1/37,1
50
50
2307/680
2565/756
157
166
0.1
Давление газа H-газ**
мбар
Давление газа L/LL-газ**
мбар
Давление СУГ
мбар
Максимальное давление газа
мбар
100
ºC
69/59
Температура дымовых газов при 80-60ºC макс./мин.
Температура дымовых газов при 40-30ºC макс./мин.
Количество дымовых газов макс./мин.*
35
35
50
50
ºC
м³/ч
51/32
1795/529
2052/605
Уровень CO2, главная горелка на прир. газу, H/E/L/LL макс./мин.**
%
10.0/9.3
Уровень CO2, гл
вная горелка на СУГ, P макс./мин.
%
11.0/11.0
Уровень CO2, запальная горелка на прир. газу, H/E/L/LL макс./мин.**
%
10.0/10.2
Уровень CO2, запальная горелка на СУГ, P макс./мин.
%
11.0/11.2
Макс./мин. уровень NOx
мг/кВт
37/15
Макс./мин. уровень CO
мг/кВт
4/2
Па
150
Макс. допустимое сопротивление дыма макс./мин.
Объем воды
Макс./мин. давление воды*
л
131
147
бар
8/1.5
Макс. ΔT
K
30
Макс. температура воды (верхний предел термостата)
ºC
100
Максимальное контрольное значение температуры
ºC
90
Номинальный расход воды при ΔT = 20 K
м³/ч
49
56
63
70
Гидравлическое сопротивление при номинально
м расходе воды
кПа
82
96
136
162
Электрические подключения
В
400
Частота
Гц
50
A
16
Предохранитель сети
Потребляемая мощность
Вт
Потребляемая мощность в дежурном режиме
Вт
Масса (в порожнем состоянии)
Уровень звуковой мощности (LWA)
кг
2330
2770
14
1900
2000
2100
дБ(А)
68.7
мкА
0.52
Значение РН конденсата
-
3.2
Код сертификации ЕС
-
0063CR3158
Водопроводные соединения
-
Газовые соединения
-
DN65 PN16
Соединения дымового газа
мм
450
Воздухозаборные соединения (для герметичной камеры)
мм
450
Соединения конденсата
мм
40
Минимальный ток ионизации
2201
DN80 PN16
DN80 PN16
50
0
15
Технические характеристики
Габаритные размеры SE 650 - SE 1200
ECO 650 - ECO 1050
EVO 700 - EVO 1100
L
D
H
B6
B
L3
L1
B1
B2
B3
W
G
82
B4
L4
H4
B5
H3
H2
H1
W
L5
82
LW
L2
B не является максимальной шириной котла, поскольку у некоторых моделей B6+W1/2 больше B.
Габаритные
размеры
SE 650
SE 750
SE 850
SE 1000
SE 1100
SE 1200
ECO 650
ECO 750
ECO 850
ECO 950
ECO 1050
EVO 700
EVO 800
EVO 900
EVO 1000
EVO 1100
2565
L
мм
2185
2185
2565
2565
2565
2565
2185
2565
2565
2565
L1
мм
475
475
480
480
480
480
475
480
480
480
480
L2
мм
660
660
1030
1030
1030
1030
660
1030
1030
1030
1030
L3
мм
210
260
260
260
260
260
260
260
260
260
260
L4
мм
110
110
110
110
110
110
110
110
110
100
100
L5
mm
420
550
550
550
550
550
550
550
550
550
550
LW
мм
185
185
185
185
185
185
185
185
185
185
185
H
мм
1555
1555
1555
1555
1555
1555
1555
1555
1555
1555
1555
H1
мм
960
960
960
960
960
960
1110
1110
1110
1110
1110
H2
мм
660
660
660
660
660
660
660
660
660
660
660
H3
мм
540
530
530
530
530
530
530
530
530
530
530
H4
мм
480
480
500
500
500
500
460
460
480
480
480
B
мм
1370
1370
1170
1170
1370
1370
1370
1170
1170
1370
1370
B1
мм
1185
1235
1025
1075
1225
1275
1235
1025
1075
1225
1275
B2
мм
685
685
585
585
685
685
685
585
585
685
685
B3
мм
185
135
145
95
145
95
135
145
95
145
95
B4
мм
1160
1160
960
960
1160
1160
1160
960
960
1160
1160
B5
мм
150
100
150
100
150
100
100
150
100
150
100
B6
мм
1000
1100
880
980
1080
1180
1100
880
980
1080
1180
D
мм
300
350
350
400
400
400
300
350
350
400
400
W
DN
DN65PN16
DN65PN16
DN80PN16
DN80PN16
DN80PN16
DN80PN
16
DN65PN16
DN80PN16
DN80PN16
DN80PN16
DN80PN16
G
DN
DN50
DN50
DN50
DN50
DN65PN16
DN65PN16
DN50
DN50
DN50
DN65PN16
DN65PN16
16
Технические характеристики
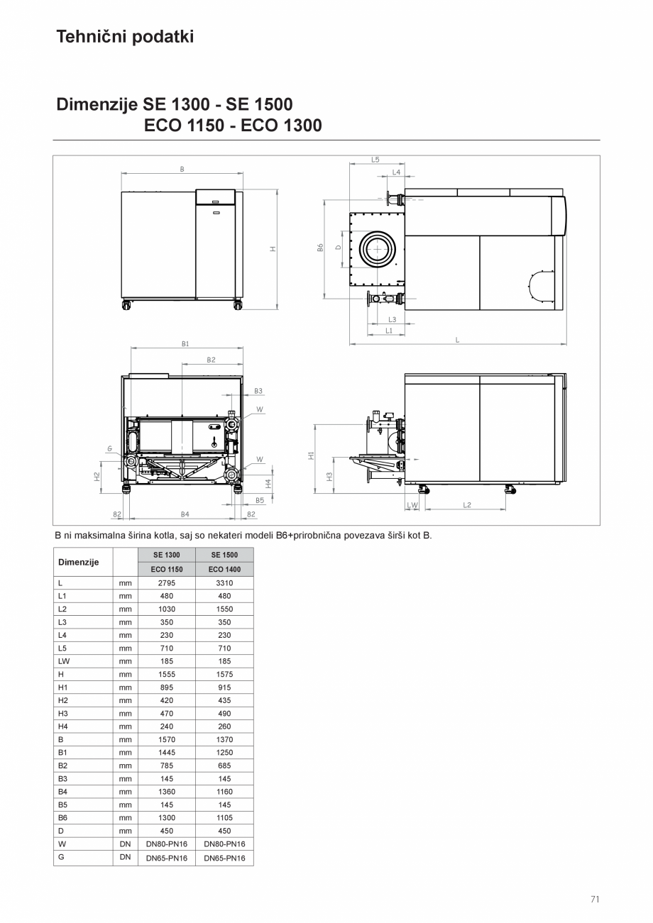
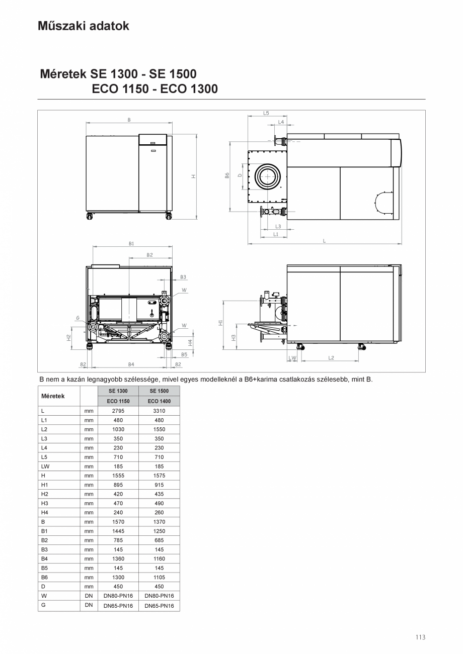
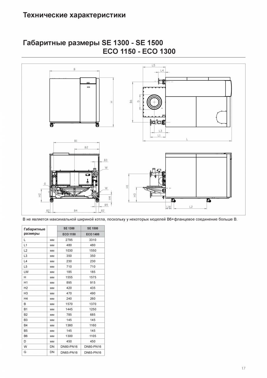
Габаритные размеры SE 1300 - SE 1500
ECO 1150 - ECO 1300
L5
B
D
B6
H
L4
L3
L1
L
B1
B2
B3
H4
H2
W
B5
82
B4
82
H3
G
H1
W
LW
L2
B не является максимальной шириной котла, поскольку у некоторых моделей B6+фланцевое соединение больше B.
Габаритные
размеры
SE 1300
SE 1500
ECO 1150
ECO 1400
L
мм
2795
3310
L1
мм
480
480
L2
мм
1030
1550
L3
мм
350
350
L4
мм
230
230
L5
мм
710
710
LW
мм
185
185
H
мм
1555
1575
H1
мм
895
915
H2
мм
420
435
H3
мм
470
490
H4
мм
240
260
B
мм
1570
1370
B1
мм
1445
1250
B2
мм
785
685
B3
мм
145
145
B4
мм
1360
1160
B5
мм
145
145
B
6
мм
1300
1105
D
мм
450
450
W
DN
DN80-PN16
DN80-PN16
G
DN
DN65-PN16
DN65-PN16
17
Технические характеристики
Габаритные размеры SE 1700 - SE 1900
ECO 1450 - ECO 1600
L5
D
H
B6
B
L3
L1
B5
L
B2
B3
W
G
H4
B1
82
B4
82
H3
H2
H1
W
L4
LW
L2
B не является максимальной шириной котла, поскольку у некоторых моделей B6+фланцевое соединение больше B.
Габаритные
размеры
SE 1700
SE 1900
ECO 1450
ECO 1600
L
мм
3310
3310
L1
мм
480
480
L2
мм
1550
1550
L3
мм
350
350
L4
мм
150
150
L5
мм
710
710
LW
мм
185
185
H
мм
1575
1575
H1
мм
915
915
H2
мм
440
440
H3
мм
490
490
H4
мм
260
260
B
мм
1570
1570
B1
мм
190
140
B2
мм
785
785
B3
мм
195
145
B4
мм
1360
1360
B5
мм
1375
1425
B6
мм
1180
1280
D
мм
500
500
W
DN
DN80-PN16
DN80-PN16
G
DN
DN80-PN16
DN80-PN16
18
Технические характеристики
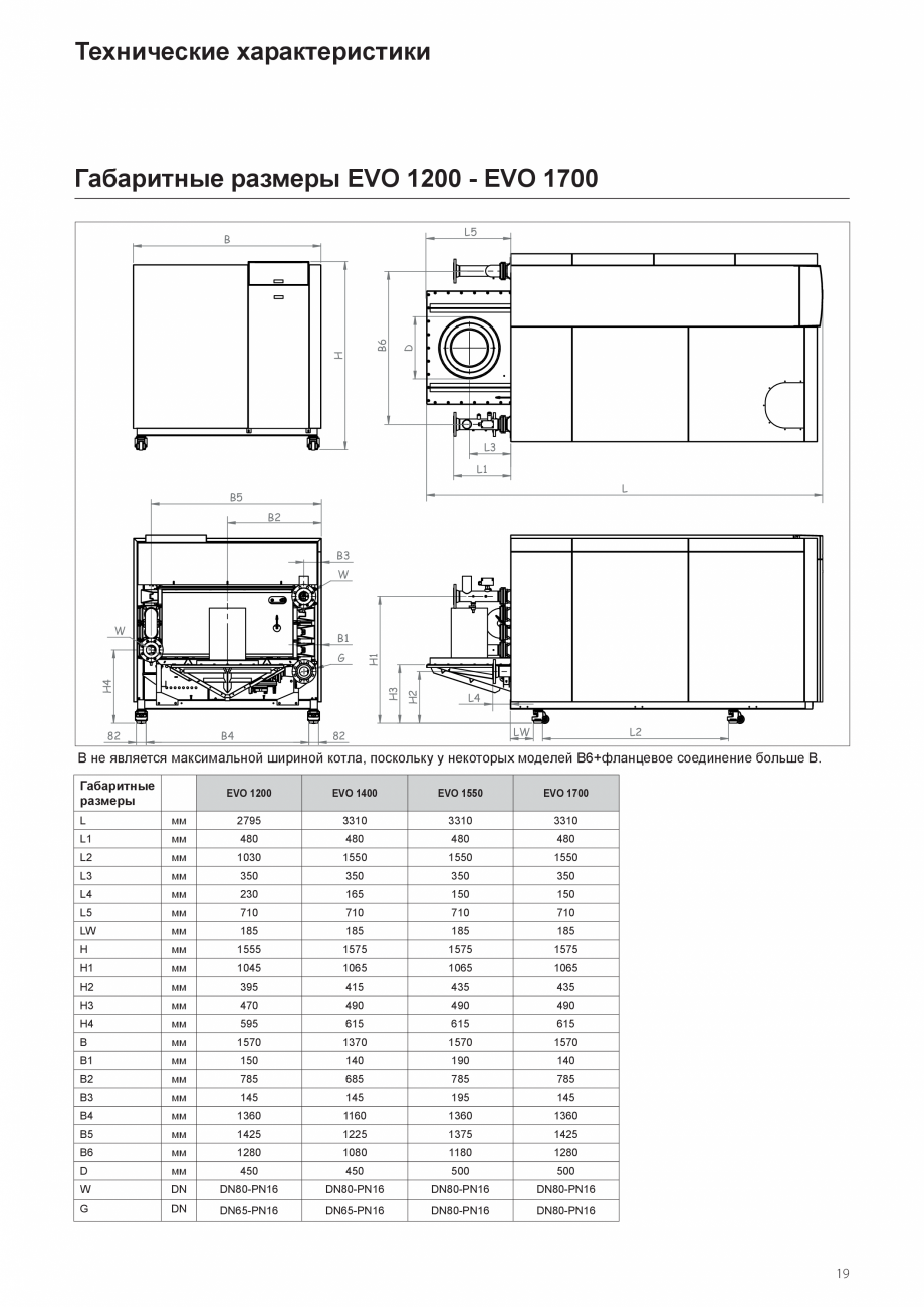
Габаритные размеры EVO 1200 - EVO 1700
L5
D
H
B6
B
L3
L1
L
B5
B2
B3
W
W
B1
82
B4
H2
H3
H4
H1
G
L4
L2
LW
82
B не является максимальной шириной котла, поскольку у некоторых моделей B6+фланцевое соединение больше B.
Габаритные
размеры
EVO 1200
EVO 1400
EVO 1550
EVO 1700
3310
L
мм
2795
3310
3310
L1
мм
480
480
480
480
L2
мм
1030
1550
1550
1550
L3
мм
350
350
350
350
L4
мм
230
165
150
150
L5
мм
710
710
710
710
LW
мм
185
185
185
185
H
мм
1555
1575
1575
1575
H1
мм
1045
1065
1065
1065
H2
мм
395
415
435
435
H3
мм
470
490
490
490
H4
мм
595
615
615
615
B
мм
1570
1370
1570
1570
B1
мм
150
140
190
140
B2
мм
785
685
785
785
B3
мм
14
5
145
195
145
B4
мм
1360
1160
1360
1360
B5
мм
1425
1225
1375
1425
B6
мм
1280
1080
1180
1280
D
мм
450
450
500
500
W
DN
DN80-PN16
DN80-PN16
DN80-PN16
DN80-PN16
G
DN
DN65-PN16
DN65-PN16
DN80-PN16
DN80-PN16
19
Объем поставки
Стандартный котел
Принадлежности
Стандартный котел
Комплект поставки котла включает
следующие компоненты:
Компонент
Поз.
Комплект поставки
Котел TRIGON XXLполностью собранный и испытанный
1
Деревянный поддон, в ПЭ-пленке
Сифон и отстойник для отвода конденсата
1
Картонный ящик на теплообменнике
(под кожухом)
Руководство по монтажу и эксплуатации
1
На электрическом щите
Принадлежност
и
По запросу возможна комплектация
котла различными факультативными
принадлежностями.
Не доступно
TRIGON XXL
SE
ОПИСАНИЕ
650-1900
КОЛЛЕКТОР MONO
КОЛЛЕКТОР DUO
ПРЕДОХРАНИТЕЛЬНЫЙ КЛАПАН 3 БАР
ПРЕДОХРАНИТЕЛЬНЫЙ КЛАПАН 6 БАР
ПРЕДОХРАНИТЕЛЬНЫЙ КЛАПАН 3 БАР TUV
ПРЕДОХРАНИТЕЛЬНЫЙ КЛАПАН 6 БАР TUV
СТАНДАРТНЫЙ НАСОС
НАСОС С РЕГУЛИРУЕМОЙ СКОРОСТЬЮ
БАЙПАСНЫЙ НАСОС
РЕЛЕ МАКСИМАЛЬНОГО ДАВЛЕНИЯ ГАЗА
РЕЛЕ МИНИМАЛЬНОГО ДАВЛЕНИЯ ВОДЫ
РЕЛЕ МАКСИМАЛЬНОГО ДАВЛЕНИЯ ВОДЫ
ГАЗОВЫЙ ФИЛЬТР 2 ДЮЙМА
ДЕТЕКТОР УТЕЧКИ ГАЗА
ВНЕШНИЙ ТЕРМОСТАТ ДЛЯ ЗАЩИТЫ ОТ ПЕРЕГРЕВА
СЪЕМНИК
РЕГУ
ЛЯТОР ДАВЛЕНИЯ ПРИРОДНОГО ГАЗА 300/10-30 мбар R2"
УДЛИНИТЕЛЬ AVS75.390/101
КОНТРОЛЛЕР RVS63.283/360 + КОРПУС С НАСТЕННЫМ КРЕПЛЕНИЕМ
ВНЕШНИЙ ДАТЧИК QAC34.101
ДАТЧИК КОЛЛЕКТОРА/ГОРЯЧЕЙ ВОДЫ QAZ36 КАБЕЛЬ 2М
ДАТЧИК КОЛЛЕКТОРА/ГОРЯЧЕЙ ВОДЫ QAZ36 КАБЕЛЬ 6М
ЗОНАЛЬНЫЙ ДАТЧИК QAD36.201 С КАБЕЛЕМ 4 М
КОМНАТНЫЙ ВЕНТИЛЯТОР+НАР. ГАЗОВЫЙ КЛАПАН TRXXL
КОМНАТНЫЙ РЕГУЛЯТОР QAA75.610/101
КОМНАТНЫЙ РЕГУЛЯТОР QAA78.610/301 БЕСПРОВОДНОЙ
ПРИЕМНИК AVS71.390/109 БЕСПРОВОДНОЙ
НАРУЖНЫЙ ДАТЧИК AVS13.399.201 БЕСПРОВОДНОЙ
КОМПЛЕКТ ДЛЯ ГРУППОВОГО ПОДКЛЮЧЕНИЯ, MASTER LMS
КОМПЛЕКТ ДЛЯ ГРУППОВОГО ПОДКЛЮЧЕНИЯ, SLAVE LMS
2-й ОБРАТНЫЙ ВХОД
TRXXL
ВОЗДУШНЫЙ ФИЛЬТР TRXXL
КОМПЛЕКТ ГЕРМЕТИЗАЦИИ ДЛЯ ПОМЕЩЕНИЙ TRXXL
ЗАСЛОНКА ДЫМОВЫХ ГАЗОВ
20
Условные обозначения:
ECO
650-1050
Доступно
EVO
1150-1600
700-1100
1200-1700
Монтаж
Транспортировка
L
B
H
L
H
B
B
H
L
Компонент
Горелка
1-й теплообменник
2-й теплообменник
3-й теплообменник
Факел
Конденсатоприемник
SE-750
ECO-650
SE-850
ECO-750
SE-1000
ECO-850
SE-1100
ECO-950
SE-1200
ECO-1050
EVO-700
EVO-800
EVO-900
1110
1110
1587
1587
1478
1585
1114
1585
1590
1590
1590
1257
1257
1025
1125
1225
1425
1135
995
1095
1209
1295
416
416
416
416
416
416
416
416
416
416
416
1504
1029
1505
1505
1505
1505
1032
1505
1505
1505
1505
1257
1257
1025
1125
1225
1425
1257
1025
1125
1225
1325
150
150
150
150
150
150
150
15
0
150
150
150
SE-650
m [кг]
L [мм]
B [мм]
H [мм]
m [кг]
L [мм]
B [мм]
H [мм]
m [кг]
L [мм]
B [мм]
H [мм]
m [кг]
L [мм]
B [мм]
H [мм]
m [кг]
L [мм]
B [мм]
H [мм]
m [кг]
L [мм]
B [мм]
H [мм]
EVO-1000 EVO-1100
135
225
1504
1029
1505
1505
1505
1505
1032
1505
1505
1505
1505
1257
1257
1025
1125
1225
1425
1257
1025
1125
1225
1325
150
150
150
150
150
150
150
150
150
150
150
-
-
-
-
-
-
-
-
-
-
-
-
-
-
1505
1032
1505
1505
1505
1505
210
-
-
-
-
-
1425
1257
1025
1125
1225
1325
-
-
-
-
-
150
150
150
150
150
150
84
84
91
112
101
104
84
91
112
101
104
1630
1630
2003
2003
2003
2008
1630
2003
2003
2003
2003
1306
1306
1106
1106
1306
1506
1306
1106
1106
1306
1306
460
460
460
460
460
400
460
160
460
460
160
1450
1450
1905
1905
1905
2067
1452
1905
1905
1910
1910
1098
1098
780
877
977
1170
1097
780
877
977
1080
312
312
340
340
340
349
314
340
340
340
340
21
Монтаж
Транспортировка
L
B
H
L
H
B
B
H
L
Компонент
Горелка
1-й теплообменник
2-й теплообменник
3-й теплообменник
Факел
Конденсатоприемник
22
m [кг]
L [мм]
B [мм]
H [мм]
m [кг]
L [мм]
B [мм]
H [мм]
m [кг]
L [мм]
B [мм]
H [мм]
m [кг]
L [мм]
B [мм]
H [мм]
m [кг]
L [мм]
B [мм]
H [мм]
m [кг]
L [мм]
B [мм]
H [мм]
SE-1300
ECO-1150
SE-1500
ECO-1300
SE-1700
ECO-1450
SE-1900
ECO-1600
EVO 1200
EVO 1400
EVO-1550
EVO 1700
1505
2018
2018
2018
1505
2018
2018
2018
1393
1245
1345
1445
1393
1245
1345
1445
442
442
462
462
442
442
462
462
1505
2018
2018
2018
1505
2018
2018
2018
1425
1253
1353
1453
1425
1253
1353
1453
150
150
150
150
150
150
150
150
1505
2018
2018
2018
1505
2018
2018
2018
1425
1253
1353
1453
1425
1253
1353
1453
150
150
150
150
150
150
150
150
/
/
/
/
1505
2018
2018
2018
1425
1253
1353
1453
150
150
150
150
92
115
120
122
92
115
120
122
2008
2521
2521
2521
2008
2521
2521
2521
1506
1306
1506
1506
1506
1306
1506
1506
400
420
420
420
400
420
420
420
2074
2583
2582
2582
2074
2583
2582
2582
1171
641
1071
1171
1171
971
1071
1171
349
352
353
350
349
352
353
350
Монтаж
Транспортировка
Транспортировка котла
Котел TRIGON XXL поставляется в
полностью собранном виде после
прохождения полного цикла заводских
испытаний.
Котел можно перемещать вилочным
погрузчиком. Центр тяжести котла
должен находится между вилами. Котел должен располагаться на вилах
как можно ближ
е к передним колесам.
При необходимости, для облегчения
транспортировки допускается разборка котла на меньшие части. В таблице
на предыдущей странице приведены
основные части котла, их массы и размеры.
При перемещении котла TRIGON XXL
краном перед строповкой необходимо
извлечь котел из упаковки.
Для строповки котла используйте текстильные стропы.
Чтобы облегчить доступ к факелу,
рекомендуется
удалить
нижнюю
пластину (3).
1
1
2
2
3
A
1 Стропы (4 шт.)
2 Деревянные распорки (2 шт.)
Осторожно: Следите за тем,
чтобы не повредить патрубок
газа (A).
23
Монта
Удаление упаковки
Удаление упаковки
Для предотвращения повреждения
котла при транспортировке удаляйте
упаковку только перед перемещением
котла в рабочее положение. Упаковка
снимается следующим образом:
3
C
1
B
A
4
2
5
Необходимо поддерживать боковую панель B во избежание падения
после шага 3.
6
4
7
9
24
5
8
Монтаж
Установка котла
450
450
1000
800
Установка котла
Котел должен устанавливаться в
отапливаемом
помещении.
Если
помещение котельной находится на
крыше, сам котел ни в коем случае не
должен быть самой верхней частью
системы отопления.
П
ри выборе места расположения котла
следует учитывать рекомендации
по
минимальным
расстояниям
до препятствий, приведенные на
рисунке. При установке котла с
меньшими расстояниями проведение
технического обслуживания будет
затруднено.
После установки котла в надлежащую
позицию поворачивайте регулятор (A)
или гайку (B) против часовой стрелки
для выхода ножек до установки котла
на нужную высоту.
Подсоединения воды и газа должны
делаться после выставления котла
по высоте, т.к. высота котла влияет на
высоту всех подсоединений.
ИСПОЛЬЗУЙТЕ РАЗВ
ОДНОЙ ГАЕЧНЫЙ
КЛЮЧ или КЛЮЧ НА 17 мм
A
B
25
Монтаж
Подсоединение котла
Подсоединение котла
В данной главе описываются все
подсоединения и подключения котла:
• Гидравлические подсоединения
(1,3)
• Подсоединения
для
отвода
конденсата (7)
• Подсоединение газа (6)
• Подсоединение дымохода (5)
• Подсоединение
входного
воздухозаборника (2)
• Электрические подключения (4)
• Отстойник (см. след. стр.)
Котел должен подсоединяться и
подключаться к инженерным сетям в
строгом соответствии с требованиями
действующих норм (европейских,
национальных
и
ме
стных).
Соблюдение требований норм при
установке является обязанностью
монтажной организации.
1
3
5
4
6
Гидравлические подсоединения
Котел должен всегда подсоединяться
так, чтобы через него обеспечивался
постоянный проток воды.
Подсоедините прямой (3) и обратный
(1) трубопроводы системы отопления
к котлу без напряжения.
7
A
A
2
Подсоединение
входного
воздухозаборника (2)
Воздухозаборник подсоединяется к
котлу в случае его установки в закрытом помещении.
Диаметр воздухозаборника рассчитывается на основании национального законодательства п
араллельно с
расчетом диаметра дымовой трубы.
Общее сопротивление обеих воздухопроводов не должно превышать максимально допустимого сопротивления
для вентилятора котла (см. тж. главу:
Технические характеристики).
Для снятия крышки воздухозаборного
отверстия открутите винты (А) отверткой и снимите крышку.
Убедитесь в том, что трубопровод подачи воздуха изготовлен в соответствии с
требованиями действующих норм.
Не допускается ввод в эксплуатацию
котлов смонтированных с нарушением требований законодательства.
Убедитесь в отсутствии нап
яжений
на всех подсоединениях.
На входном воздухопроводе и дымовой трубе не допускаются заужения.
26
Монтаж
Подсоединение котла
Установка сифона и отстойника
Установите собранные отстойник с сифоном (входят в комплект поставки)
перед первым включением или после
полного отключения котла по указаниям ниже:
• Снимите заглушку А с прокладкой
C с сифона.
• Подсоедините гибкий шланг (E)
к сифону, как показано на рис.
справа, накручивая гайку (B) по
часовой стрелке.
• Подсоедините вход (H) отстойника к трубе (L).
• Предупреждение!
Сифон и отстойни
к должны
быть полностью заполнены
водой. Убедитесь в отсутствии
воздуха внутри перед их подсоединением к котлу.
• Подсоедините трубу (L) к нижнему патрубку конденсатоприемника (M).
• Сток системы отвода конденсата
должен быть всегда открыт для
предотвращения переполнения
котла в случае его засорения.
• Регулярно проверяйте и очищайте сток.
A
D
C
C
B
E
H
M
L
МЕРЫ БЕЗОПАСНОСТИ
Не снимайте металлическую обойму (N) с отстойника.
ПРЕДУПРЕЖДЕНИЕ: Ни в коем случае не снимайте металлическую
обойму.
Шарик сифона (N) в отстойнике (7).
Отключите котел и вы
зовите специалиста по техническому обслуживанию.
7
8
M
N
N
OK
7
ВНИМАНИЕ НЕПРАВИЛЬНО
27
Монтаж
Подсоединение котла
Подсоединение газа (6)
Подсоединение к газопроводу должно
выполняться
уполномоченной
монтажной организацией в соответствии с требованиями действующего
законодательства.
Подсоедините газопровод без напряжения к входному патрубку газа (6)
котла. Непосредственно перед котлом
необходимо установить газовый кран.
Газовый фильтр устанавливается непосредственно на газовый патрубок
котла.
6
Электрические подключения (4)
Электрич
ское подключение должно
выполняться
уполномоченной
монтажной организацией в соответствии с требованиями действующего
законодательства.
Для доступа к электрическим компонентам, расположенным под передней панелью, смотрите инструкции на
стр. 24.
Дымоход не должен подсоединяться
к компенсатору!
4
ПРЕДУПРЕЖДЕНИЕ!
Не подключайте котел к электрической сети через УЗО или дифференциальные автоматические выключатели.
Для отключения котла от электрической сети в котельной должен быть
установлен выключатель с минимальным расстоянием между р
азомкнутыми контактами не менее 3 мм.
Данный выключатель будет использоваться для отключения котла от
электрической сети перед проведением технического обслуживания.
Кабели должны прокладываться в кабельных лотках и заводиться в щиток
спереди котла при помощи кабельных
фитингов.
4
Жилы кабеля подсоединяются к контактным зажимам в щитке в соответствии с указаниями на электрической
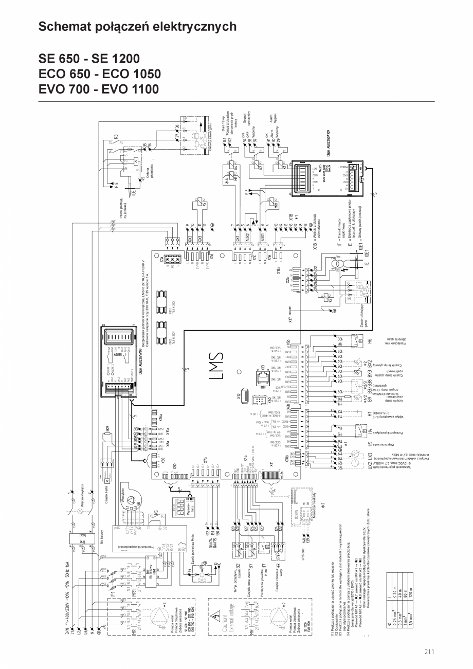
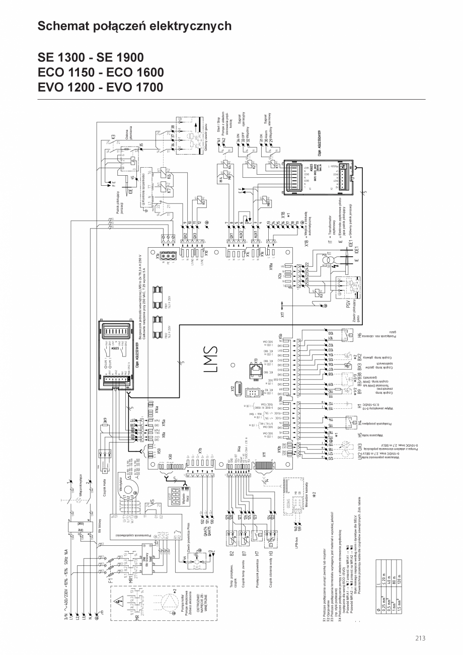
схеме котла (См. электрические схемы стр. 48).
Требования к насосу
Для обеспечения надлежащей работы котла следует использовать только
оригинальные принадл
жности.
Для получения дополнительной информации свяжитесь с ближайшим
представительством.
28
При выборе других насосов учитывайте следующее:
•
•
•
Гидравлическое сопротивление/
проток через котел после установки!
Гидравлическое сопротивление/
проток через котел смотрите в
разделе «Технические характеристики» (см. стр. 10).
Соблюдайте электрические характеристики (макс. ток), приведенные в таблице «Электрические подключения» (см. стр. 48
/ 50).
Соблюдайте указания в оригинальном руководстве по монтажу
и эксплуатации насоса!
Важно:
• мод
ль SE, все модификации: регулирование работы
насоса невозможно!
• Насос мощностью более 1,5
кВт должен иметь внешний
источник питания.
Подача газа
Проверьте газопровод до котла на
наличие утечек. При обнаружении
утечек устраните их до ввода котла в
эксплуатацию.
Удалите воздух из газопроводов.
Это можно сделать на тестовой точке
(1) на реле давления газа. Не забудьте
закрыть тест-точку после продувки!
Узнайте характеристики и параметры газа у местного поставщика для
определения типа газа для настройки
котла.
1
Монтаж
Подсоединения воздуха/
ымовых газов
Нормативные требования
Нормативные требования к устройству дымоходов сильно различаются
в разных странах. Необходимо неукоснительно соблюдать требования
действующего национального законодательства по устройству дымоходов.
При проектировании дымохода учтите
следующие рекомендации.
Должны использоваться только сертифицированные материалы.
Конструкция дымохода должна обеспечивать безопасную работу системы.
Компоненты системы дымоудаления
должны быть съемными для проведения обслуживания.
Монтажная организация несе
ответственность за правильный подбор
диаметра, длины и типа дымохода.
При возникновении любых вопросов
в процессе расчета свяжитесь с местным производителем для получения
дополнительной информации.
Необходимо учитывать следующие
требования к материалам.
Класс
коррозионной
стойкости
Огнестойкий
Вт
V1, V2 или
Vm
E или
больше
Вт
V1, V2 или
Vm
E или
больше
Класс
давления
Температурный
класс
Конденсатостойкий
Падение
давления < 200
Па
P1
Мин: T120
Падение
давления > 200
Па < 5000 Па
H1
Мин: T120
Соединения дымового газа
Подсоедините дымоход к патрубку
ля отвода дымовых газов (5) котла.
Дымоход должен быть бесшовным.
Можно не устраивать конденсатоотводчик в дымоходе, т.к. конденсат
будет удаляться через сифон котла.
Обратите внимание на следующее:
• Диаметр подсоединения дымохода должен быть равен минимальному диаметру дымохода.
• Диаметр дымохода выбирается
на основании расчета в соответствии с требованиями действующих норм.
• Соберите дымоход. Длина дымохода должна быть минимально
возможной (максимальную длину
смотрите в 31).
• Горизонтальные участки дымохода должны иметь уклон ми
нимум
3°.
Подсоединение дымохода
Дымоход не должен контактировать
или проходить около горючих материалов и не должен проходить сквозь
строительные конструкции из горючих
материалов.
Котел оснащен ограничительным термореле для контроля температуры
дымовых газов. При повышении температуры дымовых газов выше 90°C
горелка отключается. Благодаря данной функции дополнительное (внешнее) устройство защиты не требуется.
При замене старого котла, как правило, должны заменяться и дымоход и
воздуховод.
Система дымоудаления Направление
раструба д
елается против направления течения конденсата.
В таблице на следующей странице
показаны максимально допустимые
сопротивления дымоходов для работы котла в установленных пределах.
Номинальная входная тепловая мощность - 5%
5
29
Монтаж
Подсоединения воздуха/дымовых газов
Тип котла
Номинальная тепловая
мощность на
выходе
Номинальная тепловая
мощность на
входе
Соединения
дымового
газа
кВт
кВт
мм
TRIGON
XXL
макс
мин
макс
мин
SE 650
656
164
702
176
SE 750
733
183
784
196
SE 850
857
213
917
SE 1000
971
242
SE 1100
1084
SE 1200
Уровень CO2
Температура
дымовых
газов
Количеств
дымовых газов
Макс. допустимое
падение
давления
%
°C
г/с
Па
макс
мин
300 ±1
407,1
106,6
350 ±1
452,1
118,3
229
350 ±1
528,7
138,4
1038
260
400 ±1
598,3
156,7
270
1159
290
400 ±1
667,8
174,9
1196
298
1279
320
400 ±1
737,6
193,2
SE 1300
1309
326
1400
350
450 ±1
808,3
211,5
SE 1500
1496
373
1600
400
450 ±1
923,3
241,7
SE 1700
1683
419
1800
450
500 ±1
1038,9
272,0
SE 1900
1870
466
2000
500
500 ±1
1154,5
302,3
ECO 650
613
175
653
187
300 ±1
368,2
110,2
ECO 750
717
204
764
218
350 ±1
430,6
128,8
ECO 850
811
231
865
247
350 ±1
487,3
145,9
ECO 950
906
258
966
276
400 ±1
543,9
162,7
ECO 1050
1000
285
1066
305
400 ±1
600,6
179,7
ECO 1150
1093
312
1166
333
450 ±1
656,9
196,5
ECO 1300
1250
357
1333
381
450 ±1
751,1
224,7
ECO 1450
1406
401
1449
428
500 ±1
816,6
252,5
ECO 1600
1562
446
1666
476
500 ±1
938,7
280,7
EVO 700
639
182
653
187
300 ±1
307,9
92,0
EVO 800
747
212
764
218
350 ±1
359,9
107,5
EVO 900
846
241
865
247
350 ±1
407,4
121,9
EVO 1000
945
269
966
276
400 ±1
454,9
136,0
EVO 1100 1043
297
1066
305
400 ±1
502,4
150,4
EVO 1200 1093
312
1166
333
450 ±1
549,1
164,2
EVO 1400 1250
357
1333
381
450 ±1
627,7
187,8
EVO 1550 1406
401
1449
428
500 ±1
682,4
211,2
EVO 1700 1562
446
1666
476
500 ±1
784,5
234,9
30
макс
10.0
± 0.2
10.0
± 0.2
10.0
± 0.2
мин
9.3
± 0.2
9.3
± 0.2
9.3
± 0.2
макс
165
±2
155
±2
85
±2
мин
70
±2
65
±2
65
±2
150
150
150
Монтаж
Расчет дымохода
Расчет дымохода
максимальная длина дымового газа. * [m]
Type
SE 650
Ø250mm Ø300mm Ø350mm Ø400mm Ø450mm Ø500mm
50
50
SE 750
23
47
50
50
SE 850
34
50
50
SE 1000
50
50
50
SE 1100
40
50
50
SE 1200
33
50
50
SE 1300
46
50
50
SE 1500
36
50
50
SE 1700
45
50
SE 1900
36
50
*предположение. Прямая труба, открытый выход.
Система дымоудаления должна быть
сконструирована и изготовлена надлежащим образом для обеспечения
надлежащей работы котла.
Для выбора правильного материала
для дымохода необходимо рассчитать максимальное давление дымовых газов. В таблице ниже приведены различные классы давлений и их
пределы.
Использованные материалы должны
отвечать требованиям следующих
стандартов:
EN1856 для металлических частей
(нержавеющая сталь и алюминий)
EN14471 для пластмассов
ых материалов
максимальная длина дымового газа. * [m]
Type
ECO 650
Ø250mm
29
Ø300mm
Ø350mm
Ø400mm
50
50
ECO 750
50
50
50
ECO 850
43
Ø450mm
50
50
ECO 950
50
50
50
ECO 1050
50
50
50
ECO 1150
50
50
50
ECO 1300
38
50
50
ECO 1450
30
50
50
ECO 1600
24
41
50
*предположение. Прямая труба, открытый выход.
максимальная длина дымового газа. * [m]
Type
EVO 700
Ø250mm
38
Ø300mm
Ø350mm
Ø400mm
50
50
EVO 800
50
50
50
EVO 900
50
Ø450mm
50
50
EVO 1000
50
50
50
EVO 1100
50
50
50
EVO 1200
50
50
50
EVO 1400
49
50
50
EVO 1550
39
50
50
EVO 1700
31
50
50
*предположение. Прямая труба, открытый выход.
31
Ввод в эксплуатацию
Вода и гидравлическая система
Ввод котла в эксплуатацию должен
выполнятьс
только уполномоченным
персоналом. При несоблюдении данного требования гарантия аннулируется. Акт ввода в эксплуатацию должен
быть полностью заполнен (пример
акта смотрите в конце главы).
В данной главе описан порядок ввода
в эксплуатацию котла со стандартным
контроллером. При установке дополнительного контроллера порядок ввода его в эксплуатацию смотрите в оригинальном руководстве.
Давление воды
Откройте краны в системе. Проверьте
давление воды в системе Если давление воды будет слишком низким (см.
табл. ниже) увеличьте давление до
ми
имально необходимого для системы.
Заполнение проводят через заливной
и сливной кран (2) на обратном водопроводе (1) котла.
Гидравлическая система
Убедитесь в том, что котел подсоединен к системе отопления таким образом, чтобы через него всегда обеспечивался проток воды. Проток воды
контролируется реле протока в котле.
Недостаточный проток приведен к отключению горелки и блокировке работы котла.
Качество воды
(см. табл. 1 и 2)
Диффузионные повреждения теплообменника кислородом в воде не покрываются гарантией.
В системах с большим объемом вод
необходимо соблюдать максимальный объемы заполнения и доливки,
а также значения жесткости воды,
указанные в немецком стандарте
VDI2035.
Табл. 1
Рабочая температура
Минимальное рабочее давление воды
pH воды
Жесткость воды
Электропроводность
Содержание кислорода
Содержание хлоридов
Содержание сульфидов
Содержание нитратов
Содержание железа
ОБЩАЯ
ТЕПЛОВАЯ
МОЩНОСТЬ
[кВт]
В таблице можно найти номинальные значения для воды, используемой для заполнения и доливки для
котла TRIGON XXL в соответствии с
VDI2035.
В таблице также приведены указания
по отно
ению между качеством воды
и максимальным объемом заполнения
в процессе срока службы котла.
Для получения дополнительной информации смотрите текст стандарта
VDI2035.
Центральное отопление
Вода в системе
Доливаемая вода
10 - 90°C
10 - 25°C
см. Табл. 3
8,2 - 10,0
7,0 - 9,5
«Таблица взята из
«Таблица взята из
VDI2035
VDI2035
(см. лист «Жесткость (см. лист «Жесткость
CH»)»
CH»)»
< 100 мкСм/см
< 100 мкСм/см
< 0,05 мг/л
< 0,05 мг/л
< 50 мг/л
< 50 мг/л
< 50 мг/л
< 50 мг/л
< 50 мг/л
< 50 мг/л
< 0,2 мг/л
< 0,2 мг/л
Табл. 2
Допустимые значения жесткости воды в зависимости от объема
системы
Удельный объем
< 20 л/кВт
≥ 20 л/кВт - < 50 л/кВт
≥ 50 л/кВт
50 кВт - ≤ 200 кВт
≤ 11,2°dH
(2,0 моль/м3)
≤ 8,4°dH
(1,5 моль/м3)
≤ 5,6°dH
(1,0 моль/м3)
200 кВт - ≤
600 кВт
≤ 8,4°dH
(1,5 моль/м3)
≤ 5,6°dH
(1,0 моль/м3)
≤ 2,8°dH
(0,5 моль/м3)
600 кВт - ≤
1 200 кВт
≤ 5,6°dH
(1,0 моль/м3)
≤ 2,8°dH
(0,5 моль/м3)
≤ 0,11°dH
(0,02 моль/м3)
> 1200 кВт
≤ 2,8°dH
(0,5 моль/м3)
≤ 0,11°dH
(0,02 моль/м3)
≤ 0,11°dH
(0,02 моль/м3)
Если жесткость воды выше, используйте системы умягчения (в обязательном порядке для сохранения гарантии!).
2
Табл. 3 Минимальное давление воды
Trigon XXL SE
1
Trigon XXL ECO
Trigon XXL EVO
32
ΔT
≤ 20K
20 - 30K
Мин давление воды
0.5 bar
1.5 bar
ΔT
≤ 20K
20 - 25K
25 - 30K
Мин давление в
ды
0.5 bar
1.0 bar
1.5 bar
ΔT
≤ 20K
20 - 25K
25 - 30K
Мин давление воды
0.5 bar
1.0 bar
1.5 bar
Ввод в эксплуатацию
Подготовка котла к первому пуску
Условные обозначения:
M
Порядок подготовки системы.
Для обеспечения правильной и безопасной эксплуатации котел должен
быть подготовлен к вводу в эксплуатацию квалифицированным специалистом.
•
Электроснабжение
• Убедитесь в том, что напряжение
и частота тока в питающей электрической сети соответствуют
указанным на паспортной табличке котла.
• Убедитесь в том, что котел заземлен надлежащим образом.
Заполнение водян
ого контура
Действуйте, как описано далее:
• Откройте кран заполнения системы, обеспечив выпуск из нее
воздуха. Продолжайте заполнение системы, пока давление на
манометре котла не станет (0,5*)
1,5 бара.
*см. страница 32 Табл. 3.
Подача газа
Действуйте следующим образом:
• Убедитесь в том, что в котел подается тип газа, указанный на паспортной табличке.
ВНИМАНИЕ! Котел настроен
на газ типа G20. Для работы на
газу типа G31 действуйте как
описано в разделе «Настройки
СУГ»
• Откройте все окна и двери
• Убедитесь в отсутствии в помещении источников огня
искр.
b
c
A Выключатель
B Назад (ESC)
C Комнатный термостат
D OK
E Ручной режим
F Режим продувки дымовой трубы
G Информационный режим
H Кнопка сброса
I Режим работы - зоны нагрева
L Дисплей
M Режим работы DHW
I
L
0
4
ESC
6
-
12
16 20
+
G
24
OK
A
H
B
C
D
Убедитесь в том, что подсоединения газа герметичны.
Подготовка котла к первому пуску
• Откройте подачу газа
• Подайте напряжение на котел
• Включите котел выключателем
(A).
• Убедитесь в том, что котел находится в дежурном режиме (
)
• Проверьте работу насоса: убедитесь в том, что насос вращается в
правильном напра
влении
• Удалите воздух из корпуса насоса.
При первом пуске рекомендуется
запускать котел на 50% мощности.
Это хорошее значение для пуска и
анализа условий горения. Это делается следующим образом:
• Нажмите кнопку I > 3 сек. Котел
переключится в режим останова
контроллера.
• Нажмите кнопку Инфо (G). На
дисплее появится текущее значение мощности (%).
• Выберите «set up» (настройка)
(подтвердите нажатием кнопки
«OK»). Теперь можно изменить
мощность котла регулятором (С).
Установите значение 50% и подтвердите его кнопкой «ОК».
Настройки СУГ (G31)
Для работ
ы на газу типа G31 необходимо настроить соответствующие
параметры (9,524 мин об/мин и 9,529
макс. об/мин) на дисплее. Значения
оборотов в минуту указаны на 10):
E
•
•
•
•
•
•
•
•
•
•
F
Нажмите кнопку OK
Нажмите кнопку (G) 3 секунды
Выберитеinstaller (установка)
регулятором (C)
Нажмите кнопку OK
Выберите burner control (управление горелкой) регулятором (C)
Нажмите кнопку OK
выберите номер параметра, который нужно изменить, регулятором (C)
Нажмите кнопку OK (параметр
начнет мигать)
измените значение регулятором
(С)
Нажмите кнопку OK (параметр
будет сохранен)
После пр
верки параметров горения (см. след. стр.) можно вывести
контроллер из режима останова нажатием кнопки (I) > 3 сек.
Режим работы DHW (M)
Для переключения в режим работы
DHW (индикация на дисплее под индикатором DHW)
Режим работы - зонный обогрев (I)
Для настройки 4 различных режимов
отопления:
Автоматический
(индикатор
часы): Автоматическая работа по
графику
Комфортный (индикатор - солнце):
нагрев 24/7 в комфортном режиме
Уменьшение (индикатор - луна): нагрев 24/7 в уменьшенном режиме
Дежурный режим: нагрев отключен,
включена защита от замерзания
33
Ввод в эксп
луатацию
Подготовка котла к первому пуску
Условные обозначения:
b
c
A Выключатель
B Назад (ESC)
C Комнатный термостат
D OK
E Ручной режим
F Режим продувки дымовой трубы
G Информационный режим
H Кнопка сброса
I Режим работы - зоны нагрева
L Дисплей
M Режим работы DHW
M
Режим останова контроллера
Для настройки режима останова
контроллера и ввода уставок нажмите (K) > 3 сек.
Нажмите (K) > 3 сек еще раз для настройки параметров горения.
настройка 60°C) (индикатор - гаечный
ключ).
Дисплей (L)
Режим информации (G)
Данная кнопка показывает следующую информацию без вме
ательства в работу контроллера: температуры, рабочий режим Нагрев/DHW,
код ошибки.
подтверждение (OK) (D)
назад (ESC) (B)
Данные кнопки используются для
программирования вместе с колесиком.
При нажатии кнопки ESC можно вернуться назад на уровень. Измененные значения не будут записаны в
контроллер.
При нажатии кнопки ОК значения будут сохранены и произойдет переход
на следующий уровень.
Ручной режим (E)
Данная кнопка используется для
переключения котла в ручной режим.
В ручном режиме все насосы будут
работать, а смесительные клапаны
не будут регулиро
аться. Уставку
горелки можно изменить (заводская
I
L
0
4
ESC
6
-
12
16 20
+
G
24
OK
A
H
B
C
D
Выключатель (A)
Позиция 0:
Котел и подключенные электрические
компоненты не запитаны. Защита от
замерзания не гарантируется
Позиция I:
Котел подключен к электрической
сети,
компоненты котла запитаны и находятся в дежурном режиме.
Режим деаэрации (E)
При нажатии кнопки ручного режима
долее 3 секунд запустится автоматическая деаэрация водяного контура. В процессе деаэрации система
будет находиться в дежурном режиме. Насосы включатся и отключатся
несколько раз.
П
сле деаэрации котел автоматически вернется к нормальной работе.
Режим очистки дымохода (F)
Используется для анализа горения.
При повторном нажатии кнопки или
автоматически через 15 минут режим
очистки дымохода будет отключен
(индикатор - гаечный ключ).
Кнопка сброса (H)
Кратковременное нажатие кнопки
сброса приводит к разблокировке горелки.
E
F
Ввод в эксплуатацию
Дисплей/программирование
Выбор режима DHW
Выход из меню
Выбор режима нагрева
(Переключение контроллера в режима останова
при нажатии > 3 сек.)
b
c
Дисплей
0
4
ESC
Сброс
6
-
12
16 20
+
Наг
ев до комфортной
температуры Активирован
уровень «Info» (Информация)
Нагрев до пониженной
температуры Включен режим
программирования
Нагрев до температуры защиты от
замерзания
Нагрев временно отключен
Работа - дождитесь включения функции ECO
Работа горелки
(только для жидкотопливных/газовых
котлов)
Кнопка «Info»
24
Подтвердите
Ручной режим
(Режим деаэрации при
нажатии > 3 сек.)
OK
Режим очистки дымохода
Выбор
(Поворот влево-вправо)
Программирование
Стандартный режим
(кнопки)
Нажмите OK (1 раз)
Нажмите OK (1 раз)
Нажмите кнопку «INFO» (4 с)
Конечный п
ользователь
-
-
-
-
-
-
-
Выберите меню
Подтвердите нажатием кнопки «OK»
Выберите параметр
Подтвердите нажатием кнопки «OK»
измените значение регулятором «+ -»
Подтвердите нажатием кнопки «OK»
Вернитесь в главное меню кнопкой «ESC»
Кнопка
Сообщения об ошибках
Ввод в
эксплуатацию
-
-
-
-
-
-
-
-
-
Выберите уровень пользователя
Подтвердите нажатием кнопки «OK»
Выберите меню
Подтвердите нажатием кнопки «OK»
Выберите параметр
Подтвердите нажатием кнопки «OK»
измените значение регулятором «+ -»
Подтвердите нажатием кнопки «OK»
Вернитесь в главное м
еню кнопкой
«ESC»
Действие
Настройка комнатной
температуры.
Настройка комнатной
температуры для зоны 1 и 2.
Эксперт
Порядок
INFO
PROG
ECO
Активирован уровень «Info» (Информация)
Включен режим программирования
Нагрев временно отключен
Включена функция ECO
Включена функция праздника
Указание на отопительный контур
Техническое обслуживание / специальные операции
No.
Номер параметра
Показ / Функция
Зона 1 и 2
Поверните регулятор влево/
вправо
Регулятор
Подтвердите нажатием
кнопки «OK», подождите 5
сек. или нажмите
Мигающее значение комфортной темпе
атуры
Мигающее значение температуры изменяется с шагом 0,5°C от 10
до 30°C.
Зона 2 независимо от зоны 1
Поверните регулятор влево/
вправо
Подтвердите нажатием
кнопки «OK»
Поверните регулятор влево/
вправо
Подтвердите нажатием
кнопки «OK»
или подождите 5 сек. или
Выберите зону нагрева
Зона нагрева выбрана
Мигающее значение температуры изменяется с шагом 0,5°C от 10
до 30°C.
Комфортная температура настроена и сохранена
Изменение температуры отменено
- через 3 с появится главное меню
Комфортная температура настроена и сохранена
Изменение температуры
отменено
- через 3 с появится главное меню
нажмите
Включение/отключение
DHW
Нажмите кнопку
Режим DHW ВКЛ/ОТКЛ
(см. индикацию под знаком DHW)
- On (ВКЛ): Режим DHW по графику
- Off (ОТКЛ): Режим DHW отключен
- Защитные функции включены
35
Ввод в эксплуатацию
Органы управления
Кнопка
Действие
Auto
C
F
Порядок
Показ / Функция
Заводская настройка
Автоматический режим ВКЛ +:
- Нагрев по графику
- Уставка температуры по графику
- Защитные функции включены
- Автоматическое переключение времени (лето/зима) включено
- Функция ECO включена
(см. индикацию под знаком)
На
жмите кнопку x 1
Постоянное комфортное отопление ВКЛ плюс:
- Нагрев без графика по уставке комфортной температуры
- Защитные функции включены
Нажмите кнопку x 1 еще раз.
Постоянное пониженное отопление ВКЛ плюс:
- Нагрев без графика по уставке пониженной температуры
- Защитные функции включены
- Автоматическое переключение времени (лето/зима) включено
- Функция ECO включена
Нажмите кнопку x 1 еще раз.
Защитный режим ВКЛ плюс:
- Нагрев отключен
- Поддерживается температура предотвращения размораживания системы
- Защитные функции включены
Режим
останова контроллера
Нажмите кнопку >3 с.
Нажмите кнопку еще раз >3 с.
304: Режим останова контроллера
через 3 с появится главное меню
Меню «Info»
Нажмите кнопку x 1
Нажмите кнопку x 1 еще раз.
Нажмите кнопку x 1 еще раз.
…..
Появится меню «INFO»
- Состояние котла
- Состояние DHW
- Состояние зоны 1
- Состояние зоны 2
- Время / Дата
- Индикация неполадки
- Индикация технического
обслуживания
Изменение режима нагрева
i
введите уставку
- Комнатная температура
- Минимальная температура в
помещении
- Максимальная температура в
помещении - наружная температура
- Ми
имальная наружная
температура
- Максимальная наружная
температура
- Температура 1 DHW
- Температура котла
- Температура циркулирующей воды
(Информация в меню «info» зависит от конфигурации котла)
Назад в главное меню
Сегмент «INFO» исчезнет
Работа с ручной уставкой
Изменение стандартных
заводских температурных
настроек
Нажмите кнопку x 1
Нажмите кнопку
Нажмите кнопку
Регулятор «+ -»
Нажмите кнопку
Нажмите кнопку
Нажмите кнопку
Ручной режим ВКЛ (на дисплее будет значок гаечного ключа)
- Нагрев до заданной уставки (заводское значение = 60 °C)
301: Руч
ной режим
температура замигает
введите значение
введите уставку
Состояние котла
Ручной режим отключен (значок ключа исчезнет)
Деаэрация
Нажмите кнопку >3 с.
Нажмите кнопку еще раз >3 с.
312: Деаэрация ВКЛ
Деаэрация ОТКЛ
Включение режима чистки
дымохода
Нажмите кнопку (<3 с)
Нажмите кнопку еще раз (<3 с).
Режим очистки дымохода ВКЛ
Режим очистки дымохода ОТКЛ
Временное снижение
пониженной температуры на
QAA75
Нажмите кнопку
Нажмите кнопку еще раз.
Нагрев до пониженной температуры
Нагрев до комфортной температуры
Кнопка сброса
Нажмите кнопку
(<3 с)
Нажмите кнопку еще раз >3 с.
Котел заблокирован вручную. Сброс невозможен
Котел сброшен. Индикатор сигнализации исчез.
j
C
36
Ввод в эксплуатацию
Анализ горения
Проверка горения при работе на
полную мощность
Запустите котел в режиме останова
контроллера и нагрузите его на 50%
мощности Теперь котел работает с
50% мощностью Подождите примерно
3 минуты до стабилизации процесса
горения Постепенно увеличьте мощность до 100%
Сначала проверьте горение запальной
горелки при помощи измерительной
трубки, расположенной с задней стороны котла (3). Ре
улировка горения
запальной горелки осуществляется
настроечным винтом газового клапана
запальной горелки (2).
Затем проверьте горение главной горелки с помощью измерительной точки
в дымоходе (4). Горение можно корректировать с помощью регулировочного
винта на клапане основного газа (5).
Внимание! При переналадке на главной горелки на газ G20/G25/G31 регулировка полной мощности осуществляется заслонкой (1).
Регулировка крайне чувствительна и
позволяет выполнять тонкую настройку!
Малые значения на заслонке означают
больше газа, большие — меньше
аза
-
+-
3
4
Проверка горения при работе с минимальной мощностью
Переключите котел на минимальную
нагрузку (0%). Проверьте горение
точно так же, как и при работе на полную мощность. Регулировка горения
запальной горелки осуществляется
настроечным винтом газового клапана
запальной горелки (6). Регулировка горения главной горелки осуществляется
настроечным винтом газового клапана
главной горелки (7).
Проверка горения при работе с 50%
мощностью
Рекомендуется провести дополнительную контрольную проверку при 50%
мощности для проверки правильной
астройки и регулирования подачи
газа клапаном. Значение CO2 должно
находиться в пределах от значений
при полной и минимальной нагрузке.
Значение CO должно быть равным
значениям при полной и минимальной
нагрузках.
Запальная горелка
Настройки горения для природного газа
G20 / G25
Все котлы
CO2 макс.
%
Макс. CO
млн
Мин. CO2
%
Мин. CO
млн
10,0 ± 0,2
< 1000
10,2 ± 0,2
< 1000
Запальная горелка
Настройки горения для СУГ G31
Все котлы
Макс. CO2
%
Макс. CO
млн
Мин. CO2
%
Мин. CO
млн
11,0 ± 0,2
< 1000
11,2 ± 0,2
< 1000
Главная горелка
Настройки горения для природного газа
G20 / G25
Все котлы
Макс. CO2
%
Макс. CO
млн
Мин. CO2
%
Мин. CO
млн
10,0 ± 0,2
< 30
9,3 ± 0,2
< 30
Главная горелка
Настройки горения для СУГ G31
Все котлы
Макс. CO2
%
Макс. CO
млн
Мин. CO2
%
Мин. CO
млн
11,0 ± 0,2
< 30
11,0 ± 0,2
< 30
Убедитесь в том, что котел находится в автоматическом режиме, режим
останова контроллера отключен, и
проверки качества горения завершены.
37
Ввод в эксплуатацию
Реле давления воздуха
Настройка реле давления воздуха
Подключите поверенный манометр к
измерительной точке, расположенной
на реле (3). Запустите котел на
минимальной
мощности
(0%).
Измерьте перепад давления на реле
при пуске. Измеренное давление
должно быть 0,8 мбар или выше.
Регулировка давления осуществляется
поворотом циферблата реле (4).
Разница
между
измеренным
давлением и уставкой должно быть
минимум 0,4 мбара.
3
4
Проверка циркуляции воды
Проверку циркуляции воды через котел можно выполнить одним или двумя методами, описанными ниже.
Измерение ∆T
Проверьте перепад температуры на
котле (∆T прям.-обр.) при работе котла
на полную мощность (100%).
Номинальный перепад ∆T составляет
20K и для обеспечения нормальной
работы котла должен быть в пределах
от 15K до
30K.
Фактический проток или расход можно
рассчитать по следующей формуле:
Измерение ∆p
Проверьте перепад давления на
котле (∆p прям.-обр.) при работе насоса котла (котел при этом может
быть выключен). Номинальное значение ∆p для каждого типа котлов
можно найти в таблице ниже. Фактическое ∆p должно быть в пределах:
0,35×Δpnom ≤ ∆P ≤ 1,75×∆pnom . Фактический проток или расход можно
рассчитать по следующей формуле:
38
qфакт. = (∆Tном. / ∆Tизм.) * qном. [м3/ч]
qфакт. = √(∆pизм. / ∆pном.) * qном. [м3/ч]
Ввод в эксплуатацию
Проверка исправности защитных устройств
Прове
ка исправности защитных
устройств
Все защитные устройства необходимо
проверять Стандартно котлы оснащаются следующими защитными устройствами: датчик температуры воды,
реле протока воды, реле минимального давления газа и ионизирующий
электрод Эти устройства необходимо
проверять, как описано далее.
1
Датчик температуры воды (1)
Отсоедините кабель от датчика, когда
котел включен. Это должно привести
к отключению и блокировке котла. 20.
Блокировка должна исчезнуть после
подсоединения кабеля к датчику и перезапуска котла.
2
3
Реле протока (р
асхода) воды (2)
Закройте (очень медленно!) кран на
циркуляции воды в системе во время
работы котла на минимальной мощности.
Как только поток снизится до минимального предела, сработает реле
протока воды, котел отключится и
сработает блокировка 164. Откройте
кран. Выполните ручной сброс котла.
5
4
Реле минимального давления газа
(4)
Закройте газовый кран на котле, находящемся в дежурном режиме ( ).
Соедините тестовый отвод газового
крана (3) для изменения давления к
тестовому отводу реле давления газа
(5).
При достижении давления переключения реле с
аботает блокировка
котла 132. Закройте тестовые отводы
и откройте кран подачи газа.
b
6
Ионизирующий электрод (7)
Отсоедините кабель от ионизирующего электрода на работающем котле.
Сработает блокировка котла 128. Котел будет пытаться перезапустится.
При попытке запуска с отсоединенным
кабелем сработает блокировка 133.
После подсоединения кабеля котел
перезапустится.
Ток ионизации можно измерить
мультиметром (со шкалой в микроамперах), подключив его между самим
электродом и контактом для его подключения.
Ток ионизации всегда должен быть
боль
ше 1,51 мкА. В нормальных условиях он должен быть 8 мкА и выше.
Проверка герметичности газопроводов
Проверьте герметичность газопровода
до котла с помощью мыльного раствора или электронного газоанализатора,
в частности:
• Контрольные точки
• Резьбовые и фланцевые соединения
• Прокладки смесительной системы и т.п.
Отключение котла
Если котел не планируется использовать длительное время, отключите его
в следующем порядке:
• Переключите котел в дежурный
режим ( ).
• Выключите котел выключателем
(6).
• Отсоедините котел от электрической сет
и выключением коммутирующего устройства в помещении котельной.
• Перекройте подачу газа на котел.
b
7
7
39
Ввод в эксплуатацию
Проверка исправности защитных устройств
8
9
Датчик температуры обратной
воды (8)
Отсоедините кабель от датчика, когда
котел включен.
Это должно привести к отключению и
блокировке котла. 40.
Блокировка должна исчезнуть после
подсоединения кабеля к датчику и перезапуска котла.
40
Датчик температуры дымовых
газов (9)
Отсоедините кабель от датчика, когда
котел включен. Это должно привести
к отключению и блокировке кот
ла. 28.
Блокировка должна исчезнуть после
подсоединения кабеля к датчику и перезапуска котла.
Ввод в эксплуатацию
Акт ввода в эксплуатацию
Акт ввода в эксплуатацию TRIGON XXL
Проект
Тип котла
Проект
Серийный номер
Адрес
Год выпуска
Город
Номинальная нагрузка (Hi)
[кВт]
Дата
Номинальная мощность
[кВт]
Инженер
Система
Давление воды
[бар]
pH воды
[-]
Жесткость воды
[°dH]
Хлориды в воде
[мг/л]
Вода ΔT полная нагрузка
[°C]
Вода Δpкотла
Настройка насоса
[кПа]
На крыше
На первом этаже
Установка:
Основание
Другое: .........................
Низкоскоростн
й коллектор
Гидравлическая система:
[-]
Пластинчатый теплообменник
Другое: .........................
□
□
□
□
□
□
□
Защитные устройства
Верхний предел
Настройка защитного термореле
Уставка реле минимального давления газа
[°C]
Датчик температуры прямой воды
[°C]
Датчик температуры обратной воды
□
□
□
□
[мбар] Датчик температуры дымовых газов
Время розжига горелки
[сек]
Реле давления воздуха
Анализ горения
нагрузка 100%
Расход газа
Давление газа
CO2 запальной горелки
O2 запальной горелки
CO запальной горелки
NOx запальной горелки
O2 главной горелки
O2 главной горелки
O главной горелки
NOx главная горелка
Tатм.
Tдым.
Tводы, прям.
Tводы, обр.
Ток ионизации
Pвентил.
Pверх. пан.
Pкам. гор.
Комментарии
[м3/ч]
[мбар]
[%]
[%]
[млн-1]
[млн-1]
[%]
[%]
[млн-1]
[млн-1]
[°C]
[°C]
[°C]
[°C]
[мкA]
[мбар]
[мбар]
[мбар]
нагрузка 50%
мин. нагрузка
[м3/ч]
[мбар]
[%]
[%]
[млн-1]
[млн-1]
[%]
[%]
[млн-1]
[млн-1]
[°C]
[°C]
[°C]
[°C]
[мкA]
[мбар]
[мбар]
[мбар]
[м3/ч]
[мбар]
[%]
[%]
[млн-1]
[млн-1]
[%]
[%]
[млн-1]
[млн-1]
[°C]
[°C]
[°C]
[°C]
[мкA]
[мбар]
[мбар]
[мбар]
41
Техническое обслуживание
Контрольный лист
Техническое обслуживание котла должно проводиться только уполномоченным
персоналом.
Для об
еспечения продолжительной и
безопасной работы котла его необходимо проверять не реже одного раза в год.
По результатам проверки должен заполняться акт технического обслуживания
котла (пример акта смотрите в конце
главы).
Контрольный лист
В процессе проверок должны проводиться следующие работы. Подробное
описание работ смотрите в соответствующих разделах:
•
•
•
•
•
•
•
•
•
•
Замена электродов розжига и ионизации;
Очистка конденсатоприемника;
Очистка и заполнение сифона и отстойника.
Проверка давления воды в системе;
Проверка
качества подаваемой
воды и воды в системе;
Проверка протока воды через котел;
Проверка/регулировка
качества
горения на полной и минимальной
мощности с помощью анализатора
горения;
Замена электродов
В котле имеются следующие электроды:
электрод розжига (1) и электрод ионизации (2) с правой стороны задней панели котла.
второй электрод ионизации, под крышкой, на левой передней панели котла.
1
2
2
42
•
Проверка давления газа в котле;
Проверка герметичности всех соединений и тестовых подсоединений;
Проверка исправности всех защитных устройств;
Заполнение акта технического обслуживания.
ПРЕДУПРЕЖДЕНИЕ: Если при проведении работ потребуется разборка газопровода, по окончании
работ его необходимо собрать
обратно без напряжений в соединениях и проверить на наличие
утечек.
Техническое обслуживание
Контрольный лист
Давление и качество воды
Следите за тем, чтобы качество
и
давление
воды
отвечало
установленным требованиям. Более
подробную информацию смотрите в
главе «Ввод в эксплуатацию: вода и
гидравлическая система».
Проток воды
Убедитесь в том, что проток воды
через котел нах
дится в допустимых
пределах.
Более
подробную
информацию смотрите в главе «Ввод
в эксплуатацию: проверка циркуляции
воды».
Анализ горения
Проверьте качество горения при
полной и минимальной нагрузке и
отрегулируйте его при необходимости.
Также
рекомендуется
провести
проверку и при работе на 50%
мощности.
Более
подробную
информацию смотрите в главе «Ввод
в эксплуатацию: анализ горения».
Давление газа
Проверьте динамическое давление
подачи газа в котел при работе
котла на полную мощность. В
случае каскада котлов проверку
проводят на всех к
тлах при работе
на полную мощность. Необходимые
значения смотрите в технических
характеристиках.
Проверка герметичности газопроводов
Проверьте герметичность всех фитингов мыльным раствором или электронным анализатором, в частности:
• Контрольные точки
• Резьбовые фитинги
• Прокладки смесительной системы и т.п.
Защитные устройства
Проверьте исправность всех подключенных защитных устройств. Для получения дополнительной информации
смотрите главу «Ввод в эксплуатацию»
Функция: Функциональные проверки
защитных устройств».
Очистка
онденсатоприемника
• Откройте смотровой лючок (2)
для доступа к внутренней части
конденсатоприемника.
• Очистите конденсатоприемник.
• Закройте смотровой лючок.
3
4
Очистка и заполнение сифона и
отстойника
• Отсоедините отстойник (3) и сифон (4) от патрубка для слива
конденсата;
• Откройте отстойник, открутив
крышку против часовой стрелки.
• Очистите его, после чего заполните чистой водой.
• Установите отстойник с сифоном
обратно в первоначальное положение.
43
Техническое обслуживание
Акт технического обслуживания
Акт техническог
обслуживания котла TRIGON XXL
Проект
Тип котла
Проект
Серийный номер
Адрес
Год выпуска
Город
Номинальная нагрузка (Hi)
[кВт]
Дата
Номинальная мощность
[кВт]
Инженер
Система
Давление воды
pH воды
Жесткость воды
Хлориды в воде
[бар]
[-]
[°dH]
[мг/л]
[°C]
Вода ΔT полная нагрузка
Вода Δpкотла
Настройка насоса
Защитные устройства
[кПа]
[-]
Верхний предел
[°C]
Датчик температуры прямой воды
Настройка защитного термореле
[°C]
Датчик температуры обратной воды
Уставка реле минимального давления газа
□
□
□
□
[мбар] Датчик температуры дымовых г
зов
Время розжига горелки
[сек]
Реле давления воздуха
Анализ горения
нагрузка 100%
Расход газа
Давление газа
CO2 запальной горелки
O2 запальной горелки
CO запальной горелки
NOx запальной горелки
O2 главной горелки
O2 главной горелки
O главной горелки
NOx главная горелка
Tатм.
Tдым.
Tводы, прям.
Tводы, обр.
Ток ионизации
Pвентил.
Pверх. пан.
Pкам. гор.
Комментарии
44
нагрузка 50%
[м /ч]
[мбар]
[%]
[%]
[млн-1]
[млн-1]
[%]
[%]
[млн-1]
[млн-1]
[°C]
[°C]
[°C]
[°C]
[мкA]
[мбар]
[мбар]
[мбар]
3
мин. нагрузка
[м /ч]
[мбар]
[%]
[%]
[млн-1]
[млн-1]
[%]
[%]
[млн-1]
[млн-1]
[°C]
[°C]
[°C]
[°C]
[мкA]
[мбар]
[мбар]
[мбар]
3
[м3/ч]
[
бар]
[%]
[%]
[млн-1]
[млн-1]
[%]
[%]
[млн-1]
[млн-1]
[°C]
[°C]
[°C]
[°C]
[мкA]
[мбар]
[мбар]
[мбар]
Неполадки
Перечень кодов ошибок
v
В случае блокировки на дисплее появится индикатор предупреждения ( ) и будет мигать код ошибки. Перед сбросом котла
необходимо выявить и устранить причину неполадки. В таблице ниже приведены все коды ошибок с их возможными причинами.
Для сброса неполадки преобразователя частоты необх одимо полностью отключить котел.
Перед обратным включением питания дождитесь, когда дисплей преобразователя частоты полностью потухнет.
При быстром
отключении/включении неполадка может сохраниться.
Перечень кодов ошибок
LMS14 поддерживает 16-битные коды ошибок. Если ошибка будет не 16-битной, соответствующий 8-битный код ошибки
будет отображаться в скобках.
Код
Описание неполадки
ошибки
Код
Описание неполадки
ошибки
0
Ошибок нет
109
Контроль температуры котла
10
Ошибка датчика наружной температуры
110
Блокировка SLT
20
Ошибка датчика температуры 1 котла
111
Отключение TL
26
Ошибка датчика температуры прямой воды
121
Контроль температуры 1 прямой воды (HC1)
28
Ошибка датчика температуры дымов
ых газов
122
Контроль температуры 2 прямой воды (HC2)
30
Ошибка датчика температуры прямой воды 1
125
Ошибка контроля насоса
32
Ошибка датчика температуры прямой воды 2
126
Контроль зарядки DHW
38
Ошибка первичного контроллера датчиков
температуры воды
127
Температура подавления легионеллы не
достигнута
40
Ошибка датчика температуры обратной воды 1
128
Срыв пламени во время работы
46
Ошибка датчика температуры обратной воды
каскада
129
Ошибка вентилятора или ошибка LP
47
Ошибка датчика температуры общей обратной
воды
130
Превышение температуры
ымовых газов
131
Неполадка горелки
50
Ошибка датчика температуры 1 DHW
132
Ошибка GP или LP
52
Ошибка датчика температуры 2 DHW
133
Отсутствие факела за безопасное время
54
Ошибка первичного контроллера датчика DHW
146
Общая ошибка конфигурации
57
Ошибка датчика температуры циркуляции DHW
151
Внутренняя ошибка
60
Ошибка датчика температуры в помещении 1
152
Ошибка параметрирования
65
Ошибка датчика температуры в помещении 2
153
Ручная блокировка
70
Ошибка датчика температуры 1 накопительного
бака
160
Ошибка вентилятора
162
Ошибка LP, не замыкается
Раз
омкнут контакт реле протока котла
71
Ошибка датчика температуры 2 накопительного
бака
164
166
Ошибка LP, не размыкается
72
Ошибка датчика температуры 3 накопительного
бака
171
Включен сигнальный контакт H1 или H4
73
Ошибка датчика температуры 1 коллектора
172
Включен сигнальный контакт H2 (EM1, EM2 или
EM3) или H5
74
Ошибка датчика температуры 2 коллектора
173
Включен сигнальный контакт H6
82
Конфликт адресов LPB
174
Включен сигнальный контакт H3 или H7
83
Короткое замыкание проводов BSB
178
Предел термостата контура отопления 1
84
Конфликт адресов BSB
179
Предел
ермостата контура отопления 2
85
Ошибка радиосвязи BSB
183
Устройство в режиме параметрирования
91
Ошибка блокировки информации в EEPROM
193
Ошибка контроля насоса после розжига горелки
98
Ошибка модуля расширения 1 (общая ошибка)
216
Неполадка котла
99
Ошибка модуля расширения 2 (общая ошибка)
217
Ошибка датчика
100
2 master-таймера (LPB)
241
Датчик прямой воды, ошибка солнечного датчика
102
Master-таймер без резерва (LPB)
242
Датчик обратной воды, ошибка солнечного датчика
103
Ошибка связи
243
Ошибка датчика температуры воды в бассейне
105
Уведомление о техни
еском обслуживании
270
Предельная функция
45
Неполадки
Перечень кодов ошибок
Код технического обслуживания
Код
Описание неполадки
ошибки
317
Частота тока в питающей сети вне допуска
320
Ошибка датчика температуры зарядки DHW
324
Одинаковые датчики BX
325
Одинаковые датчики BX / модуля расширения
326
Одинаковые датчики BX / узла смешения
327
Код технического обслуживания
код технического обслуОписание технического обслуживания
живания
1
Превышено количество часов работы
горелки
Одинаковые функции модуля расширения
2
Превышено количество
запусков горелки
328
Одинаковые функции узла смешения
3
329
Одинаковые функции модуля расширения / узла
смешения
Превышен интервал технического
обслуживания
5
Давление воды в 1-м отопительном
контуре очень низкое
(ниже нижнего предела давления 1)
10
Замените батарейки наружного датчика
18
Давление воды во 2-м отопительном
контуре очень низкое
(ниже нижнего предела давления 2)
22
Давление воды в 3-м отопительном
контуре очень низкое
(ниже нижнего предела давления 3)
25
Запущено автоматическое заполнение
водой
330
Нет функций у датчика BX1
331
Не
т функций у датчика BX2
332
Нет функций у датчика BX3
333
Нет функций у датчика BX4
334
Нет функций у датчика BX5
335
Нет функций у датчика BX21 (EM1, EM2 или EM3)
336
Нет функций у датчика BX22 (EM1, EM2 или EM3)
337
Нет функций у датчика BX1
338
Нет функций у датчика BX12
339
Насос коллектора Q5 недоступен
340
Насос коллектора Q16 недоступен
341
Датчик солнечного коллектора B6 недоступен
342
Датчик DHW B31 недоступен
343
Солнечная интеграция недоступна
344
Буфер элемента контроля солнца K8 недоступен
345
Элемент контроля солнца бассейна K18 недоступен
346
Насос твердотопливного кот
а Q10 недоступен
347
Датчик сравнения твердотопливного котла недоступен
348
Ошибка адреса твердотопливного котла
349
Обратный клапан буфера Y15 недоступен
350
Адресный датчик буфера
351
Ошибка адреса первичного контроллера /
системного насоса
352
Ошибка адреса безнапорного коллектора
353
Общий датчик прямой воды B10 недоступен
371
Контроль температуры прямой воды 3 (контур
отопления 3)
372
Предел термостата контура отопления 3
373
Ошибка модуля расширения 3 (общая ошибка)
386
Скорость вентилятора вне диапазона
388
Ошибка DHW - нет функции
426
Обратны
й сигнал заслонки дымовых газов
427
Конфигурация заслонки дымовых газов
431
Датчик первичного теплообменника
432
Функциональная земля не подключена
433
Температура первичного теплообменника очень
высокая
46
Характеристики датчиков
NTC 10kΩ датчик температуры
(прямой и обратной воды, дымовых газов, DHW и коллектора)
60000
55000
При измерении значений сопротивления котел должен быть отключен от
сети. Измерения следует проводить
как можно ближе к датчику для минимизации погрешностей.
50000
45000
Сопротивление
Resistance [Ohm][Ω]
Диаграммы показывают характе
истики
датчика для всех датчиков котла и
факультативных датчиков, доступных
в
комплектах
принадлежностей.
Диаграммы содержат средние значения,
т.к. параметры всех датчиков будут
различаться в пределах допуска.
40000
35000
30000
25000
20000
15000
10000
5000
0
-10
0
10
20
30
40
50
60
70
80
90 100 110
Температура
[°C]
Tem perature [ºC]
NTC 1kΩ датчик температуры
(наружный датчик)
7500
7000
6500
Сопротивление
Resistance [Ohm] [Ω]
6000
5500
5000
4500
4000
3500
3000
2500
2000
1500
1000
500
-20
-10
0
10
20
30
40
Температура
[°C]
Tem perature [ºC]
47
Электрическая схема
Электрические подключения SE 650 - SE 1200
ECO 650 - ECO 1050
EVO 700 - EVO 1100
Электриче
ские подключения
соединения
Описание
L1 / L2 / L3 /
N / PE
Электропитание котла
230 В перем. тока +10% -15%
50 Гц 16 А
QX2 резерв
9
10 (N)
13 / 14 / 15 /
16 / 17 / 18
29 (Общий)
30 (Сигнализация)
31 (OK)
32 (Общий)
33 (ON)
34 (OFF)
102
103 (земля)
104
105 (земля)
108
109 (земля)
110
111 (земля)
112
113 (земля)
114
115 (земля)
116
117 (земля)
118
119 (земля)
120
121 (земля)
130 (CL+)
131 (CL-)
132 (G+)
137
138 (земля)
139 (DB)
140 (MB)
141
142
MR (реле)
2 T1
4 T2
6 T3
14 N0
F1 (предохранитель)
48
Вход неполадки
230 В AC
5 мА...1 А, cos φ > 0,6
Сигнал OK/Сигнализация (беспотенциальный)
230 В перем. тока +10% -15%
Макс. 10 мА...1 А
Рабочий сигнал (беспотенциальный)
230 В перем. тока +10% -15%
Макс. 10 м
А...1 А
BX1, свободно программируемый
l ≤ 120 м NTC 10 KΩ
BX2 Температура коллектора Датчик
l ≤ 120 м NTC 10 KΩ
B3/B38 Термостат DHW / датчик температуры
(Параметр) l ≤ 10 м 5 В пост. тока
В9 Датчик наружной температуры
l ≤ 120 м NTC 1 KΩ
Н1 Внешняя команда
0,15-10 В DC l ≤ 10 м Ri > 100 кΩ
Н4, свободно программируемый
Н5 Котел ВКЛ
l ≤ 120 м 5 В пост. тока / 2 мА
Насос с регулируемой скоростью
0—10 В пост. тока Imax. 2,7 мА SELV
Обозначение мощности котла
0—10 В пост. тока Imax. 2,7 мА SELV
QAA75
Внутрикомнатный модуль
ШИМ насоса
Шина LPB
Пуск/стоп
Насос с регулируемой скоростью
Макс. 24 В AC, макс. 10 мА...1
А
Насос котла/байпаса
AC3 380/400 В AC 4 кВт макс.
См. стр. 26
6 А DC, 500 В (10,3×38 мм)
Тип SE 650 - SE 750
Тип ECO 650 - ECO 750
Тип EVO 700 - EVO 800
10 А DC, 500 В (10,3×38 мм)
Тип SE 850 - SE 1200
Тип ECO 850 - ECO 1050
Тип EVO 900 - EVO 1100
Датчик давления
воды
Pmin. реле воздуха
Датчик температуры
обратной воды
Датчик температуры
прямой воды
Шина LPB
Pmin. воздушного
клапана
Блок управления
каскада
Вентилятор
Датчик Холла
Дисплей
1 При подключении удалите перемычку или резистор
2 Факультативно
3 Для подключения термостата следует использовать высококачественные
материалы!
(например, с позолоченными к
онтактами)
4 При подключении насоса с регулируемой скоростью
(только для моделей ECO и EVO)
Провод MR A1 → 7 подключается к MR A1 → 5
Провод MR A2 → 8 подключается к MR A2 → 6
- Низковольтные контакты в соответствии со стандартами и директивами для SELV
(Безопасное очень низкое напряжение).
- Поперечное сечение кабелей для наружных датчиков. См. таблицу
Насос котла/
Байпасный насос
См. принадлежности
Насос котла/
Байпасный насос
См. принадлежности
линейный фильтр
Преобразователь
частоты
линейный фильтр
Белый
Черный
Запальный
газовый
клапан
Внутренний п
редохранитель LMS — 2 шт. T6,3A H 250 В
Суммарный потребляемый ток при 230 В AC, T 25 — 5 А
Реле минимального
давления газа
йынсарК
Выключатель
Ионизация главной
горелки
Электрод розжига
запальной горелки
Преобразователь
Преобразователь
зажигания
зажигания
Вход
неполадки
Ионизационная
запальная горелка
Защита от погасания факела
Рабочий
сигнал
OK
Сигнализация
СигналиСигнал
зация
Общий
Общий
ОТКЛ
ВКЛ
Пуск / Стоп
Насос с регулируемой скоростью
Главный газовый
кран
Электрическая схема
SE 650 - SE 1200
ECO 650 - ECO 1050
EVO 700 - EVO 1100
49
Датчик температуры
дым
овых газов
Датчик температуры
коллектора
Датчик наружной
температуры
Термостат DHW или
датчик температуры
DHW
(параметр)
Внешнее влияние 0-10
0,15-10 В DC
Реле протока
(расхода)
Обозначение мощности котла
0-10 В DC lмакс. 2,7 м SELV
Насос с регулируемой скоростью
0-10 В DC lмакс. 2,7 м SELV
Котел ВКЛ
Электрическая схема
Электрические подключения SE 1300 - SE 1900
ECO 1150 - ECO 1600
EVO 1200 - EVO 1700
Электрические подключения
соединения
Описание
L1 / L2 / L3 /
N / PE
Электропитание котла
230 В перем. тока +10% -15%
50 Гц 16 А
QX2 резерв
9
10 (Н)
13 / 14 / 15 /
16 / 17 / 18
29 (Общий)
30 (Сигнализация)
31 (OK)
32 (
Общий)
33 (ON)
34 (OFF)
102
103 (земля)
104
105 (земля)
108
109 (земля)
110
111 (земля)
112
113 (земля)
114
115 (земля)
116
117 (земля)
118
119 (земля)
120
121 (земля)
130 (CL+)
131 (CL-)
132 (G+)
137
138 (земля)
139 (DB)
140 (MB)
141
142
MR (реле)
2 T1
4 T2
6 T3
14 N0
F1 (предохранитель)
50
Вход неполадки
230 В AC
5 мА...1 А, cos φ > 0,6
Сигнал OK/Сигнализация (беспотенциальный)
230 В перем. тока +10% -15%
Макс. 10 мА...1 А
Рабочий сигнал (беспотенциальный)
230 В перем. тока +10% -15%
Макс. 10 мА...1 А
BX1, свободно программируемый
l ≤ 120 м NTC 10 KΩ
BX2 Температура коллектора Датчик
l ≤ 120 м NTC 10 KΩ
B3/B38 Термостат DHW / датчик температуры
(Параметр) l ≤ 10 м 5 В пост. тока
В9 Датчик наружной температуры
l ≤ 120 м NTC 1 KΩ
Н1 Внешняя команда
0,15-10 В DC l ≤ 10 м Ri > 100 кΩ
Н4, свободно программируемый
Н5 Котел ВКЛ
l ≤ 120 м 5 В пост. тока / 2 мА
Насос с регулируемой скоростью
0—10 В пост. тока Imax. 2,7 мА SELV
Обозначение мощности котла
0—10 В пост. тока Imax. 2,7 мА SELV
QAA75
Внутрикомнатный модуль
ШИМ насоса
Шина LPB
Пуск/стоп
Насос с регулируемой скоростью
Макс. 24 В AC, макс. 10 мА...1 А
Насос котла/байпаса
AC3 380/400 В AC 11 кВт макс.
См. стр. 26
10 А DC, 500 В (10,3×38 мм)
Тип SE 1300 - SE 1500
Тип ECO 1150 - ECO 1300
Тип EVO 1200 - EVO 1400
15 А DC, 500 В (10,3×38 мм)
Тип SE 1700 - SE 1900
Тип ECO 1450 - ECO 1600
ип EVO 1550 - EVO 1700
Датчик давления
воды
Pmin. реле воздуха
Датчик температуры
обратной воды
Датчик температуры
прямой воды
Шина LPB
Pmin. воздушного
клапана
Вентилятор
Датчик Холла
Блок управления
каскада
Дисплей
1 При подключении удалите перемычку или резистор
2 Факультативно
3 Для подключения термостата следует использовать высококачественные
материалы!
(например, с позолоченными контактами)
4 При подключении насоса с регулируемой скоростью
(только для моделей ECO и EVO)
Провод MR A1 → 7 подключается к MR A1 → 5
Провод MR A2 → 8 подключается к MR A2 → 6
-
изковольтные контакты в соответствии со стандартами и директивами для SELV
(Безопасное очень низкое напряжение).
- Поперечное сечение кабелей для наружных датчиков. См. таблицу
ОСТОРОЖНО!
ВНЕШНЕЕ НАПРЯЖЕНИЕ
Насос котла/
Байпасный насос
См. принадлежности
линейный фильтр
Преобразователь
частоты
линейный фильтр
Красный
Белый
Черный
Запальный
газовый
клапан
Внутренний предохранитель LMS — 2 шт. T6,3A H 250 В
Суммарный потребляемый ток при 230 В AC, T 25 — 5 А
Реле минимального
давления газа
Выключатель
Ионизация главной
горелки
Электрод розжига
запальной горелки
Преобразователь
зажигания
Вход
неполадки
Коричневый
Синий
Красный
Белый
Проверка герметичности
Ионизационная
запальная горелка
Рабочий
сигнал
OK
Аварийный
Сигналисигнал
зация
Общий
ОТКЛ
Общий
ВКЛ
Пуск / Стоп
Насос с регулируемой скоростью
Главный газовый
кран
Защита от
погасания
факела
Электрическая схема
SE 1300 - SE 1900
ECO 1150 - ECO 1600
EVO 1200 - EVO 1700
51
Датчик температуры
дымовых газов
Датчик температуры
коллектора
Датчик наружной
температуры
Термостат DHW или
датчик температуры
DHW
(параметр)
Внешнее влияние 0-10
0,15-10 В DC
Реле протока
(расхода)
Обозначение мощности котла
0-10 В DC lмакс. 2,7 м SELV
Насос с регулируемой скоростью
0-10 В DC lмакс. 2,7 м SELV
Котел ВКЛ
Декларация соответствия
Декларация соответствия
Elco BV, Hamstraat 76, 6465 AG Kerkrade (NL),
Заявляет, что изделие
TRIGON XXL
соответствует следующим стандартам:
EN 15502-1
EN 15502-2-1
EN 55014-1 / -2
EN 61000-3-2 /-3
EN 60335-1/ -2
и отвечает требованиям следующих директив:
1992/42/EEC (Директива по КПД котлов)
2016 / 426 / EEC (Директива по газовому оборудованию)
2014/35/EU (Директива «Низкое напряжение»)
2014/30/EU (Директива «Электромагнитная совместимость»)
Данное изделие об
значается с маркировкой СЕ:
CE 0063CR3158
Kerkrade, 30-07-2018
A.J.G. Schuiling
Plant Manager
52
Примечания
-------------------------------------------
-------------------------------------------
-------------------------------------------
------------------------------------------
-------------------------------------------
-------------------------------------------
-------------------------------------------
-------------------------------------------
-------------------------------------------
-------------------------------------------
-------------------------------------------
-------------------------------------------
------------------------------------------
-------------------------------------------
-------------------------------------------
-------------------------------------------
-------------------------------------------
------------------------------------------
-------------------------------------------
-------------------------------------------
-------------------------------------------
-------------------------------------------
-------------------------------------------
-------------------------------------------
-------------------------------------------
-------------------------------------------
------------------------------------------
-------------------------------------------
-------------------------------------------
------------------------------------------
-------------------------------------------
-------------------------------------------
-------------------------------------------
-------------------------------------------
-------------------------------------------
-------------------------------------------
-------------------------------------------
------------------------------------------53
Примечания
-------------------------------------------
-------------------------------------------
---------------------------------
----------
------------------------------------------
-------------------------------------------
-------------------------------------------
-------------------------------------------
-------------------------------------------
-------------------------------------------
-------------------------------------------
-------------------------------------------
-------------------------------------------
------------------------------------------
-------------------------------------------
-------------------------------------------
-------------------------------------------
-------------------------------------------
------------------------------------------
-------------------------------------------
-------------------------------------------
-------------------------------------------
-------------------------------------------
-------------------------------------------
-------------------------------------------
-------------------------------------------
-
------------------------------------------
------------------------------------------
-------------------------------------------
-------------------------------------------
------------------------------------------
-------------------------------------------
-------------------------------------------
-------------------------------------------
-------------------------------------------
-------------------------------------------
-------------------------------------------
-------------------------------------------
-------------------------------------------
54
Примечания
-------------------------------------------
-------------------------------------------
-------------------------------------------
------------------------------------------
-------------------------------------------
-------------------------------------------
-------------------------------------------
-------------------------------------------
--------------------------------
-----------
-------------------------------------------
-------------------------------------------
-------------------------------------------
------------------------------------------
-------------------------------------------
-------------------------------------------
-------------------------------------------
-------------------------------------------
------------------------------------------
-------------------------------------------
-------------------------------------------
-------------------------------------------
-------------------------------------------
-------------------------------------------
-------------------------------------------
-------------------------------------------
-------------------------------------------
------------------------------------------
-------------------------------------------
-------------------------------------------
------------------------------------------
-------------------------------------------
-
------------------------------------------
-------------------------------------------
-------------------------------------------
-------------------------------------------
-------------------------------------------
-------------------------------------------
------------------------------------------55
Service:
ELCO GmbH
DE - 72379 Hechingen
ELCO Austria GmbH
AT - 2544 Leobersdorf
ELCOTHERM AG
CH - 7324 Vilters
ELCO BV
NL - 6465 AG Kerkrade
ELCO Belgium SA
BE - 1070 Brussel
ELCO Italia S.p.A.
IT - 31023 Resana
ELCO United Kingdom
UK - Basildon, Essex, SS15 6SJ
ELCO France / Chaffoteaux SAS
FR - 93521 Saint-Denis Cedex
Gastech-Energi A/S
DK - 8240 Risskov
Ariston Thermo Rus LLC
RU – 127015 Moscow
Ariston Thermo Türkiye
TR – 34775 Istanbul
Ariston Thermo Polska Sp. z o.o.
PL – 31 408 Kraków
Ariston Thermo Hungária Kft.
HU - 1135 Budapest
Ariston Thermo România
RO - 010505 Bucharest
Ariston Thermo CZ
CZ – 198 00 Praha 9
www.elco.net
Priročnik za uporabo in name
stitev
za pooblaščeno tehnično osebje
TRIGON XXL
Originalna Navodila
09/2018
420010891500
SL
58
Vsebina
Varnost............................................................... 60
Splošni predpisi..................................... 60
Standardi in predpisi............................. 60
Dodatni nacionalni standardi................ 60
Montaža.............................................................. 62
Principi uporabe....................................... 62
Tablice s podatki....................................... 62
Zgradba kotla........................................... 63
Tehnični podatki................................................ 64
TRIGON XXL SE 650 - SE 1200 . ........... 64
TRIGON XXL SE 1300 - SE 1900 . ......... 65
TRIGON XXL ECO 650 - ECO 1050........ 66
TRIGON XXL ECO 1150 - ECO 1600...... 67
TRIGON XXL EVO 700 - EVO 1100........ 68
TRIGON XXL EVO 1200 - EVO 1700...... 69
Dimenzije SE 650 - SE 1200.................... 70
ECO 650 - ECO 1050..........
.................... 70
EVO 700 - EVO 1100............................... 70
Dimenzije SE 1300 - SE 1500.................. 71
ECO 1150 - ECO 1300 . .......................... 71
Dimenzije SE 1700 - SE 1900.................. 72
ECO 1450 - ECO 1600 ........................... 72
Dimenzije EVO 1200 - EVO 1700 ........... 73
Vzdrževanje . ..................................................... 96
Kontrolni seznam..................................... 96
Tlak in kakovost vode............................... 97
Pretok vode.............................................. 97
Analiza zgorevanja................................... 97
Plinski tlak................................................ 97
Nadzor tesnjenja dovoda plina................. 97
Varnostne naprave................................... 97
Protokol vzdrževanja . ............................. 98
Blokade.............................................................. 99
Vrednosti senzorjev .......................................1 0 1
Diagram
ožičenja.............................................1 0 2
Izjava o skladnosti...........................................1 0 6
Opomba............................................................1 0 7
Obseg dobave.................................................... 74
Standarden kotel...................................... 74
Dodatna oprema...................................... 74
Namestitev......................................................... 75
Transport.................................................. 75
Transportiranje kotla................................ 77
Odstranitev ohišja.................................... 78
Namestitev kotla....................................... 79
Priključitev kotla....................................... 80
Hidravlična priključitev.............................. 80
Priključek za dovod zraka........................ 80
Montaža sifona in zbiralnika za nečistoče............................................................. 81
Priključitev plina...
.................................... 82
Zahteve za črpalko................................... 82
Priključitev zrakovodnega/dimovodnega sistema......................................................... 83
Dimenzioniranje posameznega sistema.. 85
Prvi zagon.......................................................... 86
Voda in hidravlični sistem......................... 86
Tlak vode.................................................. 86
Hidravlični sistem..................................... 86
Priprava kotla na prvi zagon..................... 87
Zaslon/programiranje............................... 89
Upravljalni elementi.................................. 90
Analiza zgorevanja................................... 91
Stikalo za zračni tlak................................ 92
Preverjanje delovanja varnostnih naprav .9 3
Senzor temperature pretoka zraka ......... 93
Stikalo pretoka vode ............................... 93
Stikalo minimalnega plinskega tlaka ....... 93
Protokol prvega zagona ....
...................... 95
59
Varnost
Splošni predpisi
Splošni predpisi
V tem dokumentu so pomembne informacije, ki so osnova za varno in zanesljivo namestitev, prvi zagon in delovanje
kotla TRIGON XXL. Vse dejavnosti, ki so
opisane v tem dokumentu, lahko izvajajo
zgolj pooblaščena podjetja.
Ta dokument lahko spremenimo brez
predhodnega obvestila. Ne sprejemamo
nikakršne obveznosti prilagoditve predhodno dobavljenih izdelkov za vključitev
teh sprememb.
Pri menjavi sestavnih delov kotla lahko
uporabljate samo originalne nadomestne
dele, sicer boste razveljavili garancijo.
Uporaba
Kotel TRIGON XXL se lahko uporablja
samo z namenom ogrevanja stanovanjskih površin ali ogrevanja vode. Kotel
morate priključiti na zaprte sisteme z
najvišjo dovoljeno temperaturo 100 ºC
(zgornja meja), pri čemer najvišja nastavitev temperature znaša 90 ºC.
Standardi in predpisi
Med namestitvijo in uporabo kotla morate upoštevati vse veljavne standarde
(lokalne in evropske):
• Lokalne gra
dbene predpise za namestitev zrakovodnih/dimovodnih
sistemov
• Predpise za priključitev kotlov v električno omrežje
• Predpise za priključitev kotlov na lokalni plinovod
• Standarde in predpise glede varnostne opreme za ogrevalne sisteme
• Kakršne koli druge dodatne lokalne zakone/predpise, povezane z
namestitvijo in uporabo ogrevalnih
sistemov.
60
TA kotel ima certifikat CE in izpolnjuje zahteve mednarodnih in evropskih
standardov:
•
2016/426/EEC Uredba za plinske
naprave
•
1992/42/EEC Direktiva o zahtevah
za učinkovitost delovanja kotlov
•
2014/30/EU Direktiva o elektromagnetni združljivosti (EMC)
•
2014/35/EU Direktiva o nizkonapetostni opremi
•
EN 15502-1 Plinski kotli za ogrevanje – del 1: splošne zahteve in preizkusi.
•
•
•
•
•
EN 15502-2-1 (Plinski kotli za ogrevanje – del 2-1: specifični standard
za gospodinjske aparate tipa C ter
gospodinjske aparate tipa B2, B3 in
B5 z nominalnim dovodom toplote
pod 1000
kW).
EN 55014-1 Elektromagnetna združljivost - zahteve za gospodinjske
aparate, električna orodja in podobne naprave, del 1: emisije.
EN 55014-2 Elektromagnetna združljivost - zahteve za gospodinjske
aparate, električna orodja in podobne naprave, del 2: odpornost - standardna za družino izdelkov.
EN 61000-3-2 Elektromagnetna
združljivost (EMC) - del 3-2: omejitve — omejitev emisij harmoničnega toka (vhodni tok opreme 16 A na
fazo).
•
EN 61000-3-3 Elektromagnetna
združljivost (EMC) - del 3-3: omejitve sprememb napetosti, nihanja
napetosti in flikerja v nizkonapetostnih javnih električnih omrežjih za
opremo z nazivnim tokom <= 16 A
na fazo brez potrebe po pogojnem
priklopu.
•
EN 60335-1 Gospodinjski in podobni električni aparati - Varnost - del 1:
splošne zahteve.
•
EN 60335-2-102 Gospodinjski in
podobni električni aparati - Varnost
- del 2-102: posebne zahteve za
naprave na plin, kurilno olje ali trda
goriva z električnimi priključki.
•
EN 50165 Ele
ktrična oprema neelektričnih naprav za gospodinjske in
podobne namene. Varnostne zahteve.
•
EN 12828/DIN 4751-2 Ogrevalni
sistemi v stavbah – dizajn za ogrevalne sisteme s toplo vodo/sisteme
tople vode pri srednji temperaturi
(mthws) do najvišje pretočne temperature kotla do 120 °C - specifikacija
za zaprte sisteme s termostatskim
nadzorom – varnostno opremo.
Dodatni nacionalni standardi
Švica:
SVGW
Nemčija:
RAL - UZ 61 / DIN 4702-8, Energieeinsparverordnung (EnEV DIN 4701-10),
BimSchV
Avstrija:
Kurzgutachten 15a V-BG
Belgija:
certifikat NOx
Francija:
Arrête du 02 Aout 1977 - tlak plina
300 mbar s kompletom dodatkov
(samo TRIGON XXL ECO + EVO)
Italija
Certifikacija z zvezdico „Legge 10“ 1991
Varnost
Informacije za monterje in vzdrževalce
Uporaba naprave za namene,
ki niso navedeni tukaj, je strogo
prepovedana.
Proizvajalec ne odgovarja za morebitno
škodo, ki nastane zaradi neustrezne,
nepravilne in nerazumne uporabe
naprave ali neupoštevanja navodil,
naved
enih v tem priročniku.
Informacije za uporabnika
Namestitev, vzdrževanje in vse
druge posege je treba v celoti
izvesti v skladu z veljavnimi
pravnimi predpisi in navodili proizvajalca.
Zaradi nepravilne namestitve se lahko
poškodujejo ljudje, živali in stvari;
proizvajalec ne odgovarja za morebitno
škodo, ki nastane zaradi tega.
Naj redno preverja sistem tlaka vode, pri
čemer ga poučite, kako ga znova vključi
v sistem in odzrači.
Kako nastaviti temperaturo in določiti nastavitvene točke, da lahko bolj ekonomično in pravilno uporablja sistem.
Naj izvaja redno vzdrževanje sistema v
skladu z zakonodajo.
Da ne sme v nobenem primeru spreminjati nastavitev za dovod zraka za zgorevanje in zgorevanje plina.
Da mora upoštevati opozorila, navedena
v priročniku za uporabo.
Kotel je dobavljen v zaščitni
embalaži.
Ko odstranite ves embalažni
material, preverite, da je naprava
brezhibna in nobeden od njenih delov ne
manjka. V nasprotnem primeru stopite v
stik z dobaviteljem.
V
es embalažni material (sponke,
plastične vrečke, polistirensko
peno itn.) shranite zunaj dosega
otrok, ker je lahko nevaren.
Poučite uporabnika o načinu obratovanja
sistema.
To pomeni, da morate uporabniku zagotoviti priročnik za uporabo in ga obvestiti,
naj ga shrani v bližini naprave.
Uporabnika prav tako opomnite:
Ta izdelek izpolnjuje
zahteve Direktive WEEE
2012/19/EU.
Simbol prečrtanega smetnjaka označuje,
da morate izdelek ob koncu življenjske
dobe odložiti ločeno od običajnih gospodinjskih odpadkov. Odložiti ga morate v
centru za ločeno zbiranje odpadkov, ki
sprejema električne in elektronske naprave, ali pa ga vrniti prodajalcu ob nakupu novega, nadomestnega izdelka.
Uporabnik nosi odgovornost odlaganja
izdelka po koncu njegove življenjske
dobe v ustreznem centru za ločeno zbiranje odpadkov.
Center za ločeno zbiranje odpadkov (ki
uporablja posebne postopke za obdelavo in recikliranje, s pomočjo katerih
učinkovito razstavi in reciklira napravo)
pomaga za
čititi okolje tako, da reciklira
material, iz katerega je izdelek narejen.
Za dodatne informacije o sistemih za odlaganje odpadkov obiščite lokalni center
za zbiranje odpadkov ali prodajalca, pri
katerem ste kupili izdelek.
Pred izvajanjem morebitnih
vzdrževalnih del ali popravil na
kotlu, se prepričajte, da ste ga
odklopili iz električnega omrežja tako,
da ste zunanje glavno stikalo preklopili
v položaj »OFF« (Izklopljeno).
Pri vseh popravilih uporabljajte
originalne nadomestne dele.
= nevarnost za zdravje
= nevarnost za opremo
To napravo lahko uporabljajo najmanj 8 let stari otroci
kot tudi osebe z zmanjšanimi fizičnimi, senzoričnimi ali
mentalnimi sposobnostmi oziroma pomanjkanjem izkušenj ali znanja, če jih nadzorujete ali poučite o varni
rabi naprave in razumejo nevarnosti ravnanja z napravo.
Otroci se ne smejo igrati z napravo. Otroci ne smejo čistiti in vzdrževati naprave brez ustreznega nadzora.
61
Montaža
Principi uporabe tablice s podatki
Simboli, u
porabljeni na tablici s
podatki
2
1
S/N
00
26-05-2015
4
3
0000000KE000000000000
10
5
6
7
MAX
8
9
12
13
η
=
gas
mbar
gas
mbar
gas
mbar
11
Q(Hi)
100%
P60/80C
MIN
P30/50C
η
=
min.
16
Principi delovanja
TRIGON XXL je kotel s polno modulacijo.
Krmilna enota kotla samodejno prilagaja
modulacijsko razmerje zahtevam sistema po toploti.
To izvaja prek nadzora hitrosti ventilatorja. Mešalni sistem posledično prilagodi
razmerje plina izbrani hitrosti ventilatorja,
da ohrani najboljšo možno učinkovitost
zgorevanja.
Dimni plini, ki nastanejo med zgorevanjem, se prenesejo navzdol skozi kotel
in ga zapustijo na zadnji strani skozi priključek za dimnik.
62
14
15
17
18
Povratna voda iz sistema vstopi skozi
spodnji del kotla z najnižjo temperaturo
dimnih plinov v kotlu.
V tem delu poteka kondenzacija.
Voda se prenese skozi kotel navzgor in
zapusti kotel na zgornjem delu (gorilniku).
Delovni princip navzkrižnega pretoka
(voda navzgor, dimni plini navzdol) zagotavlja na
jvišjo učinkovitost zgorevanja.
1
Znamka
2
Država porekla
3
Model kotla – serijska številka
4
Komercialni sklic
5
Številka certifikata
6
Ciljna država – kategorija plina
7
Nastavitev plina
8
Vrsta inštalacije
9
Električni podatki
10
Tovarniške nastavitve
11
Maksimalni tlak vode
12
Tip kotla
13
Razred NOx/učinkovitost
14
Nazivna vhodna moč ogrevanja
15
Izhodna moč ogrevanja
16
Plini, ki jih je mogoče uporabiti
17
Obratovalna temperatura
okolice
18
Najvišja temperatura centralnega ogrevanja
Krmilna enota LMS14 nadzoruje delovanje kotla prek:
• krmiljenja kotla (samostojno delovanje);
• delovanja s kompenzacijo za
vremenske razmere (z izbirnim
zunanjim senzorjem);
• 0–10 V zunanjega vpliva (temperature ali kapacitete) iz sistema za
upravljanje stavb.
Montaža
Zgradba kotla
25
24
3
6
23
22
21
4
20
5
7
8
9
19
10
26
18
11
17
29
30
Zgradba kotla
Kotel TRIGON XXL vsebuje naslednje
glavne sestavne dele:
1
2
3
4
5
6
7
8
9
10
11
12
13
14
15
16
17
18
19
20
21
22
23
24
25
26
27
Priključek za odvod vode
Priključek odvoda dimnih plinov
Stikalo pretoka vode
Priključek za dovod vode
Ventil polnjenja/praznjenja
Zgornja plošča
Gorilnik
Prvi toplotni izmenjevalnik
Drugi toplotni izmenjevalnik
Dovod plina
Okvir
Kompenzator
Zbiralnik kondenzata
Zgorevalna komora
Vhodni električni priključki
Sifon
Glavni plinski ventil
Ventilator
Električna omarica
Nadzorna plošča
Ohišje
Zajemalnik zraka
Zaporni ventil
Glavni mešalni kanal
Plinski ventil predvžiga
Mešalni kanal predvžiga
Tretji toplotni izmenjevalnik
(samo za razpon 600–1200 kW)
28 Senzorja pretoka in povratne temperature (na vodnih ceveh)
29 Senzor za tlak
30 Senzor temperature dimnih plinov
(na pladnju za kondenzat)
28
A
B
C
D
Zrak
Plin
Dimni plini
Kondenzat
B
12
C
A
1
2
13
14
D
15
16
27
63
Tehnični podatki
* TRIGON XXL SE lahko deluje pri naslednjem tlaku s posebnimi nastavitvami
parametr
ov, ki jih lahko spreminjajo samo pooblaščeni strokovnjaki.
Minimalni tlak vode / Nastavitve ΔT Glejte stran 86 Tabela 3
** H/E/L/LL: kategorije zemeljskega plina
TRIGON XXL SE 650 - SE 1200
SE 650
SE 750
SE 850
SE 1000
SE 1100
SE 1200
1184/296
Nazivni toplotni izkoristek pri 80–60 ºC maks/min
kW
650/162
725/181
849/212
961/240
1073/268
Nazivni toplotni izkoristek pri 40–30 ºC maks/min
kW
656/182
733/203
857/237
970/270
1083/301
1195/332
Nominalni dovod toplote Hi maks/min*
kW
702/176
784/196
917/229
1038/260
1159/290
1279/320
Učinkovitost pri 80–60 ºC
%
Učinkovitost pri 40–30 ºC
%
Letna učinkovitost (NNG 40-30ºC)
%
Izgube pri mirovanju (50ºC)
%
Maks. pretok kondenzata
92.6
93.5
103.3
103.3
0.1
l/h
3.2
3.6
4.2
4.8
Poraba plina H-plin maks/min (10,9 kWh/m3)*
m³/h
64,4/16,1
71,9/18
84,1/21
95,2/23,9
Poraba plina L-plin maks/min (8,34 kWh/m3)*
m³/h
84,2/21,1
94/23,5
110/27,5
124,5/31,2
139/34,8
153,4/38,4
Poraba plina UNP maks/min (12,8 kWh/kg)
kg/h
54,8/13,7
61,2/15,3
71,6/17,8
81/20,3
90,5/22,6
99,9/25
Plinski tlak H-plin**
mbar
Plinski tlak L/LL-plin**
mbar
Plinski tlak UNP
mbar
50
50
50
Maksimalni plinski tlak
mbar
100
ºC
182/66
2126/422
2374/471
2619/519
75
80
85
Temperatura dimnih plinov pri 80–60 ºC maks/min
Temperatura dimnih plinov pri 40–30 ºC maks/min
Količina plina v pretoku maks/min*
20
35
30
50
ºC
m³/h
167/65
1438/286
1606/318
1878/372
Stopnja CO2 za glavni gorilnik pri zemeljskem plinu H/E/L/LL maks/min**
%
10.0/9.3
Stopnja CO2 za glavni gorilnik pri utekočinjenem naftnem plinu P maks/min
%
11.0/11.0
Stopnja CO2 za gorilnik predvžiga pri zemeljskem plinu H/E/L/LL maks/min**
%
10.0/10.2
Stopnja CO2 za gorilnik predvžiga pri utekočinjenem naftnem plinu P maks/min
%
11.0/11.2
Stopnja NOx maks/min
mg/kWh
45/16
Stopnja CO maks/min
mg/kWh
7/3
Pa
150
Maks/min dovoljeni pretočni upor
Prostornina vode
Vodni
tlak maks/min*
l
5.9
35
25
30
5.3
106,3/26,6 117,3/29,4
50
53
70
bar
8/1.5
Maks. ΔT
K
25
Maks. temperatura vode (zgornja meja termostata)
ºC
100
Maks. nastavitev temperature
ºC
90
Nazivni pretok vode pri ΔT=20K
m³/h
28
31
36
41
46
51
Hidravlična upornost pri nazivnemu pretoku vode
kPa
46
53
36
43
50
58
1270
1270
1270
1084
1221
1369
Električni priključek
V
400
Frekvenca
Hz
50
Glavna varovalka
A
16
Poraba energije kotla
W
Poraba energije v stanju pripravljenosti
W
Teža (prazen)
kg
900
900
1270
14
770
844
958
Raven zvočne moči (LWA)
dB(A)
72.7
Minimalen ionizacijski tok
µA
0.52
pH vrednost kondenzata
-
3.2
Koda oznake CE
-
Priključki za vodo
-
Priključek za plin
-
0063CR3158
DN65 PN16
Priključek odvoda dimnih plinov
mm
300
Priključek za dovod zraka (neodvisen od zraka v prostoru)
mm
250
Priključek za kondenzat
mm
64
DN80 PN16
DN50
DN65 PN16
350
400
355
40
Tehnični podatki
* TRI
GON XXL SE lahko deluje pri naslednjem tlaku s posebnimi nastavitvami
parametrov, ki jih lahko spreminjajo samo pooblaščeni strokovnjaki.
Minimalni tlak vode / Nastavitve ΔT Glejte stran 86 Tabela 3
** H/E/L/LL: kategorije zemeljskega plina
TRIGON XXL SE 1300 - SE 1900
SE 1300
SE 1500
SE 1700
SE 1900
Nazivni toplotni izkoristek pri 80–60 ºC maks/min
kW
1296/324
1481/370
1666/416
1852/463
Nazivni toplotni izkoristek pri 40–30 ºC maks/min
kW
1309/363
1496/415
1683/467
1870/519
Nominalni dovod toplote Hi maks/min*
kW
1400/350
1600/400
1800/450
2000/500
Učinkovitost pri 80–60 ºC
%
Učinkovitost pri 40–30 ºC
%
93.5
Letna učinkovitost (NNG 40-30ºC)
%
103.3
92.6
Izgube pri mirovanju (50ºC)
%
Maks. pretok kondenzata
l/h
6.4
7.4
8.3
9.2
Poraba plina H-plin maks/min (10,9 kWh/m3)*
m³/h
128,4/32,1
146,8/36,7
165,1/41,3
183,5/45,9
Poraba plina L-plin maks/min (8,34 kWh/m3)*
m³/h
167,9/42
191,8/48
215,8/54
239,8/60
Poraba
plina UNP maks/min (12,8 kWh/kg)
kg/h
109,3/27,3
125/31,2
140,6/35,1
156,2/39
Plinski tlak H-plin**
mbar
Plinski tlak L/LL-plin**
mbar
Plinski tlak UNP
mbar
50
50
Maksimalni plinski tlak
mbar
100
ºC
182/66
3686/730
4096/811
Temperatura dimnih plinov pri 80–60 ºC maks/min
Temperatura dimnih plinov pri 40–30 ºC maks/min
Količina plina v pretoku maks/min*
0.1
50
50
50
50
ºC
m³/h
167/65
2867/568
3277/649
Stopnja CO2 za glavni gorilnik pri zemeljskem plinu H/E/L/LL maks/min**
%
10.0/9.3
Stopnja CO2 za glavni gorilnik pri utekočinjenem naftnem plinu P maks/min
%
11.0/11.0
Stopnja CO2 za gorilnik predvžiga pri zemeljskem plinu H/E/L/LL maks/min**
%
10.0/10.2
Stopnja CO2 za gorilnik predvžiga pri utekočinjenem naftnem plinu P maks/min
%
11.0/11.2
Stopnja NOx maks/min
mg/kWh
45/16
Stopnja CO maks/min
mg/kWh
7/3
Pa
150
Maks/min dovoljeni pretočni upor
Prostornina vode
Vodni tlak maks/min*
l
97
109
116
bar
123
8/1.5
Maks. ΔT
K
25
Maks. temperatura vode (zgornja meja termostata)
ºC
100
Maks. nastavitev temperature
ºC
90
Nazivni pretok vode pri ΔT=20K
m³/h
56
63
71
79
Hidravlična upornost pri nazivnemu pretoku vode
kPa
91
60
130
165
2770
2770
1899
1991
Električni priključek
V
400
Frekvenca
Hz
50
Glavna varovalka
A
16
Poraba energije kotla
W
Poraba energije v stanju pripravljenosti
W
Teža (prazen)
kg
2330
2330
14
1380
1740
Raven zvočne moči (LWA)
dB(A)
72.7
Minimalen ionizacijski tok
µA
0.52
pH vrednost kondenzata
-
3.2
Koda oznake CE
-
0063CR3158
Priključki za vodo
-
Priključek za plin
-
DN65 PN16
Priključek odvoda dimnih plinov
mm
450
Priključek za dovod zraka (neodvisen od zraka v prostoru)
mm
450
Priključek za kondenzat
mm
40
DN80 PN16
DN80 PN16
500
65
Tehnični podatki
* TRIGON XXL ECO lahko deluje pri naslednjem tlaku s posebnimi nastavitvami
parametrov, ki jih lahko spreminjajo samo pooblaščeni strokovnjaki.
Mi
nimalni tlak vode / Nastavitve ΔT Glejte stran 86 Tabela 3
** H/E/L/LL: kategorije zemeljskega plina
TRIGON XXL ECO 650 - ECO 1050
ECO 650
ECO 750
ECO 850
ECO 950
ECO 1050
Nazivni toplotni izkoristek pri 80–60 ºC maks/min
kW
614/175
717/204
811/231
906/258
1000/285
Nazivni toplotni izkoristek pri 40–30 ºC maks/min
kW
625/194
731/226
828/257
925/287
1021/317
Nominalni dovod toplote Hi maks/min*
kW
653/187
764/218
865/247
966/276
1066/305
Učinkovitost pri 80–60 ºC
%
Učinkovitost pri 40–30 ºC
%
95.8
Letna učinkovitost (NNG 40-30ºC)
%
103.7
94.1
Izgube pri mirovanju (50ºC)
%
Maks. pretok kondenzata
l/h
7.8
9.1
10.3
11.5
12.7
Poraba plina H-plin maks/min (10,9 kWh/m3)*
m³/h
59,9/17,2
70,1/20
79,4/22,7
88,6/25,3
97,8/28
Poraba plina L-plin maks/min (8,34 kWh/m3)*
m³/h
78,3/22,4
91,6/26,1
103,7/29,6
115,8/33,1
127,8/36,6
Poraba plina UNP maks/min (12,8 kWh/kg)
kg/h
51/14,6
59,6/17
67,5/19,2
75,4/21,5
83,2
/23,8
Plinski tlak H-plin**
mbar
Plinski tlak L/LL-plin**
mbar
Plinski tlak UNP
mbar
30
30
Maksimalni plinski tlak
mbar
100
ºC
153/65
1852/447
2044/493
80
85
Temperatura dimnih plinov pri 80–60 ºC maks/min
Temperatura dimnih plinov pri 40–30 ºC maks/min
Količina plina v pretoku maks/min*
0.1
20
25
30
30
ºC
m³/h
30
134/64
1252/303
1465/353
1659/400
Stopnja CO2 za glavni gorilnik pri zemeljskem plinu H/E/L/LL maks/min**
%
10.0/9.3
Stopnja CO2 za glavni gorilnik pri utekočinjenem naftnem plinu P maks/min
%
11.0/11.0
Stopnja CO2 za gorilnik predvžiga pri zemeljskem plinu H/E/L/LL maks/min**
%
10.0/10.2
Stopnja CO2 za gorilnik predvžiga pri utekočinjenem naftnem plinu P maks/min
%
11.0/11.2
Stopnja NOx maks/min
mg/kWh
37/15
Stopnja CO maks/min
mg/kWh
4/3
Pa
150
Maks/min dovoljeni pretočni upor
Prostornina vode
Vodni tlak maks/min*
l
53
70
bar
75
8/1.5
Maks. ΔT
K
30
Maks. temperatura vode (zgornja meja termostata)
ºC
100
Maks. nastavitev temperature
ºC
90
Nazivni pretok vode pri ΔT=20K
m³/h
26
31
35
39
43
Hidravlična upornost pri nazivnemu pretoku vode
kPa
37
25
30
35
40
1221
1369
Električni priključek
V
400
Frekvenca
Hz
50
Glavna varovalka
A
16
Poraba energije kotla
W
Poraba energije v stanju pripravljenosti
W
Teža (prazen)
kg
900
1270
14
844
958
1084
Raven zvočne moči (LWA)
dB(A)
68.7
Minimalen ionizacijski tok
µA
0.52
pH vrednost kondenzata
-
3.2
Koda oznake CE
-
Priključki za vodo
-
Priključek za plin
-
DN50
Priključek odvoda dimnih plinov
mm
350
Priključek za dovod zraka (neodvisen od zraka v prostoru)
mm
355
Priključek za kondenzat
mm
40
66
0063CR3158
DN65 PN16
DN80 PN16
DN65 PN16
400
Tehnični podatki
* TRIGON XXL ECO lahko deluje pri naslednjem tlaku s posebnimi nastavitvami
parametrov, ki jih lahko spreminjajo samo pooblaščeni strokovnjaki.
Minimalni tlak vode / Nastavitve ΔT Glejte stran 86 Tabela 3
*
* H/E/L/LL: kategorije zemeljskega plina
TRIGON XXL ECO 1150 - ECO 1600
ECO 1150
ECO 1300
ECO 1450
ECO 1600
Nazivni toplotni izkoristek pri 80–60 ºC maks/min
kW
1097/313
1254/358
1410/402
1567/447
Nazivni toplotni izkoristek pri 40–30 ºC maks/min
kW
1116/346
1276/396
1435/445
1596/495
Nominalni dovod toplote Hi maks/min*
kW
1166/333
1333/381
1499/428
1666/476
Učinkovitost pri 80–60 ºC
%
Učinkovitost pri 40–30 ºC
%
95.8
Letna učinkovitost (NNG 40-30ºC)
%
103.7
94.1
Izgube pri mirovanju (50ºC)
%
Maks. pretok kondenzata
l/h
13
15
16.8
18.6
Poraba plina H-plin maks/min (10,9 kWh/m3)*
m³/h
107/30,6
122,3/35
137,5/39,3
152,8/43,7
Poraba plina L-plin maks/min (8,34 kWh/m3)*
m³/h
139,8/39,9
159,8/45,7
179,7/51,3
199,8/57,1
Poraba plina UNP maks/min (12,8 kWh/kg)
kg/h
91/26
104,1/29,7
117,1/33,4
130,1/37,1
Plinski tlak H-plin**
mbar
Plinski tlak L/LL-plin**
mbar
Plinski tlak UNP
mbar
50
50
Maksimalni plinsk
i tlak
mbar
100
ºC
153/65
2874/692
3194/770
Temperatura dimnih plinov pri 80–60 ºC maks/min
Temperatura dimnih plinov pri 40–30 ºC maks/min
Količina plina v pretoku maks/min*
0.1
35
35
50
50
ºC
m³/h
134/64
2236/539
2556/616
Stopnja CO2 za glavni gorilnik pri zemeljskem plinu H/E/L/LL maks/min**
%
10.0/9.3
Stopnja CO2 za glavni gorilnik pri utekočinjenem naftnem plinu P maks/min
%
11.0/11.0
Stopnja CO2 za gorilnik predvžiga pri zemeljskem plinu H/E/L/LL maks/min**
%
10.0/10.2
Stopnja CO2 za gorilnik predvžiga pri utekočinjenem naftnem plinu P maks/min
%
11.0/11.2
Stopnja NOx maks/min
mg/kWh
37/15
Stopnja CO maks/min
mg/kWh
4/3
Pa
150
Maks/min dovoljeni pretočni upor
Prostornina vode
Vodni tlak maks/min*
l
97
109
116
bar
123
8/1.5
Maks. ΔT
K
30
Maks. temperatura vode (zgornja meja termostata)
ºC
100
Maks. nastavitev temperature
ºC
90
Nazivni pretok vode pri ΔT=20K
m³/h
47
54
60
67
Hidravlična upornost pri nazi
vnemu pretoku vode
kPa
60
72
93
114
Električni priključek
V
400
Frekvenca
Hz
50
Glavna varovalka
A
16
Poraba energije kotla
W
Poraba energije v stanju pripravljenosti
W
Teža (prazen)
kg
2330
2334
2770
14
1380
1740
1899
Raven zvočne moči (LWA)
dB(A)
68.7
Minimalen ionizacijski tok
µA
0.52
pH vrednost kondenzata
-
3.2
Koda oznake CE
-
0063CR3158
Priključki za vodo
-
Priključek za plin
-
DN65 PN16
Priključek odvoda dimnih plinov
mm
400
Priključek za dovod zraka (neodvisen od zraka v prostoru)
mm
450
Priključek za kondenzat
mm
40
1991
DN80 PN16
DN80 PN16
500
67
Tehnični podatki
* TRIGON XXL EVO lahko deluje pri naslednjem tlaku s posebnimi nastavitvami
parametrov, ki jih lahko spreminjajo samo pooblaščeni strokovnjaki.
Minimalni tlak vode / Nastavitve ΔT Glejte stran 86 Tabela 3
** H/E/L/LL: kategorije zemeljskega plina
TRIGON XXL EVO 700 - EVO 1100
EVO 700
EVO 800
EVO 900
EVO 1000
EVO 1100
1042/298
Nazivni topl
otni izkoristek pri 80–60 ºC maks/min
kW
638/182
747/213
845/241
944/269
Nazivni toplotni izkoristek pri 40–30 ºC maks/min
kW
682/205
798/239
903/270
1009/302
1113/334
Nominalni dovod toplote Hi maks/min*
kW
653/187
764/218
865/247
966/276
1066/305
Učinkovitost pri 80–60 ºC
%
97.8
Učinkovitost pri 40–30 ºC
%
104.5
Letna učinkovitost (NNG 40-30ºC)
%
109.1
Izgube pri mirovanju (50ºC)
%
Maks. pretok kondenzata
l/h
42.3
49.6
56.1
62.6
69.1
Poraba plina H-plin maks/min (10,9 kWh/m3)*
m³/h
59,9/17,2
70,1/20
79,4/22,7
88,6/25,3
97,8/28
Poraba plina L-plin maks/min (8,34 kWh/m3)*
m³/h
78,3/22,4
91,6/26,1
103,7/29,6
115,8/33,1
127,8/36,6
Poraba plina UNP maks/min (12,8 kWh/kg)
kg/h
51/14,6
59,6/17
67,5/19,2
75,4/21,5
83,2/23,8
Plinski tlak H-plin**
mbar
Plinski tlak L/LL-plin**
mbar
Plinski tlak UNP
mbar
30
30
Maksimalni plinski tlak
mbar
100
ºC
69/59
1487/439
1641/485
110
117
Temperatura dimnih p
linov pri 80–60 ºC maks/min
Temperatura dimnih plinov pri 40–30 ºC maks/min
Količina plina v pretoku maks/min*
0.1
20
25
30
30
30
ºC
m³/h
51/32
1005/297
1176/346
1332/393
Stopnja CO2 za glavni gorilnik pri zemeljskem plinu H/E/L/LL maks/min**
%
10.0/9.3
Stopnja CO2 za glavni gorilnik pri utekočinjenem naftnem plinu P maks/min
%
11.0/11.0
Stopnja CO2 za gorilnik predvžiga pri zemeljskem plinu H/E/L/LL maks/min**
%
10.0/10.2
Stopnja CO2 za gorilnik predvžiga pri utekočinjenem naftnem plinu P maks/min
%
11.0/11.2
Stopnja NOx maks/min
mg/kWh
37/15
Stopnja CO maks/min
mg/kWh
4/2
Pa
150
Maks/min dovoljeni pretočni upor
Prostornina vode
Vodni tlak maks/min*
l
73
97
104
bar
8/1.5
Maks. ΔT
K
30
Maks. temperatura vode (zgornja meja termostata)
ºC
100
Maks. nastavitev temperature
ºC
90
Nazivni pretok vode pri ΔT=20K
m³/h
27
32
36
40
45
Hidravlična upornost pri nazivnemu pretoku vode
kPa
74
40
45
67
78
1634
1800
Ele
ktrični priključek
V
400
Frekvenca
Hz
50
Glavna varovalka
A
16
Poraba energije kotla
W
Poraba energije v stanju pripravljenosti
W
Teža (prazen)
kg
900
1270
14
1136
1328
1468
Raven zvočne moči (LWA)
dB(A)
68.7
Minimalen ionizacijski tok
µA
0.52
pH vrednost kondenzata
-
3.2
Koda oznake CE
-
Priključki za vodo
-
Priključek za plin
-
0063CR3158
DN65 PN16
Priključek odvoda dimnih plinov
mm
300
Priključek za dovod zraka (neodvisen od zraka v prostoru)
mm
250
Priključek za kondenzat
mm
68
DN80 PN16
DN50
DN65 PN16
350
400
355
40
Tehnični podatki
* TRIGON XXL EVO lahko deluje pri naslednjem tlaku s posebnimi nastavitvami
parametrov, ki jih lahko spreminjajo samo pooblaščeni strokovnjaki.
Minimalni tlak vode / Nastavitve ΔT Glejte stran 86 Tabela 3
** H/E/L/LL: kategorije zemeljskega plina
TRIGON XXL EVO 1200 - EVO 1700
EVO 1200
EVO 1400
EVO 1550
EVO 1700
Nazivni toplotni izkoristek pri 80–60 ºC maks/min
kW
1140/313
130
3/358
1466/402
1629/447
Nazivni toplotni izkoristek pri 40–30 ºC maks/min
kW
1218/365
1392/417
1436/469
1596/521
Nominalni dovod toplote Hi maks/min*
kW
1166/333
1333/381
1499/428
1666/476
Učinkovitost pri 80–60 ºC
%
97.8
Učinkovitost pri 40–30 ºC
%
104.5
Letna učinkovitost (NNG 40-30ºC)
%
109.1
Izgube pri mirovanju (50ºC)
%
Maks. pretok kondenzata
l/h
70.7
81.3
91.2
101.1
Poraba plina H-plin maks/min (10,9 kWh/m3)*
m³/h
107/30,6
122,3/35
137,5/39,3
152,8/43,7
Poraba plina L-plin maks/min (8,34 kWh/m3)*
m³/h
139,8/39,9
159,8/45,7
179,7/51,3
199,8/57,1
Poraba plina UNP maks/min (12,8 kWh/kg)
kg/h
91/26
104,1/29,7
117,1/33,4
130,1/37,1
Plinski tlak H-plin**
mbar
Plinski tlak L/LL-plin**
mbar
Plinski tlak UNP
mbar
50
50
Maksimalni plinski tlak
mbar
100
ºC
69/59
2307/680
2565/756
Temperatura dimnih plinov pri 80–60 ºC maks/min
Temperatura dimnih plinov pri 40–30 ºC maks/min
Količina plina v pretoku
maks/min*
0.1
35
35
50
50
ºC
m³/h
51/32
1795/529
2052/605
Stopnja CO2 za glavni gorilnik pri zemeljskem plinu H/E/L/LL maks/min**
%
10.0/9.3
Stopnja CO2 za glavni gorilnik pri utekočinjenem naftnem plinu P maks/min
%
11.0/11.0
Stopnja CO2 za gorilnik predvžiga pri zemeljskem plinu H/E/L/LL maks/min**
%
10.0/10.2
Stopnja CO2 za gorilnik predvžiga pri utekočinjenem naftnem plinu P maks/min
%
11.0/11.2
Stopnja NOx maks/min
mg/kWh
37/15
Stopnja CO maks/min
mg/kWh
4/2
Pa
150
Maks/min dovoljeni pretočni upor
Prostornina vode
Vodni tlak maks/min*
l
131
147
157
bar
166
8/1.5
Maks. ΔT
K
30
Maks. temperatura vode (zgornja meja termostata)
ºC
100
Maks. nastavitev temperature
ºC
90
Nazivni pretok vode pri ΔT=20K
m³/h
49
56
63
70
Hidravlična upornost pri nazivnemu pretoku vode
kPa
82
96
136
162
Električni priključek
V
400
Frekvenca
Hz
50
A
16
Glavna varovalka
Poraba energije kotla
W
Poraba energije v stanju pripravlje
nosti
W
Teža (prazen)
kg
2330
2770
14
1900
2000
2100
Raven zvočne moči (LWA)
dB(A)
68.7
Minimalen ionizacijski tok
µA
0.52
pH vrednost kondenzata
-
3.2
Koda oznake CE
-
0063CR3158
Priključki za vodo
-
Priključek za plin
-
DN65 PN16
Priključek odvoda dimnih plinov
mm
450
Priključek za dovod zraka (neodvisen od zraka v prostoru)
mm
450
Priključek za kondenzat
mm
40
2201
DN80 PN16
DN80 PN16
500
69
Tehnični podatki
Dimenzije SE 650 - SE 1200
ECO 650 - ECO 1050
EVO 700 - EVO 1100
L
D
H
B6
B
L3
L1
B1
B2
B3
W
G
82
B4
L4
H4
B5
H3
H2
H1
W
L5
82
LW
L2
B ni maksimalna širina kotla, saj so nekateri modeli B6+W1/2 širši kot B.
Dimenzije
SE 650
SE 750
SE 850
SE 1000
SE 1100
SE 1200
ECO 650
ECO 750
ECO 850
ECO 950
ECO 1050
EVO 700
EVO 800
EVO 900
EVO 1000
EVO 1100
2565
L
mm
2185
2185
2565
2565
2565
2565
2185
2565
2565
2565
L1
mm
475
475
480
480
480
480
475
480
480
480
480
L2
mm
660
66
0
1030
1030
1030
1030
660
1030
1030
1030
1030
L3
mm
210
260
260
260
260
260
260
260
260
260
260
L4
mm
110
110
110
110
110
110
110
110
110
100
100
L5
mm
420
550
550
550
550
550
550
550
550
550
550
LW
mm
185
185
185
185
185
185
185
185
185
185
185
H
mm
1555
1555
1555
1555
1555
1555
1555
1555
1555
1555
1555
H1
mm
960
960
960
960
960
960
1110
1110
1110
1110
1110
H2
mm
660
660
660
660
660
660
660
660
660
660
660
H3
mm
540
530
530
530
530
530
530
530
530
530
530
H4
mm
480
480
500
500
500
500
460
460
480
480
480
B
mm
1370
1370
1170
1170
1370
1370
1370
1170
1170
1370
1370
B1
mm
1185
1235
1025
1075
1225
1275
1235
1025
1075
1225
1275
B2
mm
685
685
585
585
685
685
685
585
585
685
685
B3
mm
185
135
145
95
145
95
135
145
95
145
95
B4
mm
1160
1160
960
960
1160
1160
1160
960
960
1160
1160
B5
mm
150
100
150
100
150
100
100
150
100
150
100
B6
mm
1000
1100
880
980
1080
1180
1100
880
980
1080
1180
D
mm
300
350
350
400
400
400
300
350
350
400
400
W
DN
DN65PN16
DN65PN16
DN80PN16
DN80PN16
DN80PN16
DN80PN16
DN65PN16
DN80PN16
DN80PN16
DN80PN16
DN80PN16
G
DN
DN50
DN50
DN50
DN50
DN65PN16
DN65PN16
DN50
DN50
DN50
DN65PN16
DN65PN16
70
Tehnični podatki
Dimenzije SE 1300 - SE 1500
ECO 1150 - ECO 1300
L5
B
D
B6
H
L4
L3
L1
L
B1
B2
B3
H4
H2
W
B5
82
B4
82
H3
G
H1
W
LW
L2
B ni maksimalna širina kotla, saj so nekateri modeli B6+prirobnična povezava širši kot B.
Dimenzije
SE 1300
SE 1500
ECO 1150
ECO 1400
3310
L
mm
2795
L1
mm
480
480
L2
mm
1030
1550
L3
mm
350
350
L4
mm
230
230
L5
mm
710
710
LW
mm
185
185
H
mm
1555
1575
H1
mm
895
915
H2
mm
420
435
H3
mm
470
490
H4
mm
240
260
B
mm
1570
1370
B1
mm
1445
1250
B2
mm
785
685
B3
mm
145
145
B4
mm
1360
1160
B5
mm
145
145
B6
mm
1300
1105
D
mm
450
450
W
DN
DN80-PN16
DN80-PN16
G
DN
DN65-PN16
DN65-PN16
71
Tehnični podatki
Dimenzije SE 1700 - SE 1900
ECO 1450 - ECO 1600
L5
D
H
B6
B
L3
L1
L
B5
B2
B3
W
W
82
B4
82
H2
H3
H4
G
H1
B1
L4
LW
B ni maksimalna širina kotla, saj so nekateri modeli B6+prirobnična povezava širši kot B.
Dimenzije
SE 1700
SE 1900
ECO 1450
ECO 1600
3310
L
mm
3310
L1
mm
480
480
L2
mm
1550
1550
L3
mm
350
350
L4
mm
150
150
L5
mm
710
710
LW
mm
185
185
H
mm
1575
1575
H1
mm
915
915
H2
mm
440
440
H3
mm
490
490
H4
mm
260
260
B
mm
1570
1570
B1
mm
190
140
B2
mm
785
785
B3
mm
195
145
B4
mm
1360
1360
B5
mm
1375
1425
B6
mm
1180
1280
D
mm
500
500
W
DN
DN80-PN16
DN80-PN16
G
DN
DN80-PN16
DN80-PN16
72
L2
Tehnični podatki
Dimenzije EVO 1200 - EVO 1700
L5
D
H
B6
B
L3
L1
L
B5
B2
B3
W
W
82
B4
L4
H2
H3
H4
G
H1
B1
L2
LW
82
B ni maksimalna širi
na kotla, saj so nekateri modeli B6+prirobnična povezava širši kot B.
Dimenzije
EVO 1200
EVO 1400
EVO 1550
EVO 1700
L
mm
2795
3310
3310
3310
L1
mm
480
480
480
480
L2
mm
1030
1550
1550
1550
L3
mm
350
350
350
350
L4
mm
230
165
150
150
L5
mm
710
710
710
710
LW
mm
185
185
185
185
H
mm
1555
1575
1575
1575
H1
mm
1045
1065
1065
1065
H2
mm
395
415
435
435
H3
mm
470
490
490
490
H4
mm
595
615
615
615
B
mm
1570
1370
1570
1570
B1
mm
150
140
190
140
B2
mm
785
685
785
785
B3
mm
145
145
195
145
B4
mm
1360
1160
1360
1360
B5
mm
1425
1225
1375
1425
B6
mm
1280
1080
1180
1280
D
mm
450
450
500
500
W
DN
DN80-PN16
DN80-PN16
DN80-PN16
DN80-PN16
G
DN
DN65-PN16
DN65-PN16
DN80-PN16
DN80-PN16
73
Obseg dobave
Standarden kotel
Dodatna oprema
Standarden kotel
Paket s kotlom ob dostavi vsebuje naslednje sestavne dele:
Sestavni del
Kosov
Paket
TRIGON XXL V celoti sestavljen i
n preizkušen kotel
1
Lesena ograjica, zavit v PE folijo
Sifon in zbiralnik za nečistoče priključka za kondenzat
1
Kartonska škatla na izmenjevalniku toplote
(pod ohišjem)
Priročnik za uporabo in namestitev
1
V električni omarici
Dodatna oprema
Na zahtevo so na voljo različne možnosti
in/ali dodatki.
Ni na voljo
TRIGON XXL
SE
OPIS
650-1900
ENOJNI ZBIRALNIK
DVOJNI ZBIRALNIK
VARNOSTNI VENTIL 3 BAR
VARNOSTNI VENTIL 6 BAR
VARNOSTNI VENTIL 3 BAR TUV
VARNOSTNI VENTIL 6 BAR TUV
STANDARDNA ČRPALKA
HITROSTNO KRMILJENA ČRPALKA
OBVODNA ČRPALKA
STIKALO MAKSIMALNEGA PLINSKEGA TLAKA
STIKALO MINIMALNEGA TLAKA VODE
STIKALO MAKSIMALNEGA TLAKA VODE
2-PALČNI PLINSKI FILTER
PREIZKUŠEVALNIK UHAJANJA IZ PLINSKEGA VENTILA
ZUNANJI TERMOSTAT Z VISOKO OMEJITVIJO
KOMPLET ZA RAZSTAVLJANJE
REGULATOR TLAKA ZA ZEMELJSKI PLIN 300/10-30 MBAR R2«
PODALJŠEK AVS75.390/101
RVS63.283/360 KRMILNIK + STENSKO OHIŠJE
ZUNANJI SENZOR QAC34.101
ZBIRALNIK/SENZOR VROČE VODE QAZ36 KABEL 2M
ZBIRALNIK
/SENZOR VROČE VODE QAZ36 KABEL 6M
PODROČNI SENZOR QAD36.201 S 4M KABLOM
SOBNI VENTILATOR + PODALJ. ZA PLINSKI VENTIL TRXXL
SOBNI KRMILNIK QAA75.610/101
SOBNI KRMILNIK QAA78.610/301 BREZŽIČNI
SPREJEMNIK AVS71.390/109 BREZŽIČNI
ZUNANJI SENZOR AVS13.399.201 BREZŽIČNI
KASKADNI KOMPLET MASTER LMS
KASKADNI KOMPLET SLAVE LMS
DRUGI POVRATNI PRIKLJUČEK TRXXL
ZRAČNI FILTER TRXXL
KOMPLET ZA FIKSNO SOBNO RABO TRXXL
LOPUTA ZA DIMNE PLINE TRXXL
74
Legenda:
ECO
650-1050
Na voljo
EVO
1150-1600
700-1100
1200-1700
Namestitev
Transport
L
B
H
L
H
B
B
H
L
Sestavni
del
Gorilnik
Prvi toplotni
izmenjevalnik
Drugi toplotni izmenjevalnik
Tretji toplotni
izmenjevalnik
Okvir
Zbiralnik
kondenzata
SE-750
ECO-650
SE-850
ECO-750
SE-1000
ECO-850
SE-1100
ECO-950
SE-1200
ECO-1050
EVO-700
EVO-800
EVO-900
1110
1110
1587
1587
1478
1585
1114
1585
1590
1590
1590
1257
1257
1025
1125
1225
1425
1135
995
1095
1209
1295
416
416
416
416
416
416
416
416
416
41
6
416
1504
1029
1505
1505
1505
1505
1032
1505
1505
1505
1505
1257
1257
1025
1125
1225
1425
1257
1025
1125
1225
1325
150
150
150
150
150
150
150
150
150
150
150
SE-650
m [kg]
D [mm]
Š [mm]
V [mm]
m [kg]
D [mm]
Š [mm]
V [mm]
m [kg]
D [mm]
Š [mm]
V [mm]
m [kg]
D [mm]
Š [mm]
V [mm]
m [kg]
D [mm]
Š [mm]
V [mm]
m [kg]
D [mm]
Š [mm]
V [mm]
EVO-1000 EVO-1100
135
225
1504
1029
1505
1505
1505
1505
1032
1505
1505
1505
1505
1257
1257
1025
1125
1225
1425
1257
1025
1125
1225
1325
150
150
150
150
150
150
150
150
150
150
150
-
-
-
-
-
-
-
-
-
-
-
-
-
-
1505
1032
1505
1505
1505
1505
-
-
-
-
-
1425
1257
1025
1125
1225
1325
150
210
-
-
-
-
-
150
150
150
150
150
84
84
91
112
101
104
84
91
112
101
104
1630
1630
2003
2003
2003
2008
1630
2003
2003
2003
2003
1306
1306
1106
1106
1306
1506
1306
1106
1106
1306
1306
460
460
460
460
460
400
460
160
460
46
0
160
1450
1450
1905
1905
1905
2067
1452
1905
1905
1910
1910
1098
1098
780
877
977
1170
1097
780
877
977
1080
312
312
340
340
340
349
314
340
340
340
340
75
Namestitev
Transport
L
B
H
L
H
B
B
H
L
Sestavni
del
Gorilnik
Prvi toplotni
izmenjevalnik
Drugi toplotni izmenjevalnik
Tretji toplotni
izmenjevalnik
Okvir
Zbiralnik
kondenzata
76
m [kg]
D [mm]
Š [mm]
V [mm]
m [kg]
D [mm]
Š [mm]
V [mm]
m [kg]
D [mm]
Š [mm]
V [mm]
m [kg]
D [mm]
Š [mm]
V [mm]
m [kg]
D [mm]
Š [mm]
V [mm]
m [kg]
D [mm]
Š [mm]
V [mm]
SE-1300
ECO-1150
SE-1500
ECO-1300
SE-1700
ECO-1450
SE-1900
ECO-1600
EVO 1200
EVO 1400
EVO-1550
EVO 1700
1505
2018
2018
2018
1505
2018
2018
2018
1393
1245
1345
1445
1393
1245
1345
1445
442
442
462
462
442
442
462
462
1505
2018
2018
2018
1505
2018
2018
2018
1425
1253
1353
1453
1425
1253
1353
1453
150
150
150
150
150
150
150
150
1505
2018
2018
2018
1505
2018
2018
2018
1425
1253
1353
1453
1425
1253
1353
1453
150
150
150
150
150
150
150
150
/
/
/
/
1505
2018
2018
2018
1425
1253
1353
1453
150
150
150
150
92
115
120
122
92
115
120
122
2008
2521
2521
2521
2008
2521
2521
2521
1506
1306
1506
1506
1506
1306
1506
1506
400
420
420
420
400
420
420
420
2074
2583
2582
2582
2074
2583
2582
2582
1171
641
1071
1171
1171
971
1071
1171
349
352
353
350
349
352
353
350
Namestitev
Transport
Transportiranje kotla
Kotel TRIGON XXL je dobavljen kot v
celoti sestavljena in predhodno preizkušena popolna enota.
Ta kotel lahko prevažate z viličarjem. Pri
tem zagotovite, da je težišče kotla na
sredini vilic, kar pomeni, da vilice postavite čim bližje kolescem (glejte spodnjo
sliko).
Kadarkoli je potrebno, lahko kotel razstavite na manjše dele, kar olajša transport
skozi notranjost stavbe. V tabeli na prejšnji strani so prikazani glavni razstavljeni
deli s povezano težo in dimenzijami.
Ko morate kotel TRIGON XXL prestavljati z žerjavom, je treba odstraniti ohišje, preden ga priključite na žerjav.
Pri priključitvi žerjava na okvir kotla vedno uporabite jermene.
Za enostavnejši dostop do okvirja priporočamo, da odstranite spodnjo ploščo
(3).
1
1
2
2
3
A
1 Jermen (4x)
2 Leseni pritrdilni opornik (2x)
Bodite pozorni: Pazite, da ne
poškodujete plinske napeljave (A).
77
Namestitev
Odstranitev ohišja
Odstranitev ohišja
Pred prevozom kotla odstranite ohišje,
da se deli ohišja ne poškodujejo med
prevozom. Ohišje odstranite na naslednji
način:
3
C
1
B
A
4
2
5
Stranico B morate podpreti po 3. koraku, da ne bi padla.
6
4
7
9
78
5
8
Namestitev
Namestitev kotla
450
450
1000
800
Namestitev kotla
Kotel postavite v sobe za kotel, v kateri
ne sme biti izpostavljen temperaturam
pod ničlo. Če je soba s kotlom na strehi,
sam kotel ne sme nikoli predstavljati
najvišje točke inštalacije.
Med postavitvijo kotla upoštevajte
priporo
čene minimalne oddaljenosti, ki
so prikazane na sliki. Če je za postavitev
kotla manj prostora, bo vzdrževanje kotla
oteženo.
Ko pravilno postavite kotel, obrnite regulator (A) ali matico (B) v nasprotni smeri
urinega kazalca, da spustite nožice, dokler kotel ni nameščen na ustrezno višino.
Vodo in plin priključite po namestitvi na
ustrezno višino, saj bo ta vplivala na točno višino vseh priključkov.
UPORABITE FRANCOSKI KLJUČ ALI 17 mm
KLJUČ
A
B
79
Namestitev
Priključitev kotla
Priključitev kotla
V tem poglavju je razloženo, kako
vzpostaviti naslednje priključke kotla:
• Hidravlična priključka (1, 3)
• Priključek za odvod kondenzata (7)
• Priključek za plin (6)
• Priključek odvoda dimnih plinov (5)
• Priključek za dovod zraka (2)
• Električni priključek (4)
• Zbiralnik za nečistoče (glejte
naslednjo stran).
Kotel vedno priključite tako, da bo sistem
izpolnjeval vse veljavne standarde
in predpise (evropske, državne in
krajevne).
Upoštevanje vseh standardov
in predpisov je odgovornost monterja.
1
3
5
Hidravlična priključitev
Kotel morate vedno priključiti tako, da
je vedno mogoče zagotoviti pretok vode
skozi kotel.
Pretočni (3) in povratni (1) vod kotla
priključite v sistem brez mehanske
napetosti.
4
6
7
A
A
2
Priključek za dovod zraka (2)
Dovod zraka je mogoče priključiti v primeru namestitve kotla v zaprtem prostoru.
Premer skupaj z dimovodnim sistemom
izračunajte v skladu z nacionalnimi predpisi. Skupni upor obeh sistemov ne sme
nikoli presegati največjega dovoljenega
upora ventilatorja znotraj kotla (glejte
tudi poglavje: Tehnični podatki).
Pokrov dovoda zraka odprete tako, da
z izvijačem odstranite vijake (A) in nato
odstranite pokrov.
Preverite, ali so sistemi za dovod zraka
izvedeni v skladu z državnimi in krajevnimi predpisi.
Inštalacij, ki ne izpolnjujejo predpisanih
pogojev, ne smete predati v uporabo.
Prepričajte se, da so vsi priključki izvedeni brez mehanske napetosti.
Pr
emera dimovoda in cevi za dovod zraka ne smete zmanjšati.
80
Namestitev
Priključitev kotla
Montaža sifona in zbiralnika za
nečistoče
Predhodno sestavljen zbiralnik za nečistoče in sifon (vključena v paketu)
montirajte pred prvim vžigom ali pa pri
popolnoma izklopljenem kotlu in sledite
spodnjim navodilom:
• S sifona odstranite pokrovček A in
tesnilo C.
• Cev (E) priključite na sifon, kot je
prikazano na desni sliki, pri čemer
priključek obračajte v nasprotni
smeri urinega kazalca (B).
• Dovod (H) zbiralnika za nečistoče
priključite na cev (L).
• Opozorilo!
Sifon in zbiralnik za nečistoče
morata biti v celoti napolnjena z
vodo. Preden ju priključite na kotel, se prepričajte, da v njima ni
zraka.
• Cev (L) priključite na dno zbiralnika
kondenzata (M).
• Pri priključitvi odtočnega sistema
vedno uporabite odprt priključek, da
kotla ne bi preplavilo zaradi zamašenega odtoka.
• Redno izvajajte preglede in čiščenje
A
D
C
C
B
E
H
M
L
OPOZORILO – VARNOSTNA NAVODILA
Kovinskega obročka (N) v zbiralniku
nečistoč ne smete odstraniti ali predstaviti.
OPOZORILO: Kovinskega obročka ne
smete nikoli odstraniti, ne glede na
razlog.
Če je kroglica sifona (N) v zbiralniku
nečistoč (7), izklopite kotel in pokličite pooblaščen tehnični center.
7
8
M
N
N
OK
7
OPOZORILO NI V
REDU
81
Namestitev
Priključitev kotla
Priključitev plina (6)
Priključitev plina mora izvesti pooblaščeni inštalater skladno z veljavnimi nacionalnimi in lokalnimi predpisi in standardi.
Plinsko napeljavo iz sistema priključite
na priključek za plin (6) na kotlu brez mehanske napetosti. Neposredno za kotel
namestite zaporni plinski ventil.
Plinski filter lahko namestite neposredno
na plinski priključek kotla.
Priključitev električnega napajanja (4)
Priključitev električnega napajanja mora
izvesti pooblaščeni inštalater skladno z
veljavnimi nacionalnimi in lokalnimi predpisi in standardi.
6
Za dostop do električnega
dela, ki je pod
sprednjo ploščo, sledite navodilom na
strani 78.
OPOZORILO!
Električnega napajanja kotla ne priključujte na naprave za nadzor ozemljitvenega uhajavega toka.
Za napajanje morate v sobi za kotel uporabiti ločilno stikalo z najmanj 3 mm odprtino
za kontakt. To stikalo lahko uporabite za
izklop napajanja z namenom vzdrževanja.
Dimovodnega sistema ne smete
priključiti na kompenzator!
Kable lahko vstavite skozi pladnje in odprtine za kable na zadnji strani električne
omarice na sprednjem delu kotla.
4
Če se odločite za drugo črpalko, upoštevajte naslednje:
•
•
•
Hidravlična
upornost/pretok
kotla
in
inštalacije!
Glejte »Tehnične podatke« za upornost/pretok kotla (glejte stran 64).
Upoštevajte podatke električnih priključkov (maks. tokove), ki so navedeni v tabeli »Električni priključki«
(glejte stran 102 / 104).
Upoštevajte priročnik za namestitev
in uporabo proizvajalca črpalke in
njihove predpise!
Pomembno:
• različica SE, vse vr
ste: ni mogoče uporabiti črpalke z modulacijo!
• Črpalka s porabo energije
nad 1,5 kW mora imeti zunanji
napajalnik.
Dovod plina
Preverite, ali je priključek za dovod plina
ustrezno pričvrščen na kotel. Če odkrijete kakršno koli uhajanje, ga odpravite
pred ponovnim zagonom kotla.
Vse žice priključite na terminale v skladu
z diagramom ožičenja kotla (glejte diagram ožičenja stran 102 ).
Odzračite plinsko cev.
To lahko storite s preizkusno točko (1) pri
stikalu za tlak plina. Po končanem preizkusu ne pozabite zapreti preizkusne
točke!
Zahteve za črpalko
Če želite zagotoviti pravilno delovanje
kotla, naročajte zgolj originalne dodatke.
Za več informacij se obrnite na svojega
lokalnega prodajalca.
Pri lokalnem ponudniku plinov preverite
vrsto plina in vrednosti, da ugotovite, s
katero vrsto plina bo deloval kotel.
4
1
82
Namestitev
Priključitev zrakovodnega/dimovodnega sistema
Zahteve in predpisi
Predpisi za sestavo dimovodnih sistemov se v posameznih
državah razlikujejo. Upoštevati je treba vse državne predpise glede dimovodnih sistemov.
Pri načrtovanju dimovodnega sistema
upoštevajte naslednja priporočila.
Uporabite lahko le materiale, odobrene
za uporabo z dimnimi plini.
Dimovodni sistem mora biti ustrezno načrtovan, da se zagotovi varno delovanje
sistema.
Komponente dimovodnega sistema morajo biti odstranljive za namene vzdrževanja.
Monter je odgovoren za uporabo pravilnega premera, dolžine in vrste dimovodnega sistema. Če se med izračunom
pojavijo kakršna koli vprašanja, se za
več informacij obrnite na lokalno pisarno
proizvajalca.
Upoštevati morate naslednje zahteve
glede materialov.
Tlačni razred
Temperaturni
razred
Odporno na
kondenzat
Korozijski
razred
Ognjevzdržnost
Pretočni upor <
200Pa
P1
Min: T120
W
V1, V2 ali
Vm
Razred E ali
višji
Pretočni upor >
200Pa < 5000Pa
H1
Min: T120
W
V1, V2 ali
Vm
Razred E ali
višji
Priključek odvoda dimnih plinov
Dimovodni sistem priključite na prikl
juček odvoda dimnih plinov (5) kotla, pri
čemer uporabljajte le dimovodne sisteme z brezšivnimi priključki. Za dimovodni
sistem ni treba namestiti ločenega odtoka kondenzata, saj bo ta odtekal v sifon
kotla. Zavedati se
morate naslednjega:
• Priporočamo, da premer priključka
odvoda dimnih plinov vzamete kot
minimalni premer dimovodnega sistema.
• Premer dimovodnega sistema mora
biti izbran na podlagi izračuna v
skladu z državnimi predpisi.
• Dimovodni sistem naj bo čim krajši
(za največjo dolžino glejte 85).
• Vodoravne vode sestavite pri kotu
najmanj 3 °.
Priključitev dimovoda
Dimovodni sistem ne sme biti v stiku z
vnetljivimi snovmi ali v njihovi bližini in ne
sme prečkati stavb ali sten iz vnetljivih
snovi.
V kotlu je vgrajena funkcija termostata z
omejitvijo največje temperature dimnih
plinov. Če temperatura dimnih plinov
preseže 90 °C, se gorilnik izklopi. Zaradi
te funkcije dodatna (zunanja) varnostna
naprava ni potrebna.
Pri zamenjavi starega
kotla morate vedno zamenjati tudi prezračevalni in odvodni dimovodni sistem.
Pri vzpostavitvi dimovodnega sistema
vedno uporabite moško/žensko spojko in
tesnilo. Spojke je treba vedno namestiti
v nasprotni smeri odtekanja kondenzata.
V tabeli na naslednji strani si lahko ogledate maksimalni dovoljeni pretočni upor,
pri katerem kotel še vedno deluje znotraj
specifikacij. Nazivna vhodna toplotna
moč -5 %.
5
83
Namestitev
Priključitev zrakovodnega/dimovodnega sistema
Tip kotla
Nazivna izhodna toplotna
moč
Nazivna vhodna toplotna
moč
Priključek odvoda dimnih
plinov
Stopnja Co2
Temperatura
dimnih plinov
Količina dimnih
plinov
Maks. dovoljeni pretočni
upor
kW
kW
mm
%
°C
g/s
Pa
TRIGON
XXL
maks
min
maks
min
SE 650
656
164
702
176
SE 750
733
183
784
SE 850
857
213
SE 1000
971
SE 1100
maks
maks
min
300 ±1
407,1
106,6
196
350 ±1
452,1
118,3
917
229
350 ±1
528,7
138,4
242
1038
260
400 ±1
598,3
156,7
1084
270
1159
2
90
400 ±1
667,8
174,9
SE 1200
1196
298
1279
320
400 ±1
737,6
193,2
SE 1300
1309
326
1400
350
450 ±1
808,3
211,5
SE 1500
1496
373
1600
400
450 ±1
923,3
241,7
SE 1700
1683
419
1800
450
500 ±1
1038,9
272,0
SE 1900
1870
466
2000
500
500 ±1
1154,5
302,3
ECO 650
613
175
653
187
300 ±1
368,2
110,2
ECO 750
717
204
764
218
350 ±1
430,6
128,8
ECO 850
811
231
865
247
350 ±1
487,3
145,9
543,9
162,7
600,6
179,7
656,9
196,5
10.0
± 0.2
min
9.3
± 0.2
maks
165
±2
min
70
±2
ECO 950
906
258
966
276
400 ±1
ECO 1050
1000
285
1066
305
400 ±1
ECO 1150
1093
312
1166
333
450 ±1
ECO 1300
1250
357
1333
381
450 ±1
751,1
224,7
ECO 1450
1406
401
1449
428
500 ±1
816,6
252,5
ECO 1600
1562
446
1666
476
500 ±1
938,7
280,7
EVO 700
639
182
653
187
300 ±1
307,9
92,0
EVO 800
747
212
764
218
350 ±1
359,9
107,5
EVO 900
846
241
865
247
350 ±1
407,4
121,9
EVO 1
000
945
269
966
276
400 ±1
454,9
136,0
EVO 1100 1043
297
1066
305
400 ±1
502,4
150,4
EVO 1200 1093
312
1166
333
450 ±1
549,1
164,2
EVO 1400 1250
357
1333
381
450 ±1
627,7
187,8
EVO 1550 1406
401
1449
428
500 ±1
682,4
211,2
EVO 1700 1562
446
1666
476
500 ±1
784,5
234,9
84
10.0
± 0.2
10.0
± 0.2
9.3
± 0.2
9.3
± 0.2
155
±2
85
±2
65
±2
65
±2
150
150
150
Namestitev
Dimenzioniranje posameznega sistema
največja dolžina dimnih plinov. * [m]
Type
SE 650
Ø250mm Ø300mm Ø350mm Ø400mm Ø450mm Ø500mm
23
50
50
SE 750
47
50
50
SE 850
34
50
50
SE 1000
50
50
50
SE 1100
40
50
50
SE 1200
33
50
50
SE 1300
46
50
50
SE 1500
36
50
50
SE 1700
45
50
SE 1900
36
50
Dimenzioniranje posameznega
sistema
Pri zasnovi in izračunu dimovodnega
sistema je treba zagotoviti uporabo
ustreznih materialov in pravilno delovanje kotla.
Za izračun ustreznega materiala je treba izračunati maksimalni tlak dimnih pl
inov. V spodnji tabeli so prikazani različni
tlačni razredi in njihove meje.
Uporabljen material mora izpolnjevati
zahteve naslednjih standardov:
EN1856 za kovinske materiale (nerjavno jeklo in aluminij)
EN14471 za plastične materiale
*predpostavka. Ravna cev, odprta odprtina.
največja dolžina dimnih plinov. * [m]
Type
ECO 650
Ø250mm
29
Ø300mm
Ø350mm
Ø400mm
50
50
ECO 750
50
50
50
ECO 850
43
Ø450mm
50
50
ECO 950
50
50
50
ECO 1050
50
50
50
ECO 1150
50
50
50
ECO 1300
38
50
50
ECO 1450
30
50
50
ECO 1600
24
41
50
*predpostavka. Ravna cev, odprta odprtina.
največja dolžina dimnih plinov. * [m]
Type
EVO 700
Ø250mm
38
Ø300mm
Ø350mm
Ø400mm
50
50
EVO 800
50
50
50
EVO 900
50
Ø450mm
50
50
EVO 1000
50
50
50
EVO 1100
50
50
50
EVO 1200
50
50
50
EVO 1400
49
50
50
EVO 1550
39
50
50
EVO 1700
31
50
50
*predpostavka. Ravna cev, odprta odprtina.
85
Prvi zagon
Voda in hidravlični sistem
Prvi zagon kotla na
j izvaja samo pooblaščeno osebje. Če tega ne upoštevate,
boste izgubili garancijo. Izpolniti morate
protokol prvega zagona (primer protokola si lahko ogledate na koncu tega poglavja).
V tem poglavju je opisana prva uporaba
kotla s standardnim krmilnikom. Ko namestite dodaten krmilnik sistema, za začetek uporabe krmilnika glejte priročnik
zanj.
Tlak vode
Odprite dovodne ventile sistema. Preverite tlak vode v sistemu. Če je tlak vode
prenizek (glejte spodnjo tabelo), ga zvišajte vsaj do najmanjše zahtevane vrednosti tlaka, ki je navedena v tabeli.
Polnjenje lahko izvedete prek ventila
polnjenja in praznjenja (2) na povratnem
priključku (1) kotla.
Hidravlični sistem
Preverite, ali hidravlična povezava med
sistemom in kotlom vzpostavljena na tak
način, da je med delovanjem grelnika
vedno mogoče zagotoviti pretok vode.
Pretok vode nadzorujete s stikalom za
pretok vode v kotlu. Če ni pretoka, se bo
neposredni grelnik ustavil in kotel se bo
zaklenil.
Kakovost vode
(glejte tabe
li 1 in 2)
Garancija ne krije poškodb toplotnega izmenjevalnika, ki nastanejo zaradi difuzije
kisika.
Pri namestitvah z večjimi količinami vode
je treba upoštevati maksimalno polnjenje in dodatne količine z ustreznimi vrednostmi trdote, kot je navedeno v nemškem standardu VDI2035.
2
Delovna temperatura
Najmanjši tlak vode za delovanje
pH vode
Trdota vode
Električna prevodnost
Vsebnost kisika
Vsebnost klora
Vsebnost sulfitov
Vsebnost nitritov
Vsebnost železa
Tabela 2
Sprejemljiva trdota glede na določeno količino pri namestitvi
DOLOČENA KOLIČINA
< 20 l/kW
≥ 20 l/kW - < 50 l/kW
≥ 50 l/kW
50 kW - ≤ 200 kW
≤ 11,2 °dH
(2,0 mol/m3)
≤ 8,4 °dH
(1,5 mol/m3)
≤ 5,6 °dH
(1,0 mol/m3)
200kW - ≤ 600kW
≤ 8,4 °dH
(1,5 mol/m3)
≤ 5,6 °dH
(1,0 mol/m3)
≤ 2,8 °dH
(0,5 mol/m3)
600kW - ≤
1.200kW
≤ 5,6 °dH
(1,0 mol/m3)
≤ 2,8 °dH
(0,5 mol/m3)
≤ 0,11 °dH
(0,02 mol/m3)
> 1200kW
≤ 2,8 °dH
(0,5 mol/m3)
≤ 0,11 °dH
(0,02 mol/m3)
≤ 0,11 °dH
(0,02 mol/m3)
Uporabite mehčanje vode, če so maksimalne vrednosti presežene (nujno za priznanje garancijskih
zahtevkov!)
Tabela. 3 Minimalni tlak vode
Trigon XXL SE
1
Trigon XXL ECO
Trigon XXL EVO
86
Centralno ogrevanje
Voda v sistemu
Voda za polnjenje
10–90 °C
10–25 °C
Glejte Tabela 3
8,2–10,0
7,0–9,5
»Dejanska tabela iz
»Dejanska tabela iz
VDI2035
VDI2035
(glejte list »CH trdo(glejte list »CH trdota«)«
ta«)«
< 100 μS/cm
< 100 μS/cm
< 0,05 mg/l
< 0,05 mg/l
< 50 mg/l
< 50 mg/l
< 50 mg/l
< 50 mg/l
< 50 mg/l
< 50 mg/l
< 0,2 mg/l
< 0,2 mg/l
Tabela 1
SKUPNA
IZHODNA
TOPLOTNA MOČ
[kW]
V tabeli najdete nazivne vrednosti za polnjenje in dodatno vodo za kotel TRIGON
XXL v skladu s standardom VDI2035.
V tabeli je podano razmerje med kakovostjo vode in največjo količino vode za
polnjenje med življenjsko dobo kotla.
Podrobnejše informacije najdete v izvirnem besedilu standarda VDI2035.
ΔT
≤ 20K
20 - 30K
Minimalni tlak vode
0.5 bar
1.5 bar
ΔT
≤ 20K
20 - 25K
25 - 30K
Minimalni tlak vode
0.5 bar
1.0 bar
1.5 bar
ΔT
≤ 20K
20 - 25K
25 - 30K
Minimalni tlak vode
0.5 bar
1.0 bar
1.5 bar
Prvi zagon
Priprava kotla na prvi zagon
Legenda:
b
c
A Stikalo za vklop/izklop
B Nazaj (ESC)
C Nadzor temperature v prostoru
D Potrditev (OK)
E Ročni način
F Način dimnikarja
G Informacijski način
H Gumb za ponastavitev
I Način delovanja z ogrevalnimi območji
L Zaslon
M Pretočni način delovanja
M
Začetni postopki
Za zagotovitev varne in pravilne uporabe naprave mora usposobljen tehnik
pripraviti kotel na uporabo.
Priprava na prvi zagon
• Odprite dovod plina.
• Omogočite napajanje kotla.
• Kotel vklopite s stikalom za vklop/
izklop (A).
• Prepričajte se, da je kotel v stanju
pripravljenosti (
).
• Preverite delovanje črpalke: prepričajte se, da črpalka deluje v pravi
smeri
• Sprostite ves zrak iz motorja črpalke.
Priporočamo, da po prvem zagonu uporabite 50 % obremenitev kotla, saj je
to najboljša začetna točka za ustrezno
analizo zgorevanja. To lahko storite z
naslednjim postopkom:
• Gumb I pridržite za 3 sekunde. Kotel
preklopi v način ustavitve s krmilnikom.
• Pritisnite gumb za informacije (G)
in na zaslonu se prikaže dejanska
obremenitev kotla (%)
• Izberite »nastavitev« (potrdite z
gumbom OK). Zdaj lahko spremenite obremenitev kotla tako, da zavrtite vrtljivi gumb (C) in z gumbom OK
potrdite nastavitev 50 %.
Električno napajanje
• Preverite, ali se napetost in frekvenca električnega napajanja ujemata s
podatki na tablici s podatki o kotlu.
• Zagotovite, da ozemljitveni priključek deluje učinkovito.
Polnjenje hidravličnega krogotoka
Izvedite naslednje postopke:
• Odprite polnilno točko sistema in
prezračite hidravlični sistem. Še naprej polnite sistem, dokler merilnik
tlaka na kotlu ne prikaže (0,5*) 1,5
bara.
*Glejte stran 86 Tabela 3
Dovod plina
Nadaljujte po naslednjem postopku:
• Zagotovite,
da
je
doveden
plin iste v
rste, kot je navedeno na tablici s podatki o kotlu
POZOR: Vrsta plina za kotel je
nastavljena na G20. Za uporabo z
vrsto plina G31 uporabite postopke, ki so opisani v poglavju »Nastavitve za UNP«
• Odprite vsa vrata in okna
• Zagotovite, da v prostoru ni isker ali
odprtega plamena
• Prepričajte se, da so plinski priključki trdno nameščeni.
I
L
0
4
ESC
6
-
12
16 20
+
G
24
OK
A
H
B
C
D
Nastavitve za UNP (G31)
Če želite napravo uporabljati z vrsto plina G31, morajo biti na zaslonu prikazani
povezani parametri (najmanj 9.524 vrt./
min in največ 9.529 vrt./min). Vrednosti
vrt./min so navedene na 64):
E
•
•
•
•
•
•
•
•
•
•
F
Pritisnite tipko OK.
3 sekunde pridržite tipko (G).
Z vrtljivim gumbom (C) izberite namestitveni program.
Pritisnite tipko OK.
Z vrtljivim gumbom (C) izberite
nadzor gorilnika
Pritisnite tipko OK.
Z vrtljivim gumbom (C) izberite številko parametra, ki ga želite spremeniti
OK (parameter utripa).
Vrednos
t spremenite z vrtljivim
gumbom (C).
OK (parameter se shrani).
Po preverjanju vrednosti zgorevanja
(glejte naslednjo stran) lahko zapustite
način ustavitve s krmilnikom tako, da 3
sekunde pridržite gumb načina krmilnika (I).
Pretočni način delovanja (M)
Za vklop pretočnega načina delovanja
(označeno na zaslonu pod simbolom
pretočnega ogrevanja).
Način delovanja z ogrevalnimi območji (I) Za nastavitev 4 različnih načinov
ogrevanja:
Samodejno (ura): Samodejno delovanje po časovnem programu;
Udobje (sonce): neprekinjeno ogrevanje v udobnem načinu;
Varčno (luna): neprekinjeno ogrevanje
v varčnem načinu;
Stanje pripravljenosti: ogrevanje izklopljeno, aktivirana zaščita pred zmrzaljo.
87
Prvi zagon
Priprava kotla na prvi zagon
Legenda:
b
c
A Stikalo za vklop/izklop
B Nazaj (ESC)
C Nadzor temperature v prostoru
D Potrditev (OK)
E Ročni način
F Način dimnikarja
G Informacijski način
H Gumb za ponastavitev
I Način delovanja z ogrevalnimi območji
L Zaslon
M Pret
očni način delovanja
M
Način ustavitve s kontrolnikom
Če želite nastaviti način ustavitve s kontrolnikom in vstaviti nastavitveno točko,
pritisnite (K) za več kot 3 sekunde.
Znova pritisnite (K) za več kot 3 sekunde za nastavitev parametrov zgorevanja.
Stikalo za vklop/izklop (A)
Položaj 0:
Ni napajanja kotla in priključenih električnih sestavnih delov. Zaščita pred
zmrzaljo ni zagotovljena.
Položaj I:
Kotel in priključeni električni
sestavni deli so pod napetostjo in pripravljeni na delovanje.
Zaslon (L)
Informacijski način (G)
S pritiskom tega gumba se prikažejo naslednje informacije brez vpliva na krmiljenje kotla: temperature, način delovanja ogrevanje/pretočno, koda napake.
Potrditev (OK) (D)
Nazaj (ESC) (B)
S temi gumbi in vrtljivim gumbom izvajate programiranje.
Z gumbom ESC lahko greste nazaj za
en nivo in krmilnik ne bo prepisal spremenjenih vrednosti.
S pritiskom gumba OK lahko greste na
naslednji nivo ali potrdite spremenjene
vrednosti.
Ročni nač
in (E)
Ta gumb se uporablja za preklop kotla
v ročni način. V ročnem načinu vse črpalke delujejo in mešalni ventili niso več
krmiljeni, nastavitvena točka gorilnika
pa je prilagodljiva (tovarniška nastavitev
je 60 °C) (označeno s simbolom ključa).
I
L
0
4
ESC
6
-
12
16 20
+
G
24
OK
A
H
B
C
D
Način odzračevanja (E)
Če gumb ročnega načina pridržite dlje
kot 3 sekunde, aktivirate samodejno
odzračevanje hidravličnega sistema.
Sistem med odzračevanjem preklopi v
stanje pripravljenosti. Črpalke se večkrat vklopijo in izklopijo.
Kotel po odzračevanju samodejno preklopi nazaj na normalno delovanje.
Način dimnikarja (F)
Uporablja se za analizo zgorevanja.
Način dimnikarja (označen s simbolom
ključa) se izklopi po ponovnem pritisku
gumba ali pa samodejno po 15 minutah.
Gumb za ponastavitev (H)
S kratkim pritiskom gumba za ponastavitev lahko prekličete zaklep kotla.
E
F
Prvi zagon
Zaslon/programiranje
Izbira pretočnega načina
Izhod iz menija
Izbir
a načina ogrevanja
(Način zaustavitve krmilnika pri pritisku za več kot
3 s)
b
c
Prikazovalnik
0
4
6
ESC
Ponastavitev
-
12
16 20
+
Ogrevanje pri želeni udobni
temperaturi Informacije
aktivirane
Ogrevanje pri želeni varčni
temperaturi Programiranje
aktivirano
Ogrevanje za nastavljeno temperaturo
zaščite pred zmrzaljo
Ogrevanje začasno izklopljeno
Postopek poteka – počakajte, dokler je
funkcija varčevanja aktivna
Gorilnik deluje
(samo pri kotlih na olje/plin)
Gumb za informacije
24
Potrdi
Ročni način
(način odzračevanja pri
pritisku za več kot 3 s)
OK
Način dimnikarja
Izbira
(Vrtenje levo-desno)
Programiranje
Privzeti način
(gumbi)
Pritisnite OK (x 1)
Pritisnite OK (x 1)
Pritisnite gumb INFO (4 s)
Končni uporabnik
-
-
-
-
-
-
-
Prvi zagon
izberite meni
potrdite z gumbom OK
izberite parameter
potrdite z gumbom OK
spremenite vrednost z vrtljivim gumbom +/−
potrdite z gumbom OK
vrnite se v glavni meni z gumbom ESC
(Izhod)
Gumb
Sporočila
o napakah
-
-
-
-
-
-
-
-
-
Dejanje
Nastavitev temperature
prostora
Nastavitev temperature
prostora za ogrevalni krog
1 ali 2
izberite raven uporabnika
potrdite z gumbom OK
izberite meni
potrdite z gumbom OK
izberite parameter
potrdite z gumbom OK
spremenite vrednost z vrtljivim gumbom +/−
potrdite z gumbom OK
vrnite se v glavni meni z gumbom ESC
(Izhod)
Postopek
Aktivirana raven informacij
ECO
Funkcija varčevanja aktivna
Programiranje aktivirano
Ogrevanje začasno izklopljeno
Funkcija počitnic aktivna
Sklic na ogrevalni krog
Vzdrževanje/posebno obratovanje
No.
Številka parametra
Prikazovalnik/funkcija
Ogrevalni krog 1 in ogrevalni
krog 2
Zavrtite vrtljivi gumb levo/desno
Zavrtite vrtljivi gumb
Potrdite z gumbom OK (V redu) ali
počakajte 5 s ali pritisnite
Navedba udobne želene temperature z utripanjem prikaza
Utripanje prikaza temperature od 10 do 30 °C v korakih po 0,5 °C
Ogrevalni krog 2, neodvisen od
ogrevalnega kroga 1
Zavrtite vrtljivi gumb levo
/desno
Potrdite z gumbom OK (V redu)
Zavrtite vrtljivi gumb levo/desno
Potrdite z gumbom OK (V redu)
Izbira ogrevalnega kroga
Ogrevalni krog izbran
Utripanje prikaza temperature od 10 do 30 °C v korakih po 0,5 °C
ali počakajte 5 s ali pritisnite
Vklopite/izklopite pretočno
delovanje
Strokovnjak
INFO
PROG
Pritisnite gumb
Želena udobna temperatura shranjena
Želena udobna temperatura preklicana
- po 3 s se prikaže glavni meni
Želena udobna temperatura shranjena
Želena udobna temperatura preklicana
- po 3 s se prikaže glavni meni
Vklop/izklop pretočnega delovanja
(glejte prikaz pod simbolom za pretočno delovanje)
– Vklopljen: Pretočni način v skladu s časovnim programom
– Izklopljen: pretočni način ne deluje
– Varnostne funkcije aktivirane
89
Prvi zagon
Upravljalni elementi
Gumb
Dejanje
Auto
C
F
Postopek
Prikazovalnik/funkcija
Tovarniška nastavitev
Samodejni način vklopljen:
– Ogrevanje v skladu s časovnim programom
– Nastavljena temperatur
a v skladu s programom ogrevanja
– Varnostne funkcije aktivirane
– Samodejno preklapljanje med poletjem/zimo aktivirano
– Ekološke funkcije aktivirane
(glejte prikaz pod simbolom za obratovanje)
Pritisnite gumb x 1
Neprekinjeno udobno ogrevanje vklopljeno:
– Ogrevanje brez časovnega programa pri želeni udobni temperaturi
– Varnostne funkcije aktivirane
Znova pritisnite gumb x 1
Neprekinjeno varčno ogrevanje vklopljeno:
– Ogrevanje brez časovnega programa pri želeni varčni temperaturi
– Varnostne funkcije aktivirane
– Samodejno preklapljanje med poletjem/zimo aktivirano
– Ekološke funkcije aktivirane
Znova pritisnite gumb x 1
Varnostni način vklopljen:
– Ogrevanje izklopljeno
– Temperatura v skladu z zaščito pred zmrzaljo
– Varnostne funkcije aktivirane
Način ustavitve s kontrolnikom
Pritisnite gumb in ga pridržite več
kot 3 s
Še enkrat pritisnite gumb in ga
pridržite več kot 3 s
304: Način zaustavitve krmilnika
po 3 s se prikaže glavn
i meni
Zaslon z informacijami
Pritisnite gumb x 1
Znova pritisnite gumb x 1
Znova pritisnite gumb x 1
…..
Prikaz informacij o:
- stanju kotla
- stanju pretočnega delovanja
- stanju v območju 1
- stanju v območju 2
– času/datumu
– napakah
– vzdrževanju
Spreminjanje načina
ogrevanja
i
vstavi nastavljeno vrednost
– temperaturi prostora
- minimalni temperaturi prostora
- maksimalni temperaturi prostora –
zunanji temperaturi
- minimalni zunanji temperaturi
- maksimalni zunanji temperaturi
– temperaturi pretočnega delovanja 1
– temperaturi kotla
– temperaturi pretoka
(zasloni z informacijami se razlikujejo glede na konfiguracijo)
Nazaj v glavni meni
Prikaz informacij izgine
Obratovanje z ročno
nastavljeno želeno
temperaturo
Spreminjanje tovarniško
nastavljene temperature kotla
Pritisnite gumb x 1
Pritisnite gumb
Pritisnite gumb
Zavrtite vrtljivi gumb -/+
Pritisnite gumb
Pritisnite gumb
Pritisnite gumb
90
301: Ročni način Vstavi nastavljeno vrednost
Ut
ripanje prikaza temperature
Nastavitev želene vrednosti
Stanje kotla
Ročni način izklopljen (simbol viličastega ključa izgine)
Odzračevanje
Pritisnite gumb in ga pridržite več
kot 3 s
Še enkrat pritisnite gumb in ga
pridržite več kot 3 s
312: Odzračevanje vklopljeno
Odzračevanje izklopljeno
Aktiviranje načina dimnikarja
Pritisnite gumb in ga pridržite manj
kot 3 s
Še enkrat pritisnite gumb in ga
pridržite manj kot 3 s
Način dimnikarja vklopljen
Način dimnikarja izklopljen
Začasno znižanje varčne
temperature v QAA75
Pritisnite gumb
Znova pritisnite gumb
Ogrevanje v skladu z želeno varčno temperaturo
Ogrevanje v skladu z želeno udobno temperaturo
Gumb za ponastavitev
Pritisnite gumb in ga pridržite manj
kot 3 s
Še enkrat pritisnite gumb in ga
pridržite več kot 3 s
Kotel ročno blokiran, brez odblokiranja
Kotel odblokiran, simbol za alarm izgine
j
C
Ročni način vklopljen (prikaže se simbol viličastega ključa)
– Ogrevanje v skladu z vnaprej
določeno želeno temperaturo (tovarniška
nastavitev = 60 °C)
Prvi zagon
Analiza zgorevanja
Preverjanje zgorevanja pri največji
obremenitvi
Zaženite kotel v načinu zaustavitve krmilnika in preklopite na 50-odstotno
obremenitev. Kotel zdaj deluje s 50-odstotno obremenitvijo. Počakajte 3 minute, da se zgorevanje v kotlu stabilizira.
Nato postopoma povečujte obremenitev
kotla do 100 %.
Najprej preverite vrednosti zgorevanja
na gorilniku predvžiga prek merilne cevi
na zadnjem delu kotla (3). Vrednosti lahko popravite z nastavitvenim vijakom na
predkrmilnem plinskem ventilu (2).
Nato preverite vrednosti zgorevanja glavnega gorilnika s pomočjo merilne točke v
dimovodnem sistemu (4). Vrednosti lahko popravite z nastavitvenim vijakom na
glavnem plinskem ventilu (5).
Pozor: Kadar spreminjate vrsto plina
G20/G25/G31, največjo obremenitev
glavnega gorilnika nastavite z zapornim
ventilom (1).
Nastavitev je zelo občutljiva, zato izvedite le majhne prilagoditve! Manjše število
na z
apornem ventilu pomeni večjo količino plina, večje število pa manjšo količino
plina.
-
+-
3
4
Preverjanje zgorevanja pri najmanjši
obremenitvi
Kotel preklopite na najmanjšo obremenitev (0 %). Nastavitve zgorevanja preverite na enak način, kot je opisano za
največjo obremenitev. Nastavitve zgorevanja za gorilnik predvžiga lahko nastavite z nastavitvenim vijakom na plinskem
ventilu predvžiga (6). Nastavitve zgorevanja za glavni gorilnik lahko nastavite z nastavitvenim vijakom na glavnem plinskem
ventilu (7).
Preverjanje zgorevanja pri 50-odstotni
obremenitvi
Priporočeno je dodatno referenčno preverjanje vrednosti zgorevanja pri 50-odstotni obremenitvi, da se preveri, ali je
plinski ventil nastavljen tako, da je modulacijsko delovanje običajno. Vrednost CO2
bi morala biti med nastavitvama za največjo in najmanjšo obremenitev. Vrednost
CO bi morala biti enaka vrednostma pri
največji in najmanjši obremenitvi.
Gorilnik predvžiga
Nastavitve zgorevanja za zemeljski p
lin
G20/G25
Vsi kotli
CO2 maks
%
Maks. CO
ppm
Min. CO2
%
Min. CO
ppm
10,0 ± 0,2
< 1000
10,2 ± 0,2
< 1000
Gorilnik predvžiga
Nastavitve zgorevanja za UNP G31
Vsi kotli
Maks. CO2
%
Maks. CO
ppm
Min. CO2
%
Min. CO
ppm
11,0 ± 0,2
< 1000
11,2 ± 0,2
< 1000
Glavni gorilnik
Nastavitve zgorevanja za zemeljski plin
G20/G25
Vsi kotli
Maks. CO2
%
Maks. CO
ppm
Min. CO2
%
Min. CO
ppm
10,0 ± 0,2
< 30
9,3 ± 0,2
< 30
Glavni gorilnik
Nastavitve zgorevanja za UNP G31
Vsi kotli
Maks. CO2
%
Maks. CO
ppm
Min. CO2
%
Min. CO
ppm
11,0 ± 0,2
< 30
11,0 ± 0,2
< 30
Ko bo preizkus zgorevanja opravljen,
preverite, ali je kotel nastavljen na samodejno delovanje in je način zaustavitve
krmilnika onemogočen.
91
Prvi zagon
Stikalo za zračni tlak
Stikalo za nastavitev zračnega tlaka
Na merilne točke, ki so označene na
stikalu (3), priključite merilnik tlaka. Kotel
zaženite pri najmanjši obremenitvi
(0 %). Izmerite razliko v tlaku v stikalu
med zagonom. Izmerjen
i tlak bi moral
znašati 0,8 mbar ali več.
Za nastavitev tlaka zavrtite vrtljivi gumb
na stikalu (4).
Razlika med izmerjenim tlakom in
nastavljenim tlakom bi morala znašati
najmanj 0,4 mbar.
3
4
Preverjanje pretoka vode
Pretok vode skozi kotel lahko preverite z
eno ali drugo zgoraj prikazano metodo.
Meritev ∆T
Preverite razliko v temperaturi znotraj
kotla (∆T dovod-odvod), ko kotel deluje
pri 100 % obremenitvi.
Nominalna razlika ∆T je 20 K in mora
znašati vsaj med 15 in 30 K, če želite zagotoviti varno delovanje kotla.
Približek dejanskega pretoka lahko ugotovite s pomočjo spodnjega izračuna:
Meritev ∆p
Preverite razliko v tlaku znotraj kotla (∆p
dovod-odvod), ko je zagnana črpalka
kotla (ne zahteva vklopljenega gorilnika). Nominalna razlika ∆p za vsako vrsto kotla lahko najdete v spodnji tabeli,
dejanska vrednost ∆p mora biti znotraj:
0,35*Δpnom ≤ ∆P ≤ 1,75*∆pnom . Približek dejanskega pretoka lahko ugotovite
s pomočjo spodnjega izračuna:
92
qdejanski = (∆Tnominalna/ ∆Tizmerjena) * qnominalen [m3/h]
qdejanski = √(∆pizmerjen / ∆pnominalen) * qnominalen [m3/h]
Prvi zagon
Preverjanje delovanja varnostnih naprav
Preverjanje delovanja varnostnih naprav
Vse varnostne naprave morate preveriti,
da zagotovite pravilno delovanje. Varnostne naprave na standardnem kotlu:
senzor temperature pretoka vode, stikalo pretoka vode, stikalo za najmanjši
tlak plina in ionizacijska elektroda. Te naprave lahko preverite na spodaj opisan
način.
1
Senzor temperature pretoka zraka (1)
Vtič odklopite iz senzorja pri vklopljenem
kotlu. S tem bi morali sprožiti blokado št.
20.
Blokada bi morala izginiti takoj, ko vtič
postavite nazaj v položaj. Kotel se bo
znova zagnal.
2
3
Stikalo pretoka vode (2)
Zaprite (počasi!) ventil na dovodnem priključku sistema, ko kotel deluje pri minimalni obremenitvi.
Ko je ventil že skoraj zaprt in pretok vode
ni več zadosten, se stikalo pretoka vode
izklopi in kotel bo sprožil blokado 164
.
Odprite ventil. Zahtevana je ročna ponastavitev.
5
4
Stikalo minimalnega plinskega tlaka
(4).
Plinski ventil zaprite, ko je kotel v stanju
pripravljenosti ( ). Odprite preizkusno
točko na plinskem ventilu (3) med merjenjem plinskega tlaka na preizkusni točki
stikala plinskega tlaka (5).
Ko je dosežena nastavitev izklopa stikala, bo kotel sprožil blokado št. 132. Zaprite obe preizkusni točki in odprite plinski
ventil.
b
6
Ionizacijska elektroda (7)
Če vtič odklopite iz ionizacijske elektrode
med delovanjem kotla, bo ta sprožil blokado št. 128. Kotel se bo znova zagnal.
Če je vtič odstranjen, se po ponovnem
zagonu sproži blokado št. 133.
Ko je vtič že nameščen, bo ponovni zagon uspešen.
Ionizacijski tok lahko izmerite tako, da
namestite multimeter (nastavljen na µA)
med ionizacijsko elektrodo in njen električni priključek.
Ionizacijski tok bi moral vedno biti nad
1,51 µA, v normalnih pogojih bo vsaj 8
µA.
Preverjanje pričvrstitve plinskih priključkov
Pre
verite pričvrstitev vseh zatesnjenih
priključkov z odobrenim milnim ali elektronskim analizatorjem plinov, na primer:
• Preizkusne točke
• Vijačni priključki
• Tesnila mešalnega sistema ipd.
Zaustavitev kotla
Če kotla dlje časa ne boste uporabljali,
ga zaustavite s pomočjo naslednjega postopka:
• Kotel preklopite na stanje pripravljenosti ( )
• Kotel izklopite s stikalom za vklop/
izklop (6).
• Onemogočite napajalnik kotla tako,
da izklopite ločilno stikalo v sobi za
kotel.
• Zaprite dovod plina v kotel.
b
7
7
93
Prvi zagon
Preverjanje delovanja varnostnih naprav
8
9
Senzor povratne temperature (8)
Vtič odklopite iz senzorja pri vklopljenem
kotlu.
S tem bi morali sprožiti blokado št. 40.
Blokada bi morala izginiti takoj, ko vtič
postavite nazaj v položaj. Kotel se bo
znova zagnal.
94
Senzor temperature dimnih plinov (9)
Vtič odklopite iz senzorja pri vklopljenem
kotlu. S tem bi morali sprožiti blokado št.
28.
Blokada bi morala izgin
iti takoj, ko vtič
postavite nazaj v položaj. Kotel se bo
znova zagnal.
Prvi zagon
Protokol prvega zagona
Protokol prvega zagona TRIGON XXL
Projekt
Tip kotla
Projekt
Serijska številka
Naslov
Leto
Mesto
Nominalna obremenitev (Hi)
[kW]
Datum
Nazivna izhodna moč
[kW]
Inženir
Sistem
Tlak vode
[bar]
pH vode
[-]
Trdota vode
[°dH]
Klor v vodi
[mg/l]
Drugo: .........................
ΔT vode pri polni obremenitvi
[°C]
nizkohitrostni zbiralnik
Δpkotla za vodo
[kPa]
Nastavitev črpalke
streha
Pritličje
Namestitev:
Klet
Hidravlika:
Lamelni toplotni izmenjevalec
[-]
Drugo: .........................
□
□
□
□
□
□
□
Varnostne naprave
Nastavitev visoke omejitve
Nastavitev naprave za omejitev temp.
Min. nastavitev stikala plinskega tlaka
Čas vžiga gorilnika
[°C]
Senzor temp. pretoka
[°C]
Senzor povratne temp.
□
□
□
□
[mbar] Senzor temp. dimnih plinov
[s]
Stikalo za zračni tlak
Analiza zgorevanja
Poraba p
lina
Plinski tlak
Gorilnik predvžiga CO2
Gorilnik predvžiga O2
Gorilnik predvžiga CO
Gorilnik predvžiga NOx
Glavni gorilnik CO2
Glavni gorilnik O2
Glavni gorilnik CO
Glavni gorilnik NOx
T atmosferska
T dimnih plinov
T voda, pretok
T voda, povratek
Ionizacijski tok
P ventilator
P zgornja plošča
P zgorevalna komora
Komentarji
100 % obremenitev
[m3/h]
[mbar]
[%]
[%]
[ppm]
[ppm]
[%]
50 % obremenitev
[m3/h]
[mbar]
[%]
[%]
[ppm]
[ppm]
[%]
[%]
[ppm]
[ppm]
[°C]
[°C]
[°C]
[°C]
[μA]
[mbar]
[mbar]
[mbar]
[%]
[ppm]
[ppm]
[°C]
[°C]
[°C]
[°C]
[μA]
[mbar]
[mbar]
[mbar]
Najm. obremenitev
[m3/h]
[mbar]
[%]
[%]
[ppm]
[ppm]
[%]
[%]
[ppm]
[ppm]
[°C]
[°C]
[°C]
[°C]
[μA]
[mbar]
[mbar]
[mbar]
95
Vzdrževanje
Kontrolni seznam
Vzdrževanje grelnika naj izvaja samo pooblaščeno osebje.
Če želite zagotoviti nadaljnje ustrezno in
varno delovanje grelnika, ga preglejte vsaj
enkrat letno. Izpolniti morate protokol vzdrževanja (primer protokola vzdrževanja si
lahko ogledate na ko
ncu tega poglavja).
Kontrolni seznam
Opraviti morate naslednje dejavnosti. Za
podroben opis glavnih dejavnosti si oglejte
naslednje odstavke:
•
•
•
•
•
•
•
•
Zamenjajte vžigalne in ionizacijske
elektrode.
Očistite zbiralnik kondenzata.
Očistite in montirajte sifon in zbiralnik
za nečistoče.
Preverite tlak vode v sistemu.
Preverite kakovost vode v sistemu in
dovod vode.
Preverite pretok vode skozi grelnik.
Z analizatorjem zgorevanja preverite/popravite vrednosti zgorevanja pri
polni in najmanjši obremenitvi.
Preverite tlak plina v grelniku.
Zamenjava elektrod
Položaj elektrod:
Vžigalna elektroda (1) in ionizacijska
elektroda (2) sta na desni strani zadnje
plošče kotla.
Druga ionizacijska elektroda je pod ohišjem na levi plošči sprednje strani kotla.
1
2
2
96
•
•
•
Preverite tesnjenje vseh zatesnjenih
priključkov in preizkusnih točk.
Preverite delovanje vseh varnostnih
naprav.
Izpolnite protokol vzdrževanja.
OPOZORILO: V primeru za
htevanih
vzdrževalnih postopkov, ki vključujejo razstavljanje plinskih cevi, pri
vnovičnem sestavljanju plinskih
cevi ne sme priti do notranjih napetosti
Vzdrževanje
Kontrolni seznam
Tlak in kakovost vode
Preverite, ali tlak in kakovost vode
izpolnjujeta zahteve. Preučite poglavje
»prvi zagon: voda in hidravlični sistem«
za bolj podrobne informacije.
Pretok vode
Preverite, ali je pretok vode skozi grelnik
znotraj meja. Preučite poglavje »prvi
zagon: preverite pretok vode« za bolj
podrobne informacije.
Analiza zgorevanja
Preverite zgorevanje pri polni obremenitvi
in najmanjši obremenitvi in po potrebi
popravite nastavite. Priporočeno je
dodatno referenčno preverjanje pri
50 % obremenitvi. Preučite poglavje
»prvi zagon: analiza zgorevanja« za bolj
podrobne informacije.
Plinski tlak
Preverite dinamični tlak dovoda plina v
kotel, ko kotel deluje pri polni obremenitvi.
V primeru kaskadnih kotlov morajo vsi
kotli delovati pri polni obremenitvi. Za
zahtevane vrednosti g
lejte tehnične
podatke.
Nadzor tesnjenja dovoda plina
Preverite pričvrstitev vseh zatesnjenih
priključkov z odobrenim milnim ali elektronskim analizatorjem plinov, na primer:
• Preizkusne točke
• Navojni priključki
• Tesnila mešalnih ventilov ipd.
Varnostne naprave
Preverite funkcionalnost in pravilno delovanje vseh povezanih varnostnih naprav.
Če želite več informacij, glejte poglavje
»Prvi zagon«
Funkcija: nadzor delovanja varnostnih
naprav«.
Čiščenje zbiralnika kondenzata
• Odstranite loputo za pregled (2)
za dostop do notranjosti zbiralnika
kondenzata.
• Očistite zbiralnik.
• Namestite loputo za pregled.
3
4
Čiščenje in polnjenje sifona in
zbiralnika za nečistoče
• Odstranite zbiralnik za nečistoče (3)
in sifon (4) s priključka kondenzata.
• Zbiralnik za nečistoče odprite tako,
da pokrovček obrnete v levo.
• Očistite ju in ju napolnite s čisto
vodo.
• Sifon in zbiralnik za nečistoče namestite nazaj v prvotni položaj.
97
Vzdrževanje
Protokol vzdrževanja
Kontrolni seznam protokola vzdrževanja TRIGON XXL
Projekt
Tip kotla
Projekt
Serijska številka
Naslov
Leto
Mesto
Nominalna obremenitev (Hi)
[kW]
Datum
Nazivna izhodna moč
[kW]
Inženir
Sistem
Tlak vode
pH vode
Trdota vode
Klor v vodi
ΔT vode pri polni obremenitvi
[bar]
[-]
[°dH]
[mg/l]
[°C]
Δpkotla za vodo
[kPa]
[-]
Nastavitev visoke omejitve
[°C]
Senzor temp. pretoka
Nastavitev naprave za omejitev temp.
[°C]
Senzor povratne temp.
Nastavitev črpalke
Varnostne naprave
Min. nastavitev stikala plinskega tlaka
Čas vžiga gorilnika
□
□
□
□
[mbar] Senzor temp. dimnih plinov
[s]
Stikalo za zračni tlak
Analiza zgorevanja
Poraba plina
Plinski tlak
Gorilnik predvžiga CO2
Gorilnik predvžiga O2
Gorilnik predvžiga CO
Gorilnik predvžiga NOx
Glavni gorilnik CO2
Glavni gorilnik O2
Glavni gorilnik CO
Glavni gorilnik NOx
T atmosferska
T dimnih plinov
T voda, pretok
T voda, povratek
Ionizacijski
tok
P ventilator
P zgornja plošča
P zgorevalna komora
Komentarji
98
100 % obremenitev
[m3/h]
[mbar]
[%]
50 % obremenitev
[m3/h]
[mbar]
[%]
Najm. obremenitev
[%]
[ppm]
[ppm]
[%]
[%]
[ppm]
[ppm]
[%]
[%]
[ppm]
[ppm]
[%]
[%]
[ppm]
[ppm]
[°C]
[°C]
[°C]
[°C]
[μA]
[mbar]
[mbar]
[mbar]
[%]
[ppm]
[ppm]
[°C]
[°C]
[°C]
[°C]
[μA]
[mbar]
[mbar]
[mbar]
[%]
[ppm]
[ppm]
[°C]
[°C]
[°C]
[°C]
[μA]
[mbar]
[mbar]
[mbar]
[m3/h]
[mbar]
[%]
Blokade
Seznam kod napak
v
V primeru blokade se na zaslonu prikažeta opozorilni simbol (
) in utripajoča koda napake. Vzrok napake morate identificirati in odstraniti pred ponastavitvijo kotla. V spodnji tabeli so navedene vse možne blokade z navedbo možnega vzroka.
Za ponastavitev napake na pretvorniku frekvence morate do konca izklopiti kotel.
Preden znova vklopite napajanje počakajte, da bo zaslon pretvornika frekvence popolnoma prazen.
Če prehitro vklopite napajanje, bo napaka ostala.
Seznam kod napak
Krmilna LMS14 podpira 16-b
itno kodo napake. Če se ustrezna 8-bitna koda razlikuje od 16-bitne kode napake, bo navedena v
oklepaju.
Koda
napake
Opis napake
Koda
napake
Opis napake
0
Ni napake
103
Komunikacijska napaka
10
Napaka senzorja zunanje temperature
105
Sporočilo o vzdrževanju
20
Napaka senzorja temperature kotla 1
109
Nadzor temperature v kotlu
26
Napaka senzorja temperature skupnega pretoka
110
Blokada SLT
28
Napaka senzorja temperature dimnih plinov
111
Izrez TL
30
Napaka senzorja temperature pretoka 1
121
Nadzor temperature pretoka 1 (HC1)
32
Napaka senzorja temperature pretoka 2
122
Nadzor temperature pretoka 2 (HC2)
38
Napaka senzorja primarnega krmilnika
temperature pretoka
125
Napaka nadzora nad črpalko
40
Napaka senzorja povratne temperature 1
126
Nadzor nad polnjenjem pri pretočnem delovanju
46
Napaka senzorja povratne temperature
kaskadnega pretoka
127
Temperatura za preprečevanje legionele ni
dosežena
47
Napaka senzorja povratne temperature
skupnega
pretoka
128
Izguba plamena med delovanjem
129
Napaka ventilatorja ali napaka LP
130
Prekoračena omejitev za temperaturo dimnih
plinov
131
Napaka gorilnika
132
Napaka GP ali LP
50
Napaka senzorja temperature pretočnega
delovanja 1
52
Napaka senzorja temperature pretočnega
delovanja 2
54
Napaka senzorja primarnega krmilnika
pretočnega delovanja
133
Med varnostnim časom ni plamena
146
Skupno sporočilo napake pri konfiguraciji
Napaka senzorja temperature pretočnega
delovanja
151
Notranja napaka
152
Napaka pri nastavitvi parametrov
153
Ročno zaklenjena enota
160
Napaka ventilatorja
162
Napaka LP, ne zapre se
Napaka senzorja temperature v vmesnem
rezervoarju 2
164
Odprt kontakt stikala pretoka kotla
166
Napaka LP, ne odpre se
Napaka senzorja temperature v vmesnem
rezervoarju 3
171
Dejaven kontakt alarma H1 ali H4
172
Dejaven kontakt alarma H2 (EM1, EM2 ali EM3)
ali H5
57
60
Napaka senzorja temperature prostora 1
65
Napaka senzorja
temperature prostora 2
70
Napaka senzorja temperature v vmesnem
rezervoarju 1
71
72
73
Napaka senzorja temperature zbiralnika 1
74
Napaka senzorja temperature zbiralnika 2
173
Dejaven kontakt alarma H6
82
Spor naslovov LPB
174
Dejaven kontakt alarma H3 ali H7
83
Kratek stik žice BSB
178
Omejite tokokrog za ogrevanje termostata 1
84
Spor naslovov BSB
179
Omejite tokokrog za ogrevanje termostata 2
85
Komunikacijska napaka BSB RF
183
Enota v načinu nastavitve parametrov
91
Informacije blokade napake EEPROM
193
Napaka nadzora črpalke po vžigu plamena
98
Napaka podaljška 1 (napaka zbiralnika)
216
Napaka kotla
99
Napaka podaljška 2 (napaka zbiralnika)
217
Napaka senzorja
100
2 glavni uri (LPB)
241
Napaka pretoka, napaka solarnega senzorja
102
Glavna ura brez rezerve (LPB)
242
Povratni senzor, napaka solarnega senzorja
99
Blokade
Seznam kod napak
Vzdrževalna koda
Koda
napake
243
Napaka senzorja temperature v bazenu
270
Omejitev delovan
ja
317
Frekvenca napajanja zunaj dovoljenega razpona
320
Napaka senzorja temperature pretočnega polnjenja
324
Enaki senzorji BX
325
BX / enaki senzorji modula podaljška
326
BX / mešanje istih senzorjev v skupini
327
Ista funkcija modula podaljška
328
Ista funkcija mešane skupine
329
Modul podaljška/ista funkcija mešalne skupine
330
Senzor BX1 brez funkcije
331
Senzor BX2 brez funkcije
332
Senzor BX3 brez funkcije
333
Senzor BX4 brez funkcije
334
Senzor BX5 brez funkcije
335
Senzor BX21 brez funkcije (EM1, EM2 ali EM3)
336
Senzor BX22 brez funkcije (EM1, EM2 ali EM3)
337
Senzor BX1 brez funkcije
338
Senzor BX12 brez funkcije
339
Črpalka zbiralnika Q5 ni na voljo
340
Črpalka zbiralnika Q16 ni na voljo
341
Senzor solarnega zbiralnika B6 ni na voljo
342
Senzor zbiralnika pretočnega delovanja B31 ni na voljo
343
Solarna integracija ni na voljo
344
Vmesni solarni krmilni element K8 ni na voljo
345
Solarni krmilni element za bazen K18
ni na voljo
346
Črpalka kotla na trda goriva Q10 ni na voljo
347
Senzor primerjave kotla na trda goriva ni na voljo
348
Napaka naslova kotla na trda goriva
349
Vmesni povratni ventil Y15 ni na voljo
350
Senzor naslova puhala
351
Primarni krmilnik/napaka naslova črpalke sistema
352
Napaka naslova zbiralnika brez tlaka
353
Skupni senzor pretoka B10 ni na voljo
371
Nadzor temperature pretoka 3 (tokokrog za ogrevanje 3)
372
Omejite tokokrog za ogrevanje termostata 3
373
Napaka podaljška 3 (napaka zbiralnika)
386
Hitrost ventilatorja je izgubil veljaven razpon
388
Napaka pretočnega delovanja brez funkcije
426
Loputa za povratne dimne pline
427
Konfiguracija lopute za dimne pline
431
Primarni toplotni izmenjevalnik senzorja
432
Funkcijska ozemljitev ni priključena
433
Previsoka temperatura v primarnem toplotnem
izmenjevalniku
100
Vzdrževalna koda
Opis napake
vzdrževanje
koda
Opis vzdrževanja
1
Preseženo število ur gorilnika
2
Preseženo
število zagonov gorilnika
3
Presežen interval vzdrževanja
5
Prešibko ogrevanje vodnega tlaka v
krogotoku
(padlo pod spodnjo omejitev tlaka 1)
10
Zamenjajte baterije v zunanjem senzorju
18
Prenizek tlak vode v 2 tokokrogih za
ogrevanje
(padlo pod spodnjo omejitev tlaka 2)
22
Prenizek tlak vode v 3 tokokrogih za
ogrevanje
(padlo pod spodnjo omejitev tlaka 3)
25
Aktivirano samodejno polnjenje vode
Vrednosti senzorjev
Senzor temperature NTC 10 kΩ
(pretok, povratek, dimni plini, pretočno delovanje in senzor zbiralnika)
60000
Med merjenjem vrednosti upora mora biti
kotel vedno izklopljen. Meritve izvajajte v
bližini senzorja, da se izognete odstopanjem vrednosti.
55000
50000
45000
Resistance
Upor
[Ω] [Ohm]
Diagrami prikazujejo vrednosti vseh
senzorjev kotlov in izbirnih senzorjev,
ki so na voljo v kompletih dodatkov.
Diagrami vsebujejo povprečne vrednosti,
saj imajo vsi senzorji tolerance.
40000
35000
30000
25000
20000
15000
10000
5000
0
-10
0
10
20
30
40
5
0
60
70
80
90 100 110
Temperatura
Tem perature [°C]
[ºC]
Senzor temperature NTC 1 kΩ
(zunanji senzor)
7500
7000
6500
6000
Upor
[Ω] [Ohm]
Resistance
5500
5000
4500
4000
3500
3000
2500
2000
1500
1000
500
-20
-10
0
10
20
30
40
Temperatura
Tem perature [°C]
[ºC]
101
Diagram ožičenja
Električni priključki SE 650 - SE 1200
ECO 650 - ECO 1050
EVO 700 - EVO 1100
Električni priključki
povezave
Opis
L1 / L2 / L3 /
N / PE
Priključitev napajanja
230 V AC + 10–15 %
50 Hz, 16A
Rezerviran QX2
9
10 (N)
13 / 14 / 15 /
16 / 17 / 18
29 (splošno)
30 (alarm)
31 (OK)
32 (splošno)
33 (ON)
34 (OFF)
102
103 (GND)
104
105 (GND)
108
109 (GND)
110
111 (GND)
112
113 (GND)
114
115 (GND)
116
117 (GND)
118
119 (GND)
120
121 (GND)
130 (CL+)
131 (CL-)
132 (G+)
137
138 (GND)
139 (DB)
140 (MB)
141
142
MR (rele)
2 T1
4 T2
6 T3
14 N0
F1 (varovalka)
102
Vhod blokade
230 V AC
5 mA...1A, cos φ > 0,6
OK/signal alarma (brez potenciala)
230 V AC + 10–15 %
Maks. 10 mA ...
1 A
Delovni signal (brez potenciala)
230 V AC + 10–15 %
Maks. 10 mA ... 1 A
Poljubno programirljiv BX1
l ≤ 120 m NTC 10 kΩ
Glavni temp. senzor BX2
l ≤ 120 m NTC 10 kΩ
Termostat/senzor temperature B3/B38 v pretočnem načinu
(Parameter) l ≤ 10 m 5 V DC
Senzor zunanje temp. B9
l ≤ 120 m NTC 1 kΩ
Zunanji vpliv H1
0,15-10 V DC l ≤ 10 m Ri >100 kΩ
Poljubno programirljiv H4
Omogočanje kotla H5
l ≤ 120 m 5 V DC/2 mA
Hitrostno krmiljena črpalka
0-10 V DC Imaks. 2,7 mA SELV
Navedba zmogljivosti grelca
0-10 V DC Imaks. 2,7 mA SELV
QAA75
Sobna enota
Črpalka za PWM
LPB-vodilo
Zagon/zaustavitev
Hitrostno krmiljena črpalka
Maks. 24 V AC, Maks. 10 mA...1 A
Črpalka kotla/obvodna črpalka
AC3 380/400VAC 4KW Maks.
Glejte stran 80
6A CC, 500 V (10,3 mm x 38 mm)
Tip SE 650 - SE 750
Tip ECO 650 - ECO 750
Tip EVO 700 - EVO 800
10 A CC, 500 V (10,3 mm x 38 mm)
Tip SE 850 - SE 1200
Tip ECO 850 - ECO 1050
Tip EVO 900 - EVO 1100
Senzor za tlak vode
Pmin. zračno stika
lo
Senzor povratne temp.
Senzor temp. pretoka
LPB-vodilo
Pmin. zračni ventil
Ventilator
Upravljalnik kaskadne
logike
Prikazovalnik
1 Med priključitvijo odstranite žični mostiček ali upor
2 Izbirno
3 Pri priključitvi termostata so zahtevani visokokakovostni prevodniški materiali!
(npr. pozlačeni kontakti)
4 Med priključitvijo hitrostno krmiljene črpalke:
(samo za različice ECO in EVO)
Žica MR A1 → 7 ponovna napeljava v MR A1 → 5
Žica MR A2 → 8 ponovna napeljava v MR A2 → 6
- Nizkonapetostni kontakti v skladu s standardi in direktivami za zaščito z varnostno malo
napetostjo (SELV).
- Premer kabla za zunanje senzorje. Glejte tabelo
Črpalka kotla/
obvodna črpalka
Glejte dodatek
Črpalka kotla/
obvodna črpalka
Glejte dodatek
Inverter
frekvence
Hallov senzor
Rdeča
Bela
Črna
Plinski ventil
predvžiga
Varovalka notranje enote LMS je 2x T6,3 A, H 250 V
Skupni tok pri 230 V AC, T 25 je 5 A
Minimalna vrednost
stikala plinskega tlaka
Stikalo za vklop/
izklop
Glavni gorilnik z
ionizacijo
Gorilnik elektrode
predvžiga z ionizacijo
Vžigalni
Vžigalni transformator
transformator
Vhod
blokade
Gorilnik predvžiga iz ionizacijo
Varovanje pred
plameni
Delovni
signal
OK (V redu)
Alarm
Signal
Splošno
Alarm
Splošno
IZKLOP
VKLOP
Zagon/zaustavitev
Hitrostno krmiljena
črpalka
Glavni plinski ventil
Diagram ožičenja
SE 650 - SE 1200
ECO 650 - ECO 1050
EVO 700 - EVO 1100
103
Senzor temp. dimnih
plinov
Glavni senzor temp.
Termostat ali senzor
temp. za pretočno
delovanje
(parameter)
Senzor zunanje temp.
Zunanji vpliv 0–10
0,15–10 V DC
Stikalo pretoka
Navedba zmogljivosti grelca
0-10 V DC lmaks. 2,7 m SELV
Hitrostno krmiljena črpalka
0-10 V DC lmaks. 2,7 m SELV
Omogočanje kotla
Diagram ožičenja
Električni priključki SE 1300 - SE 1900
ECO 1150 - ECO 1600
EVO 1200 - EVO 1700
Električni priključki
povezave
Opis
L1 / L2 / L3 /
N / PE
Priključitev napajanja
230 V AC + 10–15 %
50 Hz, 16A
Rezer
viran QX2
9
10 (N)
13 / 14 / 15 /
16 / 17 / 18
29 (Splošno)
30 (alarm)
31 (OK)
32 (Splošno)
33 (ON)
34 (OFF)
102
103 (GND)
104
105 (GND)
108
109 (GND)
110
111 (GND)
112
113 (GND)
114
115 (GND)
116
117 (GND)
118
119 (GND)
120
121 (GND)
130 (CL+)
131 (CL-)
132 (G+)
137
138 (GND)
139 (DB)
140 (MB)
141
142
MR (rele)
2 T1
4 T2
6 T3
14 N0
F1 (varovalka)
104
Vhod blokade
230 V AC
5 mA...1A, cos φ > 0,6
OK/signal alarma (brez potenciala)
230 V AC + 10–15 %
Maks. 10 mA ... 1 A
Delovni signal (brez potenciala)
230 V AC + 10–15 %
Maks. 10 mA ... 1 A
Poljubno programirljiv BX1
l ≤ 120 m NTC 10 kΩ
Glavni temp. senzor BX2
l ≤ 120 m NTC 10 kΩ
Termostat/senzor temperature B3/B38 v pretočnem načinu
(Parameter) l ≤ 10 m 5 V DC
Senzor zunanje temp. B9
l ≤ 120 m NTC 1 kΩ
Zunanji vpliv H1
0,15-10 V DC l ≤ 10 m Ri >100 kΩ
Poljubno programirljiv H4
Omogočanje kotla H5
l ≤ 120 m 5 V DC/2 mA
Hitrostno krmiljena črpalka
0-10 V DC Imaks. 2,7 mA SELV
Navedba zmogljivosti gr
elca
0-10 V DC Imaks. 2,7 mA SELV
QAA75
Sobna enota
Črpalka za PWM
LPB-vodilo
Zagon/zaustavitev
Hitrostno krmiljena črpalka
Maks. 24 V AC, Maks. 10 mA...1 A
Črpalka kotla/obvodna črpalka
AC3 380/400VAC 11KW Maks.
Glejte stran 80
10 A CC, 500 V (10,3 mm x 38 mm)
Tip SE 1300 - SE 1500
Tip ECO 1150 - ECO 1300
Tip EVO 1200 - EVO 1400
15 A CC, 500 V (10,3 mm x 38 mm)
Tip SE 1700 - SE 1900
Tip ECO 1450 - ECO 1600
Tip EVO 1550 - EVO 1700
Senzor za tlak vode
Pmin. zračno stikalo
Senzor povratne temp.
Senzor temp. pretoka
LPB-vodilo
Pmin. zračni ventil
Ventilator
Upravljalnik kaskadne
logike
Prikazovalnik
1 Med priključitvijo odstranite žični mostiček ali upor
2 Izbirno
3 Pri priključitvi termostata so zahtevani visokokakovostni prevodniški materiali!
(npr. pozlačeni kontakti)
4 Med priključitvijo hitrostno krmiljene črpalke:
(samo za različice ECO in EVO)
Žica MR A1 → 7 ponovna napeljava v MR A1 → 5
Žica MR A2 → 8 ponovna napeljava v MR A2 → 6
-
Nizkonapetostni kontakti v skladu s standardi in direktivami za zaščito z varnostno malo
napetostjo (SELV).
- Premer kabla za zunanje senzorje. Glejte tabelo
BODITE POZORNI!
ZUNANJA NAPETOST
Črpalka kotla/
obvodna črpalka
Glejte dodatek
Inverter
frekvence
Hallov senzor
Rdeča
Bela
Črna
Plinski ventil
predvžiga
Varovalka notranje enote LMS je 2x T6,3 A, H 250 V
Skupni tok pri 230 V AC, T 25 je 5 A
Minimalna vrednost
stikala plinskega tlaka
Stikalo za vklop/izklop
Glavni gorilnik z
ionizacijo
Gorilnik elektrode
predvžiga z ionizacijo
Vžigalni transformator
Vhod
blokade
Rjava
Modra
Rdeča
Nadzor tesnjenja
Gorilnik predvžiga
iz ionizacijo
Bela
Alarm
Splošno
OK (V redu)
IZKLOP
Splošno
VKLOP
Signal
alarma
Delovni
signal
Zagon/zaustavitev
Hitrostno krmiljena
črpalka
Glavni plinski ventil
Varovanje
pred
plameni
Diagram ožičenja
SE 1300 - SE 1900
ECO 1150 - ECO 1600
EVO 1200 - EVO 1700
105
Senzor temp. dimnih
plinov
Glavni senzor temp.
Termosta
t ali senzor
temp. za pretočno
delovanje
(parameter)
Senzor zunanje temp.
Zunanji vpliv 0–10
0,15–10 V DC
Stikalo pretoka
Navedba zmogljivosti grelca
0-10 V DC lmaks. 2,7 m SELV
Hitrostno krmiljena črpalka
0-10 V DC lmaks. 2,7 m SELV
Omogočanje kotla
Izjava o skladnosti
Izjava o skladnosti
Elco BV, Hamstraat 76, 6465 AG Kerkrade (NL),
Izjavlja, da izdelek
TRIGON XXL
izpolnjuje zahteve naslednjih standardov:
EN 15502-1
EN 15502-2-1
EN 55014-1 / -2
EN 61000-3-2 /-3
EN 60335-1/ -2
V skladu s smernicami naslednjih direktiv:
1992/42/EEC (direktiva o učinkovitosti kotlov)
2016 / 426 / EEC (direktiva o napravah na plinsko
gorivo)
2014 / 35 / EU (direktiva o nizkonapetostni opremi)
2014 / 30 / EU (direktiva o elektromagnetni združljivosti)
Ta izdelek je zasnovan s številko CE:
CE 0063CR3158
Kerkrade, 30-07-2018
A.J.G. Schuiling
Plant Manager
106
Opomba
-------------------------------------------
-------------------------------------------
------------------------
-------------------
------------------------------------------
-------------------------------------------
-------------------------------------------
-------------------------------------------
-------------------------------------------
-------------------------------------------
-------------------------------------------
-------------------------------------------
-------------------------------------------
------------------------------------------
-------------------------------------------
-------------------------------------------
-------------------------------------------
-------------------------------------------
------------------------------------------
-------------------------------------------
-------------------------------------------
-------------------------------------------
-------------------------------------------
-------------------------------------------
-------------------------------------------
-------------------------------------
------
-------------------------------------------
------------------------------------------
-------------------------------------------
-------------------------------------------
------------------------------------------
-------------------------------------------
-------------------------------------------
-------------------------------------------
-------------------------------------------
-------------------------------------------
-------------------------------------------
-------------------------------------------
------------------------------------------107
Opomba
-------------------------------------------
-------------------------------------------
-------------------------------------------
------------------------------------------
-------------------------------------------
-------------------------------------------
-------------------------------------------
-------------------------------------------
---------------------------------------
----
-------------------------------------------
-------------------------------------------
-------------------------------------------
------------------------------------------
-------------------------------------------
-------------------------------------------
-------------------------------------------
-------------------------------------------
------------------------------------------
-------------------------------------------
-------------------------------------------
-------------------------------------------
-------------------------------------------
-------------------------------------------
-------------------------------------------
-------------------------------------------
-------------------------------------------
------------------------------------------
-------------------------------------------
-------------------------------------------
------------------------------------------
-------------------------------------------
--------
-----------------------------------
-------------------------------------------
-------------------------------------------
-------------------------------------------
-------------------------------------------
-------------------------------------------
-------------------------------------------
108
Opomba
-------------------------------------------
-------------------------------------------
-------------------------------------------
------------------------------------------
-------------------------------------------
-------------------------------------------
-------------------------------------------
-------------------------------------------
-------------------------------------------
-------------------------------------------
-------------------------------------------
-------------------------------------------
------------------------------------------
-------------------------------------------
-------------------------------------------
------
-------------------------------------
-------------------------------------------
------------------------------------------
-------------------------------------------
-------------------------------------------
-------------------------------------------
-------------------------------------------
-------------------------------------------
-------------------------------------------
-------------------------------------------
-------------------------------------------
------------------------------------------
-------------------------------------------
-------------------------------------------
------------------------------------------
-------------------------------------------
-------------------------------------------
-------------------------------------------
-------------------------------------------
-------------------------------------------
-------------------------------------------
-------------------------------------------
-------------------
-----------------------109
Service:
ELCO GmbH
DE - 72379 Hechingen
ELCO Austria GmbH
AT - 2544 Leobersdorf
ELCOTHERM AG
CH - 7324 Vilters
ELCO BV
NL - 6465 AG Kerkrade
ELCO Belgium SA
BE - 1070 Brussel
ELCO Italia S.p.A.
IT - 31023 Resana
ELCO United Kingdom
UK - Basildon, Essex, SS15 6SJ
ELCO France / Chaffoteaux SAS
FR - 93521 Saint-Denis Cedex
Gastech-Energi A/S
DK - 8240 Risskov
Ariston Thermo Rus LLC
RU – 127015 Moscow
Ariston Thermo Türkiye
TR – 34775 Istanbul
Ariston Thermo Polska Sp. z o.o.
PL – 31 408 Kraków
Ariston Thermo Hungária Kft.
HU - 1135 Budapest
Ariston Thermo România
RO - 010505 Bucharest
Ariston Thermo CZ
CZ – 198 00 Praha 9
www.elco.net
Kezelési és telepítési kézikönyv
kizárólag hivatalos szervizmunkatársak
részére
TRIGON XXL
Eredeti Utasításokat
09/2018
420010891500
HU
112
Tartalom
Biztonság.........................................................114
Általános szabályozások........................114
Szabványok és elő
írások.......................114
További nemzeti szabványok.................114
Összeszerelés..................................................116
Adattábla................................................116
Üzemeltetési alapelvek..........................116
A kazán elrendezése..............................117
Műszaki adatok................................................118
TRIGON XXL SE 650 - SE 1200 . .........118
TRIGON XXL SE 1300 - SE 1900 . .......119
TRIGON XXL ECO 650 - ECO 1050......120
TRIGON XXL ECO 1150 - ECO 1600....121
TRIGON XXL EVO 700 - EVO 1100......122
TRIGON XXL EVO 1200 - EVO 1700....123
Méretek SE 650 – SE 1200....................124
ECO 650 – ECO 1050............................124
EVO 700 – EVO 1100............................124
Méretek SE 1300 - SE 1500..................125
ECO 1150 - ECO 1300 . ........................125
Méretek SE 1700 - SE 1900..................126
ECO 1450 - ECO 1600 .........................126
Méretek EVO 1200 -
EVO 1700 . ..........127
Karbantartás ...................................................150
Ellenőrző lista.........................................150
Karbantartás .........................................151
Ellenőrző lista.........................................151
Víznyomás és -minőség.........................151
Víz áramlási sebessége.........................151
Égési elemzés........................................151
Gáznyomás............................................151
Gáztömítettség ellenőrzése...................151
Biztonsági eszközök...............................151
Karbantartás .........................................152
Karbantartási jegyzőkönyv ....................152
Lezárások.........................................................153
Érzékelőkre vonatkozó értékek .....................155
Bekötési rajz....................................................156
Megfelelőségi nyilatkozat...............................160
Meg
jegyzés......................................................161
Szállítás terjedelme.........................................128
Standard kazán......................................128
Tartozékok..............................................128
Beépítés...........................................................129
Szállítás..................................................129
A kazán szállítása..................................131
A burkolat eltávolítása............................132
A kazán telepítése..................................133
A kazán csatlakoztatása.........................134
Vízcsatlakoztatások...............................134
Levegőbemenet-csatlakoztatás.............134
A szifon és a szennyeződésgyűjtő felszerelése.........................................................135
Gázcsatlakoztatás..................................136
A szivattyúra vonatkozó előírások..........136
Levegő-/füstgázcsatlakozás...................137
Méretezés, egy cső................................139
Üzembe helyezés.............................................140
Víz- és hidraulikus rendszer...................140
Víznyomás.............................................140
Hidraulikus rendszer..............................140
A kazán előkészítése első indításhoz....141
Kijelző/programozás...............................143
Vezérlők.................................................144
Égési elemzés........................................145
Légnyomáskapcsoló..............................146
A biztonsági berendezések működési
ellenőrzése . ..........................................147
Vízáram-hőmérséklet érzékelője............147
Vízáramlás-kapcsoló..............................147
Minimális gáznyomás kapcsolója...........147
Üzembe helyezési jegyzőkönyv ............149
113
Biztonság
Általános szabályozások
Általános szabályozások
Ez a dokumentum a TRIGON XXL biztons
ágos és megbízható telepítésének,
üzembe helyezésének és üzemeltetésének alapjául szolgáló fontos információkat tartalmaz. A dokumentumban leírt
összes tevékenységet csak hivatalos cégek végezhetik.
A dokumentum előzetes értesítés nélkül
változhat. Nem vagyunk kötelezhetőek
korábban kiszállított termékek jelen változtatások beépítésével történő adaptálására.
A kazán alkatrészei csak eredeti pótalkatrészekre cserélhetők, eltérő esetben
a jótállás semmisnek minősül.
A kazán CE-minősítésű, és megfelel a
nemzetközi és európai szabványoknak:
•
2016/426/EEC Gázüzemű berendezésekről szóló rendelet
•
1992/42/EEC A kazánok hatásfokkövetelményeiről szóló irányelv
•
2014/30/EU Az elektromágneses
összeférhetőségről szóló irányelv
•
2014/35/EU A kisfeszültségű eszközökről szóló irányelv
•
EN 15502-1 Gáztüzelésű központi
fűtési kazánok. 1. rész: Általános
köv
etelmények és vizsgálatok
Alkalmazás
A TRIGON XXL kazán csak fűtési és
melegvíz-előállítási célokra használható. A kazánt zárt rendszerre kell bekötni, amelynek maximális hőmérséklete
100 ºC (hőmérséklet felső határa), és
beállított hőmérsékleti alapértéke 90 ºC.
•
•
Szabványok és előírások
A kazán telepítésekor és üzemeltetésekor be kell tartani minden vonatkozó
(helyi és európai) szabványt:
• Az égési levegő- és füstgázrendszerek telepítésére vonatkozó helyi
építkezési előírások
• A kazán elektromos berendezésre
kötésére vonatkozó előírások
• A kazán helyi gázhálózatra kötésére
vonatkozó előírások
• A fűtőrendszerek biztonsági berendezéseire vonatkozó szabványok
és előírások
• A fűtőrendszerek telepítésére és
üzemeltetésére vonatkozó minden
további helyi törvény/előírás
•
114
•
•
EN 15502-2-1 (Gáztüzelésű központi fűtési ka
zánok. 2-1. rész: A
C típusú és a legfeljebb 1000 kW
névleges bemenő hőterhelésű B2,
B3 és B5 típusú kazánok egyedi
előírásai).
EN 55014-1 Elektromágneses összeférhetőség. Háztartási készülékek, villamos szerszámok és hasonló eszközök követelményei. 1. rész:
Zavarkibocsátás.
EN 55014-2 Elektromágneses összeférhetőség. Háztartási készülékek, villamos szerszámok és hasonló eszközök követelményei. 2. rész:
Zavartűrés. Termékcsaládszabvány.
EN 61000-3-2 Elektromágneses
összeférhetőség (EMC). 3-2. rész:
Határértékek. Felharmonikus áramok kibocsátási határértékei (fázisonként legfeljebb 16 A bemenő
áramerősségű berendezésekre).
•
EN 61000-3-3 Elektromágneses
összeférhetőség (EMC). 3-3. rész: A
feszültségváltozások, a feszültségingadozások és a villogás (flikker)
határértékei a közcélú, kisfeszültségű táphálózatokon, a fázisonként
legfeljebb 16 A névleges áramerősségű és
zánok. 2-1. rész: A
C típusú és a legfeljebb 1000 kW
névleges bemenő hőterhelésű B2,
B3 és B5 típusú kazánok egyedi
előírásai).
EN 55014-1 Elektromágneses összeférhetőség. Háztartási készülékek, villamos szerszámok és hasonló eszközök követelményei. 1. rész:
Zavarkibocsátás.
EN 55014-2 Elektromágneses összeférhetőség. Háztartási készülékek, villamos szerszámok és hasonló eszközök követelményei. 2. rész:
Zavartűrés. Termékcsaládszabvány.
EN 61000-3-2 Elektromágneses
összeférhetőség (EMC). 3-2. rész:
Határértékek. Felharmonikus áramok kibocsátási határértékei (fázisonként legfeljebb 16 A bemenő
áramerősségű berendezésekre).
•
EN 61000-3-3 Elektromágneses
összeférhetőség (EMC). 3-3. rész: A
feszültségváltozások, a feszültségingadozások és a villogás (flikker)
határértékei a közcélú, kisfeszültségű táphálózatokon, a fázisonként
legfeljebb 16 A névleges áramerősségű és
... ascunde
Alte documentatii ale aceleasi game Vezi toate
Fisa tehnica
8 p | RO
THISION® L ECO
Instructiuni montaj, utilizare
72 p | RO
THISION® L ECO