Manual de Instalare - Cazan mural ELCO THISION® L PLUS
Tip documentatie: Instructiuni montaj, utilizare
Salvează pdf
Full screen
THISION L PLUS
Manual de utilizare
numai pentru tehnicieni autorizați
www.elco.net
9B.51.28.00 / 04.20
1
Cuprins
Reglementări privind siguranța Reglementări generale...................................................................................... 3
Utilizare prevăzută ............................................................................................ 3
Standarde și reglementări.................................................................................. 3
Descrierea produsului Descriere funcțională – THISION L PLUS......................................................... 4-5
Schema circuitului hidraulic............................................................................... 6
Date tehnice / Date cu privire la produsele cu impact energetic (ERP)............. 7
Dimensiuni......................................................................................................... 8-9
Furnitură Versiunea standard/accesorii...................
.......................................................... 10
Configurația în cascadă..................................................................................... 11
Exemple de configurații în cascadă................................................................... 12-14
Accesorii pentru configurații în cascadă............................................................ 15-17
Instalare Transportarea cazanului.................................................................................... 18
Dezasamblarea panourilor................................................................................. 18
Instalare/conexiuni............................................................................................. 19
Sistemul hidraulic Pompe de circulație.............................................................. 20
Configurație în cascadă montată pe perete, în linie.......................................... 21
Configurație în cascadă neancorată, în lini
e...................................................... 22
Configurație în cascadă neancorată, spate în spate......................................... 23
Racordarea cazanului........................................................................................ 24
Accesorii pentru configurații în cascadă............................................................ 25
Racordarea unui cazan...................................................................................... 26
Dimensiunile buteliilor de egalizare și ale coturilor ...................................................... 27
Dimensiunile unei butelii de egalizare .............................................................. 28
Calitatea agentului termic ................................................................................. 29
Aditivii pentru agentul termic ............................................................................ 30
Calitatea apei calde menajere (DHW)...................................
............................ 31
Vasul de expansiune.......................................................................................... 31
Țeava de gaz..................................................................................................... 32
Racordul pentru condens................................................................................... 33
Producerea de acm .......................................................................................... 34
Țevile de aer/gaze de ardere............................................................................. 35-38
Gura de evacuare colectivă a gazelor de ardere............................................... 39-40
Conexiunile electrice.......................................................................................... 41-44
Multifuncțional.................................................................................................... 45-47
Senzorii de temperatură....................................
................................................ 48
Comenzile externe............................................................................................. 49
Comenzile eBus2............................................................................................... 50
Schema de conexiuni........................................................................................ 51-52
Configurarea cazanului Configurarea cazanului...................................................................................... 54
Utilizare Descrierea afișajului........................................................................................... 55
Descrierea afișajului și a tastaturii..................................................................... 56
Structura meniului de utilizare........................................................................... 57
Schimbarea setărilor (nivel de expert)............................................................... 58
Lista de param
etri.............................................................................................. 59-74
Descrierea detaliată a parametrilor.................................................................... 75
Funcția de termoreglare..................................................................................... 76
Programe de timp pentru încălzire..................................................................... 77
Comutarea automată a modului de vară/iarnă.................................................. 78
Punerea în funcțiune Schimbarea limbii afișate pe ecran.................................................................... 79
Schimbarea orei și a datei................................................................................. 80
Adaptarea parametrilor la sistemul de încălzire................................................. 81-82
Compensarea intemperiilor................................................................................ 83
Inspectare
a........................................................................................................ 84
Analiza gazelor de ardere.................................................................................. 85-87
Sarcină maximă (pasul 1/3)............................................................................... 85
Sarcină redusă (pasul 2/3)................................................................................. 86
Reglarea robinetului de gaz (pasul 3/3)............................................................. 87
Întreținere Lucrările de scoatere din funcțiune și de întreținere.......................................... 88
Intervalul de inspecție și de întreținere.............................................................. 88
Detalii cu privire la întreținere............................................................................ 89-93
Contorul orelor de funcționare .....................................................................
..... 93
Prezentarea generală a inspecției..................................................................... 94
Prezentarea generală a întreținerii.................................................................... 95
Erori Codurile de erori și identificarea defecțiunilor.................................................... 96-98
Resetarea unui cod de eroare........................................................................... 99
Vizualizarea istoricului codurilor de erori .......................................................... 100
Eliminarea și reciclarea...................................................................................... 101
Anexă Rezistența senzorilor ........................................................................................ 102
Scheme standard............................................................................................... 103-106
Declarație de conformitate ......................................................
..................................................................... 107
2
Versiune:
de la sv 1.0
12-2019
Reglementări privind siguranța
Reglementări generale
Utilizare prevăzută
Standarde și reglementări
Reglementări generale
Prezentul document conține informații importante cu privire la siguranță și la fiabilitate
pentru instalarea, punerea în funcțiune și
utilizarea cazanului THISION L PLUS. Toate
activitățile descrise trebuie să fie efectuate
numai de către tehnicieni autorizați.
Se pot utiliza numai componente originale
(OEM) de la producătorul cazanului; în caz
contrar, garanția noastră și dispozițiile noastre cu privire la garanție sunt anulate.
Utilizare prevăzută
THISION L PLUS este un cazan pe gaz cu
funcționare prin condensare și modulație,
care este suspendat pe perete și este livrat
împreună cu un arzător premix.
Temperatura țintă maximă a cazanului este
de 90 °C.
Standarde și reglementări
În timpul instalării și al utiliz
ării cazanului
THISION L PLUS trebuie să se respecte
toate standardele aplicabile (atât europene,
cât și naționale), inclusiv:
- reglementările locale în domeniul construcțiilor, în ceea ce privește instalarea
instalațiilor de încălzire și a sistemelor
de evacuare a gazelor reziduale;
- reglementările cu privire la racordarea
la rețeaua publică de alimentare cu
electricitate;
- reglementările operatorului local de
furnizare a gazului;
- standardele și reglementările cu privire
la echipamentele de siguranță pentru
sistemele de încălzire;
- legile/reglementările locale suplimentare
care pot fi aplicabile instalării și utilizării
sistemelor de încălzire;
- pentru reglementările aplicabile calității
apei de încălzire și a apei calde, consultați capitolul „Punerea în funcțiune”.
Cazanul THISION L PLUS este certificat
CE și respectă următoarele directive,
regulamente și standarde europene:
- 92/42/CEE
Randamentul sistemelor de încălzire a
ape
i
- 2016/426/UE
Regulamentul privind aparatele consumatoare de gaz
- 2014/35/UE
Directiva privind joasa tensiune
- 2014/30/UE
Directiva privind CEM
- EN 15502-1
Cerințe pentru sistemele cu gaz – Partea 1: Cerințe și teste generale
- EN 15502-2
Cerințe pentru sistemele cu gaz – Par-
-
-
-
-
-
-
tea 2-1: Tipul C, precum B2, B3 și B5 cu
debit calorific nominal =< 1000 kW;
EN 55014-1 (2011) CEM – Cerințe
pentru aparate electrocasnice, unelte
electrice și aparate similare – Partea 1:
Emisii;
EN 55014-2 (2008) CEM – Cerințe
pentru aparate electrocasnice, unelte
electrice și aparate similare – Partea
2: Securitate – standard de familie de
produse;
EN 61000-3-2 (2013) Compatibilitate
electromagnetică
(CEM) – Partea 3-2: Condiții cadru
– condiții cadru pentru fluctuațiile de
curent (consum de curent: 16 A/fază);
EN 61000-3-3 (2014) Compatibilitate
electromagnetică
(CEM) – Partea 3-3: Condiții cadru
pentru fluctuațiile de tensiune, pierderile
de tensi
une și flickerul în rețelele publice
de alimentare de joasă tensiune, pentru
echipamente cu curent nominal de 16 A/
fază care nu fac obiectul niciunui regulament special privind racordarea.
EN 60335-1 (2011) Aparate electrice
pentru uz casnic și scopuri similare – Securitate – Partea 1: Prescripții
generale
EN 60335-2-102 (2006?A1-2010)
Aparate electrice pentru uz casnic și
scopuri similare – Securitate – Partea
1: Prescripții particulare pentru aparate
cu gaz, cu petrol și cu combustibil solid
care au conexiuni electrice
Este necesar să se respecte normele
locale valabile în prezent.
Regatul Unit:
Standarde britanice
- BS 5440 - BS 6644 - BS 6891 BS 7074 - BS 8552 BS EN 60335 Pt1 - BS EN 12828
Documente ale IGEM
- IGE/UP/1&1A - IGE/UP/2 IGE/UP/10
Reglementări emise de Regatul Unit
- Legea din 1993 privind aerul curat
- Reglementările IEE
- Reglementările privind construcțiile
- Reglementările privind securitatea instalării și a utilizării aparatelor cu ga
z.
Alte orientări
- Ghidul BG29/2012 al ICOM-BSRIA
- Ghidurile BG50/2013 ale CIBSE
(B1, C, F)
- Sănătate, securitate și mediu – INDG
436
Germania:
- RAL-UZ 61/DIN 4702-8;
- EnEV – Ordonanța privind economisirea
de energie
- TRGI (DVGW G600) – Orientări tehnice
pentru instalațiile cu gaz
- ATV DVWK-A251 – Scurgerea pentru
condens în sistemul de ape uzate
- TRF – Orientări tehnice pentru propan
- DVGW
Elveția:
- SVGW
- Reglementări ale autorităților cantonale
(de exemplu, regulamente
ale serviciului de pompieri)
- Gebäude Klima Schweiz
- EKAS-Form, 1942: Orientări pentru
propan, Partea 2;
- BAFU – Biroul federal pentru
mediu
- SWKI – Asociația elvețiană a inginerilor
tehnologi din domeniul construcțiilor
Austria:
- ÖNORM H 5152;
- ÖNORM M 7443 Părțile 1, 3, 5, 7.
- ÖNORM M 7457;
- ÖNORM H 5195-1
- ÖVGW – Orientările G1, G2, G41, G4;
- trebuie respectate regulamentele privind
construcțiile și dispozițiile locale
Utilizarea incorectă poate
cauza deteriorarea componentelor cazanului și ale
sistemului și are potențialul de a provoca
pericole. Ar trebui să li se permită să facă
ajustări ale cazanului și ale echipamentului asociat numai persoanelor care au
cunoștințe și calificări corespunzătoare.
Echipamentul nu trebuie utilizat de copii
sau de persoane ale căror capacități fizice, mintale sau senzoriale sunt afectate
sau care nu au cunoștințe și experiență
suficiente, cu excepția cazului în care utilizarea de către aceste persoane se face
sub supraveghere sau în conformitate cu
instrucțiunile corespunzătoare primite.
Trebuie să se asigure faptul că copiii nu
se pot juca cu echipamentul.
3
Descrierea produsului
THISION L PLUS
24
15
20
10
19
11
HV
14
LV
13
12
APS
5
6
6
5
9
21
3
9
4
3
T1
T1a
T1a
1
T1
T2
T2
18
17
17
8
16
7
7
23
27
4
2
18
P1
G
4
C
A
R
26
26
22
Descrierea produsului
THISION L PLUS
Legendă:
1.
schimbătorul de căldură 1 (cons
ultați tabelul)
2.
schimbătorul de căldură 2 (consultați tabelul)
3.
electrodul de aprindere
4.
electrodul de ionizare (detecție a flăcării)
5.
unitatea ventilatorului
6.
mixer
7.
vană de gaz
8.
aerisitor automat
9.
aerisitor manual
10. comutatorul principal 230 V
11. unitatea de control a cazanului
12. interfața display HMI
13. bornă de conectare
14. bornă de conectare pentru comunicația
prin magistrală în cazul unei configurații în
cascadă
15. bornă de conectare pentru PC
16. colector de impurități
17. pompă de circulație
18. clapetă de sens
19. racord de gaze de ardere
20. admisie aer
21. țeavă colectivă de gaze de ardere
22. plăcuță de timbru
23. capac de drenare
24. modul gestionare pentru 3 zone
(opțional)
25. adaptor concentric pentru racordul de
aer/gaze de ardere (opțional pentru
Thision L Plus
60-70-100-120-140)
26. racord pentru țeava de apă
1 1/2" (opțional)
27. racord pentru țeava de gaz
1" (opțional)
T1
T1a
T2
P1
APS
HV
LV
se
nzor de tur
senzor de tur secundar
senzor de retur
senzor de presiune a apei
presostat aer
alimentare cu electricitate de înaltă tensiune
alimentare cu electricitate de joasă tensiune
G
A
R
C
țeavă de gaz
țeavă de tur (CH)
țeavă de retur (CH)
țeavă de drenare a condensului
Tip cazan
Schimbător 1
Schimbător 2
60
iCon XL1
-
70
iCon XL1
-
100
iCon XL2
-
120
iCon XL1
iCon XL1
140
iCon XL1
iCon XL1
170
iCon XL2
iCon XL1
200
iCon XL2
iCon XL2
Descrierea produsului
THISION L PLUS este un cazan pe
gaz cu funcționare prin condensare și
modulație, echipat cu un arzător premix
sau două astfel de arzătoare, care se
fixează pe un perete. Are următoarele
caracteristici:
- un interval de modulație larg care
garantează o durată de serviciu
îndelungată a arzătoarelor, reducând
totodată la minimum pierderile cauzate
de starea de așteptare, emisiile la
pornire și uzarea materialelor;
- temperatură a gazului de ardere mai
mică de 80 °C;
- ade
cvat și pentru camere ermetice;
- panou de control cu toate elementele
operaționale;
- microprocesor cu afișaj multifuncțional;
- aprindere automată, cu monitorizare a
aprinderilor și a ionizării;
- monitorizarea presiunii apei;
- pompă modulantă;
- schimbător de căldură din oțel
inoxidabil, cu condensator din tub neted;
- foarte ușor de întreținut;
- dotat cu control al compensării
temperaturii exterioare;
- controler pentru o configurație în
cascadă de maximum 8 cazane;
- comenzi externe (accesorii) prin pornire/
oprire, eBus sau 0-10 V;
- panouri moderne din metal, emailate.
Descriere funcțională
Unitatea de control modifică randamentul
încălzirii în conformitate cu cerințele
de încălzire actuale, schimbând
valorile implicite ale vitezei de rotație
a ventilatorului. În această privință,
temperatura fluxului (tur) din cazan este
măsurată în mod continuu prin intermediul
unui senzor. În cazul unei abateri a
temperaturii efective de la temperatura
țintă,
unitatea de control reacționează imediat
și ajustează viteza de rotație (RPM) a
ventilatorului și prin aceasta randamentul
cazanului prin intermediul vanei de gaz.
O abatere poate fi provocată de:
- o schimbare a valorii implicite a
temperaturii cazanului prin intermediul
unității de control a încălzirii ATG;
- o schimbare a temperaturii din exterior;
- o solicitare de apă caldă menajeră;
- schimbarea curbei de încălzire.
Prin integrarea componentelor individuale
într-un sistem și în limita intervalului de
control al echipamentului, se asigură
că randamentul cazanului corespunde
întotdeauna cu necesarul de încălzire
efectiv.
Furnitura
Cazanul, care a fost asamblat
în fabrică și este pregătit pentru a fi utilizat,
este livrat într-un ambalaj de carton.
În furnitura cazanului THISION L PLUS sunt
incluse următoarele:
un cazan pe gaz, cu randament ridicat,
cu funcționare prin modulație, de la 16,5
până la 200 kW;
- o pompă modulantă sau două
pompe
modulante;
- un controler pentru cazan/configurație în
cascadă.
Accesorii:
- garnituri de conectare pentru cazan;
- distribuitoare pentru 2 și 3 cazane;
- butelii de egalizare, până la 1.600 kW;
- schimbător de căldură cu plăci, până la
800 kW;
- pachete de izolare;
- cadre pentru cazane cu montaj pe
cadru
- garnituri de conectare pentru țeava de
evacuare;
- dispozitiv de control pentru 3 zone de
încălzire suplimentare;
- magistrala OPENTHERM.
Pentru informații detaliate, consultați
secțiunea „Furnitură”.
5
Descrierea produsului
Schema circuitului hidraulic al THISION L PLUS
14
13
12
11
7
6
4
8
7
Arzătorul B
Arzătorul A
6
4
3
8
3
T1
T1a
T1
1
2
T2
T1a
T2
15
15
P1
10
10
9
5
R
Legendă:
1 schimbătorul de căldură 1 = arzătorul A
2 schimbătorul de căldură 2 = arzătorul B
3 aprindere
4 arzător ceramic
5 robinet de gaz
6 ventilator
7 clapetă de sens pentru gaze de
ardere
6
8
9
10
11
12
13
14
15
A
C
5
G
mixer
gură de
aerisire automată
pompă de circulație
interfața om-mașină pentru unitatea de
control
unitatea de control a arzătoarelor
orificiu de evacuare a gazelor arse
gură de intrare a aerului
clapetă de sens agent termic
T1
T1a
T2
P1
G
A
R
C
senzor de tur
senzor de tur secundar
senzor de retur
senzor de presiune a apei
țeavă de gaz
țeavă de tur (CH)
țeavă de retur (CH)
țeavă de drenare a condensului
Descrierea produsului
Date tehnice
Date ErP
Tip de cazan THISION L PLUS
60
70
100
G20
G31
Intrare
G20
G31
Consum de gaz
140
170
200
iConXL1
iConXL1
iConXL1
iConXL2
iConXL2
iConXL2
GB: II2H3P
Tip de schimbător de căldură
Ieșire
120
CE0063CT3449
Autorizație
Categorie
G20
G31
Randament cazan
iConXL1
iConXL1
iConXL2
iConXL1
iConXL1
Sarcină maximă 80/60 °C
kW
56,9
65,4
90,2
110,8
130,6
155,4
180,3
40/30 °C
kW
62,6
72,0
99,0
122,2
142,4
170,9
197,4
Sarcină maximă 80/60 °C
kW
16,4
16,4
19,7
16,4
16,6
16,5
21,5
4
0/30 °C
kW
16,7
16,6
20,9
16,8
16,7
17,0
21,3
Sarcină maximă 80/60 °C
kW
56,9
65,4
90,2
110,8
130,6
155,4
180,3
40/30 °C
kW
62,6
72,0
99,0
122,2
142,4
170,9
197,4
Sarcină maximă 80/60 °C
kW
26,0
26,0
37,5
26,1
26,3
26,1
40,8
40/30 °C
kW
26,4
26,3
39,7
26,7
26,5
27,0
40,5
Sarcină maximă
kW
57,9
66,7
92,3
112,8
133,2
158,8
184,5
Sarcină redusă
kW
14,9
14,9
18,5
14,9
14,9
14,9
18,5
Sarcină maximă
kW
57,9
66,7
92,3
112,8
133,2
158,8
184,5
Sarcină redusă
kW
23,6
23,6
35,0
23,6
23,6
23,6
35,0
Sarcină maximă
m3/h
5,31
6,12
8,47
10,35
12,22
14,57
16,93
Sarcină redusă
m3/h
1,37
1,37
1,69
1,37
1,37
1,37
1,69
Sarcină maximă
m3/h
4,52
5,21
7,21
8,81
10,41
12,41
14,41
Sarcină redusă
m3/h
1,84
1,84
2,73
1,84
1,84
1,84
2,73
Sarcină maximă 80/60 °C
%
98,2
98,0
97,7
98,2
98,0
97,9
97,7
107,0
40/30 °C
%
108,1
108,0
107,3
108,3
106,9
107,
6
Sarcină redusă 80/60 °C
%
110,0
110,3
107,0
110,4
111,5
110,8
116,5
Sarcină redusă 40/30 °C
%
112,0
111,5
113,3
113,2
112,2
114,5
115,7
CO2 Gaze naturale
min./max
Vol. %
8,7/9,3
CO2 Propan
min./max
Vol. %
10,2/10,8
O2 Gaze naturale
min./max
Vol. %
Sarcină redusă
Tip de gaz
Gaze naturale sau propan
Clasa NOx
80/60 °C
Temperatura max. a gazelor de ardere
Debit masic de gaze de ardere
5,3/4,3
6
6
6
6
6
6
6
62
61
71
65
68
72
73
287,36
g/s
90,18
103,89
143,76
175,69
207,46
247,33
Suprapresiune la ieșirea cazanului
max.
Pa
161
155
170
125
164
136
185
Volum de apă în circuitul de încălzire
max.
l
9,3
9,3
13,9
16,8
16,8
21,3
25,8
Greutate
kg
67
67
74
121
121
126
134
Presiunea de gaz – standard
mbari
20
mbari
17/25
430
Presiunea min./max. de gaz
Presiunea de lucru a cazanului
min./max
bari
Tensiune/frecvență
min./max
Volți/Hz
0,7/6
230/50
Consum max. de energie
W
145
155
250
260
375
428
Consum de energie cu sarcină parțială
W
53
53
103
55
55
51
51
Consum de energie în starea de așteptare
W
5
5
5
6,8
6,8
6,8
6,8
Lățime/adâncime/înălțime
mm
Filet exterior al racordului de gaz
R
Rp 1"
Rp 1"
Rp 1"
Rp 1"
Rp 1"
Rp 1"
Rp 1"
Filet extern tur/retur
R
Rp 1-1/2"
Rp 1-1/2"
Rp 1-1/2"
Rp 1-1/2"
Rp 1-1/2"
Rp 1-1/2"
Rp 1-1/2"
130
1.050/530/595
1.050/530/675
1.050/690/595
1.050/690/675
Racord pentru gaze de ardere, PPS
Diametru
DN
100
100
100
100
100
130
Conexiune pentru aer din exterior
Intern
în mm
100
100
100
100
100
130
130
Racord pentru condens, PVC
Extern
în mm
35,5
35,5
35,5
35,5
35,5
35,5
35,5
60
70
100
120
140
170
200
176
Tip de cazan THISION L PLUS
Date cu privire la produsele cu impact energetic (ErP) în conformitate cu Regulamentul (UE) nr. 813/2013/UE
A
A
Pn (kW)
56
64
88
108
128
152
ηs (%)
93
93
93
93
93
93
93
Consum de energie anual
QHE (
GJ)
174
199
272
335
394
471
543
Nivel de zgomot generat, în interior
LWA (dB)
62
65
60
67
70
67
63
La putere termică nominală și în regim de temperatură ridicată (80/60 °C)
P4 (kW)
56,9
65,3
90,2
110,8
130,6
155,6
180,3
La 30% din puterea term. nom. și în reg. de temp. scăz. (36/30°C)
P1 (kW)
19,0
21,8
30,2
37,0
43,7
52,0
60,4
La putere term. nom. și în reg. temp. ridicată (GCV)
η4 (%)
88,4
88,2
88,0
88,4
88,2
88,2
88,0
La 30% din puterea term. nom. și în reg. de temp. scăz. (GCV)
η1 (%)
98,4
98,3
98,2
98,4
98,3
98,2
98,2
La sarcină maximă
elmax (kW)
0,126
0,137
0,120
0,314
0,418
0,464
0,450
La sarcină parțială
elmin (kW)
0,081
0,045
0,095
0,066
0,071
0,109
0,099
Psb (kW)
0,005
0,005
0,005
0,007
0,007
0,007
0,007
Pstby (kw)
0,086
0,086
0,075
0,079
0,079
0,100
0,141
Clasa de eficiență energetică pentru încălzirea sezonieră a camerelor
Putere termică nominală
Clasa de
eficiență energetică pentru încălzirea sezonieră a camerelor
În starea de așteptare
Pierdere de căldură în starea de așteptare
7
Descrierea produsului
Dimensiunile cazanului cu un singur arzător THISION L PLUS
E
D
F
C1/C2
B
A A1
G r
H
a
I
c
g
M
J
K
Tip de cazan THISION L PLUS
A
A1
Înălțimea cazanului
Înălțimea cazanului cu racord de gaze
de ardere
Lățimea cazanului
mm
L
60-70
100
1.050
1.050
mm
1.135
1.135
mm
530
530
Adâncimea cazanului
mm
595
675
Duza pentru gazele de ardere paralel
Admisia de aer paralel
Duza pentru gazele de ardere
Racord de retur cazan
Racord de tur cazan
mm
mm
mm
mm
mm
185
345
150
103
243
185
345
150
103
243
I
Racord pentru condens
mm
345
345
J
K
Racord pentru gaze
Racord pentru condens
mm
mm
430
60
430
60
L
Retur-tur-gaz cazan
mm
75
75
M
Retur-tur-gaz cazan
mm
25
25
B
C1/
C2
D
E
F
G
H
8
Racordurile cazanului
Tip de cazan THISION L PLUS
Adaptor concentric al duzei pentru
gazele de
ardere
Adaptor concentric al conectorului pentru
alimentarea cu aer
150*
150*
100*
100*
mm
2x100
2x100
Racord pentru gaze
1 1/4"
1 1/4"
Racord pentru gaze*
1" **
1" **
35
35
c
Racord pentru condens
a
Racord de tur cazan
mm
Racord de tur cazan**
r
100
mm
Racord paralel
g
mm
60-70
Racord de retur cazan
Racord de retur cazan**
* cu adaptor concentric (opțional)
** cu set de reducții pentru racordul pentru apă/gaze (opțional)
2"
2"
1 1/2" **
1 1/2" **
2"
2"
1 1/2" **
1 1/2" **
Descrierea produsului
Dimensiunile cazanului cu două arzătoare THISION L PLUS
D
E
F
C1/C2
B
A A1
G
a
r
H
I
c
g
M
J
K
Tip de cazan THISION L PLUS
A
A1
Înălțimea cazanului
Înălțimea cazanului cu racord de gaze
de ardere
Lățimea cazanului
mm
L
120-140
170-200
1.050
1.050
mm
1.135
1.135
mm
690
690
Adâncimea cazanului
mm
595
675
Duza pentru gazele de ardere paralel
Admisia de aer paralel
Duza pentru gazele de ardere
Racord de retur caz
an
Racord de tur cazan
mm
mm
mm
mm
mm
185
345
150
103
243
185
345
150
103
243
I
Racord pentru condens
mm
345
345
J
K
Racord pentru gaze
Racord pentru condens
mm
mm
430
60
430
60
L
Retur-tur-gaz cazan
mm
75
75
M
Retur-tur-gaz cazan
mm
25
25
B
C1/
C2
D
E
F
G
H
Racordurile cazanului
Tip de cazan THISION L PLUS
Adaptor concentric al duzei pentru
gazele de ardere
Adaptor concentric al conectorului pentru
alimentarea cu aer
150*
-
100*
-
mm
2x100
2x130
Racord pentru gaze
1 1/4"
1 1/4"
Racord pentru gaze*
1" **
1" **
35
35
c
Racord pentru condens
a
Racord de tur cazan
mm
Racord de tur cazan**
r
170-200
mm
Racord paralel
g
mm
120-140
Racord de retur cazan
Racord de retur cazan**
2"
2"
1 1/2" **
1 1/2" **
2"
2"
1 1/2" **
1 1/2" **
* cu adaptor concentric (opțional)
** cu set de reducții pentru racordul pentru apă/gaze (opțional)
9
Furnitura
Versiunea standard
Accesorii și configurația în cascadă
Versiunea standard
Furnitu
ra unui cazan constă în următoarele componente:
Componente
Tip de ambalaj
Cazan complet asamblat și testat
1
În cutie de carton
Șină de montare
1
În ambalajul cazanului
Manual de instalare pentru THISION L PLUS
1
Etichetă cu privire la produsele cu impact energetic (ERP)
(numai pentru THISION L PLUS 60-70)
1
Țeavă pentru condens
1
Accesorii
Se pot comanda următoarele
accesorii:
- țevi de gaze de ardere;
- filtru de aer;
- componente hidraulice pentru
configurații în cascadă (consultați
paginile următoare);
- cadre pentru cazane (consultați
paginile următoare);
- set de supape cu 3 căi;
- senzor de temperatură exterioară,
senzor de boiler;
- senzor de tur T10;
- dispozitiv de control pentru 3 zone
de încălzire suplimentare;
translator de magistrală Modbus/
LON/BACKNET/KNX;
- set de racorduri de apă/gaze;
- filtru de gaz;
- comutator pentru presiune redusă a
gazului;
- set de conversie GPL;
- set de schimbătoare de căldură cu
plăci;
- set d
e butelii de egalizare.
Componentele accesorii enumerate au
fost construite sau selectate special
pentru cazanul THISION L PLUS,
ceea ce înseamnă că sunt foarte ușor
de instalat (plug and play). Puteți să vă
alcătuiți propriul sistem, selectând
combinația de accesorii care se
potrivește nevoilor dumneavoastră.
Pentru detalii și prețuri, contactați
ELCO.
10
În punga cu documente din ambalajul cazanului
În cazul unei configurații în cascadă,
accesoriile care necesită conexiuni
electrice ar trebui să fie conectate la
cazanul principal (singura excepție fiind
sonda de boiler și managerul de zone
clip-in, care pot fi conectate și la alt
cazan).
Configurația în cascadă
În principiu, este posibilă orice
combinație. Selecția poate include
modele cu ieșiri diferite, dacă acest
lucru corespunde cerințelor de
instalare. Includerea de cazane cu
ieșiri comune ajută la partajarea
sarcinii și a timpilor de funcționare ai
aparatelor individuale.
Capacitatea
evilor hidraulice, a țevii de
gaz și a buteliei de egalizare este
ajustată în raport cu necesarul global
selectat.
Atunci când se instalează un singur
cazan THISION L PLUS, se
recomandă cu fermitate utilizarea
unei butelii de egalizare.
Atunci când se instalează cazane
THISION L PLUS în cascadă:
este obligatorie utilizarea unei
butelii de egalizare care să fie
ajustată la necesarul de referință;
realizarea unei derivații
suplimentare nu este permisă;
colectorul de apă ar trebui să fie
realizat având dimensiunea DN65
sau DN100 (în conformitate cu
ieșirea configurației în cascadă).
ELCO furnizează versiuni de butelii
de egalizare care sunt adecvate
pentru un necesar maxim de 1.600
kW.
Descrierea produsului
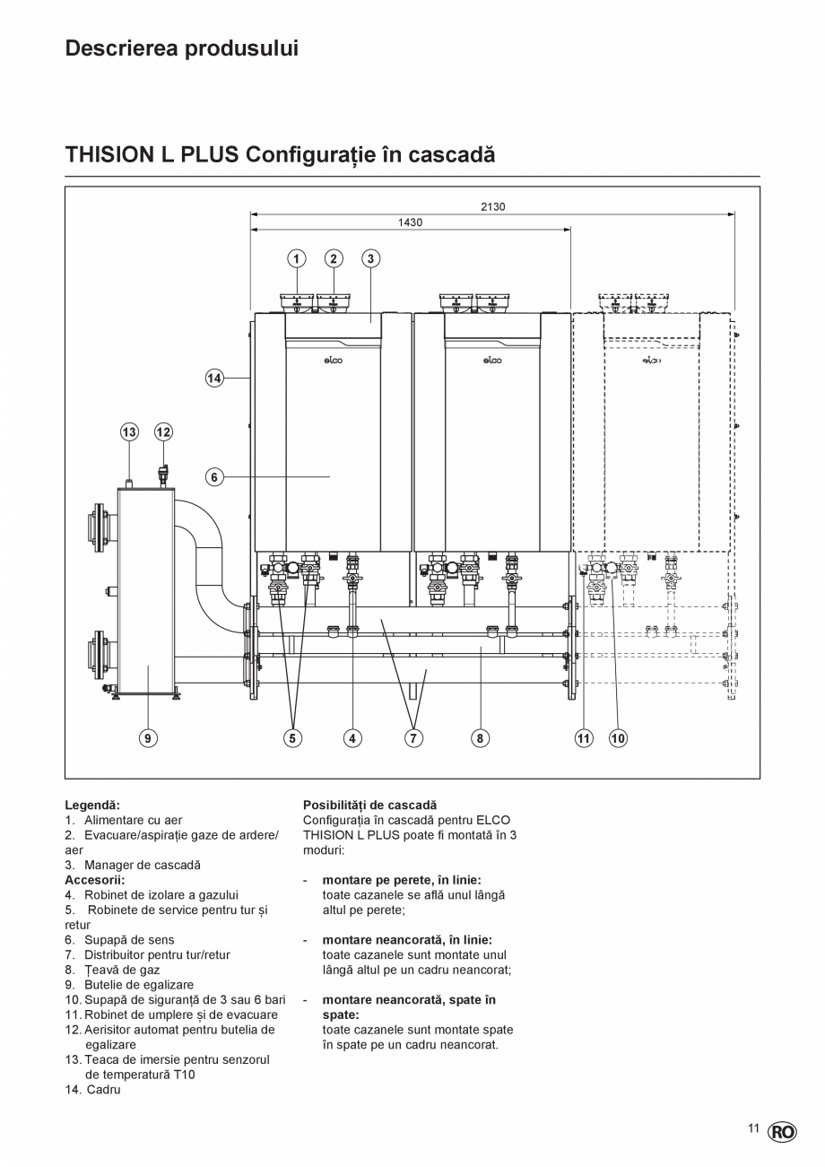
THISION L PLUS Configurație în cascadă
2130
1430
1
2
3
14
13
12
6
9
Legendă:
1. Alimentare cu aer
2. Evacuare/aspirație gaze de ardere/
aer
3. Manager de cascadă
Accesorii:
4. Robinet de izolare a gazului
5. Robinete de service pentru tur și
retur
6. Supapă de sens
7. Distribuitor pentru tur/retur
8. Țeavă de gaz
9. Butelie de egalizare
10. Supapă de siguranță de 3 sau 6 bari
11. Robinet de umplere și de evacuare
12. Aerisitor automat pentru butelia de
egalizare
13. Teaca de imersie pentru senzorul
de temperatură T10
14. Cadru
5
4
7
8
11
10
Posibilități de cascadă
Configurația în cascadă pentru ELCO
THISION L PLUS poate fi montată în 3
moduri:
-
montare
pe perete, în linie:
toate cazanele se află unul lângă
altul pe perete;
-
montare
neancorată, în linie:
toate cazanele sunt montate unul
lângă altul pe un cadru neancorat;
-
montare
neancorată, spate în
spate:
toate cazanele sunt montate spate
în spate pe un cadru neancorat.
11
Descrierea produsului
THISION L PLUS Exemple de configurații în cascadă montate pe perete
2 cazane THISION L PLUS montate pe perete în linie
3 cazane THISION L PLUS montate pe perete
în linie
2130
1430
690
690
1700
1050
690
5 cazane TH
ISION L PLUS montate pe perete în linie
3530
690
8 cazane THISION L PLUS montate pe perete în linie
6680
690
12
Descrierea produsului
THISION L PLUS Exemple de configurații în cascadă neancorate,
în linie
2 cazane THISION L PLUS neancorate, în linie
1430
3 cazane THISION L PLUS neancorate, în linie
2130
790
690
690
1700
1050
690
5 cazane THISION L PLUS neancorate, în linie
3530
690
8 cazane THISION L PLUS neancorate, în linie
6680
690
13
Descrierea produsului
THISION L PLUS Exemple de configurații în cascadă neancorate,
spate în spate
3 cazane THISION L PLUS neancorate, spate în spate
1430
4 cazane THISION L PLUS neancorate,
spate în spate
1430
1480
690
690
1700
1050
690
6 cazane THISION L PLUS neancorate, spate în spate
2130
690
2130
690
8 cazane THISION L PLUS neancorate, spate în spate
3880
690
3880
14
690
Descrierea produsului
THISION L PLUS Accesorii pentru configurațiile în cascadă
Coduri FG
Descriere
Simplu
Cazan
70
1
00
140
170
200
x
x
x
x
x
x
x
x
x
x
3905101
PRESOTAT DE MINIM GAZ - MONTARE INDIVIDUALĂ
3905102
PRESOTAT DE MINIM GAZ - MONTARE ÎN CASCADĂ
3905103
VENTILATOR DE CAMERĂ + VANĂ DE GAZ EXTERNĂ
x
x
x
x
3905104
FILTRU DE GAZ 70-100-140
x
x
x
x
3905105
FILTRU DE GAZ 170-200
x
3905108
Set ROBINETE DE GAZ TAE/TAS – CAZAN ÎNCĂLZIRE CENTRALĂ
x
3905109
Set ROBINETE DE GAZ TAE/TAS – CAZAN APĂ CALDĂ MENAJERĂ
x
3905107
SET DE RACORDURI PENTRU ROBINETE DE GAZ TAE/TAS – MONTARE PE
PERETE, ÎNCĂLZIRE CENTRALĂ, FAȚĂ
3905110
SET DE RACORDURI PENTRU ROBINETE DE GAZ TAE/TAS – MONTARE PE
PERETE, ÎNCĂLZIRE CENTRALĂ, SPATE
3905111
SET DE RACORDURI PENTRU ROBINETE DE GAZ TAE/TAS – MONTARE PE
PERETE, APĂ CALDĂ MENAJERĂ
3905115
FILTRU DE AER Ø100
x
3905116
FILTRU DE AER Ø130
x
3905117
SET DE RACORDURI PENTRU APĂ/GAZE
3905118
Cascadă
Pe perete
în linie
Cascadă
Pe perete
spate în
spate
Interval de
putere
x
x
0-1600
x
0-1600
x
x
x
x
x
x
x
x
x
x
x
x
x
Set GPL 70
x
x
x
x
x
0-1600
0-1600
3905119
Set GPL 100
x
x
x
3905120
REMOCON MODBUS-LON
x
x
x
x
x
x
x
x
0-1600
3905121
REMOCON MODBUS-BACNET
x
x
x
x
x
x
x
x
0-1600
3905122
REMOCON MODBUS
x
x
x
x
x
x
x
x
0-1600
3905123
REMOCON MODBUS-KNX
x
x
x
x
x
x
x
x
0-1600
3905124
MANAGER DE ZONE CLIP-IN
x
x
x
x
x
x
x
x
0-1600
3905045
Senzor de apă caldă menajeră pentru butelie de egalizare
x
x
x
x
x
x
x
x
0-1600
3905127
Senzor de temperatură extern
x
x
x
x
x
x
x
x
0-1600
3905128
Senzor de zone
x
x
x
x
x
x
x
x
0-1600
3905129
COLECTOR TUR/RETUR DN65 2 cazane în linie /
4 cazane spate în spate
x
x
0-465
3905130
COLECTOR TUR/RETUR DN65 3 cazane în linie / 6 cazane spate în spate
x
x
0-465
3905131
ȚEAVĂ DE GAZ DN65 DUO
x
x
0-1600
3905132
COLECTOR TUR/RETUR DN100 2 cazane în linie /
4 cazane spate în spate
x
x
0-1600
3905134
COLE
CTOR TUR/RETUR DN100 3 cazane în linie /
6 cazane spate în spate
x
x
0-1600
3905136
IZOLAȚIE COLECTOR DN65/DN100 (L=1cazan)
x
x
0-1600
3905137
DISPOZITIV DE DEZAERISIRE PENTRU CONFIGURAȚII ÎN CASCADĂ
x
x
0-1600
3905138
FILTRU DE GAZ DN65
x
x
0-1600
3905026
SET DE FLANȘE DN65 PENTRU APĂ
x
x
0-465
3905027
SET DE FLANȘE DN100 PENTRU APĂ
x
x
0-1600
0-1600
3905029
SET DE FLANȘE DN65 PENTRU GAZ
x
x
3905125
x
x
0-465
3905038
SET LASFLENS DN100 A/R + GAZ DN 65
x
x
0-1600
3905126
Flanșă sudată DN150 pentru apă + DN65 pentru gaz
x
x
0-1600
3905142
PICIOR DE CADRU, FORMĂ L
x
0-1600
3905143
PICIOR DE CADRU, FORMĂ l
x
3905144
SUPORT DISTANȚIER SUPERIOR ORIZONTAL – INFERIOR 2 cazane
x
x
0-1600
3905147
SUPORT DISTANȚIER SUPERIOR ORIZONTAL – INFERIOR 3 cazane
x
x
0-1600
3905148
CONSOLĂ DE MONTARE 2 cazane
x
x
0-1600
3905149
CONSOLĂ DE MONTARE 3 cazane
x
x
0-1600
3905167
SET DE RACORDURI CU IZOLAȚIE
PENTRU MONTAREA PE PERETE
x
x
0-1600
3905173
Butelie de egalizare pentru CAZAN dT10-20K
x
x
x
x
x
x
x
x
x
x
x
x
0-465
0-1600
3905175
Butelie de egalizare pentru CAZAN cu izolație dT10-20K
3905033
Butelie de egalizare DN65
x
x
3905034
Butelie de egalizare DN100
x
x
0-960
3905035
Cot de 90° DN65
x
x
0-465
3905041
Cot de 90° DN65 izolație
x
x
0-465
3905036
Cot de 90° DN100
x
x
0-1600
3905174
Cot de 90° DN100 izolație
x
x
0-1600
3905176
Set DUO butelii de egalizare DN100
x
x
960-1600
3905040
Butelie de egalizare cu izolație DN65
x
x
0-465
3905177
Butelie de egalizare cu izolație DN100
x
x
0-960
3905186
SCHIMBĂTOR DE CĂLDURĂ CU PLĂCI SE PENTRU CAZAN dT10K
x
3905187
SCHIMBĂTOR DE CĂLDURĂ CU PLĂCI DE PENTRU CAZAN dT10K
x
3905188
SCHIMBĂTOR DE CĂLDURĂ CU PLĂCI SE PENTRU CAZAN dT15K
x
3905189
SCHIMBĂTOR DE CĂLDURĂ CU PLĂCI DE PENTRU CAZAN dT15K
x
3905190
SCHIMBĂTOR DE CĂLDURĂ CU PLĂCI SE
PENTRU CAZAN dT20K
x
3905191
SCHIMBĂTOR DE CĂLDURĂ CU PLĂCI DE PENTRU CAZAN dT20K
x
x
x
x
x
x
x
x
x
x
x
x
x
x
x
x
15
Descrierea produsului
THISION L PLUS Accesorii pentru configurațiile în cascadă
Coduri FG
Descriere
Simplu
Cazan
70
100
140
170
200
3905192
Set de racorduri CAZAN pentru schimbătorul de căldură cu plăci
x
x
x
x
x
x
3905193
Set de vase de expansiune CAZAN
x
x
x
x
x
x
Cascadă
Pe perete
în linie
Cascadă
Pe perete
spate în
spate
Interval de
putere
3905194
SCHIMBĂTOR DE CĂLDURĂ CU PLĂCI PENTRU CONFIGURAȚIE ÎN CASCADĂ
dT10K
x
x
x
x
x
x
x
3905195
SCHIMBĂTOR DE CĂLDURĂ CU PLĂCI PENTRU CONFIGURAȚIE ÎN CASCADĂ
dT15K
x
x
x
x
x
x
x
3905196
SCHIMBĂTOR DE CĂLDURĂ CU PLĂCI PENTRU CONFIGURAȚIE ÎN CASCADĂ
dT20K
x
x
x
x
x
x
x
3905197
Set de racorduri PHE pentru configurație în CASCADĂ
x
x
0-1600
3905265
Set de racorduri PHE pentru configurație în CASCADĂ DN100
x
x
0-1600
3905198
KIT DE EVACUARE COMUNĂ DN150 PENTRU GAZE DE ARDERE PENTRU
CONFIGURAȚII ÎN CASCADĂ
x
x
x
x
x
x
x
3905199
SET DE SIFOANE PENTRU GAZE DE ARDERE DN150
x
x
x
x
x
x
x
3905200
KIT DE EVACUARE COMUNĂ DN200 PENTRU GAZE DE ARDERE PENTRU
CONFIGURAȚII ÎN CASCADĂ
x
x
x
x
x
x
x
3905201
SET DE SIFOANE PENTRU GAZE DE ARDERE DN200
x
x
x
x
x
x
x
3905202
KIT DE EVACUARE COMUNĂ DN150 PENTRU GAZE DE ARDERE PENTRU
CONFIGURAȚII ÎN CASCADĂ SPATE ÎN SPATE
x
x
x
x
x
x
x
3905203
KIT DE EVACUARE COMUNĂ DN200 PENTRU GAZE DE ARDERE PENTRU
CONFIGURAȚII ÎN CASCADĂ SPATE ÎN SPATE
x
x
x
x
x
x
x
3905204
ȚEAVĂ PENTRU GAZE DE ARDERE, PP, 100 MM, L = 0,5 M
x
x
x
x
3905205
ȚEAVĂ PENTRU GAZE DE ARDERE, PP, 100 MM, L = 1,0 M
x
x
x
x
3905206
COT PENTRU GAZE DE ARDERE, PP, 90 GRADE, 100 MM
x
x
x
x
3905207
COT PENTRU GAZE DE ARDERE, PP, 45 GRADE, 100 MM
x
x
x
x
3905208
COT DE SPRIJIN PENTRU GAZE DE ARDERE,
PP, 90 GRADE, 100 MM
x
x
x
x
3905209
TEU PENTRU GAZE DE ARDERE, PP, 100 MM + CAPAC
x
x
x
x
3905210
SET DE SIFOANE PENTRU GAZE DE ARDERE DN100
x
x
x
x
x
x
3905211
EXTENSIE PENTRU GAZE DE ARDERE, PP, 100-150 MM
x
x
x
x
3905212
CAPAC COȘ DE FUM PENTRU GAZE DE ARDERE + GURĂ DE AERISIRE 100 MM
x
x
x
x
3905213
CONSOLĂ PENTRU PERETE PENTRU GAZE DE ARDERE, 100 MM
x
x
x
x
3905214
PANOU PENTRU PERETE PENTRU GAZE DE ARDERE, 100 MM
x
x
x
x
3905215
GRĂTAR DE VENTILAȚIE GAZE DE ARDERE 100 MM-200 MM
x
x
x
x
3905216
ȚEAVĂ PENTRU GAZE DE ARDERE, PP, 150 MM, L = 0,5 M
x
x
x
x
x
x
x
3905217
ȚEAVĂ PENTRU GAZE DE ARDERE, PP, 150 MM, L = 1,0 M
x
x
x
x
x
x
x
3905218
COT PENTRU GAZE DE ARDERE, PP, 90 GRADE, 150 MM
x
x
x
x
x
x
x
3905219
COT PENTRU GAZE DE ARDERE, PP, 45 GRADE, 150 MM
x
x
x
x
x
x
x
3905220
COT PENTRU GAZE DE ARDERE, PP, 15 GRADE, 150 MM
x
x
x
x
x
x
x
3905221
EXTENSIE PENTRU GAZE
DE ARDERE, PP, 100-200 MM
x
x
x
3905222
EXTENSIE PENTRU GAZE DE ARDERE, PP, 150-200 MM
x
x
x
x
3905223
TEU PENTRU GAZE DE ARDERE, PP, 150 MM + CAPAC
x
x
x
3905224
CONSOLĂ PENTRU PERETE PENTRU GAZE DE ARDERE, 150 MM
x
x
x
3905225
PANOU PENTRU PERETE PENTRU GAZE DE ARDERE, 150 MM
x
x
3905226
COT DE SPRIJIN PENTRU GAZE DE ARDERE, PP, 90 GRADE, 150 MM
x
3905227
BANDĂ DE SPRIJIN PENTRU GAZE DE ARDERE
3905228
3905229
x
x
x
x
x
x
x
x
x
x
x
x
x
x
x
x
x
x
x
x
x
x
x
x
x
x
x
x
x
x
x
CONSOLĂ DE DISTANȚARE PENTRU GAZE DE ARDERE 150 MM, 2 BUC.
x
x
x
x
x
x
x
CAPAC COȘ DE EVACUARE GAZE DE ARDERE + GURĂ DE AERISIRE 150 MM
x
x
x
x
x
x
x
3905230
CAPAC COȘ DE EVACUARE GAZE DE ARDERE, EXTERIOR 150 MM
x
x
x
x
x
x
x
3905231
TERMINAL PLAFON GAZE DE ARDERE, PP, 150 MM
x
x
x
x
x
x
x
3905232
PLAFON PLAT DIN ARDEZIE REZISTENTĂ LA INTEMPERII, 150 MM
x
x
x
x
x
x
x
3905233
ȚEAVĂ PENTRU GAZE DE
ARDERE, PP, 200 MM, L = 0,5 M
x
x
x
x
x
x
x
3905234
ȚEAVĂ PENTRU GAZE DE ARDERE, PP, 200 MM, L = 1,0 M
x
x
x
x
x
x
x
3905235
COT PENTRU GAZE DE ARDERE, PP, 90 GRADE, 200 MM
x
x
x
x
x
x
x
3905236
COT PENTRU GAZE DE ARDERE, PP, 45 GRADE, 200 MM
x
x
x
x
x
x
x
3905237
COT PENTRU GAZE DE ARDERE, PP, 15 GRADE, 200 MM
x
x
x
x
x
x
x
3905238
TEU PENTRU GAZE DE ARDERE, PP, 200 MM + CAPAC
x
x
x
x
x
x
x
3905239
CONSOLĂ PENTRU PERETE PENTRU GAZE DE ARDERE, 200 MM
x
x
x
x
x
x
x
3905240
PANOU PENTRU PERETE PENTRU GAZE DE ARDERE, 200 MM
x
x
x
x
x
x
x
3905241
COT DE SPRIJIN PENTRU GAZE DE ARDERE, PP, 90 GRADE, 200 MM
x
x
x
x
x
x
x
3905242
CONSOLĂ DE DISTANȚARE PENTRU GAZE DE ARDERE 200 MM, 2 BUC.
x
x
x
x
x
x
x
3905243
CAPAC COȘ DE EVACUARE GAZE DE ARDERE + GURĂ DE AERISIRE 200 MM
x
x
x
x
x
x
x
3905244
CAPAC COȘ DE EVACUARE GAZE DE ARDERE, EXTERIOR 200 MM
x
x
x
x
x
x
x
3905245
TERMINAL PLAFON GAZE DE ARDERE, PP, 200 MM
x
x
x
x
x
x
x
3905246
PLAFON PLAT DIN ARDEZIE REZISTENTĂ LA INTEMPERII, 200 MM
x
x
x
x
x
x
x
3905247
TERMINAL PLAFON GAZE DE ARDERE, PP 100/150 MM
x
x
x
x
3905248
ȚEAVĂ PENTRU GAZE DE ARDERE, PP, CONC., 100/150 MM, L = 0,5 M
x
x
x
x
3905249
ȚEAVĂ PENTRU GAZE DE ARDERE, PP, CONC., 100/150 MM, L = 1,0 M
x
x
x
x
3905250
COT PENTRU GAZE DE ARDERE, PP, 90 GRADE, CONC., 100/150 MM
x
x
x
x
3905251
COT PENTRU GAZE DE ARDERE, PP, 45 GRADE, CONC., 100/150 MM
x
x
x
x
3905252
COT DE SPRIJIN PENTRU GAZE DE ARDERE, PP, 90 GRADE, CONC.,
100/150 MM
x
x
x
x
16
Descrierea produsului
THISION L PLUS Accesorii pentru configurațiile în cascadă
Coduri FG
Descriere
Simplu
Cazan
70
100
140
3905252
COT DE SPRIJIN PENTRU GAZE DE ARDERE, PP, 90 GRADE, CONC.,
100/150 MM
x
x
x
x
3905253
TEU PENTRU GAZE DE ARDERE, PP, CONC., 100/150 MM + CAPAC
x
x
x
x
3905254
SET DE SIFOANE PENTRU
GAZE DE ARDERE, CONC., 100/150 MM
x
x
x
x
3905255
CAPAC COȘ DE EVACUARE GAZE DE ARDERE + GURĂ DE AERISIRE, CONC.,
100/150 MM
x
x
x
x
3905256
CONSOLĂ DE PERETE PENTRU GAZE DE ARDERE, CONC., 100/150 MM
x
x
x
x
3905257
PANOU DE PERETE PENTRU GAZE DE ARDERE, CONC., 100/150 MM
x
x
x
x
3905259
TERMINAL DE PERETE PENTRU GAZE DE ARDERE, PP, CONC., 100/150 MM
x
x
x
x
3905260
ADAPTOR PENTRU GAZE DE ARDERE PAR - CONC, 100/100-100/150
x
x
x
x
x
x
x
170
200
Cascadă
Pe perete
în linie
Cascadă
Pe perete
spate în
spate
3905261
ADAPTOR Ø100-110 PENTRU GAZE DE ARDERE/AER
x
3905262
EXTENSIE PENTRU GAZE DE ARDERE, 130-150 MM
x
x
x
x
x
3905263
EXTENSIE PENTRU GAZE DE ARDERE, 130-200 MM
x
x
x
x
x
3905264
REDUCȚIE PENTRU GAZE DE ARDERE 130-100 MM
x
x
x
Interval de
putere
17
Instalare
Transportarea cazanului
Cazanul THISION L PLUS este un sistem
de încălzire compact și complet echipat,
care a fost preconfigurat și testat î
n fabrică.
Dimensiunile ambalajului pentru toate
aparatele sunt următoarele:
Lățime: 750 mm
Înălțime: 1.200 mm
Adâncime: 800 mm
Aceste dimensiuni fac posibilă transportarea
tuturor modelelor într-o singură bucată și
trecerea acestora prin deschizătura unei uși
normale.
Cazanul poate fi deplasat utilizând un
autoîncărcător cu furcă sau un cărucior de
ridicat și stivuit cu furcă. Instrucțiunile de
despachetare sunt imprimate pe cutia de
carton. Urmați pașii recomandați.
Dezasamblarea panourilor
Panourile carcasei aparatului pot fi scoase
cu ușurință și acest lucru este recomandat
în timp ce se instalează aparatul. Acest
lucru limitează potențialul de deteriorare.
2
1
Măsuri de precauție pentru ridicare și
transportare:
- purtați îmbrăcăminte de protecție și
mănuși de protecție pentru a vă proteja
de orice margine tăioasă/ascuțită;
- în vederea transportării, cazanul trebuie
să fie ridicat din partea din față cu un
autoî
ncărcător cu furcă.
Panourile ar trebui să fie atașate și fixate
cu șurubul furnizat, după asamblarea
cazanului sau după lucrări de întreținere.
3
A
B
C
4
5
6
B
B
4x
A
7
18
1.
2.
3.
4.
A
Îndepărtați folia din plastic.
Deschideți cele 4 clapete superioare și scoateți documentația și țeava pentru condens.
Scoateți inserțiile de carton, apoi cutia de carton.
Scoateți panoul de perete din partea din spate a cazanului (prin scoaterea unui șurub) și
scoateți cele 4 șuruburi din partea de jos a cazanului.
5. Instalați cazanul în configurația în cascadă (cu ajutorul unui autoîncărcător cu furcă).
6. Instalați cazanul pe panoul de perete nou (cu ajutorul unui autoîncărcător cu furcă).
7. Scoateți capacul din plastic pentru apă și gaz, conectați țeava pentru condens și
respectați manualul de instalare.
Instalare
Instalare Conexiuni
Tavan
Ceiling
6
10 mm
Țeavă de gaze de
Individual flue:
ardere individuală:
min.
500mm
min. 500 mm Țeavă
Collective flue:
de gaze de ardere
dependant on
colectivă: în funcție
the selected
de sistemul de tiraj
flue system.
selectat.
Please contact
Contactați furnizorul
5
10 mm
1000 mm
the supplier
1000 mm
1
Locul de instalare pentru cazanele CH
trebuie să fie fără îngheț și să rămână astfel.
NU este necesar să se asigure o gură de
aerisire specială, cu condiția ca, în camera
sau în spațiul interior în care se instalează
cazanul, să se utilizeze o țeavă dublă sau
un kit de evacuare/aspirație coaxial pentru
camere ermetice. De asemenea, în mod
normal nu este obligatorie o răcire generală
ca urmare a pierderii foarte mici de căldură
de la schimbătorul de căldură și de la
carcasa cazanului.
Podeaua ar trebui să fie orizontală și plană
și să aibă o capacitate totală de încărcare
suficientă pentru instalația completă
(umplută).
Configurația în cascadă pentru ELCO
THISION L PLUS poate fi montată în 3
moduri
:
- Montare pe perete, în linie:
toate cazanele se află unul lângă altul
pe perete; Consultați pagina 21.
-
-
Neancorate, în linie:
toate cazanele sunt montate unul lângă
altul pe un cadru neancorat;
Consultați pagina 22.
Neancorate, spate în spate:
toate cazanele sunt montate spate în
spate pe un cadru neancorat.
Consultați pagina 23.
1.
2.
3.
4.
5.
6.
2
3
4
Racord de retur cazan
Racord de tur cazan
Drenare condens
Gaz
Orificiu de evacuare a gazelor de ardere
Alimentare cu aer
Orientări generale:
Acordați atenție distanței minime
obligatorii dintre cazane, pereți și
tavan pentru instalarea și scoaterea
carcasei (consultați mai sus) în vederea
operațiilor de punere în funcțiune, de
service și de instalare a sistemului de
evacuare (consultați capitolul 7).
Dacă ați ales să construiți partea hidraulică
pe cont propriu, ELCO vă recomandă
să utilizați pentru fiecare cazan „setul de
conectare a cazanului THISION L PLUS în
calitate de
cazan simplu”.
19
Instalare
Sistemul hidraulic Pompe de circulație
Diagrama înălțimii de pompare, tip de cazan 120/140
Presiune reziduală – (mh2O)
Presiune reziduală – (mh2O)
Diagrama înălțimii de pompare, tip de cazan 60/70
Debit agent termic (m3/h)
Debit agent termic (m3/h)
Presiune reziduală – 90 %
Presiune reziduală – 90 %
Diagrama înălțimii de pompare, tip de cazan 170/200
Presiune reziduală – (mh2O)
Presiune reziduală – (mh2O)
Diagrama înălțimii de pompare, tip de cazan 100
Debit agent termic (m3/h)
Debit agent termic (m3/h)
Presiune reziduală – 90 %
Tip cazan
Tip de pompă
60
70
100
120
140
170
200
1 x WILO PARA 8
1 x WILO PARA 8
1 x WILO PARA 9
2 x WILO PARA 8
2 x WILO PARA 8
2 x WILO PARA 9
2 x WILO PARA 9
Presiune reziduală – 90 %
Debit agent termic
(m3/h - l/min)
ΔT20 (K)
ΔT25 (K)
2,44 - 40,7
1,95 - 32,6
2,81 - 46,8
2,25 - 37,5
3,90 - 65,0
3,12 - 51,9
4,76 - 79,3
3,81 - 63,5
5,62 - 93,7
4,50 - 74,9
6,70 - 1
11,7
5,36 - 89,4
7,79 - 129,8
6,23 - 103,8
Înălțime reziduală
(mH2O - mbar - kPa)
ΔT20 (K)
ΔT25 (K)
3,0 - 296 - 29,6
5,1 - 495 -49,5
1,5 - 148 - 14,8
3,8 - 373 - 37,3
0,0 - 0 - 0,0
1,7 - 167 - 16,7
2,7 - 262 - 26,2
4,8 - 475 - 47,5
0,7 - 65 - 6,5
3,3 - 321 - 32,1
0,8 - 80 - 8,0
3,5 - 344 - 34,4
0,0 - 0 - 0,0
1,6 - 157 - 15,7
Pentru instalarea unui singur cazan, se recomandă cu fermitate conectarea la o butelie de egalizare și la o pompă de
circuit secundară.
Pentru instalarea unor cazane în cascadă, este obligatorie conectarea la o butelie de egalizare și o la pompă de
circuit secundară.
Temperatură diferențială nominală
Pompa de circulație WILO PARA 8 sau 9, care este instalată în fabrică pentru cazan, funcționează continuu și adaptează
viteza pompei la necesarul de căldură (ΔT).
Unitatea electronică de control al încălzirii ATG continuă să controleze puterea cazanului astfel încât valoarea de referință a
temperaturii acestuia să fie menținut
ă.
Dispozitivul de control al vitezei pompei controlează viteza pompei cazanului într-un mod în care temperatura diferențială
nominală parametrizată să fie păstrată în țeava de retur și în țeava de tur ale cazanului.
Dacă valoarea diferențială efectivă este mai mare decât valoarea diferențială nominală, viteza pompei este mărită; în caz
contrar, aceasta este micșorată.
20
Instalare
Configurație în cascadă montată pe perete, în linie
1. Poziționați distribuitorul pentru țevi
pe perete. Când folosiți mai multe
distribuitoare pentru țevi: cuplațile cu garniturile, cu buloanele M12
(DN65) sau M16 (DN100), cu șaibele
elastice și cu piulițele furnizate. Aliniați
distribuitoarele pentru țevi pe orizontală
utilizând picioarele reglabile.
1
2
2. Stabiliți poziția consolelor de
suspendare pe baza figurii 2b. Cazanele
pot fi fixate pe perete utilizând consolele
de suspendare furnizate și materialele
de montare (minimum 4 șuruburi pentr
u
fiecare cazan). Peretele trebuie să fie
nivelat și suficient de rezistent pentru
a suporta greutatea tuturor cazanelor,
inclusiv a conținutului de apă al
acestora.
4. Poziționați țeava de gaz în nișele
destinate acesteia. Când folosiți mai
multe distribuitoare pentru țevi: cuplați
țevile de gaz utilizând garniturile DN65,
buloanele M12, șaibele elastice și
piulițele furnizate.
5. F
ixați țeava de gaz cu cele 2
buloane speciale cu toleranță
ridicată M6x8x16 pe fiecare flanșă a
distribuitoarelor pentru țevi.
Continuați cu pagina 24.
3. Montați cazanele pe consolele de
suspendare posterioare.
Pentru ridicare, consultați „Măsuri
de precauție pentru ridicare și
transportare”, la pagina 18.
3
2b
700
20
15
A
650
430
1250
4
5
21
Instalare
Configurație în cascadă neancorată, în linie
1. Poziționați distribuitorul pentru țevi în
locul necesar. Când folosiți mai multe
distribuitoare pentru țevi: cuplați-le
utilizând garnit
urile, buloanele M12
(DN65) sau M16 (DN100), șaibele
elastice și piulițele furnizate. Aliniați
distribuitoarele pentru țevi pe orizontală
utilizând picioarele reglabile.
1
2
3
2. Poziționați țeava de gaz în nișele
destinate acesteia. Când folosiți mai
multe distribuitoare pentru țevi: cuplați
țevile de gaz utilizând garniturile DN65,
buloanele M12, șaibele elastice și
piulițele furnizate.
ok
Fixați țeava de gaz cu cele 2
buloane speciale cu toleranță
ridicată M6x8x16 pe fiecare flanșă a
distribuitoarelor pentru țevi.
3. Fixați coloanele I pe placa flanșelor
utilizând 2 buloane M8 x 110 mm.
Atenție: Utilizați găurile corecte din
coloană!
Atunci când utilizați o placă de flanșe
pentru partea stângă: folosiți găurile
din partea dreaptă din coloană.
Atunci când utilizați o placă de flanșe
pentru partea dreaptă: folosiți găurile
din partea stângă din coloană.
4
4. Fixați un distanțier inferior pe partea
din fa
ță a fiecărei coloane I, utilizând 2
buloane M8 x 16 mm.
Fixați un distanțier inferior pe partea din
spate a fiecărei coloane I, utilizând 2
buloane M8 x 16 mm.
5. Fixați bara superioară pe fiecare
coloană I, utilizând 2 buloane M8 x
50 mm.
5
6
A
22
6. Montați cazanele pe consolele de
suspendare posterioare.
Pentru ridicare, consultați „Măsuri
de precauție pentru ridicare și
transportare”, la pagina 18.
Continuați cu pagina 24.
Instalare
Configurație în cascadă neancorată, spate în spate
1. Poziționați distribuitorul pentru țevi în
locul necesar. Când folosiți mai multe
distribuitoare pentru țevi: cuplați-le
utilizând garniturile, buloanele M12
(DN65) sau M16 (DN100), șaibele
elastice și piulițele furnizate. Aliniați
distribuitoarele pentru țevi pe orizontală
utilizând picioarele reglabile.
1
2
3
4
6. Montați cazanele pe consolele de
suspendare posterioare.
Pentru ridicare, consultați „Măsuri
de precauție
pentru ridicare și
transportare”, la pagina 18.
Continuați cu pagina 24.
2. Poziționați țeava de gaz în nișele
destinate acesteia. Când utilizați mai
multe distribuitoare pentru țevi: cuplați
țevile de gaz utilizând garniturile DN65,
buloanele M12, șaibele elastice și
piulițele furnizate.
ok
Fixați țeava de gaz cu cele 2
buloane speciale cu toleranță
ridicată M6x8x16 pe fiecare flanșă a
distribuitoarelor pentru țevi.
3. Fixați coloanele L pe placa flanșelor
utilizând 2 buloane M8 x 110 mm.
Atenție: Utilizați găurile corecte din
coloană!
Atunci când utilizați o placă de flanșe
pentru partea stângă: folosiți găurile
din partea dreaptă din coloană.
Atunci când utilizați o placă de flanșe
pentru partea dreaptă: folosiți găurile
din partea stângă din coloană.
4. Fixați un distanțier inferior pe partea
din față a fiecărei coloane L, utilizând 2
buloane M8 x 16 mm.
Fixați un distanțier inferior pe partea d
in
spate a fiecărei coloane L, utilizând 2
buloane M8 x 16 mm.
5. Fixați bara superioară pe fiecare
coloană L, utilizând 2 buloane M8 x
50 mm.
5
6
A
23
Instalare
Racordarea cazanului
1
1-2. Păstrați capacul pe conexiunile care nu
se utilizează pe distribuitoarele pentru
țevi:
Tur și retur: capac orb de 2" cu garnitură
(2 bucăți/cazan).
Gaz: capac orb de 1¼” cu garnitură (1
bucată/cazan).
Pentru conexiuni, utilizați garniturile
furnizate. Verificați toate conexiunile
pentru a detecta scurgerile și
etanșeitatea la gaze.
2
3. Conectarea robinetelor de izolare la
cazan:
Tur: robinet de izolare cu cuplaj plat de
2”, cu mâner roșu.
Retur: piesă de legătură încrucișată
cu garnitură plată de 2”, cu robinet
de umplere/evacuare și cu robinet de
izolare cu mâner albastru.
Cazanul este furnizat cu o supapă de
siguranță de 3 și 6 bari.
ELCO recomandă montarea supapei de
siguranță de 6 bari ca urmare a setărilor
de control care opre
sc cazanul la 6 bari.
Gaz: robinet de izolare a gazului, de
1¼".
3
Se poate evacua apă de testare
poluată atunci când se scot capacele
de plastic de pe turul și returul
cazanului.
Pentru conexiuni, utilizați garniturile
furnizate. Verificați toate conexiunile
pentru a detecta scurgerile și
etanșeitatea la gaze.
4
4. Conectați robinetele la distribuitoarele
pentru țevi:
Tur: țevi de 45 mm cu cuplaj plat de 2”.
Retur: țevi de 45 mm cu cuplaj plat de
2”.
Gaz: țeavă de 28 mm cu cuplaj plat
de 1¼” și garnitură de compresie de
28 mm.
Pentru conexiuni, utilizați garniturile
furnizate. Verificați toate conexiunile
pentru a detecta scurgerile și
etanșeitatea la gaze.
24
Instalare
Accesorii pentru configurații în cascadă
1
2
3
Distribuitoarele pentru țevi sunt disponibile
în 2 dimensiuni, și anume DN65 și DN100,
și sunt conectate unul la altul prin intermediul cuplajelor cu flanșe și al garniturilor, al
buloanelor M12 sau M16x55, al șa
ibelor
elastice și al piulițelor. Apoi, la acesta se
poate conecta butelia de egalizare și instalația
completă.
1.2.3. Butelia de egalizare
Sunt disponibile 4 tipuri de butelii de
egalizare:
- Butelia de egalizare pentru 1 THISION L
PLUS până la max. 200 kW, furnizat
împreună cu o supapă de aerisire automată,
un robinet de evacuare și un compartiment
pentru senzorul de temperatură T10.
Conexiunile cazanului sunt 2x 2”, iar
conexiunile instalației sunt 2x 2". Butelia de
egalizare TREBUIE să fie conectată între
cazan(e) și pompele sistemului.
6
6. Flanșe
de mascare
Capetele distribuitoarelor pentru țevi trebuie
să fie prevăzute cu flanșe de mascare.
Flanșele de mascare sunt furnizate, în mod
standard, cu componente complet configurate,
inclusiv buloane, șaibe elastice și garnituri.
- Set de flanșe de mascare DN65 tur/retur, 2
bucăți
- Set de flanșe de mascare DN100 tur/retur,
2 bucăți
7
- Butelia de egalizare DN65 până la 452 kW
- Butelia de
egalizare DN100 până la 1.000
kW
- Butelia de egalizare DN100 DUO până la
1.600 kW
Buteliile de egalizare sunt livrate, în mod
standard, împreună cu picioare reglabile, cu o
supapă de aerisire automată, cu un robinet de
evacuare, cu un compartiment pentru senzorul
de temperatură T10, cu buloane M12 sau
M16x55, cu șaibe elastice și cu piulițe.
4
Butelia de egalizare poate fi poziționată fie pe
partea stângă a distribuitoarelor pentru țevi, fie
pe partea dreaptă a acestora.
7. Flanșe sudate
La cerere, sunt disponibile flanșe sudate
pentru a conecta țevile de încălzire centrală
(CH) la partea secundară a buteliei de
egalizare și pentru a conecta țeava de gaz.
- Set de flanșe sudate DN65 tur/retur, 2 bucăți
+ DN65 gaz, 1 bucată
- Set de flanșe sudate DN100 tur/retur, 2
bucăți + DN65 gaz, 1 bucată
Pentru prezentarea generală completă
a accesoriilor disponibile, consultați
5
4. Senzorul de temperatură T10 pentru tur
Fiecare sistem cu 1 cazan THISI
ON L PLUS
sau mai multe trebuie să fie prevăzut cu un
senzor de temperatură T10 pentru tur și
trebuie să fie conectat la cazanul principal
(MTS1-T10). Senzorul de tur trebuie să fie
poziționat în compartimentul buteliei de
egalizare.
5. Set de coturi
Butelia de egalizare poate fi poziționată la un
unghi de 90°. În acest scop se poate folosi un
set de coturi.
- Set de coturi DN65 pentru tur/retur
- Set de coturi DN100 pentru tur/retur
paragraful „Accesorii pentru configurații în
cascadă THISION L PLUS”. Componentele
obligatorii care nu sunt furniza-te de ELCO:
- pompa instalației;
- sistemul de evacuare a condensului;
- filtrul pentru apa din instalație;
- separatorul de aer și impurități;
- producerea de apă caldă;
- supapa de reglaj;
- vasele de expansiune.
25
Instalare
Accesorii pentru configurații în cascadă
Conectarea unui cazan
133
133
214
214
1 cazan THISION L PLUS
1741
1741
G 3/8"
G 1/2"
3,0
G 2" (4x)
19
19
44
133
440
440
329
329
0
,5
19
901
901
660
440
2"outer thread
2"outer thread
1700
1700
214
(48)
G 1/2"
216
0,5
1700
Articole necesare
1. Butelie de egalizare pentru 1 cazan
Butelie de egalizare (inclusă)
Consolă de fixare (inclusă)
1. Set de conectare a cazanului pentru un singur cazan
Filet
exterior
2"outer
thread2”
901
1. Izolație butelie de egalizare
440
Supapă de aerisire (inclusă)
329
1. Senzor de tur comun (T10) 10 kOhm
26
Instalare
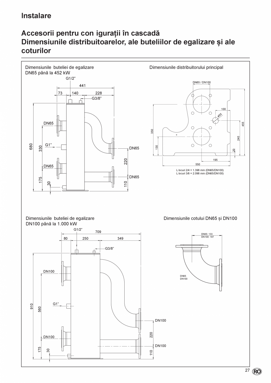
Accesorii pentru con igurații în cascadă
Dimensiunile distribuitoarelor, ale buteliilor de egalizare și ale
coturilor
Dimensiunile buteliei de egalizare
DN65 până la 452 kW
Dimensiunile distribuitorului principal
G1/2”
DN65 / DN100
441
73
140
228
G3/8”
100
5
ø5
20
DN65
DN65
195
550
LLlocuri
2/4 = =
1.398
mm (DN65/DN100)
2/4 places
1398mm
(DN65/DN100)
LLlocuri
3/6 = =
2.098
mm (DN65/DN100)
3/6 places
2098mm
(DN65/DN100)
110
DN65
30
175
130
G1”
220
330
680
240
350
455
DN65
Dimensiunile buteliei de egalizare
DN1
00 până la 1.000 kW
G1/2”
80
Dimensiunile cotului DN65 și DN100
709
250
DN65: 133
DN100: 197
349
G3/8”
DN100
560
G1”
DN100
220
DN100
110
DN100
30
175
910
DN65
DN100
27
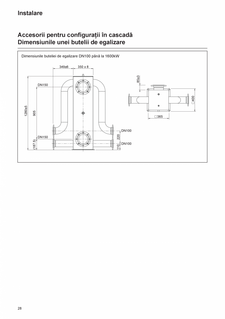
Instalare
Accesorii pentru configurații în cascadă
Dimensiunile unei butelii de egalizare
Dimensiunile buteliei de egalizare DN100 până la 1600kW
350 x 8
85±3
349±6
905
1280±5
400
DN150
365
28
220
DN150
110
(187.5)
DN100
DN100
Instalare
Agentul termic și sistemul hidraulic
Calitatea agentului termic
Umpleți instalația cu apă potabilă.
În majoritatea cazurilor, o instalație de
încălzire centrală poate fi umplută cu apă
în conformitate cu reglementările naționale
aplicabile, nefiind necesară o tratare a apei.
Pentru a evita problemele, calitatea apei de
umplere trebuie să respecte cerințele din
Tabelul 1.
Dacă apa de umplere nu respectă aceste
cerințe, se recomandă tratarea apei în mod
corespunzător (consultați VDI2035).
Pretențiile legate de gara
nție vor fi nule
dacă sistemul nu a fost spălat în timpul
instalării sau în cazul în care calitatea apei
de umplere nu respectă cerințele ELCO
(consultați Tabelul 1).
În cazul în care există neclarități sau
abateri, mai întâi contactați întotdeauna
ELCO. Garanția este anulată dacă se
realizează modificări fără acordul/autorizația
prealabil(ă) din partea ELCO.
Instalare:
- Utilizarea de apă freatică, apă
demineralizată și apă distilată nu este
permisă (o explicație a acestor termeni
poate fi găsită pe pagina următoare).
- În cazul în care calitatea apei potabile
se încadrează în limitele valorilor din
Tabelul 1, se poate trece la instalarea
sistemului și la spălarea echipamentului.
-
-
-
-
-
-
Reziduurile de produse corozive
(magnetita), materialele de asamblare,
lichidul pentru răcire și ungere și alte
produse nedorite trebuie să fie eliminate
în timpul operației de spălare.
O altă posibilitate de a elimina
impuritățile co
nstă în utilizarea unui filtru.
Tipul de filtru trebuie să fie în
conformitate cu cerințele specifice
sistemului și cu tipul de contaminare.
ELCO recomandă utilizarea unui filtru. În
acest caz, trebuie să se asigure faptul că
se ține cont de întregul sistem de țevi.
Instalația de încălzire centrală trebuie să
fie aerisită în mod corespunzător înainte
să fie pusă în funcțiune. Consultați în
această privință capitolul „Punerea în
funcțiune”.
Dacă este necesară suplimentarea
cantității de apă (> 5 % pe an), atunci
există o problemă la sistem, care trebuie
remediată de un tehnician certificat.
Adăugarea periodică de apă proaspătă
și de oxigen duce la oxidare și adaugă
calcar în sistem, care conduce la
depuneri.
Dacă se utilizează un agent anti-îngheț
sau alți aditivi, atunci trebuie
să se verifice cu regularitate pentru a
asigura că apa de umplere are calitatea
prevăzută de cerințele producătorului.
Inhibitorii pot fi utiliza
ți numai după o
consultare prealabilă cu ELCO.
Parametri
Valoare
Tip de apă
Apă potabilă
Apă dedurizată
pH
6,0 – 8,5
Conductivitate (la 20 °C în µS/cm)
Max. 2.500
Fier (ppm)
Max. 0,2
-
Utilizarea unor astfel de agenți trebuie
să facă obiectul unui protocol.
Încălzirea prin pardoseală
Atunci când se conectează un sistem de
încălzire prin pardoseală care folosește țevi
din plastic, trebuie să se asigure faptul că
acesta respectă standardul DIN 4726-4729.
Dacă sistemul nu îndeplinește standardul,
trebuie să se prevadă o separare a
sistemului.
Dacă reglementările cu privire la țevile
din plastic nu sunt respectate, atunci
pretențiile legate de garanție sunt nule
(consultați condițiile de garanție).
Duritate (°dH/°fH)
Volumul/randamentul instalației 1 – 12
< 20 l/kW
Volumul/randamentul instalației 1 – 7
>= 20 l/kW
Oxigen
Difuzia de oxigen nu este permisă în timpul operațiunilor.
Anual se poate adăuga max. 5 % din volumel
e sistemului.
Inhibitori de coroziune
Consultați capitolul „Aditivii pentru agentul termic (inhibitori)”
Agenți de creștere sau micșorare a pH-ului
Consultați capitolul „Aditivii pentru agentul termic”
Aditivi anti-îngheț
Consultați capitolul „Aditivii pentru agentul termic”
Alți aditivi chimici
Consultați capitolul „Aditivii pentru agentul termic”
Substanțe solide
Nu sunt permise
Reziduurile din agentul termic, care nu sunt componente
ale apei potabile
Nu sunt permise
Tabelul 1
29
Instalare
Aditivii pentru agentul termic
Aditivii pentru agentul termic, care
sunt enumerați în tabel, au fost
aprobați de producător și țin seama de
valorile dozelor indicate.
În cazul unei utilizări greșite și dacă se
depășesc valorile maxime ale
concentrațiilor, atunci se anulează
garanția pentru toate componentele
care intră în contact cu agentul termic.
Tip de aditiv
Furnizor și specificații
Concentrație maximă
Aplicație
Inhibitori d
e coroziune
Sentinel X100 – Agent de protecție
rezistent la coroziune pentru sisteme de încălzire centrală
Certificat Kiwa
1 – 2 l/100 litri de conținut de apă
pentru încălzire centrală
Soluție apoasă de agenți organici și anorganici care împiedică
formarea coroziunii și a ruginii
Fernox F1 Protector – Agent de protecție rezistent la coroziune pentru
sisteme de încălzire centrală
Certificat Kiwa KIWA-ATA K62581,
certificat Belgaqua Cat. III
Canistră de 500 ml sau 265 ml
per 100 litri conținut de agent
termic
Previne formarea coroziunii și a
ruginii
Kalsbeek
Monopropileneglicol / propan-1,2diol+inhibitori
AKWA-Colpro KIWA-ATA Nr.
2104/1
50 % w/w
Soluție anti-îngheț
Tyfocor L
Monopropileneglicol / propan-1,2diol+ inhibitori
50 % w/w
Soluție anti-îngheț
Sentinel X500
Monopropileneglicol + inhibitori
Certificat Kiwa
20 – 50 % w/w
Soluție anti-îngheț
Fernox Alphi 11
Monopropileneglicol + inhibitori
Certificat Kiwa KIWA-ATA K62581,
c
ertificat Belgaqua Cat. III
25 – 50 % w/w
Soluție anti-îngheț în combinație
cu F1 Protector
1 litru/100 litri
Pentru instalații CH noi
Îndepărtează uleiurile/unsoarea și
agenții de control al fluxului
Sentinel X400
Soluție de polimeri organici sintetici
1 – 2 litri/100 litri
Pentru curățarea instalațiilor de
încălzire centrală existente
Îndepărtează sedimentele.
Sentinel X800 Jetflo
Emulsie apoasă de agenți de
dispersare, de agenți de umezire și
de inhibitori
1 – 2 litri/100 litri
Pentru curățarea instalațiilor de
încălzire centrală noi și existente
Îndepărtează sedimentele de fier
și asociate cu calcarul.
Fernox F3 Cleaner
Soluție lichidă universală de curățare, cu pH neutru pentru etapa
prealabilă punerii în funcțiune a
sistemelor noi
500 ml/100 litri
Pentru curățarea instalațiilor de
încălzire centrală noi și existente
Îndepărtează substanțele vâscoase, depunerile de calcar și alte
reziduuri.
Fernox F5 Cle
aner, Soluție concentrată universală de curățare rapidă,
cu pH neutru pentru etapa prealabilă punerii în funcțiune a sistemelor
noi
295/100 litri
Pentru curățarea instalațiilor de
încălzire centrală noi și existente
Îndepărtează substanțele vâscoase, depunerile de calcar și alte
reziduuri.
Soluție anti-îngheț
Soluții de curățare a siste- Sentinel X300
mului
Soluție de fosfat, de compuși organici heterociclici, de polimeri și de
baze organice
Certificat Kiwa
30
Instalare
Sistemul hidraulic și agentul termic
Calitatea apei calde menajere (ACM)
Definițiile tipurilor de apă
Apă potabilă
- Apă de la robinet, în conformitate
cu Directiva 98/83/CE a Consiliului
din 3 noiembrie 1998 privind apa
destinată consumului uman.
Apă dedurizată
- Apă din care s-au eliminat parțial
ioni de calciu și de magneziu.
Apă demineralizată
- Apă din care s-au eliminat aproape
toate sărurile (conductivitate foarte
redusă).
Apă distilată
- Apă în care nu
mai sunt prezente
săruri.
Vasul de expansiune
Vasul de expansiune
Instalația de încălzire centrală
trebuie să fie prevăzută cu un vas
de expansiune. Vasul de expansiune
utilizat trebuie să se potrivească cu
conținutul de apă al instalației.
Nu este necesar să se instaleze un vas
de expansiune pentru fiecare cazan.
Un singur vas de expansiune instalat
central este suficient. Atunci când se
utilizează un singur vas de expansiune,
mânerele robinetelor de pe țevile de tur
și de retur de sub cazan trebuie să fie
scoase în timp ce vasul este deschis.
Vasul de expansiune al unui cazan
poate fi conectat pe piesa de legătură
încrucișată din interiorul țevii de retur
la fiecare cazan, dacă este necesar.
Racordul este prevăzut cu un capac de
mascare cu filet exterior, de 3/4”.
Vasul de expansiune pentru
circuitul rezervorului de apă caldă
menajeră
Atunci când se aplică un rezervor de
apă caldă menajeră conectat direct la
cazan (racordarea cilindrului ELCO
cu
ajutorul unei vane cu 3 căi), ar trebui
să se asigure circuitul dintre vana cu 3
căi și un vas de expansiune, precum și
separarea dintre rezervorul de apă
caldă menajeră și vasul de expansiune
respectiv. Consultați și pagina 34.
Pentru instalarea în Regatul Unit,
consultați standardele aplicabile în
Regatul Unit.
31
Instalare
Țeava de gaz
Țeava de gaz care duce la instalație
trebuie să fie calculată la capacitatea
maximă pentru a stabili diametrul țevii
de alimentare.
Țeava de gaz trebuie să fie poziționată
în deschizăturile prevăzute din plăcile
flanșelor din distribuitoarele pentru
țevi de tur/retur și trebuie să fie fixate
pe toate plăcile flanșelor cu buloane
speciale cu toleranță ridicată M6x8x16.
Pierderea de presiune pentru o țeavă
de gaze naturale nou instalată poate
fi de maximum 1,7 mbari. În cazul
unei prelungiri, aceasta poate fi de
maximum 2,5 mbari. Această valoare
trebuie să fie măsurată între contorul
de gaz opera
țional și cazanele de
încălzire centrală.
32
Pentru funcționarea corectă a
cazanelor, este necesar ca presiunea
dinamică a gazului la gura de intrare
să fie de cel puțin 19 mbari. Această
valoare trebuie să fie măsurată în fața
conexiunii cu flanșă pentru gaz.
În ceea ce privește țevile noi, în
special, trebuie să vă asigurați că
țeava de gaz nu conține poluare
reziduală.
ATENȚIE:
Pentru utilizarea cu propan, trebuie
să fie instalat setul de conversie
pentru GPL; consultați instrucțiunile
de conversie separate.
După activitățile de întreținere,
verificați întotdeauna toate
componentele purtătoare de gaz
pentru a identifica eventualele
scurgeri, cu ajutorul unui lichid de
detectare a scurgerilor (LDF).
Instalare
Racord pentru condens
PERICOL:
Pericol de moarte prin
otrăvire! Dacă sifonul nu este umplut
cu apă sau dacă orice racord este
deschis, gazul rezidual care se
scurge în afară poate prezenta
pericol de moarte pentru oameni.
Raco
rd pentru condens
Pentru fiecare m3 de gaz natural care
se arde, se poate acumula un volum
de apă între 0,7 și 1,0 litri, ca urmare
a unui uz foarte mare de energie.
Condensul, care se acumulează în
cazan, în țeava de gaze reziduale
sau în coș, trebuie să fie evacuat în
sistemul public de ape uzate.
În această privință, trebuie să se țină
seama de reglementările specifice
țării respective. Poate fi necesară o
neutralizare a condensului. Condensul
se poate evacua vizibil într-un sifon
conic (2) la locul de instalare. Un
racord fix la sistemul public de ape
uzate nu este permis.
Pentru drenarea condensului, se pot
utiliza numai materiale rezistente la
coroziune și certificate. Drenarea
trebuie efectuată într-un loc care
nu este supus înghețului. Țeava de
evacuare trebuie să fie în pantă, astfel
încât să se evite returul condensului.
Umplerea sifonului
Înainte de punerea în funcțiune a
cazanului, sifonul (1) al echipamentului
trebuie să fie umplut c
u apă, pentru a
preveni o emisie de gaz rezidual din
racordul pentru condens. Umplerea se
efectuează cel mai ușor prin turnarea a
aproximativ 0,5 litri de apă în țeava de
gaz rezidual (3).
O dată pe an, racordurile pentru gaz
rezidual trebuie să fie verificate pentru
a stabili etanșeitatea acestora, iar
sifonul trebuie umplut cu apă.
3
1
2
Toate cazanele PLUS pe gaz, pe bază
de condensare, suspendate pe perete
includ un captator de condens de
tip sifon pentru a colecta și a elibera
condensul.
Cantitatea de condens formată este
determinată de tipul de cazan și de
temperatura agentului termic produs de
cazan.
Țevile pentru condens.
Apăsați tubul flexibil din plastic
(furnizat) pe scurgerea pentru condens
din partea de jos a cazanului.
Conectați tubul la scurgerea principală
pentru condens (diametru minim = 40
mm) prin intermediul unui racord
deschis pentru a evita ca gazele din
canalizare să intre în cazan.
Montați un distribuitor pentru țevi
pentru scurgerea
pentru condens în
spatele sistemului hidraulic. În acest
scop, plăcile flanșelor sunt prevăzute
cu găuri care permit instalarea unei
scurgeri din PVC cu diametrul de
maximum 40 mm. Folosiți această
scurgere pentru a conecta scurgerile
individuale pentru condens ale fiecărui
cazan.
Sifonul unui sistem de gaze de ardere
poate fi conectat, de asemenea, prin
intermediul unui racord deschis, dacă
este necesar.
33
Instalare
Producerea de apă caldă menajeră
Dispozitivul de control al producerii de
apă caldă poate fi conectat la ELCO
THISION L PLUS. Pentru conectare și
setări, consultați capitolul „Controlul
cazanului”.
Vasul de expansiune pentru circuitul
rezervorului de apă caldă menajeră
Atunci când se conectează un rezervor
de apă caldă menajeră la cazan
înaintea buteliei de egalizare, se
recomandă o vană cu 3 căi de la
ELCO.
Circuitul dintre vana cu 3 căi [1]
și dispozitivul de separare [2] dintre
cazan și cilindru ar trebui să fie
prevăzut cu un
vas de expansiune [3].
Set de
conectare la
cazan, cu
vană cu 3 căi
1
2
3
34
Legendă
1. Vană cu 3 căi
2. Vasul de expansiune
3. Dispozitiv de separare
Instalare
Racorduri
Țevi de aer/gaze de ardere pentru cazane individuale
Toate modelele de cazane au un
racord paralel pentru tiraj.
Racordul pentru gaze de ardere
Recomandăm utilizarea gamei
cuprinzătoare de componente pentru gaze
de ardere de la ELCO.
Pentru mai multe informații, consultați
instrucțiunile de instalare:
- terminal de perete ELCO;
- terminal de plafon ELCO;
- componente ELCO pentru țevi de gaze
de ardere, atât țevi individuale, cât și tuburi
concentrice.
Reglementările cu privire la construcția și
instalarea sistemelor de gaze de ardere sunt
diferite de la țară la țară.
Trebuie să vă asigurați că respectați toate
reglementările naționale cu privire la
sistemele cu coșuri.
Nu este necesar să instalați o scurgere
separată pentru condensul din sistemul
de gaze de ardere, deoarece co
ndensul
va fi drenat prin cazan în sifon. Respectați
următoarele recomandări:
- utilizați numai materiale rezistente la
coroziune;
- diametrul trebuie să fie calculat
și selectat în conformitate cu
reglementările naționale;
- lungimea sistemului de gaze de
ardere trebuie păstrată cât mai scurtă
posibil (și nu trebuie să depășească
lungimea maximă permisă; consultați
documentația pentru planuri);
- tuburile orizontale pentru gaze de
ardere trebuie să aibă o înclinație de cel
puțin 3° înapoi către cazan.
Racordul pentru alimentarea cu aer
Dacă este necesar, un tub separat de
alimentare cu aer pentru camere ermetice
poate fi conectat prin intermediul garniturii
opționale (incluse) de conectare la
alimentarea cu aer. Diametrul trebuie să fie
calculat în conformitate cu reglementările
naționale și în combinație cu sistemul
de gaze de ardere. Rezistența globală a
tuburilor de alimentare cu aer și de gaze de
ardere nu trebuie să depășească în ni
ciun
moment presiunea maximă de alimentare
a ventilatorului. (Consultați, de asemenea,
capitolul „Date tehnice”)
Observații
Tabelele de mai jos prezintă orientări cu
privire la lungimile maxime ale tuburilor
pentru aer și pentru gazele de ardere,
care pot fi racordate. Dacă se realizează o
instalație pentru o cameră etanșă, lungimile
ambelor tuburi trebuie să fie adunate, iar
suma nu trebuie să depășească valoarea
relevantă indicată în tabele.
Lungimea maximă a oricărei porțiuni externe
a țevii de gaze de ardere nu trebuie să
depășească 5 m.
Unghiul oricărui cot utilizat în sistemul de
gaze de ardere nu trebuie să depășească
87,5°.
Pereții care sunt sensibili la căldură
trebuie să fie izolați.
Construiți sistemul de gaze de ardere
astfel încât să nu se producă nicio
recirculare.
Dimensiuni (valori de referință)
Ø tuburi (instalație pentru camere
ermetice cu tuburi deschise sau
paralele)
Lungime maximă, în metri
terminalul de pl
afon nu este inclus
Schimbări ale direcției
0
2
3
4
60
70
100
120
140
170
200
82
60
34
17
16
35
30
78
56
30
13
12
30
25
76
54
28
11
10
27
22
74
52
26
9
8
25
20
Ø100 mm
Ø130 mm
Ø tuburi (instalații concentrice
pentru camere ermetice)
Schimbări ale direcției
0
60
70
100
120
140
14
14
12
8
9
Ø100/150 mm
Lungime maximă, în metri
terminalul de plafon nu este inclus
2
3
11
11
9
5
6
9
9
7
3
5
4
8
8
6
2
3
Secțiune transversală minimă necesară a coloanei (carcasa pentru gazele de ardere)
Diametru țeavă de gaze de ardere
Coloane pătrate
Coloane rotunde
100 mm
140 x 140 mm
160 mm
35
Instalare
Racorduri
Țevi de aer/gaze de ardere pentru cazane individuale
1
Tip cazan
60
70
100
120
140
170
200
2
Diametrul țevii de aer/
gaze de ardere
100 – 100
100 – 100
100 – 100
100 – 100
100 – 100
130 – 130
130 – 130
Racordul paralel pentru cazan
Cazanul este furnizat, în mod standard,
cu un racord paralel pentru gura de
evacuare a gazelor de ardere
i pentru
sistemul de alimentare cu aer.
Pentru diametrul gurii de alimentare
cu aer (1) și pentru racordul gurii de
evacuare a gazelor de ardere (2),
consultați tabelul de mai jos.
Canalul de alimentare cu aer poate fi
conectat la acesta sau, dacă implică
un „dispozitiv deschis” (categoria de
drenare B), se recomandă un filtru de
aer.
Racordul concentric pentru cazan
Cazanele 60-70-100-120-140 pot
fi transformate într-o conexiune
concentrică utilizând adaptorul paralel/
concentric 100/150 (opțional) și
parcurgând procedura următoare:
- Deschideți și scoateți panoul
frontal și panoul superior (urmați
instrucțiunile de la pagina 42).
- Ridicați conexiunea paralelă.
- Deconectați și scoateți
întrerupătorul de 230 V.
- Înlocuiți conexiunea paralelă cu
adaptorul concentric.
- Conectați și montați întrerupătorul
de 230 V în conformitate cu
configurația anterioară.
1
3
2
4
Gura pentru alimentarea cu aer are un
diametru de 150 mm.
Racordul
pentru gura de evacuare a
gazelor de ardere are un diametru de
100 mm.
Sistemul de alimentare cu aer/
evacuare a gazelor de ardere se
conectează apoi la componenta
conexiunii concentrice.
36
Cazanele THISION L PLUS pot fi
folosite atât într-un sistem „deschis” cât
și într-un sistem „închis”.
Sistem deschis
Aerul de combustie necesar este
preluat din mediul imediat înconjurător
(camera cazanului). În acest scop,
respectați reglementările aplicabile cu
privire la aerisirea camerei cazanului.
Atunci când se utilizează un cazan
de categoria B23 și B33 în calitate de
„cazan deschis”, gradul de protecție al
cazanului va fi IPX0D în loc de IPX4D.
Se recomandă un filtru de aer sau
un grilaj pe gura de intrare a aerului
din cazan (disponibil ca accesoriu;
consultați paginile 15 – 17).
Sistem nchis
Aerul de combustie necesar este
aspirat în interior din exterior printr-un
canal.
Acest lucru îmbunătățește posibilitățile
de instalare într-o clădire.
În general,
aerul exterior este mai curat decât cel
din camera cazanului.
Când cazanul este în funcțiune,
acesta produce o dâră albă de
condens. Această dâră de condens
este inofensivă, dar poate cauza
neplăceri, în special în cazul unui
terminal de perete. În consecință, se
preferă terminalele de plafon.
În cazul unei instalații închise,
terminalele de plafon ar trebui să fie
la aceeași înălțime prevenind
aspirarea gazelor de ardere în
interior de către celălalt cazan
(recirculare). Gurile de evacuare din
nișe și de lângă pereții verticali pot
provoca, de asemenea, recircularea
gazelor de ardere. Recircularea
trebuie să fie împiedicată în orice
moment.
Pentru instalarea în Regatul Unit,
consultați orientările privind instalarea
din BS6644 și din IGE UP10.
Instalare
Racorduri
Țevi de aer/gaze de ardere – variante de instalare pentru cazane
individuale
Aer ambiant de combustie
B23
Țeavă de gaze de ardere în coș, aspirarea aerului din
ambient.
Capătul secțiunii țevii de gaze reziduale deasupra plafonului.
B33
Țeavă de gaze de ardere în coș, aspirarea aerului din ambient.
Capătul secțiunii țevii de gaze reziduale deasupra plafonului.
Aer de combustie preluat din ambient
C13
Țeavă de gaze de ardere și de aspirare a aerului prin peretele exterior,
trebuie să se afle în aceeași suprafață pătrată.
C33
Țevi de gaze de ardere și de aspirare a aerului prin intermediul
terminalului de plafon, trebuie să fie în aceeași suprafață pătrată.
C43
Țeavă de aspirare a aerului și de gaze reziduale prin intermediul
sistemului coșului, care este integrat în clădire.
C53
Aspirarea aerului și evacuarea gazelor reziduale în exterior, în zone cu
presiuni diferite.
Secțiune de capăt verticală a țevii de gaze reziduale.
C63
Echipament dezvoltat special pentru conectarea la sisteme certificate de
aer/gaze reziduale, care funcționează separat unul de altul.
C83
Aspirarea aerului în ext
eriorul clădirii, țeavă de gaze reziduale prin
intermediul coșului.
C93
Țevile de aer și de gaze reziduale către coșul de gaze reziduale prin
intermediul instalării în plafon și într-un coș pentru gaze reziduale,
rezistent la umiditate.
37
Instalare
Racorduri
Țevi de aer/gaze de ardere – variante de instalare pentru cazane
multiple
Optarea pentru o gură de evacuare
colectivă a gazelor de ardere este
determinată de:
- poziția cazanelor în raport cu suprafața
gurii de evacuare a acestora;
- spațiu suficient deasupra cazanelor;
- număr mare de cazane;
Puteți opta pentru:
- gura de evacuare colectivă a gazelor de
ardere cu subpresiune;
- gura de evacuare colectivă a gazelor de
ardere cu suprapresiune.
În multe situații, gazele de ardere nu pot fi
evacuate individual pentru că
instalația este în interior. Pentru astfel de
situații, recomandăm evacuarea colectivă
prin intermediul subpresiunii sau al
suprapresiunii, utilizând un sistem cu
gură de eva
cuare a gazelor de ardere.
Alimentarea cu aer poate fi realizată și în
mod colectiv, dar în cazul în care camera
cazanului este adecvată pentru acest
scop, se poate obține și din această zonă
(„dispozitiv deschis”, cazan de categoria B).
Dacă instalați o țeavă comună care
furnizează aer de combustie pentru mai mult
de un singur aparat, există riscul ca aerul
de combustie să fie tras de la un aparat
adiacent.
Acest aer poate fi supus apoi unei presiuni
negative.
În cazul evacuării colective a gazelor de
ardere, gura de evacuare a gazelor de
ardere trebuie să se termine
întotdeauna în zona deschisă (zona de
evacuare 1).
ELCO poate furniza un sistem cu gură
colectivă de evacuare a gazelor de ardere
pentru THISION L PLUS de la ELCO.
Consultați capitolele următoare cu privire la
diferitele posibilități și la lungimile maxime
ale țevilor care pot fi utilizate.
Categoria de cazan: B
Zona de evacuare 1
(zonă de evacuare liberă)
Categoria de cazan: C
0,
2 x 2 x B
Permisă numai atunci când
gura de intrare a aerului și
gura de evacuare a aerului
se află în aceeași zonă de
presiune
38
Instalare
Racorduri
Gura de evacuare colectivă a gazelor de ardere cu subpresiune
Diametrul și lungimile gurii pentru evacuarea
gazelor de ardere/alimentare cu aer:
- sistem deschis cu subpresiune
(calculată cu tiraj termic) în circumstanțe
atmosferice.
OBSERVAȚIE!
1. IPX0D la categoria de gaze de ardere B23 și B33
Dimensiuni pentru configurații în cascadă THISION L PLUS pentru gazele de ardere
Sistem deschis, subpresiune
Putere (P) kW la 80/60 °C
[kW]
d
h
d = diametrul minim Ø, în mm
h=2-5
h=5-9
h = 9 - 13
114
-
240
210
200
190
h = 13 - 17
190
240
-
360
300
270
260
250
360
-
480
360
330
310
300
480
-
600
440
380
360
340
600
-
720
470
420
400
380
720
-
840
550
470
430
410
840
-
960
600
510
470
440
d
Diametrul și lungimile gurii pentru evacuarea
gazelor de ardere/alimentare cu
aer:
- sistem închis cu subpresiune (calculată
cu tiraj termic) în circumstanțe
atmosferice.
Dimensiuni pentru configurații în cascadă THISION L PLUS pentru gazele de ardere
Sistem închis, subpresiune, paralel
Putere (P) kW la 80/60 °C
[kW]
d
=d
=d
h
d = diametrul minim Ø, în mm
h=2-5
h=5-9
h = 9 - 13
114
-
240
240
220
220
h = 13 - 17
220
240
-
360
330
300
290
270
360
-
480
390
370
350
330
480
-
600
460
410
390
380
600
-
720
500
460
440
420
720
-
840
550
500
470
460
840
-
960
600
540
510
490
d
d
d
39
Instalare
Racorduri
Gura de evacuare colectivă a gazelor de ardere cu suprapresiune
NU este permisă o instalație cu gură
colectivă de evacuare a gazelor de ardere
cu suprapresiune în combinație cu cazane controlate individual (de exemplu,
controler de 0 – 10 V), în care nu este
conectat niciun cablu de magistrală BUS.
Diametrul și lungimile gurii pentru evacuarea
gazelor de ardere/alimentarea cu aer:
- Siste
m deschis cu suprapresiune.
OBSERVAȚIE!
1. IPX0D la categoria de gaze de ardere B23 și B33
2. Doar cu cablul de magistrală BUS conectat!
3. Reglați parametrul 102 la 2.
Dimensiuni pentru configurații în cascadă THISION L PLUS pentru gazele de ardere
Sistem deschis, suprapresiune
Putere (P) kW la 80/60 °C
[kW]
d
h
d
d = diametrul minim Ø, în mm
h=2-5
h = 6 - 10
h = 11 - 15
114
-
240
150
150
150
h = 16 - 20
150
240
-
360
150
150
180
180
360
-
480
180
180
180
200
480
-
600
200
220
220
220
600
-
660
230
230
250
250
660
-
872
260
260
260
260
872
-
960
280
280
280
300
960
-
1200
280
280
280
300
Diametrul și lungimile gurii pentru evacuarea
gazelor de ardere/alimentarea cu aer:
- Sistem închis cu suprapresiune.
Contactați ELCO.
Dimensiuni pentru configurații în cascadă THISION L PLUS pentru gazele de ardere
Sistem închis, suprapresiune, paralel
Putere (P) kW la 80/60 °C
[kW]
d
=d
=d
h
d
d
d
40
d = diametr
ul minim Ø, în mm
h=2-5
h = 6 - 10
h = 11 - 15
114
-
285
150
150
150
h = 16 - 20
150
285
-
524
200
200
200
200
524
-
1440
300
300
300
300
Instalare
Conexiuni electrice
Conexiunile electrice trebuie efectuate de un
tehnician electric autorizat și în conformitate
cu standardele și reglementările naționale
și locale în vigoare. Pentru alimentarea cu
electricitate trebuie să se folosească un
întrerupător izolat, cu orificii pentru contacte
de cel puțin 3 mm.
Acesta trebuie să fie montat în interiorul
camerei cazanului. Întrerupătorul este folosit
pentru oprirea alimentării cu electricitate în
timpul lucrărilor de întreținere.
Toate cablurile se trec prin canalul de
cabluri din partea de sus a cazanului și sunt
conduse până la panoul electric din partea
frontală a acestuia.
Schema electrică trebuie respectată în
timpul tuturor lucrărilor de efectuare a
conexiunilor (consultați paginile următoare).
Este necesară o sursă de alimen
tare cu
electricitate de 230 V, 50 Hz, cu siguranță
externă de 5 A.
2
3
1
O abatere de la rețeaua de 230 V (+10 %
sau -15 %) și 50 HZ
Se aplică, de asemenea, următoarele
reglementări suplimentare:
- nu este permisă schimbarea cablării
cazanului;
- toate conexiunile trebuie realizate pe
blocul de conexiuni.
Instalarea senzorului de temperatura
exterioară
Dacă la cazan este conectat un senzor de
temperatură exterioară, senzorul trebuie să
fie poziționat în conformitate cu desenul
alăturat.
Dacă NU este conectat un senzor de
temperatură exterioară, consultați
configurația PADIN din controlerul extern.
4
41
Instalare
Conexiuni electrice
Atenție:
După ce scoateți panourile, puteți avea
acces la componente de 230 V.
Conexiunile electrice trebuie să fie
realizate numai de către personal
calificat.
Cazanul are 4 blocuri de prize pentru toate conexiunile electrice:
1.
Alimentare cu înaltă tensiune (230 V)
2.
Întrerupătoare fără tensiune (re
lee de 230 V)
3-4. Senzori de joasă tensiune și I/O
5. Magistrală de comunicație BUS pentru cazane THISION L PLUS în cascadă
0
L
N
Line (AC)
Input
L
N
Line (AC)
Output
L
N
MO1 (AC)
Output
L1
N
L2
3 WV/DHW pump (AC)
Output
1.1
1.2
VFR1
Output
2.1
Output
1
2.2
VFR2
Output
3.1
3.2
VFR3
Output
PWM 0-10V GND NTC
5V
MO1 (0-10V output) MTS1 (T10)
Output
Input
NTC
5V
NTC
5V
MTS2
MTS3
Input
Input
NTC
5V
NTC
5V
NTC 7 NTC 3 (DHW/
(outd. sensor) Tank sensor)
Input
Input
Signal GND Signal GND
eBus
eBus
Input
Output
PWM 0-10V
GND
GND
Signal
24V
GND
Signal
24V
GND
Signal 24V
GND
Signal
24V
GND
Signal
MO2 (0-10V output)
PFDIN 1
PADIN 1
PADIN 2
PADIN 3
PADIN 4
Output
Input
Input
Input
Input
Input
5V
Output
2
3
5
4
PWM
1
2
B
F
A
(2x)
C
E
3
H2
H1
G
D
4
J
I
42
Conexiunile electrice de mai sus pot fi realizate urmând pașii de mai jos:
1. Scoateți panoul frontal.
2. Apăsați pe ambele părți ale unităț
ii de control a interfeței HMI (E) și rotiți afișajul (F).
3. Glisați panoul superior către partea frontală și utilizați intrarea din partea posterioară a
cazanului pentru a introduce cablurile (H1 pentru cablul de înaltă tensiune, H2 pentru
cablul de joasă tensiune).
4. Conectați cablul cu conectorii șuruburi aflați deja în blocurile de prize.
Instalare
Conexiuni electrice
1
L
N
Line (AC)
Input
L
N
Line (AC)
Output
L
N
MO1 (AC)
Output
L1
N
L2
1.1
1.2
2.1
VFR1
Output
3 WV/DHW pump (AC)
Output
2.2
3.1
VFR2
Output
2
Nul de lucru
3
Împământare
4
Fază
5
Nul de lucru
6
Împământare
7
Fază
8
Nul de lucru
9
Împământare
Denumire
Descrierea funcției
Line
(AC)
Fază
Intrare principală
Alimentarea cu electricitate
principală a cazanului
Line (AC)
Tip de linie
1
PWM 0-10V GND
MO1 (0-10V output
Output
Output
Ieșire principală
Ieșirea intrării electrice principale,
sub tensiune atunci când
întrerupătorul cazanului
este în
poziția „Pornit”
La fel ca intrarea
MO1
(AC)
Output
Contact
3.2
VFR3
Output
Descrierea electrică
MO1
Pompa de sistem
va funcționa cu pompa cazanului
principal
230/120 V c.a.; 1 A max. (80 A impuls max.);
Comutat sub tensiune
230 V (+10 %; -15 %) la 50 Hz
PWM
Consultați tabelele de la paginile 45 – 47.
0
2
L
N
Line (AC)
Input
L
N
Line (AC)
Output
L
N
MO1 (AC)
Output
L1
N
L2
V3C/POMPĂ ACM
Ieșire
1.1
1.2
VFR1
Ieșire
2.1
2.2
VFR2
Ieșire
Output
1
Fază
2
Nul de lucru
3
Fază
4
Împământare
5
1.1
6
1.2
7
2.1
8
2.2
9
3.1
10
3.2
V3C / POMPĂ
ACM
Tip de linie
VFR3 VFR2 VFR1
Contact
3.2
VFR3
Ieșire
PWM 0-10V GND NTC
5V
MO1 (0-10V output) MTS1 (T10)
Output
Input
NTC
5V
NTC
5V
MTS2
MTS3
Input
Input
NTC
5V
Descrierea funcției
Vană cu 3 căi
Încălzire activ
Vană cu 3 căi/P2
Activ pentru apă caldă menajeră
Împământare
PWM
Descrierea electrică
230/120 V c.a.; 1A max., siguranț
fuzibilă
230/120 V c.a.; 1 A max. 80, A impuls max., siguranță fuzibilă
Contactul 1 fără
tensiune
Pompa CIRCUIT ÎNCĂLZIRE 1
Contactul 2 fără
tensiune
ieșire alarmă
230 V c.a., 1 A max. (cos phi > 0,8), nefuzibil
Contactul 2 fără
tensiune
Vană de închidere GPL
230 V c.a., 1 A max. (cos phi > 0,8), nefuzibil
NTC
5V
NTC 7 NTC 3 (DHW/
(outd. sensor) Tank sensor)
Input
Input
Output
Denumire
P2/vană cu 3 căi
3.1
230 V c.a., 2 A max., 80 A impuls max., nefuzibil
Consultați tabelele de la paginile 45 – 47.
43
Signal
eB
In
Instalare
Conexiuni electrice
0
3 și 5
L2
1.1
1.2
VFR1
Output
2.1
2.2
VFR2
Output
Output
3.1
3.2
VFR3
Output
PWM 0-10V GND NTC
5V
NTC
MO1 (0-10V output) MTS1 (T10)
Output
Input
5V
NTC
5V
MTS2
MTS3
Input
Input
NTC
5V
NTC
5V
Signal GND Signal GND
NTC 7 NTC 3 (DHW/
(outd. sensor) Tank sensor)
Input
Input
eBus
eBus
Input
Output
PWM 0-10V
GND
GND
Signal
24V
GND
Signal
2
0-10 Volt
3
GND
4
NTC intrare
5
5 Volt
6
NTC intrare
7
5 Volt
8
NTC intrare
9
5 Volt
10
NTC intrare
11
5 Volt
12
NTC intrare
13
5 Volt
14
Semnal
15
Împământare
16
Semnal
17
Împământare
Denumire
Descrierea funcției
Intrare multifuncțională
temperatură 1
T10
NTC 10k β=3977
Intrare multifuncțională
temperatură 2
Rezervor tampon sus/jos
Senzor de circulare apă caldă
menajeră*
NTC 10k β=3977
Intrare multifuncțională
temperatură 3
Rezervor tampon sus/jos
Senzor de încărcare apă caldă
menajeră*
NTC 10k β=3977
Senzor extern
(T4)
Senzor de temperatură
exterior
NTC 1k β=3977
Senzor rezervor (T3)
Senzor de temperatură
apă caldă menajeră
NTC 10k β=3977
eBus2
Magistrală de comunicație BUS
pentru comunicația în cascadă
/ termostat / manager clip-in
eBus2
Magistrală de comunicație BUS
pentru termostat / manager clip-in
PAD
Output
Input
Input
In
Consultați tabelele de la paginile 45 – 47.
4
5V
Signal GND Signal GND
eB
us
Input
Output
Tip de linie
1
PWM
2
0-10 Volt
3
Împământare
4
Împământare
5
Semnal
6
24 Volt
7
Împământare
8
Semnal
9
10
24 Volt
Împământare
11
Semnal
12
24 Volt
13
Împământare
14
Semnal
15
24 Volt
16
Împământare
17
Semnal
18
5 Volt
PWM 0-10V
GND
GND
Signal
24V
GND
Signal
24V
GND
Signal 24V
GND
Signal
24V
GND
Signal
MO2 (0-10V output)
PFDIN 1
PADIN 1
PADIN 2
PADIN 3
PADIN 4
Output
Input
Input
Input
Input
Input
Denumire
Descrierea funcției
Pompa modulantă încălzire
Pompa modulantă de umplere a
rezervorului
Răspuns 0-10 volticatre sistemul
BMS
Debitmetru ACM sau
pornire/oprire semnal
5V
Descrierea electrică
PWM: 0,1÷4 kHz; Vînaltă = 12 V; Vjoasă ≤ 0,7 V; Iînaltă ≤ 10 mA
0..10 volți
MO2
Contact
eBus
Ieșire multifuncțională 2
PFDIN 1
NTC
Intrare digitală programabilă
pentru frecvență
PADIN 1
5V
Intrare digitală analogică
programabilă 1
PADIN 2
Input
NTC
NTC 7
NTC 3 (DHW/
(outd. sensor) Tank sensor)
Input
Input
Intrare digitală analogică
programabilă 2
Solicitare de temperatură la 0..10 Împământare
Volți / solicitare de putere termostat Digital: închis cu +24 V c.c.; Analogic: 0÷10V
cameră 2
Alimentarea cu energie: +24 V c.c., 10 mA max.
PADIN 3
5V
MTS3
Intrare digitală analogică
programabilă 3
Blocare generare căldură solicitare Împământare
Digital: închis cu +24 V c.c.; Analogic: 0÷10V
consumator extern termostat
cameră 3
Alimentarea cu energie: +24 V c.c., 10 mA max.
PADIN 4
NTC
Intrare digitală analogică
programabilă 4
Blocare generare căldură solicitare Împământare
consumator extern Întrerupere la Digital: închis cu +5 V c.c.; Analogic: 0÷5V
nivel redus de apă*
Alimentarea cu energie: +5 V c.c., 10 mA max.
Împământare
Digital: închis cu +24 V c.c.;
Frecvență: 0÷24 V; max. 400 Hz
Alimentarea cu energie: +24 V c.c., 10 mA max.
Blocare generare căldură solicitare
consumator extern termostat
cameră 1
Împământare
Digital: închis cu +24 V c.c.; Analogic: 0÷10V
Alimentarea cu energie: +24 V c.c., 10 mA max.
Consultați tabelele de la paginile 45 – 47.
44
Si
PADIN 1
Descrierea electrică
Ieșire multifuncțională 1
GND
PFDIN 1
PWM: 0,1÷4 kHz; Vînaltă = 12 V; Vjoasă ≤ 0,7 V; Iînaltă ≤ 10 mA
Pompă modulantă ACM
Pompă modulantă încălzire
0..10 volți
Pompă modulantă umplere rezervor
Răspuns 0-10 V către BMS
MO1
0
PWM
MTS2 MTS1
PWM
Tip de linie
1
NTC3 NTC7 MTS3
Contact
24V
MO2 (0-10V output)
Output
eBus
Input
N
eBus
Output
L1
3 WV/DHW pump (AC)
Output
Instalare
Conexiuni electrice
Multifuncțional
IEȘIRE MO1 (C.A.)
I/O ECU
Parametru de meniu
MO1
Ieșire multifuncțională de înaltă tensiune
24.7.0
(cazan comercial);
26..32.7.0
(cazan comercial – subordonat 1..7);
Funcție
Valoare funcție
Niciuna
0
Pompă de sistem
1
Pompă CIRCUIT ÎNCĂLZIRE 1
2
Pompă de circulație
3
Pompă de circuit intermediar apă caldă
menajeră
4
Pompă de umplere REZERVOR
5
Pompă de transfer rezervor
de acumulare
6
Vană de închidere generală căldură
7
Solicitare de căldură
8
VFR 1
I/O ECU
Parametru de meniu
VFR1
Contact 1 liber
24.7.1
26..32.7.1
(cazan comercial);
(cazan comercial – subordonat 1..7);
Funcție
Valoare funcție
Niciuna
0
Pompă de sistem
1
Pompă CIRCUIT ÎNCĂLZIRE 1
2
Pompă de circulație
3
Pompă de circuit intermediar apă caldă
menajeră
4
Pompă de umplere REZERVOR
5
Pompă de transfer rezervor
de acumulare
6
Vană de închidere generală căldură
7
Solicitare de căldură
8
Ieșire alarmă
9
GPL/Ventilator alimentare cameră
11
VFR 2-3
I/O ECU
Parametru de meniu
VFR2
Contact 2 liber
24.7.2
26..32.7.2
(cazan comercial);
(cazan comercial – subordonat 1..7);
VFR3
Contact 3 liber
24.7.3
26..32.7.3
(cazan comercial);
(cazan comercial – subordonat 1..7);
45
Instalare
Conexiuni electrice
Mu
ltifuncțional
Funcție
Val. DGTO
Niciuna
0
Vană de închidere generală căldură
1
Solicitare de căldură
2
Ieșire alarmă
3
Atenuator pentru gaze de ardere
4
GPL/Ventilator alimentare cameră
5
IEȘIRE MO1 (0 – 10 V)
I/O ECU
Parametru de meniu
MO1_LV
Ieșire multifuncțională PWM 1
24.7.4
(cazan comercial);
26..32.7.4
(cazan comercial – subordonat 1..7);
Funcție
Valoare funcție
Niciuna
0
Pompă modulantă sistem
1
Pompă modulantă de apă caldă menajeră
2
Pompă modulantă de circulație
3
Pompă modulantă de umplere rezervor
4
Feedback putere cazan
5
MTS 1-2-3
I/O ECU
Parametru de meniu
MTS1
Intrare multifuncțională temp. 1
24.6.0
(cazan comercial);
26..32.6.0
(cazan comercial – subordonat 1..7);
MTS2
Intrare multifuncțională temp. 2
24.6.1
(cazan comercial);
26..32.6.1
(cazan comercial – subordonat 1..7);
MTS3
Intrare multifuncțională temp. 3
24.6.2
(cazan comercial);
26..32.6.2
(cazan comercial – subordonat 1..7)
;
Funcție
Valoare funcție
Niciuna
0
Senzor de tur comun
1
Rezervor de acumulare apă
caldă menajeră jos
2
Senzor de circulare apă caldă menajeră
3
Senzor de încărcare apă caldă menajeră
4
Rezervor de depozitare tampon sus
5
Rezervor de depozitare tampon jos
6
Senzor temperatură gaze de ardere
7
46
Instalare
Conexiuni electrice
Multifuncțional
IEȘIRE MO2 (0 – 10 V)
I/O ECU
Cod meniu Evo
MO2_LV
Ieșire multifuncțională PWM 2
24.7.5
(cazan comercial);
26..32.7.5
(cazan comercial – subordonat 1..7);
Funcție
Valoare funcție
Niciuna
0
Pompă modulantă sistem
1
Pompă modulantă de apă caldă menajeră
2
Pompă modulantă de circulație
3
Pompă modulantă de umplere BUF
4
Feedback putere cazan
5
PADIN 1-2-3-4
I/O ECU
Parametru de meniu
PADIN1
Intrare multifuncțională AD 1
24.6.4
(cazan comercial);
26..32.6.4
(cazan comercial – subordonat 1..7);
PADIN2
Intrare multifuncțională AD 2
24.6.5
(cazan comercial);
26..32.6
.5
(cazan comercial – subordonat 1..7);
PADIN3
Intrare multifuncțională AD 3
24.6.6
(cazan comercial);
26..32.6.6
(cazan comercial – subordonat 1..7);
PADIN4
Intrare multifuncțională AD 4
24.6.7
(cazan comercial);
26..32.6.7
(cazan comercial – subordonat 1..7);
Funcție
Valoare DGTO
Niciuna
0
Termostat cameră CIRCUIT ÎNCĂLZIRE 1
1
Termostat cameră CIRCUIT ÎNCĂLZIRE 2
2
Termostat cameră CIRCUIT ÎNCĂLZIRE 3
3
Solicitare intrare 0 – 10 V
4
Intrare temporizator apă caldă menajeră
5
Blocare generare căldură
6
solicitare consumator extern
7
Presostat gaz
9
Intrare temporizator încălzire centrală
10
47
Instalare
0
Conexiuni electrice
Senzorii de temperatură
Senzor de tur comun
Când se folosește un senzor de tur comun
(pentru configurații în cascadă este
obligatoriu), trebuie conectat pe MTS1.
Setarea rezervorului de apă caldă
menajeră
Există mai multe scheme pentru prepararea
apei calde; consultați paginile 45 – 47.
-1
0V GND NTC
5V
NTC
5V
NTC
5V
10V output) MTS1 (T10)
MTS2
MTS3
utput
Input
Input
Input
0
0
NTCSenzor
5V gaze
NTC
5V Signal GND Signal GND
de ardere
Senzorii
fi folosiți
și ca senzori de
NTC
7 pot
NTC
3 (DHW/
eBus
gaze
de
ardere.
Cu
o
configurare
în care
(outd. sensor) Tank sensor)
temperatura
este
maximă
și
sistemul
Input
Input
Input
trebuie să se oprească sau cu o setare
a temperaturii în care sistemul trebuie să
reducă puterea.
PWM 0-10V
NTC 5V
5V NTC
NTC 5V5V NTC
NTC 5V5V NTC
GND NTC
Signal 5V
Signal 5VGNDSignal GND Signal
NTC
GND GND
NTC 7
TC
3 (DHW/ NTC
7
NTC 3 (ACM/
MO2eBus
(0-10V output)
eBus
eBus
MTS3
MTS1
(T10)
MTS2
MTS3
eBus
senzor extern Tank sensor)
senzor rezervor)
Output
intrare
intrare
Input
Input
Input
Output
Input
Input
Input
Input
Input
Output
Reglarea în funcție de vreme (WDR)
Atunci când se utilizează WDR este
necesar un senzor de temperatură
exterior. Țineți seama de faptul că
acesta este un senzor 1K.
Această setare de control tr
ebuie
selectată și nu este detectată automat.
48
Prepararea de bază a apei calde
menajere
Pentru prepararea de bază a apei
calde menajere, există un senzor
special pentru rezervor. Pentru alte
reglaje, senzorul rezervorului este
senzorul superior. Țineți seama de
faptul că acesta este un senzor 10K.
PWM 0-10V
G
MO2 (0-10V outpu
eBus
Output
Output
GND PWM
Signal 0-10V
24V GND
GND GND
Signal Sign
2
PFDIN
1 output)
MO2
(0-10V
InputOutput
PADIN 1PFDI
Input Inp
Instalare
Conexiuni electrice
Comenzile externe
Feedback pentru BMS
Pentru a furniza feedback sistemului
BMS, această ieșire transmite un
semnal de 0 – 10 Volți ca indicație a
sarcinii.
GND GND NTC
Signal0-10V
2 Signal GNDPWM
/
)
0
PWM
5V 0-10V
NTC
GND
5V
Modulație pompă
Această ieșire poate fi setată pe post
de controler pentru mai multe tipuri de
pompe. Pentru aceste tipuri, consultați
GND
Signal
GND
NTC
5V de la24V
NTC
5V45 –Signal
NTC 24V
5V
schema
paginile
47.
NTC 7 PADIN
NTC 31(DHW/
PFDIN 1
MTS3
(outd. sensor) Tank sensor)
Input
InputInput
Input
Input
output)
eBus MO1 (0-10V
eBus output) MTS1 MO2
(T10)(0-10VMTS2
Input
Output
Output
Input
GND
GND 24V
GND Signal
Signal Signal
Signal GND
Output
Input
PADIN 2
eBus
eBus
Input
Input
Output Input
0-10V
PWM
GND0-10V
GNDGND
SignalGND24VSignal
GND 24VSignalGND24VSignal
GND 24V
SignalGND
24V Signal
GND24VSignalGND
24V Signal
GND 24V
SignalGND5V Signal
10V MO2
output)
(0-10V output)
PFDIN 1
Output
Output
Input
PFDIN 1
PADIN 1
Input
Input
Detectarea debitului de apă caldă menajeră
Pentru detectarea cantității de apă. Sau
setare ca fluxostat.
Parametru de meniu
24.6.3
26..32.6.3
Funcție
Valoare
funcție
Niciuna
0
Debitmetru pentru
apă caldă menajeră
1
Fluxostat de apă
caldă menajeră
2
PADIN 1 PADIN 2
Input
Input
PADIN 2
PADIN 3
PADIN 3
PADIN 4
PADIN 4
Input
Input
Input
Input
Input
Pornire/oprire solicitare de căldură
Intrarea poate fi utilizată pentru a
controla pornirea/
oprirea pentru
maximum 3 zone.
Intrare de 0 – 10 Volți (Padin 1-2-3)
Controlul sarcinii și al temperaturii prin
intermediul unei intrări de 0 – 10 Volți
c.c. Atunci când se selectează 0 – 10
Volți, sistemul poate fi controlat numai
cu acest sistem.
5V
Comutare circuit de încălzire + apă
caldă menajeră
Controlerul extern selectează dacă
sistemul poate fi activ numai pentru apă
caldă menajeră sau pentru încălzire
centrală și apă caldă menajeră.
Blocare generare căldură
Cât timp intrarea este deschisă, toate
solicitările de căldură sunt blocate.
Padin 4
Țineți seama că PADIN 4 este de max.
5 V, în timp ce 1, 2 și 3 sunt de 24 Volți.
49
PADIN 3
Instalare
Conexiuni electrice
Comenzile eBus2
Magistrală
BUS
NTC
5V
NTC 3 (DHW/
) Tank sensor)
Input
50
Signal GND Signal GND
eBus
eBus
Input
Output
Conexiune în cascadă
Conexiunea dintre cazanele dintr-o
configurație în cascadă este realizată
prin intermediul intrării și al ieș
irii
magistralei eBus2.
Accesorii
Pentru a conecta accesorii, CLIP
3 ZONES, SOLAR MANAGER,
REMOCON etc., utilizați conexiunea
eBus2.
PWM 0-10V
GND
GND
Signal
24V
GND
Signal
24V
GND
Signal 24V
MO2 (0-10V output)
PFDIN 1
PADIN 1
PADIN 2
Output
Input
Input
Input
Instalare
Conexiuni electrice
Schemă electrică
COMUTATOR
3
3
ALIMENT.
ELECTR.
3
4
M01
HV
6
I
0
2
WV/DHW VFR
POMPĂ 1-2-3
1
3
6
4
2
2
6
M01
MTS
1-2-3
NTC
3
NTC
7
eBUS
M02
6
6
PFDIN1 PFDIN
1-2-3-4
2
3
A11
AB1
M01-M02
MTS1-2-3
HMI
1
1
1
CN20
CN6
VFR1
CN11
CN22
1
CN17
1
CN14
comunicație
către PCB subordonată
CN21
VFR2
6
1
4
PWM
VENT.
3
Instr. de service PC
VFR3
1
PFDIN1
VENT.
CN15
1
CN13
PWM
POMPĂ
1
IGNITOR
CN16
LI1
3
PFDIN1
PFDIN4
Wi-fi
CN25
1
PE
F4
CN23
1
1
CN9
B
1
CN12
Senzor
flacără
PE
CN19
CN18 CN5
Senzor flacără
ALIMENT. ELECTR.
1
CN17
CN10
6
SENZOR
REZERVOR
M01
CN12
4
1
CN7
SENZOR EXTERN
A
HV POMPĂ CAZ
AN
1
CN1
Instr. de service PC
1
EBUS
P2/DV1
1
CN3
CN14
1
CN8
1
CN11
CN9
PFDIN2
Tastă memorie
ROBINET DE GAZ
1
1
CN6
PFDIN3
CN18
F3
CN2
1
F1
CN17
1
F2
CN16
1
AB2
A2
B2
A1
B1
F6
F5
A10
A3
A4
B6
A6
B3
A9
B7
B4
A7
B8
A5
B5
A8
Înaltă tensiune
Joasă tensiune
51
Instalare
Conexiuni electrice
Schemă electrică
Legendă:
1
2
3
Întrerupător 230 V
Conexiuni electrice
Interfața display HMI
A
A1
A2
A3
A4
A5
A6
A7
A8
A9
A10
A11
Placă cu circuite imprimate principală
Electrod de ionizare (detecție flacără)
Electrod de aprindere
Senzor de tur T1
Senzor de tur secundar T1a
Senzor de retur T2
Ventilator
Robinet de gaz
Pompă de circulație
Senzor de presiune a apei P1
Presostat de aer APS
Cablu de comunicație HMI, joasă tensiune
B
B1
B2
B3
B4
B5
B6
B7
B8
Placă cu circuite imprimate subordonată
Electrod de ionizare (detecție flacără)
Electrod de aprindere
Senzor de tur T1
Senzor de tur secundar T1a
Senzor de retur T2
Ventilator
Robinet de gaz
Pompă de circulație
AB1
AB2
Cablu de comunicație de joasă tensiune subordonat
Cablu de alimentare cu electricitate subordonat
F1
F2
F3
F4
F5
F6
Siguranță 6,3 A – 250 V
Siguranță 6,3 A – 250 V
Siguranță 3,15A – 250 V
Siguranță 3,15A – 250 V
Siguranță 2A – 250V – 4,2 I²t – rapidă
Siguranță 2A – 250V – 4,2 I²t – rapidă
52
Instalare
Umplerea sistemului
25/03/19 09:00
BMS
32°
1
–10°
T10
1.5 bar
2
CH Pump Overrun
Umplerea sistemului
Instalația de încălzire centrală trebuie
să fie umplută cu apă potabilă în
conformitate cu cerințele din capitolul
„Calitatea apei”. După ce cazanul a fost
pus în funcțiune din punct de vedere
electric, sistemul de încălzire poate fi
umplut. Pentru umplerea instalației sau
adăugarea de apă în aceasta, utilizați
următoarea procedură:
1.
2.
3.
4.
5.
6.
7.
A
8.
Conectați un robinet de umplere
la returul circuitului hidraulic și
deschideți-l.
Ventilator
Robinet de gaz
Pompă de circulație
AB1
AB2
Cablu de comunicație de joasă tensiune subordonat
Cablu de alimentare cu electricitate subordonat
F1
F2
F3
F4
F5
F6
Siguranță 6,3 A – 250 V
Siguranță 6,3 A – 250 V
Siguranță 3,15A – 250 V
Siguranță 3,15A – 250 V
Siguranță 2A – 250V – 4,2 I²t – rapidă
Siguranță 2A – 250V – 4,2 I²t – rapidă
52
Instalare
Umplerea sistemului
25/03/19 09:00
BMS
32°
1
–10°
T10
1.5 bar
2
CH Pump Overrun
Umplerea sistemului
Instalația de încălzire centrală trebuie
să fie umplută cu apă potabilă în
conformitate cu cerințele din capitolul
„Calitatea apei”. După ce cazanul a fost
pus în funcțiune din punct de vedere
electric, sistemul de încălzire poate fi
umplut. Pentru umplerea instalației sau
adăugarea de apă în aceasta, utilizați
următoarea procedură:
1.
2.
3.
4.
5.
6.
7.
A
8.
Conectați un robinet de umplere
la returul circuitului hidraulic și
deschideți-l.
... ascunde
Alte documentatii ale aceleasi game Vezi toate
Fisa tehnica
8 p | RO
THISION® L ECO
Instructiuni montaj, utilizare
72 p | RO
THISION® L ECO