Consola de inox pentru fatade ventilate CF-U-108 EJOT Crossfix®
CROSS
EJOT ® Facade system
CF-U-108
SYSTEM CROSS-I-FIX CF-U-108
For Cassette Cladding System
Version: 1.0
CROSS
Survey
d15
d12
d16
d7
d13
d4
d11
d16
d3
d8
d6
d10
d2
d11
d3
d14
d1
d5
d9
KEY ELEVATION
Detail
Page
Description
Detail
Page
Description
2
Vertical joint
d1
13
Window head
d12
3
Horizontal joint
d2
14
Window head with venetian blind
d13
4
Outer corner
d3
15
Suspended soffit corner
d14
5
Inner corner
d4
16
Roof flashing type A
d15
6
Curtain wall vertical mullion
d5
17
Roof flashing type B
d15A
7
Window jamb type A
d6
18
Ventilated fire barrier type A
d16
8
Window jamb type B
d7
19
Ventilated fire barrier type B
d16A
9
Dilatation joint
d8
20
CF Powerkey
10
Lower cladding end
d9
21
Cladding panel sizing
11
Curtain wall head
d10
22
CF Hanging element
12
Window sill
d11
The informations contained in this drawings are generic in nature and supplied for guidance
only. System requirements for specif
ic applications will need to be confirmed by EJOT or
other suitable professional.
© This drawing is copyright and should not be used or produced for any purpose other than for which it is supplied
without written consent from EJOT Spojna Tehnika d.o.o.
Produced by EJOT Spojna Tehnika d.o.o., Frane Lučića 23/3, 10090 Zagreb, Croatia +385 (0)1 349 8612
SYSTEM EJOT CROSS-I-FIX
CF-U-108
TYPICAL ELEVATION
DETAIL TAGS
Version: 1.0
Page 1 of 22
CROSS
d1
2
1
3
5
4
6
CROSSFIX SYSTEM ELEMENTS
Nr Description
1
CF Wall bracket K1 - L
2
Façade anchor as per structural calculation
3
JT6-2/5-5,0X30 - VARIO
4
CF Vertical profile - Cladding support
5
CF Hanging element
6
JT4-6-5-5X19
The informations contained in this drawings are generic in nature and supplied for guidance
only. System requirements for specific applications will need to be confirmed by EJOT or
other suitable professional.
© This drawing is copyright and should not be used or produced for any purpose other
than for which it is supplied
without written consent from EJOT Spojna Tehnika d.o.o.
Produced by EJOT Spojna Tehnika d.o.o., Frane Lučića 23/3, 10090 Zagreb, Croatia +385 (0)1 349 8612
GENERAL NOTE:
All fasteners will be designed according to
the structural calculations and architectural
project requirements.
SYSTEM EJOT CROSS-I-FIX
CF-U-108
VERTICAL JOINT
DETAIL 1
Version: 1.0
Page 2 of 22
CROSS
d2
1
2
3
7
6
5
CROSSFIX SYSTEM ELEMENTS
Nr Description
1
CF Wall bracket K1 - L
2
Façade anchor as per structural calculation
3
JT6-2/5-5,0X30 - VARIO
4
CF Vertical profile - Cladding support
5
CF Hanging element
6
JT4-6-5-5X19
7
JT4-LT-2/6,0X25 RAL
The informations contained in this drawings are generic in nature and supplied for guidance
only. System requirements for specific applications will need to be confirmed by EJOT or
other suitable professional.
© This drawing is copyright and should not be used or produced for any purpose other than for which it is su
pplied
without written consent from EJOT Spojna Tehnika d.o.o.
Produced by EJOT Spojna Tehnika d.o.o., Frane Lučića 23/3, 10090 Zagreb, Croatia +385 (0)1 349 8612
GENERAL NOTE:
All fasteners will be designed according to
the structural calculations and architectural
project requirements.
SYSTEM EJOT CROSS-I-FIX
CF-U-108
HORIZONTAL JOINT
DETAIL 2
Version: 1.0
Page 3 of 22
CROSS
d3
2
1
3
5
4
6
CROSSFIX SYSTEM ELEMENTS
Nr Description
1
CF Wall bracket K1 - L
2
Façade anchor as per structural calculation
3
JT6-2/5-5,0X30 - VARIO
4
CF Vertical profile - Cladding support
5
CF Hanging element
6
JT4-6-5-5X19
The informations contained in this drawings are generic in nature and supplied for guidance
only. System requirements for specific applications will need to be confirmed by EJOT or
other suitable professional.
© This drawing is copyright and should not be used or produced for any purpose other than for which it is supplied
without written consent from EJOT Spoj
na Tehnika d.o.o.
Produced by EJOT Spojna Tehnika d.o.o., Frane Lučića 23/3, 10090 Zagreb, Croatia +385 (0)1 349 8612
GENERAL NOTE:
All fasteners will be designed according to
the structural calculations and architectural
project requirements.
SYSTEM EJOT CROSS-I-FIX
CF-U-108
OUTER CORNER
DETAIL 3
Version: 1.0
Page 4 of 22
CROSS
d4
2
1
3
4
5
6
CROSSFIX SYSTEM ELEMENTS
Nr Description
1
CF Wall bracket K1 - L
2
Façade anchor as per structural calculation
3
JT6-2/5-5,0X30 - VARIO
4
CF Vertical profile - Cladding support
5
CF Hanging element
6
JT4-6-5-5X19
The informations contained in this drawings are generic in nature and supplied for guidance
only. System requirements for specific applications will need to be confirmed by EJOT or
other suitable professional.
© This drawing is copyright and should not be used or produced for any purpose other than for which it is supplied
without written consent from EJOT Spojna Tehnika d.o.o.
Produced by EJOT Spojna Tehnika
d.o.o., Frane Lučića 23/3, 10090 Zagreb, Croatia +385 (0)1 349 8612
GENERAL NOTE:
All fasteners will be designed according to
the structural calculations and architectural
project requirements.
SYSTEM EJOT CROSS-I-FIX
CF-U-108
INNER CORNER
DETAIL 4
Version: 1.0
Page 5 of 22
CROSS
d5
2
1
3
4
5
6
CROSSFIX SYSTEM ELEMENTS
Nr Description
1
CF Wall bracket K1 - L
2
Façade anchor as per structural calculation
3
JT6-2/5-5,0X30 - VARIO
4
CF Vertical profile - Cladding support
5
CF Hanging element
6
JT4-6-5-5X19
The informations contained in this drawings are generic in nature and supplied for guidance
only. System requirements for specific applications will need to be confirmed by EJOT or
other suitable professional.
© This drawing is copyright and should not be used or produced for any purpose other than for which it is supplied
without written consent from EJOT Spojna Tehnika d.o.o.
Produced by EJOT Spojna Tehnika d.o.o., Frane Lučića 23/3, 10090 Zagreb, Croati
a +385 (0)1 349 8612
GENERAL NOTE:
All fasteners will be designed according to
the structural calculations and architectural
project requirements.
SYSTEM EJOT CROSS-I-FIX
CF-U-108
CURTAIN WALL JAMB
DETAIL 5
Version: 1.0
Page 6 of 22
CROSS
d6
2
1
3
4
5
6
CROSSFIX SYSTEM ELEMENTS
Nr Description
1
CF Wall bracket K1 - L
2
Façade anchor as per structural calculation
3
JT6-2/5-5,0X30 - VARIO
4
CF Vertical profile - Cladding support
5
CF Hanging element
6
JT4-6-5-5X19
The informations contained in this drawings are generic in nature and supplied for guidance
only. System requirements for specific applications will need to be confirmed by EJOT or
other suitable professional.
© This drawing is copyright and should not be used or produced for any purpose other than for which it is supplied
without written consent from EJOT Spojna Tehnika d.o.o.
Produced by EJOT Spojna Tehnika d.o.o., Frane Lučića 23/3, 10090 Zagreb, Croatia +385 (0)1 349 8612
GENERAL NOTE:
All fast
eners will be designed according to
the structural calculations and architectural
project requirements.
SYSTEM EJOT CROSS-I-FIX
CF-U-108
WINDOW JAMB -TYPE A
DETAIL 6
Version: 1.0
Page 7 of 22
CROSS
d7
2
1
3
4
5
6
CROSSFIX SYSTEM ELEMENTS
Nr Description
1
CF Wall bracket K1 - L
2
Façade anchor as per structural calculation
3
JT6-2/5-5,0X30 - VARIO
4
CF Vertical profile - Cladding support
5
CF Hanging element
6
JT4-6-5-5X19
The informations contained in this drawings are generic in nature and supplied for guidance
only. System requirements for specific applications will need to be confirmed by EJOT or
other suitable professional.
© This drawing is copyright and should not be used or produced for any purpose other than for which it is supplied
without written consent from EJOT Spojna Tehnika d.o.o.
Produced by EJOT Spojna Tehnika d.o.o., Frane Lučića 23/3, 10090 Zagreb, Croatia +385 (0)1 349 8612
GENERAL NOTE:
All fasteners will be designed according to
the st
ructural calculations and architectural
project requirements.
SYSTEM EJOT CROSS-I-FIX
CF-U-108
WINDOW JAMB - TYPE B
DETAIL 7
Version: 1.0
Page 8 of 22
CROSS
d8
7
1
3
5
2
6
4
CROSSFIX SYSTEM ELEMENTS
Nr Description
1
CF Wall bracket K1 - L
2
Façade anchor as per structural calculation
3
JT6-2/5-5,0X30 - VARIO
4
CF Vertical profile - Cladding support
5
CF Hanging element
6
JT4-6-5-5X19
7
JT4-LT-2/6,0X25 RAL
The informations contained in this drawings are generic in nature and supplied for guidance
only. System requirements for specific applications will need to be confirmed by EJOT or
other suitable professional.
© This drawing is copyright and should not be used or produced for any purpose other than for which it is supplied
without written consent from EJOT Spojna Tehnika d.o.o.
Produced by EJOT Spojna Tehnika d.o.o., Frane Lučića 23/3, 10090 Zagreb, Croatia +385 (0)1 349 8612
GENERAL NOTE:
All fasteners will be designed according to
the structural calcul
ations and architectural
project requirements.
SYSTEM EJOT CROSS-I-FIX
CF-U-108
DILATATION JOINT
DETAIL 8
Version: 1.0
Page 9 of 22
CROSS
d9
1
5
6
2
3
4
CROSSFIX SYSTEM ELEMENTS
Nr Description
1
CF Wall bracket K1 - L
2
Façade anchor as per structural calculation
3
JT6-2/5-5,0X30 - VARIO
4
CF Vertical profile - Cladding support
5
CF Hanging element
6
JT4-6-5-5X19
The informations contained in this drawings are generic in nature and supplied for guidance
only. System requirements for specific applications will need to be confirmed by EJOT or
other suitable professional.
© This drawing is copyright and should not be used or produced for any purpose other than for which it is supplied
without written consent from EJOT Spojna Tehnika d.o.o.
Produced by EJOT Spojna Tehnika d.o.o., Frane Lučića 23/3, 10090 Zagreb, Croatia +385 (0)1 349 8612
GENERAL NOTE:
All fasteners will be designed according to
the structural calculations and architectural
project requiremen
ts.
SYSTEM EJOT CROSS-I-FIX
CF-U-108
LOW CLADDING END - TYPE A
DETAIL 9
Version: 1.0
Page 10 of 22
CROSS
d10
3
2
5
1
6
4
CROSSFIX SYSTEM ELEMENTS
Nr Description
1
CF Wall bracket K1 - L
2
Façade anchor as per structural calculation
3
JT6-2/5-5,0X30 - VARIO
4
CF Vertical profile - Cladding support
5
CF Hanging element
6
JT4-6-5-5X19
The informations contained in this drawings are generic in nature and supplied for guidance
only. System requirements for specific applications will need to be confirmed by EJOT or
other suitable professional.
© This drawing is copyright and should not be used or produced for any purpose other than for which it is supplied
without written consent from EJOT Spojna Tehnika d.o.o.
Produced by EJOT Spojna Tehnika d.o.o., Frane Lučića 23/3, 10090 Zagreb, Croatia +385 (0)1 349 8612
GENERAL NOTE:
All fasteners will be designed according to
the structural calculations and architectural
project requirements.
SYSTEM EJOT CROSS-I-FIX
CF-U-10
8
CURTAIN WALL HEAD
DETAIL 10
Version: 1.0
Page 11 of 22
CROSS
d11
7
3
5
2
1
6
4
CROSSFIX SYSTEM ELEMENTS
Nr Description
1
CF Wall bracket K1 - L
2
Façade anchor as per structural calculation
3
JT6-2/5-5,0X30 - VARIO
4
CF Vertical profile - Cladding support
5
CF Hanging element
6
JT4-6-5-5X19
7
JT4-LT-2/6,0X25 RAL
The informations contained in this drawings are generic in nature and supplied for guidance
only. System requirements for specific applications will need to be confirmed by EJOT or
other suitable professional.
© This drawing is copyright and should not be used or produced for any purpose other than for which it is supplied
without written consent from EJOT Spojna Tehnika d.o.o.
Produced by EJOT Spojna Tehnika d.o.o., Frane Lučića 23/3, 10090 Zagreb, Croatia +385 (0)1 349 8612
GENERAL NOTE:
All fasteners will be designed according to
the structural calculations and architectural
project requirements.
SYSTEM EJOT CROSS-I-FIX
CF-U-108
WINDOW SILL
DETAIL 11
Version: 1.0
Page 12 of 22
CROSS
d12
3
5
2
6
1
4
CROSSFIX SYSTEM ELEMENTS
Nr Description
1
CF Wall bracket K1 - L
2
Façade anchor as per structural calculation
3
JT6-2/5-5,0X30 - VARIO
4
CF Vertical profile - Cladding support
5
CF Hanging element
6
JT4-6-5-5X19
The informations contained in this drawings are generic in nature and supplied for guidance
only. System requirements for specific applications will need to be confirmed by EJOT or
other suitable professional.
© This drawing is copyright and should not be used or produced for any purpose other than for which it is supplied
without written consent from EJOT Spojna Tehnika d.o.o.
Produced by EJOT Spojna Tehnika d.o.o., Frane Lučića 23/3, 10090 Zagreb, Croatia +385 (0)1 349 8612
GENERAL NOTE:
All fasteners will be designed according to
the structural calculations and architectural
project requirements.
SYSTEM EJOT CROSS-I-FIX
CF-U-108
WINDOW HEAD
DETAIL 12
Version: 1.0
Page 13 of 22
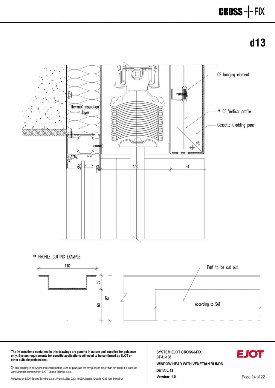
CROSS
d13
The informations contained in this drawings are generic in nature and supplied for guidance
only. System requirements for specific applications will need to be confirmed by EJOT or
other suitable professional.
© This drawing is copyright and should not be used or produced for any purpose other than for which it is supplied
without written consent from EJOT Spojna Tehnika d.o.o.
Produced by EJOT Spojna Tehnika d.o.o., Frane Lučića 23/3, 10090 Zagreb, Croatia +385 (0)1 349 8612
SYSTEM EJOT CROSS-I-FIX
CF-U-108
WINDOW HEAD WITH VENETIAN BLINDS
DETAIL 13
Version: 1.0
Page 14 of 22
CROSS
d14
2
4
5
1
4
6
3
5
7
6
CROSSFIX SYSTEM ELEMENTS
Nr Description
1
CF Wall bracket K1 - L
2
Façade anchor as per structural calculation
3
JT6-2/5-5,0X30 - VARIO
4
CF Vertical profile - Cladding support
5
CF Hanging element
6
JT4-6-5-5X19
7
JT4-LT-2/6,0X25 RAL
The informations contained in this drawings are generic in nature and supplied for guidance
only. System requirement
s for specific applications will need to be confirmed by EJOT or
other suitable professional.
© This drawing is copyright and should not be used or produced for any purpose other than for which it is supplied
without written consent from EJOT Spojna Tehnika d.o.o.
Produced by EJOT Spojna Tehnika d.o.o., Frane Lučića 23/3, 10090 Zagreb, Croatia +385 (0)1 349 8612
GENERAL NOTE:
All fasteners will be designed according to
the structural calculations and architectural
project requirements.
SYSTEM EJOT CROSS-I-FIX
CF-U-108
SUSPENDED SOFFIT CORNER
DETAIL 14
Version: 1.0
Page 15 of 22
CROSS
d15
6
4
7
5
2
3
6
1
CROSSFIX SYSTEM ELEMENTS
Nr Description
1
CF Wall bracket K1 - L
2
Façade anchor as per structural calculation
3
JT6-2/5-5,0X30 - VARIO
4
CF Vertical profile - Cladding support
5
CF Hanging element
6
JT4-6-5-5X19
The informations contained in this drawings are generic in nature and supplied for guidance
only. System requirements for specific applications w
ill need to be confirmed by EJOT or
other suitable professional.
© This drawing is copyright and should not be used or produced for any purpose other than for which it is supplied
without written consent from EJOT Spojna Tehnika d.o.o.
Produced by EJOT Spojna Tehnika d.o.o., Frane Lučića 23/3, 10090 Zagreb, Croatia +385 (0)1 349 8612
GENERAL NOTE:
All fasteners will be designed according to
the structural calculations and architectural
project requirements.
SYSTEM EJOT CROSS-I-FIX
CF-U-108
ROOF FLASHING TYPE A
DETAIL 15
Version: 1.0
Page 16 of 22
CROSS
d15.A
7
5
6
2
3
1
4
CROSSFIX SYSTEM ELEMENTS
Nr Description
1
CF Wall bracket K1 - L
2
Façade anchor as per structural calculation
3
JT6-2/5-5,0X30 - VARIO
4
CF Vertical profile - Cladding support
5
CF Hanging element
6
JT4-6-5-5X19
7
JT4-LT-2/6,0X25 RAL
The informations contained in this drawings are generic in nature and supplied for guidance
only. System requirements for specific applications will need t
o be confirmed by EJOT or
other suitable professional.
© This drawing is copyright and should not be used or produced for any purpose other than for which it is supplied
without written consent from EJOT Spojna Tehnika d.o.o.
Produced by EJOT Spojna Tehnika d.o.o., Frane Lučića 23/3, 10090 Zagreb, Croatia +385 (0)1 349 8612
GENERAL NOTE:
All fasteners will be designed according to
the structural calculations and architectural
project requirements.
SYSTEM EJOT CROSS-I-FIX
CF-U-108
ROOF FLASHING TYPE B
DETAIL 15.A
Version: 1.0
Page 17 of 22
CROSS
d16
1
3
5
2
6
4
CROSSFIX SYSTEM ELEMENTS
Nr Description
1
CF Wall bracket K1 - L
2
Façade anchor as per structural calculation
3
JT6-2/5-5,0X30 - VARIO
4
CF Vertical profile - Cladding support
5
CF Hanging element
6
JT4-6-5-5X19
The informations contained in this drawings are generic in nature and supplied for guidance
only. System requirements for specific applications will need to be confirmed by EJOT or
other suitab
le professional.
© This drawing is copyright and should not be used or produced for any purpose other than for which it is supplied
without written consent from EJOT Spojna Tehnika d.o.o.
Produced by EJOT Spojna Tehnika d.o.o., Frane Lučića 23/3, 10090 Zagreb, Croatia +385 (0)1 349 8612
GENERAL NOTE:
All fasteners will be designed according to
the structural calculations and architectural
project requirements.
SYSTEM EJOT CROSS-I-FIX
CF-U-108
VENTILATED FIRE BARRIER TYPE A
DETAIL 16
Version: 1.0
Page 18 of 22
CROSS
d16.A
5
1
3
4
2
CROSSFIX SYSTEM ELEMENTS
Nr Description
1
CF Wall bracket K1 - L
2
Façade anchor as per structural calculation
3
JT6-2/5-5,0X30 - VARIO
4
CF Vertical profile - Cladding support
6
FBS-R-6,3XL
The informations contained in this drawings are generic in nature and supplied for guidance
only. System requirements for specific applications will need to be confirmed by EJOT or
other suitable professional.
© This drawing is copyright and s
hould not be used or produced for any purpose other than for which it is supplied
without written consent from EJOT Spojna Tehnika d.o.o.
Produced by EJOT Spojna Tehnika d.o.o., Frane Lučića 23/3, 10090 Zagreb, Croatia +385 (0)1 349 8612
GENERAL NOTE:
All fasteners will be designed according to
the structural calculations and architectural
project requirements.
SYSTEM EJOT CROSS-I-FIX
CF-U-108
VENTILATED FIRE BARRIER TYPE B
DETAIL 16.A
Version: 1.0
Page 19 of 22
CROSS
5
4
3
2
1
CROSSFIX SYSTEM ELEMENTS
Nr Description
1
CF Wall bracket K1 - L
2
Façade anchor as per structural calculation
3
JT6-2/5-5,0X30 - VARIO
4
CF Vertical profile - Cladding support
5
CF Powerkey
The informations contained in this drawings are generic in nature and supplied for guidance
only. System requirements for specific applications will need to be confirmed by EJOT or
other suitable professional.
© This drawing is copyright and should not be used or produced for any purpose other than
for which it is supplied
without written consent from EJOT Spojna Tehnika d.o.o.
Produced by EJOT Spojna Tehnika d.o.o., Frane Lučića 23/3, 10090 Zagreb, Croatia +385 (0)1 349 8612
GENERAL NOTE:
All fasteners will be designed according to
the structural calculations and architectural
project requirements.
SYSTEM EJOT CROSS-I-FIX
CF-U-108
CF POWERKEY
Version: 1.0
Page 20 of 22
CROSS
The informations contained in this drawings are generic in nature and supplied for guidance
only. System requirements for specific applications will need to be confirmed by EJOT or
other suitable professional.
© This drawing is copyright and should not be used or produced for any purpose other than for which it is supplied
without written consent from EJOT Spojna Tehnika d.o.o.
Produced by EJOT Spojna Tehnika d.o.o., Frane Lučića 23/3, 10090 Zagreb, Croatia +385 (0)1 349 8612
SYSTEM EJOT CROSS-I-FIX
CF-U-108
CLADDING PANEL SIZING
Version: 1.0
Page 21 of 22
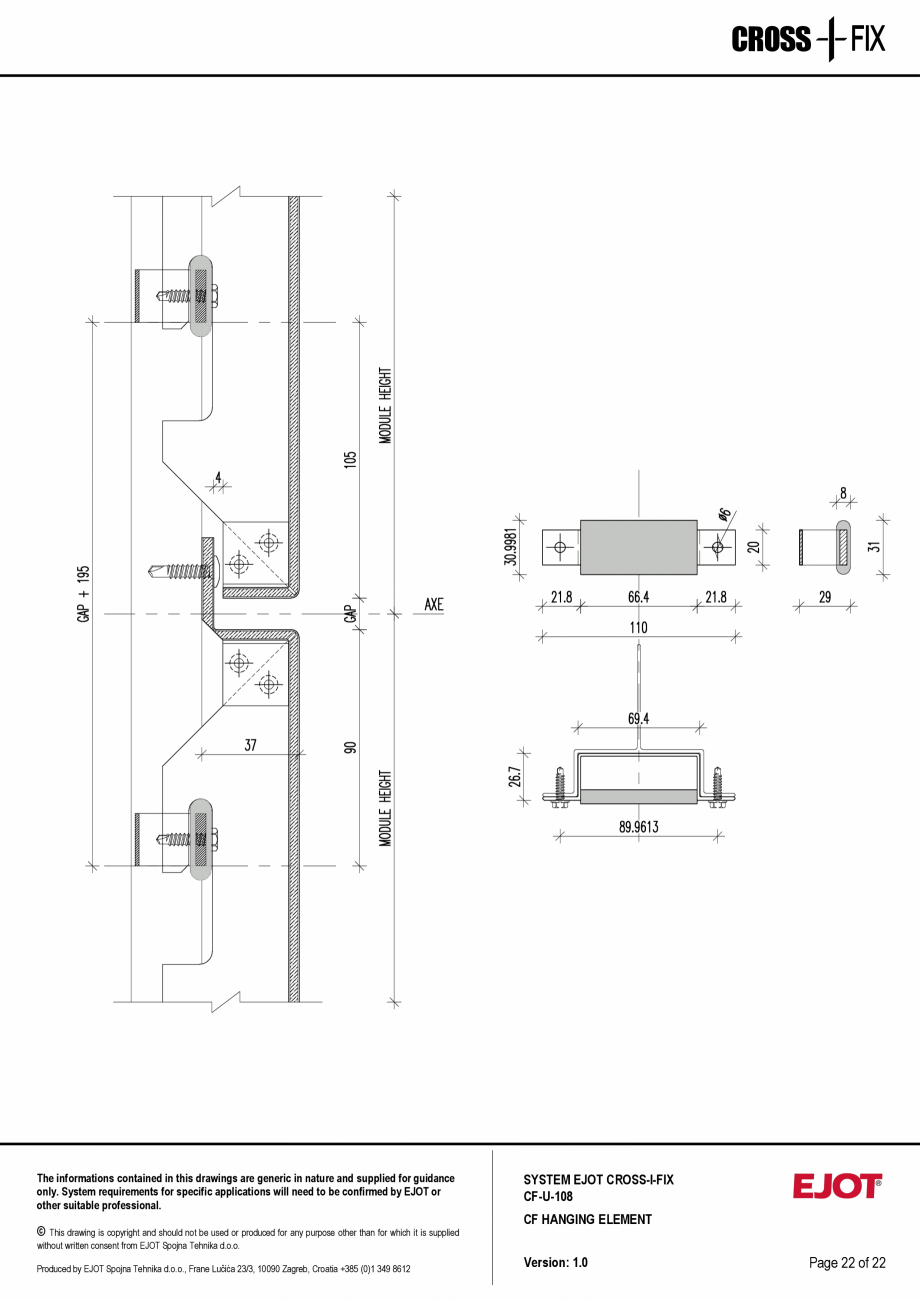
CROSS
The informations contained
in this drawings are generic in nature and supplied for guidance
only. System requirements for specific applications will need to be confirmed by EJOT or
other suitable professional.
© This drawing is copyright and should not be used or produced for any purpose other than for which it is supplied
without written consent from EJOT Spojna Tehnika d.o.o.
Produced by EJOT Spojna Tehnika d.o.o., Frane Lučića 23/3, 10090 Zagreb, Croatia +385 (0)1 349 8612
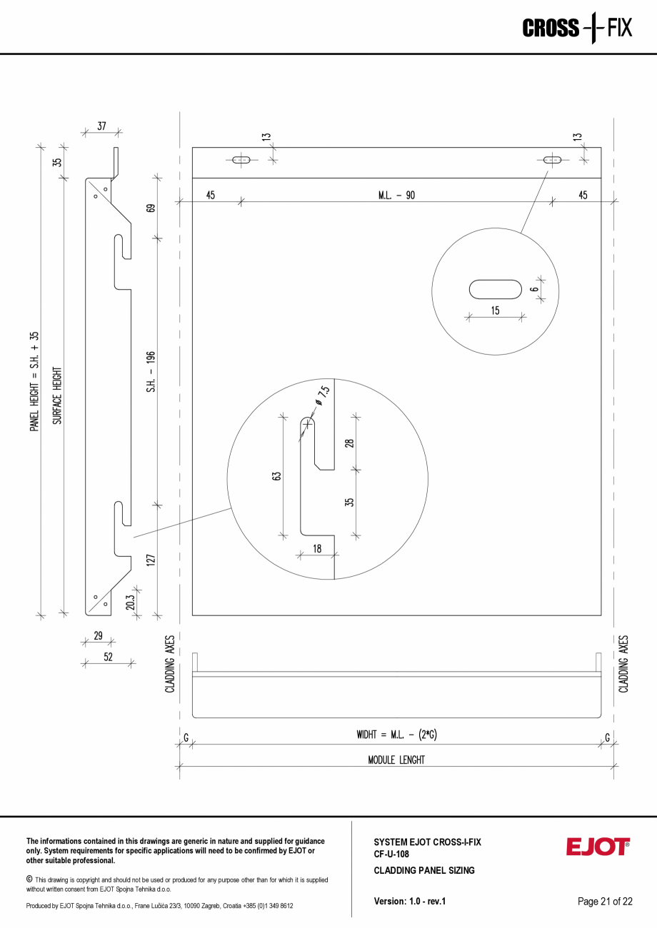
SYSTEM EJOT CROSS-I-FIX
CF-U-108
CLADDING PANEL SIZING
Version: 1.0 - rev.1
Page 21 of 22
CROSS
The informations contained in this drawings are generic in nature and supplied for guidance
only. System requirements for specific applications will need to be confirmed by EJOT or
other suitable professional.
© This drawing is copyright and should not be used or produced for any purpose other than for which it is supplied
without written consent from EJOT Spojna Tehnika d.o.o.
Produced by EJOT Spojna Tehnika d.o.o., Frane Lučića 2
3/3, 10090 Zagreb, Croatia +385 (0)1 349 8612
SYSTEM EJOT CROSS-I-FIX
CF-U-108
CF HANGING ELEMENT
Version: 1.0
Page 22 of 22
Alte documentatii ale aceleasi game Vezi toate
Certificare produs 1 p | RO