Consola de inox pentru fatade ventilate CF-U-104 EJOT Crossfix®
CROSS
EJOT ® Facade system
CF-U-104
SYSTEM CROSS-I-FIX CF-U-104
For Cassette Cladding System
Version: 1.0
CROSS
Survey
d15
d16
d13
d6
d11
d17
d4
d3
d12
d7
d11
d8
d10
d14
d2
d5
d1
d9
KEY ELEVATION
Page
Description
2
Vertical Joint
d1
13
Window head
d12
3
Horizontal Joint
d2
14
Window head with venetian blind
d13
4
Outer corner
d3
15
Suspended soffit corner
d14
5
Inner corner
d4
16
Roof flashing type B
d15
6
Curtain wall jamb
d5
17
Roof flashing type B
d16
7
Window jamb with venetian blinds
d6
18
Fire barrier
d17
8
Window frame moulding
d7
19
Ventilated fire barrier
d17A
9
Dilatation joint
d8
20
Powerkey
10
Lower cladding end
d9
11
Curtain wall head
d10
12
Window sill
d11
Detail
The informations contained in this drawings are generic in nature and supplied for guidance
only. System requirements for specific applications will need to be confirmed by EJOT or
other suitable professional.
© This drawing is copyright
and should not be used or produced for any purpose other than for which it is supplied
Page
Description
Detail
SYSTEM EJOT CROSS-I-FIX
CF-U-104
TYPICAL ELEVATION
without written consent from EJOT Spojna Tehnika d.o.o.
DETAIL TAGS
Produced by EJOT Spojna Tehnika d.o.o., Frane Lučića 23/3, 10090 Zagreb, Croatia +385 (0)1 349 8612
Version: 1.0
Page 1 of 20
CROSS
d1
2
1
3
7
5
6
4
CROSSFIX SYSTEM ELEMENTS
Nr Description
1
CF Wall bracket K1 - L
2
Façade anchor as per structural calculation
3
JT6-2/5-5,0X30 - VARIO
4
CF Vertical profile - Cladding support
5
CF Hanging profiles set
6
JT4-6-5-5X19
7
CF Gasket
The informations contained in this drawings are generic in nature and supplied for guidance
only. System requirements for specific applications will need to be confirmed by EJOT or
other suitable professional.
© This drawing is copyright and should not be used or produced for any purpose other than for which it is supplied
GENERAL NOTE:
All fasteners w
ill be designed according to
the structural calculations and architectural
project requirements.
SYSTEM EJOT CROSS-I-FIX
CF-U-104
VERTICAL JOINT
without written consent from EJOT Spojna Tehnika d.o.o.
DETAIL 1
Produced by EJOT Spojna Tehnika d.o.o., Frane Lučića 23/3, 10090 Zagreb, Croatia +385 (0)1 349 8612
Version: 1.0
Page 2 of 20
CROSS
d2
1
3
2
6
5
7
4
CROSSFIX SYSTEM ELEMENTS
Nr Description
1
CF Wall bracket K1 - L
2
Façade anchor as per structural calculation
3
JT6-2/5-5,0X30 - VARIO
4
CF Vertical profile - Cladding support
5
CF Hanging profiles
6
JT4-6-5-5X19
7
CF Gasket
The informations contained in this drawings are generic in nature and supplied for guidance
only. System requirements for specific applications will need to be confirmed by EJOT or
other suitable professional.
© This drawing is copyright and should not be used or produced for any purpose other than for which it is supplied
GENERAL NOTE:
All fasteners will be designed according t
o
the structural calculations and architectural
project requirements.
SYSTEM EJOT CROSS-I-FIX
CF-U-104
HORIZONTAL JOINT
without written consent from EJOT Spojna Tehnika d.o.o.
DETAIL 2
Produced by EJOT Spojna Tehnika d.o.o., Frane Lučića 23/3, 10090 Zagreb, Croatia +385 (0)1 349 8612
Version: 1.0
Page 3 of 20
CROSS
d3
2
3
6
4
5
7
CROSSFIX SYSTEM ELEMENTS
Nr Description
1
CF Wall bracket K1 - L
2
Façade anchor as per structural calculation
3
JT6-2/5-5,0X30 - VARIO
4
CF Vertical profile - Cladding support
5
CF Hanging profiles
6
JT4-6-5-5X19
7
CF Gasket
The informations contained in this drawings are generic in nature and supplied for guidance
only. System requirements for specific applications will need to be confirmed by EJOT or
other suitable professional.
© This drawing is copyright and should not be used or produced for any purpose other than for which it is supplied
GENERAL NOTE:
All fasteners will be designed according to
the structural calculati
ons and architectural
project requirements.
SYSTEM EJOT CROSS-I-FIX
CF-U-104
OUTER CORNER
without written consent from EJOT Spojna Tehnika d.o.o.
DETAIL 3
Produced by EJOT Spojna Tehnika d.o.o., Frane Lučića 23/3, 10090 Zagreb, Croatia +385 (0)1 349 8612
Version: 1.0
Page 4 of 20
CROSS
d4
6
1
3
2
4
5
CROSSFIX SYSTEM ELEMENTS
Nr Description
1
CF Wall bracket K1 - L
2
Façade anchor as per structural calculation
3
JT6-2/5-5,0X30 - VARIO
4
CF Vertical profile - Cladding support
5
CF Hanging profiles
6
JT4-6-5-5X19
The informations contained in this drawings are generic in nature and supplied for guidance
only. System requirements for specific applications will need to be confirmed by EJOT or
other suitable professional.
© This drawing is copyright and should not be used or produced for any purpose other than for which it is supplied
GENERAL NOTE:
All fasteners will be designed according to
the structural calculations and architectural
project requirements.
SYSTEM EJOT CROSS-I-FIX
CF-U-104
INNER CORNER
without written consent from EJOT Spojna Tehnika d.o.o.
DETAIL 4
Produced by EJOT Spojna Tehnika d.o.o., Frane Lučića 23/3, 10090 Zagreb, Croatia +385 (0)1 349 8612
Version: 1.0
Page 5 of 20
CROSS
d5
2
1
3
4
5
6
CROSSFIX SYSTEM ELEMENTS
Nr Description
1
CF Wall bracket K1 - L
2
Façade anchor as per structural calculation
3
JT6-2/5-5,0X30 - VARIO
4
CF Vertical profile - Cladding support
5
CF Hanging profiles
6
JT4-6-5-5X19
The informations contained in this drawings are generic in nature and supplied for guidance
only. System requirements for specific applications will need to be confirmed by EJOT or
other suitable professional.
© This drawing is copyright and should not be used or produced for any purpose other than for which it is supplied
GENERAL NOTE:
All fasteners will be designed according to
the structural calculations and architectural
project requirements.
SYSTEM EJOT CROSS-I-FIX
CF-U-104
CURTAIN WALL
JAMB
without written consent from EJOT Spojna Tehnika d.o.o.
DETAIL 5
Produced by EJOT Spojna Tehnika d.o.o., Frane Lučića 23/3, 10090 Zagreb, Croatia +385 (0)1 349 8612
Version: 1.0
Page 6 of 20
CROSS
d6
2
1
3
4
5
6
CROSSFIX SYSTEM ELEMENTS
Nr Description
1
CF Wall bracket K1 - L
2
Façade anchor as per structural calculation
3
JT6-2/5-5,0X30 - VARIO
4
CF Vertical profile - Cladding support
5
CF Hanging profiles
6
JT4-6-5-5X19
The informations contained in this drawings are generic in nature and supplied for guidance
only. System requirements for specific applications will need to be confirmed by EJOT or
other suitable professional.
© This drawing is copyright and should not be used or produced for any purpose other than for which it is supplied
GENERAL NOTE:
All fasteners will be designed according to
the structural calculations and architectural
project requirements.
SYSTEM EJOT CROSS-I-FIX
CF-U-104
WINDOW JAMB WITH VENETIAN BLINDS
without written con
sent from EJOT Spojna Tehnika d.o.o.
DETAIL 6
Produced by EJOT Spojna Tehnika d.o.o., Frane Lučića 23/3, 10090 Zagreb, Croatia +385 (0)1 349 8612
Version: 1.0
Page 7 of 20
CROSS
d7
2
1
3
4
5
6
CROSSFIX SYSTEM ELEMENTS
Nr Description
1
CF Wall bracket K1 - L
2
Façade anchor as per structural calculation
3
JT6-2/5-5,0X30 - VARIO
4
CF Vertical profile - Cladding support
5
CF Hanging element
6
JT4-6-5-5X19
The informations contained in this drawings are generic in nature and supplied for guidance
only. System requirements for specific applications will need to be confirmed by EJOT or
other suitable professional.
© This drawing is copyright and should not be used or produced for any purpose other than for which it is supplied
GENERAL NOTE:
All fasteners will be designed according to
the structural calculations and architectural
project requirements.
SYSTEM EJOT CROSS-I-FIX
CF-U-104
WINDOW FRAME MOULDING
without written consent from EJOT Spojna Tehnika d.o.o.
DETAIL 7
Produced by EJOT Spojna Tehnika d.o.o., Frane Lučića 23/3, 10090 Zagreb, Croatia +385 (0)1 349 8612
Version: 1.0
Page 8 of 20
CROSS
d8
6
1
2
7
5
3
4
CROSSFIX SYSTEM ELEMENTS
Nr Description
1
CF Wall bracket K1 - L
2
Façade anchor as per structural calculation
3
JT6-2/5-5,0X30 - VARIO
4
CF Vertical profile - Cladding support
5
CF Hanging element
6
JT4-6-5-5X19
7
CF Gasket
The informations contained in this drawings are generic in nature and supplied for guidance
only. System requirements for specific applications will need to be confirmed by EJOT or
other suitable professional.
© This drawing is copyright and should not be used or produced for any purpose other than for which it is supplied
GENERAL NOTE:
All fasteners will be designed according to
the structural calculations and architectural
project requirements.
SYSTEM EJOT CROSS-I-FIX
CF-U-104
DILATATION JOINT
without written consent from EJOT Spojna Tehnika d.o.o.
DETAIL 8
Produced by EJ
OT Spojna Tehnika d.o.o., Frane Lučića 23/3, 10090 Zagreb, Croatia +385 (0)1 349 8612
Version: 1.0
Page 9 of 20
CROSS
d9
1
4
2
5
3
6
CROSSFIX SYSTEM ELEMENTS
Nr Description
1
CF Wall bracket K1 - L
2
Façade anchor as per structural calculation
3
JT6-2/5-5,0X30 - VARIO
4
CF Vertical profile - Cladding support
5
CF Hanging element
6
JT4-6-5-5X19
The informations contained in this drawings are generic in nature and supplied for guidance
only. System requirements for specific applications will need to be confirmed by EJOT or
other suitable professional.
© This drawing is copyright and should not be used or produced for any purpose other than for which it is supplied
GENERAL NOTE:
All fasteners will be designed according to
the structural calculations and architectural
project requirements.
SYSTEM EJOT CROSS-I-FIX
CF-U-104
LOWER CLADDING END
without written consent from EJOT Spojna Tehnika d.o.o.
DETAIL 9
Produced by EJOT Spojna Tehnika d.o.o., Frane Lučića 2
3/3, 10090 Zagreb, Croatia +385 (0)1 349 8612
Version: 1.0
Page 10 of 20
CROSS
d10
4
2
3
1
5
6
7
CROSSFIX SYSTEM ELEMENTS
Nr Description
1
CF Wall bracket K1 - L
2
Façade anchor as per structural calculation
3
JT6-2/5-5,0X30 - VARIO
4
CF Vertical profile - Cladding support
5
CF Hanging element
6
JT4-6-5-5X19
7
CF Gasket
The informations contained in this drawings are generic in nature and supplied for guidance
only. System requirements for specific applications will need to be confirmed by EJOT or
other suitable professional.
© This drawing is copyright and should not be used or produced for any purpose other than for which it is supplied
GENERAL NOTE:
All fasteners will be designed according to
the structural calculations and architectural
project requirements.
SYSTEM EJOT CROSS-I-FIX
CF-U-104
CURTAIN WALL HEAD
without written consent from EJOT Spojna Tehnika d.o.o.
DETAIL 10
Produced by EJOT Spojna Tehnika d.o.o., Frane Lučića 23/3, 10090 Zagreb, Croat
ia +385 (0)1 349 8612
Version: 1.0
Page 11 of 20
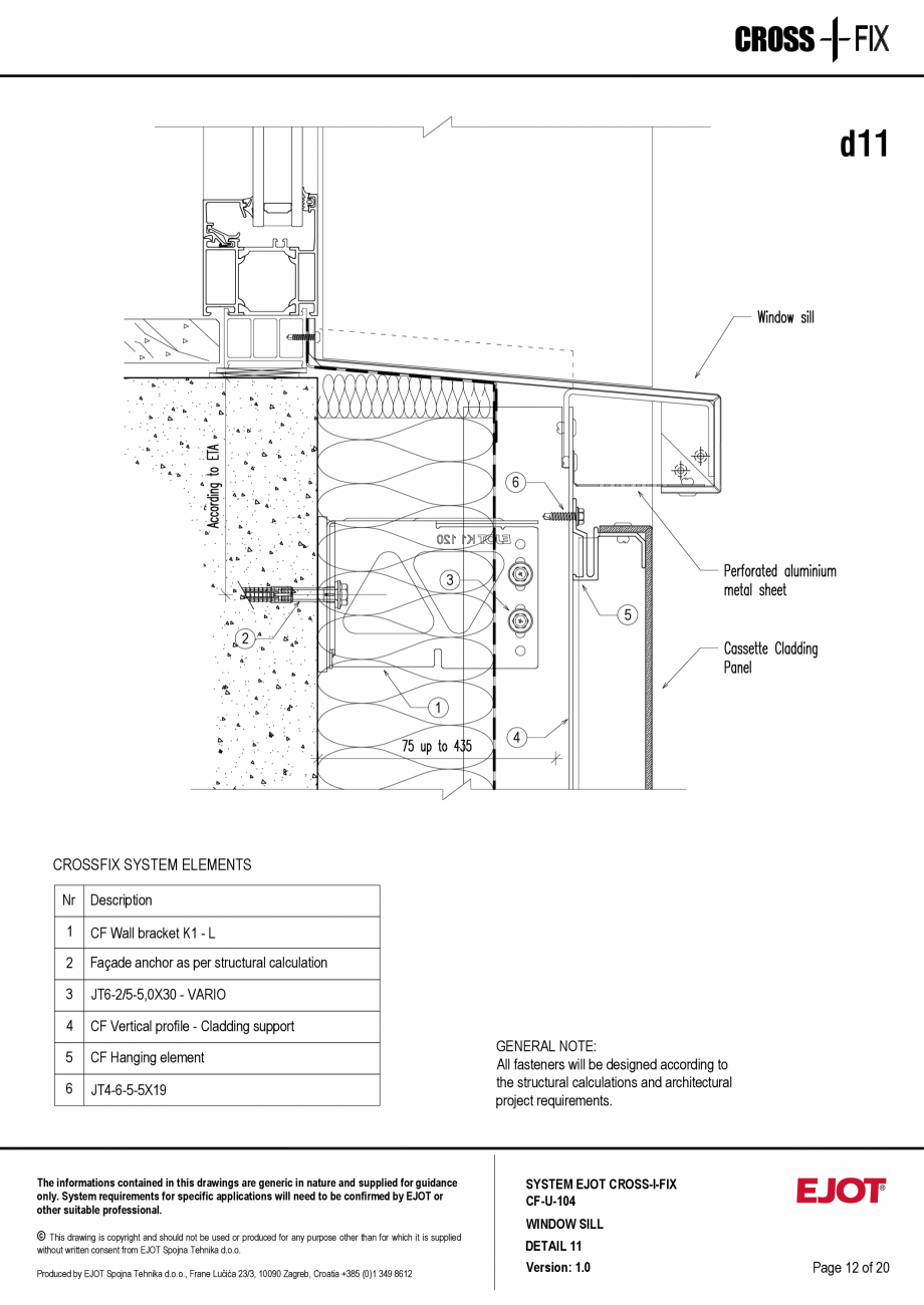
CROSS
d11
6
3
5
2
1
4
CROSSFIX SYSTEM ELEMENTS
Nr Description
1
CF Wall bracket K1 - L
2
Façade anchor as per structural calculation
3
JT6-2/5-5,0X30 - VARIO
4
CF Vertical profile - Cladding support
5
CF Hanging element
6
JT4-6-5-5X19
The informations contained in this drawings are generic in nature and supplied for guidance
only. System requirements for specific applications will need to be confirmed by EJOT or
other suitable professional.
© This drawing is copyright and should not be used or produced for any purpose other than for which it is supplied
GENERAL NOTE:
All fasteners will be designed according to
the structural calculations and architectural
project requirements.
SYSTEM EJOT CROSS-I-FIX
CF-U-104
WINDOW SILL
without written consent from EJOT Spojna Tehnika d.o.o.
DETAIL 11
Produced by EJOT Spojna Tehnika d.o.o., Frane Lučića 23/3, 10090 Zagreb, Croatia +385 (0)1 349 8612
Version: 1.0
Page 12
of 20
CROSS
d12
3
5
2
6
1
4
CROSSFIX SYSTEM ELEMENTS
Nr Description
1
CF Wall bracket K1 - L
2
Façade anchor as per structural calculation
3
JT6-2/5-5,0X30 - VARIO
4
CF Vertical profile - Cladding support
5
CF Hanging element
6
JT4-6-5-5X19
The informations contained in this drawings are generic in nature and supplied for guidance
only. System requirements for specific applications will need to be confirmed by EJOT or
other suitable professional.
© This drawing is copyright and should not be used or produced for any purpose other than for which it is supplied
GENERAL NOTE:
All fasteners will be designed according to
the structural calculations and architectural
project requirements.
SYSTEM EJOT CROSS-I-FIX
CF-U-104
WINDOW HEAD
without written consent from EJOT Spojna Tehnika d.o.o.
DETAIL 12
Produced by EJOT Spojna Tehnika d.o.o., Frane Lučića 23/3, 10090 Zagreb, Croatia +385 (0)1 349 8612
Version: 1.0
Page 13 of 20
CROSS
d13
The informations containe
d in this drawings are generic in nature and supplied for guidance
only. System requirements for specific applications will need to be confirmed by EJOT or
other suitable professional.
© This drawing is copyright and should not be used or produced for any purpose other than for which it is supplied
SYSTEM EJOT CROSS-I-FIX
CF-U-104
WINDOW HEAD WITH VENETIAN BLINDS
without written consent from EJOT Spojna Tehnika d.o.o.
DETAIL 13
Produced by EJOT Spojna Tehnika d.o.o., Frane Lučića 23/3, 10090 Zagreb, Croatia +385 (0)1 349 8612
Version: 1.0
Page 14 of 20
CROSS
d14
2
1
4
6
3
5
7
CROSSFIX SYSTEM ELEMENTS
Nr Description
1
CF Wall bracket K1 - L
2
Façade anchor as per structural calculation
3
JT6-2/5-5,0X30 - VARIO
4
CF Vertical profile - Cladding support
5
CF Hanging element
6
JT4-6-5-5X19
7
CF Gasket
The informations contained in this drawings are generic in nature and supplied for guidance
only. System requirements for specific applications will need to b
e confirmed by EJOT or
other suitable professional.
© This drawing is copyright and should not be used or produced for any purpose other than for which it is supplied
GENERAL NOTE:
All fasteners will be designed according to
the structural calculations and architectural
project requirements.
SYSTEM EJOT CROSS-I-FIX
CF-U-104
SUSPENDED SOFFIT CORNER
without written consent from EJOT Spojna Tehnika d.o.o.
DETAIL 14
Produced by EJOT Spojna Tehnika d.o.o., Frane Lučića 23/3, 10090 Zagreb, Croatia +385 (0)1 349 8612
Version: 1.0
Page 15 of 20
CROSS
d15
6
4
6
7
5
3
2
1
CROSSFIX SYSTEM ELEMENTS
Nr Description
1
CF Wall bracket K1 - L
2
Façade anchor as per structural calculation
3
JT6-2/5-5,0X30 - VARIO
4
CF Vertical profile - Cladding support
5
CF Hanging element
6
JT4-6-5-5X19
7
CF Gasket
The informations contained in this drawings are generic in nature and supplied for guidance
only. System requirements for specific applications will need to be confirmed by
EJOT or
other suitable professional.
© This drawing is copyright and should not be used or produced for any purpose other than for which it is supplied
GENERAL NOTE:
All fasteners will be designed according to
the structural calculations and architectural
project requirements.
SYSTEM EJOT CROSS-I-FIX
CF-U-104
ROOF FLASHING TYPE A
without written consent from EJOT Spojna Tehnika d.o.o.
DETAIL 15
Produced by EJOT Spojna Tehnika d.o.o., Frane Lučića 23/3, 10090 Zagreb, Croatia +385 (0)1 349 8612
Version: 1.0
Page 16 of 20
CROSS
d16
6
6
5
2
3
1
4
CROSSFIX SYSTEM ELEMENTS
Nr Description
1
CF Wall bracket K1 - L
2
Façade anchor as per structural calculation
3
JT6-2/5-5,0X30 - VARIO
4
CF Vertical profile - Cladding support
5
CF Hanging element
6
JT4-6-5-5X19
The informations contained in this drawings are generic in nature and supplied for guidance
only. System requirements for specific applications will need to be confirmed by EJOT or
other suitable professio
nal.
© This drawing is copyright and should not be used or produced for any purpose other than for which it is supplied
GENERAL NOTE:
All fasteners will be designed according to
the structural calculations and architectural
project requirements.
SYSTEM EJOT CROSS-I-FIX
CF-U-104
ROOF FLASHING TYPE B
without written consent from EJOT Spojna Tehnika d.o.o.
DETAIL 16
Produced by EJOT Spojna Tehnika d.o.o., Frane Lučića 23/3, 10090 Zagreb, Croatia +385 (0)1 349 8612
Version: 1.0
Page 17 of 20
CROSS
d17
6
7
5
1
3
4
2
CROSSFIX SYSTEM ELEMENTS
Nr Description
1
CF Wall bracket K1 - L
2
Façade anchor as per structural calculation
3
JT6-2/5-5,0X30 - VARIO
4
CF Vertical profile - Cladding support
5
CF Hanging element
6
JT4-6-5-5X19
7
CF Gasket
The informations contained in this drawings are generic in nature and supplied for guidance
only. System requirements for specific applications will need to be confirmed by EJOT or
other suitable professional.
© This drawi
ng is copyright and should not be used or produced for any purpose other than for which it is supplied
GENERAL NOTE:
All fasteners will be designed according to
the structural calculations and architectural
project requirements.
SYSTEM EJOT CROSS-I-FIX
CF-U-104
FIRE BARRIER
without written consent from EJOT Spojna Tehnika d.o.o.
DETAIL 17
Produced by EJOT Spojna Tehnika d.o.o., Frane Lučića 23/3, 10090 Zagreb, Croatia +385 (0)1 349 8612
Version: 1.0
Page 18 of 20
CROSS
d17.A
1
4
3
2
CROSSFIX SYSTEM ELEMENTS
Nr Description
1
CF Wall bracket K1 - L
2
Façade anchor as per structural calculation
3
JT6-2/5-5,0X30 - VARIO
4
CF Vertical profile - Cladding support
The informations contained in this drawings are generic in nature and supplied for guidance
only. System requirements for specific applications will need to be confirmed by EJOT or
other suitable professional.
© This drawing is copyright and should not be used or produced for any purpose other than for whic
h it is supplied
GENERAL NOTE:
All fasteners will be designed according to
the structural calculations and architectural
project requirements.
SYSTEM EJOT CROSS-I-FIX
CF-U-104
VENTILATED FIRE BARRIER
without written consent from EJOT Spojna Tehnika d.o.o.
DETAIL 17.A
Produced by EJOT Spojna Tehnika d.o.o., Frane Lučića 23/3, 10090 Zagreb, Croatia +385 (0)1 349 8612
Version: 1.0
Page 19 of 20
CROSS
4
5
3
2
1
CROSSFIX SYSTEM ELEMENTS
Nr Description
1
CF Wall bracket K1 - L
2
Façade anchor as per structural calculation
3
JT6-2/5-5,0X30 - VARIO
4
CF Vertical profile - Cladding support
The informations contained in this drawings are generic in nature and supplied for guidance
only. System requirements for specific applications will need to be confirmed by EJOT or
other suitable professional.
© This drawing is copyright and should not be used or produced for any purpose other than for which it is supplied
GENERAL NOTE:
All fasteners will be designed according to
th
e structural calculations and architectural
project requirements.
SYSTEM EJOT CROSS-I-FIX
CF-U-108
CF POWERKEY
without written consent from EJOT Spojna Tehnika d.o.o.
Produced by EJOT Spojna Tehnika d.o.o., Frane Lučića 23/3, 10090 Zagreb, Croatia +385 (0)1 349 8612
Version: 1.0
Page 20 of 20
Alte documentatii ale aceleasi game Vezi toate
Certificare produs 1 p | RO