Consola de inox pentru fatade ventilate CF-S-101 EJOT Crossfix®
CROSS
EJOT ® Facade system
CF-S-101
SYSTEM CROSS-I-FIX CF-S-101
For Riveted Cladding System
Version: 1.0
The Quality Connection
CROSS
Survey
d19
d14
d19
d4
d12
d3
d13
d8
d16
d7
d17
d12
d14
d15
d6
d11
d2
d12
d3
d18
d1
d10
d5
d9
KEY ELEVATION
Page
Description
Detail
2
Vertical joint
d1
13
Window sill type A
d12
3
Horizontal joint
d2
14
Window head type A
d13
4
Outer corner
d3
15
Window head with venetian blind
d14
5
Inner corner
d4
16
Window sill type B
d15
6
Curtain wall vertical mullion
d5
17
Window head type B
d16
7
Window jamb type A
d6
18
Window jamb type C
d17
8
Window jamb type B
d7
19
Suspended soffit corner
d18
9
Fire-resistant barrier
d8
20
Roof flashing
d19
10
Lower cladding end type A
d9
21
Subframe dilatation joint
d2A
11
Lower cladding end type B
d10
22
CF Powerkey
d2B
12
Curtain wall end
d11
23
CF Powerkey on LGF system wall
d2C
The informations contained in this drawings are generi
c in nature and supplied for guidance
only. System requirements for specific applications will need to be confirmed by EJOT or
other suitable professional.
© This drawing is copyright and should not be used or produced for any purpose other than for which it is supplied
Page
Description
Detail
SYSTEM EJOT CROSS-I-FIX
CF-S-101
TYPICAL ELEVATION
without written consent from EJOT Spojna Tehnika d.o.o.
DETAIL TAGS
Produced by EJOT Spojna Tehnika d.o.o., Frane Lučića 23/3, 10090 Zagreb, Croatia +385 (0)1 349 8612
Version: 1.0
Page 1 of 23
CROSS
d1
2
1
4
3
5
CROSSFIX SYSTEM ELEMENTS
Nr Description
1
CF Wall bracket K1 - L
2
Façade anchor as per structural calculation
3
JT6-2/5-5,0X30 - VARIO
4
CF Vertical profile - Cladding support
5
Rivet - RAL
The informations contained in this drawings are generic in nature and supplied for guidance
only. System requirements for specific applications will need to be confirmed by EJOT or
other suitable professional.
© This
drawing is copyright and should not be used or produced for any purpose other than for which it is supplied
GENERAL NOTE:
All fasteners will be designed according to
the structural calculations and architectural
project requirements.
SYSTEM EJOT CROSS-I-FIX
CF-S-101
VERTICAL JOINT
without written consent from EJOT Spojna Tehnika d.o.o.
DETAIL 1
Produced by EJOT Spojna Tehnika d.o.o., Frane Lučića 23/3, 10090 Zagreb, Croatia +385 (0)1 349 8612
Version: 1.0
Page 2 of 23
CROSS
d2
1
4
3
2
5
CROSSFIX SYSTEM ELEMENTS
Nr Description
1
CF Wall bracket K1 - L
2
Façade anchor as per structural calculation
3
JT6-2/5-5,0X30 - VARIO
4
CF Vertical profile - Cladding support
5
Rivet - RAL
The informations contained in this drawings are generic in nature and supplied for guidance
only. System requirements for specific applications will need to be confirmed by EJOT or
other suitable professional.
© This drawing is copyright and should not be used or produced for any purpose
other than for which it is supplied
GENERAL NOTE:
All fasteners will be designed according to
the structural calculations and architectural
project requirements.
SYSTEM EJOT CROSS-I-FIX
CF-S-101
HORIZONTAL JOINT
without written consent from EJOT Spojna Tehnika d.o.o.
DETAIL 2
Produced by EJOT Spojna Tehnika d.o.o., Frane Lučića 23/3, 10090 Zagreb, Croatia +385 (0)1 349 8612
Version: 1.0
Page 3 of 23
CROSS
d3
2
1
4
3
5
CROSSFIX SYSTEM ELEMENTS
Nr Description
1
CF Wall bracket K1 - L
2
Façade anchor as per structural calculation
3
JT6-2/5-5,0X30 - VARIO
4
CF Vertical profile - Cladding support
5
Rivet - RAL
The informations contained in this drawings are generic in nature and supplied for guidance
only. System requirements for specific applications will need to be confirmed by EJOT or
other suitable professional.
© This drawing is copyright and should not be used or produced for any purpose other than for which it is supplied
GENERAL NOTE:
All fasteners w
ill be designed according to
the structural calculations and architectural
project requirements.
SYSTEM EJOT CROSS-I-FIX
CF-S-101
OUTER CORNER
without written consent from EJOT Spojna Tehnika d.o.o.
DETAIL 3
Produced by EJOT Spojna Tehnika d.o.o., Frane Lučića 23/3, 10090 Zagreb, Croatia +385 (0)1 349 8612
Version: 1.0
Page 4 of 23
CROSS
d4
2
1
3
4
5
CROSSFIX SYSTEM ELEMENTS
Nr Description
1
CF Wall bracket K1 - L
2
Façade anchor as per structural calculation
3
JT6-2/5-5,0X30 - VARIO
4
CF Vertical profile - Cladding support
5
Rivet - RAL
The informations contained in this drawings are generic in nature and supplied for guidance
only. System requirements for specific applications will need to be confirmed by EJOT or
other suitable professional.
© This drawing is copyright and should not be used or produced for any purpose other than for which it is supplied
GENERAL NOTE:
All fasteners will be designed according to
the structural calculations and architectura
l
project requirements.
SYSTEM EJOT CROSS-I-FIX
CF-S-101
INNER CORNER
without written consent from EJOT Spojna Tehnika d.o.o.
DETAIL 4
Produced by EJOT Spojna Tehnika d.o.o., Frane Lučića 23/3, 10090 Zagreb, Croatia +385 (0)1 349 8612
Version: 1.0
Page 5 of 23
CROSS
d5
2
1
3
4
5
CROSSFIX SYSTEM ELEMENTS
Nr Description
1
CF Wall bracket K1 - L
2
Façade anchor as per structural calculation
3
JT6-2/5-5,0X30 - VARIO
4
CF Vertical profile - Cladding support
5
Rivet - RAL
The informations contained in this drawings are generic in nature and supplied for guidance
only. System requirements for specific applications will need to be confirmed by EJOT or
other suitable professional.
© This drawing is copyright and should not be used or produced for any purpose other than for which it is supplied
GENERAL NOTE:
All fasteners will be designed according to
the structural calculations and architectural
project requirements.
SYSTEM EJOT CROSS-I-FIX
CF-S-101
CURTAIN WALL J
AMB
without written consent from EJOT Spojna Tehnika d.o.o.
DETAIL 5
Produced by EJOT Spojna Tehnika d.o.o., Frane Lučića 23/3, 10090 Zagreb, Croatia +385 (0)1 349 8612
Version: 1.0
Page 6 of 23
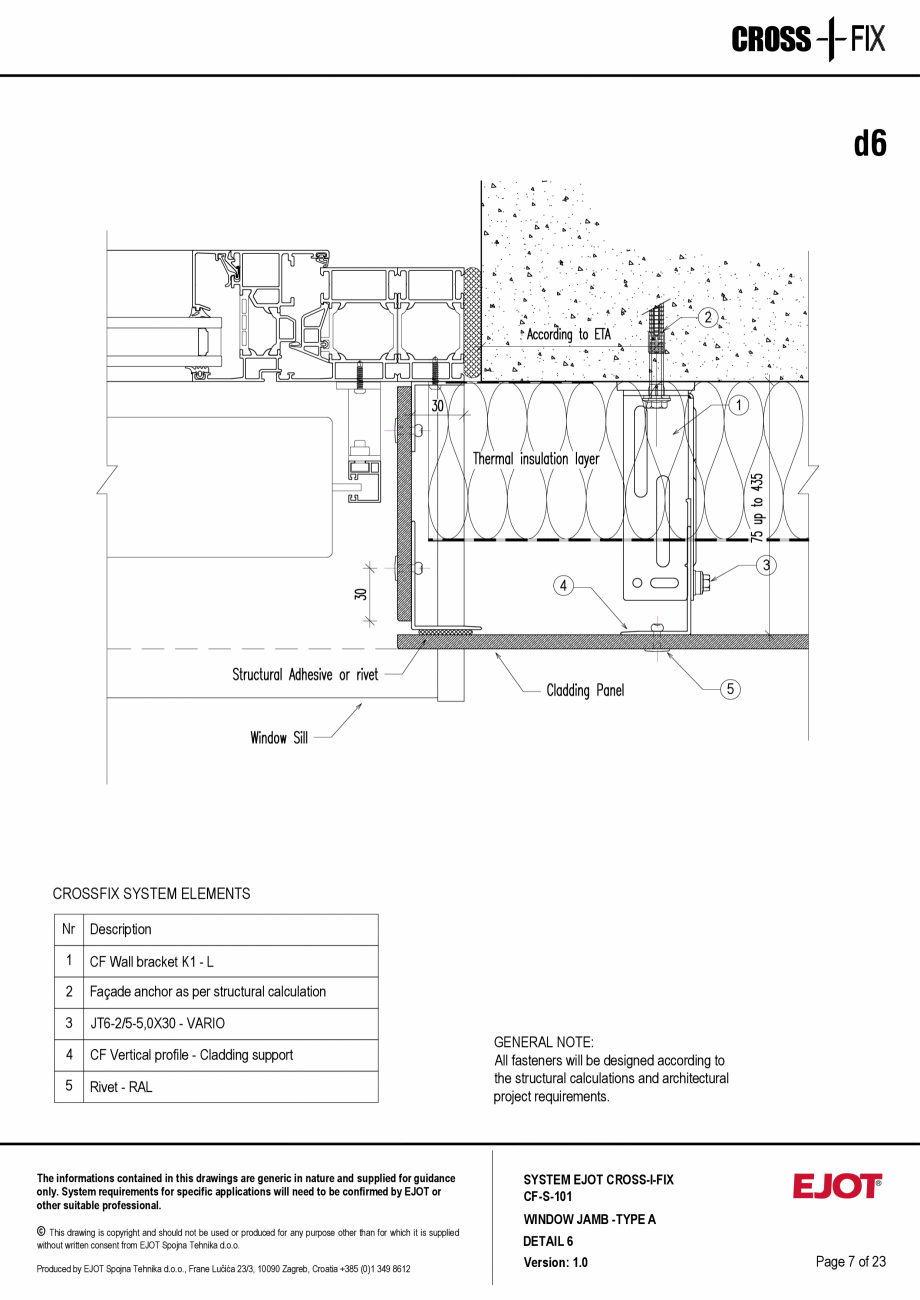
CROSS
d6
2
1
3
4
5
CROSSFIX SYSTEM ELEMENTS
Nr Description
1
CF Wall bracket K1 - L
2
Façade anchor as per structural calculation
3
JT6-2/5-5,0X30 - VARIO
4
CF Vertical profile - Cladding support
5
Rivet - RAL
The informations contained in this drawings are generic in nature and supplied for guidance
only. System requirements for specific applications will need to be confirmed by EJOT or
other suitable professional.
© This drawing is copyright and should not be used or produced for any purpose other than for which it is supplied
GENERAL NOTE:
All fasteners will be designed according to
the structural calculations and architectural
project requirements.
SYSTEM EJOT CROSS-I-FIX
CF-S-101
WINDOW JAMB -TYPE A
without written consent from EJOT Spojna Tehnika d.o.o.
DET
AIL 6
Produced by EJOT Spojna Tehnika d.o.o., Frane Lučića 23/3, 10090 Zagreb, Croatia +385 (0)1 349 8612
Version: 1.0
Page 7 of 23
CROSS
d7
2
1
3
4
5
CROSSFIX SYSTEM ELEMENTS
Nr Description
1
CF Wall bracket K1 - L
2
Façade anchor as per structural calculation
3
JT6-2/5-5,0X30 - VARIO
4
CF Vertical profile - Cladding support
5
Rivet - RAL
The informations contained in this drawings are generic in nature and supplied for guidance
only. System requirements for specific applications will need to be confirmed by EJOT or
other suitable professional.
© This drawing is copyright and should not be used or produced for any purpose other than for which it is supplied
GENERAL NOTE:
All fasteners will be designed according to
the structural calculations and architectural
project requirements.
SYSTEM EJOT CROSS-I-FIX
CF-S-101
WINDOW JAMB - TYPE B
without written consent from EJOT Spojna Tehnika d.o.o.
DETAIL 7
Produced by EJOT Spojna Tehnika d.o.o., Frane Lučića 23
/3, 10090 Zagreb, Croatia +385 (0)1 349 8612
Version: 1.0
Page 8 of 23
CROSS
d8
1
4
3
2
6
1
5
3
2
CROSSFIX SYSTEM ELEMENTS
Nr Description
1
CF Wall bracket K1 - L
2
Façade anchor as per structural calculation
3
JT6-2/5-5,0X30 - VARIO
4
CF Vertical profile - Cladding support
5
Rivet - RAL
6
FBS-R-6,3XL
The informations contained in this drawings are generic in nature and supplied for guidance
only. System requirements for specific applications will need to be confirmed by EJOT or
other suitable professional.
© This drawing is copyright and should not be used or produced for any purpose other than for which it is supplied
GENERAL NOTE:
All fasteners will be designed according to
the structural calculations and architectural
project requirements.
SYSTEM EJOT CROSS-I-FIX
CF-S-101
FIRE RESISTANT BARRIER
without written consent from EJOT Spojna Tehnika d.o.o.
DETAIL 8
Produced by EJOT Spojna Tehnika d.o.o., Frane Lučića 23/3, 10090 Zagreb, Croatia +385 (0)
1 349 8612
Version: 1.0
Page 9 of 23
CROSS
d9
1
2
4
3
5
CROSSFIX SYSTEM ELEMENTS
Nr Description
1
CF Wall bracket K1 - L
2
Façade anchor as per structural calculation
3
JT6-2/5-5,0X30 - VARIO
4
CF Vertical profile - Cladding support
5
Rivet - RAL
The informations contained in this drawings are generic in nature and supplied for guidance
only. System requirements for specific applications will need to be confirmed by EJOT or
other suitable professional.
© This drawing is copyright and should not be used or produced for any purpose other than for which it is supplied
GENERAL NOTE:
All fasteners will be designed according to
the structural calculations and architectural
project requirements.
SYSTEM EJOT CROSS-I-FIX
CF-S-101
LOWE CLADDING END - TYPE A
without written consent from EJOT Spojna Tehnika d.o.o.
DETAIL 9
Produced by EJOT Spojna Tehnika d.o.o., Frane Lučića 23/3, 10090 Zagreb, Croatia +385 (0)1 349 8612
Version: 1.0
Page 10 of 23
CROSS
d10
1
3
2
4
5
CROSSFIX SYSTEM ELEMENTS
Nr Description
1
CF Wall bracket K1 - L
2
Façade anchor as per structural calculation
3
JT6-2/5-5,0X30 - VARIO
4
CF Vertical profile - Cladding support
5
Rivet - RAL
The informations contained in this drawings are generic in nature and supplied for guidance
only. System requirements for specific applications will need to be confirmed by EJOT or
other suitable professional.
© This drawing is copyright and should not be used or produced for any purpose other than for which it is supplied
GENERAL NOTE:
All fasteners will be designed according to
the structural calculations and architectural
project requirements.
SYSTEM EJOT CROSS-I-FIX
CF-S-101
LOWER CLADDING END - TYPE B
without written consent from EJOT Spojna Tehnika d.o.o.
DETAIL 10
Produced by EJOT Spojna Tehnika d.o.o., Frane Lučića 23/3, 10090 Zagreb, Croatia +385 (0)1 349 8612
Version: 1.0
Page 11 of 23
CROSS
d11
3
2
4
1
5
CROSSFIX SYSTEM ELEMENTS
Nr Description
1
CF Wa
ll bracket K1 - L
2
Façade anchor as per structural calculation
3
JT6-2/5-5,0X30 - VARIO
4
CF Vertical profile - Cladding support
5
Rivet - RAL
The informations contained in this drawings are generic in nature and supplied for guidance
only. System requirements for specific applications will need to be confirmed by EJOT or
other suitable professional.
© This drawing is copyright and should not be used or produced for any purpose other than for which it is supplied
GENERAL NOTE:
All fasteners will be designed according to
the structural calculations and architectural
project requirements.
SYSTEM EJOT CROSS-I-FIX
CF-S-101
CURTAIN WALL HEAD
without written consent from EJOT Spojna Tehnika d.o.o.
DETAIL 11
Produced by EJOT Spojna Tehnika d.o.o., Frane Lučića 23/3, 10090 Zagreb, Croatia +385 (0)1 349 8612
Version: 1.0
Page 12 of 23
CROSS
d12
3
5
2
4
1
CROSSFIX SYSTEM ELEMENTS
Nr Description
1
CF Wall bracket K1 - L
2
Façade anchor as per structural calculatio
n
3
JT6-2/5-5,0X30 - VARIO
4
CF Vertical profile - Cladding support
5
Rivet - RAL
The informations contained in this drawings are generic in nature and supplied for guidance
only. System requirements for specific applications will need to be confirmed by EJOT or
other suitable professional.
© This drawing is copyright and should not be used or produced for any purpose other than for which it is supplied
GENERAL NOTE:
All fasteners will be designed according to
the structural calculations and architectural
project requirements.
SYSTEM EJOT CROSS-I-FIX
CF-S-101
WINDOW SILL - TYPE A
without written consent from EJOT Spojna Tehnika d.o.o.
DETAIL 12
Produced by EJOT Spojna Tehnika d.o.o., Frane Lučića 23/3, 10090 Zagreb, Croatia +385 (0)1 349 8612
Version: 1.0
Page 13 of 23
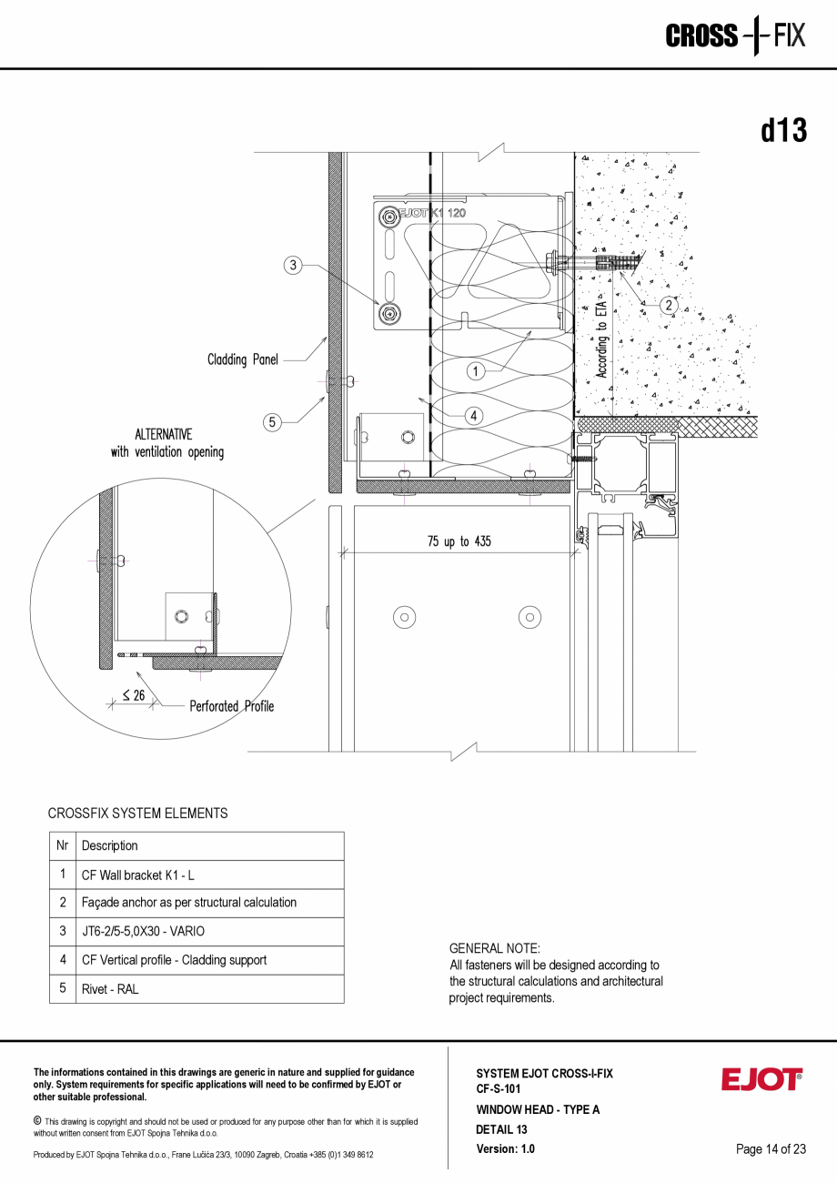
CROSS
d13
3
2
1
5
4
CROSSFIX SYSTEM ELEMENTS
Nr Description
1
CF Wall bracket K1 - L
2
Façade anchor as per structural calculation
3
JT6-2/5-5,0X30 - VARIO
4
CF Vertical profile - Claddi
ng support
5
Rivet - RAL
The informations contained in this drawings are generic in nature and supplied for guidance
only. System requirements for specific applications will need to be confirmed by EJOT or
other suitable professional.
© This drawing is copyright and should not be used or produced for any purpose other than for which it is supplied
GENERAL NOTE:
All fasteners will be designed according to
the structural calculations and architectural
project requirements.
SYSTEM EJOT CROSS-I-FIX
CF-S-101
WINDOW HEAD - TYPE A
without written consent from EJOT Spojna Tehnika d.o.o.
DETAIL 13
Produced by EJOT Spojna Tehnika d.o.o., Frane Lučića 23/3, 10090 Zagreb, Croatia +385 (0)1 349 8612
Version: 1.0
Page 14 of 23
CROSS
d14
The informations contained in this drawings are generic in nature and supplied for guidance
only. System requirements for specific applications will need to be confirmed by EJOT or
other suitable professional.
© This drawing is copyright and shoul
d not be used or produced for any purpose other than for which it is supplied
SYSTEM EJOT CROSS-I-FIX
CF-S-101
WINDOW HEAD WITH VENETIAN BLINDS
without written consent from EJOT Spojna Tehnika d.o.o.
DETAIL 14
Produced by EJOT Spojna Tehnika d.o.o., Frane Lučića 23/3, 10090 Zagreb, Croatia +385 (0)1 349 8612
Version: 1.0
Page 15 of 23
CROSS
d15
1
5
4
2
3
CROSSFIX SYSTEM ELEMENTS
Nr Description
1
CF Wall bracket K1 - L
2
Façade anchor as per structural calculation
3
JT6-2/5-5,0X30 - VARIO
4
CF Vertical profile - Cladding support
5
Rivet - RAL
The informations contained in this drawings are generic in nature and supplied for guidance
only. System requirements for specific applications will need to be confirmed by EJOT or
other suitable professional.
© This drawing is copyright and should not be used or produced for any purpose other than for which it is supplied
GENERAL NOTE:
All fasteners will be designed according to
the structural calculations and architect
ural
project requirements.
SYSTEM EJOT CROSS-I-FIX
CF-S-101
WINDOW SILL - TYPE B
without written consent from EJOT Spojna Tehnika d.o.o.
DETAIL 15
Produced by EJOT Spojna Tehnika d.o.o., Frane Lučića 23/3, 10090 Zagreb, Croatia +385 (0)1 349 8612
Version: 1.0
Page 16 of 23
CROSS
d16
3
4
5
2
1
CROSSFIX SYSTEM ELEMENTS
Nr Description
1
CF Wall bracket K1 - L
2
Façade anchor as per structural calculation
3
JT6-2/5-5,0X30 - VARIO
4
CF Vertical profile - Cladding support
5
Rivet - RAL
The informations contained in this drawings are generic in nature and supplied for guidance
only. System requirements for specific applications will need to be confirmed by EJOT or
other suitable professional.
© This drawing is copyright and should not be used or produced for any purpose other than for which it is supplied
GENERAL NOTE:
All fasteners will be designed according to
the structural calculations and architectural
project requirements.
SYSTEM EJOT CROSS-I-FIX
CF-S-101
WINDOW HEAD - TYPE B
without written consent from EJOT Spojna Tehnika d.o.o.
DETAIL 16
Produced by EJOT Spojna Tehnika d.o.o., Frane Lučića 23/3, 10090 Zagreb, Croatia +385 (0)1 349 8612
Version: 1.0
Page 17 of 23
CROSS
d17
2
1
3
4
5
CROSSFIX SYSTEM ELEMENTS
Nr Description
1
CF Wall bracket K1 - L
2
Façade anchor as per structural calculation
3
JT6-2/5-5,0X30 - VARIO
4
CF Vertical profile - Cladding support
5
Rivet - RAL
The informations contained in this drawings are generic in nature and supplied for guidance
only. System requirements for specific applications will need to be confirmed by EJOT or
other suitable professional.
© This drawing is copyright and should not be used or produced for any purpose other than for which it is supplied
GENERAL NOTE:
All fasteners will be designed according to
the structural calculations and architectural
project requirements.
SYSTEM EJOT CROSS-I-FIX
CF-S-101
WINDOW JAMB - TYPE C
without written consent from EJOT Spojn
a Tehnika d.o.o.
DETAIL 17
Produced by EJOT Spojna Tehnika d.o.o., Frane Lučića 23/3, 10090 Zagreb, Croatia +385 (0)1 349 8612
Version: 1.0
Page 18 of 23
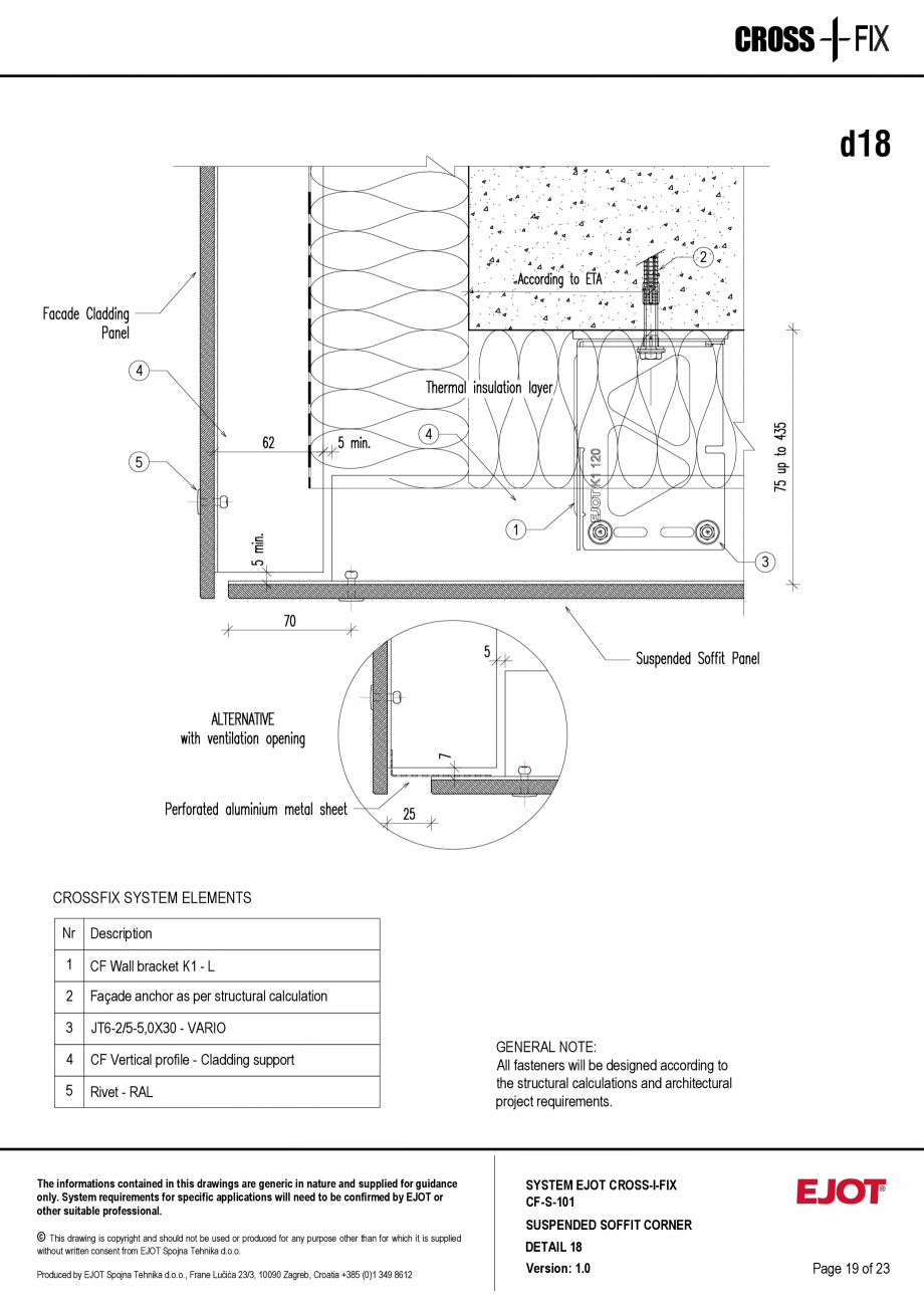
CROSS
d18
2
4
4
5
1
3
CROSSFIX SYSTEM ELEMENTS
Nr Description
1
CF Wall bracket K1 - L
2
Façade anchor as per structural calculation
3
JT6-2/5-5,0X30 - VARIO
4
CF Vertical profile - Cladding support
5
Rivet - RAL
The informations contained in this drawings are generic in nature and supplied for guidance
only. System requirements for specific applications will need to be confirmed by EJOT or
other suitable professional.
© This drawing is copyright and should not be used or produced for any purpose other than for which it is supplied
GENERAL NOTE:
All fasteners will be designed according to
the structural calculations and architectural
project requirements.
SYSTEM EJOT CROSS-I-FIX
CF-S-101
SUSPENDED SOFFIT CORNER
without written consent from EJOT Spojna Tehnika d.o.o.
DETAIL 18
Produced by EJOT Spojna Tehn
ika d.o.o., Frane Lučića 23/3, 10090 Zagreb, Croatia +385 (0)1 349 8612
Version: 1.0
Page 19 of 23
CROSS
d19
5
3
2
4
1
CROSSFIX SYSTEM ELEMENTS
Nr Description
1
CF Wall bracket K1 - L
2
Façade anchor as per structural calculation
3
JT6-2/5-5,0X30 - VARIO
4
CF Vertical profile - Cladding support
5
Rivet - RAL
The informations contained in this drawings are generic in nature and supplied for guidance
only. System requirements for specific applications will need to be confirmed by EJOT or
other suitable professional.
© This drawing is copyright and should not be used or produced for any purpose other than for which it is supplied
GENERAL NOTE:
All fasteners will be designed according to
the structural calculations and architectural
project requirements.
SYSTEM EJOT CROSS-I-FIX
CF-S-101
ROOF FLASHING
without written consent from EJOT Spojna Tehnika d.o.o.
DETAIL 19
Produced by EJOT Spojna Tehnika d.o.o., Frane Lučića 23/3, 10090 Zagreb, Croatia +385 (0)1 349
8612
Version: 1.0
Page 20 of 23
CROSS
d2.A
3
2
1
4
5
2
3
1
CROSSFIX SYSTEM ELEMENTS
Nr Description
1
CF Wall bracket K1 - L
2
Façade anchor as per structural calculation
3
JT6-2/5-5,0X30 - VARIO
4
CF Vertical profile - Cladding support
5
Rivet - RAL
The informations contained in this drawings are generic in nature and supplied for guidance
only. System requirements for specific applications will need to be confirmed by EJOT or
other suitable professional.
© This drawing is copyright and should not be used or produced for any purpose other than for which it is supplied
GENERAL NOTE:
All fasteners will be designed according to
the structural calculations and architectural
project requirements.
SYSTEM EJOT CROSS-I-FIX
CF-S-101
SUBFRAME DILATATION JOINT
without written consent from EJOT Spojna Tehnika d.o.o.
DETAIL 2A
Produced by EJOT Spojna Tehnika d.o.o., Frane Lučića 23/3, 10090 Zagreb, Croatia +385 (0)1 349 8612
Version: 1.0
Page 21 of 23
CROSS
d2.
B
5
4
3
2
1
CROSSFIX SYSTEM ELEMENTS
Nr Description
1
CF Wall bracket K1 - L
2
Façade anchor as per structural calculation
3
JT6-2/5-5,0X30 - VARIO
4
CF Vertical profile - Cladding support
5
EJOT Powerkey
The informations contained in this drawings are generic in nature and supplied for guidance
only. System requirements for specific applications will need to be confirmed by EJOT or
other suitable professional.
© This drawing is copyright and should not be used or produced for any purpose other than for which it is supplied
GENERAL NOTE:
All fasteners will be designed according to
the structural calculations and architectural
project requirements.
SYSTEM EJOT CROSS-I-FIX
CF-S-101
CF POWERKEY
without written consent from EJOT Spojna Tehnika d.o.o.
DETAIL 2B
Produced by EJOT Spojna Tehnika d.o.o., Frane Lučića 23/3, 10090 Zagreb, Croatia +385 (0)1 349 8612
Version: 1.0
Page 22 of 23
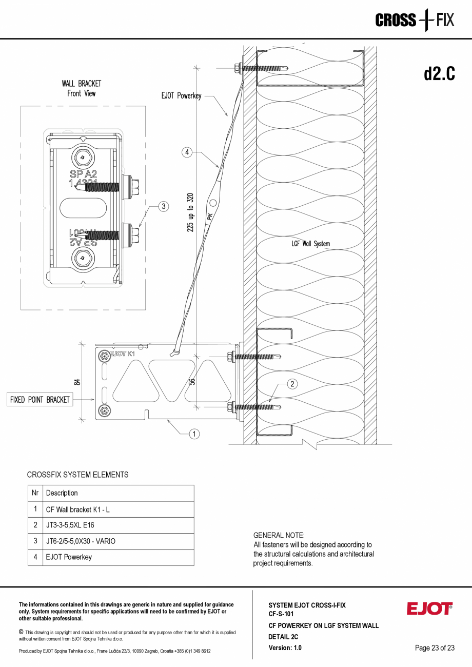
CROSS
d2.C
4
3
2
1
CROSSFIX SYSTEM ELEMENTS
Nr Description
1
CF Wall br
acket K1 - L
2
JT3-3-5,5XL E16
3
JT6-2/5-5,0X30 - VARIO
4
EJOT Powerkey
The informations contained in this drawings are generic in nature and supplied for guidance
only. System requirements for specific applications will need to be confirmed by EJOT or
other suitable professional.
© This drawing is copyright and should not be used or produced for any purpose other than for which it is supplied
GENERAL NOTE:
All fasteners will be designed according to
the structural calculations and architectural
project requirements.
SYSTEM EJOT CROSS-I-FIX
CF-S-101
CF POWERKEY ON LGF SYSTEM WALL
without written consent from EJOT Spojna Tehnika d.o.o.
DETAIL 2C
Produced by EJOT Spojna Tehnika d.o.o., Frane Lučića 23/3, 10090 Zagreb, Croatia +385 (0)1 349 8612
Version: 1.0
Page 23 of 23
Alte documentatii ale aceleasi game Vezi toate
Certificare produs 1 p | RO