Cazan de pardoseala in condensatie ELCO TRIGON® L PLUS
Tip documentatie: Instructiuni montaj, utilizare
Salvează pdf
Full screen
TRIGON L PLUS
Manual de utilizare
numai pentru tehnicieni autorizați
www.elco.net
9B.51.29.00 / 04.20
1
Cuprins
Reglementări privind siguranța Reglementări generale.................................................................................... 3
Utilizare prevăzută ......................................................................................... 3
Standarde și reglementări............................................................................... 3
Descrierea produsului Descriere funcțională – TRIGON L PLUS...................................................... 4-5
Schema circuitului hidraulic............................................................................. 6
Date tehnice / Date cu privire la produsele cu impact energetic (ERP).......... 7
Dimensiuni...................................................................................................... 8-9
Furnitură Versiunea standard/accesorii........................................
.................................. 10
Configurația în cascadă.................................................................................. 11
Exemple de configurații în cascadă................................................................ 12-14
Accesorii pentru configurații în cascadă.......................................................... 15-16
Instalare Transportarea cazanului.................................................................................. 18
Instalare/conexiuni.......................................................................................... 18
Sistemul hidraulic Pompe de circulație........................................................... 19
Configurație în cascadă pe podea, în linie...................................................... 20
Configurație în cascadă pe podea, spate în spate.......................................... 21
Racordarea cazanului.............................................................................
........ 22
Accesorii pentru configurații în cascadă.......................................................... 23
24
24
25
Sistemul de apă și hidraulic............................................................................ 26
26
27
Calitatea apei calde menajere (DHW)............................................................. 28
Vasul de expansiune....................................................................................... 28
Țeava de gaz.................................................................................................. 29
Racordul pentru condens................................................................................ 30
31
Țevile de aer/gaze de ardere.......................................................................... 32-35
Gura de evacuare colectivă a gazelor de ardere............................................ 36-37
Conexiunile electrice...................................................................................
.... 38-41
Multifuncțional................................................................................................. 42-44
Senzorii de temperatură.................................................................................. 45
Comenzile externe.......................................................................................... 46
Comenzile eBus2............................................................................................ 47
Schema de conexiuni...................................................................................... 48-49
Configurarea cazanului Configurarea cazanului................................................................................... 51
Utilizare Descrierea afișajului........................................................................................ 52
Descrierea afișajului și a tastaturii................................................................... 53
Structura meniului de utilizare..........................
............................................... 54
Schimbarea setărilor (nivel de expert)............................................................ 55
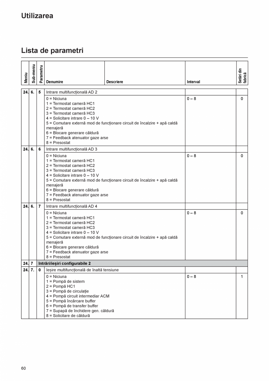
Lista de parametri........................................................................................... 56-71
Descrierea detaliată a parametrilor................................................................. 72
Funcția de termoreglare.................................................................................. 73
Programe de timp pentru încălzire.................................................................. 74
Comutarea automată a modului de vară/iarnă................................................ 75
Punerea în funcțiune Schimbarea limbii afișate pe ecran................................................................. 76
Schimbarea orei și a datei............................................................................... 77
Adaptarea parametrilor la sistemul de încălzire..........................
.................... 78-79
80
Inspectarea..................................................................................................... 81
Analiza gazelor de ardere............................................................................... 82-84
Sarcină maximă (pasul 1/3)............................................................................ 82
Sarcină redusă (pasul 2/3).............................................................................. 83
84
Întreținere Lucrările de scoatere din funcțiune și de întreținere....................................... 85
Intervalul de inspecție și de întreținere............................................................ 85
Detalii cu privire la întreținere.......................................................................... 86-90
Avertizarea cu privire la întreținere ................................................................ 90
Prezentarea generală a inspecției..................................
................................. 91
Prezentarea generală a întreținerii.................................................................. 92
Erori Codurile de erori și identificarea defecțiunilor................................................. 93-95
Resetarea unui cod de eroare......................................................................... 96
Vizualizarea istoricului codurilor de erori ........................................................ 97
Eliminarea și reciclarea................................................................................... 98
Anexă Rezistența senzorilor ...................................................................................... 99
Scheme standard............................................................................................ 100-103
Declarație de conformitate ........................................................................................................................ 104
2
Versiune:
de la sv 1.0
01
-2020
Reglementări privind siguranța
Reglementări generale
Utilizare prevăzută
Standarde și reglementări
Reglementări generale
Prezentul document conține informații importante cu privire la siguranță și la fiabilitate
pentru instalarea, punerea în funcțiune și
utilizarea cazanului TRIGON L PLUS. Toate
activitățile descrise trebuie să fie efectuate
numai de către tehnicieni autorizați.
Se pot utiliza numai componente originale
(OEM) de la producătorul cazanului; în caz
contrar, garanția noastră și dispozițiile noastre cu privire la garanție sunt anulate.
Utilizare prevăzută
TRIGON L PLUS este un cazan pe gaz cu
funcționare prin condensare și modulație,
care se poziționează pe podea și este livrat
împreună cu un arzător pe bază de combinare prealabilă. Temperatura țintă maximă a
cazanului este de 90 °C.
Standarde și reglementări
În timpul instalării și al utilizării cazanului
TRIGON L PLUS trebuie să se respecte
toate standardele apl
icabile (atât europene,
cât și naționale), inclusiv:
- reglementările locale în domeniul construcțiilor, în ceea ce privește instalarea
instalațiilor de încălzire și a sistemelor
de evacuare a gazelor reziduale;
- reglementările cu privire la racordarea
la rețeaua publică de alimentare cu
electricitate;
- reglementările operatorului local de
furnizare a gazului;
- standardele și reglementările cu privire
la echipamentele de siguranță pentru
sistemele de încălzire;
- legile/reglementările locale suplimentare
care pot fi aplicabile instalării și utilizării
sistemelor de încălzire.
- pentru reglementările aplicabile calității
apei de încălzire și a apei calde, consultați capitolul „Punerea în funcțiune”.
Cazanul TRIGON L PLUS este certificat
CE și respectă următoarele directive,
regulamente și standarde europene:
- 92/42/CEE
Randamentul sistemelor de încălzire a
apei
- 2016/426/UE
Regulamentul privind aparatele consumatoare de ga
z
- 2014/35/UE
Directiva privind joasa tensiune
- 2014/30/UE
Directiva privind CEM
- EN 15502-1
Cerințe pentru sistemele cu gaz – Partea 1: Cerințe și teste generale
- EN 15502-2
Cerințe pentru sistemele cu gaz – Par-
-
-
-
-
-
-
tea 2-1: Tipul C, precum B2, B3 și B5 cu
debit calorific nominal =< 1000 kW
EN 55014-1 (2011) CEM – Cerințe
pentru aparate electrocasnice, unelte
electrice și aparate similare – Partea 1:
Emisii
EN 55014-2 (2008) CEM – Cerințe
pentru aparate electrocasnice, unelte
electrice și aparate similare – Partea
2: Securitate – standard de familie de
produse
EN 61000-3-2 (2013) Compatibilitate
electromagnetică
(CEM) – Partea 3-2: Condiții cadru
– condiții cadru pentru fluctuațiile de
curent (consum de curent: 16 A/fază)
EN 61000-3-3 (2014) Compatibilitate
electromagnetică
(CEM) – Partea 3-3: Condiții cadru
pentru fluctuațiile de tensiune, pierderile
de tensiune și flickerul în rețelele publice
de alim
entare de joasă tensiune, pentru
echipamente cu curent nominal de 16 A/
fază care nu fac obiectul niciunui regulament special privind racordarea.
EN 60335-1 (2011) Aparate electrice
pentru uz casnic și scopuri similare – Securitate – Partea 1: Prescripții
generale
EN 60335-2-102 (2006?A1-2010)
Aparate electrice pentru uz casnic și
scopuri similare – Securitate – Partea
1: Prescripții particulare pentru aparate
cu gaz, cu petrol și cu combustibil solid
care au conexiuni electrice
Este necesar să se respecte normele
locale valabile în prezent.
Regatul Unit:
Standarde britanice
- BS 5440 - BS 6644 - BS 6891 BS 7074 - BS 8552 BS EN 60335 Pt1 - BS EN 12828
Documente ale IGEM
- IGE/UP/1&1A - IGE/UP/2 IGE/UP/10
Reglementări emise de Regatul Unit
- Legea din 1993 privind aerul curat
- Reglementările IEE
- Reglementările privind construcțiile
- Reglementările privind securitatea instalării și a utilizării aparatelor cu gaz.
Alte orientări
- ghidul BG29/2012 al
ICOM-BSRIA
- ghidurile BG50/2013 ale CIBSE
(B1, C, F)
- Sănătate, securitate și mediu – INDG
436
Germania:
- RAL-UZ 61/DIN 4702-8
- EnEV – Ordonanța privind economisirea
de energie
- TRGI (DVGW G600) – Orientări tehnice
pentru instalațiile cu gaz
- ATV DVWK-A251 – Scurgerea pentru
condens în sistemul de ape uzate
- TRF – Orientări tehnice pentru propan
- DVGW
Elveția:
- SVGW
- reglementări ale autorităților cantonale
(de exemplu, regulamente ale serviciului
de pompieri)
- Gebäude Klima Schweiz
- EKAS-Form, 1942: Orientări pentru
propan, Partea 2
- BAFU – Biroul federal pentru mediu
- SWKI – Asociația elvețiană a inginerilor
tehnologi din domeniul construcțiilor
Austria:
- ÖNORM H 5152
- ÖNORM M 7443 Părțile 1, 3, 5, 7
- ÖNORM M 7457
- ÖNORM H 5195-1
- ÖVGW – Orientările G1, G2, G41, G4
- reglementările locale
în domeniul construcțiilor și alte legi
trebuie respectate
Utilizarea incorectă poate cau
za deteriorarea componentelor cazanului și ale
sistemului și are potențialul de a provoca
pericole. Ar trebui să li se permită să facă
ajustări ale cazanului și ale echipamentului asociat numai persoanelor care au
cunoștințe și calificări corespunzătoare.
Echipamentul nu trebuie utilizat de copii
sau de persoane ale căror capacități fizice, mintale sau senzoriale sunt afectate
sau care nu au cunoștințe și experiență
suficiente, cu excepția cazului în care utilizarea de către aceste persoane se face
sub supraveghere sau în conformitate cu
instrucțiunile corespunzătoare primite.
Trebuie să se asigure faptul că copiii nu
se pot juca cu echipamentul.
3
Descrierea produsului
TRIGON L PLUS
24
15
11
20
10
19
HV
14
LV
13
12
APS
5
5
6
6
9
21
3
9
4
1
T1
T1a
T1a
T1
T2
T2
4
2
18
17
17
8
16
7
7
23
27
4
18
P1
G
3
C
A
R
26
26
22
Descrierea produsului
TRIGON L PLUS
Legendă:
1.
schimbătorul de căldură 1
(consultați
tabelul)
2.
schimbătorul de căldură 2
(consultați tabelul)
3.
electrodul de aprindere
4.
electrodul de detecție
5.
unitatea ventilatorului
6.
mixer
7.
vană de gaz
8.
aerisitor automat
9.
aerisitor manual
10. comutatorul principal 230 V
11. unitatea de control a cazanului
12. Interfata control HMI
13. bornă de conectare
14. bornă de conectare pentru comunicația
prin magistrală în cazul unei configurații în
cascadă
15. bornă de conectare pentru PC
16. colector de impurități
17. pompă de circulație
18. clapetă de sens
19. racord de gaze de ardere
20. admisie aer
21. țeavă colectivă de gaze de ardere
22. plăcuță de timbru
23. robinet scurgere
24. modul gestionare 3 zone (opțional)
25. adaptor concentric pentru racordul de aer/
gaze de ardere (opțional pentru Thision L
Plus
60-70-100-120-140)
26. racord pentru țeava de apă
1 1/2" (opțional)
27. racord pentru țeava de gaz
1" (opțional)
T1
T1a
T2
P1
APS
HV
LV
senzor de tur
senzor de tur secundar
se
nzor de retur
senzor de presiune a apei
presostat
alimentare cu electricitate de înaltă tensiune
alimentare cu electricitate de joasă tensiune
G
A
R
C
țeavă de gaz
țeavă de tur (CH)
țeavă de retur (CH)
scurgere condens
Tip cazan
Schimbător 1
Schimbător 2
60
iCon XL1
-
70
iCon XL1
-
100
iCon XL2
-
120
iCon XL1
iCon XL1
140
iCon XL1
iCon XL1
170
iCon XL2
iCon XL1
200
iCon XL2
iCon XL2
Descrierea produsului
TRIGON L PLUS este un cazan
pe gaz cu funcționare prin condensare și
modulație, echipat cu un arzător pe bază
de combinare prealabilă sau două astfel de
arzătoare, care se poziționează pe podea.
Are următoarele caracteristici:
- un interval de modulație larg care
garantează o durată de serviciu
îndelungată a arzătoarelor, reducând
totodată la minimum pierderile cauzate
de starea de așteptare, emisiile la
pornire și uzarea materialelor;
- temperatură a gazului de ardere mai
mică de 80 °C;
- adecvat și pentru camere ermeti
ce;
- panou de control cu toate elementele
operaționale;
- microprocesor incorporat, afisaj
multifuncțional;
- aprindere automată, cu monitorizarea
aprinderii și a ionizării;
- monitorizarea presiunii apei;
- pompă eficientă energetic;
- schimbător de căldură din oțel
inoxidabil, cu țevi tubulare netede;
- foarte ușor de întreținut;
- dotat cu control climatic prin senzorul
extern;
- controler pentru o configurație în
cascadă de maximum 8 cazane;
- comenzi externe (accesorii) prin pornire/
oprire, eBus sau 0-10 V;
- panouri moderne din metal, emailate.
Descriere funcțională
Unitatea de control modifică randamentul
încălzirii în conformitate cu cerințele
de încălzire actuale, schimbând
valorile implicite ale vitezei de rotație
a ventilatorului. În această privință,
temperatura fluxului (tur) din cazan este
măsurată în mod continuu prin intermediul
unui senzor. În cazul unei abateri a
temperaturii efective de la temperatura țintă,
unitatea de contro
l reacționează imediat
și ajustează viteza de rotație (RPM) a
ventilatorului și prin aceasta randamentul
cazanului prin intermediul armăturii pentru
gaz.
O abatere poate fi provocată de:
- o schimbare a valorii implicite a
temperaturii cazanului prin intermediul
unității de control;
- o schimbare a temperaturii din exterior;
- o solicitare de apă caldă menajeră;
- schimbarea curbei de încălzire.
Prin integrarea componentelor individuale
într-un sistem , dar și în intervalul de
control al echipamentului, este asigurată
funcționarea cazanului la cerințele reale ale
sistemului.
Furnitura
Cazanul, care a fost asamblat în fabrică și
este pregătit pentru utilizare, este livrat
într-un ambalaj de carton.
În furnitura cazanului TRIGON L PLUS
sunt incluse următoarele:
un cazan pe gaz, cu randament ridicat,
cu funcționare prin modulație, de la 16,5
până la 200 kW;
- o pompă eficientă energetic sau mai
multe;
- un controler pentru cazan/configurație în
cascad
.
Accesorii:
- garnituri de conectare pentru cazan;
- distribuitoare pentru 2 și 3 cazane;
- butelii de echilibrare hidraulică, până la
1.600 kW;
- schimbător de căldură cu plăci, până la
800 kW;
- izolații;
- cadre pentru cazane;
- garnituri de conectare pentru țeava de
evacuare;
- modul pentru controlul a 3 zone de
încălzire;
- traductor BUS.
Pentru informații detaliate, consultați
capitolul „Furnitură”.
5
Descrierea produsului
Schema circuitului hidraulic al TRIGON L PLUS
14
13
12
11
7
6
Arzătorul B
Arzătorul A
4
8
7
6
4
3
8
3
T1
T1a
T1
1
2
T2
T1a
T2
15
15
P1
10
10
9
5
R
Legendă:
1 schimbătorul de căldură 1 = arzătorul A
2 schimbătorul de căldură 2 = arzătorul B
3 aprindere
4 arzător ceramic
5 vană de gaz
6 ventilator
7 clapetă gaze arse
6
8
9
10
11
12
13
14
15
A
C
mixer
aerisitor automat
pompă de circulație
interfața control HMI
unitatea de control arzătoare
evacuare a gazelor arse
admisie aer
clapetă de sens
5
G
T1
T1a
T2
P1
G
A
R
C
senzor de tur
senzor de tur secundar
senzor de retur
senzor de presiune a apei
țeavă de gaz
țeavă de tur (CH)
țeavă de retur (CH)
scurgere condens
Descrierea produsului
Date tehnice
Date ERP
Tip de cazan TRIGON L PLUS
60
70
100
140
170
200
iConXL1
iConXL1
iConXL1
iConXL2
iConXL2
iConXL2
GB: II2H3P
Tip de schimbător de căldură
Output
120
CE0063CT3449
Autorizație
Categorie
G20
G31
iConXL1
iConXL1
iConXL2
iConXL1
iConXL1
Sarcină maximă 80/60 °C
kW
56,9
65,4
90,2
110,8
130,6
155,4
180,3
40/30 °C
kW
62,6
72,0
99,0
122,2
142,4
170,9
197,4
Sarcină redusă 80/60 °C
kW
16,4
16,4
19,7
16,4
16,6
16,5
21,5
40/30 °C
kW
16,7
16,6
20,9
16,8
16,7
17,0
21,3
Sarcină maximă 80/60 °C
kW
56,9
65,4
90,2
110,8
130,6
155,4
180,3
40/30 °C
kW
62,6
72,0
99,0
122,2
142,4
170,9
197,4
Sarcină redusă 80/60 °C
kW
26,0
26,0
37,5
26,1
26,3
26,1
40,8
40/30 °C
kW
26
,4
26,3
39,7
26,7
26,5
27,0
40,5
Sarcină maximă
kW
57,9
66,7
92,3
112,8
133,2
158,8
184,5
Sarcină redusă
kW
14,9
14,9
18,5
14,9
14,9
14,9
18,5
Sarcină maximă
kW
57,9
66,7
92,3
112,8
133,2
158,8
184,5
Sarcină redusă
kW
23,6
23,6
35,0
23,6
23,6
23,6
35,0
Sarcină maximă
m3/h
5,31
6,12
8,47
10,35
12,22
14,57
16,93
Sarcină redusă
m3/h
1,37
1,37
1,69
1,37
1,37
1,37
1,69
Sarcină maximă
m3/h
4,52
5,21
7,21
8,81
10,41
12,41
14,41
Sarcină redusă
m3/h
1,84
1,84
2,73
1,84
1,84
1,84
2,73
Sarcină maximă 80/60 °C
%
98,2
98,0
97,7
98,2
98,0
97,9
97,7
Sarcină maximă 40/30 °C
%
108,1
108,0
107,3
108,3
106,9
107,6
107,0
Sarcină redusă 80/60 °C
%
110,0
110,3
107,0
110,4
111,5
110,8
116,5
Sarcină redusă 40/30 °C
%
112,0
111,5
113,3
113,2
112,2
114,5
115,7
CO2 Gaze naturale
min./max
Vol. %
8,7/9,3
CO2 Propan
min./max
Vol. %
10,2/10,8
O2 Gaze naturale
min
./max
Vol. %
Input
G20
G31
Consum de gaz
G20
G31
Randament cazan
Tip de gaz
Gaze naturale sau propan
Clasa NOx
80/60 °C
Temperatura max. a gazelor de ardere
Curgerea masei fluidizate de gaze de ardere
5,3/4,3
6
6
6
6
6
6
6
62
61
71
65
68
72
73
287,36
g/s
90,18
103,89
143,76
175,69
207,46
247,33
Suprapresiune la ieșirea cazanului
max.
Pa
161
155
170
125
164
136
185
Volum de apă în circuitul de încălzire
max.
l
9,3
9,3
13,9
16,8
16,8
21,3
25,8
Greutate
kg
67
67
74
121
121
126
134
Presiunea fluxului de gaz – standard
mbari
20
mbari
17/25
430
Presiunea min./max. a fluxului de gaz
Presiunea de lucru a unității de încălzire
min./max
bari
Tensiune/frecvență
min./max
Volți/Hz
0,7/6
230/50
Consum max. de energie
W
145
155
250
260
375
428
Consum de energie cu sarcină parțială
W
53
53
103
55
55
51
51
Consum de energie în starea de așteptare
W
5
5
5
6,8
6,8
6,8
6,8
Lățime/adâ
ncime/înălțime
mm
Filet exterior al racordului de gaz
R
Rp 1"
1.050/530/595
Rp 1"
1.050/530/675
Rp 1"
Rp 1"
1.050/690/595
Rp 1"
Rp 1"
1.050/690/675
Rp 1"
Filet extern tur/retur
R
Rp 1-1/2"
Rp 1-1/2"
Rp 1-1/2"
Rp 1-1/2"
Rp 1-1/2"
Rp 1-1/2"
Rp 1-1/2"
130
Racord pentru gaze de ardere, PPS
Diametru
DN
100
100
100
100
100
130
Conexiune pentru aer din exterior
Intern
în mm
100
100
100
100
100
130
130
Racord pentru condens, PVC
Extern
în mm
35,5
35,5
35,5
35,5
35,5
35,5
35,5
60
70
100
120
140
170
200
176
Tip de cazan TRIGON L PLUS
Date cu privire la produsele cu impact energetic (ErP) în conformitate cu Regulamentul (UE) nr. 813/2013/UE
A
A
Pn (kW)
56
64
88
108
128
152
ηs (%)
93
93
93
93
93
93
93
Consum de energie anual
QHE (GJ)
174
199
272
335
394
471
543
Nivel de zgomot generat, în interior
LWA (dB)
62
65
60
67
70
67
63
La putere termică nominală și în regim de temperatură ridicată (80
/60 °C)
P4 (kW)
56,9
65,3
90,2
110,8
130,6
155,6
180,3
La 30% din puterea term. nom. și în reg. de temp. scăz. (36/30°C)
P1 (kW)
19,0
21,8
30,2
37,0
43,7
52,0
60,4
La putere term. nom. și în reg. temp. ridicată (GCV)
η4 (%)
88,4
88,2
88,0
88,4
88,2
88,2
88,0
La 30% din puterea term. nom. și în reg. de temp. scăz. (GCV)
η1 (%)
98,4
98,3
98,2
98,4
98,3
98,2
98,2
La sarcină maximă
elmax (kW)
0,126
0,137
0,120
0,314
0,418
0,464
0,450
La sarcină parțială
elmin (kW)
0,081
0,045
0,095
0,066
0,071
0,109
0,099
Psb (kW)
0,005
0,005
0,005
0,007
0,007
0,007
0,007
Pstby (kw)
0,086
0,086
0,075
0,079
0,079
0,100
0,141
Clasa de eficiență energetică pentru încălzirea sezonieră a camerelor
Putere termică nominală
Clasa de eficiență energetică pentru încălzirea sezonieră a camerelor
În starea de așteptare
Pierdere de căldură în starea de așteptare
7
Descrierea produsului
Dimensiunile motorulu
i simplu al cazanului TRIGON L PLUS
E
D
F
C1/C2
B
A A1
N
M
K
G r
H
Tip de cazan TRIGON L PLUS
A
100
1.100
1.100
mm
1.185
1.185
B
mm
530
530
C1/C2
Adâncimea cazanului
mm
595
675
A1
mm
60-70
Înălțimea cazanului
Înălțimea cazanului cu racord de
gaze de ardere
Lățimea cazanului
D
Conexiune gaze arse
mm
185
185
E
F
G
H
Admisia de aer paralel
Conexiune gaze arse
Racord de retur cazan
Racord de tur cazan
mm
mm
mm
mm
345
150
103
243
345
150
103
243
I
Racord pentru condens
mm
345
345
J
K
Racord pentru gaze
Racord pentru condens
mm
mm
430
15
430
15
L
Retur-tur-gaz cazan
mm
35
35
M
Retur-tur-gaz cazan
mm
130
130
N
Racord pentru condens
mm
190
190
8
a
I
c
g
L
J
Racordurile cazanului
Tip de cazan TRIGON L PLUS
Adaptor concentric al duzei pentru
gazele de ardere
Adaptor concentric al conectorului
pentru alimentarea cu aer
150*
150*
100*
100*
mm
2x100
2x100
Racord pentru gaze
1 1/4"
1 1/4"
Racord pentru gaze*
1"
**
1" **
35
35
c
Racord pentru condens
a
Racord de tur cazan
Racord de tur cazan**
r
100
mm
Racord paralel
g
mm
60-70
mm
2"
2"
1 1/2" **
1 1/2" **
Racord de retur cazan
Racord de retur cazan**
2"
2"
1 1/2" **
1 1/2" **
* cu adaptor concentric (opțional)
** cu set de reducții pentru racordul pentru apă/gaze (opțional)
Descrierea produsului
Dimensiunile motorului dublu al cazanului TRIGON L PLUS
D
E
F
C1/C2
B
A A1
N
M
K
G
Tip de cazan TRIGON L PLUS
A
mm
B
Înălțimea cazanului
Înălțimea cazanului cu racord de
gaze de ardere
Lățimea cazanului
C1/C2
A1
a
r
H
I
c
g
L
J
120-140
170-200
1.100
1.100
mm
1.185
1.185
mm
690
690
Adâncimea cazanului
mm
595
675
D
Conexiune gaze arse
mm
185
185
E
F
G
H
Admisia de aer paralel
Conexiune gaze arse
Racord de retur cazan
Racord de tur cazan
mm
mm
mm
mm
345
150
103
243
345
150
103
243
I
Racord pentru condens
mm
345
345
J
K
Racord pentru gaze
Racord pentru condens
m
m
mm
430
15
430
15
L
Retur-tur-gaz cazan
mm
35
35
M
Retur-tur-gaz cazan
mm
130
130
N
Racord pentru condens
mm
190
190
Racordurile cazanului
Tip de cazan TRIGON L PLUS
Adaptor concentric al duzei pentru
gazele de ardere
Adaptor concentric al conectorului
pentru alimentarea cu aer
150*
-
100*
-
mm
2x100
2x130
Racord pentru gaze
1 1/4"
1 1/4"
Racord pentru gaze*
1" **
1" **
35
35
c
Racord pentru condens
a
Racord de tur cazan
mm
Racord de tur cazan**
r
170-200
mm
Racord paralel
g
mm
120-140
Racord de retur cazan
Racord de retur cazan**
2"
2"
1 1/2" **
1 1/2" **
2"
2"
1 1/2" **
1 1/2" **
* cu adaptor concentric (opțional)
** cu set de reducții pentru racordul pentru apă/gaze (opțional)
9
Furnitura
Versiunea standard
Accesorii și configurația în cascadă
Versiunea standard
Furnitura unui cazan constă în următoarele componente:
Componente
Tip de ambalaj
Cazan complet asamblat și testat
1
În cutie de carton
Șină de d
escărcare
2
În ambalajul cazanului
Manual de instalare pentru TRIGON L PLUS
1
Etichetă cu privire la produsele cu impact energetic (ERP)
(numai pentru TRIGON L PLUS 60-70)
1
Țeavă pentru condens
1
Accesorii
Se pot comanda următoarele
accesorii:
- țevi de gaze de ardere;
- filtru de aer;
- componente hidraulice pentru
configurații în cascadă (consultați
paginile următoare);
- cadre pentru cazane (consultați
paginile următoare);
- set vană cu 3 căi;
- senzor de exterior, senzor boiler;
- senzor de tur T10;
- dispozitiv de control pentru 3 zone
de încălzire suplimentare;
- traductor Modbus/LON/BACKNET/
KNX;
- set de racorduri de apă/gaze;
- filtru de gaz;
- presostat minim gaz;
- set de conversie GPL;
- set de schimbătoare de căldură cu
plăci;
- set de butelii de echilibrare
hidraulică.
Componentele accesorii enumerate au
fost construite sau selectate special
pentru cazanul TRIGON L PLUS, ceea
ce înseamnă că sunt foarte ușor de
instalat (conectare ș
i utilizare). Puteți
să vă alcătuiți propriul sistem,
selectând combinația de accesorii
care se potrivește nevoilor
dumneavoastră. Pentru detalii și
prețuri, contactați ELCO.
10
În punga cu documente din ambalajul cazanului
În cazul unei configurații în cascadă,
accesoriile care necesită conexiuni
electrice ar trebui să fie conectate la
cazanul principal (singura excepție fiind
sonda boilerului și managerul de zone
care pot fi conectate și la alt cazan).
Configurația în cascadă
În principiu, este posibilă orice
combinație. Selecția poate include
modele cu puteri diferite, dacă acest
lucru corespunde cerințelor de
instalare. Includerea cazanelor cu
puteri similare ajută la împărțirea
timpului de funcționare al unui aparat
individual.
Capacitatea legăturilor hidraulice, a
țevii de gaz și a buteliei de echilibrare
este ajustată în raport cu necesarul
global selectat.
Atunci când se instalează un singur
cazan TRIGON L PLUS, se
recomandă cu fer
mitate utilizarea
unei butelii de echilibrare hidraulice.
Atunci când se instalează cazane
TRIGON L PLUS în cascadă:
este obligatorie utilizarea unei
butelii de echilibrare hidraulice care
să fie ajustată la necesarul de
referință; realizarea unei derivații
suplimentare nu este permisă;
colectorul de apă ar trebui să fie
realizat având dimensiunea DN65
sau DN100 (în conformitate cu
ieșirea configurației în cascadă).
ELCO furnizează versiuni de butelii
de echilibrare hidraulică care sunt
adecvate pentru un necesar maxim
de 1.600 kW.
Descrierea produsului
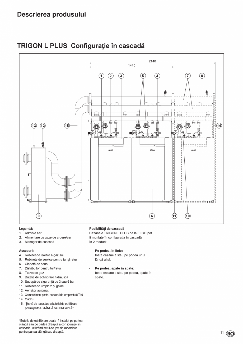
TRIGON L PLUS Configurație în cascadă
2140
1440
1
13
12
2
3
5
7
4
15
14
9
6
Legendă:
1. Admisie aer
2. Alimentare cu gaze de ardere/aer
3. Manager de cascadă
Posibilități de cascadă
Cazanele TRIGON L PLUS de la ELCO pot
fi montate în configurația în cascadă
în 2 moduri:
Accesorii:
4. Robinet de izolare a gazului
5. Robinete de service pentru tur și retur
6. Clapetă de sens
7. Distrib
uitor pentru tur/retur
8. Țeava de gaz
9. Butelie de echilibrare hidraulică
10. Supapă de siguranță de 3 sau 6 bari
11. Robinet de umplere și golire
12. Aerisitor automat
13. Compartiment pentru senzorul de temperatură T10
14. Cadru
15. Țeavă de racordare a buteliei de echilibrare
pentru partea STÂNGĂ sau DREAPTĂ*
-
Pe
podea, în linie:
toate cazanele stau pe podea unul
lângă altul.
-
Pe
podea, spate în spate:
toate cazanele stau pe podea, spate în
spate.
*Butelia de echilibrare poate fi instalat pe partea
stângă sau pe partea dreaptă a con igurației în
cascadă, utilizând setul de țevi de racordare
pentru partea stângă sau dreaptă.
8
11
10
11
Descrierea produsului
TRIGON L PLUS Exemple de configurații în cascadă pe podea, în linie
2 cazane TRIGON L PLUS pe podea, în linie
9
1139
1440
675
1440
675
715715
1099
1099
1904
1070
715
1070
3 cazane TRIGON L PLUS pe podea, în linie
5 cazane TRIGON L PLUS pe podea, în linie
715
3540
8 cazane TRIGON L PLUS pe podea, în linie
713
12
7488
2140
Descrierea produsului
TRIGON L PLUS Exemple de configurații în cascadă pe podea,
spate în spate
3 cazane TRIGON L PLUS pe podea, spate în spate
1437
675
1880
715
1440
1050
1904
715
4 cazane TRIGON L PLUS pe
podea, spate în spate
6 cazane TRIGON L PLUS pe podea, spate în spate
715
2140
715
2140
8 cazane TRIGON L PLUS pe podea, spate în spate
715
4686
715
4686
13
Descrierea produsului
TRIGON L PLUS Accesorii pentru configurații în cascadă
Coduri FG
14
Descriere
3905101
PRESOSTAT MINIM GAZ - CAZAN
3905102
PRESOSTAT MINIM GAZ - CASCADĂ
3905103
VENTILATOR + VANĂ DE GAZ
Simplu
Cazan
70
100
140
170
200
x
x
x
x
x
x
x
x
x
x
x
x
x
x
x
x
x
x
x
x
x
x
3905104
FILTRU DE GAZ 70-100-140
x
3905105
FILTRU DE GAZ 170-200
x
3905115
FILTRU DE AER Ø100
x
3905116
FILTRU DE AER Ø130
x
3905117
SET DE RACORDURI PENTRU APĂ/GAZE
x
x
x
3905118
Set GPL 7
0
x
3905119
Set GPL 100
x
x
3905120
REMOCON MODBUS-LON
x
x
x
3905121
REMOCON MODBUS-BACNET
x
x
x
x
x
x
x
x
Casc.
Pe podea
în linie
Casc.
Pe podea
Sp. în sp.
Interval de
putere
x
x
0-1600
x
x
x
x
x
x
x
x
0-1600
x
x
x
x
x
0-1600
3905122
REMOCON MODBUS
x
x
x
x
x
x
x
x
0-1600
3905123
REMOCON MODBUS-KNX
x
x
x
x
x
x
x
x
0-1600
3905124
MANAGER DE ZONE CLIP-IN
x
x
x
x
x
x
x
x
0-1600
3905045
Senzor de apă caldă menajeră pentru butelia de echilibrare
x
x
x
x
x
x
x
x
0-1600
3905127
Senzor de exterior
x
x
x
x
x
x
x
x
0-1600
3905128
Senzor de zone
x
x
x
x
x
x
x
x
0-1600
3905136
IZOLAȚIE COLECTOR DN65/DN100 (L=1cazan)
x
x
0-1600
3905137
AERISITOR PENTRU CONFIGURAȚII ÎN CASCADĂ
x
x
0-1600
3905138
FILTRU DE GAZ DN65
x
x
0-1600
3905026
SET DE FLANȘE DN65 PENTRU APĂ
x
x
0-465
3905027
SET DE FLANȘE DN100 PENTRU APĂ
x
x
0-1600
3905029
SET DE FLANȘE DN65 PENTRU
GAZ
x
x
0-1600
3905038
SET LASFLENS DN100 A/R + GAZ DN 65
x
x
0-1600
3905126
Flanșă de sudură DN150 pentru apă + DN65 pentru gaz
x
x
0-1600
3905150
KIT ÎNCĂLZIRE CAZAN
x
x
x
x
x
x
3905151
KIT ACM CAZAN
x
x
x
x
x
x
3905164
KIT CONEXIUNI ÎNCĂLZIRE, PARDOSEALĂ, FAȚĂ
3905165
KIT CONEXIUNI ÎNCĂLZIRE, PARDOSEALĂ, SPATE
3905166
KIT CONEXIUNI ACM, PARDOSEALĂ, SPATE
x
3905168
COLECTOR ȚEAVĂ DE TUR/RETUR ASM DN100 2 cazane în linie / 4
cazane spate în spate, pe podea
x
x
0-1600
3905169
COLECTOR ȚEAVĂ DE TUR/RETUR ASM DN100 3 cazane în linie / 6
cazane spate în spate, pe podea
x
x
0-1600
3905171
SET POSTERIOR SE pentru butelia de echilibrare pentru dT10-20K, pe
podea
x
3905172
SET POSTERIOR DE pentru butelia de echilibrare pentru dT10-20K, pe
podea
x
x
0-1600
x
x
0-1600
0-1600
x
x
x
x
3905173
Butelie de echilibrare pentru CAZAN dT10-20K
x
x
x
x
x
x
3905175
Butelie de echilibrare pentru CAZAN cu izolație d
T10-20K
x
x
x
x
x
x
3905034
Butelie de echilibrare DN100
x
x
0-960
3905036
Cot de 90° DN100
x
x
0-1600
3905174
Cot de 90° DN100 izolație
x
x
0-1600
3905176
Set DUO de butelii de echilibrare hidraulică DN100
x
x
960-1600
3905177
Butelie de echilibrare cu izolație DN100
x
x
0-960
3905178
Set de conectare cascadă pe podea, butelie de echilibrare, STÂNGA
x
x
0-1600
3905179
Set de conectare cascadă pe podea, butelie de echilibrare, DREAPTA
x
x
0-1600
3905180
SET SCHIMBĂTOR CĂLDURĂ POSTERIOR SE, dT10K
x
3905181
SET SCHIMBĂTOR CĂLDURĂ POSTERIOR DE, dT10K
x
3905182
SET SCHIMBĂTOR CĂLDURĂ POSTERIOR SE, dT15K
x
3905183
SET SCHIMBĂTOR CĂLDURĂ POSTERIOR DE, dT15K
x
3905184
SET SCHIMBĂTOR CĂLDURĂ POSTERIOR SE, dT20K
x
3905185
SET SCHIMBĂTOR CĂLDURĂ POSTERIOR DE, dT20K
x
3905186
SCHIMBĂTOR DE CĂLDURĂ CU PLĂCI SE PENTRU CAZAN dT10K
x
3905187
SCHIMBĂTOR DE CĂLDURĂ CU PLĂCI DE PENTRU CAZAN dT10K
x
390518
8
SCHIMBĂTOR DE CĂLDURĂ CU PLĂCI SE PENTRU CAZAN dT15K
x
3905189
SCHIMBĂTOR DE CĂLDURĂ CU PLĂCI DE PENTRU CAZAN dT15K
x
3905190
SCHIMBĂTOR DE CĂLDURĂ CU PLĂCI SE PENTRU CAZAN dT20K
x
3905191
SCHIMBĂTOR DE CĂLDURĂ CU PLĂCI DE PENTRU CAZAN dT20K
x
3905192
Set de racorduri CAZAN pentru schimbătorul de căldură cu plăci
x
x
x
x
x
x
x
x
x
x
x
x
x
x
x
x
x
x
x
x
x
x
x
x
x
x
x
x
x
x
x
x
x
x
x
x
x
3905193
Set de vase de expansiune CAZAN
x
x
x
x
x
3905194
SCHIMBĂTOR DE CĂLDURĂ CU PLĂCI PENTRU CONFIGURAȚIE ÎN
CASCADĂ dT10K
x
x
x
x
x
x
x
3905195
SCHIMBĂTOR DE CĂLDURĂ CU PLĂCI PENTRU CONFIGURAȚIE ÎN
CASCADĂ dT15K
x
x
x
x
x
x
x
3905196
SCHIMBĂTOR DE CĂLDURĂ CU PLĂCI PENTRU CONFIGURAȚIE ÎN
CASCADĂ dT20K
x
x
x
x
x
x
x
Descrierea produsului
TRIGON L PLUS Accesorii pentru configurații în cascadă
Coduri FG
Descriere
Simplu
Cazan
70
100
140
170
200
Casc.
Pe podea
în lin
ie
Casc.
Pe podea
Sp. în sp.
Interval de
putere
3905197
Set de racorduri PHE pentru configurație în CASCADĂ
x
x
0-1600
3905265
Set de racorduri PHE pentru configurație în CASCADĂ DN100
x
x
0-1600
3905198
KIT TUBULATURĂ GAZE ARSE ÎN LINIE, DN150
3905199
3905200
x
x
x
x
x
x
x
SET DE SIFOANE PENTRU GAZE ARSE DN150
x
x
x
x
x
x
x
KIT TUBULATURĂ GAZE ARSE ÎN LINIE, DN200
x
x
x
x
x
x
x
3905201
SET SIFON CONDENS DN200
x
x
x
x
x
x
x
3905202
KIT TUBULATURĂ CASCADĂ GAZE ARSE DN150, SPATE
ÎN SPATE
x
x
x
x
x
x
x
3905203
KIT TUBULATURĂ CASCADĂ GAZE ARSE DN200, SPATE
ÎN SPATE
x
x
x
x
x
x
x
3905204
ȚEAVĂ PENTRU GAZE ARSE, PP, 100 MM, L = 0,5 M
x
x
x
x
3905205
ȚEAVĂ PENTRU GAZE ARSE, PP, 100 MM, L = 1,0 M
x
x
x
x
3905206
COT PENTRU GAZE ARSE, PP, 90 GRADE, 100 MM
x
x
x
x
3905207
COT PENTRU GAZE ARSE, PP, 45 GRADE, 100 MM
x
x
x
x
3905208
COT PENTRU GAZE ARSE, PP, 90 GRADE, 100 MM
x
x
x
x
3905209
TEU PENTRU GAZE ARSE, PP, 100 MM + CAPAC
x
x
x
x
3905210
SIFON GAZE ARSE DN100
x
x
x
x
3905211
EXTENSIE PENTRU GAZE ARSE, PP, 100-150 MM
x
x
x
x
x
x
3905212
CAPAC COȘ DE FUM + GURĂ DE AERISIRE 100 MM
x
x
x
x
3905213
CONSOLĂ PERETE PENTRU GAZE ARSE, 100 MM
x
x
x
x
3905214
PANOU PERETE PENTRU GAZE ARSE, 100 MM
x
x
x
x
3905215
GRILĂ DE VENTILARE, 100 MM-200 MM
x
x
x
x
3905216
ȚEAVĂ PENTRU GAZE ARSE, PP, 150 MM, L = 0,5 M
x
x
x
x
x
x
x
3905217
ȚEAVĂ PENTRU GAZE ARSE, PP, 150 MM, L = 1,0 M
x
x
x
x
x
x
x
3905218
COT PENTRU GAZE ARSE, PP, 90 GRADE, 150 MM
x
x
x
x
x
x
x
3905219
COT PENTRU GAZE ARSE, PP, 45 GRADE, 150 MM
x
x
x
x
x
x
x
3905220
COT PENTRU GAZE ARSE, PP, 15 GRADE, 150 MM
x
x
x
x
x
x
x
3905221
EXTENSIE PENTRU GAZE ARSE, PP, 100-200 MM
x
x
x
3905222
EXTENSIE PENTRU GAZE ARSE, PP, 150-200 MM
x
x
x
x
3905223
TEU PENTRU GAZE ARSE, PP, 150 MM + CAPAC
x
x
x
3905224
CO
NSOLĂ PERETE PENTRU GAZE ARSE, 150 MM
x
x
x
3905225
PANOU PERETE PENTRU GAZE ARSE, 150 MM
x
x
3905226
COT DE SPRIJIN PENTRU GAZE ARSE, PP, 90 GRADE, 150 MM
x
3905227
BANDĂ DE SPRIJIN PENTRU GAZE ARSE
3905228
x
x
x
x
x
x
x
x
x
x
x
x
x
x
x
x
x
x
x
x
x
x
x
x
x
x
x
x
x
x
x
CONSOLĂ DE DISTANȚARE PENTRU GAZE ARSE 150 MM, 2 BUC.
x
x
x
x
x
x
x
3905229
CAPAC COȘ DE EVACUARE GAZE ARSE + GURĂ DE AERISIRE 150
MM
x
x
x
x
x
x
x
3905230
CAPAC COȘ DE EVACUARE GAZE ARSE, EXTERIOR 150 MM
x
x
x
x
x
x
x
3905231
TERMINAL DE ACOPERIȘ GAZE ARSE, PP, 150 MM
x
x
x
x
x
x
x
3905232
PROTECȚIE INTEMPERII PENTRU ACOPERIȘ PLAT, 150 MM
x
x
x
x
x
x
x
3905233
ȚEAVĂ PENTRU GAZE ARSE, PP, 200 MM, L = 0,5 M
x
x
x
x
x
x
x
3905234
ȚEAVĂ PENTRU GAZE ARSE, PP, 200 MM, L = 1,0 M
x
x
x
x
x
x
x
3905235
COT PENTRU GAZE ARSE, PP, 90 GRADE, 200 MM
x
x
x
x
x
x
x
3905236
COT PENTRU GAZE ARSE, PP, 45 GRADE
, 200 MM
x
x
x
x
x
x
x
3905237
COT PENTRU GAZE ARSE, PP, 15 GRADE, 200 MM
x
x
x
x
x
x
x
3905238
TEU PENTRU GAZE ARSE, PP, 200 MM + CAPAC
x
x
x
x
x
x
x
3905239
CONSOLĂ PERETE PENTRU GAZE ARSE, 200 MM
x
x
x
x
x
x
x
3905240
PANOU PERETE PENTRU GAZE ARSE, 200 MM
x
x
x
x
x
x
x
3905241
COT DE SPRIJIN PENTRU GAZE ARSE, PP, 90 GRADE, 200 MM
x
x
x
x
x
x
x
3905242
CONSOLĂ DE DISTANȚARE PENTRU GAZE ARSE 200 MM, 2 BUC.
x
x
x
x
x
x
x
3905243
CAPAC COȘ GAZE ARSE + GURĂ DE AERISIRE 200 MM
x
x
x
x
x
x
x
3905244
CAPAC COȘ GAZE ARSE, EXTERIOR 200 MM
x
x
x
x
x
x
x
3905245
TERMINAL DE ACOPERIȘ ARSE, PP, 200 MM
x
x
x
x
x
x
x
3905246
PROTECȚIE INTEMPERII PENTRU ACOPERIȘ PLAT, 200 MM
x
x
x
x
x
x
x
3905247
TERMINAL DE ACOPERIȘ GAZE ARSE, PP 100/150 MM
x
x
x
x
3905248
ȚEAVĂ PENTRU GAZE ARSE, PP, CONC., 100/150 MM, L = 0,5 M
x
x
x
x
3905249
ȚEAVĂ PENTRU GAZE ARSE, PP, CONC., 100/150 MM, L
= 1,0 M
x
x
x
x
3905250
COT PENTRU GAZE ARSE, PP, 90 GRADE, CONC., 100/150 MM
x
x
x
x
3905251
COT PENTRU GAZE ARSE, PP, 45 GRADE, CONC., 100/150 MM
x
x
x
x
3905252
COT DE SPRIJIN GAZE ARSE, PP, 90 GRADE, CONC., 100/150 MM
x
x
x
x
3905253
TEU PENTRU GAZE ARSE, PP, CONC., 100/150 MM + CAPAC
x
x
x
x
3905254
SET SIFON PENTRU GAZE ARSE, CONC., 100/150 MM
x
x
x
x
3905255
CAPAC COȘ GAZE ARSE + GURĂ DE AERISIRE, CONC.,
100/150 MM
x
x
x
x
3905256
CONSOLĂ DE PERETE PENTRU GAZE ARSE, CONC., 100/150 MM
x
x
x
x
3905257
PANOU DE PERETE PENTRU GAZE ARSE, CONC., 100/150 MM
x
x
x
x
15
Descrierea produsului
TRIGON L PLUS Accesorii pentru configurații în cascadă
Coduri FG
16
Descriere
Simplu
Cazan
70
100
140
170
200
Casc.
Pe podea
în linie
Casc.
Pe podea
Sp. în sp.
3905259
TERMINAL DE ACOPERIȘ GAZE ARSE, PP, CONC., 100/150
MM
x
x
x
x
3905260
ADAPTOR PENTRU GAZE ARSE PAR - CONC, 100/100-100/150
x
x
x
x
3905261
ADAPTO
R Ø100-110 PENTRU GAZE ARSE/AER
x
x
x
x
3905262
EXTENSOR PENTRU GAZE ARSE, 130-150 MM
x
x
x
x
x
3905263
EXTENSOR PENTRU GAZE ARSE, 130-200 MM
x
x
x
x
x
3905264
REDUCȚIE PENTRU GAZE ARSE 130-100 MM
x
x
x
Interval de
putere
Instalare
Transportarea cazanului
Cazanul TRIGON L PLUS este un sistem de
încălzire compact și complet echipat, care a
fost preconfigurat și testat în fabrică.
Dimensiunile ambalajului pentru toate aparatele sunt următoarele:
Lățime: 750 mm
Înălțime: 1.200 mm
Adâncime: 800 mm
Aceste dimensiuni fac posibilă transportarea
tuturor modelelor într-o singură bucată și
trecerea acestora prin deschizătura unei uși
normale.
Cazanul poate fi deplasat utilizând un
autoîncărcător cu furcă sau un cărucior de
ridicat și stivuit cu furcă. Instrucțiunile de
despachetare sunt imprimate pe cutia de
carton. Urmați pașii recomandați.
Dezasamblarea panourilor
Panourile carcasei aparatului pot fi scoase
cu ușurință și ace
st lucru este recomandat
în timp ce se instalează aparatul. Acest
lucru limitează potențialul de deteriorare.
2
1
Măsuri de precauție pentru manipulare și
transportare:
- Purtați îmbrăcăminte de protecție și
mănuși de protecție pentru a vă proteja
de orice margine tăioasă/ascuțită.
- Cazanul ar trebui să fie manipulat
împreună cu paletul aferent cu ajutorul
unui autoîncărcător cu furcă, iar pentru
poziționarea finală se pot folosi rotilele.
Panourile ar trebui să fie atașate și fixate
cu șurubul furnizat, după asamblarea cazanului sau după lucrările de întreținere.
3
A
B
C
4
5
4x
6
2x
4x
7
1. Îndepărtați folia din plastic.
2. Deschideți cele 4 clapete superioare și scoateți documentația și țeava pentru
condens.
3. Scoateți inserțiile de carton, apoi cutia de carton.
4. Scoateți cele 4 șuruburi din partea inferioară a cazanului și din șinele de
rostogolire de pe palet.
5. Poziționați și fixați șina de ro
stogolire pe palet, împingeți cazanul înainte de-a
lungul șinei pe sol.
6. Deplasați cazanul la racord sau la suportul configurației în cascadă.
7. Scoateți capacul din plastic pentru apă și gaz, conectați țeava pentru condens
și respectați manualul de instalare.
8. După ce cazanul este racordat, apăsați cele patru frâne pentru a-l bloca.
17
Instalare
Instalare Conexiuni
100 mm
Tavan
Ceiling
5
6
10 mm
50 - 70 mm
10 mm
Țeavă
de gaze
de
Individual
flue:
ardere
individuală:
min. 500mm
min.
500 mm flue:
Țeavă
Collective
de
gaze de ardere
dependant
on
colectivă:
în funcție
the selected
de
sistemul
de
flue system.tiraj
selectat.
Please contact
Contactați
furnizorul
the supplier
1000 mm
4
1.
2.
3.
4.
5.
6.
Locul de instalare pentru cazanele CH
trebuie să fie într-un spațiu fără risc la
îngheț. NU este necesar să se asigure o
gură de aerisire specială, cu condiția ca, în
camera sau în spațiul interior în care se
instalează cazanul,
să se utilizeze o țeavă
dublă sau un sistem de tiraj concentric. De
asemenea, în mod normal nu este
obligatorie o răcire generală ca urmare a
pierderii foarte mici de căldură de la
schimbătorul de căldură și de la carcasa
cazanului.
Podeaua ar trebui să fie orizontală și plană
și să aibă o capacitate totală de încărcare
suficientă pentru instalația completă
(umplută). Rotilele pot fi ajustate +/-10 mm
pentru a compensa o eventuală
neuniformitate a podelei.
Cazanele TRIGON L PLUS de la ELCO pot
fi montate în configurația în cascadă
în 2 moduri:
18
-
-
Pe podea, în linie
toate cazanele stau unul lângă altul pe
un cadru pe podea.
Consultați pagina 21.
Pe podea, spate în spate.
toate cazanele stau spate în spate pe
un cadru pe podea.
Consultați pagina 22.
Orientări generale:
Acordați atenție distanței minime
obligatorii dintre cazane, pereți și
tavan pentru instalarea și scoaterea
carcasei (consultați mai sus) în vederea
operații
lor de punere în funcțiune, de
service și de instalare a sistemului de
tiraj (consultați capitolul 7).
Dacă ați ales să construiți partea hidraulică
pe cont propriu, ELCO vă recomandă
să utilizați pentru fiecare cazan „setul de
conectare a cazanului TRIGON L PLUS în
calitate de cazan simplu”.
3
2
1
Racord de retur cazan
Racord de tur cazan
Drenare condens
Gaz
Orificiu de evacuare a gazelor de ardere
Admisie aer
Instalare
Sistemul hidraulic Pompe de circulație
Diagrama înălțimii de pompare, tip de cazan 120/140
Presiune reziduală – (mh2O)
Presiune reziduală – (mh2O)
Diagrama înălțimii de pompare, tip de cazan 60/70
Debit celulă termică (m3/h)
Debit celulă termică (m3/h)
Presiune reziduală – 90 %
Presiune reziduală – 90 %
Diagrama înălțimii de pompare, tip de cazan 170/200
Presiune reziduală – (mh2O)
Presiune reziduală – (mh2O)
Diagrama înălțimii de pompare, tip de cazan 100
Debit celulă termică (m3/h)
Debit cel
ulă termică (m3/h)
Presiune reziduală – 90 %
Tip cazan
Tip de pompă
60
70
100
120
140
170
200
1 x WILO PARA 8
1 x WILO PARA 8
1 x WILO PARA 9
2 x WILO PARA 8
2 x WILO PARA 8
2 x WILO PARA 9
2 x WILO PARA 9
Presiune reziduală – 90 %
Debit agent termic (m3/h - l/min)
ΔT20 (K)
2,44 - 40,7
2,81 - 46,8
3,90 - 65,0
4,76 - 79,3
5,62 - 93,7
6,70 - 111,7
7,79 - 129,8
ΔT25 (K)
1,95 - 32,6
2,25 - 37,5
3,12 - 51,9
3,81 - 63,5
4,50 - 74,9
5,36 - 89,4
6,23 - 103,8
Înălțime de pompare
(mH2O - mbar - kPa)
ΔT20 (K)
3,0 - 296 - 29,6
1,5 - 148 - 14,8
0,0 - 0 - 0,0
2,7 - 262 - 26,2
0,7 - 65 - 6,5
0,8 - 80 - 8,0
0,0 - 0 - 0,0
ΔT25 (K)
5,1 - 495 -49,5
3,8 - 373 - 37,3
1,7 - 167 - 16,7
4,8 - 475 - 47,5
3,3 - 321 - 32,1
3,5 - 344 - 34,4
1,6 - 157 - 15,7
Pentru instalarea unui singur cazan, se recomandă cu fermitate conectarea la o butelie de echilibrare și la o pompă
de circuit secundară.
Pentru instalarea unor cazane în cascadă, este obligatorie conectarea la o butelie de
echilibrare și la o pompă de
circuit secundară.
Temperatură diferențială nominală
Pompa de circulație WILO PARA 8 sau 9, care este instalată în fabrică pentru cazan, funcționează continuu și adaptează
viteza pompei la necesarul de căldură (ΔT).
Unitatea electronică de control al încălzirii ATG continuă să controleze puterea cazanului astfel încât valoarea de referință a
temperaturii acestuia să fie menținută.
Dispozitivul de control al vitezei pompei controlează viteza pompei cazanului într-un mod în care temperatura diferențială
nominală parametrizată să fie păstrată în țeava de retur și în țeava de tur ale cazanului.
Dacă valoarea diferențială efectivă este mai mare decât valoarea diferențială nominală, viteza pompei este mărită; în caz
contrar, aceasta este micșorată.
19
Instalare
Configurație în cascadă pe podea, în linie
1
6-7-8
2
3
4
5
9
Asamblare cu suport pe podea
1. Poziționați traversa inferioară pe
sol
în locul dorit.
2. Fixați consolele inferioare pe
traversa inferioară cu ajutorul
buloanelor M8 furnizate, al șaibelor
elastice și al piuliței.
3. Fixați coloanele verticale pe
consola inferioară cu ajutorul
buloanelor M8 furnizate, al șaibelor
elastice și al piuliței.
4. Fixați consolele superioare pe
traversa superioară cu ajutorul
buloanelor M8 furnizate, al șaibelor
elastice și al piuliței.
5. Fixați traversa superioară pe
consolele superioare cu ajutorul
buloanelor M8 furnizate, al șaibelor
elastice și al piuliței.
Atenție: după poziționarea corectă
și finală, suportul de poziționare pe
podea trebuie să fie fixat pe sol.
20
Asamblarea colectorului
6. Poziționați colectoarele de apă
pentru tur în nișa superioară.
7. Poziționați colectoarele de apă
pentru retur în nișa din mijloc.
Cuplați țevile de apă utilizând
garniturile DN100, buloanele M16,
șaibele elastice și piulițele furnizate.
8. Poziționați colectoarele de
gaz
în nișa inferioară. Cuplați țevile
de gaz utilizând garniturile DN65,
buloanele M12, șaibele elastice și
piulițele furnizate.
Poziționarea cazanului
9. Deplasați cazanul în față pe
suportul de poziționare pe podea.
Odată racordat cu ajutorul setului
de conectare special, apăsați
cele patru frâne pentru blocarea
cazanului.
Instalare
Configurație în cascadă suplimentară, pe podea
1
5
inferioară și cea superioară.
4. Fixați coloana verticală preasamblată cu ajutorul traversei
inferioare.
5. Fixați traversa superioară pe
consolele superioare cu ajutorul
buloanelor M8 furnizate, al șaibelor
elastice și al piuliței.
Atenție: după poziționarea corectă
și finală, suportul de poziționare pe
podea trebuie să fie fixat pe sol.
2
3
4
6-7-8
9
Asamblarea colectorului
6. Poziționați colectoarele de apă
pentru tur în nișa superioară.
7. Poziționați colectoarele de apă
pentru retur în nișa din mijloc.
Cuplați țevile de ap
ă utilizând
garniturile DN100, buloanele M16,
șaibele elastice și piulițele furnizate.
8. Poziționați colectoarele de gaz
în nișa inferioară. Cuplați țevile
de gaz utilizând garniturile DN65,
buloanele M12, șaibele elastice și
piulițele furnizate.
Poziționarea cazanului
9. Deplasați cazanul în față pe
suportul de poziționare pe podea.
Odată racordat cu ajutorul setului
de conectare special, apăsați
cele patru frâne pentru blocarea
cazanului.
Asamblare cu suport pe podea
1. Poziționați traversa inferioară
suplimentară pe sol, lângă
configurația în cascadă existentă.
Fixați consolele inferioare pe
traversa inferioară cu ajutorul
buloanelor M8 furnizate, al șaibelor
elastice și al piuliței.
2. Fixați traversa inferioară
suplimentară și consola superioară
cu ajutorul coloanelor verticale
utilizând buloanele M8 furnizate,
șaibele elastice și piulița.
3. Pre-asamblați (pe cealaltă parte)
coloana verticală cu traversa
21
Instal
are
Racordarea cazanului
1
1-2. Păstrați capacul pe conexiunile care nu
se utilizează pe distribuitoarele pentru
țevi:
Tur și retur: capac orb de 2" cu garnitură
(2 bucăți/cazan).
Gaz: capac orb de 1¼” cu garnitură (1
bucată/cazan).
Pentru conexiuni, utilizați garniturile
furnizate. Verificați toate conexiunile
pentru a detecta scurgerile și
etanșeitatea la gaze.
2
3. Conectați robinetele la distribuitoarele
pentru țevi:
Tur: țevi de 45 mm cu cuplaj plat de 2”,
robinet de izolare cu cuplaj plat de 2” și
mâner roșu.
Retur: țevi de 45 mm cu cuplaj plat
de 2”, piesă de legătură încrucișată
cu garnitură plată de 2”, cu robinet
de umplere/evacuare și cu robinet de
izolare cu mâner albastru.
Cazanul este furnizat cu o supapă de
siguranță de 3 și 6 bari.
ELCO recomandă montarea supapei de
siguranță de 6 bari ca urmare a setărilor
de control care opresc cazanul la 6 bari.
Gaz: țeavă de gaz scurtă de 28 mm
cu etanșare
plată de 1¼” și garnitură
de compresie de 28 mm cu robinet de
izolare a gazului de 1¼”.
3
Se poate evacua apă de testare poluată
atunci când se scot capacele de plastic
de pe turul și returul cazanului.
Pentru conexiuni, utilizați garniturile
furnizate. Verificați toate conexiunile
pentru a detecta scurgerile și
etanșeitatea la gaze.
4
22
5
4. Conectați țevile la cazan: Tur: țevi de
45 mm cu cuplaj plat de 2”.
Retur: țevi de 45 mm cu cuplaj plat de
2”.
Gaz: țeavă de 28 mm cu cuplaj plat de
1¼”.
5. Conectați țevile la supapele pentru tur:
țevi de 45 mm cu cuplaj plat de 2”.
Retur: țevi de 45 mm cu cuplaj plat de
2”.
Gaz: țeavă de 28 mm cu cuplaj plat de
1¼”.
Pentru conexiuni, utilizați garniturile
furnizate. Verificați toate conexiunile
pentru a detecta scurgerile și
etanșeitatea la gaze.
Instalare
Accesorii pentru configurații în cascadă
1
2
3
Distribuitoarele pentru țevi sunt disponibile
în dimensiunea
DN100 și sunt conectate
unul la altul prin intermediul cuplajelor cu
flanșe și al garniturilor, al buloanelor M12
sau M16x55, al șaibelor elastice și al piulițelor. Apoi, la acesta se pot conecta distribuitorul cu volum mic de pierderi și instalația
completă.
1.2.3. Butelie de echilibrare
Sunt disponibile 3 butelii de echilibrare
hidraulică:
- Butelia de echilibrare pentru 1 TRIGON L
PLUS până la max. 200 kW, furnizat
împreună cu o aeristor automat, un robinet
de golire și un compartiment pentru
senzorul de temperatură T10. Conexiunile
cazanului sunt 2x 2”, iar conexiunile
instalației sunt 2x 2".
Butelie de echilibrare TREBUIE să fie
conectat între cazan(e) și pompele
sistemului.
7
7. Flanșe de mascare
Capetele distribuitoarelor pentru țevi trebuie
să fie prevăzute cu flanșe de mascare.
Flanșele de mascare sunt furnizate, în mod
standard, cu componente complet configurate, inclusiv buloane, șaibe elastice și
garnituri.
- Set de flanșe de mascare DN
100 tur/retur,
2 bucăți
8
- Butelie de echilibrare DN100 până la
1.000 kW
- Butelie de echilibrare DN100 DUO până la
1.600 kW. Distribuitorul cu volum mic de
pierderi este livrat, în mod standard,
împreună cu picioa-re reglabile, cu un
aerisitor automat, cu un robinet de golire, cu
un compartiment pentru senzorul de
temperatură T10, cu buloane M12 sau
4
5
6
M16x55,
cu șaibe elastice și cu piulițe.
4. Țeava de racordare a distribuitorului
pentru țevi
Țevile de racordare pentru distribuitoarele
pentru țevi sunt disponibile cu dimensiunea
DN100 în două versiuni, pentru racordarea
pe partea STÂNGĂ sau pe partea DREAPTĂ a configurației în cascadă. Acestea sunt
livrate în mod standard cu buloane M16x55,
cu șaibe elastice, cu piulițe și cu etanșări.
5. Senzorul de temperatură T10 pentru
tur
Fiecare sistem cu 1 cazan THISION L PLUS
sau mai multe trebuie să fie prevăzut cu
un senzor de temperatură T10 pentru tur și
trebuie să fie conectat la cazanul p
rincipal
(MTS1-T10). Senzorul de tur trebuie să fie
poziționat în compartimentul distribuitorului
cu volum mic de pierderi.
8. Flanșe cu sudură
La cerere, sunt disponibile flanșe cu sudură
pentru a conecta țevile de încălzire centrală
(CH) la partea secundară a distribuitorului
cu volum mic de pierderi și pentru a conecta
țeava de gaz.
- Set de flanșe cu sudură DN100 tur/retur, 2
bucăți + DN65 gaz, 1 bucată.
Pentru prezentarea generală completă
a accesoriilor disponibile, consultați
paragraful „Accesorii pentru configurații
în cascadă TRIGON L PLUS”.
Componentele obligatorii care nu sunt furnizate de ELCO:
- pompa instalației;
- sistemul de evacuare a condensului;
- filtrul pentru apa din instalație;
- separatorul de aer și impurități;
- alimentarea cu apă caldă;
- supapa de reglaj;
- vasele de expansiune.
6. Set de coturi
Distribuitorul cu volum mic de pierderi poate
fi poziționat la un unghi de 90°. În acest
scop se poate folosi un set de c
oturi.
- Set de coturi DN100 pentru tur/retur
23
Instalare
Accesorii
Cazan simplu, extern
1 cazan TRIGON L PLUS
Articole necesare
133
Butelie de echilibrare (inclus)
133
Consolă de fixare (inclusă)
Gură de aerisire (inclusă)
907
907
214
214
1. Butelie de echilibrare pentru 1 cazan
1. Izolație butelie de echilibrare
1. Set de conectare a cazanului pentru un
singur cazan
1. Senzor de tur comun (T10) 10 kOhm
G 3/8"
G 1/2"
G 2" (4x)
3,0
1779
1779
19
Filet exterior
2”
2"outer thread
19
44
(48)
660
440
440
904
440
332
904
1100
1100
0,5
332
19
2"outerexterior
thread
Filet
2”
G 1/2"
216
0,5
Accesorii
Set posterior cazan simplu
Descrierea racordului
A - tur
B - retur
C - gaz
D - condens
35
690 35
35
35
690
35
690
35
Set posterior cazan simplu
Acest accesoriu este o soluție de set posterior de tip
„conectare și utilizare” pentru cazanul TRIGON L PLUS.
Este disponibil în următoarele versiuni:
- Butelie de echilibrare dT10-20k (pentru 70
– 100 kW);
- Butelie de echilibrare dT10-20k (pentru 120 – 200 kW);
314
A
314
R 2"
- SCH. DE CĂLDURĂ cu plăci dT10k (pentru 70 – 100 kW);
- SCH. DE CĂLDURĂ cu plăci dT10k (pentru 120 – 200 kW);
- SCH. DE CĂLDURĂ cu plăci dT15k (pentru 70 – 100 kW);
- SCH. DE CĂLDURĂ cu plăci dT15k (pentru 120 – 200 kW);
- SCH. DE CĂLDURĂ cu plăci dT20k (pentru 70 – 100 kW);
- SCH. DE CĂLDURĂ cu plăci dT20k (pentru 120 – 200 kW);
1007
A
R 2"
1007
314
24
99
99
B
B
C
C
1105
D
198
1027
198
99 R 1 1/4"
R 1 1/4"
R 1 1/4"
R 2"
290
R 2"
198
290
290
1027
1027
R 2"
1105
R 2"
1105
1007
Instalare
Accesorii pentru configurații în cascadă
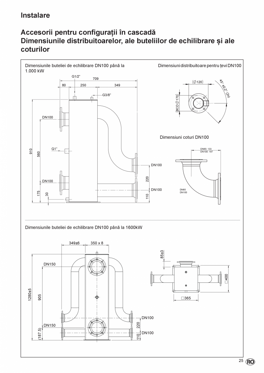
Dimensiunile distribuitoarelor, ale buteliilor de echilibrare și ale
coturilor
Dimensiunile buteliei de echilibrare DN100 până la
1.000 kW
G1/2”
709
120
349
2°
±0,
250
45°
80
Dimensiuni distribuitoare pentru țevi DN100
BCD
)
170
(2x
G3/8”
DN100
G1”
DN65: 133
DN100: 197
560
910
D
imensiuni coturi DN100
220
DN100
DN100
110
30
175
DN100
DN65
DN100
Dimensiunile buteliei de echilibrare DN100 până la 1600kW
350 x 8
85±3
349±6
905
365
110
DN150
220
DN100
(187.5)
1280±5
400
DN150
DN100
25
Instalare
Sistemul hidraulic și de alimentare cu apă
Calitatea agentului termic
Umpleți instalația cu apă potabilă.
În majoritatea cazurilor, o instalație de
încălzire poate fi umplută cu apă în
conformitate cu reglementările naționale
aplicabile, nefiind necesară o tratare a apei.
Pentru a evita problemele, calitatea apei de
umplere trebuie să respecte cerințele din
Tabelul 1.
Dacă apa de umplere nu respectă aceste
cerințe, se recomandă tratarea apei în mod
corespunzător (consultați VDI2035).
Pretențiile legate de garanție vor fi nule
dacă sistemul nu a fost spălat în timpul
instalării sau în cazul în care calitatea apei
de umplere nu respectă cerințele ELCO
(consultați Tabelul 1).
În cazul în care există neclarită
i sau
abateri, mai întâi contactați întotdeauna
ELCO. Garanția este anulată dacă se
realizează modificări fără acordul/autorizația
prealabil(ă) din partea ELCO.
Instalare:
- Utilizarea de apă freatică, apă
demineralizată și apă distilată nu este
permisă (o explicație a acestor termeni
poate fi găsită pe pagina următoare).
- În cazul în care calitatea apei potabile
se încadrează în limitele valorilor din
Tabelul 1, se poate trece la instalarea
sistemului și la spălarea echipamentului.
-
-
-
-
-
Reziduurile de produse corozive
(magnetit), materialele de asamblare,
lichidul pentru răcire și ungere și alte
produse nedorite trebuie să fie eliminate
în timpul operației de spălare.
O altă posibilitate de a elimina
impuritățile constă în utilizarea unui
filtru. Tipul de filtru trebuie să fie în
conformitate cu cerințele specifice
sistemului și cu tipul de contaminare.
ELCO recomandă utilizarea unui filtru.
În acest caz, trebuie să se as
igure faptul
că se ține cont de întregul sistem de
țevi.
Instalația de încălzire trebuie să fie
aerisită în mod corespunzător înainte să
fie pusă în funcțiune. Consultați în
această privință capitolul „Punerea în
funcțiune”.
Dacă este necesară suplimentarea
cantității de apă (> 5 % pe an), atunci
există o problemă la sistem, care trebuie
remediată de un tehnician certificat.
Adăugarea periodică de apă proaspătă
și implicit oxigen poate însemna
depuneri suplimentare de calcar.
Dacă se utilizează un agent anti-îngheț
sau alți aditivi, atunci trebuie
să se verifice cu regularitate pentru a
asigura că apa de umplere are calitatea
prevăzută de cerințele producătorului.
Parametri
Valoare
Tip de apă
Apă potabilă
Apă dedurizată
pH
6,0-8,5
Conductivitate (la 20 °C în µS/cm)
Max. 2.500
Fier (ppm)
Max. 0,2
-
Inhibitorii pot fi utilizați numai după o
consultare prealabilă cu ELCO.
Utilizarea unor astfel de agenți trebuie
să facă obiectul unui protocol.
Încălzirea prin pardoseală
Atunci când se conectează un sistem de
încălzire prin pardoseală care folosește țevi
din plastic, trebuie să se asigure faptul că
acesta respectă standardul DIN 4726-4729.
Dacă sistemul nu îndeplinește standardul,
trebuie să se prevadă o separare a
sistemului.
Dacă reglementările cu privire la țevile
din plastic nu sunt respectate, atunci
pretențiile legate de garanție sunt nule
(consultați condițiile de garanție).
Duritate (°dH/°fH)
Volumul/randamentul instalației 1-12
< 20 l/kW
Volumul/randamentul instalației 1-7
>= 20 l/kW
Oxigen
Difuzia de oxigen nu este permisă în timpul operațiunilor.
Anual se poate adăuga max. 5 % din volumele sistemului.
Inhibitori de coroziune
Consultați capitolul „Aditivii pentru agentul termic (inhibitori)”
Agenți de creștere sau micșorare a pH-ului
Consultați capitolul „Aditivii pentru agentul termic”
Aditivi anti-îngheț
Consultați capit
olul „Aditivii pentru agentul termic”
Alți aditivi chimici
Consultați capitolul „Aditivii pentru agentul termic”
Substanțe solide
Nu sunt permise
Reziduurile din apa de încălzire, care nu sunt componente
ale apei potabile
Nu sunt permise
Tabelul 1
26
Instalare
Aditivii pentru agentul termic
Aditivii pentru apa de sistem, care sunt
enumerați în tabel, au fost aprobați
de producător și țin seama de valorile
dozelor indicate.
În cazul unei utilizări greșite și dacă
se depășesc valorile maxime ale
concentrațiilor, atunci se anulează
garanția pentru toate componentele
care intră în contact cu apa de
încălzire.
Tip de aditiv
Furnizor și specificații
Concentrație maximă
Aplicație
Inhibitori de coroziune
Sentinel X100 – Agent de protecție
rezistent la coroziune pentru sisteme de încălzire
Certificat Kiwa
1 – 2 l/100 litri de conținut de
apă pentru încălzire
Soluție apoasă de agenți organici și anorganici care împiedică
f
ormarea coroziunii și a ruginii
Fernox F1 Protector – Agent de protecție rezistent la coroziune pentru
sisteme de încălzire
Certificat Kiwa KIWA-ATA K62581,
certificat Belgaqua Cat. III
Canistră de 500 ml sau 265 ml
per 100 litri conținut de apă
pentru încălzire
Previne formarea coroziunii și a
ruginii
Kalsbeek
Monopropilenglicol / propan-1,2-diol
+ inhibitori
AKWA-Colpro KIWA-ATA Nr. 2104/1
50 % w/w
Soluție anti-îngheț
Tyfocor L
Monopropilenglicol / propan-1,2-diol
+ inhibitori
50 % w/w
Soluție anti-îngheț
Sentinel X500
Monopropilenglicol + inhibitori
Certificat Kiwa
20 – 50 % w/w
Soluție anti-îngheț
Fernox Alphi 11
Monopropilenglicol + inhibitori
Certificat Kiwa KIWA-ATA K62581,
certificat Belgaqua Cat. III
25 – 50 % w/w
Soluție anti-îngheț în combinație
cu F1 Protector
1 litru/100 litri
Pentru instalații CH noi
Îndepărtează uleiurile/unsoarea și
agenții de control al fluxului
Sentinel X400
Soluție de polimeri organici sintet
ici
1 – 2 litri/100 litri
Pentru curățarea instalațiilor
de încălzire existente
Îndepărtează sedimentele.
Sentinel X800 Jetflo
Emulsie apoasă de agenți de
dispersare, de agenți de umezire și
de inhibitori
1 – 2 litri/100 litri
Pentru curățarea instalațiilor de
încălzire noi și existente
Îndepărtează sedimentele de fier
și asociate cu calcarul.
Fernox F3 Cleaner
Soluție lichidă universală de curățare, cu pH neutru pentru etapa
prealabilă punerii în funcțiune a
sistemelor noi
500 ml/100 litri
Pentru curățarea instalațiilor de
încălzire noi și existente
Îndepărtează substanțele vâscoase, depunerile de calcar și alte
reziduuri.
Fernox F5 Cleaner, Soluție concentrată universală de curățare rapidă,
cu pH neutru pentru etapa prealabilă punerii în funcțiune a sistemelor
noi
295/100 litri
Pentru curățarea instalațiilor de
încălzire noi și existente
Îndepărtează substanțele vâscoase, depunerile de calcar și alte
rezidu
uri.
Soluție anti-îngheț
Soluții de curățare a siste- Sentinel X300
mului
Soluție de fosfat, de compuși organici heterociclici, de polimeri și de
baze organice
Certificat Kiwa
27
Instalare
Sistemul hidraulic și de alimentare cu apă
Calitatea apei calde menajere (ACM)
Definițiile tipurilor de apă
Apă potabilă
- Apă de la robinet, în conformitate
cu Directiva 98/83/CE a Consiliului
din 3 noiembrie 1998 privind apa
destinată consumului uman.
Apă dedurizată
- Apă din care s-au eliminat parțial
ioni de calciu și de magneziu.
Apă demineralizată
- Apă din care s-au eliminat aproape
toate sărurile (conductivitate foarte
redusă).
Apă distilată
- Apă în care nu mai sunt prezente
săruri.
Vas de expansiune
Vas de expansiune
Instalația de încălzire trebuie să fie
prevăzută cu un vas de expansiune.
Vasul de expansiune utilizat trebuie să
se potrivească cu conținutul de apă al
instalației.
Nu este necesar să se instaleze un vas
de expansiune pentru
fiecare cazan.
Un singur vas de expansiune instalat
central este suficient. Atunci când se
utilizează un singur vas de expansiune,
mânerele robinetelor de pe țevile de tur
și de retur de sub cazan trebuie să fie
scoase în timp ce vasul este deschis.
Vasul de expansiune al unui cazan
poate fi conectat pe piesa de legătură
încrucișată din interiorul țevii de retur
la fiecare cazan, dacă este necesar.
Racordul este prevăzut cu un capac de
mascare cu filet exterior, de 3/4”.
28
Circuitul cilindrului de expansiune
pentru apa caldă menajeră
Atunci când se aplică un cilindru de
apă caldă menajeră conectat direct la
cazan (racordarea cilindrului ELCO cu
ajutorul unei supape cu 3 căi), ar
trebui să se asigure circuitul dintre
vana cu 3 căi și un rezervor de
expansiune, precum și separarea
dintre cilindrul de apă caldă menajeră
și rezervorul respectiv. Consultați și
pagina 34.
Pentru instalarea în Regatul Unit,
consultați standardele aplicabile în
Regatul
Unit.
Instalare
Țeava de gaz
Țeava de gaz care duce la instalație trebuie
să fie calculată la capacitatea maximă
pentru a stabili diametrul țevii de alimentare.
Țeava de gaz trebuie să fie poziționată
în deschizăturile prevăzute din consola
superioară a suportului pentru configurația
în cascadă și trebuie să fie fixată pe toate
plăcile flanșelor cu buloane speciale cu
toleranță ridicată M6x8x16.
Pierderea de presiune pentru o țeavă de
gaze naturale nou instalată poate fi de
maximum 1,7 mbari. n cazul unei prelungiri,
aceasta poate fi de maximum 2,5 mbari.
Această valoare trebuie să fie măsurată
între contorul de gaz operațional și
cazanele de încălzire.
Pentru funcționarea corectă a cazanelor,
este necesar ca presiunea dinamică a
gazului la gura de intrare să fie de cel puțin
19 mbari. Această valoare trebuie să fie
măsurată în fața conexiunii cu flanșă pentru
gaz.
În ceea ce privește țevile noi, în special,
trebuie să vă as
igurați că țeava de gaz nu
conține poluare reziduală.
ATENȚIE:
Pentru utilizarea cu propan, trebuie să fie
instalat setul de conversie pentru GPL;
consultați instrucțiunile de conversie
separate.
După activitățile de întreținere, verificați
întotdeauna toate componentele
purtătoare de gaz pentru a identifica
eventualele scurgeri, cu ajutorul unui
lichid de detectare a scurgerilor (LDF).
29
Instalare
Racord pentru condens
PERICOL:
Pericol de moarte prin
otrăvire! Dacă sifonul nu este umplut
cu apă sau dacă orice racord este
deschis, gazul rezidual care se
scurge în afară poate prezenta
pericol de moarte pentru oameni.
Racord pentru condens
Pentru fiecare m3 de gaz natural care
se arde, se poate acumula un volum
de apă între 0,7 și 1,0 litri, ca urmare
a unui uz foarte mare de energie.
Condensul, care se acumulează în
cazan, în țeava de gaze reziduale
sau în coș, trebuie să fie evacuat în
sistemul public de ape uzate.
În această privință, trebuie
să se țină
seama de reglementările specifice
țării respective. Poate fi necesară o
neutralizare a condensului. Condensul
se poate evacua vizibil într-un sifon
conic (2) la locul de instalare. Un
racord fix la sistemul public de ape
uzate nu este permis.
Pentru drenarea condensului, se pot
utiliza numai materiale rezistente la
coroziune și certificate. Drenarea
trebuie efectuată într-un loc care
nu este supus înghețului. Țeava de
evacuare trebuie să fie în pantă, astfel
încât să se evite returul condensului.
Umplerea sifonului
Înainte de punerea în funcțiune a
cazanului, sifonul (1) al echipamentului
trebuie să fie umplut cu apă, pentru a
preveni o emisie de gaz rezidual din
racordul pentru condens. Umplerea se
efectuează cel mai ușor prin turnarea a
aproximativ 0,5 litri de apă în țeava de
gaz rezidual (3).
O dată pe an, racordurile pentru gaz
rezidual trebuie să fie verificate pentru
a stabili etanșeitatea acestora, iar
sifonul trebuie umplut cu apă
.
Toate cazanele PLUS pe gaz, pe
bază de condensare, poziționate pe
podea includ un captator de condens
de tip sifon pentru a colecta și elibera
condensul.
Cantitatea de condens formată este
determinată de tipul de cazan și de
temperatura apei produsă de cazan.
Țevile pentru condens.
Apăsați tubul panglică din plastic
(furnizat) pe scurgerea pentru condens
din partea de jos a cazanului. Conectați
tubul la scurgerea principală pentru
condens (diametru minim = 40 mm)
prin intermediul unui racord deschis
pentru a evita ca gazele din canalizare
să intre în cazan.
Montați un distribuitor pentru țevi
pentru scurgerea pentru condens
în spatele sistemului hidraulic. n
acest scop, consolele inferioare
sunt prevăzute cu găuri care permit
instalarea unei scurgeri din PVC cu
diametrul de maximum 40 mm. Folosiți
această scurgere pentru a conecta
scurgerile individuale pentru condens
ale fiecărui cazan.
Sifonul unui sistem de gaze arse poate
fi conectat, de asemenea, prin
inte
rmediul unui racord deschis, dacă
este necesar.
30
3
1
2
Instalare
Alimentarea cu agent termic
Dispozitivul de control al alimentării cu
apă caldă poate fi conectat la ELCO
TRIGON L PLUS. Pentru conectare și
setări, consultați capitolul „Controlul
cazanului”.
Circuitul vasului de expansiune
pentru apa caldă menajeră
Atunci când se conectează un boiler de
apă caldă menajeră la cazan înaintea
buteliei de echilibrare, se recomandă o
vană cu 3 căi de la ELCO.
Circuitul dintre vana cu 3 căi [1]
și dispozitivul de separare [2] dintre
cazan și boiler ar trebui să fie prevăzut
cu un vas de expansiune [3].
Set de
conectare la
cazan, cu vană
cu 3 căi
1
2
3
Legendă
1. Vană cu 3 căi
2. Dispozitiv de separare
3. Vas de expansiune
31
Instalare
Racorduri
Țevi de aer/gaze arse pentru cazane individuale
Toate modelele de cazane au un
racord paralel pentru tiraj.
Racordul pentru gaze arse
Recomandăm utilizarea gamei
cuprinzătoare de componente pentru gaz
e
arse de la ELCO.
Pentru mai multe informații, consultați
instrucțiunile de instalare:
- borne de perete ELCO;
- borne de plafon ELCO;
- componente ELCO pentru țevi de gaze
arse atât țevi individuale, cât și tuburi
concentrice.
Reglementările cu privire la construcția și
instalarea sistemelor de gaze arse sunt
diferite de la țară la țară.
Trebuie să vă asigurați că respectați toate
reglementările naționale cu privire la
sistemele cu coșuri.
Nu este necesar să instalați o scurgere
separată pentru condensul din sistemul
de gaze arse, deoarece condensul va fi
drenat prin cazan în sifon. Respectați
următoarele recomandări:
- utilizați numai materiale rezistente la
coroziune;
- diametrul trebuie să fie calculat
și selectat în conformitate cu
reglementările naționale;
- lungimea sistemului de gaze arse
trebuie păstrată cât mai scurtă posibil (și
nu trebuie să depășească lungimea
maximă permisă; consultați
documentația pentru planuri);
- tubu
rile orizontale pentru gaze arse
trebuie să aibă o înclinație de cel puțin
3° înapoi către cazan.
Racordul pentru admisie aer
Dacă este necesar, un tub separat de
admisie aer pentru camere ermetice poate
fi conectat prin intermediul garniturii
opționale (incluse) de conectare la admisie
aer. Diametrul trebuie să fie calculat în
conformitate cu reglementările naționale și
în combinație cu sistemul
de gaze arse. Rezistența globală a tuburilor
de admisie aer și de gaze arse nu trebuie
să depășească în niciun moment presiunea
maximă de alimentare a ventilatorului.
(Consultați, de asemenea, capitolul „Date
tehnice”)
Observații
Tabelele de mai jos prezintă orientări cu
privire la lungimile maxime ale tuburilor
pentru aer și pentru gazele arse, care pot fi
racordate. Dacă se realizează o instalație
pentru o cameră etanșă, lungimile ambelor
tuburi trebuie să fie adunate, iar suma nu
trebuie să depășească valoarea relevantă
indicată în tabele.
L
ungimea maximă a oricărei porțiuni
externe a țevii de gaze arse nu trebuie să
depășească 5 m.
Unghiul oricărui cot utilizat în sistemul de
gaze arse nu trebuie să depășească 87,5°.
Pereții care sunt sensibili la căldură
trebuie să fie izolați.
Construiți sistemul de gaze arse astfel
încât să nu se producă nicio recirculare.
Dimensiuni (valori de referință)
Ø tuburi (instalație pentru camere
ermetice cu tuburi deschise sau
paralele)
Lungime maximă, în metri
Schimbări ale direcției
0
2
3
4
60
70
100
120
140
170
200
82
60
34
17
16
35
30
78
56
30
13
12
30
25
76
54
28
11
10
27
22
74
52
26
9
8
25
20
Ø100 mm
Ø130 mm
Ø tuburi (instalații concentrice
pentru camere ermetice)
Lungime maximă, în metri
Schimbări ale direcției
0
2
3
4
60
70
100
120
140
14
14
12
8
9
11
11
9
5
6
9
9
7
3
5
8
8
6
2
3
Ø100/150 mm
Secțiune transversală minimă necesară a coloanei (carcasa pentru gazele de ardere)
Diametru țeavă de gaze de ardere
Col
oane pătrate
Coloane rotunde
100 mm
140 x 140 mm
160 mm
32
Instalare
Racorduri
Țevi de aer/gaze arse pentru cazane individuale
1
Tip cazan
60
70
100
120
140
170
200
2
Diametrul țevii de
aer/gaze arse
100 – 100
100 – 100
100 – 100
100 – 100
100 – 100
130 – 130
130 – 130
Racordul paralel pentru cazan
Cazanul este furnizat, în mod standard,
cu un racord paralel pentru gura de
evacuare a gazelor de ardere și pentru
sistemul de admisie aer
Pentru diametrul gurii de admisie aer
(1) și pentru racordul gurii de evacuare
a gazelor de ardere (2), consultați
tabelul de mai jos.
Canalul de admisie aer poate fi
conectat la acesta sau, dacă implică un
„dispozitiv deschis” (categoria de
drenare B), se recomandă un filtru de
aer.
Racordul concentric pentru cazan
Cazanele 60-70-100-120-140 pot
fi transformate într-o conexiune
concentrică utilizând adaptorul coaxial
100/150 (opțional) și parcurgând
procedura următoare:
- Deschideți și scoateți panoul
fronta
l și panoul superior (urmați
instrucțiunile de la pagina 42).
- Ridicați conexiunea paralelă.
- Deconectați și scoateți
întrerupătorul de 230 V.
- Înlocuiți conexiunea paralelă cu
adaptorul coaxial.
- Conectați și montați întrerupătorul
de 230 V în conformitate cu
configurația anterioară.
1
3
2
4
Gura pentru admisie aer are un
diametru de 150 mm.
Racordul pentru gura de evacuare a
gazelor de ardere are un diametru de
100 mm.
Sistemul de admisie aer/evacuare a
gazelor de ardere se conectează apoi
la componenta conexiunii concentrice.
Cazanele TRIGON L PLUS pot fi
folosite atât într-un sistem „deschis” cât
și într-un sistem „închis”.
Sistem deschis
Aerul de combustie necesar este
preluat din mediul imediat înconjurător
(camera cazanului). n acest scop,
respectați reglementările aplicabile cu
privire la aerisirea camerei cazanului.
Atunci când se utilizează un cazan
de categoria B23 și B33 în calitate de
„cazan deschis”, gradul de pr
otecție al
cazanului va fi IPX0D în loc de IPX4D.
Se recomandă un filtru de aer sau
un grilaj pe gura de intrare a aerului
din cazan (disponibil ca accesoriu;
consultați paginile 15 – 17).
Sistem închis
Aerul de combustie necesar este
aspirat în interior din exterior printr-un
canal.
Acest lucru îmbunătățește posibilitățile
de instalare într-o clădire. În general,
aerul exterior este mai curat decât cel
din camera cazanului.
Când cazanul este în funcțiune,
acesta evacuează un fum alb,
datorită condensului. Acest fum alb
este inofensiv, dar poate cauza
neplăceri, în special în cazul unei
evacuari de perete. În consecință, se
preferă evacuarile verticale de
acoperiș.
În cazul unei instalații închise,
terminalul de acoperiș ar trebui să fie
la aceeași înălțime prevenind
aspirarea gazelor arse în interior de
către celălalt cazan (recirculare).
Gurile de evacuare din nișe și de
lângă pereții verticali pot provoca, de
asemenea, recircularea ga
zelor de
ardere. Recircularea trebuie să fie
împiedicată în orice moment.
Pentru instalarea în Regatul Unit,
consultați orientările privind instalarea
din BS6644 și din IGE UP10.
33
Instalare
Racorduri
Țevi de aer/gaze arse – variante de instalare pentru cazane
individuale
Aer ambiant de combustie
B23
Țeavă de gaze arse în coș, aspirarea aerului din împrejurimi.
Capătul secțiunii țevii de gaze reziduale deasupra plafonului.
B33
Țeavă de gaze arse în coș, aspirarea aerului din împrejurimi.
Capătul secțiunii țevii de gaze reziduale deasupra plafonului.
Aer de combustie preluat din împrejurimi
C13
Țeavă de gaze arse și de aspirare a aerului prin peretele exterior,
trebuie să se afle în aceeași suprafață pătrată.
C33
Țevi de gaze arse și de aspirare a aerului prin intermediul bornei de
plafon, trebuie să fie în aceeași suprafață pătrată.
C43
Țeavă de aspirare a aerului și de gaze reziduale prin intermediul
sistemului coșului, c
are este integrat în clădire.
C53
Aspirarea aerului și evacuarea gazelor reziduale în exterior, în zone cu
presiuni diferite.
Secțiune de capăt verticală a țevii de gaze reziduale.
C63
Echipament dezvoltat special pentru conectarea la sisteme certificate de
aer/gaze reziduale, care funcționează separat unul de altul.
C83
Aspirarea aerului în exteriorul clădirii, țeavă de gaze reziduale prin
intermediul coșului.
C93
Țevile de aer și de gaze reziduale către coșul de gaze reziduale prin
intermediul instalării în plafon și într-un coș pentru gaze reziduale,
rezistent la umiditate.
34
Instalare
Racorduri
Țevi de aer/gaze arse – variante de instalare pentru cazane
multiple
Optarea pentru o gură de evacuare
colectivă a gazelor de ardere este
determinată de:
- poziția cazanelor în raport cu suprafața
gurii de evacuare a acestora
- spațiu suficient deasupra cazanelor
- număr mare de cazane
Puteți opta pentru:
- gura de evacuare colectivă a gazelo
r de
ardere cu subpresiune
- gura de evacuare colectivă a gazelor de
ardere cu suprapresiune
În multe situații, gazele de ardere nu
pot fi ventilate individual pentru că
instalația este în interior. Pentru astfel de
situații, recomandăm ventilarea colectivă
prin intermediul subpresiunii sau al
suprapresiunii, utilizând un sistem cu
gură de evacuare a gazelor de ardere.
Admisie aer poate fi realizată și în mod
colectiv, dar în cazul în care camera
cazanului este adecvată pentru acest scop,
se poate obține și din această zonă
(„dispozitiv deschis”, cazan de categoria B).
Dacă instalați o țeavă comună care
furnizează aer de combustie pentru mai mult
de un singur aparat, există riscul ca aerul
de combustie să fie tras de la un aparat
adiacent.
Acest aer poate fi supus apoi unei presiuni
negative.
În cazul ventilării colective a gazelor de
ardere, gura de ventilare a gazelor de
ardere trebuie să se termine întotdeauna
în zona deschisă (zona de evacua
re 1).
ELCO poate furniza un sistem cu gură
colectivă de evacuare a gazelor de ardere
pentru TRIGON L PLUS de la ELCO.
Consultați capitolele următoare cu privire la
diferitele posibilități și la lungimile maxime
ale țevilor care pot fi utilizate.
Categoria de cazan: B
Zona de evacuare 1
(zonă de evacuare liberă)
Categoria de cazan: C
0,2 x 2 x B
Permisă numai atunci
când gura de admisie
a aerului și gura de
evacuare a gazelor se află
în aceeași zonă de
presiune
35
Instalare
Racorduri
Gura de evacuare colectivă a gazelor arse cu subpresiune
Diametrul și lungimile gurii pentru
evacuarea gazelor de ardere/admisie aer:
- sistem deschis cu subpresiune (calculată
cu tiraj termic) în circumstanțe atmosferice.
OBSERVAȚIE!
1. IPX0D la categoria de gaze arse B23
și B33
Dimensiuni pentru configurații în cascadă THISION L PLUS pentru gazele arse
Sistem deschis, subpresiune
Putere (P) kW la 80/60 °C
[kW]
d
h
d = diametrul minim Ø, în mm
h=2-5
h=5-9
h = 9 -
13
114
-
240
210
200
190
h = 13 - 17
190
240
-
360
300
270
260
250
360
-
480
360
330
310
300
480
-
600
440
380
360
340
600
-
720
470
420
400
380
720
-
840
550
470
430
410
840
-
960
600
510
470
440
d
Diametrul și lungimile gurii pentru
evacuarea gazelor arse/admisie aer:
- sistem închis cu subpresiune (calculată
cu tiraj termic) în circumstanțe atmosferice.
Dimensiuni pentru configurații în cascadă THISION L PLUS pentru gazele arse
Sistem închis, subpresiune, paralel
Putere (P) kW la 80/60 °C
[kW]
d
=d
=d
h
d
d
d
36
d = diametrul minim Ø, în mm
h=2-5
h=5-9
h = 9 - 13
114
-
240
240
220
220
h = 13 - 17
220
240
-
360
330
300
290
270
360
-
480
390
370
350
330
480
-
600
460
410
390
380
600
-
720
500
460
440
420
720
-
840
550
500
470
460
840
-
960
600
540
510
490
Instalare
Racorduri
Evacuarea colectivă a gazelor arse cu suprapresiune
NU este permisă o instalație cu ev
acuare
colectivă a gazelor arse cu suprapresiune în
combinație cu cazane controlate indivi-dual (de
exemplu, controler de 0 – 10 V), în care nu este
conectat niciun cablu bus.
Diametrul și lungimile gurii pentru evacuarea
gazelor arse/admisie aer:
- Sistem deschis cu suprapresiune.
OBSERVAȚIE!
1. IPX0D la categoria de gaze arse B23 și B33
2. Doar cu cablul de magistrală conectat!
3. Reglați parametrul 102 la 2.
Dimensiuni pentru configurații în cascadă THISION L PLUS pentru gazele de ardere
Sistem deschis, suprapresiune
Putere (P) kW la 80/60 °C
[kW]
d
h
d
d = diametrul minim Ø, în mm
h=2-5
h = 6 - 10
h = 11 - 15
114
-
240
150
150
150
h = 16 - 20
150
240
-
360
150
150
180
180
360
-
480
180
180
180
200
480
-
600
200
220
220
220
600
-
660
230
230
250
250
660
-
872
260
260
260
260
872
-
960
280
280
280
300
960
-
1200
280
280
280
300
Diametrul și lungimile gurii pentru
evacuarea gazelor arse/admisie aer:
- S
istem închis cu suprapresiune.
Contactați ELCO.
Dimensiuni pentru configurații în cascadă THISION L PLUS pentru gazele de ardere
Sistem închis, suprapresiune, paralel
Putere (P) kW la 80/60 °C
[kW]
d
=d
d = diametrul minim Ø, în mm
h=2-5
h = 6 - 10
h = 11 - 15
114
-
285
150
150
150
h = 16 - 20
150
285
-
524
200
200
200
200
524
-
1440
300
300
300
300
=d
h
d
d
d
37
Instalare
Conexiuni electrice
Conexiunile electrice trebuie efectuate de un
tehnician electric autorizat și în conformitate
cu standardele și reglementările naționale
și locale în vigoare. Pentru alimentarea cu
electricitate trebuie să se folosească un
întrerupător izolat, cu contacte de cel puțin 3
mm diametru.
Acesta trebuie să fie montat în interiorul
camerei cazanului. Întrerupătorul este folosit
pentru oprirea alimentării cu electricitate în
timpul lucrărilor de întreținere.
Toate cablurile se trec prin canalul de
cabluri din partea de sus a cazanului și su
nt
conduse până la panoul electric din partea
frontală a acestuia.
Schema electrică trebuie respectată în
timpul tuturor lucrărilor de efectuare a
conexiunilor (consultați paginile următoare).
Este necesară o sursă de alimentare cu
electricitate de 230 V, 50 Hz, cu siguranță
externă de 5 A.
2
3
1
4
38
O abatere de la rețeaua de 230 V (+10 %
sau -15 %) și 50 HZ
Se aplică, de asemenea, următoarele
reglementări suplimentare:
- nu este permisă schimbarea cablării
cazanului;
- toate conexiunile trebuie realizate pe
blocul de conexiuni.
Instalarea senzorului de aer liber
Dacă la cazan este conectat un senzor de
exterior, senzorul trebuie să fie poziționat în
conformitate cu desenul alăturat.
Dacă NU este conectat un senzor exterior,
consultați configurația PADIN din controlerul
extern.
Instalare
Conexiuni electrice
Cazanul are 4 blocuri de prize pentru toate conexiunile electrice:
1.
Alimentare cu înaltă tensiune (230 V)
2.
Întrerupătoare f
ră tensiune (relee de 230 V)
3-4. Senzori de joasă tensiune și I/O
5.
Comunicare bus pentru cazane TRIGON L PLUS în cascadă
Atenție:
După ce scoateți panourile, puteți avea
acces la componente de 230 V.
Conexiunile electrice trebuie să fie
realizate numai de către personal
calificat.
0
L
N
Line (AC)
Input
L
N
Line (AC)
Output
L
N
MO1 (AC)
Output
L1
N
L2
3 WV/DHW pump (AC)
Output
1.1
1.2
VFR1
Output
2.1
Output
1
2.2
VFR2
Output
3.1
3.2
VFR3
Output
PWM 0-10V GND NTC
5V
MO1 (0-10V output) MTS1 (T10)
Output
Input
NTC
5V
NTC
5V
MTS2
MTS3
Input
Input
NTC
5V
NTC
5V
NTC 7 NTC 3 (DHW/
(outd. sensor) Tank sensor)
Input
Input
Signal GND Signal GND
eBus
eBus
Input
Output
PWM 0-10V
GND
GND
Signal
24V
GND
Signal
24V
GND
Signal 24V
GND
Signal
24V
GND
Signal
MO2 (0-10V output)
PFDIN 1
PADIN 1
PADIN 2
PADIN 3
PADIN 4
Output
Input
Input
Input
Input
Input
5V
Output
2
3
5
4
PWM
1
2
B
F
A
(2x)
C
E
3
H2
H1
G
D
4
J
I
Conexiunile electrice de mai sus pot fi realizate urmând pașii de mai jos:
1. Scoateți panoul frontal.
2. Apăsați pe ambele părți ale unității HMI (E) și rotiți afișajul (F).
3. Glisați panoul superior către partea frontală și utilizați intrarea din partea
posterioară a cazanului pentru a introduce cablurile (H1 pentru cablul de înaltă
tensiune, H2 pentru cablul de joasă tensiune).
4. Conectați cablul cu conectorii șuruburi aflați deja în blocurile de prize.
39
Instalare
Conexiuni electrice
1
L
N
Line (AC)
Input
L
N
Line (AC)
Output
L
N
MO1 (AC)
Output
L1
N
L2
1.1
1.2
2.1
VFR1
Output
3 WV/DHW pump (AC)
Output
2.2
3.1
VFR2
Output
2
Neutral
3
Earth
4
Line
5
Neutral
6
Earth
7
Line
8
Neutral
9
Earth
Denumire
Descrierea funcției
Line
(AC)
Line
Intrare principală
Alimentarea cu electricitate
principală a cazanului
Line (AC)
Tip de linie
1
PWM 0-10V GND
MO1 (0-10V outpu
Output
Output
Ieșire principal
ă
Ieșirea intrării electrice principale,
sub tensiune atunci când
întrerupătorul cazanului este în
poziția „Pornit”
La fel ca intrarea
MO1
(AC)
Output
Contact
3.2
VFR3
Output
Descrierea electrică
MO1
Pompa de sistem
va funcționa cu pompa cazanului
principal
230/120 V c.a.; 1 A max. (80 A impuls max.);
Comutat sub tensiune
230 V (+10 %; -15 %) la 50 Hz
PWM
Consultați tabelele de la paginile 42 – 44.
0
2
L
N
Line (AC)
Input
L
N
Line (AC)
Output
L
N
MO1 (AC)
Output
L1
N
L2
1.1
3 WV/DHW pump (AC)
Output
1.2
VFR1
Output
2.1
2.2
VFR2
Output
Output
1
Line
2
Neutral
3
Line
4
Earth
5
1.1
6
1.2
7
2.1
8
2.2
9
3.1
10
3.2
3 WV/DHW
pump
Tip de linie
VFR3 VFR2 VFR1
Contact
Descrierea funcției
Vană cu 3 căi
CH activ
Vană cu 3 căi/P2
Activ pentru apă caldă menajeră
Împământare
Contactul 1 fără
tensiune
PWM
3.2
VFR3
Output
PWM 0-10V GND NTC
5V
MO1 (0-10V output) MTS1 (T10)
Output
Input
NTC
5V
NTC
5V
MTS2
MTS3
Input
Input
NTC
5V
Descrierea electrică
230/120 V c.a.; 1A max., închis
230/120 V c.a.; 1 A max. 80, A impuls max., închis
și anume pompa HC1
230 V c.a., 2 A max., 80 A impuls max., deschis
Contactul 2 fără
tensiune
și anume Ieșire alarmă
230 V c.a., 1 A max. (cos phi > 0,8), deschis
Contactul 2 fără
tensiune
și anume Supapă de închidere
GPL
230 V c.a., 1 A max. (cos phi > 0,8), deschis
Consultați tabelele de la paginile 42 – 44.
40
NTC
5V
NTC 7 NTC 3 (DHW/
(outd. sensor) Tank sensor)
Input
Input
Output
Denumire
P2/vană cu 3 căi
3.1
Signal
e
In
Instalare
Conexiuni electrice
0
3 și 5
L2
1.1
1.2
VFR1
Output
2.1
2.2
VFR2
Output
3.2
VFR3
Output
PWM 0-10V GND NTC
5V
NTC
MO1 (0-10V output) MTS1 (T10)
Output
Input
5V
NTC
5V
MTS2
MTS3
Input
Input
NTC
5V
NTC
5V
Signal GND Signal GND
NTC 7 NTC 3 (DHW/
(outd. sensor) Tank sensor)
Input
Input
eBus
eBus
Input
Output
PWM 0-10V
GND
GND
Signal
24V
G
ND
Signal
0
PWM
2
0-10 Volt
3
GND
4
NTC input
5
5 Volt
6
NTC input
7
5 Volt
8
NTC input
9
5 Volt
10
NTC input
11
5 Volt
12
NTC input
13
5 Volt
14
Signal
15
GND
16
Signal
17
GND
Denumire
Descrierea funcției
MO1
PWM
Tip de linie
1
Ieșire multifuncțională 1
Pompă modulantă ACM
Pompă modulantă sistem
Pompă modul. încărc. rezerv.
0..10 Volt feedback la BMS
MTS2 MTS1
Contact
Intrare multifuncțională
temperatură 1
T10
NTC 10k β=3977
Intrare multifuncțională
temperatură 2
Senzor buffer sus/jos
senzor circuit ACM
NTC 10k β=3977
Intrare multifuncțională
temperatură 3
Senzor buffer sus/jos
senzor circuit ACM
NTC 10k β=3977
senzor de exterior
(T4)
Senzor de exterior
NTC 1k β=3977
Senzor rezervor (T3)
Senzor de temperatură
apă caldă menajeră
NTC 10k β=3977
eBus2
Comunicare bus pentru
cascadă / termostat / manager
clip-in
eBus2
Comunicare bus pentru
termostat / manager clip-in
PAD
Output
Input
Input
In
Descrierea electrică
PWM: 0,1÷4 kHz; Vînaltă = 12 V; Vjoasă ≤ 0,7 V; Iînaltă ≤ 10 mA
0..10 volți
eBus
eBus
Input
Output
Tip de linie
1
PWM
2
0-10 Volt
3
GND
4
GND
5
Signal
6
24 Volt
7
GND
8
Signal
9
24 Volt
10
GND
11
Signal
12
24 Volt
13
GND
14
Signal
15
24 Volt
16
GND
17
Signal
18
5 Volt
PWM 0-10V
GND
GND
Signal
24V
GND
Signal
24V
GND
Signal 24V
GND
Signal
24V
GND
Signal
MO2 (0-10V output)
PFDIN 1
PADIN 1
PADIN 2
PADIN 3
PADIN 4
Output
Input
Input
Input
Input
Input
Denumire
Descrierea funcției
Pompă modulantă sistem
Pompă modul. încărc. rezerv.
0..10 Volt feedback la BMS
Debitmetru ACM sau
semnal on/off
5V
Descrierea electrică
PWM: 0,1÷4 kHz; Vînaltă = 12 V; Vjoasă ≤ 0,7 V; Iînaltă ≤ 10 mA
0..10 volți
MO2
Contact
Signal GND Signal GND
Ieșire multifuncțională 2
PFDIN 1
5V
Intrare digitală programabilă
pentru frecvență
PADIN 1
NTC
Intrare digitală analogică
p
rogramabilă 1
PADIN 2
5V
Intrare digitală analogică
programabilă 2
PADIN 3
Input
NTC
NTC 7 NTC 3 (DHW/
(outd. sensor) Tank sensor)
Input
Input
Intrare digitală analogică
programabilă 3
GND
Generare caldură blocată
Solicitare externă de la consumator Digital: închis cu +24 V c.c.; Analogic: 0÷10V
Termostat camera 3
Alimentarea cu energie: +24 V c.c., 10 mA max.
PADIN 4
5V
Intrare digitală analogică
programabilă 4
GND
Generare caldură blocată
Solicitare externă de la consumator Digital: închis cu +5 V c.c.; Analogic: 0÷5V
Întrerupere la nivel scăzut apă
Alimentarea cu energie: +5 V c.c., 10 mA max.
GND
Digital: închis cu +24 V c.c.;
Frecvență: 0÷24 V; max. 400 Hz
Alimentarea cu energie: +24 V c.c., 10 mA max.
GND
Generare caldură blocată
Solicitare externă de la consumator Digital: închis cu +24 V c.c.; Analogic: 0÷10V
Termostat camera 1
Alimentarea cu energie: +24 V c.c., 10 mA max.
Solicitare temperatură 0-10v /
solic
itare putere
Termostat camera 2
Si
PADIN 1
4
MTS3
GND
PFDIN 1
Consultați tabelele de la paginile 42 – 44.
NTC
24V
MO2 (0-10V output)
Output
NTC3 NTC7 MTS3
Output
3.1
eBus
Input
N
eBus
Output
L1
3 WV/DHW pump (AC)
Output
GND
Digital: închis cu +24 V c.c.; Analogic: 0÷10V
Alimentarea cu energie: +24 V c.c., 10 mA max.
Consultați tabelele de la paginile 42 – 44.
41
Instalare
Conexiuni electrice
Multifuncțional
IEȘIRE MO1 (C.A.)
I/O ECU
Parametru de meniu
MO1
Ieșire multifuncțională de înaltă tensiune
24.7.0
(cazan comercial);
26..32.7.0
(cazan comercial – subordonat 1..7);
Funcție
Valoare funcție
Niciuna
0
Pompă de sistem
1
Pompă HC1
2
Pompă de circulație
3
Pompă de circuit intermediar apă caldă
menajeră
4
Pompă de umplere BUF
5
Pompă de transfer rezervor de
depozitare
6
Supapă de închidere gen. căldură
7
Solicitare de căldură
8
VFR 1
I/O ECU
Parametru de meniu
VFR1
Contact 1 liber
24.7.1
26..32.7
.1
(cazan comercial);
(cazan comercial – subordonat 1..7);
Funcție
Valoare funcție
Niciuna
0
Pompă de sistem
1
Pompă HC1
2
Pompă de circulație
3
Pompă de circuit intermediar apă caldă
menajeră
4
Pompă de umplere BUF
5
Pompă de transfer rezervor de
depozitare
6
Supapă de închidere gen. căldură
7
Solicitare de căldură
8
Ieșire alarmă
9
GPL/ventilator alimentare cameră
11
VFR 2-3
I/O ECU
Parametru de meniu
VFR2
Contact 2 liber
24.7.2
26..32.7.2
(cazan comercial);
(cazan comercial – subordonat 1..7);
VFR3
Contact 3 liber
24.7.3
26..32.7.3
(cazan comercial);
(cazan comercial – subordonat 1..7);
42
Instalare
Conexiuni electrice
Multifuncțional
Funcție
Valoare funcție
Niciuna
0
Supapă de închidere gen. căldură
1
Solicitare de căldură
2
Ieșire alarmă
3
GPL/ventilator alimentare cameră
5
IEȘIRE MO1 (0 – 10 V)
I/O ECU
Parametru de meniu
MO1_LV
Ieșire multifuncțională PWM 1
24.7.4
(cazan comercial);
26..32.7.4
(cazan comercial – subordonat 1..7);
Funcție
Valoare funcție
Niciuna
0
Modulator pompă sistem
1
Modulator pompă de apă caldă menajeră
2
Modulator pompă de circulație
3
Modulator pompă de umplere BUF
4
Feedback putere cazan
5
MTS 1-2-3
I/O ECU
Parametru de meniu
MTS1
Intrare multifuncțională temp. 1
24.6.0
(cazan comercial);
26..32.6.0
(cazan comercial – subordonat 1..7);
MTS2
Intrare multifuncțională temp. 2
24.6.1
(cazan comercial);
26..32.6.1
(cazan comercial – subordonat 1..7);
MTS3
Intrare multifuncțională temp. 3
24.6.2
(cazan comercial);
26..32.6.2
(cazan comercial – subordonat 1..7);
Funcție
Valoare funcție
Niciuna
0
Senzor de tur comun
1
Rezervor de depozitare apă caldă
menajeră jos
2
Senzor de circulare apă caldă menajeră
3
Senzor de încărcare apă caldă menajeră
4
Rezervor de depozitare tampon sus
5
Rezervor de depozitare tampon jos
6
Senzor temperatură gaze arse
7
43
Instalare
Conexi
uni electrice
Multifuncțional
IEȘIRE MO2 (0 – 10 V)
I/O ECU
Parametru de meniu
MO2_LV
Ieșire multifuncțională PWM 2
24.7.5
(cazan comercial);
26..32.7.5
(cazan comercial – subordonat 1..7);
Funcție
Valoare funcție
Niciuna
0
Modulator pompă sistem
1
Modulator pompă de apă caldă menajeră
2
Modulator pompă de circulație
3
Modulator pompă de umplere BUF
4
Feedback putere cazan
5
PADIN 1-2-3-4
I/O ECU
Parametru de meniu
PADIN1
Intrare multifuncțională AD 1
24.6.4
(cazan comercial);
26..32.6.4
(cazan comercial – subordonat 1..7);
PADIN2
Intrare multifuncțională AD 2
24.6.5
(cazan comercial);
26..32.6.5
(cazan comercial – subordonat 1..7);
PADIN3
Intrare multifuncțională AD 3
24.6.6
(cazan comercial);
26..32.6.6
(cazan comercial – subordonat 1..7);
PADIN4
Intrare multifuncțională AD 4
24.6.7
(cazan comercial);
26..32.6.7
(cazan comercial – subordonat 1..7);
Funcție
Val. DGTO
Niciuna
0
Termostat cameră HC1
1
Termostat ca
meră HC2
2
Termostat cameră HC3
3
Solicitare intrare 0 – 10 V
4
Intrare temporizator apă caldă menajeră
5
Blocare generare căldură
6
Solicitare externă de la consumator
7
Presostat gaz
9
Intrare temporizator încălzire
10
44
Instalare
0
Conexiuni electrice
Senzorii de temperatură
Senzor de tur comun
Când se folosește un senzor de tur comun
(pentru configurații în cascadă este
obligatoriu), trebuie abordat pe MTS1.
-10V GND NTC
5V
NTC
5V
NTC
5V
10V output) MTS1 (T10)
MTS2
MTS3
utput
Input
Input
0
Input
0
Setarea boilerului de apă caldă
menajeră
Există mai multe scheme pentru
pregătirile apei calde; consultați paginile
42 – 45.
NTCSenzor
5V gaze
NTC
arse 5V Signal GND Signal GND
Senzorii
pot
fi
și ca senzori de gaze
NTC 7 NTCfolosiți
3 (DHW/
eBus
eBus
arse. Cu o Tank
configurare
în care temperatura
sensor)
este
sistemul trebuieInput
să se
Inputmaximă șiInput
Output
oprească sau cu o setare a temperaturii în
care sistem
ul trebuie să reducă puterea.
PWM 0-10V
NTC 5V
5V NTC
NTC 5V5V NTC
NTC 5V5V NTC
GND NTC
Signal 5V
Signal 5VGNDSignal GND Signal
NTC
GND GND
NTC 7 NTC
3 (DHW/ NTC
7 NTC 3 (DHW/
MO2eBus
(0-10V output)
eBus
eBus
MTS3
MTS1
(T10)
MTS2
MTS3
eBus
(outd. sensor) Tank sensor)(outd. sensor) Tank sensor)
Output
Input
Input
Input
Input
Output
Input
Input
Input
Input
Input
Input
Output
Reglarea în funcție de vreme (WDR)
Atunci când se utilizează WDR este
necesar un senzor de exterior. Țineți
seama de faptul că acesta este un
senzor 1K.
Această setare de control trebuie
selectată și nu este detectată automat.
PWM 0-10V
G
MO2 (0-10V outpu
Output
GND PWM
Signal 0-10V
24V GND
GND GND
Signal Sign
2
PFDIN
1 output)
MO2
(0-10V
InputOutput
PADIN 1PFDI
Input Inp
Pregătirea de bază a apei calde
menajere
Pentru pregătirea de bază a apei calde
menajere, există un senzor special
pentru rezervor. Pentru alte reglaje,
senzorul boilerului este senzorul
superior. Țineți seama de faptul
că
acesta este un senzor 10K.
45
Instalare
Conexiuni electrice
Comenzile externe
Feedback pentru BMS
Pentru a furniza feedback sistemului
BMS, această ieșire transmite un
semnal de 0 – 10 Volți ca indicație a
sarcinii.
GND GND NTC
Signal0-10V
2 Signal GNDPWM
/
)
0
PWM
5V 0-10V
NTC
GND
5V
Modulație pompă
Această ieșire poate fi setată pe post
de controler pentru mai multe tipuri de
pompe. Pentru aceste tipuri, consultați
GND
Signal
GND
NTC
5V de la24V
NTC
5V42 –Signal
NTC 24V
5V
schema
paginile
44.
NTC 7 PADIN
NTC 31(DHW/
PFDIN 1
MTS3
(outd. sensor) Tank sensor)
Input
InputInput
Input
Input
output)
eBus MO1 (0-10V
eBus output) MTS1 MO2
(T10)(0-10VMTS2
Input
Output
Output
Input
GND
GND 24V
GND Signal
Signal Signal
Signal GND
Output
Input
PADIN 2
eBus
eBus
Input
Input
Output Input
0-10V
PWM
GND0-10V
GNDGND
SignalGND24VSignal
GND 24VSignalGND24VSignal
GND 24V
SignalGND
24V Signal
GND24VSignalGND
24V Signal
GND 24V
SignalGND5V Signal
10V MO2
output)
(0
-10V output)
PFDIN 1
Output
Output
Input
PFDIN 1
PADIN 1
Input
Input
Detectarea debitului de apă caldă
menajeră
Pentru detectarea cantității de apă.
Sau setare ca întrerupător de flux.
Parametru de meniu
24.6.3
26..32.6.3
Funcție
Valoare funcție
Niciuna
0
Debitmetru pentru
apă caldă menajeră
1
Întrerupător flux de
apă caldă menajeră
2
46
PADIN 1 PADIN 2
Input
Input
PADIN 2
PADIN 3
PADIN 3
PADIN 4
PADIN 4
Input
Input
Input
Input
Input
Pornire/oprire solicitare de căldură
Intrarea poate fi utilizată pentru a
controla pornirea/oprirea pentru
maximum 3 zone.
Intrare de 0 – 10 Volți (Padin 1-2-3)
Controlul sarcinii și al temperaturii prin
intermediul unei intrări de 0 – 10 Volți
c.c. Atunci când se selectează 0 – 10
Volți, sistemul poate fi controlat numai
cu acest sistem.
Comutare circuit de încalzire + apă
caldă menajeră
Controlerul extern selectează dacă
sistemul poate fi activ numai pentru apă
caldă menajeră sau pen
tru încălzire și
apă caldă menajeră.
5V
Blocare generare căldură
Cât timp intrarea este deschisă, toate
solicitările de căldură sunt blocate.
Padin 4
Țineți seama că PADIN 4 este de max.
5 V, în timp ce 1, 2 și 3 sunt de 24 Volți.
PADIN 3
Instalare
Conexiuni electrice
Comenzile eBus2
BUS-
Conexiune în cascadă
Conexiunea dintre cazanele dintr-o
configurație în cascadă este realizată
prin intermediul intrării și al ieșirii
magistralei eBus2.
Accesorii
Pentru a conecta accesorii, CLIP
IN ZONE MANAGER, SOLAR
MANAGER, REMOCON etc., utilizați
conexiunea eBus2.
NTC
5V
NTC 3 (DHW/
) Tank sensor)
Input
Signal GND Signal GND
eBus
eBus
Input
Output
PWM 0-10V
GND
GND
Signal
24V
GND
Signal
24V
GND
Signal 24V
MO2 (0-10V output)
PFDIN 1
PADIN 1
PADIN 2
Output
Input
Input
Input
47
Instalare
Conexiuni electrice
Schemă electrică
COMUTATOR
3
3
ALIMENT.
ELECTR.
3
4
M01
HV
6
I
0
2
WV/DHW VFR
POMPĂ 1-2-3
1
3
6
4
2
2
6
M0
1
MTS
1-2-3
NTC
3
NTC
7
eBUS
M02
6
6
PFDIN1 PFDIN
1-2-3-4
3
A11
AB1
M01-M02
MTS1-2-3
HMI
1
1
1
CN20
CN6
VFR1
CN11
CN22
1
CN17
1
CN14
comunicație
către PCB subordonată
CN21
VFR2
6
1
4
PWM
VENT.
3
Instr. de service PC
VFR3
1
PFDIN1
VENT.
CN15
1
CN13
PWM
POMPĂ
1
IGNITOR
CN16
LI1
3
PFDIN1
PFDIN4
Wi-fi
CN25
1
1
CN9
B
1
CN12
Senzor
flacără
PE
CN19
CN18 CN5
CN18
F3
PE
F4
CN23
CN17
CN10
6
Senzor flacără
ALIMENT. ELECTR.
1
1
1
REZERVOR
SENZOR
M01
CN12
4
CN7
AER LIBER
A
HV POMPĂ CAZAN
1
CN1
Instr. de service PC
1
EBUS
P2/DV1
1
CN3
CN14
1
CN8
1
CN11
CN9
PFDIN2
Tastă memorie
ROBINET DE GAZ
1
1
CN6
PFDIN3
CN2
1
F1
CN17
1
F2
CN16
1
AB2
A2
B2
A1
B1
F6
F5
A10
A3
A4
B6
A6
B3
A9
B8
A5
B5
A8
Înaltă tensiune
Joasă tensiune
48
B7
B4
A7
2
Instalare
Conexiuni electrice
Schemă electrică
Legendă:
1
2
3
Întrerupător 230 V
Conexiuni electrice
Interfața HMI
A
A1
A2
A3
A4
A5
A6
A7
A8
A9
A10
A11
Placă cu electronică
Electrod de detecție
Electrod de aprindere
Senzor de tur T1
Senzor de tur secundar T1a
Senzor de retur T2
Unitatea ventilatorului
Vană de gaz
Pompă de circulație
Senzor de presiune a apei P1
Presotat aer APS
Cablu de comunicație HMI, joasă tensiune
B
B1
B2
B3
B4
B5
B6
B7
B8
Placă electronică
Electrod de detecție
Electrod de aprindere
Senzor de tur T1
Senzor de tur secundar T1a
Senzor de retur T2
Unitatea ventilatorului
Vană de gaz
Pompă de circulație
AB1
AB2
Cablu de comunicație de joasă tensiune slave
Cablu de alimentare electrică slave
F1
F2
F3
F4
F5
F6
Siguranță 6,3 A – 250 V
Siguranță 6,3 A – 250 V
Siguranță 3,15A – 250 V
Siguranță 3,15A – 250 V
Siguranță 2A – 250V – 4,2 I²t – rapidă
Siguranță 2A – 250V – 4,2 I²t – rapidă
49
Instalare
Umplerea sistemului
25/03/19 09:00
BMS
32°
1
–10°
T10
1.5 bar
2
CH Pump Overrun
Umplerea sistemului
Insta
lația de încălzire trebuie să fie
umplută cu apă potabilă în
conformitate cu cerințele din capitolul
„Calitatea apei”. După ce cazanul a fost
pus în funcțiune din punct de vedere
electric, sistemul de încălzire poate fi
umplut. Pentru umplerea instalației sau
adăugarea de apă în aceasta, utilizați
următoarea procedură:
1.
2.
3.
4.
5.
6.
7.
8.
A
B
50
Conectați un robinet de umplere
la returul circuitului hidraulic și
deschideți-l.
Conectați un furtun la aerisitorul
manual (A) și deschideți-l pentru a
elimina aerul.
Închideți aerisitorul manual după
ce apa curge constant afară din
acesta.
Umpleți lent sistemul de încălzire
cu până la 1,5 – 2 bari; citirea
digitală a presiunii este indicată în
mijlocul ecranului principal.
Închideți robinetul de umplere.
Ventilați întreaga instalație de
încălzire începând cu punctul cel
mai de jos.
Verificați presiunea apei și
completați cu apă, dacă este
necesar, până la 1,5 – 2 bari.
Dec
onectați robinetul de apă de
la circuitul hidraulic.
Când porniți cazanul, va rula un
program automat de purjare a aerului
pentru a ventila cazanul („Airpurge
active”). Acest program va dura
aproximativ 7 minute. n timpul
acestuia, presiunea din instalația
de încălzire trebuie să fie verificată și,
dacă este necesar, trebuie
suplimentată din nou.
Este posibil să dureze un timp
înainte ca tot aerul să dispară
dintr-o instalație umplută. În
prima săptămână se poate auzi cu
certitudine un sunet care indică
prezența aerului. Aerisitorul automat
(B) din cazan va lăsa aerul să iasă,
determinând o scădere a presiunii în
aceasta perioadă, trebuind să
reumpleți cu apă.
Alimentarea cu apă caldă
Umpleți alimentarea cu apă caldă
deschizând robinetul de izolare
principal pentru apă rece.
Goliți instalația de apă caldă
deschizând toate robinetele de apă
caldă pe rând. Lăsați fiecare robinet
deschis până când tot aerul dispare
din alimentare
.
Spălați cu minimum 10 litri pentru a
clăti orice contaminant rezidual din
alimentarea cu apă caldă și din cazan.
Configurarea cazanului
It’s needed to configure the device, press OK to
proceed
Available configurations
Unconfigured (actual)
Single Boiler
Master boiler + cascade
Slave boiler 1
Slave boiler 2
Prima pornire a unui cazan
Atunci când un cazan este activat,
apare o întrebare, ilustrată în imaginea
din stânga.
După ce apăsați pe OK, se afișează
meniul următor.
Configurarea unui singur cazan
Dacă nu există o configurație în
cascadă, selectați „Single boiler”
[Cazan simplu]. Sistemul va încărca
automat toți parametrii necesari pentru
un singur cazan; dacă este vorba de un
motor dublu, acesta va fi setat automat.
Available configurations
Slave boiler 3
Slave boiler 4
Slave boiler 5
Slave boiler 6
Slave boiler 7
Available configurations
Unconfigured (actual)
Slave boiler 1
Configurarea unei cascade
Dacă un cazan face parte dintr-o
insta
lație în cascadă, selectați „Master
boiler + cascade” [Cazan principal +
cascadă] și confirmați selecția apăsând
pe butonul OK. Apoi, vi se va cere
să configurați aparatul fie ca unitate
principală, fie ca unitate subordonată,
precum și să configurați adresa.
Slave boiler 2
Slave boiler 3
Slave boiler 4
51
Utilizarea
Descrierea afișajului
1
2
3
4
5
6
7
25/03/19 09:00
BMS
32°
18
1
–10°
T10
8
1.5 bar
2
16
15
14
13
Afișaj
Ecranul LCD are fundal iluminat.
Activați prima dată afișajul înainte ca
acesta să accepte o acțiune. Lumina se
aprinde prin apăsarea oricărui buton.
Simbolurile pentru configurația în
cascadă nu sunt vizibile în cazul
unui singur cazan sau atunci când
nu este conectat niciun cablu de
comunicație prin bus.
CH Pump Overrun
17
Cazanul dispune de un dispozitiv de
control-pilot. Acest dispozitiv de control
gestionează majoritatea setărilor dar
furnizează, de asemenea, numeroase
setări pentru a ajusta cu
exactitate
comenzile la cerințele instalației și ale
utilizatorului.
12
11 10
9
Explicații privind ecranul
BMS
1. Prezența gateway-ului WIFI și starea acestuia
11. Niciun cazan slave conectat
2. Sistem de gestionare a clădirii detectat
12. Cazan slave în modul de așteptare
3. Prezența managerului solar
13. Cazan principal
4.
Mod de funcționare =Programare orară în zona «zonă
2
de afișat»
5. Funcția privind funcționarea continuă a pompei
6. Avertizare prezentă referitoare la întreținere
7. Temperatura exterioară
T10
8. Starea pompei sistemului
T10 înseamnă că este prezent T10. Când simbolul pompei este a ișat intermitent, releul de pe blocul 1 contactul
3 este închis.
9. Cazan slave pornit (mod de încălzire)
10. Cazan slave în modul avarie
14. Motor 2 – prezența flăcării și putere
Motorul slave (dacă este prezent) este activ.
1
15. Motor 1 – prezența flăcării și putere Motorul principal este activ.
16. Solicitare de activa
exactitate
comenzile la cerințele instalației și ale
utilizatorului.
12
11 10
9
Explicații privind ecranul
BMS
1. Prezența gateway-ului WIFI și starea acestuia
11. Niciun cazan slave conectat
2. Sistem de gestionare a clădirii detectat
12. Cazan slave în modul de așteptare
3. Prezența managerului solar
13. Cazan principal
4.
Mod de funcționare =Programare orară în zona «zonă
2
de afișat»
5. Funcția privind funcționarea continuă a pompei
6. Avertizare prezentă referitoare la întreținere
7. Temperatura exterioară
T10
8. Starea pompei sistemului
T10 înseamnă că este prezent T10. Când simbolul pompei este a ișat intermitent, releul de pe blocul 1 contactul
3 este închis.
9. Cazan slave pornit (mod de încălzire)
10. Cazan slave în modul avarie
14. Motor 2 – prezența flăcării și putere
Motorul slave (dacă este prezent) este activ.
1
15. Motor 1 – prezența flăcării și putere Motorul principal este activ.
16. Solicitare de activa
... ascunde
Alte documentatii ale aceleasi game Vezi toate
Fisa tehnica
8 p | RO
THISION® L ECO
Instructiuni montaj, utilizare
72 p | RO
THISION® L ECO