Cămin ECO D550 H_1100 cu instalație și capac VALROM Cămine din polietilenă

Limba: Romana
17 afisari
Tip documentatie: Fisa tehnica
Salvează pdf
Pagina 1-Cămin ECO D550 H_1100 cu instalație și capac VALROM Cămine din polietilenă Fisa tehnica Romana ...
Pagina 2-Cămin ECO D550 H_1100 cu instalație și capac VALROM Cămine din polietilenă Fisa tehnica Romana ...
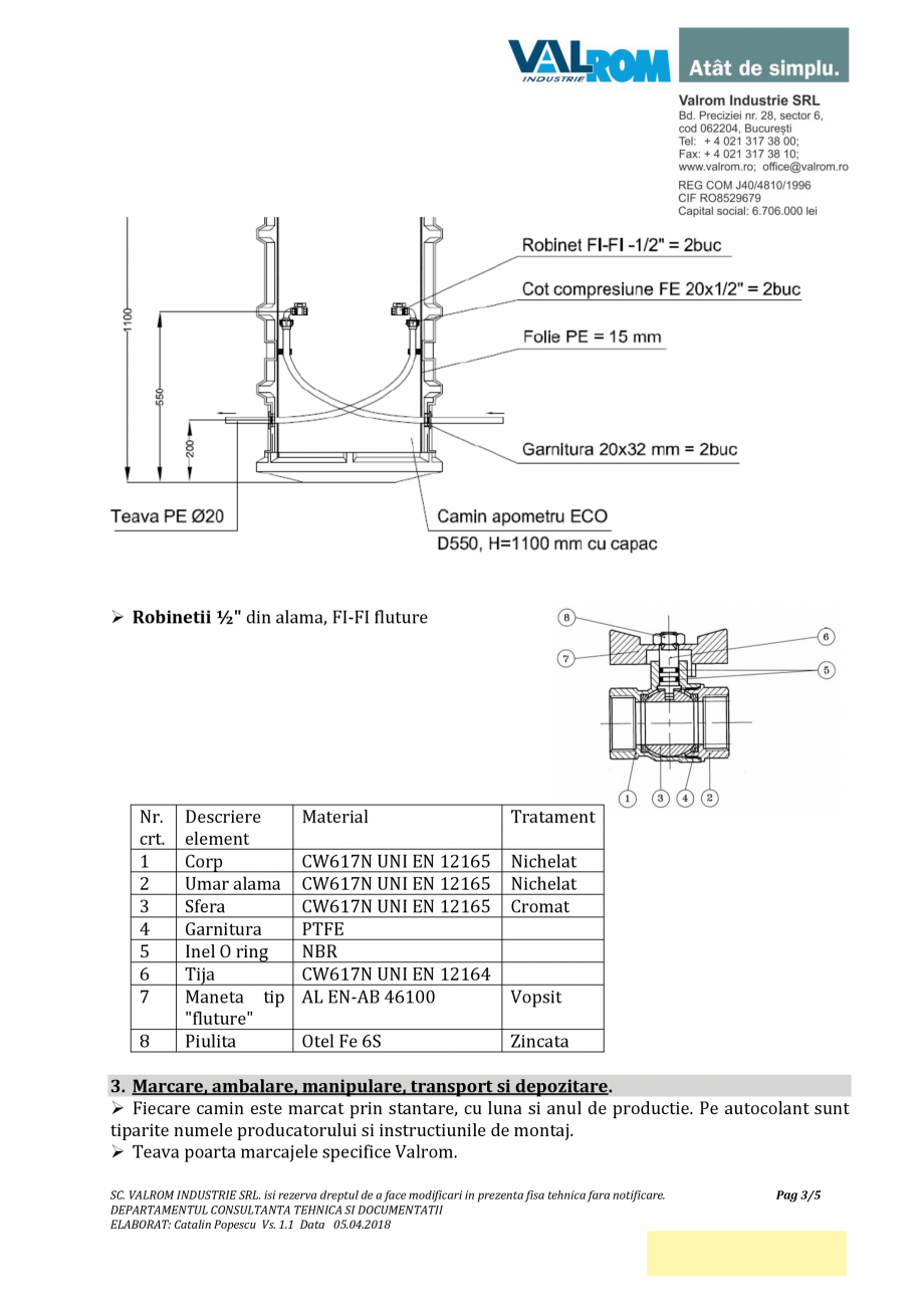
Pagina 3-Cămin ECO D550 H_1100 cu instalație și capac VALROM Cămine din polietilenă Fisa tehnica Romana ...
Pagina 4-Cămin ECO D550 H_1100 cu instalație și capac VALROM Cămine din polietilenă Fisa tehnica Romana ...
Pagina 5-Cămin ECO D550 H_1100 cu instalație și capac VALROM Cămine din polietilenă Fisa tehnica Romana ...
Durata de utilizare a robinetilor este de 20 ani.  Caminul de apometru, cu instalatie, este avizat de catre Consiliul Tehnic Permanent pentru Constructii, detine Aviz si Agrement tehnic, disponibile pe site: www.valrom.ro. 5. Punere in opera.  Verificare preliminara montajului: caminul trebuie sa aiba suprafata fara defecte vizibile cu ochiul liber sau deformatii care ar putea avea efecte asupra functionalitatii (incluziuni, zgarieturi, fisuri sau straturi care se desprind). Aceleasi conditii de integritate trebuie sa fie indeplinite si de catre instalatia interioara "in lira", respectiv coturile de compresiune, robinetii, garniturile la camin, tevile inclusiv portiunile acestora din exterior. Folia de izolatie din PEE trebuie sa acopere uniform suprafata interioara fara a prezenta rupturi sau parti lipsa.  Amplasarea caminului de apometru se va face intotdeauna in spatiul verde. Caminul NU a fost proiectat sa reziste la sarcini din trafic.  Daca nivelul maxim al panzei ... ascunde

Alte documentatii ale aceleasi game
Vezi toate

Sistem de tubulaturi pentru puțuri de apă

Catalog, brosura
19 p | RO
WaterPRO Țeavă apă potabilă PE100RC Tubulatură PVC PE100 CERT PE80 CERT
Sistem de alimentare cu apă rece

Catalog, brosura
72 p | RO
Pentru noi, confidențialitatea dvs. este importantă
Portalul spatiulconstruit.ro folosește cookies pentru a asigura funcționalitatea și securitatea site-ului, pentru a personaliza conținutul și modul de interacțiune, pentru a oferi facilități de social media și pentru a analiza modul în care este utilizat site-ul. Aceste cookies sunt stocate și prelucrate, de către noi sau partenerii noștri în conformitate cu toate reglementările în vigoare și toate standardele de confidențialitate și securitate actuale.

Vă rugăm să rețineți că este posibil ca anumite prelucrări ale datelor dumneavoastră cu caracter personal să nu necesite consimțământul dumneavoastră, dar vă puteți exprima acordul cu privire la prelucrarea realizată de către noi și partenerii noștri conform descrierii de mai sus utilizând butonul SUNT DE ACORD de mai jos.

Navigând în continuare, vă exprimați acordul implicit asupra folosirii cookie-urilor.

Mai multe detalii despre politica noastră de confidențialitate aflați aici: https://www.spatiulconstruit.ro/politica-de-confidentialitate.