Amorsa tricomponenta epoxi-cimentoasa pentru suprafete umede MAPEI TRIBLOCK P

Limba: Romana
55 afisari
Tip documentatie: Fisa tehnica
Salvează pdf
Pagina 1-Amorsa tricomponenta epoxi-cimentoasa pentru suprafete umede MAPEI TRIBLOCK P Fisa tehnica Romana...
Pagina 2-Amorsa tricomponenta epoxi-cimentoasa pentru suprafete umede MAPEI TRIBLOCK P Fisa tehnica Romana...
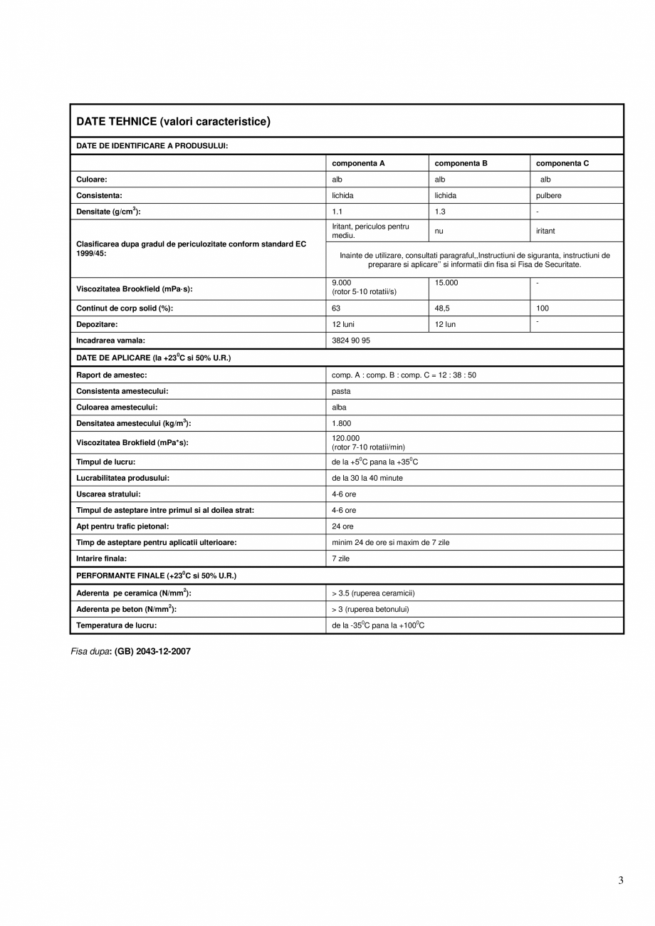
Pagina 3-Amorsa tricomponenta epoxi-cimentoasa pentru suprafete umede MAPEI TRIBLOCK P Fisa tehnica Romana ...
sa fie solid, perfect curat, rezistent din punct de vedere mecanic, fara parti dezagregate si film de apa. Trebuie sa fie suficient de maturat si faza de contractie sa fie in cea mai mare parte completa. Pregatirea stratului suport se poate face prin sablare, hidro-sablare, frezare cu alice, in concordanta cu conditiile stratului suport si aplicatiile ulterioare. Substraturile vechi din mozaic si ceramica trebuie sa prezinte aderenta buna la stratul suport, si sa nu aiba alte materiale reziduale pe suprafata, cum ar fi ceara, ulei, grasimi, etc. Daca suprafata ce urmeaza a fi tratata este neuniforma, trebuie reparata si nivelata inainte de a fi tratata cu produse rezistente la umiditate, sau cu Triblock P amestecat cu nisip 0,25 Quartz sau 0,5 Quartz. Prepararea amestecului Triblock P este compus din trei componente, din care doua sunt lichide si unul este sub forma de pulbere. Pentru prepararea produsului, amestecati componenta A cu componenta B pana se obtine un amestec omogen, uni ... ascunde
Pentru noi, confidențialitatea dvs. este importantă
Portalul spatiulconstruit.ro folosește cookies pentru a asigura funcționalitatea și securitatea site-ului, pentru a personaliza conținutul și modul de interacțiune, pentru a oferi facilități de social media și pentru a analiza modul în care este utilizat site-ul. Aceste cookies sunt stocate și prelucrate, de către noi sau partenerii noștri în conformitate cu toate reglementările în vigoare și toate standardele de confidențialitate și securitate actuale.

Vă rugăm să rețineți că este posibil ca anumite prelucrări ale datelor dumneavoastră cu caracter personal să nu necesite consimțământul dumneavoastră, dar vă puteți exprima acordul cu privire la prelucrarea realizată de către noi și partenerii noștri conform descrierii de mai sus utilizând butonul SUNT DE ACORD de mai jos.

Navigând în continuare, vă exprimați acordul implicit asupra folosirii cookie-urilor.

Mai multe detalii despre politica noastră de confidențialitate aflați aici: https://www.spatiulconstruit.ro/politica-de-confidentialitate.