Agrement ETA 21-0242 pentru ancora chimica RAWLPLUG R-CFS+KERII
Tip documentatie: Certificare produs
Salvează pdf
Full screen
Traducere din limba engleză
ITB
INSTYTUT TECHNIKI BUDOWLANEJ
PL 00-611 VARȘOVIA
ul. Filtrowa 1
Tel.:
(+48 22) 825-04-71
(+48 22) 825-76-55
Fax:
(+48 22) 825-52-86
www.itb.pl
Desemnat conform
articolului 29 din
Reglementarea (UE) Nr. 305/2011
și membru al EOTA
(Organizația Europeană pentru
Evaluare Tehnică)
Evaluare Tehnică Europeană
Membru al EOTA
www.eota.eu
ETA-21/0242
din data de 11.03.2021
Partea generală
Organismul de evaluare tehnică care emite Evaluarea
Tehnică Europeană
Instytut Techniki Budowlanej
Denumirea comercială a produsului de construcții
R-KER-II, R-KER-II-S și R-KER-II-W
Familia de produse căreia îi aparține produsul de
construcții
Elemente de prindere pentru utilizare în beton
Producător
RAWLPLUG S.A.
ul. Kwidzynska 6
51-416 Wroclaw
Polonia
Fabrică (fabrici) de producție
Fabrică de producție nr. 3
Prezenta evaluare tehnică europeană conține
45 pagini inclusiv 3 anexe ce formează parte integrantă a
prezentei evaluări
Pre
zenta evaluare tehnică europeană este emisă în
conformitate cu reglementarea (UE) nr. 305/2011, pe
baza
Documentului European de Evaluare EAD 330499-010601 ”Elemente de prindere pentru utilizare în beton”
Pagina 2 din Evaluarea Tehnică Europeană ETA-21/0242 emisă în data de 11.03.2021
Prezenta Evaluare Tehnică Europeană este emisă de către organismul de evaluare tehnică în limba sa oficială.
Traducerile prezentei evaluări tehnice europene în alte limbi trebuie să corespundă documentului emis inițial și vor fi
desemnate ca fiind traduceri.
Comunicarea prezentei Evaluări Tehnice Europene, inclusiv transmiterea prin mijloace electronice, se va efectua integral.
Cu toate acestea, reproducerea parțială se poate efectua doar cu acordul scris al Organismului de Evaluare Tehnică care
a emis-o. Orice reproducere parțială trebuie desemnată în mod corespunzător.
Pagina 3 din Evaluarea Tehnică Europeană ETA-21/0242 emisă în data de 11.03.2021
Parte speci
fică
1
Descrierea tehnică a produsului
R-KER-II, R-KER-II-S și R-KER-II-W sunt ancore de prindere (tip injecție) ce constau într-un cartuș cu mortar
de injectare ce utilizează un pistol de aplicare echipat cu o duză specială de amestecare și un element din
oțel.
Elementul din oțel constă în:
• dimensiuni tijă ancoră filetată M8 – M30 realizată din:
- oțel carbon galvanizat,
- oțel carbon cu înveliș din șpan de zinc,
- oțel inoxidabil,
- oțel inoxidabil cu rezistență ridicată la coroziune,
- oțel foarte rezistent cu înveliș din șpan de zinc,
cu piuliță hexagonală și șaibă,
• tijă ancoră cu dimensiuni ale filetului interior M6/ Φ10 la M16/ Φ24 realizată din:
- oțel carbon galvanizat,
- oțel inoxidabil,
- oțel inoxidabil cu rezistență ridicată la coroziune,
•
dimensiuni armătură Φ8 la Φ32.
Elementul din oțel este amplasat într-o gaură forată injectată în prealabil (utilizând un pistol de aplicare) cu
mortar cu o ușoară
mișcare de rotire. Tija sau armătura sunt ancorate în urma legăturii dintre elementul din
oțel și beton.
Tijele filetate sunt disponibile pentru toate diametrele cu trei tipuri de capete: un șanfren unilateral la 45°,
un șanfren bilateral la 45° sau un capăt plat. Tijele filetate sunt livrate fie cu cartușe cu mortar sau se
cumpără separat. Cartușele de mortar sunt disponibile în diferite dimensiuni și tipuri.
În Anexa A se găsește o descriere a produselor.
2
Specificații cu privire la utilizarea intenționată conform Documentului European de Evaluare (EAD)
aplicabil
Performanțele prezentate în Capitolul 3 sunt valabile doar dacă ancorele se utilizează conform specificațiilor
și condițiilor indicate în Anexa B.
Performanțele indicate în prezenta Evaluare Tehnică Europeană se bazează pe o durată de viață a ancorei de
50 și/sau 100 de ani. Indicațiile date cu privire la durata de viață nu pot fi considerate drept o garanție
oferită de către
producător sau organismul de evaluare tehnică, însă trebuie privite drept un mijloc pentru
alegerea produselor corecte în legătură cu durata de viață rezonabilă a lucrărilor din punct de vedere
economic.
3
Performanța produsului și referințele metodelor utilizate pentru evaluarea sa
3.1
Performanța produsului
3.1.1
Rezistență mecanică și stabilitate (BWR 1)
Caracteristică esențială
Rezistență caracteristică în cazul sarcinilor statice
și cvasistatice, dislocărilor
Rezistență caracteristică pentru categoria C1
aferentă performanței seismice, dislocări
Performanță
Vezi Anexa C1 – C15
Vezi Anexa C16 – C18
Pagina 4 din Evaluarea Tehnică Europeană ETA-21/0242 emisă în data de 11.03.2021
3.1.2
Igienă, sănătate și mediu (BWR 3)
Nu este evaluată nicio performanță.
3.2
Metode utilizate pentru evaluare
Evaluarea produsului în ceea ce privește utilizarea intenționată declarată s-a efectuat conform EAD 33049901-0601.
4
Evaluare
a și verificarea constanței performanței (AVCP) a sistemului aplicat, cu referire la baza sa
legală
Conform Deciziei 96/582/EC a Comisiei Europene, se aplică sistemul 1 de evaluare și verificare a constanței
performanței (vezi Anexa V la Reglementarea (UE) nr. 305/2011).
5
Detalii tehnice necesare implementării sistemului AVCP, așa după cum se prezintă în Documentul
European de Evaluare (EAD) aplicabil
Detaliile tehnice necesare implementării sistemului AVCP sunt prezentate în planul de control depus la
Instytut Techniki Budowlanej.
Pentru testarea tip, rezultatele testelor efectuate ca parte a evaluării pentru Evaluarea Tehnică Europeană se
utilizează doar în cazul în care nu există modificări ale liniei de producție sau fabricii. În astfel de cazuri,
testarea tip necesară trebuie convenită între Instytut Techniki Budowlanej și organismul notificat.
Emisă în Varșovia, în data de 11.03.2021 de către Instytut Techniki Budowlanej
Semnătură indescifr
abilă
Anna Panek, absolvent de studii de master
Director Adjunct ITB
Pagina 5 din Evaluarea Tehnică Europeană ETA-21/0242 emisă în data de 11.03.2021
R-KER-II, R-KER-II-S și R-KER-II-W
Descriere produs
Tije ancore filetate
Anexa A1
a Evaluării Tehnice
Europene ETA-21/0242
Pagina 6 din Evaluarea Tehnică Europeană ETA-21/0242 emisă în data de 11.03.2021
Tije de ancorare cu filet interior
Marcare:
R – marcă identificare
ITS – index produs
Z – oțel carbon sau oțel inoxidabil A4
XX – dimensiune filet
YYY – lungime manșon
Armătură
încastrarea marcajului adâncimii hef
R-KER-II, R-KER-II-S și R-KER-II-W
Descriere produs
Tije ancoră cu filet interior și armătură
Anexa A2
a Evaluării Tehnice
Europene ETA-21/0242
Pagina 7 din Evaluarea Tehnică Europeană ETA-21/0242 emisă în data de 11.03.2021
Tabel A1: Tije filetate
Piesă
Oțel, placat cu zinc
Tijă filetată
Piuliță
hexagonală
Șaibă
Oțel, clasă proprietate 5.8 – 12.9
conform EN I
SO 898-1 galvanizat
≥ 5 μm conform EN ISO 4042 sau
galvanizat la cald ≥ 45 μm conform
EN ISO 10684 sau înveliș cu șpan
de zinc aplicat non-electrolitic ≥ 8
μm conform EN ISO 10683
Oțel, clasă proprietate 5 – 12
conform EN ISO 898-2 galvanizat
≥ 5 μm conform EN ISO 4042 sau
galvanizat la cald ≥ 45 μm conform
EN ISO 10684 sau înveliș cu șpan
de zinc aplicat non-electrolitic ≥ 8
μm conform EN ISO 10683
Oțel, conform EN ISO 7089;
galvanizat ≥ 5 μm conform EN ISO
4042 sau galvanizat la cald ≥ 45
μm conform EN ISO 10684 sau
înveliș cu șpan de zinc aplicat nonelectrolitic ≥ 8 μm conform EN ISO
10683
Desemnare
Oțel inoxidabil
Oțel 1.4401, 1.4404
1.4571 conform EN
10088; clasă
proprietate 70 – 80
(A4-70 și A4-80)
conform EN ISO 3506
Clasă rezistență la
coroziune CRC III
conform EN 1993-14:2006+A1:2015
Oțel 1.4401, 1.4404,
1.4571 conform EN
10088; clasă
proprietate 70 – 80
(A4-70 și A4-80)
conform EN ISO 3506
Clasă rezistență la
corozi
une CRC III
conform EN 1993-14:2006+A1:2015
Oțel 1.4401, 1.4404,
1.4571 conform EN
10088
Clasă rezistență la
coroziune CRC III
conform EN 1993-14:2006+A1:2015
Oțel inoxidabil cu
rezistență înaltă la
coroziune (HCR)
Oțel 1.4529, 1.4565,
1.4547 conform EN
10088; clasă
proprietate 70
conform EN ISO 3506
Clasă rezistență la
coroziune CRC V
conform EN 1993-14:2006+A1:2015
Oțel cu rezistență
foarte înaltă, acoperit
Oțel 1.4529, 1.4565,
1.4547 conform EN
10088; clasă
proprietate 70
conform EN ISO 3506
Clasă rezistență la
coroziune CRC V
conform EN 1993-14:2006+A1:2015
Oțel, clasă proprietate
14.8U – 16.8U conform
USCAR-UHSFG-1416U,
înveliș cu șpan de zinc
aplicat non-electrolitic
≥ 8 μm conform EN ISO
10683
Oțel 1.4529, 1.4565,
1.4547 conform EN
10088
Clasă rezistență la
coroziune CRC V
conform EN 1993-14:2006+A1:2015
Oțel sau înveliș cu șpan
de zinc aplicat nonelectrolitic ≥ 8 μm
conform EN ISO 10683
Oțel, clasă proprietate
14.8U – 16.8
U conform
USCAR-UHSFG-1416U,
înveliș cu șpan de zinc
aplicat non-electrolitic
≥ 8 μm conform EN ISO
10683
Tijele filetate standard comerciale (doar în cazul tijelor realizate din oțel galvanizat – tije standard cu clasă
proprietate ≤ 8.8) cu:
- material și proprietăți mecanice conform Tabelului A1,
- confirmarea materialului și proprietăților mecanice pe baza certificatului de verificare 3.1 conform EN0204:2004; documentele vor fi păstrate;
- marcarea tijei filetate cu adâncime de încastrare.
Notă: Tijele filetate standard comerciale realizate din oțel galvanizat având clasa peste 8.8 nu sunt permise în unele
State Membre.
R-KER-II, R-KER-II-S și R-KER-II-W
Descriere produs
Materiale
Anexa A3
a Evaluării Tehnice
Europene ETA-21/0242
Pagina 8 din Evaluarea Tehnică Europeană ETA-21/0242 emisă în data de 11.03.2021
Tabel A2: tije cu interior filetat
Piesă
Desemnare
Oțel inoxidabil
Oțel, placat cu zinc
Tijă cu
interior
filetat
Oțel, clasă propr
ietate 5.8 – 8.89
conform EN ISO 898-1 galvanizat
≥ 5 μm conform EN ISO 4042 sau
galvanizat la cald ≥ 45 μm conform
EN ISO 10684
Oțel 1.4401, 1.4404,
1.4571 conform EN
10088; clasă
proprietate 70 și 80
(A4-70 și A4-80)
conform EN ISO 3506
Clasă rezistență la
coroziune CRC III
conform EN 1993-14:2006+A1:2015
Oțel inoxidabil cu rezistență înaltă la
coroziune (HCR)
Oțel 1.4529, 1.4565, 1.4547 conform EN 10088;
clasă proprietate 70 conform EN ISO 3506
Clasă rezistență la coroziune CRC V conform EN
1993-1-4:2006+A1:2015
Tabel A3: Armătură conform EN 1992-1-1, Anexa C
Formă produs
Clasă
Rezistență caracteristică la curgere fyk sau f0,2k [N/mm2]
Valoare minimă k = (ft/fy)k
Tensiune caracteristică la forță maximă, ɛuk[%]
Posibilitate de îndoire
Abatere maximă de la dimensiunea nominală
(bară individuală) [%]
Dimensiune nominală bară [mm]
≤8
>8
Îndoire: suprafață nervură relativă minimă, fR,min
Dimensiune nominală bară [mm]
8 - 12
> 12
Înălțime nervură h: Înălțimea maximă a nervurii hrib va fi: hrib≤0,07 Φ
Tabel A4: Mortare injectare
Produs
Bare și tije desfășurate
B
C
400 - 600
≥ 1,08
≥1,15
< 1,35
≥5,0
≥7,5
Test îndoire / re-îndoire
±6,0
±4,5
0,040
0,056
Compoziție
R-KER-II
(mortare injecție două componente)
Aditiv: cuarț
Agent legare: rășină vinil ester fără stiren
Agent de întărire: peroxid de dibenzoil
R-KER-II, R-KER-II-S și R-KER-II-W
Descriere produs
Materiale
Anexa A4
a Evaluării Tehnice
Europene ETA-21/0242
Pagina 9 din Evaluarea Tehnică Europeană ETA-21/0242 emisă în data de 11.03.2021
Cartușe coaxiale – 150 ml, 280 ml, 300 ml, 310 ml, 330 ml, 380 ml, 400 ml, 410 ml, 420 ml
Cartușe alăturate – 345 ml, 425 ml, 825 ml
Cartușe pentru capsule cu folie alcătuită din două părți în cadrul unei componente unice –
150 ml, 280 ml, 300 ml, 310 ml, 330 ml, 380 ml, 400 ml, 550 ml, 600 ml
Dispozitiv de amestecare pentru cartuș
Capsule tip folie (sis
tem CFS) – 150 ml, 175 ml, 280 ml, 300 ml, 310 ml, 380 ml, 550 ml, 600 ml
Dispozitiv de amestecare pentru capsulă tip folie (sistem CFS)
Dispozitiv standard de amestecare plus adaptor CFS + pentru capsulă tip folie
R-KER-II, R-KER-II-S și R-KER-II-W
Descriere produs
Tipuri și dimensiuni cartuș
Anexa A5
a Evaluării Tehnice
Europene ETA-21/0242
Pagina 10 din Evaluarea Tehnică Europeană ETA-21/0242 emisă în data de 11.03.2021
Specificații cu privire la utilizarea intenționată
Ancorele fac obiectul:
Sarcinilor statice și cvasistatice: dimensiune tijă filetată M8 – M30, tijă cu dimensiuni filet interior M6/ Φ10 la M16/
Φ24 și armătură Φ8 la Φ32.
Categorie performanță seismică C1: dimensiune tijă filetată M8 – M30 și armătură Φ8 – Φ32.
Material de bază:
▪ Beton cu greutate normală, armat sau nearmat, clasă rezistență C20/25 - C50/60 conform EN 2062013+A1:2016
▪ Beton fisurat și nefisurat
Intervale de temperatură:
Temperatură instala
re (temperatura substratului):
▪ -5°C la +40°C în cazul R-KER-II (versiune standard).
▪ +5°C la +40°C în cazul R-KER-II-S (versiune pentru vară).
▪ -20°C la +40°C în cazul R-KER-II-W (versiune pentru iarnă).
Temperatură utilizare:
Ancorele pot fi folosite în următorul interval de temperatură:
▪ -40°C la +40°C (temperatură maximă pe o perioadă scurtă de timp +40°C și temperatură maximă pe o
perioadă lungă de timp +24°C).
▪ -40°C la +80°C (temperatură maximă pe o perioadă scurtă de timp +80°C și temperatură maximă pe o
perioadă lungă de timp +50°C).
▪ -40°C la +120°C (temperatură maximă pe o perioadă scurtă de timp +120°C și temperatură maximă pe o
perioadă lungă de timp +80°C).
▪
Condiții de utilizare:
▪ Structuri ce fac obiectul condițiilor interne uscate: toate materialele
▪ Pentru toate condițiile conform EN 1993-1-4:2006+A1:2015 corespunzător clasei de rezistență la coroziune
(CRC): elemente realizate din
oțel inoxidabil sau oțel inoxidabil cu rezistență mare la coroziune (HCR).
Instalare:
▪ Beton uscat sau umed (categorie utilizare I1).
▪ Găuri inundate (categorie utilizare I2).
▪ Direcție instalare D3 (instalare înspre partea inferioară, orizontală și superioară)
▪ Ancorele pot fi utilizate pentru găurile realizate cu ciocanul rotativ sau prin intermediul metodei speciale cu
curățare în timpul realizării unei găuri utilizând un element de găurire cu aspirator.
Metode de proiectare:
▪ Ancorările sub sarcini statice sau cvasi-statice sunt proiectate conform EN 1992-4:2018 și Raportului Tehnic
EOTA TR 055.
▪ Ancorele sunt proiectate cu responsabilitatea inginerului cu experiență în ancorări și lucrări de betonare.
▪ Notele de calcul verificabile și desenele sunt întocmite ținând cont de sarcinile ce trebuie ancorate. Poziția
ancorei este indicată în desenele de proiectare (de exemplu, poziția ancorei față de armătură sau elemente de
sp
rijin etc.).
▪ Ancorările sub acțiuni seismice (beton fisurat) trebuie proiectate conform EN 1992-4:2018.
R-KER-II, R-KER-II-S și R-KER-II-W
Utilizare
Specificații
Anexa B1
a Evaluării Tehnice
Europene ETA-21/0242
Pagina 11 din Evaluarea Tehnică Europeană ETA-21/0242 emisă în data de 11.03.2021
Tabel B1: Parametrii instalare – tijă ancoră filetată
Dimensiune
M8
M10
Diametrul
tijei
de d[mm]
8
10
ancorare
Diametrul nominal de d0[mm]
10
12
găurire
Diametrul
maxim
al df[mm]
9
12
găurii din dispozitivul de
fixare
Adâncime
efectivă hef,min[mm]
60
60
încastrare
hef,max[mm]
160
200
Adâncimea găurii
Grosimea
betonului
Moment
torsiune
minimă
maxim
M12
12
M16
16
M20
20
M24
24
M30
30
14
18
24
28
35
14
18
22
26
32
60
60
80
96
120
240
320
400
480
600
h0 [mm]
a
de
hef + 5 mm
hmin[mm]
hef + 30 mm; ≥ 100 mm
hef + 2d0
Tinst max[N m]
10
20
40
80
120
160
200
Distanțare minimă
smin[mm]
40
40
40
40
40
50
60
Distanța minimă f
ață de
margine
cmin[mm]
40
40
40
40
40
50
60
R-KER-II, R-KER-II-S și R-KER-II-W
Utilizare
Parametrii instalare - tijă ancoră filetată
Anexa B2
a Evaluării Tehnice
Europene ETA-21/0242
Pagina 12 din Evaluarea Tehnică Europeană ETA-21/0242 emisă în data de 11.03.2021
Tabel B2: Parametrii instalare – tijă ancoră cu filet interior
Dimensiune
M6/
M8/
Φ10
Φ12/
/75
75
M8/
Φ12/
90
M10/
Φ16/
75
M10/
Φ16/
100
M12/
Φ16/
100
M16/
Φ24/
125
Diametrul nominal de
găurire
Diametrul
maxim
al
găurii din dispozitivul de
fixare
Adâncime
efectivă
încastrare
d0[mm]
12
14
14
20
20
20
28
df[mm]
7
9
9
12
12
14
18
hef = hnom[mm]
75
75
90
75
100
100
125
Lungime filet, minimă
ls[mm]
24
25
25
30
30
35
50
Adâncimea găurii
h0 [mm]
Grosimea
minimă
betonului
Moment de torsiune
a
hef + 5 mm
hmin[mm]
hef + 30 mm; ≥ 100 mm
hef + 2d0
Tinst[N x m]
3
5
5
10
10
20
40
Distanțare minimă
smin[mm]
40
40
50
40
50
50
70
Distanța minimă față de
margine
cmin[mm]
40
40
50
40
50
50
70
R-KER-II, R-KER-II-S și R-KER-II-W
Utilizare
Parametrii instalare - tijă ancoră cu filet interior
Anexa B3
a Evaluării Tehnice
Europene ETA-21/0242
Pagina 13 din Evaluarea Tehnică Europeană ETA-21/0242 emisă în data de 11.03.2021
Tabel B3: Parametrii instalare - armătură
Dimensiune
Φ8
Diametrul nominal d0[mm]
12
de găurire
hef,min[mm]
60
Adâncime efectivă
încastrare
hef,max[mm]
160
Φ10
14
Φ12
18
Φ14
18
Φ16
22
Φ20
26
Φ25
32
Φ32
40
60
60
60
64
80
100
128
200
240
240
320
400
500
640
Adâncimea găurii
h0 [mm]
hef + 5 mm
Grosimea minimă a
betonului
Distanțare minimă
hmin[mm]
smin[mm]
40
40
40
40
40
40
50
70
Distanța
minimă
față de margine
cmin[mm]
40
40
40
40
40
40
50
70
hef + 30 mm; ≥ 100 mm
R-KER-II, R-KER-II-S și R-KER-II-W
Utilizare
Parametrii instalare - armătură
hef + 2d0
Anexa B4
a Evaluării Tehnice
Europene ETA-21/0242
P
agina 14 din Evaluarea Tehnică Europeană ETA-21/0242 emisă în data de 11.03.2021
Tabel B4: Timp de procesare și timp minim de întărire
R-KER-II (versiune standard)
Temperatură rășină
Temperatură substrat
Durată procesare [min.]
[°C]
[°C]
+5
-5
40
+5
0
30
+5
+5
15
+10
+10
8
+15
+15
5
+20
+20
2,5
+25
+25
2
+25
+30
2
+25
+35
1,5
+25
+40
1,5
Durată minimă întărire1)
[min.]
1440
180
90
60
60
45
45
45
30
30
Tabel B5: Durată procesare și durată minimă de întărire
R-KER-II-S (versiune pentru vară)
Temperatură rășină
Temperatură substrat
Durată procesare [min.]
[°C]
[°C]
+5
+5
40
+10
+10
20
+15
+15
15
+20
+20
10
+25
+25
9,5
+25
+30
7
+25
+35
6,5
+25
+40
6,5
Durată minimă întărire1)
[min.]
720
480
360
240
180
120
120
90
Tabel B6: Durată procesare și durată minimă de întărire
R-KER-II-W (versiune pentru iarnă)
Temperatură rășină
Temperatură substrat
Durată procesare [min.] Durată minimă întărire1)
[°C]
[°C]
[min.]
+5
-20
100
1440
+5
-15
60
960
+5
-10
40
480
+5
-5
20
240
+5
0
14
120
+5
+5
9
60
+10
+10
5,5
45
+15
+15
3
30
+20
+20
2
15
+25
+25
1,5
10
+25
+30
1,5
10
+25
+35
1
5
+25
+40
1
5
1) Durata minimă de la sfârșitul amestecării până la momentul în care ancora poate fi răsucită sau supusă unei sarcini
(în funcție de care dintre ele este mai lung). Temperatura minimă a rășinii pentru instalare +5°C; temperatura maximă
a rășinii pentru instalare +25°C. Pentru condiții de umezeală și găuri inundate, durata de întărire trebuie dublată.
R-KER-II, R-KER-II-S și R-KER-II-W
Utilizare
Timp maxim procesare și timp minim uscare
Anexa B5
a Evaluării Tehnice
Europene ETA-21/0242
Pagina 15 din Evaluarea Tehnică Europeană ETA-21/0242 emisă în data de 11.03.2021
Prelungire dispozitiv de amestecare
Lungime variabilă de la 300 mm la 1000 mm
Pompă suflare manuală
Perie de sârmă
Perie cu prelungire
Dopuri pistol
R-KER-II, R-KER-II-S și R-KER-II-W
Utilizare
Instrumente (1)
Burghiu cu aspir
ator
Pană provizorie de centrare
Anexa B6
a Evaluării Tehnice
Europene ETA-21/0242
Pagina 16 din Evaluarea Tehnică Europeană ETA-21/0242 emisă în data de 11.03.2021
Dozatoare
Dimensiune cartuș sau capsulă folie
380, 400, 410 și 420 ml
Pistol manual pentru cartușe coaxiale
345 ml
Pistol manual pentru cartușe alăturate
150, 175, 280, 300 și 310 ml
Pistol manual pentru capsulă folie în cartuș și cartușe
coaxiale
300 la 600 ml
Pistol manual pentru capsule folie CFS+
380, 400, 410 și 420 ml
Pistol dozator fără cablu pentru cartușe coaxiale
300 la 600 ml
Pistol dozator fără cablu pentru capsule folie
380, 400, 410 și 420 ml
Pistol pneumatic pentru cartușe coaxiale
R-KER-II, R-KER-II-S și R-KER-II-W
Utilizare
Instrumente (2)
Anexa B7
a Evaluării Tehnice
Europene ETA-21/0242
Pagina 17 din Evaluarea Tehnică Europeană ETA-21/0242 emisă în data de 11.03.2021
Tabel B7: Diametrul periei pentru tija filetată
Diametru tijă filetată
M8
M10
db Diametru p
erie
[mm]
12
14
M12
16
M16
20
Tabel B8: Diametru perie standard pentru tijă cu filet interior
Diametru tijă filetată
M6/ Φ10
M8/ Φ12
db Diametru perie
[mm]
16
16
Tabel B9: Diametru perie pentru armătură
Diametru armătură
Φ8
Φ 10
db
Diametru perie
[mm]
14
16
Tabel B10: Dimensiune dop piston
Diametru gaură
16
18
[mm]
Descriere dop
Φ16 Φ18
piston
20
22
Φ20 – Φ22
Φ12
20
24
Utilizare
Instrumente (2)
M10/ Φ16
22
Φ14
20
25
Φ24- Φ26
R-KER-II, R-KER-II-S și R-KER-II-W
M20
26
26
M12/ Φ16
22
Φ16
24
28
Φ28
M24
30
Φ20
28
30
32
Φ30- Φ32
M30
37
M16/ Φ24
30
Φ25
37
Φ32
42
35
40
50
Φ35
Φ40
Φ50
Anexa B8
a Evaluării Tehnice
Europene ETA-21/0242
Pagina 18 din Evaluarea Tehnică Europeană ETA-21/0242 emisă în data de 11.03.2021
1. Realizați o gaură având diametrul și adâncimea necesare utilizând
un aparat penetrant rotativ.
2. Curățare gaură
a.
b.
-
Curățați gaura cu peria și pompa manuală:
începând din partea in
ferioară a găurii, suflați gaura de minim
4 ori utilizând pompa manuală
utilizând peria specificată, periați mecanic gaura de minim 4
ori
începând din partea inferioară a găurii, suflați de cel puțin 4
ori cu pompa manuală.
Curățarea găurii cu aer comprimat:
începând din partea inferioară a găurii, suflați gaura de minim
două ori cu aer comprimat (6 atm)
utilizând peria specificată, periați mecanic gaura de cel puțin
două ori
suflați gaura de cel puțin două ori cu aer comprimat (6 atm)
periați gaura de cel puțin două ori
suflați gaura de cel puțin două ori cu aer comprimat (6 atm)
3. Introduceți cartușul în dozator și prindeți ajutajul. Eliminați
produsul prin dozator pentru a obține o culoare clară (min 10 cm).
4. Introduceți ajutajul de amestecare până în capătul îndepărtat al
găurii și injectați rășina, retrăgând ușor ajutajul pe măsură ce gaura se
umple până la 2/3 din adâncimea sa.
5. Introduceți imediat știftu
l, încet și cu o ușoară mișcare de rotire.
Îndepărtați orice rășină în exces din jurul găurii înainte de întărirea sa.
6. Lăsați sistemul de prindere până când trece durata de întărire.
7. Prindeți dispozitivul de strângere și strângeți piulița la momentul
necesar. Momentul de instalare aplicat nu poate depăși Tinst,max.
R-KER-II, R-KER-II-S și R-KER-II-W
Utilizare
Instrucțiuni instalare – tijă filetată – curățare standard
Anexa B9
a Evaluării Tehnice
Europene ETA-21/0242
Pagina 19 din Evaluarea Tehnică Europeană ETA-21/0242 emisă în data de 11.03.2021
1. Realizați o gaură având diametrul și adâncimea necesare utilizând
un burghiu cu aspirator.
2. Introduceți cartușul în dozator și prindeți ajutajul. Eliminați
produsul prin dozator pentru a obține o culoare clară.
3. Introduceți ajutajul de amestecare până în capătul îndepărtat al
găurii și injectați rășina, retrăgând ușor ajutajul pe măsură ce gaura
se
umple până la 2/3 din adâncimea sa.
4. Introduceți imediat știftul, încet și cu o ușoară mișcare de rotire.
Îndepărtați orice rășină în exces din jurul găurii înainte de întărirea sa.
5. Lăsați sistemul de prindere până când trece durata de întărire.
6. Prindeți dispozitivul de strângere și strângeți piulița la momentul
necesar. Momentul de instalare aplicat nu poate depăși Tinst,max.
R-KER-II, R-KER-II-S și R-KER-II-W
Utilizare
Instrucțiuni instalare – tijă filetată – curățare cu vârf burghiu tubular
(metodă specială de curățare)
Anexa B10
a Evaluării Tehnice
Europene ETA-21/0242
Pagina 20 din Evaluarea Tehnică Europeană ETA-21/0242 emisă în data de 11.03.2021
1. Injectați dinspre partea inferioară a găurii. Injectați produsul
aproximativ 2/3 din adâncimea găurii. Pentru cele mai bune rezultate,
utilizați un element de prelungire și un dop corespunzător pistonului
montat pe dispozitivul de amestecare.
2. Intr
oduceți știftul imediat în gaură. Utilizați un element de blocare
provizorie.
3. Lăsați sistemul de prindere până când trece durata de întărire.
Pentru a evita alunecarea știftului (ca urmare a propriei greutăți a
știftului), utilizați un element provizoriu de blocare.
R-KER-II, R-KER-II-S și R-KER-II-W
Utilizare
Instrucțiuni instalare – tijă filetată – instalare în partea superioară
Anexa B11
a Evaluării Tehnice
Europene ETA-21/0242
Pagina 21 din Evaluarea Tehnică Europeană ETA-21/0242 emisă în data de 11.03.2021
1. Realizați o gaură având diametrul și adâncimea necesare utilizând
un aparat penetrant rotativ.
2. Curățare gaură
a.
Curățați gaura cu peria și pompa manuală:
începând din partea inferioară a găurii, suflați gaura de minim
4 ori utilizând pompa manuală
utilizând peria specificată, periați mecanic gaura de minim 4
ori
începând din partea inferioară a găurii, suflați de cel puțin 4
ori cu pompa manuală.
b.
C
urățarea găurii cu aer comprimat:
începând din partea inferioară a găurii, suflați gaura de minim
două ori cu aer comprimat (6 atm)
utilizând peria specificată, periați mecanic gaura de cel puțin
două ori
suflați gaura de cel puțin două ori cu aer comprimat (6 atm)
periați gaura de cel puțin două ori
suflați gaura de cel puțin două ori cu aer comprimat (6 atm)
3. Introduceți cartușul în dozator și prindeți ajutajul. Eliminați
produsul prin dozator pentru a obține o culoare clară (min 10 cm).
4. Introduceți ajutajul de amestecare până în capătul îndepărtat al
găurii și injectați rășina, retrăgând ușor ajutajul pe măsură ce gaura se
umple până la 2/3 din adâncimea sa.
5. Introduceți imediat tija cu filet interior, încet și cu o ușoară mișcare
de rotire. Îndepărtați orice rășină în exces din jurul găurii înainte de
întărirea sa.
6. Lăsați sistemul de prindere până când trece durata de întărire.
7. Prindeți di
spozitivul de strângere și strângeți piulița la momentul
necesar. Momentul de instalare aplicat nu poate depăși Tinst,max.
R-KER-II, R-KER-II-S și R-KER-II-W
Utilizare
Instrucțiuni instalare – tijă filetată cu filet interior – curățare standard
Anexa B12
a Evaluării Tehnice
Europene ETA-21/0242
Pagina 22 din Evaluarea Tehnică Europeană ETA-21/0242 emisă în data de 11.03.2021
1. Realizați o gaură având diametrul și adâncimea necesare utilizând
un burghiu cu aspirator.
2. Introduceți cartușul în dozator și prindeți ajutajul. Eliminați
produsul prin dozator pentru a obține o culoare clară (minim 10 cm).
3. Introduceți ajutajul de amestecare până în capătul îndepărtat al
găurii și injectați rășina, retrăgând ușor ajutajul pe măsură ce gaura se
umple până la 2/3 din adâncimea sa.
4. Introduceți imediat tija cu filet interior, încet și cu o ușoară mișcare
de rotire. Îndepărtați orice rășină în exces din jurul găurii
înainte de
întărirea sa.
5. Lăsați sistemul de prindere până când trece durata de întărire.
6. Prindeți dispozitivul de strângere și strângeți piulița la momentul
necesar. Momentul de instalare aplicat nu poate depăși Tinst,max.
R-KER-II, R-KER-II-S și R-KER-II-W
Utilizare
Instrucțiuni instalare – tijă filetată cu filet interior – curățare cu vârf burghiu tubular
(metodă specială de curățare)
Anexa B13
a Evaluării Tehnice
Europene ETA-21/0242
Pagina 23 din Evaluarea Tehnică Europeană ETA-21/0242 emisă în data de 11.03.2021
1. Realizați o gaură având diametrul și adâncimea necesare utilizând
un aparat penetrant rotativ.
2. Curățare gaură
a.
Curățați gaura cu peria și pompa manuală:
începând din partea inferioară a găurii, suflați gaura de minim
4 ori utilizând pompa manuală
utilizând peria specificată, periați mecanic gaura de minim 4
ori
începând din partea inferioară a găurii, suflați de cel puțin 4
ori cu pom
pa manuală.
b.
Curățarea găurii cu aer comprimat:
începând din partea inferioară a găurii, suflați gaura de minim
două ori cu aer comprimat (6 atm)
utilizând peria specificată, periați mecanic gaura de cel puțin
două ori
suflați gaura de cel puțin două ori cu aer comprimat (6 atm)
periați gaura de cel puțin două ori
suflați gaura de cel puțin două ori cu aer comprimat (6 atm)
3. Introduceți cartușul în dozator și prindeți ajutajul. Eliminați
produsul prin dozator pentru a obține o culoare clară (min 10 cm).
4. Introduceți ajutajul de amestecare până în capătul îndepărtat al
găurii și injectați rășina, retrăgând ușor ajutajul pe măsură ce gaura se
umple până la 2/3 din adâncimea sa.
5. Introduceți imediat armătura, încet și cu o ușoară mișcare de rotire.
Îndepărtați orice rășină în exces din jurul găurii înainte de întărirea sa.
6. Lăsați sistemul de prindere până când trece durata de întărire.
R-KER-II, R
-KER-II-S și R-KER-II-W
Utilizare
Instrucțiuni instalare – armătură – curățare standard
Anexa B14
a Evaluării Tehnice
Europene ETA-21/0242
Pagina 24 din Evaluarea Tehnică Europeană ETA-21/0242 emisă în data de 11.03.2021
1. Realizați o gaură având diametrul și adâncimea necesare utilizând
un burghiu cu aspirator.
2. Introduceți cartușul în dozator și prindeți ajutajul. Eliminați
produsul prin dozator pentru a obține o culoare clară (min10 cm).
3. Introduceți ajutajul de amestecare până în capătul îndepărtat al
găurii și injectați rășina, retrăgând ușor ajutajul pe măsură ce gaura se
umple până la 2/3 din adâncimea sa.
4. Introduceți imediat armătura, încet și cu o ușoară mișcare de rotire.
Îndepărtați orice rășină în exces din jurul găurii înainte de întărirea sa.
5. Lăsați sistemul de prindere până când trece durata de întărire.
R-KER-II, R-KER-II-S și R-KER-II-W
Utilizare
Instrucțiuni instalare – ar
mătură – curățare cu vârf burghiu tubular
(metodă specială de curățare)
Anexa B15
a Evaluării Tehnice
Europene ETA-21/0242
Pagina 25 din Evaluarea Tehnică Europeană ETA-21/0242 emisă în data de 11.03.2021
1. Injectați dinspre partea inferioară a găurii. Injectați produsul
aproximativ 2/3 din adâncimea găurii. Pentru cele mai bune rezultate,
utilizați un element de prelungire și un dop corespunzător pistonului
montat pe dispozitivul de amestecare.
2. Introduceți armătura imediat în gaură. Utilizați un element de
blocare provizorie.
3. Lăsați sistemul de prindere până când trece durata de întărire.
Pentru a evita alunecarea armăturii (ca urmare a propriei greutăți a
armăturii), utilizați un element provizoriu de blocare.
R-KER-II, R-KER-II-S și R-KER-II-W
Utilizare
Instrucțiuni instalare – armătură – instalare în partea superioară
Anexa B16
a Evaluării Tehnice
Europene ETA-21/0242
Pagina 26 din Evaluarea Tehnică Europeană E
TA-21/0242 emisă în data de 11.03.2021
Tabel C1: Valori caracteristice pentru sarcini de tensiune pentru tijă filetată în beton nefisurat
Dimensiune
M8
M10 M12 M16
M20
M24
Defectare oțel
Defectare oțel cu tijă filetată grad 5.8
Rezistență caracteristică
NRk,s
[kN]
18
29
42
78
122
176
Factor siguranță parțială1)
γMs
[-]
1,50
Defectare oțel cu tijă filetată grad 8.8
Rezistență caracteristică
NRk,s
[kN]
29
46
67
125
196
282
Factor siguranță parțială1)
γMs
[-]
1,50
Defectare oțel cu tijă filetată grad 10.9
Rezistență caracteristică
NRk,s
[kN]
36
58
84
157
245
353
Factor siguranță parțială1)
γMs
[-]
1,40
Defectare oțel cu tijă filetată grad 12.9
Rezistență caracteristică
NRk,s
[kN]
43
69
101
188
294
423
Factor siguranță parțială1)
γMs
[-]
1,40
Defectare oțel cu tijă filetată din oțel inoxidabil A4-70
Rezistență caracteristică
NRk,s
[kN]
25
40
59
109
171
247
Factor siguranță parțială1)
γMs
[-]
1,87
Defectare oțel cu tijă filetat
ă din oțel inoxidabil A4-80
Rezistență caracteristică
NRk,s
[kN]
29
46
67
125
196
282
Factor siguranță parțială1)
γMs
[-]
1,60
Defectare oțel cu tijă filetată rezistentă la coroziune mare grad 70
Rezistență caracteristică
NRk,s
[kN]
25
40
59
109
171
247
Factor siguranță parțială1)
γMs
[-]
1,87
Defectare oțel cu tijă filetată ultra rezistentă grad 14.8
Rezistență caracteristică
NRk,s
[kN]
51
81
118
219
343
494
Factor siguranță parțială1)
γMs
[-]
1,5
Defectare oțel cu tijă filetată ultra rezistentă grad 15.8
Rezistență caracteristică
NRk,s
[kN]
54
87
126
235
367
529
Factor siguranță parțială1)
γMs
[-]
1,5
Defectare oțel cu tijă filetată ultra rezistentă grad 16.8
Rezistență caracteristică
NRk,s
[kN]
58
92
134,9
251
392
564
Factor siguranță parțială1)
γMs
[-]
1,5
Defect combinat tragere și con beton în cazul betonului nefisurat C20/25 pentru o durată de viață de 50 de ani
Rezistență caracteristică
τRk,ucr,50
[N/mm2]
16,0
1
5,0
15,0
13,0
10,0
10,0
interval temperatură I: 24°C/40°C
Rezistență caracteristică
τRk,ucr,50
[N/mm2]
16,0
15,0
15,0
13,0
10,0
10,0
interval temperatură II: 50°C/80°C
Rezistență caracteristică
τRk,ucr,50
[N/mm2]
8,5
8,0
8,0
7,0
5,5
5,5
interval temperatură III: 80°C/120°C
C30/37
1,04
Factor creștere
ψc
C40/50
1,07
C50/60
1,09
24°C/40°C
0,72
Factor sarcină susținută
50°C/80°C
0,72
80°C/120°C
0,61
Defect combinat tragere și con beton în cazul betonului nefisurat C20/25 pentru o durată de viață de 100 de ani
Rezistență caracteristică
Rezistență caracteristică
τRk,ucr,100
[N/mm2]
15,0
15,0
14,0
13,0
10,0
9,5
interval temperatură I: 24°C/40°C
Rezistență caracteristică
τRk,ucr,100
[N/mm2]
15,0
15,0
14,0
13,0
10,0
9,5
interval temperatură II: 50°C/80°C
C30/37
1,04
Factor creștere
ψc
C40/50
1,07
C50/60
1,09
R-KER-II, R-KER-II-S și R-KER-II-W
Rezistență caracteristică sub sarcini de tensiune pentru tijă filetată în beton nefisurat
M3
0
280
448
561
673
392
448
392
785
841
897
8,0
8,0
4,5
8,0
8,0
Anexa C1
a Evaluării Tehnice
Europene ETA-21/0242
Pagina 27 din Evaluarea Tehnică Europeană ETA-21/0242 emisă în data de 11.03.2021
Tabel C1 (continuare)
Dimensiune
M8
M10
M12
M16
Defectare con beton în cazul betonului nefisurat
Factor pentru beton nefisurat
kucr,N
[-]
11,0
Distanță față de margine
cucr,N
[mm]
1,5 hef
Distanțare
sucr,N
[mm]
3,0 hef
Defect despicare
ccr,sp pentru
2,0 hef
hmin
ccr,sp pentru
Distanță față de margine
hmin
ărilor naționale
2) h – grosime beton
R-KER-II, R-KER-II-S și R-KER-II-W
Rezistență caracteristică sub sarcini de tensiune pentru tijă filetată în beton nefisurat
M20
M24
M30
1,5 hef
1,2
1,2
Anexa C2
a Evaluării Tehnice
Europene ETA-21/0242
Pagina 28 din Evaluarea Tehnică Europeană ETA-21/0242 emisă în data de 11.03.2021
Tabel C2: Valori caracteristice pentru sarcini de tensiune pentru tijă filetată în beton fisurat
Dimensiune
M8
M10 M12 M16
M20
M24
Defectare oțel
Defectare oțel cu tijă filetată grad 5.8
Rezistență caracteristică
NRk,s
[kN]
18
29
42
78
122
176
Factor siguranță parțială1)
γMs
[-]
1,50
Defectare oțel cu tijă filetată grad 8.8
Rezistență caracteristică
NRk,s
[kN]
29
46
67
125
196
282
Factor siguranță parțială1)
γMs
[-]
1,50
Defectare oțel cu tijă filetată grad 10.9
Rezistență caracteristică
NRk,s
[kN]
36
58
84
157
245
353
Factor siguranță parțială1)
γMs
[-]
1,40
Defectare oțel cu tijă filetată grad 12.9
Rez
istență caracteristică
NRk,s
[kN]
43
69
101
188
294
423
Factor siguranță parțială1)
γMs
[-]
1,40
Defectare oțel cu tijă filetată din oțel inoxidabil A4-70
Rezistență caracteristică
NRk,s
[kN]
25
40
59
109
171
247
Factor siguranță parțială1)
γMs
[-]
1,87
Defectare oțel cu tijă filetată din oțel inoxidabil A4-80
Rezistență caracteristică
NRk,s
[kN]
29
46
67
125
196
282
Factor siguranță parțială1)
γMs
[-]
1,60
Defectare oțel cu tijă filetată rezistentă la coroziune mare grad 70
Rezistență caracteristică
NRk,s
[kN]
25
40
59
109
171
247
Factor siguranță parțială1)
γMs
[-]
1,87
Defectare oțel cu tijă filetată ultra rezistentă grad 14.8
Rezistență caracteristică
NRk,s
[kN]
51
81
118
219
343
494
Factor siguranță parțială1)
γMs
[-]
1,5
Defectare oțel cu tijă filetată ultra rezistentă grad 15.8
Rezistență caracteristică
NRk,s
[kN]
54
87
126
235
367
529
Factor siguranță parțială1)
γMs
[-]
1,5
Defectare oțel cu tijă filetată ul
tra rezistentă grad 16.8
Rezistență caracteristică
NRk,s
[kN]
58
92
134,9
251
392
564
Factor siguranță parțială1)
γMs
[-]
1,5
Defect combinat tragere și con beton în cazul betonului fisurat C20/25 pentru o durată de viață de 50 de ani
Rezistență caracteristică
τRk,ucr,50
[N/mm2]
10,0
11,0
11,0
9.5
7,5
7,0
interval temperatură I: 24°C/40°C
Rezistență caracteristică
τRk,ucr,50
[N/mm2]
10,0
11,0
11,0
9.5
7,5
7,0
interval temperatură II: 50°C/80°C
Rezistență caracteristică
τRk,ucr,50
[N/mm2]
5,0
6,0
6,0
5,0
4,0
4,0
interval temperatură III: 80°C/120°C
C30/37
1,04
Factor creștere
ψc
C40/50
1,07
C50/60
1,09
24°C/40°C
0,72
Factor sarcină susținută
50°C/80°C
0,72
80°C/120°C
0,61
Defect combinat tragere și con beton în cazul betonului fisurat C20/25 pentru o durată de viață de 100 de ani
Rezistență caracteristică
Rezistență caracteristică
τRk,ucr,100
[N/mm2]
9,5
10,0
10,5
9,5
7,5
7,0
interval temperatură I: 24°C/40°C
Rezistență cara
cteristică
τRk,ucr,100
[N/mm2]
9,5
10,0
10,5
9,5
7,5
7,0
interval temperatură II: 50°C/80°C
C30/37
1,04
Factor creștere
ψc
C40/50
1,07
C50/60
1,09
R-KER-II, R-KER-II-S și R-KER-II-W
Rezistență caracteristică sub sarcini de tensiune pentru tijă filetată în beton fisurat
M30
280
448
561
673
392
448
392
785
841
897
5,0
5,0
3,0
5,0
5,0
Anexa C3
a Evaluării Tehnice
Europene ETA-21/0242
Pagina 29 din Evaluarea Tehnică Europeană ETA-21/0242 emisă în data de 11.03.2021
Tabel C2 (continuare)
Dimensiune
Defectare con beton în cazul betonului fisurat
Factor pentru beton fisurat
kucr,N
Distanță față de margine
Distanțare
Defect despicare
ccr,N
scr,N
M8
M10
M12
M16
M20
[-]
7,7
[mm]
[mm]
1,5 hef
3,0 hef
ccr,sp pentru
2,0 hef
hmin
ccr,sp pentru
Distanță față de margine
hmin
tragere, con beton și despicare
Factori
siguranță
curățare
1,0
parțială
pentru
standard
categorie utilizare I1
curățare
1,2
1,0
γinst
[-]
specială
Factori
siguranță
curățare
1,0
parțială
pentru
standard
categorie utilizare I2
curățare
1,2
1,0
specială
1) În absența reglementărilor naționale
2) h – grosime beton
R-KER-II, R-KER-II-S și R-KER-II-W
Rezistență caracteristică sub sarcini de tensiune pentru tijă filetată în beton fisurat
M24
M30
1,5 hef
1,2
1,2
Anexa C4
a Evaluării Tehnice
Europene ETA-21/0242
Pagina 30 din Evaluarea Tehnică Europeană ETA-21/0242 emisă în data de 11.03.2021
Tabel C3: Valori caracteristice pentru sarcini de tensiune pentru tijă cu filet interior în beton nefisurat
Dimensiune
M6/
Φ10
M8/
Φ12
M10/
Φ16
Defectare oțel
Defectare oțel cu tijă filetată grad 5.8
Rezistență caracteristică
NRk,s
[kN]
10
18
29
Factor siguranță parțială1)
γMs
[-]
1,50
Defectare oțel cu tijă filetată grad 8.8
Rezisten
ă caracteristică
NRk,s
[kN]
16
29
46
Factor siguranță parțială1)
γMs
[-]
1,50
Defectare oțel cu tijă filetată din oțel inoxidabil A4-70
Rezistență caracteristică
NRk,s
[kN]
14
25
40
Factor siguranță parțială1)
γMs
[-]
1,87
Defectare oțel cu tijă filetată din oțel inoxidabil A4-80
Rezistență caracteristică
NRk,s
[kN]
16
29
46
Factor siguranță parțială1)
γMs
[-]
1,60
Defectare oțel cu tijă filetată rezistentă la coroziune mare grad 70
Rezistență caracteristică
NRk,s
[kN]
14
25
40
Factor siguranță parțială1)
γMs
[-]
1,87
Defect combinat tragere și con beton în cazul betonului nefisurat C20/25 pentru o durată de viață de 50 de ani
11,0
14,0
11,0
Rezistență caracteristică
τRk,ucr,50
[N/mm2]
interval temperatură I: 24°C/40°C
Rezistență caracteristică
interval temperatură II: 50°C/80°C
Rezistență caracteristică
interval temperatură III:
80°C/120°C
Factor creștere
42
78
67
125
59
109
67
125
59
109
11,0
8,0
[N/mm
2]
11,0
14,0
11,0
11,0
8,0
τRk,ucr,50
[N/mm2]
6,0
7,0
6,0
6,0
4,0
Factor sarcină susținută
C30/37
C40/50
C50/60
24°C/40°C
50°C/80°C
80°C/120°C
1,04
1,07
1,09
1,00
1,00
1,00
0,72
0,72
0,61
Defect combinat tragere și con beton în cazul betonului nefisurat C20/25 pentru o durată de viață de 100 de ani
10,0
13,0
10,0
Rezistență caracteristică
τRk,ucr,100
[N/mm2]
Factor creștere
M16/
Φ24
τRk,ucr,50
ψc
interval temperatură I: 24°C/40°C
Rezistență caracteristică
interval temperatură II: 50°C/80°C
M12/
Φ16
τRk,ucr,100
ψc
[N/mm2]
C30/37
C40/50
C50/60
10,0
13,0
10,0
1,04
1,07
1,09
R-KER-II, R-KER-II-S și R-KER-II-W
Rezistență caracteristică sub sarcini de tensiune pentru tijă cu filet interior în beton
nefisurat
11,0
8,0
11,0
8,0
1,00
1,00
1,00
Anexa C5
a Evaluării Tehnice
Europene ETA-21/0242
Pagina 31 din Evaluarea Tehnică Europeană ETA-21/0242 emisă în data de 11.03.2021
Tabel C3 (continuare)
Rezistență la de
fectare con beton în cazul betonului nefisurat
Factor pentru beton nefisurat
kucr,N
[-]
Distanță față de margine
Distanțare
Defect despicare
ccr,N
scr,N
[mm]
[mm]
11,0
1,5 hef
3,0 hef
ccr,sp pentru
2,0 hef
hmin
ccr,sp pentru
Distanță față de margine
hmin
rea Tehnică Europeană ETA-21/0242 emisă în data de 11.03.2021
Tabel C4: Valori caracteristice pentru sarcini de tensiune pentru tijă cu filet interior în beton fisurat
Dimensiune
M6/
Φ10
M8/
Φ12
Defectare oțel
Defectare oțel cu tijă filetată grad 5.8
Rezistență caracteristică
NRk,s
[kN]
10
18
Factor siguranță parțială1)
γMs
[-]
Defectare oțel cu tijă filetată grad 8.8
Rezistență caracteristică
NRk,s
[kN]
16
29
Factor siguranță parțială1)
γMs
[-]
Defectare oțel cu tijă filetată din oțel inoxidabil A4-70
Rezistență caracteristică
NRk,s
[kN]
14
25
Factor siguranță parțială1)
γMs
[-]
Defectare oțel cu tijă filetată din oțel inoxidabil A4-80
Rezistență caracteristică
NRk,s
[kN]
16
29
Factor siguranță parțială1)
γMs
[-]
Defectare oțel cu tijă filetată rezistentă la coroziune mare grad 70
Rezistență caracteristică
NRk,s
[kN]
14
25
Factor siguranță parțială1)
γMs
[-]
Defect combinat tragere și con beton în cazul betonului
fisurat C20/25 pentru o durată de 50 de ani
10,0
10,0
Rezistență caracteristică
τRk,ucr,50
[N/mm2]
interval temperatură I: 24°C/40°C
Rezistență caracteristică
interval temperatură II: 50°C/80°C
Rezistență caracteristică
interval temperatură III:
80°C/120°C
Factor creștere
M10/
Φ16
M12/
Φ16
M16/
Φ24
29
1,50
42
78
46
1,50
67
125
40
1,87
59
109
46
1,60
67
125
40
1,87
59
109
9,5
9,0
4,0
τRk,ucr,50
[N/mm2]
10,0
10,0
9,5
9,0
4,0
τRk,ucr,50
[N/mm2]
5,0
6,0
5,0
5,0
2,0
ψc
Factor sarcină susținută
C30/37
C40/50
C50/60
24°C/40°C
50°C/80°C
80°C/120°C
1,04
1,07
1,09
1,00
1,00
1,00
0,72
0,72
0,61
Defect combinat tragere și con beton în cazul betonului fisurat C20/25 pentru o durată de 100 de ani
7,0
9,5
9,0
Rezistență caracteristică
τRk,ucr,100
[N/mm2]
interval temperatură I: 24°C/40°C
Rezistență caracteristică
interval temperatură II: 50°C/80°C
Factor creștere
τRk,ucr,100
ψc
[N/mm2]
C30/37
C40/50
C5
fisurat C20/25 pentru o durată de 50 de ani
10,0
10,0
Rezistență caracteristică
τRk,ucr,50
[N/mm2]
interval temperatură I: 24°C/40°C
Rezistență caracteristică
interval temperatură II: 50°C/80°C
Rezistență caracteristică
interval temperatură III:
80°C/120°C
Factor creștere
M10/
Φ16
M12/
Φ16
M16/
Φ24
29
1,50
42
78
46
1,50
67
125
40
1,87
59
109
46
1,60
67
125
40
1,87
59
109
9,5
9,0
4,0
τRk,ucr,50
[N/mm2]
10,0
10,0
9,5
9,0
4,0
τRk,ucr,50
[N/mm2]
5,0
6,0
5,0
5,0
2,0
ψc
Factor sarcină susținută
C30/37
C40/50
C50/60
24°C/40°C
50°C/80°C
80°C/120°C
1,04
1,07
1,09
1,00
1,00
1,00
0,72
0,72
0,61
Defect combinat tragere și con beton în cazul betonului fisurat C20/25 pentru o durată de 100 de ani
7,0
9,5
9,0
Rezistență caracteristică
τRk,ucr,100
[N/mm2]
interval temperatură I: 24°C/40°C
Rezistență caracteristică
interval temperatură II: 50°C/80°C
Factor creștere
τRk,ucr,100
ψc
[N/mm2]
C30/37
C40/50
C5
... ascunde
Alte documentatii ale aceleasi game Vezi toate
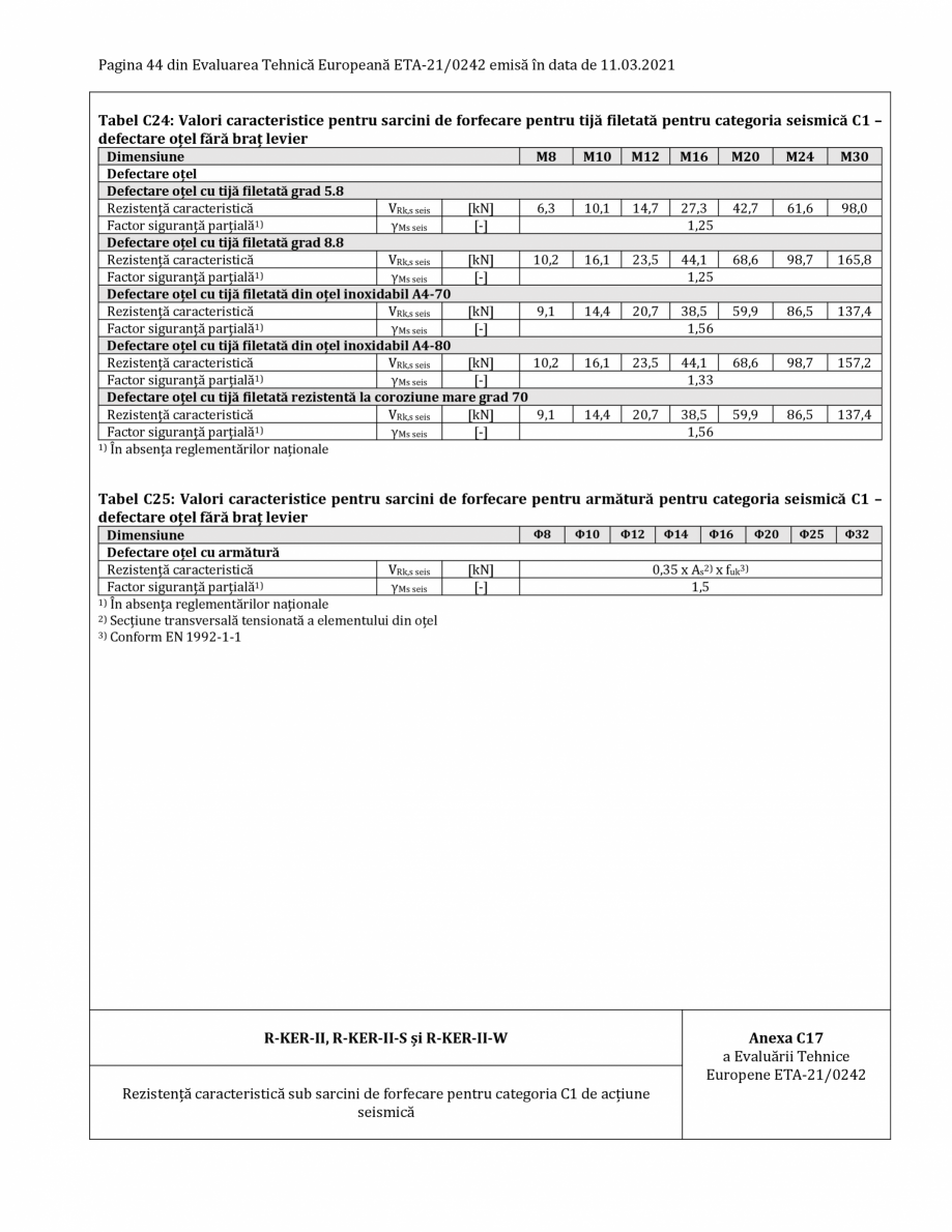
Specificații tehnice
12 p | RO
R-KEM II
Specificații tehnice
13 p | RO
R-KEM II